Konows Hager|B111|Flott 3-roms leilighet med 16 kvm terrasse

Lidenskap for nybygg

Konows Hager|B111|Flott 3-roms leilighet med 16 kvm terrasse

Konows gate 101/103, 0196 OSLO

Geotag
Prisantydning
kr 7 015 000,-
Omkostninger
kr 47 790,-
Totalpris inkl.omk
kr 7 062 790,-
Fellesutgifter/mnd
kr 4 345,-
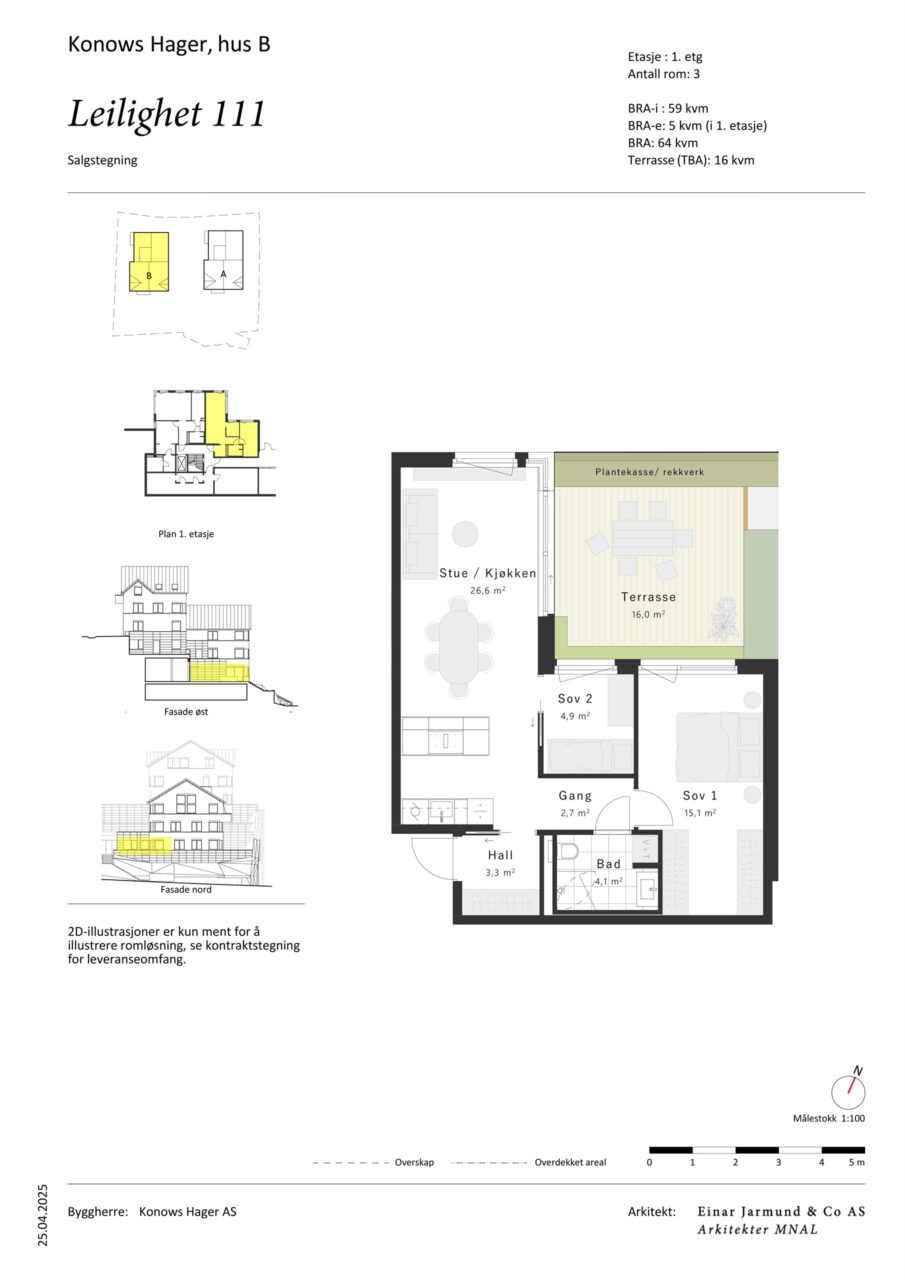
BRA
64 m2
Rom
3
Etasje
1
Leil.nr
B111
Eierform
Eierseksjon

Registrer interesse

Meld din interesse så vil vi ta kontakt med deg og holde deg løpende orientert om prosjektet!

Visning

Ta kontakt med megler for å avtale digital visning via Teams. Med prosjektets 3D-modell får man innblikk i utsikt og solforhold for den enkelte leilighet.

Karoline Cecilie Michaelsen

Eiendomsmegler

95183057karoline@roislandco.no

Andreas Øvsthus

Prosjektansvarlig/ Eiendomsmegler MNEF/ Partner

95156615andreas@roislandco.no

Innhold

Totalt bruksareal BRA: 64 kvm
BRA-i: 59 kvm
BRA-e: 5 kvm
TBA: 16 kvm
 
Arealbeskrivelse;
Arealet er beregnet ut fra Norsk standard NS 3940:2023. BRA-i: Internt arealet innenfor boligens omsluttende vegger, inkludert sjakt. BRA-e: Eksternt areal som boligen har eksklusiv bruksrett til, men som ikke ligger i boligen, f.eks. kjellerbod. BRA-b: Areal for innglasset balkong med veggareal. Total BRA = Summen av BRA-i, BRA-e og BRA-b. TBA er areal på terrasse og balkong. Arealet oppgis ved salg, men inngår ikke i BRA. Oppgitt romareal er netto romareal. De oppgitte arealer er å betrakte som cirka-arealer. Partene har ingen krav mot hverandre dersom arealet skulle vise seg å være 5 % mindre / større enn det oppgitte areal.

Om prosjektet

Konows Hager består av moderne selveierleiligheter i grønne omgivelser. Et boligprosjekt med fokus på komfort, perfekt plassert nær byen og grønne omgivelser. Fantastisk panoramautsikt over hele byen der du ser Bjørvika, Holmenkollen, Grefsenkollen og alt i mellom.

Konows Hager er et lite, intimt prosjekt med kun 19 moderne leiligheter, fra kompakte 2-roms til store 4-roms på opptil 102 kvm. Hver leilighet har store vindusflater, sjenerøs takhøyde og private uteområder – enten terrasse, balkong eller hage. Fellesarealene inkluderer treningsrom, verksted for sykkel og ski, og en trygg parkeringskjeller. Arkitekturen henter inspirasjon fra områdets historiske særpreg, med saltak, trepanel og lune, lyse farger.

Interiøret i Konows Hager kjennetegnes av tidløs nordisk design, lyse fargepaletter og nøye utvalgte kvalitetsmaterialer. Kjøkken fra HTH med integrerte hvitevarer fra Miele, delikate bad, og soverom med gjennomtenkte garderobeløsninger legger til rette for både komfort og trivsel. Store vindusflater slipper inn lys fra flere sider, og skaper hjem som føles åpne, varme og innbydende.

Prosjektet er tegnet av Einar Jarmund & Co Arkitekter, med stor vekt på å ivareta områdets historiske kvaliteter og unike beliggenhet. Den skrående tomten gir alle leiligheter flott utsikt og godt med lys. Byggene er tilpasset villaområdet rundt, med inspirasjon fra klassisk Oslo-arkitektur og 1920-tallets hagebyer. Resultatet er boliger som føles naturlig integrert i landskapet – både moderne og tidløse.

Konows Hager ligger i et nabolag som kombinerer Oslos historiske sjarm med nærhet til både grønne lunger og byliv. Rett utenfor døren finner du Svartdalsparken, et grønt fristed langs Alnaelva, perfekt for en spasertur eller joggetur. En kort sykkeltur unna ligger Bjørvika, med Operaen, Munchmuseet, Deichman, badeplasser samt et fantastisk restauranttilbud.

Velkommen hjem til Konows Hager!

Eiendommen

Konows gate 101, 103, 0196 OSLO

Knr. 301 Gnr. 236 Bnr. 91

Knr. 301 Gnr. 236 Bnr. 92

Selger

Konows Hager AS

Parkering

Leilighetene selges uten rett til bruk av parkeringsplass. Parkeringplassene kan kjøpes for kr. 750 000,- + omk. Det er forberedt for elbil-lader på alle plasser. Det vil bli mulig å bestille ladepunkt i forbindelse med tilvalgsprosessen. Prosjektet disponerer et begrenset antall garasjeplasser som kan kan selges etter nærmere avtale. Kjøp av garasjeplass er forbeholdt 3- og 4-roms leiligheter. Eventuell mulighet til å kjøpe p-plass, må utøves samtidig som kjøpekontrakt for leilighet signeres.

Sykkelparkering i parkeringskjeller med avsatt plass til 45 sykler og 5 transportsykler. Det blir eget område for fri disposisjon for sameiet tilknyttet sykkelparkeringen.

Boder

Det medfølger én bod til hver leilighet, hovedsakelig plassert ved inngangsparti.

Leveranse

I tilknytning til inngangspartiet er det avsatt et mindre fellesrom tiltenkt som treningsrom for sameiet. Utstyr leveres ikke.

Kjøkkenet er fra HTH av modell Focus i farge Beige. Det leveres integrerte hvitevarer fra Miele.
Leiligheter med kjøkkenøy har Miele induksjonstopp med downdraft og kullfilter. I leiligheter med kjøkken uten kjøkkenøy leveres det Røros Slide Sense slimline ventilator i samme farge som kjøkkenet og Monoblokk kullfilter.

Egen kjøkkentegning for den enkelte bolig vil bli utarbeidet og overlevert i forbindelse med tilvalgsprosessen.

Bad kan leveres som baderomskabiner. Det vil inneholde veggheng toalett, dusjvegger i glass og opplegg for vaskemaskin og tørketrommel. Videre er det downlights i himling og speil over baderomsinnredning.

Leilighetene vil få generell innvendig takhøyde på ca. 2,55 meter. Det vil generelt bli nedforet himling med lavere takhøyde i entré, gang, boder og bad for fremføring av ventilasjon, men ikke lavere nettohøyde enn på 2,2 meter.

Det leveres ikke garderobeskap som standard. Mulig plassering er antydet på tegning. Det tas forbehold om at plassering av garderobeskap må tilpasses detaljprosjekterte løsninger.

Byggemåte

Bygningen utføres med hovedsakelig bærekonstruksjon i betong og stål.

Fasadene bygges opp som isolerte stenderverks-vegger, med trekledning og felter med espalier.

Taktekking er tiltenkt Benders Carisma flat eller tilsvarende takstein.

Balkonger og terrasser leveres med tremmegulv. Underkant balkongdekke kledd med trepanel.

Alle leilighetene er tilgjengelige med heis og trapp, som også går ned til boder og parkering i kjellerplan.

Det installeres balansert ventilasjon med varmegjenvinning.

Røykvarslere og brannslukningsutstyr i henhold til forskriftskrav. Det installeres forskriftsmessig sprinkling med synlige sprinklerhoder.

Postkasser er tiltenkt plassert utenfor inngang til garasje.

Selger inngår på vegne av sameiet avtale med signalleverandør for TV/internett.

Oppvarming

Det leveres vannbåren gulvvarme i entre/gang og stue/kjøkken. Bad leveres med elektrisk gulvvarme. På soverom vil det være stikkontakt for eventuell panelovn.

Tinglyste Heftelser og Rettigheter

På eiendommen er det tinglyst følgende heftelser og rettigheter som følger eiendommens matrikkel ved overskjøting til ny hjemmelshaver:

301/236/91:
30.04.2025 – Dokumentnr: 479639 – Registerenheten kan ikke disponeres over uten samtykke fra rettighetshaver
Rettighetshaver: Røisland & Co Eiendomsmegling AS
Org.nr: 994 194 410
Gjelder denne registerenheten med flere
Elektronisk innsendt

15.11.1923 – Dokumentnr: 993841 – Bestemmelse om bebyggelse
Bestemmelse om benyttelse
Bestemmelse om deleforbud
Bestemmelse om gjerde
Bestemmelse om vann/kloakkledning
Med flere bestemmelser

20.03.1926 – Dokumentnr: 912560 – Best. om vann/kloakkledn.
Kan ikke slettes uten samtykke fra kommunen

29.09.1951 – Dokumentnr: 412278 – Bestemmelse om bebyggelse
Byggeforbud på nærmere angitt avstand

08.01.1954 – Dokumentnr: 400339 – Bestemmelse om bebyggelse
Bestemmelse om kloakkledning
Rett for kommunen til å anlegge og vedlikeholde ledninger m.m.

04.10.2021 – Dokumentnr: 1229090 – Registerenheten kan ikke disponeres over uten samtykke fra rettighetshaver
Rettighetshaver: Konows Hager AS
Org.nr: 927 306 743
Gjelder denne registerenheten med flere
———-
Transport
Fra: Hadrian Eiendom AS
Org.nr: 976 145 364
Til: Konows Hager AS
Org.nr: 927 306 743

23.10.1923 – Dokumentnr: 900827 – Opprettelse av matrikkelenheten
OPPRETTELSE – FRADELT FRA ENEBAKKVN 70 – UTGÅTT

15.11.1923 – Dokumentnr: 993842 – Bestemmelse om bebyggelse
Bestemmelse om benyttelse
Forbud mot generende bedrift
Bestemmelse om gjerde
Bestemmelse om vann/kloakkledning
Med flere bestemmelser

09.07.1927 – Dokumentnr: 921170 – Bestemmelse om bebyggelse
Bestemmelse om benyttelse
Bestemmelse om gjerde
Forbud mot generende bedrift
Med flere bestemmelser

08.01.1954 – Dokumentnr: 400338 – Erklæring/avtale
Bestemmelse om kloakkledning
Rett for kommunen til å anlegge og vedlikeholde ledninger m.m.

08.06.1957 – Dokumentnr: 408311 – Erklæring/avtale
Vedtak av Oslo kommunes vann- og kloakkreglement
Kan ikke slettes uten samtykke fra kommunen

04.10.2021 – Dokumentnr: 1229090 – Registerenheten kan ikke disponeres over uten samtykke fra rettighetshaver
Rettighetshaver: Konows Hager AS
Org.nr: 927 306 743
Gjelder denne registerenheten med flere
———-
Transport
Fra: Hadrian Eiendom AS
Org.nr: 976 145 364
Til: Konows Hager AS
Org.nr: 927 306 743

30.04.2025 – Dokumentnr: 479639 – Registerenheten kan ikke disponeres over uten samtykke fra rettighetshaver
Rettighetshaver: Røisland & Co Eiendomsmegling AS
Org.nr: 994 194 410
Gjelder denne registerenheten med flere
Elektronisk innsendt

23.10.1923 – Dokumentnr: 900828 – Opprettelse av matrikkelenheten
OPPRETTELSE – FRADELT FRA ENEBAKKVN 70 – UTGÅTT

25.09.2015 – Dokumentnr: 883479 – Arealoverføring
Areal overført fra: Knr:0301 Gnr:150 Bnr:50
Vederlag: NOK 0
Omsetningstype: Annet

301/236/92:
30.04.2025 – Dokumentnr: 479639 – Registerenheten kan ikke disponeres over uten samtykke fra rettighetshaver
Rettighetshaver: Røisland & Co Eiendomsmegling AS
Org.nr: 994 194 410
Gjelder denne registerenheten med flere
Elektronisk innsendt

15.11.1923 – Dokumentnr: 993841 – Bestemmelse om bebyggelse
Bestemmelse om benyttelse
Bestemmelse om deleforbud
Bestemmelse om gjerde
Bestemmelse om vann/kloakkledning
Med flere bestemmelser

20.03.1926 – Dokumentnr: 912560 – Best. om vann/kloakkledn.
Kan ikke slettes uten samtykke fra kommunen

29.09.1951 – Dokumentnr: 412278 – Bestemmelse om bebyggelse
Byggeforbud på nærmere angitt avstand

08.01.1954 – Dokumentnr: 400339 – Bestemmelse om bebyggelse
Bestemmelse om kloakkledning
Rett for kommunen til å anlegge og vedlikeholde ledninger m.m.

04.10.2021 – Dokumentnr: 1229090 – Registerenheten kan ikke disponeres over uten samtykke fra rettighetshaver
Rettighetshaver: Konows Hager AS
Org.nr: 927 306 743
Gjelder denne registerenheten med flere
———-
Transport
Fra: Hadrian Eiendom AS
Org.nr: 976 145 364
Til: Konows Hager AS
Org.nr: 927 306 743

23.10.1923 – Dokumentnr: 900827 – Opprettelse av matrikkelenheten
OPPRETTELSE – FRADELT FRA ENEBAKKVN 70 – UTGÅTT

15.11.1923 – Dokumentnr: 993842 – Bestemmelse om bebyggelse
Bestemmelse om benyttelse
Forbud mot generende bedrift
Bestemmelse om gjerde
Bestemmelse om vann/kloakkledning
Med flere bestemmelser

09.07.1927 – Dokumentnr: 921170 – Bestemmelse om bebyggelse
Bestemmelse om benyttelse
Bestemmelse om gjerde
Forbud mot generende bedrift
Med flere bestemmelser

08.01.1954 – Dokumentnr: 400338 – Erklæring/avtale
Bestemmelse om kloakkledning
Rett for kommunen til å anlegge og vedlikeholde ledninger m.m.

08.06.1957 – Dokumentnr: 408311 – Erklæring/avtale
Vedtak av Oslo kommunes vann- og kloakkreglement
Kan ikke slettes uten samtykke fra kommunen

04.10.2021 – Dokumentnr: 1229090 – Registerenheten kan ikke disponeres over uten samtykke fra rettighetshaver
Rettighetshaver: Konows Hager AS
Org.nr: 927 306 743
Gjelder denne registerenheten med flere
———-
Transport
Fra: Hadrian Eiendom AS
Org.nr: 976 145 364
Til: Konows Hager AS
Org.nr: 927 306 743

30.04.2025 – Dokumentnr: 479639 – Registerenheten kan ikke disponeres over uten samtykke fra rettighetshaver
Rettighetshaver: Røisland & Co Eiendomsmegling AS
Org.nr: 994 194 410
Gjelder denne registerenheten med flere
Elektronisk innsendt

23.10.1923 – Dokumentnr: 900828 – Opprettelse av matrikkelenheten
OPPRETTELSE – FRADELT FRA ENEBAKKVN 70 – UTGÅTT

25.09.2015 – Dokumentnr: 883479 – Arealoverføring
Areal overført fra: Knr:0301 Gnr:150 Bnr:50
Vederlag: NOK 0
Omsetningstype: Annet

Midlertidig brukstillatelse og ferdigattest

Det prosjekteres og bygges i henhold til Byggeteknisk forskrift TEK17. Selger er ansvarlig for at det foreligger brukstillatelse på leiligheten senest ved kjøpers overtagelse av leiligheten.

Etter pålegg fra Finanstilsynet, rettet mot samtlige meglerforetak (ref. rundskriv 21 / 2011), informeres det om at det per dato for overtakelse av den enkelte boligseksjon ikke vil foreligge ferdigattest, samt at ferdigattest først kan foreligge lang tid etter overtakelse. Bakgrunnen er at deler av de arbeider som er påkrevet for å få ferdigattest, ikke vil være ferdig per dato for overtakelse av den enkelte boligseksjon.

Kjøper kan ikke gjøre mangels- og/eller forsinkelsesbeføyelser gjeldende på det grunnlag at det tar tid før ferdigattest er utstedt. Det presiseres at fremstillingen over ikke har noen innvirkning på selgers forpliktelse til å fremskaffe ferdigattest.

Brukstillatelse skal alltid foreligge.

Adgang til utleie

Leiligheten kan leies ut i sin helhet.

Områdebeskrivelse

Konows Hager ligger høyt og fritt med panoramautsikt over Oslo. Her bor du i et rolig, grønt område, omgitt av hyggelige nabolag som Kampen, Vålerenga og Gamlebyen. Bussforbindelse like ved gjør det enkelt å nå sentrum, samtidig som parker som Svartdalsparken og Ekebergparken ligger rett utenfor døren. Her lever du tett på naturen, men aldri langt fra byens puls.

Rett utenfor døren finner du et variert og innholdsrikt servicetilbud. Lokale favoritter som Kruttverket, ZZ Pizza og Fuglen byr på gode mat- og kaffeopplevelser, mens EKT Rideskole, Ekebergparken og Svartdalsparken legger til rette for rekreasjon og friluftsliv. Treningssentre, dagligvarebutikker og kort vei til Bjørvikas urbane fasiliteter gjør hverdagen enkel og innholdsrik.

Hjemmelshaver

Beskrivelse av tomt og utomhus

Utomhusarealene er ikke detaljprosjektert og det vil forekomme endringer på utomhusplan som følge av prosjekteringen. Selger forbeholder seg retten til å foreta endringer med hensyn til både utforming og materialvalg.

Reguleringsplan og - bestemmelser

Eiendommen er regulert til boligbebyggelse i reguleringsplan Detaljregulering med reguleringsbestemmelser for Konows gate 101 og 103, Ekebergskrenten, S-5112, vedtatt 24.03.2021. Deler av eiendommen er omfattet av hensynssone H3010-2, ras- og skredfare (steinsprang). Eiendommen er omfattet av kommunedelplan for torg og møteplasser, KDP-17, vedtatt 22.04.2009.
For mer informasjon om reguleringsforhold kontakt megler eller søk på saksnummer/adresse/gnr. bnr på plan- og bygningsetatens hjemmeside, https://innsyn.pbe.oslo.kommune.no/saksinnsyn/

Det er gitt rammetillatelse for tiltaket datert 04.02.2022 med endelig vedtak datert 24.08.2022, samt godkjente endringer datert 07.03.2025 følger som vedlegg til salgsoppgaven.

Eiendomsskatt

Det er eiendomsskatt på boliger og annen fast eiendom i Oslo kommune. Skattesatsen er: 2,35 promille for boliger og fritidsboliger. Bunnfradraget for 2025 er på inntil 4,7 millioner kroner.

Formuesverdi

Formuesverdien er ikke fastsatt, men fastsettes av Skatteetaten etter en beregningsmodell som hensyntar om boligen er «primærbolig»; (der eier er bosatt iht. Folkeregisteret) eller «sekundærbolig»; (andre boliger man eier). For primærbolig er formuesverdien 25 % av markedsverdien opp til kr. 10 000 000 og deretter 70 % av den overskytende markedsverdien, og 100 % for sekundærboliger. Det gjøres oppmerksom på at kjøper selv må sende inn opplysninger om adresse, areal, boligtype og byggeår til skattemyndighetene.

Det tas forbehold om endring av satser, og henvises til Skatteetatens websider dersom ytterligere informasjon er ønskelig.

Betalingsbetingelser

Forskudd tilsvarende 5 % av kjøpesum betales til meglers klientkonto så snart kjøper har mottatt bekreftelse fra megler om at selger har stilt entreprenørgaranti etter bustadoppføringsloven (buofl) § 12. Der kjøper er å anse som profesjonell (selskap) iht. Bustadoppføringslova betales forskudd på 20%.

Forskudd innbetalt til meglers klientkonto er selgers penger og under selgers råderett fra det tidspunkt selger har stilt garanti etter buofl § 47. Også avkastning av pengene er selgers fra det tidspunkt selger har oppfylt vilkårene for å motta forskudd.

Dersom kjøper ikke har signert kjøpekontrakt eller innbetalt forskudd innen 30 dager etter aksept av bud, og dette ikke skyldes forhold på selgers side, er kjøper innforstått med at dette utgjør et vesentlig mislighold av kjøpers kontraktsforpliktelser. Dette vil gi selger rett til å heve avtalen og gjennomføre dekningssalg for kjøpers regning.

Innbetaling av forskuddet skal være i form av ubundet egenkapital. Det vil si at det ikke skal etableres pant i boligen (eller i eiendommen hvor boligen inngår) som sikkerhet for kjøpers finansiering av håndpenger.

Organisasjonsform

Leilighetene vil bli solgt som eierleiligheter og organisert som sameie og følger eierseksjonsloven av 16.juni 2017, nr. 65.

Deler av fellesarealet vil være forbeholdt til eksklusiv bruk, drift og vedlikehold for boligseksjonene, hvilket beskrives nærmere i eierseksjonssameiets vedtekter og/eller ved tinglysing. Likeledes vil det i sameiets vedtekter bli regulert til enerett til bruk av deler av fellesarealet. Leiligheter med hager vil få vedtektsfestet enerett til bruk av utearealet iht. kontraktstegning.

Eierseksjonsloven kan i sin helhet fås ved henvendelse til megler. Loven finnes også på www.lovdata.no.

Sameiet vil bli ledet av et styre fortrinnsvis med representanter fra boligseksjonene, som velges blant eierne. Styret skal ivareta alle saker av felles interesse for sameierne. Selger vil på vegne av sameiet engasjere en forretningsfører/teknisk drifter, med varighet inntil 3 år som vil forestå driften av sameiet innenfor de rammer sameiet vedtar. Selger vil på vegne av sameiet inngå driftsavtaler med varighet inntil 3 år, eksempelvis avtale vedr. fibernett.

Vedtekter/husordensregler

Kjøper plikter å rette seg etter de til enhver tid gjeldende vedtekter for sameiet. Vedlagt salgsoppgaven følger foreløpige vedtekter. Likeledes plikter kjøper å betale sin forholdsmessige andel av driftsutgiftene for eiendommene fra overtakelsestidspunktet. Budsjett over driftsutgiftene samt vedtektene stadfestes av sameiet i ekstraordinært sameiermøte. Regler for styring og drift av boligsameiet følger av Eierseksjonsloven.

Forbehold fra utbygger

Selger tar følgende forbehold for gjennomføring av kjøpekontrakten:

a. Selger tar forbehold om igangsettingstillatelse.
b. Selger tar forbehold om at endringssøknaden om justering av fasade og sammenslåing av 4 til 2 enheter blir godkjent
c. Selger tar forbehold om tilfredsstillende kontrakt med entreprenør.
d. Selger tar forbehold om 60 % solgte leiligheter iht. totalverdi i prislisten, og åpning av byggelån.
e. Selger tar forbehold om at styret i utbyggingsselskapet godkjenner igangsetting og gjennomføringen av prosjektet

Dersom forbeholdene ikke er avklart innen 31.12.2025 kan selger kansellere avtalen. Selger vil skriftlig melde ifra til kjøper via e-post, SMS eller brev om prosjektet ikke blir igangsatt innen fristen.

Kansellering anses skjedd på det tidspunkt Selger har sendt skriftlig meddelelse om dette. Dersom kanselleringsretten benyttes, får Kjøper tilbakebetalt eventuelt innbetalt kjøpesum inkludert eventuelle renter, forutsatt at rentene overstiger ½ R. For øvrig kan Kjøper ikke fremme krav mot Selger som følge av kanselleringen. Selger stiller garanti i medhold av buofl. § 12 straks etter at samtlige forbehold i dette punkt 19.1 er løftet.

Selger tar forbehold om endringer av opplysninger gitt i salgsmateriell og leveransebeskrivelse med hensyn til konstruksjon og materialvalg, fargevalg og arkitektoniske løsninger, herunder bl.a. mindre endringer i planløsninger. Opplysningene gitt i bilagene til kjøpekontrakten kan fravikes dersom selger anser det nødvendig eller ønskelig. Det tas spesielt forbehold om endringer og justeringer som er hensiktsmessige og nødvendige for eksempel i forhold til plassering av sjakter og kanaler, herunder innkassinger av kanaler/føringer som ikke er vist på tegningene. Det presiseres at plassering av vinduer, dører, m.m. samt form på disse kan avvike noe fra tegningsgrunnlaget/ bilagene til kjøpekontrakten.

Kjøper er gjort kjent med at den endelige arealfordeling/oppdeling av prosjektet ikke er fastlagt på avtaletidspunktet.

Selger forbeholder seg derfor retten til at boligsammensetningen endres (f. eks ved at leiligheter slås sammen eller deles).

For kjøpere med rett til parkeringsplass/er vil kjøpesummen for p-plass bero på meglerskonto inntil kjelleren er ferdig organisert og kjøper har fått rettsvern for sin rett til parkeringsplass/er.

Kjøper aksepterer ved signering av Kjøpekontrakten at Selger fritt kan transportere Kjøpekontrakten og eventuelle senere avtaler..

Kjøper er kjent med at Kjøpekontrakten er utarbeidet på et tidlig tidspunkt i utbyggingen av Konows Hager og det tas forbehold om endringer i dokumentene opplistet under. Det tas også forbehold om endringer i offentlige dokumenter.

Kjøper aksepterer eventuelle konsekvenser av de forbehold som fremkommer i salgsoppgaven med vedlegg, og kan ikke fremme krav mot Selger pga. dette.

Det tas forbehold om at seksjoneringen kan bli forsinket på grunn av offentlige myndigheters saksbehandlingstid. Såfremt tomtearronderingen og seksjoneringen av eiendommen ikke er gjennomført ved overtakelse, vil overskjøting til kjøper skje så snart det praktisk lar seg gjennomføre.

Selger forbeholder seg retten til å forestå fordelingen/plasseringen av sportsboder og eventuelle parkeringsplasser.

Kjøper er gjort kjent med at alle 3D-presentasjoner, digitale modeller, planer, skisser, bilder i prospekt, tilvalgspresentasjon og annet salgsmateriell er av illustrativ karakter, og utarbeidet før gjennomført detaljprosjektering. Materialet kan derfor vise bygningsvolumer, innredning, beplantning og detaljer mv. som ikke inngår i avtalen.

Det tas forbehold om eventuelle feil i salgsoppgaven.

Tegninger og bilder i markedsføringsmateriell er kun illustrasjoner og kan avvike noe i forhold til plan – og fasadetegninger som vedlegges. Selger leverer ikke; innredninger, lamper, øvrig belysningsutstyr, markiser/solavskjerming, tepper, møbler og annet tilbehør, med mindre det fremgår av leveransebeskrivelse samt kontraktstegninger. 3D og VR-modellen er basert på skisser og regulert volum og kun ment som en illustrasjon. Endringer vil skje.

Selger vil benytte egen standard kjøpekontrakt for alle salg i prosjektet. Det forutsettes at bud er lagt inn på grunnlag av denne kjøpekontrakten og en eventuell aksept av bud fra selger gis under samme forutsetning. Standard kjøpekontrakt følger som vedlegg til denne salgsoppgave.

Lovanvendelse

Kjøpet følger bustadoppføringslova av 13. juni 1997 nr. 43. Loven regulerer forhold hvor selger er profesjonell og kjøper er forbruker. Iht. loven plikter selger å stille garanti som sikkerhet for oppfyllelse av sine forpliktelser etter kjøpekontrakt senest ved forbehold frafalt. Garantien utgjør 3 % av kjøpesum frem til overtakelse. Beløpet økes til 5 % av kjøpesum og står 5 -fem- år etter overtakelsen jf. buofl. § 12, 3 ledd. Loven kan i sin helhet fås ved henvendelse til megler. Loven finnes også på www.lovdata.no.
 
I tilfeller hvor kjøper er profesjonell iht. bustadoppføringslova, dvs. gjør kjøpet som ledd i næringsvirksomhet, kan selger kreve at avtalen reguleres av Lov om avhending av fast eiendom av 3. juli 1992 nr. 93 (avhendingslova).
 
Det forutsettes at hjemmel overføres til kjøper.
 
Ingen kan direkte eller indirekte erverve mer en to boligseksjoner i et boligsameie jf. eierseksjonsloven § 23. Dersom et erverv har funnet sted i strid med eierseksjonslovens regler kan Kartverket nekte overskjøting. Dersom overskjøting blir nektet, er kjøper likevel forpliktet til å gjennomføre handelen med selger, og oppgjør til selger vil finne sted tross manglende overskjøting.

Hvitvaskingsloven

Eiendomsmeglere er underlagt Lov om hvitvasking. I henhold til Lov av 01.06.18 nr. 23 om tiltak mot hvitvasking og terrorfinansiering (Hvitvaskingsloven), er megler pliktig til å gjennomføre identitetskontroll av alle involverte parter, herunder fullmektiger. Dette innebærer bl.a. å bekrefte kunders og reelle rettighetshaveres identitet på bakgrunn av fremvist gyldig legitimasjon eller på annen godkjent måte, samt å innhente opplysninger om kundeforholdets formål og tilsiktede art. Dersom slike kundetiltak ikke kan gjennomføres, kan megler ikke etablere kundeforholdet eller utføre transaksjonen. Hvitvaskingsloven pålegger også eiendomsmegler å innhente redegjørelse av midlenes opprinnelse. Dette besvares av samtlige kjøpere herunder parter som opptrer på vegne av kjøper, ved en såkalt kundekontroll.
Hvis kjøper ikke bidrar til gjennomføring av kundekontrollen og dette fører til at transaksjonen blir forsinket eller ikke kan gjennomføres, vil dette ansees som mislighold av avtalen og gi selger rettigheter etter avhendingslova eller bustadoppføringsloven kapittel 5. I tilfeller der selger ikke bidrar til gjennomføring av løpende kundekontroll underveis i oppdraget, er det selger som misligholder sine forpliktelser etter avtalen og gi kjøper rettigheter etter avhendingslovens eller bustadoppføringsloven kapittel 4. Partene er selv ansvarlige for eventuelle kostnader og ansvar dette kan medføre. Eiendomsmegleren eller eiendomsmeglingsforetaket kan ikke holdes ansvarlig for de konsekvenser dette vil kunne få for partene eller andre som har interesser i eiendomshandelen.
Ved eventuelt tilbakehold av informasjon eller mistenkelige transaksjoner, plikter eiendomsmegleren å melde fra til Økokrim. Med «mistenkelig transaksjon» menes transaksjon som mistenkes å involvere utbytte fra straffbar handling, eller som skjer som ledd i terrorfinansiering. Manglende mulighet for kundekontroll kan også være et forhold som gjør transaksjonen mistenkelig. 
 
Det anbefales at kjøper innbetaler kjøpesummen som ikke kommer fra låneinstitusjon, i en samlet innbetaling fra egen konto i norsk bank.
 
Selger forbeholder seg også retten til å kreve dokumentasjon av kjøpers finansiering.
 
Det kan ikke gjøres ansvar gjeldende mot meglerforetaket som følge av at meglerforetaket overholder sine plikter etter Hvitvaskingsloven. 
 

Avbestilling

Kjøper kan avbestille boligen inntil overtakelse har funnet sted. Ved avbestilling kommer reglene i bustadoppføringslovas kapittel VI til anvendelse. Ved avbestilling gjelder bestemmelsene i buofl. § 53. I et slikt tilfelle skal kjøper dekke hele selgers økonomiske tap.

Finansieringskontroll

Kjøper er selv ansvarlig for nødvendig finansiering og bekreftelse på denne. Dersom kjøper skal ha lånefinansiering, bes det oppgitt kontaktinformasjon til långiver slik at megler kan foreta en kontroll av kjøpers finansiering. Til informasjon, kan disse opplysningene bli videreformidlet til selger. Kjøper oppfordres til å innhente verdivurdering av egen bolig dersom egenkapital i nåværende bolig inngår i finansieringsplanen for dette kjøpet. Handelen er juridisk bindende for begge parter når kjøpers bud er akseptert av selger. Dersom kjøper likevel ikke skulle være i stand til å betale kjøpesummen, er kjøper likevel bundet av kjøpet. Selger vil i en slik situasjon kunne påberope seg vesentlig mislighold av avtalen og heve kontrakten. Kjøper er innforstått med at selger vil kunne selge boligen på nytt (dekningssalg) og at ethvert økonomisk tap som selger måtte bli påført som følge av kjøpers mislighold, vil bli krevd dekket av kjøper. Herunder omkostninger i forbindelse med et nytt salg, dekning av en mulig lavere salgspris, rentetap m.m.

Arealdefinisjoner

Fra 1. januar 2024 trådte en ny arealstandard i kraft “Areal og Volumberegninger for bygninger” som ble publisert av Norsk Standard 26.10.23. De nye arealbegrepene oppgis som ulike former for BRA, som forklart under:

BRA-i
Bruksarealet av boenheten innenfor omsluttede vegger.

BRA-e
Bruksarealet av alle rom som ligger utenfor boenheten, men som tilhører denne.

BRA-b
Bruksarealet av innglasset balkong tilknyttet boenheten.

TBA
Arealet av terrasser og åpne balkonger tilknyttet boenheten.

BRA
Boligens fulle areal eksklusive ytterveggene, altså summen av BRA-i. BRA-e og BRA-b.

Salgstegninger ligger i boligvelger. Kontraktstegning for den enkelte leilighet kan lastes ned via prosjektets boligvelger eller tilsendes ved henvendelse til megler.
Arealer er beregnet og avrundet etter NS3940:2023, og alle arealer følger normal avrundingsregel og avrundes til nærmeste hele kvm.

De oppgitte arealer er å betrakte som cirka-arealer. Partene har ingen krav mot hverandre dersom arealet skulle vise seg å være 5 % mindre/større enn det oppgitte areal. Marginale avvik på garasjeplassenes bredde/lengde kan også forekomme uten at partene har krav mot hverandre.

Dato

Sist oppdatert: 23.01.2026

Denne boligen er en del av KONOWS HAGER

Les mer om prosjektet

Tilbake til toppen