Matrikkel
Knr. 301 Gnr. 234 Bnr. 60
Knr. 301 Gnr. 234 Bnr. 34
Sørengkaia 1, 0194 OSLO
Meld din interesse så vil vi ta kontakt med deg og holde deg løpende orientert om prosjektet!
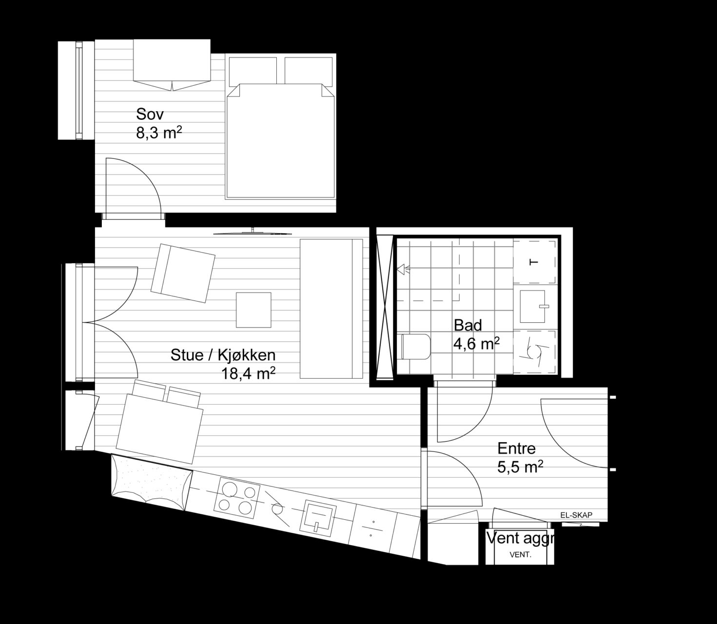
Leilighet J207 er en smart og gjennomgående 2-roms leilighet beliggende i 2. etasje. Leiligheten inneholder entré med plass for å henge fra seg yttertøy, og en åpen stue- kjøkkenløsning. Kjøkkenet leveres fra HTH(eller tilsvarende). Videre er det et flislagt bad med gulvvarme, og soverom med god plass til en garderobeløsning. Leiligheten disponerer i tillegg en privat takparsell på 10kvm.
Dette er bare én av flere leiligheter vi har for salg. Sjekk ut prosjektets hjemmeside med boligvelger for å se på andre alternativer.

Knr. 301 Gnr. 234 Bnr. 60
Knr. 301 Gnr. 234 Bnr. 34
I tillegg til kjøpesummen må kjøper betale:
1: Dokumentavgift til staten, 2,5% av andel tomteverdi: Kr. 28 600,-
2: Tinglysningsgebyr skjøte: Kr. 545,-
3: Tinglysningsgebyr pantedokument: Kr. 545,-
Totale omkostninger: Kr. 29 690,-
Tilbud om lånefinansiering
Megler formidler gjerne kontakt med rådgiver hos vår samarbeidspartner Sparebank 1 Hallingdal og Valdres. De har konkurransedyktige betingelser samt rask og løsningsorientert behandling av din lånesøknad. Røisland & Co mottar et honorar for denne formidlingen.