Matrikkel
Knr. 3301 Gnr. 113 Bnr. 418
Tomtegata 29, 3012 DRAMMEN
Meld din interesse så vil vi ta kontakt med deg og holde deg løpende orientert om prosjektet!
Ta kontakt med megler for å avtale digitaltvisning via Teams eller fysisk på vårt visningssenter. Du finner visningssenteret bak Tomtegata 29, på den åpne plassen langs Omstedgata i kvartalet der Farveriet kommer.
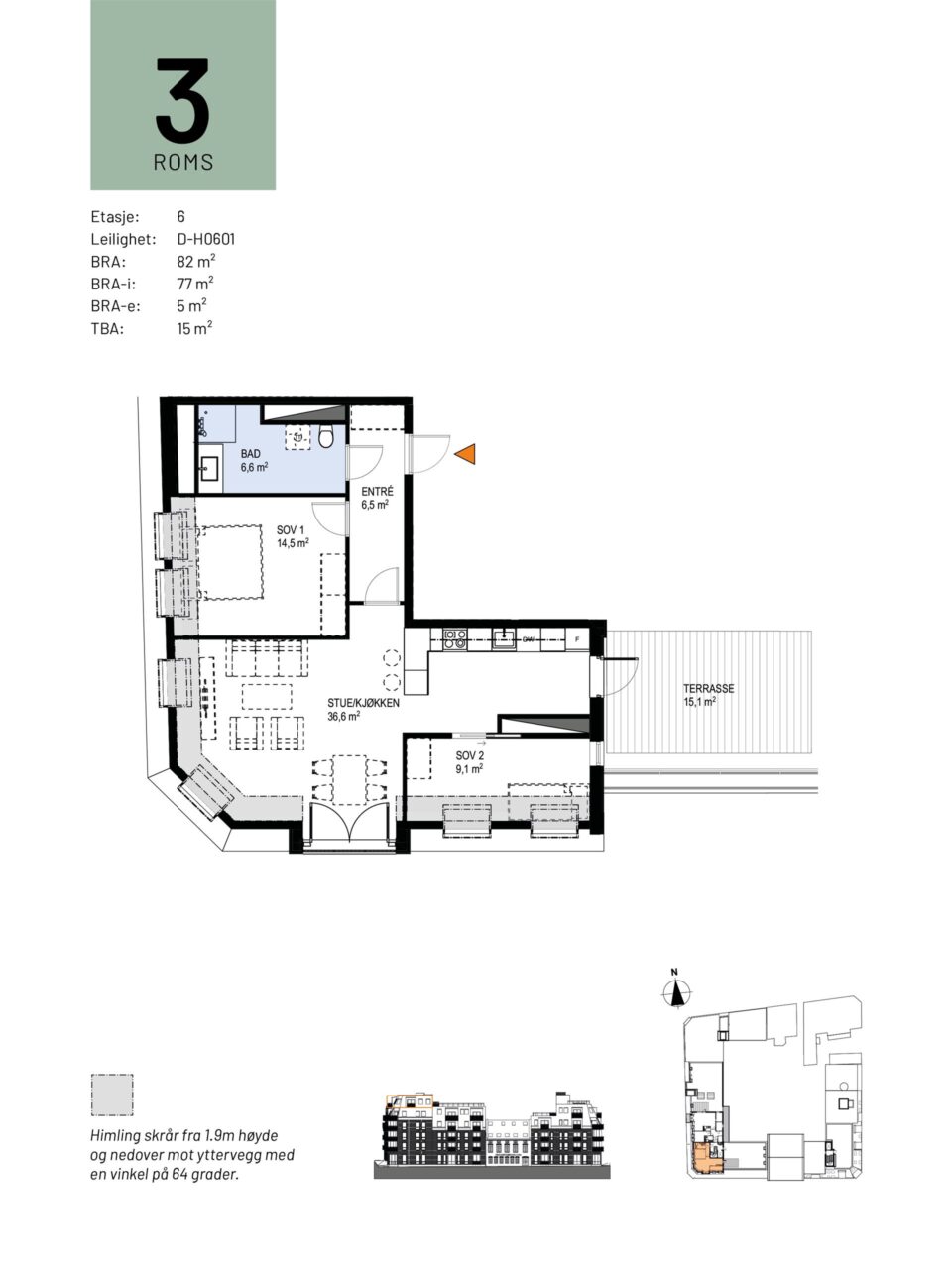
Velkommen til leilighet D-H0601 – Unik 3-roms hjørneleilighet beliggende i byggets toppetasje, 6. etasje. Leiligheten har en gjennomtenkt og god planløsning med stue med sjarmerende skråvegger og fransk balkong, åpen kjøkkenløsning og utgang til stor privat takterrasse med panoramautsikt. Stort hovedsoverom med plass til garderobe, soverom og entré med plass til garderobe og inngang til delikat baderom Leilighetene har en gjennomgående god standard med enstavs eikeparkett med vannbåren gulvvarme, delikat kjøkkeninnredning fra Sigdal med integrerte hvitevarer og balansert ventilasjon. Meget sentral beliggenhet i hjertet av Drammen.
Dette er bare en av flere leiligheter vi har for salg i prosjektet. Ta en titt på prosjektets hjemmeside og i boligvelger for å se på andre alternativer.


Knr. 3301 Gnr. 113 Bnr. 418
De nye leilighetene i Farveriet vil omkranse nesten hele kvartalet, med en frodig hage i midten. Her finner du et variert utvalg av leiligheter, alt fra smarte og effektive 2-roms til romslige 4-roms på toppen. Leilighetene vil variere fra 35 til 111 kvm. i størrelse.
Felles for de 78 leilighetene er gode kvaliteter og smarte planløsninger, samt private balkonger eller markterrasser.
Mellom byggene vil den grønne hagen være en skjermet oase med blant annet lekeplass, pergola og drivhus. I tillegg til private uteplasser tilbyr Farveriet romslige takhager som vil bli herlige sosiale soner midt i det urbane bybildet. Et perfekt sted å nyte morgenkaffen mens sola står opp, eller samle naboer til lystig lag på varme sommerkvelder.
I Tomtegata 29 får sameiet sitt fellesareal – i en rehabilitert fabrikkbygning med sjel. Her skapes lokaler som kan brukes til arrangementer og festligheter, både for enkeltbeboere og fellesskapet. Dette blir levende og attraktive rom i et bygg med historisk tyngde og atmosfære.
Alt du trenger – rett utenfor døra. Så enkelt kan egentlig tilværelsen i Farveriet beskrives. To minutter unna ligger kjøpesenteret CC Drammen, som sammen med nabokvartalet tilbyr to daglig-varebutikker, to apotek, to treningssentre, vinmonopol, baker, kafé, blomster og for øvrig et rikholdig utvalg fordelt på rundt 40 butikker.
Alt sammen akkurat der du bor.
Plasseringen til Farveriet er på mange måter perfekt, midt mellom dagens handelssentrum rundt Bragernes torg og den kommende transformasjonen på Brakerøya. Du har også under ti minutter gange til toget, enten du velger å reise fra Brakerøya eller Drammen stasjon. En togtur til Oslo tar kun en halv time.
Kulturattraksjoner som teater, bibliotek, scener og øvrige tilbud på Union Brygge er også innen umiddelbar nærhet. Her er det bare å ta bena fatt – og la bilen stå.
For friluftsentusiaster ligger Drammensmarka rett opp bakken, perfekt for turer året rundt, mens Bystranda kun er en kort rusletur unna for gode late dager ved vannkanten.
Her bor du sentralt og praktisk, med alt du trenger for en innholdsrik og komfortabel hverdag.
Tomtegata 29, 3012 DRAMMEN
Knr. 3301 Gnr. 113 Bnr. 418
Skramstadkvartalet AS
Byggetiden er forventet å være ca. 26 måneder fra igangsetting. Boligen forventes på tidspunkt for signering av Kjøpekontrakten å kunne ferdigstilles 2. halvår 2027 uten at dette er å anse som bindende frist for overlevering. Overlevering vil kunne skje både tidligere og senere enn antatt tidsrom for ferdigstillelse. Senest seks måneder før Selger estimerer ferdigstillelse, basert på reell fremdrift i prosjektet, vil Selger varsle en planlagt overtakelsesmåned. Selger skal senest 10 uker før ferdigstillelse av Boligen skriftlig varsle Kjøper om endelig overleveringstidspunkt.
Parkering finner sted i felles parkeringskjeller. Parkeringskjeller får adkomst fra Omstedsgata. Det blir totalt ca. 38 parkeringsplasser. Endelig antall og fordeling avklareres i detaljprosjektering. Alle p-plasser forberedes for EL-billader. El-billader kan bestilles som tilvalg. Parkeringsplasser kan kjøpes separat mot ekstra kostnad. Det går frem av prislisten hvilke leiligheter som har allokert rett til kjøp av garasjeplass.
Et fellesrom plassert i 2 etasje av Tomtegata 29 vil være tilgjengelige for beboere. Arealets funksjon er et forsamlingslokale.
Fellesrom vil få normal god kvalitet. Det leveres et kjøkken med integrert oppvaskmaskin, vask, komfyr med kokeplate, kjøleskap og ventilator med kullfilter eller plasmafilter. Wc-rom med HC-funksjon. Selger forbeholder seg her retten til å bestemme endelig utforming og materialvalg.
Det er utarbeidet utomhusplan for bakkeplan og takhage. Landskapsplanen er en illustrasjon av hvordan utomhusområdene er planlagt opparbeidet, med forbehold om tilpasning og endringer.
Det vil etableres et næringslokale i første etasje. Leietaker er ikke signert på nåværende tidspunkt.
Leiligheter leveres med boder og oppbevaringsplass iht. forskrift. De leiligheter som leveres med innvendig bod, eller omkledningsrom for oppbevaring fremgår av tegninger. I tillegg leveres det sportsbod til leilighetene Iht. forskrifter. Sportsboder er lokalisert i leiligheten eller i kjeller, i adskilt rom fra parkeringskjeller.
Enkelte leiligheter har rom som enkelt kan leies ut. Disse leilighetene kan ved tilvalg oppgraderes med egen ringeklokke, brann-/lyddør, vegger med dobbel gips og isolasjon, egen postkasse, samt tv- og datapunkt. Oppgradering bestilles ved tilvalg. Kjøpere av leilighetene velger selv om rommet skal benyttes til utleie.
Det leveres kjøkkeninnredning fra Sigdal, type Vidde eller tilsvarende fra andre leverandører. Kjøkkeninnredning har slette hvite fronter, med håndtak i stål og innfelt LED belysning over kjøkkenbenken. Alle skap og skuffer leveres med demping. Kjøkkenet leveres med integrerte hvitevarer fra Elektrolux eller tilsvarende.
Bad leveres som prefabrikkerte våtromsmoduler, unntaksvis som plassbygde bad.
Garderobeskap samt innredninger i entré/gang inngår ikke i leveransen.
Byggene er planlagt fundamentert på betongpeler med dragersystem og betonggulv. Nybygg oppføres med bæresystem hovedsakelig utført i betong og stål. Etasjeskiller planlagt levert i betong. Yttervegger og fasader bygges i hovedsak som bindingsverk, med ulike kledningsmaterialer som tegl, puss, treverk, platekledning og båndtekking. Leilighetsskillevegger er i betong eller av stål/tre/gips/mineralull. Innvendige vegger av tre- eller stålstendere kledd med gipsplater. Se til leveransebeskrivelsen for nærmere beskrivelse.
Bygget vil tilfredsstille gjeldende forskrifter hva angår brann og lyd (TEK17). Lyddemping i henhold til forskriftskrav lydklasse C iht. NS8175.
I eksisterende bygg i Tomtegata 29 er det bæresystem med trebjelkelag som forsterkes for å ivareta tekniske krav.
Alle balkonger leveres i betong med tregulv/tremmegulv, med eventuell oppheng med skråstag. Avrenning til nedløp langs yttervegg. Undersiden av balkong leveres som ubehandlet betong. Balkongdekker er å anse som en utvendig konstruksjon. Mindre ansamlinger av vann vil derfor kunne oppstå på gulvflaten etter regnvær. Omramming av balkong med beslag. Det tas forbehold om at omramming på balkonger kan endres. Rekkverk utføres med stående spiler i pulverlakkert utførelse. Franske balkonger, leveres med spiler.
Enkelte balkonger, på byggets hjørner mot gate, blir levert med innglassing med foldedør eller skyvedører for å ivareta lydkrav. De leiligheter dette gjelder fremgår av salgstegninger.
Hver oppgang i nybygg leveres med heis og trapp som dekker samtlige etasjer inkludert parkeringskjeller, foruten enkelte takterrasser. Heis leveres med toveis kommunikasjon til alarmsentral. I Tomtegata 29 leveres det løftebord i trappeoppgang.
Oppvarming basert på to systemer. Hovedsystem med vannbåren varme ved fjernvarme i kombinasjon med elektrisk oppvarming.
I nybygg leveres vannbåren gulvarme i stue, kjøkken og entre. Dersom det er flere soverom leveres gulvarme i det minste soverommet. Det leveres elektrisk gulvvarme på bad.
I eksisterende bygg Tomtegata 29 leveres vannbåren varme med radiatorer i stedet for i gulv. Måleranlegg for hver leilighet enten inne i leiligheten eller i tavlekott i felles trapperom.
På eiendommen er det tinglyst følgende heftelser og rettigheter som følger eiendommens matrikkel ved overskjøting til ny hjemmelshaver:
3301/113/418:
10.05.1915 – Dokumentnr: 900217 – Bestemmelse om gjerde
Overført fra: Knr:3005 Gnr:113 Bnr:420
Gjelder denne registerenheten med flere
22.03.1928 – Dokumentnr: 990100 – Bestemmelse om gjerde
Overført fra: Knr:3005 Gnr:113 Bnr:420
Gjelder denne registerenheten med flere
08.09.1941 – Dokumentnr: 1498 – Erklæring/avtale
ang. fjerning av garasje når bygningsmyndighetene forlanger
det.
Gjelder denne registerenheten med flere
10.07.2007 – Dokumentnr: 556771 – Erklæring/avtale
Rettighetshaver: Knr:3301 Gnr:113 Bnr:418
Bestemmelse om bebyggelse
Med flere bestemmelser
Overført fra: Knr:3005 Gnr:113 Bnr:420
Gjelder denne registerenheten med flere
29.05.2024 – Dokumentnr: 1489763 – Bestemmelse om parkering
Bestemmelse om vedlikehold
Gjelder denne registerenheten med flere
29.05.2024 – Dokumentnr: 1489763 – Bruksrett
Rettighetshaver: Knr:3301 Gnr:113 Bnr:1192
Bestemmelse om adkomstrett
Bestemmelse om vedlikehold
10.04.2025 – Dokumentnr: 412302 – Registerenheten kan ikke disponeres over uten samtykke fra rettighetshaver
Rettighetshaver: Røisland & Co Eiendomsmegling AS
Org.nr: 994 194 410
Elektronisk innsendt
Dokumentnr: 902163 – Opprettelse av matrikkelenheten
01.01.2020 – Dokumentnr: 1585170 – Omnummerering ved kommuneendring
Tidligere: Knr:0602 Gnr:113 Bnr:418
17.10.2023 – Dokumentnr: 1152667 – Sammenslåing
Sammenslått med denne matrikkelenhet:
Knr:3005 Gnr:113 Bnr:420
Sammenslått med denne matrikkelenhet:
Knr:3005 Gnr:113 Bnr:755
Elektronisk innsendt
01.01.2024 – Dokumentnr: 759648 – Omnummerering ved kommuneendring
Tidligere: Knr:3005 Gnr:113 Bnr:418
29.05.2024 – Dokumentnr: 1489694 – Registrering av grunn
Utskilt fra denne matrikkelenhet:
Knr:3301 Gnr:113 Bnr:1192
29.05.2024 – Dokumentnr: 1489716 – Registrering av grunn
Utskilt fra denne matrikkelenhet:
Knr:3301 Gnr:113 Bnr:1193
10.07.2007 – Dokumentnr: 556771 – Erklæring/avtale
Rettighet hefter i: Knr:3301 Gnr:113 Bnr:418
Rettighet hefter i: Knr:3301 Gnr:113 Bnr:1192
Rettighet hefter i: Knr:3301 Gnr:113 Bnr:1193
Bestemmelse om bebyggelse
Med flere bestemmelser
Overført fra: Knr:3005 Gnr:113 Bnr:420
Gjelder denne registerenheten med flere
29.05.2024 – Dokumentnr: 1489763 – Bruksrett
Rettighet hefter i: Knr:3301 Gnr:113 Bnr:1193
Bestemmelse om adkomstrett
Bestemmelse om vedlikehold
Leiligheten kan leies ut i sin helhet.
Det er p.t. ikke eiendomsskatt i Drammen kommune.
Formuesverdien er ikke fastsatt. Formuesverdien fastsettes av skatteetaten som tar hensyn til om boligen er en primærbolig (der boligeieren er folkeregistrert bosatt) eller sekundærbolig (alle andre boliger man måtte eie). Formuesverdien for primærboliger vil i 2025 utgjøre 25 % av beregnet eller dokumentert markedsverdi opp til 10 millioner kroner, og deretter 70% av det som overstiger 10 millioner. For sekundærboliger vil formuesverdien 2025 utgjøre 100% av den beregnede kvadratmeterprisen multiplisert med boligens areal. Se www.skatteetaten.no for nærmere informasjon.
Leilighetene vil bli solgt som eierleiligheter og organisert som sameie og følger eierseksjonsloven av 16. juni 2017, nr. 65. Eierseksjonsloven kan i sin helhet, fås ved henvendelse til megler. Loven finnes også på www.lovdata.no.
Sameiet vil bli ledet av et styre som velges blant seksjonseierne. Styret skal ivareta alle saker av felles interesse for sameierne. Selger vil på vegne av sameiet engasjere en forretningsfører / teknisk drifter, med varighet inntil 3 år som vil forestå driften av sameiet innenfor de rammer sameiet vedtar. Selger vil på vegne av sameiet inngå driftsavtaler med varighet inntil 3 år, eksempelvis avtale vedr. fibernett.
Kjøper plikter å rette seg etter de til enhver tid gjeldende vedtekter for sameiet. Vedlagt salgsoppgaven følger foreløpige vedtekter. Likeledes plikter kjøper å betale sin forholdsmessige andel av driftsutgiftene for eiendommene fra Overtakelse. Budsjett over driftsutgiftene samt vedtektene stadfestes av sameiet i konstituerende årsmøte. Utkastene er veiledende, og selger har rett til å endre vedtektene og driftsbudsjettet frem til konstituerende årsmøte.
Regler for styring og drift av boligsameiet følger av eierseksjonsloven.
Sist oppdatert: 10.12.2025
D-H0103
1. Etasje
3-roms
m2
4 990 000,-
B-H0103
1. Etasje
3-roms
m2
4 990 000,-
D-H0204
2. Etasje
3-roms
m2
5 390 000,-
D-H0504
5. Etasje
2-roms
m2
5 690 000,-
D-H0304
3. Etasje
3-roms
m2
5 690 000,-
A-H0101
1. Etasje
3-roms
m2
5 790 000,-
B-H0104
1. Etasje
3-roms
m2
5 890 000,-
D-H0404
4. Etasje
3-roms
m2
5 990 000,-
B-H0101
1. Etasje
3-roms
m2
5 990 000,-