Matrikkel
Knr. 301 Gnr. 88 Bnr. 274
Hans Møller Gasmanns vei 3, 0598 OSLO
Meld din interesse så vil vi ta kontakt med deg og holde deg løpende orientert om prosjektet!
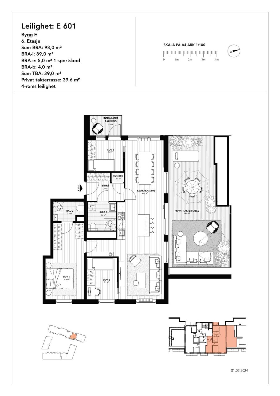
Lekker 4-roms toppleilighet med store vindusflater som gir lyse rom og en god romfølelse. Leiligheten har stor privat takterrasse med sydvestvendt beliggenhet som sørger for særdeles gode solforhold.
Romslig entré/gang med avsatt plass for garderobe og tilgang til et av boligens bad. Leiligheten får en stor stue med kjøkken i åpen løsning og kjøkkenøy, hvor du enkelt får plass for både spisestuen og sofagruppe. Tre soverom hvorav hovedsoverom med plass for dobbeltseng og nattbord på hver side, avsatt plass for garderobe og eget bad. Fra stuen er det utgang til stor privat takterrasse på ca 39,6 kvm. Leiligheten har også en innglasset balkong på ca. 3,6 kvm
Dette er en av flere leiligheter for salg på Vollebekk Stasjon. Trykk på lenken for prosjektets hjemmeside eller boligvelger for å se de andre leilighetene som er for salg i prosjektet.


Knr. 301 Gnr. 88 Bnr. 274
På Vollebekk Stasjon tilbyr vi et bredt utvalg av leiligheter fra 1-roms til 5-roms. Leilighetene får varierte størrelser som spenner fra 37 til 104 m2. Alle leilighetene vil få private uteplasser. Dette gir muligheten til å finne den perfekte boligen som passer for førstegangsetablerer, par og familier i alle aldre. Boligprosjektet får innbydende fellesområder, takterrasser og sosiale soner.
Sosial livsstil
På Vollebekk Stasjon ønsker vi å skape et inkluderende og sosialt miljø for beboerne. Det legges opp til sosiale møteplasser gjennom å utvikle innbydende fellesområder, takterrasser og gårdsrom.
Vollebekk Stasjon får et større fellesrom som kan lånes ut til beboere og være et sosialt knutepunkt hvor naboer kan møtes, bli kjent og bygge fellesskap. Du finner rommet i bygg D. Fellessrommet vil få eget kjøkken og er perfekt for bursdager, feiringer eller bare den hverdagslige kaffekoppen med naboen. Det vil få ulike soner, slik at flere kan benytte rommet samtidig. Uteplassen som ligger i tilknytning til fellesrommet vender ut mot forplassen til prosjektet, som også er et naturlig møtepunkt for beboerne på Vollebekk Stasjon. I underetasjen i bygg D vil det også etableres et aktivitetsrom. Rommet er tiltenkt barn og unge på Vollebekk Stasjon hvor de blant annet vil kunne ha gleden av et bordtennisbord.
Felles takterrasser i oppgang C og D leveres med beplantning og sittebenker. Takterrassen i bygg C får blant annet pergola, spisegruppe og utekjøkken. Takterrassen på bygg D får drivhus og takhager med plantekasser som leveres med jord, tilrettelagt for egen dyrking. På taket kan du dermed både dyrke og nyte dine egne grønnsaker. Mer lavterskel enn dette kan det nesten ikke bli.
Nærhet til alt!
Vollebekk er et område i sterk vekst. Plassert mellom sentrum og marka har Vollebekk det beste fra begge verdener. Når du er hjemme her, er du i nærheten av alt. Barnehager, skole og kulturhus, idrettsfasiliteter og T-bane, er alt i gangavstand fra Vollebekk Stasjon. Her finner du kombinasjonen av det grønne og moderne, midt i et område som vokser og blir stadig mer sentralt.
Fra du går ut døren hjemme på Vollebekk Stasjon er du kun en liten spasertur ned til T-banen. Og der må du ta et valg. Mot sentrum, eller mot marka. Tar du T-banen vestover er du under 25 minutter unna Oslo S, og alt det fantastiske som bylivet har å by på. Fra Jernbanetorget har du kort vei til yrende Barcode og Sørenga, nye Deichmann og Operaen. Oslo er åpnet ut mot fjorden, med kaféer, spisesteder, strandsoner, badstuflåter og uteserveringer. I tillegg er shoppingmulighetene i Karl Johan det første du møter når du går av T-banen.
Står du imidlertid på T-banestasjonen og ønsker å nyte den fantastiske Oslomarka er du drøye tyve minutter unna Vesletjern hvis du beveger deg østover. Det inkluderer gåturen fra t-banestoppet på Rødtvet eller Ammerud. Det barnevennlige badevannet har en liten sandstrand som er perfekt for barnefamilier, i tillegg til at det på sommerstid er en flytebrygge midt i vannet. Fra Vesletjern er det også fantastiske turmuligheter som tar deg dypt inn i stiene rundt omkring i Oslomarka, eller bare et glimrende utgangspunkt for en hyggelig søndagstur.
Det er ikke bare barnefamilier som kan stortrives i marka. I Lillomarka finner du både ski-og sykkelstier av ulik vanskelighetsgrad, og her er det mer enn nok å boltre seg i for den som liker å ferdes i terrenget. La deg utfordres av de mange ulike stiene rundt i området, og du vil fort finne både favoritter du besøker om og om igjen, i tillegg til nye avstikkere som gir deg helt andre utfordringer. På vinterstid oppdaterer Oslos ulike løypekart hver eneste morgen på hvordan turmulighetene er i de respektive områdene i marka. Fra ditt hjem er du alltid bare minutter unna.
På Vollebekk Stasjon flytter du inn i et område hvor mulighetene er mange. I tillegg til å ha “alt du trenger” i umiddelbar nærhet, som
matbutikker og apotek, skoler og barnehage, er du også bare en kort tur med kollektivtrafikken unna både det yrende sentrumslivet og markas mange rekreasjonsmuligheter.
Ditt moderne hjem
I din nye bolig på Vollebekk Stasjon er det inkludert en rekke fremtidsrettede løsninger
Boligens digitale styringssystem gjør det enkelt å følge med på og styre funksjoner i boligen, slik som lys og varme. Den trådløse lysstyringen innebærer også at du selv kan plassere bryterne til lampepunkter fritt i boligen etter eget ønske.
Adgangssystemet er gjennomtenkt, digitalt og såkalt nøkkelfritt. Hoveddøren kan åpnes med adgangsbrikke eller mobilen. Det digitale ringetablået ved hoveddøren har videokamera som er direkte koblet til beboernes mobiltelefon eller tablet.
Slik er det enkelt å se hvem som ringer på, og det er enkelt å gi midlertidig adgang til servicepersonell og håndverkere.
Du kan enkelt styre boligen gjennom egen smarthusapp, eller via tradisjonelle panel og brytere på veggen. Boligen leveres med intelligente løsninger som åpner for ytterligere utvidelser og individuelle tilpasninger etter innflytting.
Interiørkonseptet Kalkstein
I leveransen får du kjøkken i en delikat beige farge med integrerte hvitevarer. Benkeplate i en mørkere jordtone. Fargepaletten skaper en rolig atmosfære du vil trives i. Utrykket på kjøkkenet gir deg muligheten til å tilpasse stilen fra det klassiske til det moderne. Armatur og øvrige detaljer i krom utførelse. Kjøkkenet leveres av Sigdal med helintegrerte hvitevarer fra Bosch.
Badet leveres med stilrene storformatsfliser. Badet skal være en kilde til ro og avslapping, og er utstyrt med innredning i samme utførelse som på kjøkkenet. På badet får du fliser på gulv og vegg i lekre gråtoner. Armatur og øvrige detaljer blir også i en stilren krom utførelse.
For mer informasjon rundt leveransen se leveransebeskrivelse og romskjema. Noen få leiligheter avviker fra denne leveransebeskrivelse. Det fremgår av romskjema hvilke det gjelder.
Finansier boligen slik det passer deg
Når du kjøper bolig på Vollebekk Stasjon har du full frihet til å velge den beste økonomiske løsningen for deg og din livsstil! Vi tilbyr to alternativer som gir deg muligheten til å sikre din drømmebolig; 100 % innskudd eller 40 % innskudd og 60 % fellesgjeld.
Alternativ 1: 100 % innskudd
Har du mulighet og ønsker en tilværelse uten gjeld velger du 100 % innskudd og eier boligen din helt gjeldfritt. Nyt følelsen av eierskap uten økonomiske byrder og invester med din oppsparte egenkapital.
Alternativ 2: 40 % innskudd og 60 % fellesgjeld
Borettslaget etableres med et felles lån som utgjør inntil 60 % av kjøpesummen. Mangler du egenkapital eller ønsker du å oppnå din drømmebolig uten å måtte binde opp hele din egenkapital? Da kan det være et godt valg for deg å benytte deg av tilbudet om 60 % fellesgjeld.
Med 40 % egenkapital, eller privat finansiering, får du tilgang til din drømmebolig samtidig som du kan gjøre andre investeringer eller rett og slett bare ønsker større økonomisk fleksibilitet.
Individuell nedbetaling av fellesgjeld
På Vollebekk har vi også inngått en avtale om individuell nedbetaling av fellesgjeld (IN-ordning). IN-ordningen åpner for at den enkelte eier helt eller delvis kan nedbetale boligens andel av fellesgjeld. En innbetaling innenfor IN-ordningen gir andelseieren reduserte månedlige felleskostnader tilsvarende reduksjonen i renter og avdrag på borettslagets fellesgjeld. Innfrielse ved innbetaling på IN-ordningen kan gjøres ved sluttoppgjøret før overtakelse eller inntil 2 ganger årlig.
Ta kontakt med megler dersom du ønsker prisliste basert på finansiering med andel fellesgjeld.
Vollebekk tilbyr også BoStart som betyr mer bolig for pengene
Veien inn på boligmarkedet kan være lang, men med BoStart blir den litt kortere. Nå tilbyr vi BoStart på Vollebekk Stasjon som gjør at du kan kjøpe en helt ny bolig til en lavere pris enn ordinær markedspris.
Å komme inn på boligmarkedet kan være en utfordring selv om du har en fulltidsjobb og god betalingsevne. Høye boligpriser og strenge krav til egenkapital øker utfordringene for mange, spesielt studenter og unge, som ønsker å kjøpe sin første bolig.
«BS» i enhetslisten indikerer at oppgitt pris gjelder ved kjøp med BoStart.
Hvordan fungerer BoStart?
Når du kjøper bolig med BoStart må boligen være en bolig du selv skal bo i, altså din primærbolig. Ønsker du å selge boligen din etter hvert, vil Fredenborg Bolig ha retten til å kjøpe boligen tilbake til opprinnelig kjøpesum, justert for endring i boligprisen i perioden. Har det vært en verdistigning etter du overtok, er det du som får verdistigningen.
Prisen Fredensborg Bolig kan kjøpe boligen for tar utgangspunkt i boligprisindeksen til Eiendom Norge. Denne beregnes fra datoen da du overtok boligen og fram til datoen du tar kontakt om tilbakekjøp. Den dagen du velger å selge betaler du for deler av salgsomkostningene. Dette tilsvarer 1 % av den indekserte kjøpesummen (inkludert eventuell fellesgjeld), eierskiftegebyr, oppgjør og innhenting av boligopplysninger.
BoStart har ingen aldersgrense. Du kan velge å kjøpe med BoStart uansett hvor du er i livet – det du trenger er egenkapital og et finansieringsbevis. Så når du leter etter din drømmebolig, se om du kan kjøpe den med BoStart.
Mer informasjon finner du på https://fredensborgbolig.no/bostart/
Vollebekk Stasjon tilbyr også BoligInnbytte
Drømmer du om en ny bolig på Vollebekk Stasjon, men kvier deg for å selge den du har i dagens marked? Med BoligInnbytte kan du realisere ditt nye hjem trygt og enkelt. Vi garanterer deg en pris for din nåværende bolig slik at du har full økonomisk kontroll.
Denne løsningen er designet for deg som ønsker forutsigbarhet i bolighandelen.
Kjernen i BoligInnbytte er at du «veksler inn» din gamle bolig mot en helt ny fra oss. Den store fordelen er økonomisk trygghet. Du slipper usikkerheten i et svingende marked, ettersom du får en avtalt pris for boligen din uansett.
Slik fungerer BoligInnbytte
Når du finner din nye drømmebolig i et av våre prosjekter, kan du søke om å benytte BoligInnbytte. Ordningen forutsetter at din nåværende bolig oppfyller visse kriterier.
Det viktigste kravet er at verdien på boligen du skal selge, er minst 30 % lavere enn kjøpesummen for den nye boligen. I tillegg må boligen din være i god teknisk stand og ha en attraktiv beliggenhet.
Dersom boligen din kvalifiserer, vil du motta et konkret tilbud. Dette tilbudet inkluderer en garantert salgssum for din gamle bolig, inklusive salgsomkostningene. Dette betyr at du får full økonomisk oversikt og vet nøyaktig hva du har å rutte med før du signerer kontrakten for ditt nye hjem.
Med denne tryggheten kan du glede deg til innflytting, mens Fredensborg Bolig håndterer det praktiske rundt salget av din gamle bolig.
BoligInnbytte er en mulighet for alle som eier bolig i dag og kjøper ny bolig i et av våre utvalgte prosjekter.
Mer informasjon finner du på https://fredensborgbolig.no/nybygg/boliginnbytte
Vollebekk Stasjon tilbyr også Dobbeltboligforsikring
Dobbelboligforsikring er en forsikring som gir deg økonomisk hjelp hvis det tar tid å selge din egen bolig. Forsikringen dekker de faktiske merutgiftene ved å sitte med to boliger med inntil 15.000 kroner per måned, og maksimalt 135 000 kroner totalt.
Å kjøpe ny bolig før man har solgt sin eksisterende bolig blir dermed tryggere. Forsikringen gir deg en garanti mot doble boutgifter. Det skal være trygt å bytte bolig.
Betalingsplan
Forskudd kr 100 000,- innbetales med 7 dagers forfall så snart selger har stilt garanti iht § 12 i Bustadoppføringslova.
Resterende kjøpesum og omkostninger innbetales 7 virkedager før overtagelse.
Hans Møller Gasmanns vei 3, 0598 OSLO
Knr. 301 Gnr. 88 Bnr. 274
Vollebekk Stasjon Utbyggingsselskap AS
Oslobolig AS
Selgers forbehold er frafalt og som opplyst i prospekt har selger varslet om dagmulktbelagt ferdigstillelsesdato. Selger kan kreve overtakelse inntil fem måneder før den opprinnelige ferdigstillelsesdato. Selger skal i så fall skriftlig varsle om dette minimum to måneder før den nye overtakelsesdatoen. For bygg A, B, C og H er dato satt til 01.04.2027 som betyr at intervall for overtagelse kan finne sted i perioden 01.11.2026 – 01.04.2027. For bygg D, E, F og G er dato satt til 15.02.2027 som betyr at intervall for overtagelse kan finne sted i perioden 15.09.2026-15.02.2027.
Det vil bli bygget et underjordisk bod- og garasjeanlegg. Garasje- og bodanlegget er planlagt å bestå av 51 parkeringsplasser, boder, sykkelparkeringsplasser, lastesykkelplasser, plass til sykkelvask og enkle reparasjoner og tekniske rom. Det følger ikke med parkeringsplasser til leilighetene. Pris for parkeringsplass er kr 500.000,-.
Det følger med én bod til hver leilighet enten i leiligheten eller i bodanlegget i garasjekjeller. Størrelsen på boden vil avhenge av størrelsen på leiligheten, og om det er bod i leiligheten eller ikke. Samlet areal på boder i kjeller og leilighet vil være hhv. 5,0 m2 (leilighet over 50 m2 BRA) og min. 2,5 m2 (leilighet under 50 m2 BRA).
I din nye bolig på Vollebekk Stasjon er det inkludert en rekke fremtidsrettede løsninger. Boligens digitale styringssystem gjør det enkelt å følge med på og styre funksjoner i boligen, slik som lys og varme. Den trådløse lysstyringen innebærer også at du selv kan plassere bryterne til lampepunkter fritt i boligen etter eget ønske.
Adgangssystemet er gjennomtenkt, digitalt og såkalt nøkkelfritt. Hoveddøren kan åpnes med adgangsbrikke eller mobilen. Det digitale ringetablået ved hoveddøren har videokamera som er direkte koblet til beboernes mobiltelefon eller tablet.
Slik er det enkelt å se hvem som ringer på, og det er enkelt å gi midlertidig adgang til servicepersonell og håndverkere.
Du kan enkelt styre boligen gjennom egen smarthusapp, eller via tradisjonelle panel og brytere på veggen. Boligen leveres med intelligente løsninger som åpner for ytterligere utvidelser og individuelle tilpasninger etter innflytting.
Det leveres ikke garderobeskap.
Alle bærekonstruksjoner er av tre, betong og stål.
Fasadene mot Østre Aker vei og Hans Møller Gasmanns vei består av tegl. Fasade mot gårdsrom består hovedsakelig av stående trepanel, foruten om nederste etasje som består av tegl. Tegl og trepanel leveres etter arkitektens material- og fargevalg. Aluminiumsbelagte trevinduer/- dører i tilsvarende farge som tegl. Øvrige beslag etter arkitektens material- og fargevalg. Sedumdekke over deler av tak.
Terrassebord på markterrasser, balkonger og takterrasser. Rekkverk på balkongervendt mot Hans Møller Gasmanns vei leveres med
plater i tilnærmet lik farge som teglen, med glassfelt øverst. Spilerekkverk i stål eller aluminium på balkonger inn mot gårdsrom. Innglassede balkonger mot Østre Aker vei. Innglassingen har en støyreduserende effekt og gir god beskyttelse mot vær og vind og gir en vesentlig lengre bruksperiode for balkongene. Glassrekkverk på takterrasser. Håndløper i lakkert/malt stål eller aluminium. Totalhøyden på balkongrekkverket varierer avhengig av forskriftskrav. Alle typer markterrasser og balkonger er å anse som utvendig konstruksjon slik at mindre ansamlinger av vann og drypp fra overliggende balkonger må påregnes.
Heis fra garasjeanlegg/inngangsparti og opp til alle leilighetsplan, dette gjelder ikke for leiligheter i oppgang A. Leilighetene i
oppgang A har adkomst til underetasjen med parkeringsplasser, sykkelplasser og boder via trapperom/heis i oppgang B. Øvrige oppganger har direkte adkomst til bodanlegget i kjeller via heis/trapp. Heiskupéer vil ha en utførelse som harmonerer med trapperom.
Balansert ventilasjon med varmegjenvinning. Det leveres et separat ventilasjonsaggregat plassert i hver leilighet. Det samme gjelder
for leiligheter med hybel. Aggregatene plasseres enten i tak eller i gang med nisjeløsning og dør. For leiligheter med hybel, leveres det omluftsventilasjon (kullfilter) til kjøkkeninnredningen i hybelen. Aggregatets endelige plassering avklares under detaljprosjekteringen.
Det monteres røykvarslere og pulverapparat i henhold til forskrift. Vanntåkeanlegg eller sprinkling for leiligheter. Synlige sprinklerhoder
vil bli plassert forskriftsmessig. I fellesarealer og eventuelt balkonger i henhold til gjeldende krav
Vinduer, terrasse- og balkongdører leveres med energiglass, klassisk hvit innvendig og i henhold til arkitektens fargevalg utvendig. Utførelse, inndeling og slagretning avhenger av hvilke tekniske krav de enkelte vinduer har, herunder i forhold til støy, brannkrav osv. Vindusstørrelser samt vindu- og dørplassering kan avvike noe fra de generelle planer, som følge av bl.a. bærestruktur og den arkitektoniske utformingen av bygget. Det kan forekomme nivåforskjell/ terskel mellom rom, og fra innvendige arealer til terrasser og balkonger. Moderne vinduer isolerer langt bedre enn eldre vinduer, noe som fører til at vinduene blir kaldere på utsiden fordi varmen ikke trekker ut. De kalde utvendige flatene kan gi kondens på utsiden av vinduet. Innvendige dører eller skyvedører som anvist
på plantegning. Det leveres fabrikkmalte, hvite foringer og gerikter i samme farge. Spikerhull sparkles og males. Dørterskel og feielist i eik, tilnærmet lik utførelse som parkett. Dørvridere i børstet stål. De fleste dører leveres med flate terskler for å sikre luftstrømning gjennom leiligheten slik at ventilasjonsanlegget fungerer optimalt. Vindussmyg og balkongdører leveres listefritt med sparklet og malt gipsforing. I rom med parkett blir det levert fotlist i tilnærmet lik farge og materiale som parketten. Synlig innfesting av gulvlist.
Himling, dører og vindusdetaljer leveres i farge NCS S 0500-N, klassisk hvit.
På eiendommen er det tinglyst følgende heftelser og rettigheter som følger eiendommens matrikkel ved overskjøting til ny hjemmelshaver:
301/88/274:
25.06.2024 – Dokumentnr: 1611186 – Festekontrakt – vilkår
Gjelder feste
Årlig festeavgift: NOK 1 000
Gjelder fra dato: 25/06-2024
Tomteverdi: NOK 200 000 000
06.09.2024 – Dokumentnr: 1915170 – Bestemmelse om jordkabel/jordkabelanlegg
Gjelder feste
Rettighetshaver: Elvia AS
Org.nr: 980 489 698
Adkomstrett for drift og vedlikehold av anlegg/ledninger/kabler
Bestemmelse om bebyggelse i nærheten av anlegg/ledninger/kabler
14.03.2025 – Dokumentnr: 296519 – Registerenheten kan ikke disponeres over uten samtykke fra rettighetshaver
Gjelder feste
Rettighetshaver: Sem & Johnsen Eiendomsmegling AS
Org.nr: 998 387 361
12.09.2025 – Dokumentnr: 1083443 – Bestemmelse om nettstasjon
Gjelder feste
Rettighetshaver: Elvia AS
Org.nr: 980 489 698
Rett til å etablere og ha stetsevarig en frittstående nettstasjon på eiendommen, sam rett itl å foreta fremtidig vedlikehold, fornying og om bygging mv.
Adkomstrett for drift og vedlikehold av anlegg/ledninger/kabler
Bestemmelse om bebyggelse i nærheten av anlegg/ledninger/kabler
21.02.1966 – Dokumentnr: 2583 – Bestemmelse om bebyggelse
Bestemmelse om gjerde
Bestemmelse om kloakkledning
Bestemmelse om veg
07.12.1966 – Dokumentnr: 17942 – Erklæring/avtale
Vedtak av Oslo kommunes vann- og kloakkreglement
Kan ikke slettes uten samtykke fra kommunen
06.09.1988 – Dokumentnr: 59611 – Erklæring/avtale
Bestemmelse om trafostasjon/kiosk
Med flere bestemmelser
———-
Diverse påtegning
Punkt 1 og 2 i erklæringen frafalles
15.02.2023 – Dokumentnr: 168307 – Bestemmelse om adkomstrett
Kan ikke slettes uten samtykke fra: Oslo Kommune
Org.nr: 958 935 420
Rettighetshaver allmennheten
15.02.2023 – Dokumentnr: 168326 – Erklæring/avtale
Kan ikke slettes uten samtykke fra: Oslo Kommune
Org.nr: 958 935 420
Bestemmelse om rett til bruk av fortau
Rettighetshaver allmennheten
25.06.2024 – Dokumentnr: 1611186 – Festekontrakt – vilkår
Årlig festeavgift: NOK 1 000
Gjelder fra dato: 25/06-2024
Tomteverdi: NOK 200 000 000
10.01.1962 – Dokumentnr: 377 – Registrering av grunn
Denne matrikkelenhet opprettet fra:
Knr:0301 Gnr:88 Bnr:247
Byggene skal oppføres på gnr. 88 og bnr 274 i Oslo kommune (“Eiendommen”). Samlet tomteareal er cirka 9 388 m². Eiendommen er planlagt fradelt i flere eiendommer, hvor hvert bygg/borettslag får sitt eget bnr.
Utomhusarealer vil være fellesareal for andelseierne, og er planlagt fradelt som en egen eiendom (“Fellesarealet”) og organisert som et tingsrettslig sameie (realsameie), kalt «Vollebekk Stasjon Driftssameie». Eventuelt nytt bnr. for Fellesarealet vil foreligge når deleforretningen er gjennomført.
Garasjeanlegget er planlagt fradelt som en egen anleggseiendom, med eget bnr, organisert som et tingsrettslig sameie (realsameie).
Det tas forbehold om at deleforretningene blir godkjent, samt endelig størrelse på Fellesarealet og eiendommene etter fradeling.
Eiendommen ligger i dag i Hans Møller Gasmanns vei 3. Det må påregnes at Eiendommen vil få ny adresse før ferdigstillelse.
Finansier boligen slik det passer deg
Når du kjøper bolig i Vollebekk Stasjon har du full frihet til å velge den beste økonomiske løsningen for deg og din livsstil! Vi tilbyr to alternativer som gir deg muligheten til å sikre din drømmebolig; – 100 % innskudd eller 40 % innskudd og 60 % fellesgjeld.
Alternativ 1: 100 % innskudd
Har du mulighet og ønsker en tilværelse uten gjeld velger du 100 % innskudd og eier boligen din helt gjeldfritt. Nyt følelsen av eierskap uten økonomiske byrder og invester med din oppsparte egenkapital.
Alternativ 2: 40 % innskudd og 60 % fellesgjeld
Borettslaget etableres med et felles lån som utgjør inntil 60 % av kjøpesummen. Mangler du egenkapital eller ønsker du å oppnå din drømmebolig uten å måtte binde opp hele din egenkapital? Da kan det være et godt valg for deg å benytte deg av tilbudet om 60 % fellesgjeld.
Med 40 % egenkapital, eller privat finansiering, får du tilgang til din drømmebolig samtidig som du kan gjøre andre investeringer eller rett og slett bare ønsker større økonomisk fleksibilitet.
Finansier boligen slik det passer deg
Når du kjøper bolig i Vollebekk Stasjon har du full frihet til å velge den beste økonomiske løsningen for deg og din livsstil! Vi tilbyr to alternativer som gir deg muligheten til å sikre din drømmebolig; – 100 % innskudd eller 40 % innskudd og 60 % fellesgjeld.
Alternativ 1: 100 % innskudd
Har du mulighet og ønsker en tilværelse uten gjeld velger du 100 % innskudd og eier boligen din helt gjeldfritt. Nyt følelsen av eierskap uten økonomiske byrder og invester med din oppsparte egenkapital.
Alternativ 2: 40 % innskudd og 60 % fellesgjeld
Borettslaget etableres med et felles lån som utgjør inntil 60 % av kjøpesummen. Mangler du egenkapital eller ønsker du å oppnå din drømmebolig uten å måtte binde opp hele din egenkapital? Da kan det være et godt valg for deg å benytte deg av tilbudet om 60 % fellesgjeld.
Med 40 % egenkapital, eller privat finansiering, får du tilgang til din drømmebolig samtidig som du kan gjøre andre investeringer eller rett og slett bare ønsker større økonomisk fleksibilitet.
I Vollebekk Stasjon har vi også inngått en avtale om individuell nedbetaling av fellesgjeld (IN-ordning). IN-ordningen åpner for at den enkelte eier helt eller delvis kan nedbetale boligens andel av fellesgjeld. En innbetaling innenfor IN-ordningen gir andelseieren reduserte månedlige felleskostnader tilsvarende reduksjonen i renter og avdrag på borettslagets fellesgjeld. Innfrielse ved innbetaling på IN-ordningen kan gjøres ved sluttoppgjøret før overtakelse eller inntil 2 ganger årlig.
Formuesverdien er ikke fastsatt, men fastsettes av Skatteetaten etter en beregningsmodell som hensyntar om boligen er «primærbolig»; (der eier er bosatt iht. Folkeregisteret) eller «sekundærbolig»; (andre boliger man eier).
For primærbolig er formuesverdien 25 % av markedsverdien opp til kr. 10 000 000 og deretter 70 % av den overskytende markedsverdien, og 100 % for sekundærboliger. Det gjøres oppmerksom på at kjøper selv må sende inn opplysninger om adresse, areal, boligtype og byggeår til skattemyndighetene.
Det tas forbehold om endring av satser, og henvises til Skatteetatens websider dersom ytterligere informasjon er ønskelig.
I tillegg til kjøpesummen må kjøper betale:
1: Dokumentavgift til staten, 2,5% av andel tomteverdi: Kr. 41 370,-
2: Tinglysningsgebyr hjemmelsdokument: Kr. 545,-
3: Tinglysningsgebyr pantedokument: Kr. 545,-
4: Andelskapital: Kr. 5 000,-
5: Etableringsgebyr BRL: 12 500,-
Totale omkostninger: Kr. 59 960,-
Tilbud om lånefinansiering
Megler formidler gjerne kontakt med rådgiver hos vår samarbeidspartner Sparebank 1 Hallingdal og Valdres. De har konkurransedyktige betingelser samt rask og løsningsorientert behandling av din lånesøknad. Røisland & Co mottar et honorar for denne formidlingen.
Forskudd kr 100 000,- innbetales med 7 dagers forfall så snart selger har stilt garanti iht § 12 i Bustadoppføringslova.
Resterende kjøpesum og omkostninger innbetales 7 virkedager før overtagelse.
Dersom boligkjøper ikke ønsker å betale kontantbeløpet på kr 100 000, kan kjøper på avtaletidspunktet inngå en kjøpsgaranti iht.
buofl. §46, 2 ledd. Kjøpsgarantien innebærer at kjøper ikke trenger å betale depositum / forskudd iht. opprinnelig betalingsplan, førtidspunkt for overtakelse av boligen. Ved overtakelse innbetales total kjøpesum i sin helhet. Garantien gjelder fra kjøpstidspunkt og frem til overtakelse og har en kostnad for kjøper på kr 5 000. For mer informasjon og avtale om inngåelse av kjøpsgaranti, kontakt megler.
Sist oppdatert: 12.02.2026
H-403
4. Etasje
3-roms
59 m²
kr 6 590 000,-
B-304
3. Etasje
4-roms
92 m²
kr 7 990 000,-
H-301
3. Etasje
4-roms
87 m²
kr 8 090 000,-
D-304
3. Etasje
4-roms
87 m²
kr 8 190 000,-
G-401
4. Etasje
4-roms
87 m²
kr 8 990 000,-
A-401
4. Etasje
4-roms
90 m²
kr 9 090 000,-
D-301
3. Etasje
4-roms
95 m²
kr 9 790 000,-
B-501
5. Etasje
4-roms
93 m²
kr 10 890 000,-
G-601
6. Etasje
4-roms
86 m²
kr 12 990 000,-