Eiendommen
Knr. 3222 Gnr. 106 Bnr. 269
Komplett Salgsoppgave
Ødegårds vei 58, 1470 LØRENSKOG
Meld din interesse så tar vi kontakt med deg og holder deg orientert om boligen!
Videresalg under oppføring: Leiligheten er under oppføring og det er ikke tilgang på selve leiligheten/byggeplass. Det er mulig å gjennomføre en digital visning på Teams for en gjennomgang av spørsmål/fly i simulator (utsikt/solforhold). Konferer med megler for ytterligere informasjon og en hyggelig prat.
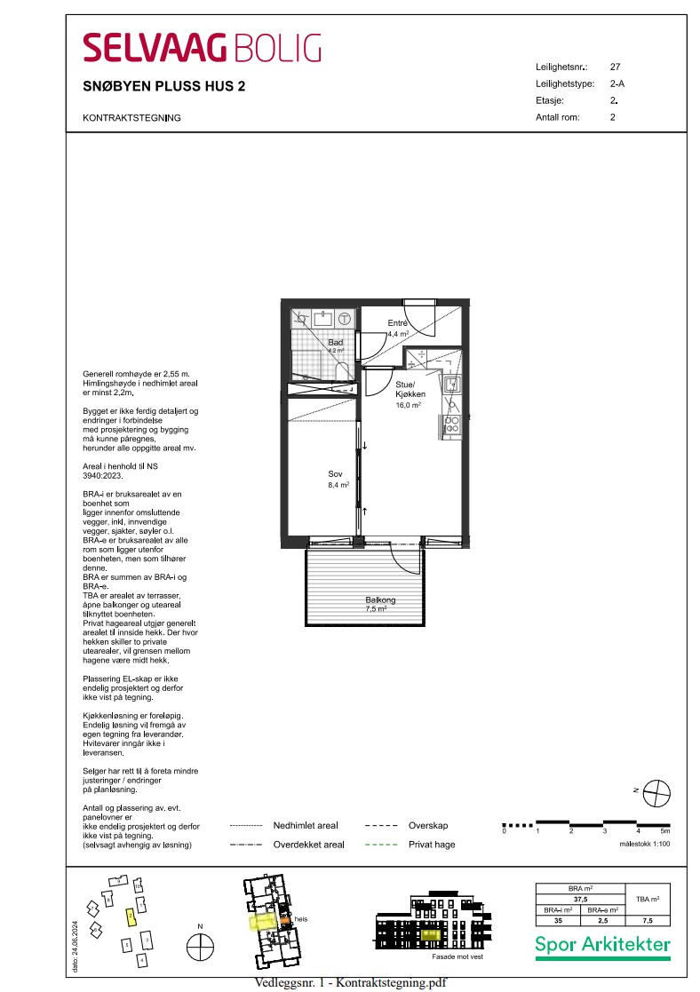
Dette er et videresalg vedrørende leilighet 27 i Hus 2 i Selvaags prosjekt Snøbyen Pluss. En lekker 2-roms selveierleilighet i byggets 2. etasje, med vestvendt balkong på 7,5 m². Leiligheten er tilknyttet Selvaags Plussbolig® konsept. En Plussbolig er en god Selvaag-bolig, med en oppgradering i form av attraktive felles serviceområder og hyggelig vertskap.
– Estimert ferdigstillelse mellom mai – august 2026
– 2-roms selveierleilighet
– Vestvendt balkong på 7,5 m²
– Stilrent kjøkken fra HTH
– God takhøyde (ca. 2,55m i stue)
– 1-stavs eikeparkett
– Godt isolert og balansert ventilasjon gir godt inneklima og lave kostnader til oppvarming
– Plussbolig® med eksklusiv tilgang og bruksrett til det betjente Serviceområdet (selskapslokaler, møterom, treningsrom, lounge m.m.)
– Fem års reklamasjonsrett
– Lav dokumentavgift. Kun kr. 19 200
– Heis

Knr. 3222 Gnr. 106 Bnr. 269
Totalt bruksareal BRA: 37,5 m²
BRA-i (innvendig i leiligheten): 35 m²
BRA-e (kjellerbod): 2,5 m²
TBA (balkong): 7,5 m²
Kjellerbod: Alle leilighetene får egen sportsbod. Bodene vil hovedsakelig være lokalisert i parkeringsskjeller. Bodene vil bli fordelt av Utbygger i forkant av innflytting. Sportsboder får en størrelse på minst 2,5 m² for leiligheter under 50 m². Sportsbodene blir plassert i garasjekjelleren Det gjøres oppmerksom på at det i enkelte boder kan forekomme installasjoner som ventilasjonskanaler, føringer av VA-anlegget eller bæresystem. Slike installasjoner kan redusere det faktiske lagringsvolumet i sportsboden. Sportsboder er kun ment for lagring av gjenstander som tåler temperatur- og fuktsvingninger.
Arealbeskrivelse:
Alle arealer er hentet fra Utbyggers plantegning. Arealet er beregnet ut fra Norsk standard NS 3940:2023. BRA-i: Internt arealet innenfor boligens omsluttende vegger, inkludert sjakt. BRA-e: Eksternt areal som boligen har eksklusiv bruksrett til, men som ikke ligger i boligen, f.eks. kjellerbod. BRA-b: Areal for innglasset balkong med veggareal. Total BRA = Summen av BRA-i, BRA-e og BRA-b. TBA er areal på terrasse og balkong. Arealet oppgis ved salg, men inngår ikke i BRA. Oppgitt romareal er netto romareal. De oppgitte arealer er å betrakte som cirka-arealer. Partene har ingen krav mot hverandre dersom arealet skulle vise seg å være 5 % mindre / større enn det oppgitte areal.
Merknader til Utbyggers plantegning:
– Skyvedørsfronter og garderober er stiplet inn i salgstegningene for å vise mulig plassering, og er ikke en del av leveransen.
– Hvitevarer er ikke en del av leveransen.
– Bad vil bli plassbygget eller levert som badekabiner.
– Det gjøres særlig oppmerksom på at møbleringsforslag angitt med heltrukne linjer på plantegningene ikke gjennomgående tilfredsstiller forskriftsmessige tilgjengelighetskrav. Plantegningene er stedvis derfor også vist med stiplede linjer, som angir møbleringsforslag i tråd med forskriftskrav i det aktuelle rommet.
Det medfølger ikke parkeringsplass til denne leiligheten.
Det blir etablert ca. 6 gjesteplasser i parkeringskjeller til hele Snøbyen Pluss i tillegg til 3 parkeringsplasser på terreng for korttidsparkering.
Boligene vil bli tilknyttet Akershus Fjernvarme for oppvarming av badegulv, varmt tappevann, og forvarming av ventilasjonsluft. Oppvarming av øvrige rom skjer via panelovner. Fordelingsskap for forbruksvann og varme plasseres i vegg i leilighetene eller i baderomshimlingen. Det leveres fjernavleste individuelle målere for oppvarming og varmt tappevann i hver leilighet Forbruket avregnes 1-2 ganger i året.
Det leveres sentralt balansert ventilasjonsanlegg med varmegjenvinner plassert i garasje eller på tak. Tilluft føres til stue og soverom. Avtrekk føres fra bad og kjøkken.
Alle boenhetene vil bli energimerket. Energiattester vil bli utarbeidet av selger i samarbeid med utførende entreprenør etter at detaljprosjekteringen er gjennomført, og utleveres ved overtakelse av boligen. Energimerkingen skal dokumentere at leilighetene minst tilfredsstiller kategori C. Energimerking gir relevant informasjon om hvor energieffektiv eiendommen er. Karakterskalaen strekker seg fra A (høyest) til G (lavest). Se www.energimerking.no for mer informasjon om energimerking av boliger.
Leveransen utføres i henhold til teknisk forskrift av 2017 (TEK17).
Hoved-bæresystem utføres i plassbygd betong og/eller som prefabrikkerte elementer i tillegg til stålbjelker og stålsøyler. Fasader utføres i tegl og med partier i trepanel i bygg 1 og 2. Bygg 3 utføres med tre-plank og partier i trepanel. Valgt løsning vil tilfredsstille forskriftenes krav til lyd, brann, bæreevne, isolasjon, tetthet etc. Alle vinduer i leilighetene leveres som trevinduer med utvendig aluminiumskledning. I hus 1 og 2 vil vinduene få samme farge utvendig og innvendig, i farge antrasittgrå.
Innvendig takhøyde i leilighetene er ca. 2,55 m. Innkassinger og nedforede himlinger vil forekomme, hvilket vil kunne redusere takhøyden i enkelte rom. Enkelte rom, for eksempel kjøkken/stue kan ha sprang i himling. Det monteres ikke taklister. Det må påregnes lokale innkassinger i himlinger grunnet tekniske installasjoner og/eller bærebjelker. Himlingshøyde i baderom er minimum 2,2 m.
Det foreligger ikke ferdigattest eller midlertidig brukstillatelse på eiendommen, da bygget ikke er ferdigstilt på salgstidspunktet.
Det er utbyggers plikt å fremskaffe ferdigattest på eiendommen. Det gjøres oppmerksom på at midlertidig brukstillatelse eller ferdigattest må foreligge før kjøper kan ta i bruk eiendommen. Kjøper er gjort kjent med at det kan ta lang tid i etterkant av ferdigstillelse av et bygg, før ferdigattest foreligger. Kjøper kan ikke nekte overtagelse ved manglende ferdigattest, dersom midlertidig brukstillatelse foreligger.
Boligseksjonene utgjør kun én boenhet og ingen separat utleiedel. Med unntak av de begrensninger som følger av sameiets vedtekter og av eierseksjonsloven, har seksjonseierne full rettslig rådighet over sine seksjoner. Seksjonseierne kan fritt pantsette, selge og leie ut sine seksjoner. Ethvert salg eller bortleie av seksjoner skal meldes skriftlig til sameiets forretningsfører med opplysning om hvem som er ny eier/leietaker.
På eiendommen er det tinglyst følgende heftelser og rettigheter som følger eiendommens matrikkel ved overskjøting til ny hjemmelshaver. Se vedlagte grunnboksutskrift.
På Lørenskog Stasjonsby er det lettvint å leve og bo – samtidig som du med toget kun er en liten podcast unna Oslo sentrum.
Lørenskog Stasjonsby føles som en rolig og harmonisk base – hvor det er kort vei til det meste du trenger. Mellom boligene er det gårdstun og grønne parker, med varierte oppholdsarealer du kan finne roen i. For barnefamilier finnes både splitter nye Luhr skole og Framtia barnehage innen gangavstand.
Det er nettopp nærheten til togstasjonen som har gitt navn til området. Med fem minutters gange er du på Lørenskog stasjon. Etter 17 minutter på toget er du på Oslo S. Derfor er både jobb og opplevelser i storbyen lett tilgjengelig, men du kommer også raskt hjem til et mer behagelig tempo når du ønsker det.
Nye Lørenskog sentrum er nært nok til at kommer seg dit til fots eller sykkel. Med tog, buss eller bil er det også gode forbindelser til Lillestrøm og videre ut mot Gardermoen.
Mange i Lørenskog Stasjonsby har et spesielt forhold til Haneborgåsen som frilufts- og rekreasjonsområde. Åsen bærer preg av utstrakt bruk med mange stier både i og utenfor kartet, og ligger tett på leilighetene.
I tillegg har du flere mange turmuligheter i fantastiske Østmarka, nypreparerte skiløyper om vinteren og friske badevann om sommeren.
Lørenskog har opplevd rivende utvikling de siste årene, noe som har gitt en rekke muligheter innen handel, kultur og offentlige tilbud. Mange fastboende setter selvsagt pris på det brede utvalget av butikker som finnes både på kjøpesenteret Metro nye Triaden kjøpesenter.
Vegg-i-vegg, på den andre siden av Metro, ligger Lørenskog Hus med blant annet kino, bibliotek samt musikk- og kulturskole. Kulturhuset huser et vell av teaterforestillinger, musikaler og konserter gjennom hele året.
Som nærmeste nabo med Stasjonsbyen finner du verdens råeste helårsarena for snøopplevelser. SNØ tilbyr angrenn, alpint, freeski, snowboard og isklatring under samme tak.
Bytggetrinn 1 og 2 på Snøbyen Pluss vil bli etablert på tomt fradelt fra gnr 106, bnr 196 i Lørenskog kommunePlanlagt tomtegrense fremgår av tomtedelingsplanen i dette prospektet. For områdene med arealformål Friområdet vil det bli tinglyst erklæring om allmenhetens ferdselsrett. Områdene benevnt som Kolle og Park i plan for tomteinndeling, vil bli overtatt og driftet av Lørenskog Stasjonsby Driftsforening Park og Skog hvor sameiene i Snøbyen Pluss er pliktige medlemmer.
Tomtearealet for hele Snøbyen Pluss blir ca. 13 900 m², hvorav ca. 7 200 m² tilhører eierseksjonssameiet (byggetrinn 1 og 2). Det tas forbehold om at Lørenskog kommune kan kreve en annen fradeling av tomten. Det tas også forbehold om en annen fradeling av tomtene dersom utbygger finner det formålstjenlig.
Det foreligger godkjent rammetillatelse for prosjektet Snøbyen Pluss. Området rundt Snøbyen Pluss er under utvikling og Kjøper oppfordres til å gjøre seg kjent med reguleringsplanen for området, tilgrensende reguleringsplaner og kommunedelplan for uregulerte områder. Felt B6-B9 er ikke detaljregulert på nåværende tidspunkt. Kontakt prosjektselger for nærmere informasjon om omkringliggende eiendommers reguleringsstatus.
Størrelsen på felleskostnadene er ikke fastsatt, men stipulerte felleskostnader skal dekke sameiets ordinære driftsutgifter, inkludert drift og vedlikehold av Plussarealet, og avhenger av ytelsene sameiet rekvirerer. Basert på utkast til budsjett som er utarbeidet av utbygger i samarbeid med forretningsfører, er disse stipulert til ca. kr 45 pr. m2 BRA-i pr. mnd. Fastsettelse av første års driftsbudsjett og felleskostnader vedtas på sameiets konstituerende sameiermøte. Felleskostnadene fordeles i henhold til vedtektene.
Følgende kostnader kommer i tillegg til månedlige felleskostnader:
– Kostnad kabel-TV og bredbånd, stipulert til ca. kr. 411,- pr. seksjon pr. mnd.
– Kostnad fjernvarme som inkluderer varme i baderomsgulv, forvarming ventilasjonsluft og varmt tappevann, stipulert til ca. kr. 12,- pr. m2 BRA-i pr. mnd.
– Renovasjon kr. 485,- pr. seksjon pr. mnd.
– Kontigent Lørenskog Stasjonsby Driftsforening Park og Skog, stipulert til ca. kr 100,- pr. seksjon pr. mnd.
– Kostnader for Selvaag Pluss: 2-roms leilighet: kr. 1 125
Totale felleskostnader stipulert per måned for denne leiligheten utgjør kr. 4 116
– Kostnadene for Selvaag Pluss indeksreguleres i januar som angitt i serviceavtalen. Første regulering 01.01.2026 med kostnadene over pr. januar 2025.
Boligen er nyoppført og det foreligger derfor ikke formuesverdi p.t. For mer informasjon, se skatteetatens hjemmeside og kalkulator for beregning av formuesverdi.
I tillegg til kjøpesummen må kjøper betale:
1: Dokumentavgift til staten, 2,5% av andel tomteverdi: Kr. 19 200
2: Tinglysningsgebyr skjøte: Kr. 545
3: Tinglysningsgebyr pant : Kr. 545
4: Administrasjonsgebyr til utbygger: Kr. 40 000
Totale omkostninger: Kr. 60 290
Total kjøpesum inkl. gebyrer/avgifter og evt. øvrige kostnader: 3 650 290
Kjøper betaler en oppstartskapital på 3 ganger månedlige felleskostnad til sameiet. Oppstartskapitalen blir overført forretningsfører når sameiet er etablert og oppgjørsmegler har fått utbetalingsanvisning av sameiets styre. Beløpet er å anse som innskuddskapital til sameiet som ikke tilbakebetales.
Forretningsfører vil på vegne av Plusskonseptet innkreve 3 måneder ekstra Serviceavgift som startkapital til Plusskonseptet.
Tilbud om lånefinansiering
Megler formidler gjerne kontakt med rådgiver hos vår samarbeidspartner Sparebank 1 Hallingdal og Valdres. De har konkurransedyktige betingelser samt rask og løsningsorientert behandling av din lånesøknad. Røisland & Co mottar et honorar for denne formidlingen.
Snøbyen Pluss
Denne leiligheten ligger i Hus 2.
Hus 1, 2 og 3 med til sammen 70 leiligheter utgjør første byggetrinn i Snøbyen Pluss. Det er planlagt ytterligere 140 leiligheter over tre byggetrinn.
Snøbyen Pluss, som Selvaag Bolig Lørenskog AS utvikler, utgjør tre delfelt (B2, B4 og B16) av hovedprosjektet «Snøbyen» (tidligere markedsført som Lørenskog Stasjonsby). Hittil er ca. 1200 av boligene ferdigstilt eller under bygging. Over de neste årene vil Snøbyen ferdigstilles med ytterligere ca. 750 boliger. Gjennomføringen av og fremdriften av Snøbyen vil bl.a. avhenge av markedsmessige forhold. Utbyggingen er planlagt feltvis. Boligprosjektet Snøbyen Pluss er planlagt med til sammen 210 leiligheter fordelt på 10 hus.
Boligprosjektet planlegges organisert som to eller tre eierseksjonssameiere, men det legges til rette for sammenslåing til ett sameie når hele prosjektet er ferdigstilt. Det vil etableres gjensidige rettigheter og plikter til bruk, drift og vedlikehold av felles arealer og anlegg mellom eierseksjonssameiene i Snøbyen Pluss.
Utbygger for prosjektet er Selvaag Bolig Lørenskog AS (Org.nr. 996 645 355) som inngår i Selvaag Bolig ASA konsern.
Prosjektets hjemmeside: https://www.selvaagbolig.no/akershus/snobyen/snobyenpluss/
Plusskonseptet/Serviceavtale
Det forutsettes at kjøpere av en Plussbolig aksepterer Serviceavtalen, og dermed får eksklusiv tilgang og bruksrett til det betjente Serviceområdet. Serviceavtalen er tilgjengelig på prosjektets nettside og vil for øvrig inngå i kontraktgrunnlaget som vedlegg til kjøpekontrakt. Tjenestene som er omfattet av Serviceavtalen og bruken av Serviceområdet er forbeholdt den som til enhver tid bebor sameierens seksjon. Ved utleie av seksjonen gjelder bruksretten for leietaker.
Forretningsfører vil på vegne av Plusskonseptet innkreve 3 måneder ekstra Serviceavgift som startkapital til Plusskonseptet. Beløpet innkreves i forbindelse med overtakelse av boligen. Kapitalinnskuddet vil ikke bli avregnet mot månedlig serviceavgift eller bli tilbakebetalt ved eventuelt salg av seksjonen . Selger dekker merkostnaden med drift av Plusskonseptet frem til overlevering av de siste boligene. Det vil bli inngått Serviceavtale med 20 års varighet mellom Selvaag Pluss Service og Boligsameiet for drift av Plusskonseptet. Antallet leiligheter som vil selges med mulighet for å velge bort serviceavtalen/Plusskonseptet vil være begrenset oppad til 20 enheter av totalt 210 i Snøbyen Pluss (Hus 1 – 10). Interessenter bes kontakte Utbygger for nærmere informasjon om hvilke boliger som gis muligheten til å velge bort tilknytning.
Lørenskog Stasjonsby Driftforening Park og Skog
Det er etablert en Driftsforening for Snøbyen, tidligere Lørenskog Stasjonsby, heretter «Driftsforeningen». Foreningens formål er å eie, samt sørge for drift og vedlikehold av fellesarealer og installasjoner, herunder veier, kolle, skogsområder, arealer til lek og rekreasjon, park, belysning og annen infrastruktur som er ment til felles benyttelse for beboerne i Snøbyen. Utbygger forbeholder seg retten til å definere omfanget av nevnte arealer og installasjoner under sin utvikling av Snøbyen Pluss. Det vil bli tinglyst pliktig medlemskap i Driftsforeningen for alle beboerne i Snøbyen Pluss. Det gjøres oppmerksom på at det vil bli tinglyst erklæring om allmennhetens ferdselsrett over deler av arealer og installasjoner underlagt Driftsforeningen. Kostnader til drift og vedlikehold av Driftsforeningen vil fordeles på foreningens medlemmer, via Boligselskapene, med utgangspunkt i antall boenheter i det enkelte Boligselskap. Driftsforeningen ledes av et styre valgt fra de ulike Boligselskapene, med 1-2 representanter fra hvert sameie.
Forretningsfører
Obos Eiendomsforvaltning AS er engasjert som forretningsfører for sameiet.
Forbrukerinformasjon om budgivning er vedlagt denne salgsoppgaven.
Alle bud og budforhøyelser må inngis skriftlig. I tillegg må legitimasjon være fremlagt sammen med signatur fra budgiver(e). Vi oppfordrer til å gi bud elektronisk via GI BUD knappen på finn.no, eller roislandco.no. Da vil samtlige vilkår bli oppfylt. Eventuelle forhøyelser eller endringer av budet kan bekreftes på SMS eller på e-post. Vi oppfordrer alltid til å kontakte megler pr. telefon i tillegg da forsinkelser i SMS og mail kan forekomme.
Megler skal legge til rette for en forsvarlig avvikling avbudrunden. I forbrukerforhold (dvs. der selger er forbruker) skal megleren ikke formidle bud med kortere akseptfrist enn kl. 12.00 første virkedag etter siste annonserte visning. Etter denne fristen bør budgivere ikke sette en kortere akseptfrist enn at megler har mulighet til, så langt det er nødvendig, å orientere selger, budgivere og øvrige interessenter om bud og forbehold. Dersom bud inngis med en frist som åpenbart er for kort til at megleren kan avvikle budrunden på en forsvarlig måte som sikrer selger og interessenter et tilstrekkelig grunnlag for sine handlingsvalg, vil megler fraråde budgiver å stille slik frist.
Megler skal ikke formidle bud med forbehold om at budet eller forbehold i budet skal holdes skjult (hemmelig) for andre budgivere og interessenter.
Megleren vil uoppfordret gi sin vurdering av det enkelte bud overfor selger, når budet er gitt innenfor fristene som nevnt over.
Megleren skal, så langt det er nødvendig og mulig, holde budgiverne skriftlig orientert om mottatte bud, herunder budets størrelse, forbehold og akseptfrist. Megler skal så snart som mulig bekrefte skriftlig overfor budgivere at budene deres er mottatt. For øvrig vil megler, på forespørsel fra andre, opplyse om aktuelle bud på eiendommen, herunder relevante forbehold.
Kopi av budjournal skal gis til kjøper og selger utenugrunnet opphold etter at handel er kommet i stand. Dersom det er viktig for budgiver å bevare sin anonymitet, bør budet formidles gjennom fullmektig.
I henhold til eiendomsmeglingsforskriften § 6-3 første ledd har megler en plikt til å oppfordre oppdragsgiver (selger) til ikke å ta imot bud direkte fra budgiver, men henvise til megler. Megler oppfordrer partene til å lese retningslinjene for budgivning vedlagt i salgsoppgaven.
Et eventuelt bud fra selger til kjøper (såkalte «motbud»), er avtalerettslig bindende tilbud som medfører at det foreligger en avtale om salg av eiendommen dersom budet i rett tid aksepteres av kjøper.
Budgiverens opplysning om han er forbruker eller næringsdrivende:
Avhendingsloven ble endret med virkning fra 1. januar 2022 og innebærer blant annet at «som den er»-forbehold ikke har virkning i forbrukerkjøp, jf. avhendingsloven § 3-9 andre ledd, jf. § 1-2 tredje ledd. Med forbrukerkjøper menes en kjøper av eiendom som er en fysisk person og som ikke hovedsakelig handler som ledd i næringsvirksomhet. «Som den er»-forbehold kan imidlertid fremdeles tas utenfor forbrukerkjøp. Hvorvidt eiendommen selges til en forbrukerkjøper eller ikke, kan derfor ha betydning for fordelingen av risiko mellom partene: hvis kjøperen er forbruker, bærer selger ansvaret dersom eiendommen ikke samsvarer med de krav til kvalitet, utrustning og annet som følger av avtalen, jf. avhendingsloven § 3-1. Hvis kjøperen er profesjonell, bærer imidlertid selger ansvaret for slike avvik bare i den grad eiendommen er i vesentlig ringere stand enn kjøperen hadde grunn til å regne med ut fra kjøpesummen og forholdene ellers.
Budgivers opplysning om han er forbruker eller ikke, skal gis i forbindelse med formidling av budet, for eksempel ved at det i budskjemaet krysses av for om man er forbrukerkjøper eller ikke. Budgiver må informere megler om han opptrer som forbruker eller ikke-forbruker ved budgivning for at andre parter involvert i budrunden kan ta stilling til forhold av faktisk og rettslig art som er viktige i forbindelse med avtalen. Megler har begrenset mulighet til å kontrollere budgivers egenopplysning om vedkommende er næringsdrivende eller ikke, og budgiverens skriftlige opplysning om han er forbrukerkjøper eller ikke, må legges til grunn.
Dette er et videresalg av leilighet under oppføring, hvor selger er en profesjonell part som har kjøpt boligen fra utbygger og selger denne videre. Ved forbrukerkjøp følger bustadoppføringslova av 13. juni 1997 nr. 43. Loven regulerer forhold hvor selger er profesjonell og kjøper er forbruker. Iht. loven plikter selger å stille garanti, heretter kalt § 12 som sikkerhet for oppfyllelse av sine forpliktelser etter kjøpekontrakt senest ved forbehold frafalt. § 12 garantien utgjør 3 % av kjøpesum frem til overtakelse. Beløpet økes til 5 % av kjøpesum og står 5 -fem- år etter overtakelsen jf. buofl. § 12, 3 ledd. Loven kan i sin helhet fås ved henvendelse til megler. Loven finnes også på www.lovdata.no.
I tilfeller hvor kjøper er profesjonell iht. bustadoppføringslova, dvs. gjør kjøpet som ledd i næringsvirksomhet, kan selger kreve at avtalen reguleres av Lov om avhending av fast eiendom av 3. juli 1992 nr. 93 (avhendingslova). Loven kan i sin helhet fås ved henvendelse til megler. Loven finnes også på www.lovdata.no.
Det forutsettes at hjemmel overføres til kjøper.
Ingen kan direkte eller indirekte erverve mer en to boligseksjoner i et boligsameie jf. eierseksjonsloven § 23. Dersom et erverv har funnet sted i strid med eierseksjonslovens regler kan Kartverket nekte overskjøting. Dersom overskjøting blir nektet, er kjøper likevel forpliktet til å gjennomføre handelen med selger, og oppgjør til selger vil finne sted tross manglende overskjøting.
Eiendomsmeglere er underlagt Lov om hvitvasking. I henhold til Lov av 01.06.18 nr. 23 om tiltak mot hvitvasking og terrorfinansiering (Hvitvaskingsloven), er megler pliktig til å gjennomføre identitetskontroll av alle involverte parter, herunder fullmektiger. Dette innebærer bl.a. å bekrefte kunders og reelle rettighetshaveres identitet på bakgrunn av fremvist gyldig legitimasjon eller på annen godkjent måte, samt å innhente opplysninger om kundeforholdets formål og tilsiktede art. Dersom slike kundetiltak ikke kan gjennomføres, kan megler ikke etablere kundeforholdet eller utføre transaksjonen. Hvitvaskingsloven pålegger også eiendomsmegler å innhente redegjørelse av midlenes opprinnelse. Dette besvares av samtlige kjøpere herunder parter som opptrer på vegne av kjøper, ved en såkalt kundekontroll.
Hvis kjøper ikke bidrar til gjennomføring av kundekontrollen og dette fører til at transaksjonen blir forsinket eller ikke kan gjennomføres, vil dette ansees som mislighold av avtalen og gi selger rettigheter etter avhendingslova eller bustadoppføringsloven kapittel 5. I tilfeller der selger ikke bidrar til gjennomføring av løpende kundekontroll underveis i oppdraget, er det selger som misligholder sine forpliktelser etter avtalen og gi kjøper rettigheter etter avhendingslovens eller bustadoppføringsloven kapittel 4. Partene er selv ansvarlige for eventuelle kostnader og ansvar dette kan medføre. Eiendomsmegleren eller eiendomsmeglingsforetaket kan ikke holdes ansvarlig for de konsekvenser dette vil kunne få for partene eller andre som har interesser i eiendomshandelen.
Ved eventuelt tilbakehold av informasjon eller mistenkelige transaksjoner, plikter eiendomsmegleren å melde fra til Økokrim. Med «mistenkelig transaksjon» menes transaksjon som mistenkes å involvere utbytte fra straffbar handling, eller som skjer som ledd i terrorfinansiering. Manglende mulighet for kundekontroll kan også være et forhold som gjør transaksjonen mistenkelig.
Det anbefales at kjøper innbetaler kjøpesummen som ikke kommer fra låneinstitusjon, i en samlet innbetaling fra egen konto i norsk bank.
Selger forbeholder seg også retten til å kreve dokumentasjon av kjøpers finansiering.
Det kan ikke gjøres ansvar gjeldende mot meglerforetaket som følge av at meglerforetaket overholder sine plikter etter Hvitvaskingsloven.
I henhold til personopplysningsloven gjør vi oppmerksom på at interessenter kan bli registrert for videre oppfølging.
Gautam Kohli
Meglers vederlag betales av selger og er avtalt til:
Fastpris: kr. 55 000
Markedsføringspakke: kr. 17 990
Oppgjørshonorar: kr. 6 950
Oppslag eiendomsregister: kr. 762,50
Megler har i tillegg krav på dekning av utlegg. Alle summer er inkl. mva.
Oppdragsnummer: 3-0003/26
Martin Killi Arnesen
Sist oppdatert: 30.03.2026