Matrikkel
Knr. 301 Gnr. 227 Bnr. 388
Knr. 301 Gnr. 227 Bnr. 318
Knr. 301 Gnr. 227 Bnr. 492
Marstrandgata 11, 0566 OSLO
Meld din interesse så vil vi ta kontakt med deg og holde deg løpende orientert om prosjektet!
Ta kontakt med megler for å avtale digital visning i vår 3D-modell.
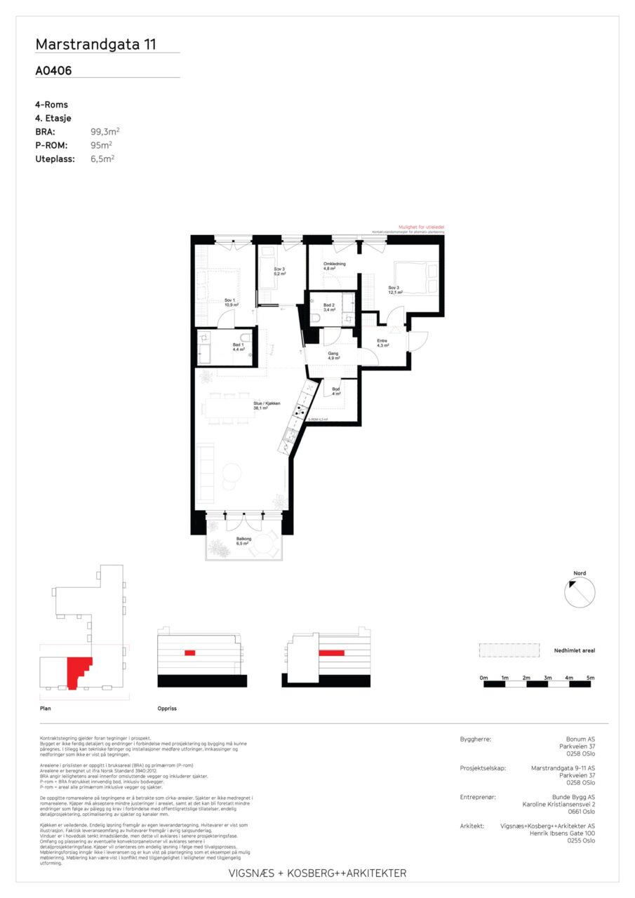
Entre leder til romslig soverom med walk in closet. Videre kommer man til en mellomgang med adkomst til boligens ene bad, samt romslig innvendig bod. Man ledes videre inn til boligens to øvrige soverom der det ene er romslige 10,9 kvm og har eget privat bad. Stue- og kjøkkensonen er 38 kvm og har naturlige møbleringssoner, samt utgang til sydvendt balkong på 6,5 kvm. Det er mulighet for å etablere utleiedel i soverom med adkomst fra entré ved å snu badet. Kontakt megler hvis en slik løsning er aktuell.


Knr. 301 Gnr. 227 Bnr. 388
Knr. 301 Gnr. 227 Bnr. 318
Knr. 301 Gnr. 227 Bnr. 492
På Rodeløkka i Oslo utvikles et nytt og meget moderne leilighetsbygg. Eiendommen ligger i et svært populært og sentralt område mellom Grünerløkka og Carl Berner. Herfra er det kort vei til skoler, barnehager og offentlig kommunikasjon, samt nærhet til Grünerløkka med et rikt utvalg av fasiliteter og servicetilbud. Selve Rodeløkka har en tilbaketrukket beliggenhet og er et skjermet og rolig boområde.
Prosjektet vil inneholde 73 leiligheter, samt næringslokale i 1 etasje. Det vil være god variasjon av leilighetstyper som 2-roms fra 37 kvm til 4-roms leiligheter opp mot 118 kvm, enkelte med utleiemulighet. Flere av 4-romsene har inntrukket takterrasse rett ut fra leiligheten eller privat takterrasse på toppen av bygget. Det blir flotte fellesområder både på tak og i bakgård.
Priser, boligvelger, 3D-modell og salgsdokumenter er tilgjengelig på hjemmesiden.
Marstrandgata 11, 0566 OSLO
Knr. 301 Gnr. 227 Bnr. 318
Knr. 301 Gnr. 227 Bnr. 388
Knr. 301 Gnr. 227 Bnr. 492
Marstrandgata 9 &11 Prosjekt AS
Salgsstart mars 2023 – estimert ferdigstillelse Q4 2026
Mulighet for kjøp av garasjeplass i nærliggende anlegg for 4-roms leiligheter. Konferer megler ift mulighet og detaljert informasjon.
Sykkelparkeringsplasser vil være tilgjengelige for alle som eier leilighet i borettslaget. Selger forbeholder seg retten til å avgjøre endelig organisering av kjelleren.
Alle leiligheter får egen sportsbod. Bodene vil være lokalisert i egne bodareal i kjelleretasje. Bodene fordeles av selger i forkant av innflytting. Sportsboder får en størrelse på minst 2,5 kvm for leiligheter under 50 kvm eller 5 kvm for leiligheter over 50 kvm. Sportsbod utføres som nettingbod, med dør med feste for hengelås.
Kjøkken leveres etter kontraktstegning og med innredning fra HTH. For leveranse på kjøkken, se romskjema
Bad er tenkt levert som prefabrikkerte våtromsmoduler (badekabiner) eller plassbygde bad. Se leveransebeskrivelse for ytterligere detaljer.
Det leveres ikke garderobeskap.
Hovedbæresystem i stål og betong. Etasjeskiller leveres i betong. Det blir synlige V-fuger i himlinger.
Fasader består i hovedsak av teglstein og trekledning.
Takkonstruksjonen isoleres og dimensjoneres i henhold til energiberegninger. Det legges taktekking med forskriftsmessig fall til sluk. For de leilighetene som får takterrasser vil det legges tremmegulv, som angitt på kontraktstegning.
Takkonstruksjonen isoleres og dimensjoneres i henhold til energiberegninger. Det legges taktekking med forskriftsmessig fall til sluk. For de leilighetene som får takterrasser vil det legges tremmegulv, som angitt på kontraktstegning.
Private takterrasser på takplan samt private hageparseller på takplan. Tremmegulv i trykkimpregnert trevirke og skillevegger i trespiler.
Skillevegger på balkonger der dette er vist, kun mellom leiligheter som har balkong/takterrasse helt inntil hverandre. Det leveres ikke skillevegger ved separate balkonger, uansett avstand mellom disse.
Hovedtrappene utføres i betong, og leveres med linoleumsbelegg eller flis på inntrinn. Se for øvrig romskjema. Trapperekkverk med spiler og håndløpere av lakkert metall med enkel håndløper på hver side.
Alle leiligheter er tilgjengelig med heis direkte til leilighetsplan. Dette gjelder ikke duplexleilighet med inngang fra gateplan.
I leiligheter blir det balansert ventilasjon med aggregat plassert i den enkelte leilighet. Innblåsing av luft til alle oppholdsrom via ventiler, samt avtrekk fra bad og kjøkken. Det vil bli egen kanal for avtrekk fra kjøkkenventilator. Avtrekk fra ventilatoren vil minimum være 165 m3/time ved forsert ventilasjon.
Alle boligene blir levert med et automatisk slokkeanlegg med sprinkler med synlige sprinklerhoder, samt ett håndslukkerapparat/ husbrannslange i hver leilighet.
Vinduer/balkongdører leveres med utvendig aluminiumskledning . Balkongdører leveres som heve-/skyvedører eller som slagdører, iht. kontraktstegning. Alle åpningsbare vinduer leveres med barnesikring. Balkongdører leveres med innvendig knappevrider.
Innervegger utføres generelt i stenderverk som kles med gips på begge sider, alternativt med en eller flere vegger av betong
Postkasser med sylinderlås leveres og monteres i forbindelse med hovedinngangspartiet i hver enkelt trappeoppgang.
Det leveres anropstablå ved hovedinngang og svarapparat i alle boenheter. Det leveres også ringeknapp utenfor hver boenhet.
Det vil bli levert fibernett for TV og bredbåndstjenester i hver boenhet fra Telenor eller tilsvarende leverandør.
Det prosjekteres og bygges i henhold til Byggteknisk forskrift TEK17. Selger har ansvaret for at det foreligger brukstillatelse eller ferdigattest på leiligheten senest ved kjøpers overtakelse av leiligheten.
Utleie reguleres av borettslagsloven §§ 5-3 til 5-10. Selger ønsker å praktisere en liberal utleiepraksis i den perioden selger er representert i styret i Borettslaget. Styret vil derfor i denne perioden gi samtykke til å leie ut leiligheten i inntil 3 år fra overtakelse, selv om vilkårene for utleie i §§ 5-4 til 5-6 ikke er oppfylt, jf. § 5-3. Eventuell søknad om utleie må sendes styret og det er opp til styret om utleien godkjennes.
Eiendommen er i dag ikke endelig arrondert og det tas forbehold om at det kan bli gjennomført ytterligere arronderinger som medfører endringer i eiendommens utstrekning og grenseforløp, og at eiendommen således kan bli både større og mindre, og/eller få en annen utforming enn den har i dag.
Eiendommen er regulert til byggeområde for bolig/forretning eller privat tjeneste mm. (S-5123, 9.6.21), se reguleringskart og bestemmelser. Omkringliggende eiendommer er regulert til bolig. Sør/vest for eiendommen ligger Blackbox. Denne eiendommen er i dag regulert til forretning/kontor, men eiendommen blir trolig søkt omregulert i nær fremtid. Det er pr. 2023 usikkert hva resultatet blir, men kjøper må medregne at endringer vil skje. Vi anbefaler alle budgivere å sette seg inn i gjeldene reguleringsbestemmelser. Se også vedlagt reguleringskart.
Kjøper plikter å betale sin andel av fellesutgiftene for borettslaget fra overtakelse. Budsjett over fellesutgiftene stadfestes av borettslaget på ekstraordinær generalforsamling forut for overtakelse. Fellesutgiftene består blant annet av kapitalkostnader (som omtalt ovenfor) og drifts- og vedlikeholdskostnader. Se utkast til budsjett og finansieringsplan for borettslaget inntatt som vedlegg. Størrelsen på de faktiske utgiftene avhenger blant annet av hvilke ytelser/ tjenester borettslaget rekvirerer. Borettslaget vil i stor grad dele fellesutgifter med borettslaget Marstrandgata 11C.
Boligene selges uten fellesgjeld.
Oslo Kommune har eiendomsskatt. Marstrandgata Borettslag vil faktureres for eiendomsskatt som hjemmelshaver til eiendommen. Den enkelte andelseier er imidlertid selv ansvarlig for å dekke den andel av eiendomsskatten som knytter seg til dennes andel. Dette kommer i tillegg til budsjetterte driftskostnader. Styret/forretningsfører vil viderefakturere eiendomsskatten til den enkelte andelseier. Det tas forbehold om endringer i offentlige skatter og avgifter. Eventuell eiendomsskatt på næringslokalene i fellesarealene vil dekkes som felleskostnader etter borettslagets fordelingsnøkkel.
Formuesverdien er ikke fastsatt. Formuesverdien fastsettes av Skatteetaten som tar hensyn til om boligen er en primærbolig (der boligeieren er folkeregistrert bosatt) eller sekundærbolig (alle andre boliger man måtte eie). Formuesverdien for primærboliger vil i 2023 utgjøre 25 % av den beregnede kvadratmeterprisen multiplisert med boligens areal. For sekundærboliger vil formuesverdien 2023 utgjøre 100% av den beregnede kvadratmeterprisen multiplisert med boligens areal. Se http:/www.skatteetaten.no for nærmere informasjon.
Omkostninger kommer i tillegg til kjøpesummen, og inkluderer:
Andelskapital kr 5000,-
Tinglysingsgebyr for hjemmelsdokument kr 480,-
Tinglysingsgebyr per panterettsdokument kr 480,-
Registering av avtale om borett kr 430,-
Andel dokumentavgift ved overskjøting av Eiendommen til Borettslaget.
Andel dokumentavgift ved overskjøting av Eiendommen til Borettslaget utgjør 2,5 % av en forholdsmessig andel av tomteverdien (ikke bygningsmassen) for den enkelte andelshaver. Dokumentavgiftsgrunnlaget av tomteverdi utgjør Kr. 896 pr. kvm. BRA
Boligenhetene vil bli solgt som andelsleiligheter og organisert som et borettslag. Selger, eller et selskap utpekt av selger, vil stifte og tegne alle andelene i borettslaget med foreløpig navn Marstrandgata Borettslag. Endelig organisering av sameiet/borettslaget er ikke bestemt.
Selger tar forbehold om endelig organisering av prosjektet, herunder endring av antall boligenheter og andeler i borettslaget. Videre tar selger forbehold om å etablere flere borettslag, eller at det etableres seksjoner som eies av andre privatpersoner, selskaper og/eller av andre borettslag.
Dette vil enten skje ved at borettslaget vil overta eiendomsretten til den delen av tomten som tilsvarer borettslagets eierskap Eiendommen sammen med grunnbokshjemmelen gjennom et kjøp av – og påfølgende fusjon med aksjeselskapet som eier denne tomteandelen. Fusjonen vil også kunne omfatte bygningsmassen, alternativt vil Marstrandgata 9 & 11 AS være eier av bygningsmassen frem til ferdigstillelse. Ved ferdigstillelse vil Marstrandgata 9 & 11 AS i siste nevnte tilfellet overdra den ferdig oppførte bygningsmassen til Borettslaget. Dette vil uansett skje før kjøpers overtakelse av andel.
Et annet alternativ er at borettslaget kjøper tomten direkte.
Borettslagets bokførte verdi på tomt og bygningsmassen vil tilsvare markedsverdi på overdragelsestidspunktet. For bygningsmassens del vil også skattemessig inngangsverdi tilsvare markedsverdien (dersom bygningsmassen selges direkte) eller påløpte byggekostnader (dersom bygningsmassen overdras til borettslaget gjennom aksjesalg og fusjon). Dersom borettslaget overtar tomten gjennom kjøp av aksjer med etterfølgende fusjon, vil borettslagets skattemessige inngangsverdi på selve tomten imidlertid være lavere enn markedsverdi per i dag. Dette skyldes at den skattemessige inngangsverdien er videreført fra Boligtomt AS med skattemessig kontinuitet ved fusjonen nevnt ovenfor. Differansen mellom markedsverdi på tomt og skattemessig kostpris på tomt betyr at det er en latent skatt på Eiendommen. Dersom borettslaget erverver tomten gjennom et ordinært kjøp vil skattemessig inngangsverdi på selve tomten tilsvarer markedsverdi på kjøpstidspunktet.
På bakkeplan vil det bli etablert 1 næringslokale. Næringslokalet vil bli seksjonert som en egen seksjon og drevet som næringsareal med utadrettet virksomhet.
Sist oppdatert: 08.01.2026
A0403
4. Etasje
2-roms
m2
6 500 000,-
B0501
5. Etasje
2-roms
m2
6 500 000,-
B0505
5. Etasje
2-roms
m2
6 500 000,-
B0506
5. Etasje
2-roms
m2
6 500 000,-
B0205
1. Etasje
3-roms
m2
7 400 000,-
A0302
3. Etasje
3-roms
m2
7 800 000,-
B0103
1. Etasje
3-roms
m2
8 000 000,-
B0407
4. Etasje
3-roms
m2
8 100 000,-
B0507
5. Etasje
3-roms
m2
8 500 000,-