Matrikkel
Knr. 3201 Gnr. 8 Bnr. 50
Kirkeveien 59, 1363 HØVIK
Meld din interesse så vil vi ta kontakt med deg og holde deg løpende orientert om prosjektet!
Visning på Løkeberggrenda - søndag 2. november kl. 13 Velkommen til digital visning i vår modell av prosjektet kl 13.00. Her får du god informasjon om hvordan prosjektet blir når det står ferdig, samt sol- og utsiktsforhold på de ulike enhetene. Meld deg på visning, så får du tilsendt link til den digitale visningen.


Knr. 3201 Gnr. 8 Bnr. 50
Felleskostnadene dekkes i 2 år for den neste som kjøper bolig i Løkeberggrenda.
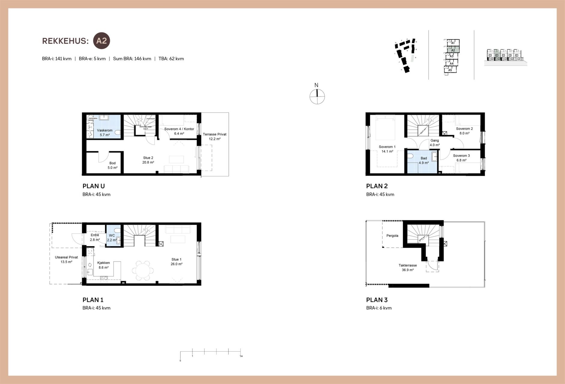
Nye rekkehus som omkranser et koselig felles tun med lekeplass og sosiale soner. Løkeberggrenda består av 58 leiligheter og 28 rekkehus.
• 28 rekkehus.
• Størrelse fra 118 til 143 kvm.
• Flere med privat takterrasse.
• Omkranser et fantastisk felles tun.
• Garasjeplass i parkeringskjeller medfølger.
Navnet til Løkeberggrenda kom ikke ut av det blå. En grend er et tett og lite minisamfunn, et sted hvor mennesker kan være vidt forskjellige både i alder, livssituasjon og yrker men fremdeles ha flere likheter de bor rundt et fellesområde alle setter pris på, og liker følelsen av fellesskap et godt hjem og gode naboer fører med seg. Og det er nettopp dette vi ønsker å oppnå her. Boliger kretset rundt et allsidig og innbydende tun som inviterer til hyggelig sosialt samvær og lek i vakre, grønne omgivelser.
Bærum er et fabelaktig sted å vokse opp, og i Løkeberggrenda bor du midt i smørøyet. Bærum har lang og god tradisjon på å satse på barn, dette vil både du og familien din få nyte godt av. Det ligger flere barnehager og skoler rett i nærheten. Rett på nedsiden av det nye hjemmet ditt går det en fin og flat tursti som både leder deg til Engervannet ved Sandvika – kjent for sitt rike fugleliv – og til Gjønnesjordet ved Bekkestua. Et fabelaktig sted for korte utflukter og de første sykkelturene.
Dere får også flere fine lekeplasser i nærheten. Gjønnesjordet ligger en liten sykkeltur unna, lekeplassen her gir gode muligheter for maks utfoldelse. For de litt større er området rundt Nadderudhallen fabelaktig, fotball, tennis, sparkesykler og skateboard – muligheten til å svi av energi. Bassenget i Nadderudhallen er svært bra, og det er kort vei til naturen. Høvikodden er en kort kjøre- og en litt lenger sykkeltur unna, og fra Øverland er det bare en kort gåtur opp til Sæteren gård. Lekeapparatene som venter i skogen der vil glede barn i alle aldre.
Kirkeveien 59, 1363 HØVIK
Knr. 3201 Gnr. 8 Bnr. 50
Skanska Bolig AS
Overtakelse for rekkehusene vil være i tidsrommet fra 1. september til 1. desember 2027. Senest 10 uker før ferdigstillelse av eiendommen skal selger gi kjøper skriftlig melding om endelig overtakelsesdato.
For rekkehusene medfølger 1 parkeringsplass som er inkludert i kjøpesum.
Foreløpig utomhusplan er inntatt i prospektet. Utomhusplanen er en illustrasjon og endringer i utforming og materialvalg må påregnes.
Det medfølger én sportsbod pr. bolig.
Kjøkken leveres slik det fremgår av kontraktstegning. Det vil bli utarbeidet egne kjøkkentegninger fra leverandør med mulighet for individuelle tilpasninger og endringer av fronter, benkeplate m.m. mot pristillegg. Kjøkkeninnredning leveres fra Sigdal, type Uno Palett, med fronter i farge «Korn» som standard.
Det leveres plassbygde bad med innredning iht. romskjema og leveransebeskrivelse.
Det leveres ikke garderobeskap eller klesskap, men det er avsatt plass til garderobeskap i entre og på soverom.
Rekkehusene utføres som trekonstruksjoner, på bunnplate i betong. For rekkehus med sokkeletasje utføres denne delvis i betong eller murverk.
Ytterveggene består av isolert klimavegg med utvendig luftet trekledning, jfr. fasadetegninger, og innvendig gipsplatekledning. Utvendig trekledning leveres med grunning og to strøk beis. Vegger mot terreng i underetasje vil være i betong med innvendig påforing og gipsplater.
Tak utføres med 1-lags helsveiset papptekking, med skråskåren isolasjon med fall til sluk med innvendig avrenning.
Terrasser leveres med tremmegulv med impregnerte terrassebord. Det leveres 1 stk. LED utelampe med innvendig bryter og en dobbel stikkontakt ved inngangsparti og på takterrasser. Det leveres en frostfri utekran ved inngangspartiet.
Innvendige trapper leveres med beislakkerte trinn. Vanger, spiler og håndløper i klassisk hvit.
Boligene leveres med balansert ventilasjonsanlegg med varmegjenvinner. Ventilasjonsaggregat i hver boenhet. Plassering av ventilasjonsaggregat kan variere, jf. kontraktstegning for den enkelte enhet. Det tas forbehold om at aggregatets endelige plassering avklares under detaljprosjekteringen. Luftinntak og avkast i fasade eller over tak.
Innvendige vannledninger legges som rør-i-rør med fordelerskap plassert i vegg på bad eller bod. Hver boenhet vil ha egen stoppekran plassert i vannskap. Varmtvann leveres fra egen varmtvannsbereder i hver enhet, plassering vil variere.
Det monteres røykvarslere og pulverapparat i henhold til forskrift. Noen enheter vil få en utfellbar leider på fasade for å ivareta krav til rømning. Sprinkleranlegg i garasjeanlegg i henhold til gjeldende krav.
Gulv i oppholdsrom leveres som 1-stavs herdet tregulv med overflate i lys eik. Gulvet har noe kvist og variasjon i trestruktur og farge. Gulvlister i lys eik med synlige spikerhoder. Himlinger leveres med malte gipsplater. Hvite taklister. Standard takhøyde er ca. 250 cm med unntak av baderom og boder som har standard takhøyde på ca. 220 cm.
Boligene leveres med termostatstyrt elektrisk gulvvarme i baderom, WC, vaskerom, entre, hovedstue og kjøkken. Det forberedes for ildsted. Innvendig del av pipe og peisovn blir tilvalg. Byggene leveres svært godt isolert og vil dermed ha et minimalt behov for oppvarming.
Kjøper overtar Eiendommen med de heftelser som fremgår av grunnbokutskriften, med unntak av pengeheftelser. Sameiet har legalpanterett for felleskostnader og andre krav som følger av sameieforholdet jf. eierseksjonsloven § 31. Følgende heftelser i grunnbokutskriften bemerkes særskilt:
1937/780-1/100 Erklæring/avtale vedr. kloakkledning
1947/5416-2/100 Skjønn vedr. kraftlinje overført gnr. 5 bnr. 1
1948/5099-1/100 Erklæring/avtale vedr. beboelsesrom i lagerskur
1956/9-1/100 Best. om vann/kloakkledn.
1968/306152-1/100 Erklæring/avtale vedr. kloakkledning
1984/29361-1/100 Best. om vann/kloakkledn.
2022/1187588-1/200 Bestemmelser om vann/kloakk
2022/1187605-1/200 Erklæring/avtale vedr. støyskjerm
Tinglyste heftelser fremkommer på grunnboksutskriften, som er et vedlegg til denne salgsoppgaven. Tinglyste heftelser på eiendommene gnr. 8 bnr. 50 er i sin helhet tilgjengelig hos megler.
Selger skal fremskaffe ferdigattest for boligen. Kjøper er kjent med at slik ferdigattest normalt vil foreligge først en god stund etter overtagelse. Dersom ferdigattest ikke foreligger, gjennomføres overtagelsen mot midlertidig brukstillatelse.
Utleie er ikke tillatt i borettslag uten samtykke fra styret. Se øvrige begrensninger i borettslagsloven kapittel 5 II.
Sameiet vil få eiet tomt. Tomtens areal er ca. 9 883 m2. Enkelte seksjoner vil få privat uteoppholdsareal på bakkeplan som tilleggsdel til boligseksjonen og andelseiere.
Reguleringsplan for Kirkeveien 59 er vedtatt av Bærum kommunestyre den 04.04.2018. Reguleringsbestemmelser og reguleringskart ligger som vedlegg til denne salgsoppgaven. Planen skal legge til rette for boliger med tilhørende parkeringsareal under bakken, med blokkbebyggelse mot Kirkeveien og konsentrert småhusbebyggelse mot tilgrensende frittliggende småhusbebyggelse.
Selger har på vegne av eierseksjonssameiet, inngått bindende forretningsføreravtale vedrørende løpende forvaltning, stifting, utarbeidelse av budsjett og vedtekter med Obos Eiendomsforvaltning AS.
Felleskostnader dekker bl.a. kommunale avgifter, vaktmester/renhold, internett/TV, honorar til styret, forretningsførsel, bygningsforsikring (ikke innbo), fellesstrøm, vedlikeholdsfond og lignende, basert på et foreløpig budsjett utarbeidet av forretningsfører. Kostnader til drift av realsameienes utomhusareal og parkeringskjeller belastes også via sameiets felleskostnader.
I tillegg til felleskostnader vil det påløpe andre løpende kostnader som for eksempel strømforbruk i den enkelte leilighet, innboforsikring, mm.
Ved overtakelse vil det bli innkrevd 2 ganger månedlige felleskostnader som startkapital.
Det er per 2025 ikke eiendomsskatt i Bærum Kommune.
Formuesverdien er ikke fastsatt. Formuesverdien fastsettes av skatteetaten som tar hensyn til om boligen er en primærbolig (der boligeieren er folkeregistrert bosatt) eller sekundærbolig (alle andre boliger man måtte eie). Formuesverdien for primærboliger vil i 2025 utgjøre 25 % av den beregnede eller dokumentert markedsverdi opp til kr. 10 millioner, og deretter 70 % av det oversigende. For sekundærboliger vil formuesverdien 2025 utgjøre 100% av den beregnede kvadratmeterprisen multiplisert med boligens areal. Se https://www.skatteetaten.no/person/skatt/hjelp-til-riktig-skatt/bolig-og-eiendeler/bolig-eiendomtomt/formuesverdi/boligverdikalkulator/ for nærmere informasjon.
I tillegg til kjøpesummen må kjøper betale:
1: Dokumentavgift til staten, 2,5% av andel tomteverdi: Kr. 93 050,-
2: Tinglysningsgebyr hjemmelsdokument: Kr. 545,-
3: Tinglysningsgebyr pantedokument: Kr. 545,-
4: Andelskapital: Kr. 5 000,-
Totale omkostninger: Kr. 99 140,-
Forskudd tilsvarende 10 % av kjøpesum betales til meglers klientkonto så snart kjøper har mottatt bekreftelse fra megler om at selger har stilt entreprenørgaranti etter bustadoppføringsloven (buofl) § 12.
Forskudd innbetalt til meglers klientkonto er selgers penger og under selgers råderett fra det tidspunkt selger har stilt garanti etter buofl § 47. Også avkastning av pengene er selgers fra det tidspunkt selger har oppfylt vilkårene for å motta forskudd.
Dersom kjøper ikke har signert kjøpekontrakt eller innbetalt forskudd innen 30 dager etter aksept av bud, og dette ikke skyldes forhold på selgers side, er kjøper innforstått med at dette utgjør et vesentlig mislighold av kjøpers kontraktsforpliktelser. Dette vil gi selger rett til å heve avtalen og gjennomføre dekningssalg for kjøpers regning.
Innbetalingen av 10 % skal være i form av ubundet egenkapital. Det vil si at det ikke skal etableres pant i boligen (eller i eiendommen hvor boligen inngår) som sikkerhet for kjøpers finansiering av håndpenger.
Løkeberggrenda Boligsameie er planlagt med totalt 86 boenheter, hvorav 58 leiligheter fordelt på tre bygg, og 28 rekkehus. Rekkehusene er planlagt organisert som et eget borettslag som vil være eier av de 28 rekkehusseksjonene.
Borettslagets bokførte verdi på tomt og bygningsmasse vil tilsvare markedsverdi. For bygningsmassens del vil også skattemessig inngangsverdi tilsvare markedsverdien etter overdragelse fra Skanska Bolig AS. Borettslagets skattemessige inngangsverdi på selve tomten vil imidlertid være lavere enn markedsverdi per i dag. Dette skyldes at den skattemessige inngangsverdien er videreført med skattemessig kontinuitet ved fusjonen nevnt ovenfor. Differansen mellom markedsverdi på tomt og skattemessig kostpris på tomt betyr at det er en latent skatt på Eiendommen.
Styret i borettslaget vil representere rekkehusseksjonene i sameiet.
Sameiet følger eierseksjonsloven av 16. juni 2017, nr. 65. Eierseksjonsloven kan i sin helhet fås ved henvendelse til megler. Loven finnes også på www.lovdata.no. Seksjonsnummer, eierbrøk og antall sameier bestemmes endelig i forbindelse med seksjonering. Utbygger tar forbehold om at planlagt antall seksjoner og dermed størrelsen på sameiet kan endres.
Som seksjonseier vil kjøper bli sameier i eiendommen med tilhørende enerett til bruk av sin bolig. Eneretten til bruk omfatter også tilhørende balkong/taktakterrasse eller privat markterrasse for leiligheter/rekkehus på bakkeplan. Seksjonseierne får felles bruksrett til sameiets fellesarealer.
Iht. lov om Eierseksjonssameier, er sameierne overfor sameiets kreditorer ansvarlig i forhold til sin sameiebrøk. Ved manglende betaling av fellesutgifter har sameiet lovbestemt pantesikkerhet i den enkelte eierseksjon inntil 1 gang folketrygdens grunnbeløp.
Det er utarbeidet foreløpige vedtekter for sameiet. Disse er bindende for kjøper, men Selger kan grunnet forestående reguleringsmessige og seksjoneringsmessige avgjørelser endre disse før overtagelse. Vedtektene er en del av salgsprospektet og det er viktig at en gjør seg godt kjent med disse før det inngås avtale om kjøp.
For øvrig gjelder Lov om eierseksjoner for eierseksjonssameiet og driften av dette.
1. Det tas forbehold om at igangsettingstillatelse er gitt innen 01.06.2026
2. Det tas forbehold om at det innen 01.06.2026 er solgt boliger (leiligheter og rekkehus) som i samlet verdi, for prosjektet utgjør kr. 280.000.000,-.
3. Det tas forbehold om at styrende organer hos Selger godkjenner og beslutter byggestart innen 01.06.2026
Øvrige forbehold
Inntil Løkeberggrenda er ferdig utbygget, er sameiet og borettslaget forpliktet til å yte nødvendig medvirkning slik at utbygger kan gjennomføre en helhetlig utbygging i samsvar med utbygger sine planer, slik de er redegjort for hos kommunen, i salgsprospektet og øvrige dokumenter og med de endringer som eventuelt blir gjort underveis. Sameiet er herunder forpliktet til å la utbygger vederlagsfritt benytte deler av sameiets utvendige fellesarealer midlertidig for adkomst, plassering av utstyr/rigg mm. Denne plikten omfatter også medvirkning til deling/grensejustering og reseksjonering.
Alle opplysningene i salgsmaterialet er gitt med forbehold om rett til endringer som er hensiktsmessig og nødvendig, uten å redusere den generelle standard. Kjøper aksepterer, uten prisjustering, at utbygger har rett til å foreta slike endringer.
Det tas forbehold om skrivefeil/ trykkfeil i prospekt og leveransebeskrivelse. Dersom det er avvik mellom prospekt/internettside og leveransebeskrivelse, er det den endelige leveransebeskrivelsen i kontrakten som gjelder. Omfanget av leveransen er begrenset til denne.
Alle illustrasjoner som blir benyttet i markedsføring av prosjektet er kun ment å være av illustrativ karakter og avvik kan forekomme. Disse kan vise elementer og tilvalg som ikke er en del av standardleveransen. Dette gjelder også viste fasader, utomhusarealer og innredning i visningslokalet. Det gjøres oppmerksom på at utsikt og solforhold som er vist, ikke er gjeldende for alle boligene. Salgstegninger i prospekt er illustrasjoner og omfatter ikke tilgjengelighetskrav.
Arealer er beregnet på grunnlag av tegninger på salgstidspunktet. Det tas forbehold om mindre arealavvik som skyldes nødvendige justeringer av konstruksjoner, sjakter o.l., uten å redusere boligens funksjonalitet. Salgstegninger bør ikke benyttes som grunnlag for bestilling av innredning eller møbler.
Det tas forbehold om synlige rør/kanalføringer. Det tas også forbehold om plassering og størrelse på sjakter, tekniske skap, nedforinger og innkassinger. I forbindelse med elektro/ tv-data/sanitær/ ventilasjon, kan det komme inspeksjonsluker.
Ved flikkarbeider /utbedringer vil malte overflater bli utbedret med flikkmaling og ikke maling av hele flater.
Det tas forbehold om endelig utforming på innredning av kjøkken og bad. Møbler som vist på tegninger er kun å anse som illustrasjoner, og inngår ikke i leveransen.
Det gjøres oppmerksom på at ferdigstillelsesgrad av utomhusarealer ved overlevering vil kunne avvike fra beskrivelser gitt i salgsmateriell. Det tas forbehold om offentlige pålegg som ikke er kjent på salgstidspunktet som kan medføre endringer.
Det tas forbehold om å endre organisering av prosjektet dersom dette viser seg hensiktsmessig, eventuelt som følge av krav fra plan- og bygningsetaten. I så tilfelle plikter kjøper å medvirke til alle vedtak om endring i eierseksjonssameier. Det vil si reseksjonering av eierseksjoner, samt gi de underskrifter som måtte være nødvendig for gjennomføring av byggetrinnene f.eks i forhold til Statens Kartverk og bygningsmyndigheter.
Kjøpet følger bustadoppføringslova av 13. juni 1997 nr. 43. Loven regulerer forhold hvor selger er profesjonell og kjøper er forbruker. Iht. loven plikter selger å stille garanti som sikkerhet for oppfyllelse av sine forpliktelser etter kjøpekontrakt senest ved forbehold frafalt. Garantien utgjør 3 % av kjøpesum frem til overtakelse. Beløpet økes til 5 % av kjøpesum og står 5 -fem- år etter overtakelsen jf. buofl. § 12, 3 ledd. Loven kan i sin helhet fås ved henvendelse til megler. Loven finnes også på www.lovdata.no.
I tilfeller hvor kjøper er profesjonell iht. bustadoppføringslova, dvs. gjør kjøpet som ledd i næringsvirksomhet, kan selger kreve at avtalen reguleres av Lov om avhending av fast eiendom av 3. juli 1992 nr. 93 (avhendingslova).
Det forutsettes at hjemmel overføres til kjøper.
Ingen kan direkte eller indirekte erverve mer en to boligseksjoner i et boligsameie jf. eierseksjonsloven § 23. Dersom et erverv har funnet sted i strid med eierseksjonslovens regler kan Kartverket nekte overskjøting. Dersom overskjøting blir nektet, er kjøper likevel forpliktet til å gjennomføre handelen med selger, og oppgjør til selger vil finne sted tross manglende overskjøting.
Eiendomsmeglere er underlagt Lov om hvitvasking. I henhold til Lov av 01.06.18 nr. 23 om tiltak mot hvitvasking og terrorfinansiering (Hvitvaskingsloven), er megler pliktig til å gjennomføre identitetskontroll av alle involverte parter, herunder fullmektiger. Dette innebærer bl.a. å bekrefte kunders og reelle rettighetshaveres identitet på bakgrunn av fremvist gyldig legitimasjon eller på annen godkjent måte, samt å innhente opplysninger om kundeforholdets formål og tilsiktede art. Dersom slike kundetiltak ikke kan gjennomføres, kan megler ikke etablere kundeforholdet eller utføre transaksjonen. Hvitvaskingsloven pålegger også eiendomsmegler å innhente redegjørelse av midlenes opprinnelse. Dette besvares av samtlige kjøpere herunder parter som opptrer på vegne av kjøper, ved en såkalt kundekontroll.
Hvis kjøper ikke bidrar til gjennomføring av kundekontrollen og dette fører til at transaksjonen blir forsinket eller ikke kan gjennomføres, vil dette ansees som mislighold av avtalen og gi selger rettigheter etter avhendingslova eller bustadoppføringsloven kapittel 5. I tilfeller der selger ikke bidrar til gjennomføring av løpende kundekontroll underveis i oppdraget, er det selger som misligholder sine forpliktelser etter avtalen og gi kjøper rettigheter etter avhendingslovens eller bustadoppføringsloven kapittel 4. Partene er selv ansvarlige for eventuelle kostnader og ansvar dette kan medføre. Eiendomsmegleren eller eiendomsmeglingsforetaket kan ikke holdes ansvarlig for de konsekvenser dette vil kunne få for partene eller andre som har interesser i eiendomshandelen.
Ved eventuelt tilbakehold av informasjon eller mistenkelige transaksjoner, plikter eiendomsmegleren å melde fra til Økokrim. Med «mistenkelig transaksjon» menes transaksjon som mistenkes å involvere utbytte fra straffbar handling, eller som skjer som ledd i terrorfinansiering. Manglende mulighet for kundekontroll kan også være et forhold som gjør transaksjonen mistenkelig.
Det anbefales at kjøper innbetaler kjøpesummen som ikke kommer fra låneinstitusjon, i en samlet innbetaling fra egen konto i norsk bank.
Selger forbeholder seg også retten til å kreve dokumentasjon av kjøpers finansiering.
Det kan ikke gjøres ansvar gjeldende mot meglerforetaket som følge av at meglerforetaket overholder sine plikter etter Hvitvaskingsloven.
Kjøper kan avbestille i henhold til reglene i bustadoppføringslova kapittel VI. Slik avbestilling gir Selger rett til økonomisk kompensasjon.
Dersom Kjøper avbestiller før det er gitt igangsettingstillatelse, betaler Kjøper et avbestillingsgebyr, jf. bustadoppføringslova § 54. Avbestillingsgebyret fastsettes til 10 % av Kjøpesummen.
Dersom Kjøper avbestiller etter at igangsettingstillatelse er gitt, fastsettes Selgerens krav på erstatning i samsvar med bustadoppføringslova § 53.
Kjøper er selv ansvarlig for nødvendig finansiering og bekreftelse på denne. Dersom kjøper skal ha lånefinansiering, bes det oppgitt kontaktinformasjon til långiver slik at megler kan foreta en kontroll av kjøpers finansiering. Til informasjon, kan disse opplysningene bli videreformidlet til selger. Kjøper oppfordres til å innhente verdivurdering av egen bolig dersom egenkapital i nåværende bolig inngår i finansieringsplanen for dette kjøpet. Handelen er juridisk bindende for begge parter når kjøpers bud er akseptert av selger. Dersom kjøper likevel ikke skulle være i stand til å betale kjøpesummen, er kjøper likevel bundet av kjøpet. Selger vil i en slik situasjon kunne påberope seg vesentlig mislighold av avtalen og heve kontrakten. Kjøper er innforstått med at selger vil kunne selge boligen på nytt (dekningssalg) og at ethvert økonomisk tap som selger måtte bli påført som følge av kjøpers mislighold, vil bli krevd dekket av kjøper. Herunder omkostninger i forbindelse med et nytt salg, dekning av en mulig lavere salgspris, rentetap m.m.
Fra 1. januar 2024 trådte en ny arealstandard i kraft “Areal og Volumberegninger for bygninger” som ble publisert av Norsk Standard 26.10.23. De nye arealbegrepene oppgis som ulike former for BRA, som forklart under:
BRA-i
Bruksarealet av boenheten innenfor omsluttede vegger.
BRA-e
Bruksarealet av alle rom som ligger utenfor boenheten, men som tilhører denne.
TBA
Arealet av terrasser og åpne balkonger tilknyttet boenheten.
BRA
Boligens fulle areal eksklusive ytterveggene, altså summen av BRA-i og BRA-e.
Salgstegning for den enkelte leilighet er tilgjengelig i boligvelger og i prospekt. Kontraktstegning vil bli oversendt kjøper etter at prosjektet er ferdig detaljprosjektert.
De oppgitte arealer er å betrakte som cirka-arealer. Arealer er beregnet og avrundet etter NS3940:2023, og alle arealer følger normal avrundingsregel og avrundes til nærmeste hele kvm.
Partene har ingen krav mot hverandre dersom arealet skulle vise seg å være 5 % mindre/større enn det oppgitte areal.
TBA er beregnet og avrundet etter NS3940:2023, og arealet følger normal avrundingsregel og avrundes til nærmeste hele kvm.
Sist oppdatert: 13.11.2025
F2
0. Etasje
6-roms
m2
11 750 000,-
F3
0. Etasje
6-roms
m2
11 750 000,-
F1
0. Etasje
6-roms
m2
12 190 000,-
G2
0. Etasje
6-roms
m2
12 450 000,-
D2
0. Etasje
6-roms
m2
12 450 000,-
D3
0. Etasje
6-roms
m2
12 450 000,-
E1
0. Etasje
6-roms
m2
12 450 000,-
F4
0. Etasje
6-roms
m2
12 550 000,-
B2
0. Etasje
6-roms
m2
12 550 000,-