Matrikkel
Knr. 301 Gnr. 234 Bnr. 134 Snr. 78
Rostockgata 77, 0194 OSLO
Meld din interesse så vil vi ta kontakt med deg og holde deg løpende orientert om prosjektet!
Kontakt megler for å avtale privat visning i leiligheten.
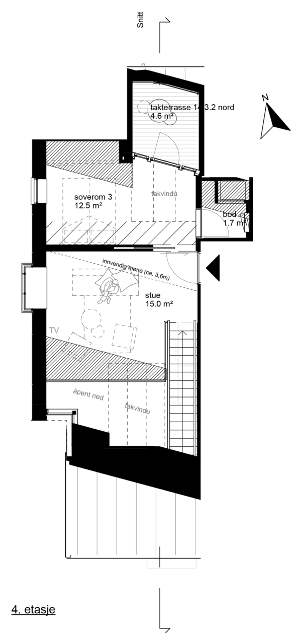
Dette er en stor 4-roms leilighet over 3. og 4. etasje i det ytterste huset i Vannkunsten Syd. Her får du en flott leilighet med 2 stuer, økt takhøyde, 3 soverom, 2 bad og utsikt utover fjorden. Leiligheten har entre med plass til garderobeløsning. Videre kommer man inn til stor åpen stue/kjøkken-løsning på ca. 37 kvm. Hele stuen ligger vendt mot vest og innerste del av fjorden i Bjørvika, her får man virkelig god kontakt med fjorden og fin utsikt. I enden av stuen har man økt romhøyde med store vinduer med nydelig utsikt til fjorden. Fra stuen er utgang til en balkong på ca. 11 kvm, fra balkongen har man fri utsikt ut mot fjorden! I første plan har man tilgang til to lekre bad på ca. 3 og 6 kvm, i tillegg til et romslig soverom på ca. 13 kvm og soverom 2 på ca. 7,9 kvm. Videre opp i andre plan finner vi en flott TV-stue med oppimot 3,6 meters takhøyde. Der er også et soverom i denne etasjen på 12 kvm, fra soverommet har man utgang til takterrasse på ca. 4,6 kvm. I denne etasjen har man også en innvendig bod på 1,7 kvm.
Dette er en av flere leiligheter til salgs i prosjektet Vannkunsten Syd.
Se hjemmesiden for mer informasjon: https://osu.no/prosjekter/vannkunsten-syd
Her kan du virkelig finne roen og nyte livet i en av Bjørvikas flotteste leiligheter!


Knr. 301 Gnr. 234 Bnr. 134 Snr. 78
Vannkunsten er et av Bjørvikas mest særegne boligprosjekter. De første ni husene i Vannkunsten sto ferdige i 2021, mens de siste fem husene som utgjør Vannkunsten Syd er innflyttingsklare i november/desember 2025.. Disse fem husene rommer 91 leiligheter og ligger omkranset av Oslofjorden, Bispekilen og handlegaten Rostockgata som binder Sørenga sammen med resten av Bjørvika. Her får man gjennomførte boliger utført i høy kvalitet.
Nå er det siste sjanse til å sikre seg en leilighet i Vannkunsten Syd. De siste 32 leilighetene ligger i hus 11 og 14. Her er det både 2-, 3- og 4-roms leiligheter for salg, og det fins alt fra fantastiske sjøfront toppleiligheter til vannboliger med egen brygge.
Utvalgte leiligheter vil ha mulighet til å kjøpe garasjeplass. Konferer megler ift mulighet.
Så og si ingen av leilighetene er like. Noen går over to plan, med en formidabel takhøyde i deler av leiligheten. Andre har privat utgang til vannkanten fra balkongen, med egen brygge. Felles for alle boligene er funksjonelle planløsninger, gode lysforhold med mye naturlig lys, høy standard på interiør og materialer, og alle leiligheter får privat balkong eller terrasse. Kjøper kan uten ekstra kostnad velge mellom tre ulike interiørkonsepter for leiligheten. Konseptene omhandler hovedsakelig ulike fargeuttrykk for kjøkken og baderom. Beboerne vil også få tilgang til ulike fasiliteter som et flott fellesrom og kajakker.
Eier og utvikler av Vannkunsten Syd er Oslo S Utvikling AS (OSU), som har drevet med by- og eiendomsutvikling i Bjørvika siden 2001. Av Bjørvikas totale eiendomsareal på 900 000 kvm, utvikler OSU 420 000 kvm. Selskapet står blant annet bak Barcode-rekken, Clemenskvartalet og ferdigstilte Vannkunsten. OSU bidrar også i utviklingen av offentlige byrom som Operastranda og Sørenga sjøbad via datterselskapet Bjørvika Utvikling. Selskapet eies 50/50 av Entra og Linstow. Totalentreprenør for Vannkunsten Syd er Veidekke.
Rostockgata, 0191 OSLO
Knr. 301 Gnr. 234 Bnr. 134
Knr. 301 Gnr. 234 Bnr. 153
Vannkunsten Syd Bolig AS
Vannkunsten Syd Bolig AS
Leilighetene i Vannkunsten Syd forventes ferdigstilt 2. halvår. i 2025, uten at dette er å anse som bindende frist for overlevering. Overlevering kan ikke finne sted tidligere enn 1. kvartal 2025.
Ca. 10 uker før ferdigstillelse vil selger skriftlig varsle kjøper om endelig overtagelsestidspunkt (overtakelse).
Selger disponerer et begrenset antall parkeringsplasser. Parkeringsplassene er plassert i kjeller under Vannkunsten Syd og leveres med ladestasjon. Plassene har en bredde på ca. 2,5 m og en lengde på ca. 5 m.
Konferer megler ift mulighet for kjøp av garasjeplass for den enkelte leilighet.
Selger vil legge til rette for at det etableres en bilpoolordning i Bispevika Syd. Det vil bli en ekstern kommersiell drifter og boligkjøperne vil kunne tilknytte seg bildelings ordning på de til enhver tid gjeldende vilkår. Ordningen vil vare så lenge det er tilstrekkelig etterspørsel for ordningen i Bispevika Syd.
Sportsboder på ca. 6 kvm. (ca. 5 kvm for 2-roms) pr. leilighet vil ligge i kjeller. Det må påregnes at det forekommer søyler i bodene. Sykkelparkering er i hovedsak inkludert i kjellerboden, størrelse bod er økt med ca. 1 kvm tilsvarende plass til én sykkel. I tillegg etableres et antall felles sykkelplasser i kjeller og/eller utendørs. Fri takhøyde i bodarealene kan variere på grunn av tekniske føringer som kabelgater for elektro- og ventilasjonskanaler. Pga. sprinkelregelverk vil det være en begrensning på lagringshøyde i boden. Sportsbodene vil få nettingvegger av type Troax eller tilsvarende, og det legges terrasseheller i gummi på gulv.
Sigdal er valgt som kjøkkenleverandør i prosjektet og omfanget av leveransen er iht. det som fremgår av leilighetsplanen.
Kjøper kan uten ekstra kostnad velge mellom 3 ulike kjøkkenfronter. Innsiden av skuffer og skap leveres hvite, men med forkantlist tilpasset fargen på fronten. Alle kjøkken er valgt for å stå i stil med leilighetens generelle uttrykk. De 3 konseptene er de samme som på bad og følger samme fargepalett;
Urban:
Kjøkkenet leveres i modell Amfi Lakriz med frontene i sort eik finér. Benkeplaten leveres i lys beige kompositt benkeplate med Blanco subline sort 500-U vask eller hvit laminat for 2-roms leiligheter med sort Franke MTG 210-50 vask. Benkeplater i kompositt med lengde over 2,9 m, og laminat med lengde over 4,4 m vil måtte skjøtes. Skjøt plasseres hovedsakelig ved stekeplate. Det leveres sorte håndtak av typen Edge og sort matt blandebatteri.
Natur:
Kjøkkenet leveres i modell Uno palett med malte fronter i støvgrå farge. Benkeplaten leveres enten i lys/hvit kompositt benkeplate med Blanco Andano stål 500-U vask eller hvit laminat for 2-roms leiligheter med Intra Linnea stål vask. Benkeplater i kompositt med lengde over 3,05 m, og laminat med lengde over 4,4 m vil måtte skjøtes. Skjøt plasseres hovedsakelig ved stekeplate. Det leveres børstet stålhåndtak av typen Cliff og krom blandebatteri
Organisk:
Kjøkkenet leveres i modell Uno palett med malte fronter i mosegrønn farge. Benkeplaten leveres i lys/hvit kompositt benkeplate med Blanco subline sort 500-U vask eller mørk grå laminat for 2-roms leiligheter med sort Franke MTG 610-50 vask. Benkeplater i kompositt med lengde over 3,05 m, og laminat med lengde over 4 m vil måtte skjøtes. Skjøt plasseres hovedsakelig ved stekeplate. Det leveres sorte håndtak av typen Edge og sort matt blandebatteri.
Benkeplate leveres med dybde på 60 cm med 20 mm tykkelse. Benkeplaten leveres med underlimt vaskekum i rustfritt stål eller sort avhengig av valgt konsept. Alle skuffer og dører har soft-lock system og leveres med minimalistisk håndtak til frontene. Kjøkkenene er utstyrt med flest mulig skuffeseksjoner av typen full-uttrekk for å gjøre kjøkkenet mest mulig funksjonelt. Det leveres én skuff med bestikkinnlegg per kjøkken. Kjøkkenene leveres med fremtrukket foring mot tilstøtende vegger for å gi de en moderne innramming.
Kjøkkenet blir levert med belysning via downlights i nedforet himling over kjøkkenbenk eller via lyslist med LED under overskap. Stikkontakt leveres montert skråstilt på vegg, og i kjøkkenøy i leilighetene som har det. Det leveres Aqua stop som lekkasjesikring. Det gjøres oppmerksom på at nedforingen benyttes til fremføring av ventilasjonskanaler, etc. og derfor ikke kan benyttes som skapplass. Nedforingen leveres med gipskledning og males i samme farge som vegg.
Det blir levert kjøkkenventilator av type Fortuna med integrert belysning og komfyrvakt fra Røroshetta. Ventilatoren blir plassert helt skjult i overskap. Ved bruk vil en diskre glasskjerm vippes ut. Følgende hvitevarer fra AEG leveres integrert og som en del av innredningen.
• Innbygningsovn stål – AEG modell BEK431011M
• Induksjonstopp – AEG modell IAE6442SFB
• Oppvaskmaskin (integrert) – AEG modell FSK63657P
• Kombiskap (integrert) – AEG modell SCE818E6TS
Det tas forbehold om bytte av leverandører og modeller, nye produkter skal i så fall skal ligge på samme kvalitet som her angitt.
Det leveres baderomsinnredning med omfang iht. kontraktstegning og innredning iht. valgt konsept. Heldekkende servant med ettgreps blandebatteri og pop-up ventil. Veggmontert toalett med innebygget sisterne og toalettsete med soft-close. Speil og belysning over vask. Fordelerskap plasseres bak speilet over servant. Det leveres dusjvegg i klart glass og hjørnesluk. Det leveres jevnt fall mot sluk på hele badet og derfor ikke nedsenk ved dusj. Kjøper vil derfor kunne forvente noe vannansamling utenfor dusjvegg ved bruk. Innfelte downlights i himling med dimmefunksjon. Antall tilpasses badets størrelse.
Det tilbys tre konsepter innenfor standard leveranse;
Urban
Urban leveres med mørkegrå 60×60 Mirage Dom District Zinc fliser på gulv og med en lysere flis 60×60 Mirage Dom District Grey på vegg. Innredning leveres av Sigdal i sort eikefiner med helstøpt servant med skuffer. Der det er inntegnet på kontraktstegning leveres hyllesystem for oppbevaring i sort. Hyllesystemet inkluderer også avsatt plass for vaskemaskin og tørketrommel. Blandebatteri til vask, dusjbatteri og hengsler på dusjvegg leveres i krom. Betjeningspanel til toalett leveres i krom eller børstet stål. Hjørnesluk leveres i børstet stål eller krom.
Natur
Natur leveres med lyse 60×60 Grespor Milestone White Matt 60×60 cm fliser på gulv og vegg. Innredning leveres av Sigdal i lys eikefiner med helstøpt servant og skuffer. Der det er inntegnet på kontraktstegning leveres hyllesystem for oppbevaring i lys eikefiner. Hyllesystemet inkluderer også avsatt plass for vaskemaskin og tørketrommel. Blandebatteri til vask, dusjbatteri, betjeningspanel til toalett og hengsler på dusjvegg leveres i matt sort. Hjørnesluk leveres i sort utførelse.
Organisk
Natur leveres med lyse 60×60 Grespor Milestone White Matt 60×60 cm fliser på gulv og vegg. Innredning leveres av Sigdal i lys eikefiner med helstøpt servant og skuffer. Der det er inntegnet på kontraktstegning leveres hyllesystem for oppbevaring i lys eikefiner. Hyllesystemet inkluderer også avsatt plass for vaskemaskin og tørketrommel. Blandebatteri til vask, dusjbatteri, betjeningspanel til toalett og hengsler på dusjvegg leveres i matt sort. Hjørnesluk leveres i sort utførelse.
Dusjvegger i glass som kan slås inn mot hjørnet når dusjen ikke er i bruk. Termostatstyrt blandebatteri med dusjhode på veggmontert stang. Veggmontert WC.
Opplegg for vaskemaskin og tørketrommel (evt. kombimaskin vask/tørk). Maskiner leveres ikke.
Tørketrommel må ha kondensbeholder/samler.
Der hvor avstand mellom fremkant maskin og dusjsone/dusjvegg er mindre enn 0,6 m, må maskin være godkjent for å stå i sone 2. Dette i henhold til anbefalinger i NEK 400. De fleste nye maskiner oppfyller dette kravet.
Badene blir levert som plassbygde baderom.
Det er satt av plass til garderobeskap. Avsatt plass er anvist på kontraktstegning. Garderobeskap leveres ikke.
Grunn og fundamenter:
Hoveddelen av tomten er etablert ut i sjøen. Det er etablert en vanntett spunt rundt eiendommen, deretter bygges en tørr arbeidsplattform i betong. Etter etablering av vanntett betongkjeller, fjernes eller kappes spunten og vannet vil strømme fritt i havnebassenget mellom husene. Byggene fundamenteres til fjell med stålkjernepeler.
Bærekonstruksjoner:
Bygningene er utført med bærekonstruksjon i betong og stål, samt noe treverk.
Dekker og himlinger:
Dekker i betong med nødvendig isolering/oppforing. Taksperrer i tre.
Yttervegger er kledt i naturlige materialer, hovedmaterialet er norsk skifer fra Otta Rust med innslag av treverk, spesielt i 1. etasje. Otta rust er en skifer hvor en andel av skiferen har en varm rust farge, som blir mer fremtredende med tiden. Skifer er et robust fasademateriale, som patinerer pent over tid og krever minimalt med vedlikehold. Rustfargen vil med tiden bli mer fremtredende på solutsatte fasader og tak. På fasader med mindre sol vil man ikke kunne forvente samme utvikling og skiferen vil i større grad beholde sin opprinnelige farge.
Ottaskiferen inneholder mineraler, som medfører at fargen endrer seg gradvis over tid etter hvert som den blir utsatt for fuktighet og andre klimatiske påkjenninger. Ny skifer er for det meste mørk koksfarget, mens en liten andel (5–10%) er rustfarget. Det vil ta ca. 10 år før skiferen har utviklet seg ferdig. I Vannkunsten Syd vil minst 20% av skiferen leveres med rustet, gyllen overflate fra begynnelsen.
Taket er, som fasadene, kledt i klinklagt Ottaskifer. De store skrånende takflatene blir brutt opp av overlys, takterrasser og enkelte tekniske anlegg. Snøfangere monteres enkeltvis på de forskjellige steinene, tilsvarende Vannkunsten Nord.
Balkonger leveres som prefabrikkerte betongelementer. På gulv vil det bli levert tremmegulv. På grunn av værbelastning vil det kunne forventes patinering og noe sprekkdannelser i tremmegulvet. Spilerekkverk med håndløper i stål eller aluminium. Ett utvendig lysarmatur med innvendig bryter og en utvendig stikkontakt er inkludert.
Tak over balkonger har fortrinnsvis himling i lys farget betong. Det kan forekomme synlige merker etter armeringsstoler. Ved inntrukket balkong er himling bekledt med trespiler.
Takterrasser er «skåret» inn i taket for å danne le og gi utsikt. Disse leveres med tremmegulv i tre, spilevegg i tre på vegg og glassrekkverk. På grunn av værbelastning vil det kunne forventes patinering og sprekkdannelser i treverket på terrassen. På takterrassene gjøres det oppmerksom på at kjøper står ansvarlig for rens av sluk.
Veggene i trapperommet utføres som rå betongelementvegger med synlige fuger. Veggen rundt heis kles i mørke råstålplater. Gulvoverflatene på trapper leveres i betong med overflatebehandling/støvbinding. Rekkverkene leveres i sortlakkert stål med håndløper i massiv eik. På gulv på etasjereposer leveres høykantparkett i eik. Himlingen på reposer leveres som i inngangspartiene med sorte treullsementplater med fin struktur. Synlige betonghimlinger vil ha preg av fuger i møter mellom betongelementene. Inngangsdører leveres malt.
Det er heis fra kjeller opp til alle leilighetsplan. Overflater i heisene er tilpasset fellesarealer for øvrig. Takplater med downlights. Det er 24 timers tilknytning til ekstern tale/høre vakttjeneste.
Balansert ventilasjon fra eget luftbehandlingsanlegg i hver enkelt leilighet. Luftbehandlingsanlegg er plassert i bod, egen nisje eller over himling. Behandlet friskluft tilføres i stue og soverom. Avtrekk vil være fra bad, boder og kjøkken.
Hele bygget skal tilfredsstille dagens krav til brannsikring. Det innebærer blant annet heldekkende sprinkleranlegg eller vanntåkeanlegg i alle fellesarealer, i alle leiligheter, samt utvendig på balkonger og terrasser hvor teknisk forskrift krever dette. Sprinklerhoder vil være synlig i himling og leveres med hvit farge i leilighetene.
Noen synlige rørføringer for fremføring av sprinkleranlegg må også påregnes. Det leveres i tillegg ett brannslukningsapparat til hver leilighet. Røykdetektor og alarmgiver i hver leilighet er direkte tilknyttet sentralt brannalarmanlegg.
Leveres med én-stavs eikeparkett type Lofoten natural prime oak (accent) med bredde 220 mm. Overflaten er børstet og mattlakkert, som gir naturlig struktur som inkluderer mellomstore kvist. Fargespill er en del av sorteringen og gir spennende variasjoner. Midlertidig knirk grunnet årsvariasjoner i temperatur og luftfuktighet vil kunne forekomme. Ved utbedring av mindre skader i parketten vil entreprenør kunne ta i bruk godkjent utbedring med hardvoks.
Gulv og vegger på bad leveres med keramiske fliser. Mindre ansamlinger av vann kan forekomme på baderomsgulv etter dusjing.
Det leveres sponplater på gulv på alle kott, for de leilighetene dette gjelder.
Det installeres komplett anlegg med felles tablå ved hovedinngang og videocalling. Utenfor hver leilighet vil det i tillegg være en ringeknapp til leiligheten. Forskjellig signal fra ringeknapp ved dør og utvendig tablå.
Det legges opp til uttak for bredbånd samt uttak for kabel-tv i stue. I 3 og 4 roms leiligheter vil det i tillegg legges opp til uttak for kabel-tv i hovedsoverom. Selger vil på vegne av sameiet tegne avtale med varighet inntil 3 år.
Leilighetene varmes opp via en eller flere sentralt plasserte viftekonvektor som fortrinnsvis monteres skjult i himling. Enheten suger romluft inn og varmer denne opp slik at oppvarmet luft igjen blåses inn i oppholdsrom. Temperaturen på luft ut av konvektoren begrenses av effekten på konvektoren, men hastigheten på luftutblåsing kan justeres ved ønske om hurtigere temperaturøkning. Det må påregnes noe støy ved økte hastigheter utover normal drift. På bad blir det termostatstyrt vannbåren varme i gulv. Maksimal overflatetemperatur på gulv og respons på regulering er lavere for vannbåren gulvvarme enn for elektrisk gulvvarme.
I vannboligene leveres vannbåren gulvvarme i oppholdsrom (stue/kjøkken).
Omfang og plassering av viftekonvektor vil bli avklart i detaljprosjekteringsfase og som følge av dette vil himlingsplan kunne bli endret på. Det leveres ikke varmekilde på soverom.
I hver bolig leveres det målere med mulighet for fjernavlesning for varmt tappevann og forbruk oppvarming.
På eiendommen er det tinglyst følgende heftelser og rettigheter som følger eiendommens matrikkel ved overskjøting til ny hjemmelshaver:
301/234/134:
05.07.2016 – Dokumentnr: 609803 – Erklæring/avtale
Bestemmelse om almennhetens tilgang til arealer
Kan ikke slettes uten samtykke fra kommunen
Med flere bestemmelser
Gjelder denne registerenheten med flere
10.02.2022 – Dokumentnr: 165232 – Registerenheten kan ikke disponeres over uten samtykke fra rettighetshaver
Rettighetshaver: Røisland & Co Eiendomsmegling AS
Org.nr: 994 194 410
Elektronisk innsendt
———-
Prioritetsbestemmelse
Veket for: Pantedokument 2023/207909-1/200
21.02.2023 – Dokumentnr: 193553 – Bestemmelse om adkomstrett
Rettighetshaver: Knr:0301 Gnr:234 Bnr:152
Kan ikke slettes uten samtykke fra: Oslo Kommune
Org.nr: 958 935 420
Bestemmelse om vedlikehold
Gjelder denne registerenheten med flere
25.11.2015 – Dokumentnr: 1103554 – Registrering av grunn
Denne matrikkelenhet opprettet fra:
Knr:0301 Gnr:234 Bnr:35
20.05.2016 – Dokumentnr: 444920 – Sammenslåing
Sammenslått med denne matrikkelenhet:
Knr:0301 Gnr:234 Bnr:135
21.02.2023 – Dokumentnr: 193537 – Registrering av grunn
Utskilt fra denne matrikkelenhet:
Knr:0301 Gnr:234 Bnr:152
21.02.2023 – Dokumentnr: 193553 – Bestemmelse om adkomstrett
Rettighet hefter i: Knr:0301 Gnr:234 Bnr:93 Snr:1
Rettighet hefter i: Knr:0301 Gnr:234 Bnr:93 Snr:2
Rettighet hefter i: Knr:0301 Gnr:234 Bnr:93 Snr:3
Rettighet hefter i: Knr:0301 Gnr:234 Bnr:93 Snr:4
Rettighet hefter i: Knr:0301 Gnr:234 Bnr:93 Snr:5
Rettighet hefter i: Knr:0301 Gnr:234 Bnr:93 Snr:6
Rettighet hefter i: Knr:0301 Gnr:234 Bnr:93 Snr:7
Rettighet hefter i: Knr:0301 Gnr:234 Bnr:93 Snr:8
Rettighet hefter i: Knr:0301 Gnr:234 Bnr:93 Snr:9
Rettighet hefter i: Knr:0301 Gnr:234 Bnr:93 Snr:10
Rettighet hefter i: Knr:0301 Gnr:234 Bnr:93 Snr:11
Rettighet hefter i: Knr:0301 Gnr:234 Bnr:93 Snr:12
Rettighet hefter i: Knr:0301 Gnr:234 Bnr:93 Snr:13
Rettighet hefter i: Knr:0301 Gnr:234 Bnr:93 Snr:14
Rettighet hefter i: Knr:0301 Gnr:234 Bnr:93 Snr:15
Rettighet hefter i: Knr:0301 Gnr:234 Bnr:93 Snr:16
Rettighet hefter i: Knr:0301 Gnr:234 Bnr:93 Snr:17
Rettighet hefter i: Knr:0301 Gnr:234 Bnr:93 Snr:18
Rettighet hefter i: Knr:0301 Gnr:234 Bnr:93 Snr:19
Rettighet hefter i: Knr:0301 Gnr:234 Bnr:93 Snr:20
Rettighet hefter i: Knr:0301 Gnr:234 Bnr:93 Snr:21
Rettighet hefter i: Knr:0301 Gnr:234 Bnr:93 Snr:22
Rettighet hefter i: Knr:0301 Gnr:234 Bnr:93 Snr:23
Rettighet hefter i: Knr:0301 Gnr:234 Bnr:93 Snr:24
Rettighet hefter i: Knr:0301 Gnr:234 Bnr:93 Snr:25
Rettighet hefter i: Knr:0301 Gnr:234 Bnr:93 Snr:26
Rettighet hefter i: Knr:0301 Gnr:234 Bnr:93 Snr:27
Rettighet hefter i: Knr:0301 Gnr:234 Bnr:93 Snr:28
Rettighet hefter i: Knr:0301 Gnr:234 Bnr:93 Snr:29
Rettighet hefter i: Knr:0301 Gnr:234 Bnr:93 Snr:30
Rettighet hefter i: Knr:0301 Gnr:234 Bnr:93 Snr:31
Rettighet hefter i: Knr:0301 Gnr:234 Bnr:93 Snr:32
Rettighet hefter i: Knr:0301 Gnr:234 Bnr:93 Snr:33
Rettighet hefter i: Knr:0301 Gnr:234 Bnr:93 Snr:34
Rettighet hefter i: Knr:0301 Gnr:234 Bnr:93 Snr:35
Rettighet hefter i: Knr:0301 Gnr:234 Bnr:93 Snr:36
Rettighet hefter i: Knr:0301 Gnr:234 Bnr:93 Snr:37
Rettighet hefter i: Knr:0301 Gnr:234 Bnr:93 Snr:38
Rettighet hefter i: Knr:0301 Gnr:234 Bnr:93 Snr:39
Rettighet hefter i: Knr:0301 Gnr:234 Bnr:93 Snr:40
Rettighet hefter i: Knr:0301 Gnr:234 Bnr:93 Snr:41
Rettighet hefter i: Knr:0301 Gnr:234 Bnr:93 Snr:42
Rettighet hefter i: Knr:0301 Gnr:234 Bnr:93 Snr:43
Rettighet hefter i: Knr:0301 Gnr:234 Bnr:93 Snr:44
Rettighet hefter i: Knr:0301 Gnr:234 Bnr:93 Snr:45
Rettighet hefter i: Knr:0301 Gnr:234 Bnr:93 Snr:46
Rettighet hefter i: Knr:0301 Gnr:234 Bnr:93 Snr:47
Rettighet hefter i: Knr:0301 Gnr:234 Bnr:93 Snr:48
Rettighet hefter i: Knr:0301 Gnr:234 Bnr:93 Snr:49
Rettighet hefter i: Knr:0301 Gnr:234 Bnr:93 Snr:50
Rettighet hefter i: Knr:0301 Gnr:234 Bnr:93 Snr:51
Rettighet hefter i: Knr:0301 Gnr:234 Bnr:93 Snr:52
Rettighet hefter i: Knr:0301 Gnr:234 Bnr:93 Snr:53
Rettighet hefter i: Knr:0301 Gnr:234 Bnr:93 Snr:54
Rettighet hefter i: Knr:0301 Gnr:234 Bnr:93 Snr:55
Rettighet hefter i: Knr:0301 Gnr:234 Bnr:93 Snr:56
Rettighet hefter i: Knr:0301 Gnr:234 Bnr:93 Snr:57
Rettighet hefter i: Knr:0301 Gnr:234 Bnr:93 Snr:58
Rettighet hefter i: Knr:0301 Gnr:234 Bnr:93 Snr:59
Rettighet hefter i: Knr:0301 Gnr:234 Bnr:93 Snr:60
Rettighet hefter i: Knr:0301 Gnr:234 Bnr:93 Snr:61
Rettighet hefter i: Knr:0301 Gnr:234 Bnr:93 Snr:62
Rettighet hefter i: Knr:0301 Gnr:234 Bnr:93 Snr:63
Rettighet hefter i: Knr:0301 Gnr:234 Bnr:93 Snr:64
Rettighet hefter i: Knr:0301 Gnr:234 Bnr:93 Snr:65
Rettighet hefter i: Knr:0301 Gnr:234 Bnr:93 Snr:66
Rettighet hefter i: Knr:0301 Gnr:234 Bnr:93 Snr:67
Rettighet hefter i: Knr:0301 Gnr:234 Bnr:93 Snr:68
Rettighet hefter i: Knr:0301 Gnr:234 Bnr:93 Snr:69
Rettighet hefter i: Knr:0301 Gnr:234 Bnr:93 Snr:70
Rettighet hefter i: Knr:0301 Gnr:234 Bnr:93 Snr:71
Rettighet hefter i: Knr:0301 Gnr:234 Bnr:93 Snr:72
Rettighet hefter i: Knr:0301 Gnr:234 Bnr:93 Snr:73
Rettighet hefter i: Knr:0301 Gnr:234 Bnr:93 Snr:74
Rettighet hefter i: Knr:0301 Gnr:234 Bnr:93 Snr:75
Rettighet hefter i: Knr:0301 Gnr:234 Bnr:93 Snr:76
Rettighet hefter i: Knr:0301 Gnr:234 Bnr:93 Snr:77
Rettighet hefter i: Knr:0301 Gnr:234 Bnr:93 Snr:78
Rettighet hefter i: Knr:0301 Gnr:234 Bnr:93 Snr:79
Rettighet hefter i: Knr:0301 Gnr:234 Bnr:93 Snr:80
Rettighet hefter i: Knr:0301 Gnr:234 Bnr:93 Snr:81
Rettighet hefter i: Knr:0301 Gnr:234 Bnr:93 Snr:82
Rettighet hefter i: Knr:0301 Gnr:234 Bnr:93 Snr:83
Rettighet hefter i: Knr:0301 Gnr:234 Bnr:93 Snr:84
Rettighet hefter i: Knr:0301 Gnr:234 Bnr:93 Snr:85
Rettighet hefter i: Knr:0301 Gnr:234 Bnr:93 Snr:86
Rettighet hefter i: Knr:0301 Gnr:234 Bnr:93 Snr:87
Rettighet hefter i: Knr:0301 Gnr:234 Bnr:93 Snr:88
Rettighet hefter i: Knr:0301 Gnr:234 Bnr:93 Snr:89
Rettighet hefter i: Knr:0301 Gnr:234 Bnr:93 Snr:90
Rettighet hefter i: Knr:0301 Gnr:234 Bnr:93 Snr:91
Rettighet hefter i: Knr:0301 Gnr:234 Bnr:93 Snr:92
Rettighet hefter i: Knr:0301 Gnr:234 Bnr:93 Snr:93
Rettighet hefter i: Knr:0301 Gnr:234 Bnr:93 Snr:94
Rettighet hefter i: Knr:0301 Gnr:234 Bnr:93 Snr:95
Rettighet hefter i: Knr:0301 Gnr:234 Bnr:93 Snr:96
Rettighet hefter i: Knr:0301 Gnr:234 Bnr:93 Snr:97
Rettighet hefter i: Knr:0301 Gnr:234 Bnr:93 Snr:98
Rettighet hefter i: Knr:0301 Gnr:234 Bnr:93 Snr:99
Rettighet hefter i: Knr:0301 Gnr:234 Bnr:93 Snr:100
Rettighet hefter i: Knr:0301 Gnr:234 Bnr:93 Snr:101
Rettighet hefter i: Knr:0301 Gnr:234 Bnr:93 Snr:102
Rettighet hefter i: Knr:0301 Gnr:234 Bnr:93 Snr:103
Rettighet hefter i: Knr:0301 Gnr:234 Bnr:93 Snr:104
Rettighet hefter i: Knr:0301 Gnr:234 Bnr:93 Snr:105
Rettighet hefter i: Knr:0301 Gnr:234 Bnr:93 Snr:106
Rettighet hefter i: Knr:0301 Gnr:234 Bnr:93 Snr:107
Rettighet hefter i: Knr:0301 Gnr:234 Bnr:93 Snr:108
Rettighet hefter i: Knr:0301 Gnr:234 Bnr:93 Snr:109
Rettighet hefter i: Knr:0301 Gnr:234 Bnr:93 Snr:110
Rettighet hefter i: Knr:0301 Gnr:234 Bnr:93 Snr:111
Rettighet hefter i: Knr:0301 Gnr:234 Bnr:93 Snr:112
Rettighet hefter i: Knr:0301 Gnr:234 Bnr:93 Snr:113
Rettighet hefter i: Knr:0301 Gnr:234 Bnr:93 Snr:114
Rettighet hefter i: Knr:0301 Gnr:234 Bnr:93 Snr:115
Rettighet hefter i: Knr:0301 Gnr:234 Bnr:93 Snr:116
Rettighet hefter i: Knr:0301 Gnr:234 Bnr:93 Snr:117
Rettighet hefter i: Knr:0301 Gnr:234 Bnr:93 Snr:118
Rettighet hefter i: Knr:0301 Gnr:234 Bnr:93 Snr:119
Rettighet hefter i: Knr:0301 Gnr:234 Bnr:93 Snr:120
Rettighet hefter i: Knr:0301 Gnr:234 Bnr:93 Snr:121
Rettighet hefter i: Knr:0301 Gnr:234 Bnr:93 Snr:122
Rettighet hefter i: Knr:0301 Gnr:234 Bnr:93 Snr:123
Rettighet hefter i: Knr:0301 Gnr:234 Bnr:93 Snr:124
Rettighet hefter i: Knr:0301 Gnr:234 Bnr:93 Snr:125
Rettighet hefter i: Knr:0301 Gnr:234 Bnr:93 Snr:126
Rettighet hefter i: Knr:0301 Gnr:234 Bnr:93 Snr:127
Rettighet hefter i: Knr:0301 Gnr:234 Bnr:93 Snr:128
Rettighet hefter i: Knr:0301 Gnr:234 Bnr:93 Snr:129
Rettighet hefter i: Knr:0301 Gnr:234 Bnr:93 Snr:130
Rettighet hefter i: Knr:0301 Gnr:234 Bnr:93 Snr:131
Rettighet hefter i: Knr:0301 Gnr:234 Bnr:93 Snr:132
Rettighet hefter i: Knr:0301 Gnr:234 Bnr:93 Snr:133
Rettighet hefter i: Knr:0301 Gnr:234 Bnr:93 Snr:134
Rettighet hefter i: Knr:0301 Gnr:234 Bnr:93 Snr:135
Rettighet hefter i: Knr:0301 Gnr:234 Bnr:93 Snr:136
Rettighet hefter i: Knr:0301 Gnr:234 Bnr:93 Snr:137
Rettighet hefter i: Knr:0301 Gnr:234 Bnr:93 Snr:138
Rettighet hefter i: Knr:0301 Gnr:234 Bnr:93 Snr:139
Rettighet hefter i: Knr:0301 Gnr:234 Bnr:93 Snr:140
Rettighet hefter i: Knr:0301 Gnr:234 Bnr:93 Snr:141
Rettighet hefter i: Knr:0301 Gnr:234 Bnr:93 Snr:142
Rettighet hefter i: Knr:0301 Gnr:234 Bnr:93 Snr:143
Rettighet hefter i: Knr:0301 Gnr:234 Bnr:93 Snr:144
Rettighet hefter i: Knr:0301 Gnr:234 Bnr:93 Snr:145
Rettighet hefter i: Knr:0301 Gnr:234 Bnr:93 Snr:146
Rettighet hefter i: Knr:0301 Gnr:234 Bnr:93 Snr:147
Rettighet hefter i: Knr:0301 Gnr:234 Bnr:93 Snr:148
Rettighet hefter i: Knr:0301 Gnr:234 Bnr:93 Snr:149
Rettighet hefter i: Knr:0301 Gnr:234 Bnr:93 Snr:150
Rettighet hefter i: Knr:0301 Gnr:234 Bnr:93 Snr:151
Rettighet hefter i: Knr:0301 Gnr:234 Bnr:93 Snr:152
Rettighet hefter i: Knr:0301 Gnr:234 Bnr:93 Snr:153
Rettighet hefter i: Knr:0301 Gnr:234 Bnr:93 Snr:154
Rettighet hefter i: Knr:0301 Gnr:234 Bnr:93 Snr:155
Rettighet hefter i: Knr:0301 Gnr:234 Bnr:93 Snr:156
Rettighet hefter i: Knr:0301 Gnr:234 Bnr:93 Snr:157
Rettighet hefter i: Knr:0301 Gnr:234 Bnr:93 Snr:158
Rettighet hefter i: Knr:0301 Gnr:234 Bnr:93 Snr:159
Rettighet hefter i: Knr:0301 Gnr:234 Bnr:93 Snr:160
Rettighet hefter i: Knr:0301 Gnr:234 Bnr:93 Snr:161
Rettighet hefter i: Knr:0301 Gnr:234 Bnr:93 Snr:162
Rettighet hefter i: Knr:0301 Gnr:234 Bnr:93 Snr:163
Rettighet hefter i: Knr:0301 Gnr:234 Bnr:93 Snr:164
Rettighet hefter i: Knr:0301 Gnr:234 Bnr:93 Snr:165
Rettighet hefter i: Knr:0301 Gnr:234 Bnr:93 Snr:166
Rettighet hefter i: Knr:0301 Gnr:234 Bnr:93 Snr:167
Rettighet hefter i: Knr:0301 Gnr:234 Bnr:93 Snr:168
Rettighet hefter i: Knr:0301 Gnr:234 Bnr:93 Snr:169
Rettighet hefter i: Knr:0301 Gnr:234 Bnr:93 Snr:170
Rettighet hefter i: Knr:0301 Gnr:234 Bnr:93 Snr:171
Rettighet hefter i: Knr:0301 Gnr:234 Bnr:93 Snr:172
Rettighet hefter i: Knr:0301 Gnr:234 Bnr:93 Snr:173
Rettighet hefter i: Knr:0301 Gnr:234 Bnr:93 Snr:174
Rettighet hefter i: Knr:0301 Gnr:234 Bnr:93 Snr:175
Rettighet hefter i: Knr:0301 Gnr:234 Bnr:93 Snr:176
Rettighet hefter i: Knr:0301 Gnr:234 Bnr:93 Snr:177
Rettighet hefter i: Knr:0301 Gnr:234 Bnr:93 Snr:178
Rettighet hefter i: Knr:0301 Gnr:234 Bnr:93 Snr:179
Rettighet hefter i: Knr:0301 Gnr:234 Bnr:93 Snr:180
Rettighet hefter i: Knr:0301 Gnr:234 Bnr:93 Snr:181
Rettighet hefter i: Knr:0301 Gnr:234 Bnr:93 Snr:182
Rettighet hefter i: Knr:0301 Gnr:234 Bnr:93 Snr:183
Rettighet hefter i: Knr:0301 Gnr:234 Bnr:93 Snr:184
Rettighet hefter i: Knr:0301 Gnr:234 Bnr:93 Snr:185
Rettighet hefter i: Knr:0301 Gnr:234 Bnr:93 Snr:186
Rettighet hefter i: Knr:0301 Gnr:234 Bnr:93 Snr:187
Rettighet hefter i: Knr:0301 Gnr:234 Bnr:93 Snr:188
Rettighet hefter i: Knr:0301 Gnr:234 Bnr:93 Snr:189
Rettighet hefter i: Knr:0301 Gnr:234 Bnr:93 Snr:190
Rettighet hefter i: Knr:0301 Gnr:234 Bnr:93 Snr:191
Rettighet hefter i: Knr:0301 Gnr:234 Bnr:93 Snr:192
Rettighet hefter i: Knr:0301 Gnr:234 Bnr:93 Snr:193
Rettighet hefter i: Knr:0301 Gnr:234 Bnr:93 Snr:194
Rettighet hefter i: Knr:0301 Gnr:234 Bnr:93 Snr:195
Rettighet hefter i: Knr:0301 Gnr:234 Bnr:93 Snr:196
Rettighet hefter i: Knr:0301 Gnr:234 Bnr:93 Snr:197
Rettighet hefter i: Knr:0301 Gnr:234 Bnr:93 Snr:198
Rettighet hefter i: Knr:0301 Gnr:234 Bnr:93 Snr:199
Rettighet hefter i: Knr:0301 Gnr:234 Bnr:93 Snr:200
Rettighet hefter i: Knr:0301 Gnr:234 Bnr:93 Snr:201
Rettighet hefter i: Knr:0301 Gnr:234 Bnr:93 Snr:202
Rettighet hefter i: Knr:0301 Gnr:234 Bnr:93 Snr:203
Rettighet hefter i: Knr:0301 Gnr:234 Bnr:93 Snr:204
Rettighet hefter i: Knr:0301 Gnr:234 Bnr:93 Snr:205
Rettighet hefter i: Knr:0301 Gnr:234 Bnr:93 Snr:206
Rettighet hefter i: Knr:0301 Gnr:234 Bnr:93 Snr:207
Rettighet hefter i: Knr:0301 Gnr:234 Bnr:93 Snr:208
Rettighet hefter i: Knr:0301 Gnr:234 Bnr:93 Snr:209
Rettighet hefter i: Knr:0301 Gnr:234 Bnr:93 Snr:210
Rettighet hefter i: Knr:0301 Gnr:234 Bnr:93 Snr:211
Rettighet hefter i: Knr:0301 Gnr:234 Bnr:93 Snr:212
Rettighet hefter i: Knr:0301 Gnr:234 Bnr:93 Snr:213
Rettighet hefter i: Knr:0301 Gnr:234 Bnr:93 Snr:214
Rettighet hefter i: Knr:0301 Gnr:234 Bnr:93 Snr:215
Rettighet hefter i: Knr:0301 Gnr:234 Bnr:93 Snr:216
Rettighet hefter i: Knr:0301 Gnr:234 Bnr:93 Snr:217
Rettighet hefter i: Knr:0301 Gnr:234 Bnr:93 Snr:218
Rettighet hefter i: Knr:0301 Gnr:234 Bnr:93 Snr:219
Rettighet hefter i: Knr:0301 Gnr:234 Bnr:93 Snr:220
Rettighet hefter i: Knr:0301 Gnr:234 Bnr:93 Snr:221
Rettighet hefter i: Knr:0301 Gnr:234 Bnr:93 Snr:222
Rettighet hefter i: Knr:0301 Gnr:234 Bnr:93 Snr:223
Rettighet hefter i: Knr:0301 Gnr:234 Bnr:93 Snr:224
Rettighet hefter i: Knr:0301 Gnr:234 Bnr:93 Snr:225
Rettighet hefter i: Knr:0301 Gnr:234 Bnr:93 Snr:226
Rettighet hefter i: Knr:0301 Gnr:234 Bnr:93 Snr:227
Rettighet hefter i: Knr:0301 Gnr:234 Bnr:93 Snr:228
Rettighet hefter i: Knr:0301 Gnr:234 Bnr:93 Snr:229
Rettighet hefter i: Knr:0301 Gnr:234 Bnr:93 Snr:230
Rettighet hefter i: Knr:0301 Gnr:234 Bnr:93 Snr:231
Rettighet hefter i: Knr:0301 Gnr:234 Bnr:93 Snr:232
Rettighet hefter i: Knr:0301 Gnr:234 Bnr:93 Snr:233
Rettighet hefter i: Knr:0301 Gnr:234 Bnr:93 Snr:234
Rettighet hefter i: Knr:0301 Gnr:234 Bnr:93 Snr:235
Rettighet hefter i: Knr:0301 Gnr:234 Bnr:93 Snr:236
Rettighet hefter i: Knr:0301 Gnr:234 Bnr:93 Snr:237
Rettighet hefter i: Knr:0301 Gnr:234 Bnr:93 Snr:238
Rettighet hefter i: Knr:0301 Gnr:234 Bnr:93 Snr:239
Rettighet hefter i: Knr:0301 Gnr:234 Bnr:93 Snr:240
Rettighet hefter i: Knr:0301 Gnr:234 Bnr:93 Snr:241
Rettighet hefter i: Knr:0301 Gnr:234 Bnr:93 Snr:242
Rettighet hefter i: Knr:0301 Gnr:234 Bnr:93 Snr:243
Rettighet hefter i: Knr:0301 Gnr:234 Bnr:93 Snr:244
Rettighet hefter i: Knr:0301 Gnr:234 Bnr:93 Snr:245
Rettighet hefter i: Knr:0301 Gnr:234 Bnr:93 Snr:246
Rettighet hefter i: Knr:0301 Gnr:234 Bnr:93 Snr:247
Rettighet hefter i: Knr:0301 Gnr:234 Bnr:93 Snr:248
Rettighet hefter i: Knr:0301 Gnr:234 Bnr:93 Snr:249
Rettighet hefter i: Knr:0301 Gnr:234 Bnr:93 Snr:250
Rettighet hefter i: Knr:0301 Gnr:234 Bnr:93 Snr:251
Rettighet hefter i: Knr:0301 Gnr:234 Bnr:93 Snr:252
Rettighet hefter i: Knr:0301 Gnr:234 Bnr:93 Snr:253
Rettighet hefter i: Knr:0301 Gnr:234 Bnr:93 Snr:254
Rettighet hefter i: Knr:0301 Gnr:234 Bnr:93 Snr:255
Rettighet hefter i: Knr:0301 Gnr:234 Bnr:93 Snr:256
Rettighet hefter i: Knr:0301 Gnr:234 Bnr:93 Snr:257
Rettighet hefter i: Knr:0301 Gnr:234 Bnr:93 Snr:258
Rettighet hefter i: Knr:0301 Gnr:234 Bnr:93 Snr:259
Rettighet hefter i: Knr:0301 Gnr:234 Bnr:93 Snr:260
Rettighet hefter i: Knr:0301 Gnr:234 Bnr:93 Snr:261
Rettighet hefter i: Knr:0301 Gnr:234 Bnr:93 Snr:262
Rettighet hefter i: Knr:0301 Gnr:234 Bnr:93 Snr:263
Rettighet hefter i: Knr:0301 Gnr:234 Bnr:93 Snr:264
Rettighet hefter i: Knr:0301 Gnr:234 Bnr:93 Snr:265
Rettighet hefter i: Knr:0301 Gnr:234 Bnr:93 Snr:266
Rettighet hefter i: Knr:0301 Gnr:234 Bnr:93 Snr:267
Rettighet hefter i: Knr:0301 Gnr:234 Bnr:93 Snr:268
Rettighet hefter i: Knr:0301 Gnr:234 Bnr:93 Snr:269
Rettighet hefter i: Knr:0301 Gnr:234 Bnr:93 Snr:270
Rettighet hefter i: Knr:0301 Gnr:234 Bnr:93 Snr:271
Rettighet hefter i: Knr:0301 Gnr:234 Bnr:93 Snr:272
Rettighet hefter i: Knr:0301 Gnr:234 Bnr:93 Snr:273
Rettighet hefter i: Knr:0301 Gnr:234 Bnr:93 Snr:274
Kan ikke slettes uten samtykke fra: Oslo Kommune
Org.nr: 958 935 420
Gjelder trafostasjon
Gjelder denne registerenheten med flere
06.03.2023 – Dokumentnr: 242334 – Bestemmelse om trafostasjon/-kiosk
Rettighet hefter i: Knr:0301 Gnr:234 Bnr:93 Snr:1
Rettighet hefter i: Knr:0301 Gnr:234 Bnr:93 Snr:2
Rettighet hefter i: Knr:0301 Gnr:234 Bnr:93 Snr:3
Rettighet hefter i: Knr:0301 Gnr:234 Bnr:93 Snr:4
Rettighet hefter i: Knr:0301 Gnr:234 Bnr:93 Snr:5
Rettighet hefter i: Knr:0301 Gnr:234 Bnr:93 Snr:6
Rettighet hefter i: Knr:0301 Gnr:234 Bnr:93 Snr:7
Rettighet hefter i: Knr:0301 Gnr:234 Bnr:93 Snr:8
Rettighet hefter i: Knr:0301 Gnr:234 Bnr:93 Snr:9
Rettighet hefter i: Knr:0301 Gnr:234 Bnr:93 Snr:10
Rettighet hefter i: Knr:0301 Gnr:234 Bnr:93 Snr:11
Rettighet hefter i: Knr:0301 Gnr:234 Bnr:93 Snr:12
Rettighet hefter i: Knr:0301 Gnr:234 Bnr:93 Snr:13
Rettighet hefter i: Knr:0301 Gnr:234 Bnr:93 Snr:14
Rettighet hefter i: Knr:0301 Gnr:234 Bnr:93 Snr:15
Rettighet hefter i: Knr:0301 Gnr:234 Bnr:93 Snr:16
Rettighet hefter i: Knr:0301 Gnr:234 Bnr:93 Snr:17
Rettighet hefter i: Knr:0301 Gnr:234 Bnr:93 Snr:18
Rettighet hefter i: Knr:0301 Gnr:234 Bnr:93 Snr:19
Rettighet hefter i: Knr:0301 Gnr:234 Bnr:93 Snr:20
Rettighet hefter i: Knr:0301 Gnr:234 Bnr:93 Snr:21
Rettighet hefter i: Knr:0301 Gnr:234 Bnr:93 Snr:22
Rettighet hefter i: Knr:0301 Gnr:234 Bnr:93 Snr:23
Rettighet hefter i: Knr:0301 Gnr:234 Bnr:93 Snr:24
Rettighet hefter i: Knr:0301 Gnr:234 Bnr:93 Snr:25
Rettighet hefter i: Knr:0301 Gnr:234 Bnr:93 Snr:26
Rettighet hefter i: Knr:0301 Gnr:234 Bnr:93 Snr:27
Rettighet hefter i: Knr:0301 Gnr:234 Bnr:93 Snr:28
Rettighet hefter i: Knr:0301 Gnr:234 Bnr:93 Snr:29
Rettighet hefter i: Knr:0301 Gnr:234 Bnr:93 Snr:30
Rettighet hefter i: Knr:0301 Gnr:234 Bnr:93 Snr:31
Rettighet hefter i: Knr:0301 Gnr:234 Bnr:93 Snr:32
Rettighet hefter i: Knr:0301 Gnr:234 Bnr:93 Snr:33
Rettighet hefter i: Knr:0301 Gnr:234 Bnr:93 Snr:34
Rettighet hefter i: Knr:0301 Gnr:234 Bnr:93 Snr:35
Rettighet hefter i: Knr:0301 Gnr:234 Bnr:93 Snr:36
Rettighet hefter i: Knr:0301 Gnr:234 Bnr:93 Snr:37
Rettighet hefter i: Knr:0301 Gnr:234 Bnr:93 Snr:38
Rettighet hefter i: Knr:0301 Gnr:234 Bnr:93 Snr:39
Rettighet hefter i: Knr:0301 Gnr:234 Bnr:93 Snr:40
Rettighet hefter i: Knr:0301 Gnr:234 Bnr:93 Snr:41
Rettighet hefter i: Knr:0301 Gnr:234 Bnr:93 Snr:42
Rettighet hefter i: Knr:0301 Gnr:234 Bnr:93 Snr:43
Rettighet hefter i: Knr:0301 Gnr:234 Bnr:93 Snr:44
Rettighet hefter i: Knr:0301 Gnr:234 Bnr:93 Snr:45
Rettighet hefter i: Knr:0301 Gnr:234 Bnr:93 Snr:46
Rettighet hefter i: Knr:0301 Gnr:234 Bnr:93 Snr:47
Rettighet hefter i: Knr:0301 Gnr:234 Bnr:93 Snr:48
Rettighet hefter i: Knr:0301 Gnr:234 Bnr:93 Snr:49
Rettighet hefter i: Knr:0301 Gnr:234 Bnr:93 Snr:50
Rettighet hefter i: Knr:0301 Gnr:234 Bnr:93 Snr:51
Rettighet hefter i: Knr:0301 Gnr:234 Bnr:93 Snr:52
Rettighet hefter i: Knr:0301 Gnr:234 Bnr:93 Snr:53
Rettighet hefter i: Knr:0301 Gnr:234 Bnr:93 Snr:54
Rettighet hefter i: Knr:0301 Gnr:234 Bnr:93 Snr:55
Rettighet hefter i: Knr:0301 Gnr:234 Bnr:93 Snr:56
Rettighet hefter i: Knr:0301 Gnr:234 Bnr:93 Snr:57
Rettighet hefter i: Knr:0301 Gnr:234 Bnr:93 Snr:58
Rettighet hefter i: Knr:0301 Gnr:234 Bnr:93 Snr:59
Rettighet hefter i: Knr:0301 Gnr:234 Bnr:93 Snr:60
Rettighet hefter i: Knr:0301 Gnr:234 Bnr:93 Snr:61
Rettighet hefter i: Knr:0301 Gnr:234 Bnr:93 Snr:62
Rettighet hefter i: Knr:0301 Gnr:234 Bnr:93 Snr:63
Rettighet hefter i: Knr:0301 Gnr:234 Bnr:93 Snr:64
Rettighet hefter i: Knr:0301 Gnr:234 Bnr:93 Snr:65
Rettighet hefter i: Knr:0301 Gnr:234 Bnr:93 Snr:66
Rettighet hefter i: Knr:0301 Gnr:234 Bnr:93 Snr:67
Rettighet hefter i: Knr:0301 Gnr:234 Bnr:93 Snr:68
Rettighet hefter i: Knr:0301 Gnr:234 Bnr:93 Snr:69
Rettighet hefter i: Knr:0301 Gnr:234 Bnr:93 Snr:70
Rettighet hefter i: Knr:0301 Gnr:234 Bnr:93 Snr:71
Rettighet hefter i: Knr:0301 Gnr:234 Bnr:93 Snr:72
Rettighet hefter i: Knr:0301 Gnr:234 Bnr:93 Snr:73
Rettighet hefter i: Knr:0301 Gnr:234 Bnr:93 Snr:74
Rettighet hefter i: Knr:0301 Gnr:234 Bnr:93 Snr:75
Rettighet hefter i: Knr:0301 Gnr:234 Bnr:93 Snr:76
Rettighet hefter i: Knr:0301 Gnr:234 Bnr:93 Snr:77
Rettighet hefter i: Knr:0301 Gnr:234 Bnr:93 Snr:78
Rettighet hefter i: Knr:0301 Gnr:234 Bnr:93 Snr:79
Rettighet hefter i: Knr:0301 Gnr:234 Bnr:93 Snr:80
Rettighet hefter i: Knr:0301 Gnr:234 Bnr:93 Snr:81
Rettighet hefter i: Knr:0301 Gnr:234 Bnr:93 Snr:82
Rettighet hefter i: Knr:0301 Gnr:234 Bnr:93 Snr:83
Rettighet hefter i: Knr:0301 Gnr:234 Bnr:93 Snr:84
Rettighet hefter i: Knr:0301 Gnr:234 Bnr:93 Snr:85
Rettighet hefter i: Knr:0301 Gnr:234 Bnr:93 Snr:86
Rettighet hefter i: Knr:0301 Gnr:234 Bnr:93 Snr:87
Rettighet hefter i: Knr:0301 Gnr:234 Bnr:93 Snr:88
Rettighet hefter i: Knr:0301 Gnr:234 Bnr:93 Snr:89
Rettighet hefter i: Knr:0301 Gnr:234 Bnr:93 Snr:90
Rettighet hefter i: Knr:0301 Gnr:234 Bnr:93 Snr:91
Rettighet hefter i: Knr:0301 Gnr:234 Bnr:93 Snr:92
Rettighet hefter i: Knr:0301 Gnr:234 Bnr:93 Snr:93
Rettighet hefter i: Knr:0301 Gnr:234 Bnr:93 Snr:94
Rettighet hefter i: Knr:0301 Gnr:234 Bnr:93 Snr:95
Rettighet hefter i: Knr:0301 Gnr:234 Bnr:93 Snr:96
Rettighet hefter i: Knr:0301 Gnr:234 Bnr:93 Snr:97
Rettighet hefter i: Knr:0301 Gnr:234 Bnr:93 Snr:98
Rettighet hefter i: Knr:0301 Gnr:234 Bnr:93 Snr:99
Rettighet hefter i: Knr:0301 Gnr:234 Bnr:93 Snr:100
Rettighet hefter i: Knr:0301 Gnr:234 Bnr:93 Snr:101
Rettighet hefter i: Knr:0301 Gnr:234 Bnr:93 Snr:102
Rettighet hefter i: Knr:0301 Gnr:234 Bnr:93 Snr:103
Rettighet hefter i: Knr:0301 Gnr:234 Bnr:93 Snr:104
Rettighet hefter i: Knr:0301 Gnr:234 Bnr:93 Snr:105
Rettighet hefter i: Knr:0301 Gnr:234 Bnr:93 Snr:106
Rettighet hefter i: Knr:0301 Gnr:234 Bnr:93 Snr:107
Rettighet hefter i: Knr:0301 Gnr:234 Bnr:93 Snr:108
Rettighet hefter i: Knr:0301 Gnr:234 Bnr:93 Snr:109
Rettighet hefter i: Knr:0301 Gnr:234 Bnr:93 Snr:110
Rettighet hefter i: Knr:0301 Gnr:234 Bnr:93 Snr:111
Rettighet hefter i: Knr:0301 Gnr:234 Bnr:93 Snr:112
Rettighet hefter i: Knr:0301 Gnr:234 Bnr:93 Snr:113
Rettighet hefter i: Knr:0301 Gnr:234 Bnr:93 Snr:114
Rettighet hefter i: Knr:0301 Gnr:234 Bnr:93 Snr:115
Rettighet hefter i: Knr:0301 Gnr:234 Bnr:93 Snr:116
Rettighet hefter i: Knr:0301 Gnr:234 Bnr:93 Snr:117
Rettighet hefter i: Knr:0301 Gnr:234 Bnr:93 Snr:118
Rettighet hefter i: Knr:0301 Gnr:234 Bnr:93 Snr:119
Rettighet hefter i: Knr:0301 Gnr:234 Bnr:93 Snr:120
Rettighet hefter i: Knr:0301 Gnr:234 Bnr:93 Snr:121
Rettighet hefter i: Knr:0301 Gnr:234 Bnr:93 Snr:122
Rettighet hefter i: Knr:0301 Gnr:234 Bnr:93 Snr:123
Rettighet hefter i: Knr:0301 Gnr:234 Bnr:93 Snr:124
Rettighet hefter i: Knr:0301 Gnr:234 Bnr:93 Snr:125
Rettighet hefter i: Knr:0301 Gnr:234 Bnr:93 Snr:126
Rettighet hefter i: Knr:0301 Gnr:234 Bnr:93 Snr:127
Rettighet hefter i: Knr:0301 Gnr:234 Bnr:93 Snr:128
Rettighet hefter i: Knr:0301 Gnr:234 Bnr:93 Snr:129
Rettighet hefter i: Knr:0301 Gnr:234 Bnr:93 Snr:130
Rettighet hefter i: Knr:0301 Gnr:234 Bnr:93 Snr:131
Rettighet hefter i: Knr:0301 Gnr:234 Bnr:93 Snr:132
Rettighet hefter i: Knr:0301 Gnr:234 Bnr:93 Snr:133
Rettighet hefter i: Knr:0301 Gnr:234 Bnr:93 Snr:134
Rettighet hefter i: Knr:0301 Gnr:234 Bnr:93 Snr:135
Rettighet hefter i: Knr:0301 Gnr:234 Bnr:93 Snr:136
Rettighet hefter i: Knr:0301 Gnr:234 Bnr:93 Snr:137
Rettighet hefter i: Knr:0301 Gnr:234 Bnr:93 Snr:138
Rettighet hefter i: Knr:0301 Gnr:234 Bnr:93 Snr:139
Rettighet hefter i: Knr:0301 Gnr:234 Bnr:93 Snr:140
Rettighet hefter i: Knr:0301 Gnr:234 Bnr:93 Snr:141
Rettighet hefter i: Knr:0301 Gnr:234 Bnr:93 Snr:142
Rettighet hefter i: Knr:0301 Gnr:234 Bnr:93 Snr:143
Rettighet hefter i: Knr:0301 Gnr:234 Bnr:93 Snr:144
Rettighet hefter i: Knr:0301 Gnr:234 Bnr:93 Snr:145
Rettighet hefter i: Knr:0301 Gnr:234 Bnr:93 Snr:146
Rettighet hefter i: Knr:0301 Gnr:234 Bnr:93 Snr:147
Rettighet hefter i: Knr:0301 Gnr:234 Bnr:93 Snr:148
Rettighet hefter i: Knr:0301 Gnr:234 Bnr:93 Snr:149
Rettighet hefter i: Knr:0301 Gnr:234 Bnr:93 Snr:150
Rettighet hefter i: Knr:0301 Gnr:234 Bnr:93 Snr:151
Rettighet hefter i: Knr:0301 Gnr:234 Bnr:93 Snr:152
Rettighet hefter i: Knr:0301 Gnr:234 Bnr:93 Snr:153
Rettighet hefter i: Knr:0301 Gnr:234 Bnr:93 Snr:154
Rettighet hefter i: Knr:0301 Gnr:234 Bnr:93 Snr:155
Rettighet hefter i: Knr:0301 Gnr:234 Bnr:93 Snr:156
Rettighet hefter i: Knr:0301 Gnr:234 Bnr:93 Snr:157
Rettighet hefter i: Knr:0301 Gnr:234 Bnr:93 Snr:158
Rettighet hefter i: Knr:0301 Gnr:234 Bnr:93 Snr:159
Rettighet hefter i: Knr:0301 Gnr:234 Bnr:93 Snr:160
Rettighet hefter i: Knr:0301 Gnr:234 Bnr:93 Snr:161
Rettighet hefter i: Knr:0301 Gnr:234 Bnr:93 Snr:162
Rettighet hefter i: Knr:0301 Gnr:234 Bnr:93 Snr:163
Rettighet hefter i: Knr:0301 Gnr:234 Bnr:93 Snr:164
Rettighet hefter i: Knr:0301 Gnr:234 Bnr:93 Snr:165
Rettighet hefter i: Knr:0301 Gnr:234 Bnr:93 Snr:166
Rettighet hefter i: Knr:0301 Gnr:234 Bnr:93 Snr:167
Rettighet hefter i: Knr:0301 Gnr:234 Bnr:93 Snr:168
Rettighet hefter i: Knr:0301 Gnr:234 Bnr:93 Snr:169
Rettighet hefter i: Knr:0301 Gnr:234 Bnr:93 Snr:170
Rettighet hefter i: Knr:0301 Gnr:234 Bnr:93 Snr:171
Rettighet hefter i: Knr:0301 Gnr:234 Bnr:93 Snr:172
Rettighet hefter i: Knr:0301 Gnr:234 Bnr:93 Snr:173
Rettighet hefter i: Knr:0301 Gnr:234 Bnr:93 Snr:174
Rettighet hefter i: Knr:0301 Gnr:234 Bnr:93 Snr:175
Rettighet hefter i: Knr:0301 Gnr:234 Bnr:93 Snr:176
Rettighet hefter i: Knr:0301 Gnr:234 Bnr:93 Snr:177
Rettighet hefter i: Knr:0301 Gnr:234 Bnr:93 Snr:178
Rettighet hefter i: Knr:0301 Gnr:234 Bnr:93 Snr:179
Rettighet hefter i: Knr:0301 Gnr:234 Bnr:93 Snr:180
Rettighet hefter i: Knr:0301 Gnr:234 Bnr:93 Snr:181
Rettighet hefter i: Knr:0301 Gnr:234 Bnr:93 Snr:182
Rettighet hefter i: Knr:0301 Gnr:234 Bnr:93 Snr:183
Rettighet hefter i: Knr:0301 Gnr:234 Bnr:93 Snr:184
Rettighet hefter i: Knr:0301 Gnr:234 Bnr:93 Snr:185
Rettighet hefter i: Knr:0301 Gnr:234 Bnr:93 Snr:186
Rettighet hefter i: Knr:0301 Gnr:234 Bnr:93 Snr:187
Rettighet hefter i: Knr:0301 Gnr:234 Bnr:93 Snr:188
Rettighet hefter i: Knr:0301 Gnr:234 Bnr:93 Snr:189
Rettighet hefter i: Knr:0301 Gnr:234 Bnr:93 Snr:190
Rettighet hefter i: Knr:0301 Gnr:234 Bnr:93 Snr:191
Rettighet hefter i: Knr:0301 Gnr:234 Bnr:93 Snr:192
Rettighet hefter i: Knr:0301 Gnr:234 Bnr:93 Snr:193
Rettighet hefter i: Knr:0301 Gnr:234 Bnr:93 Snr:194
Rettighet hefter i: Knr:0301 Gnr:234 Bnr:93 Snr:195
Rettighet hefter i: Knr:0301 Gnr:234 Bnr:93 Snr:196
Rettighet hefter i: Knr:0301 Gnr:234 Bnr:93 Snr:197
Rettighet hefter i: Knr:0301 Gnr:234 Bnr:93 Snr:198
Rettighet hefter i: Knr:0301 Gnr:234 Bnr:93 Snr:199
Rettighet hefter i: Knr:0301 Gnr:234 Bnr:93 Snr:200
Rettighet hefter i: Knr:0301 Gnr:234 Bnr:93 Snr:201
Rettighet hefter i: Knr:0301 Gnr:234 Bnr:93 Snr:202
Rettighet hefter i: Knr:0301 Gnr:234 Bnr:93 Snr:203
Rettighet hefter i: Knr:0301 Gnr:234 Bnr:93 Snr:204
Rettighet hefter i: Knr:0301 Gnr:234 Bnr:93 Snr:205
Rettighet hefter i: Knr:0301 Gnr:234 Bnr:93 Snr:206
Rettighet hefter i: Knr:0301 Gnr:234 Bnr:93 Snr:207
Rettighet hefter i: Knr:0301 Gnr:234 Bnr:93 Snr:208
Rettighet hefter i: Knr:0301 Gnr:234 Bnr:93 Snr:209
Rettighet hefter i: Knr:0301 Gnr:234 Bnr:93 Snr:210
Rettighet hefter i: Knr:0301 Gnr:234 Bnr:93 Snr:211
Rettighet hefter i: Knr:0301 Gnr:234 Bnr:93 Snr:212
Rettighet hefter i: Knr:0301 Gnr:234 Bnr:93 Snr:213
Rettighet hefter i: Knr:0301 Gnr:234 Bnr:93 Snr:214
Rettighet hefter i: Knr:0301 Gnr:234 Bnr:93 Snr:215
Rettighet hefter i: Knr:0301 Gnr:234 Bnr:93 Snr:216
Rettighet hefter i: Knr:0301 Gnr:234 Bnr:93 Snr:217
Rettighet hefter i: Knr:0301 Gnr:234 Bnr:93 Snr:218
Rettighet hefter i: Knr:0301 Gnr:234 Bnr:93 Snr:219
Rettighet hefter i: Knr:0301 Gnr:234 Bnr:93 Snr:220
Rettighet hefter i: Knr:0301 Gnr:234 Bnr:93 Snr:221
Rettighet hefter i: Knr:0301 Gnr:234 Bnr:93 Snr:222
Rettighet hefter i: Knr:0301 Gnr:234 Bnr:93 Snr:223
Rettighet hefter i: Knr:0301 Gnr:234 Bnr:93 Snr:224
Rettighet hefter i: Knr:0301 Gnr:234 Bnr:93 Snr:225
Rettighet hefter i: Knr:0301 Gnr:234 Bnr:93 Snr:226
Rettighet hefter i: Knr:0301 Gnr:234 Bnr:93 Snr:227
Rettighet hefter i: Knr:0301 Gnr:234 Bnr:93 Snr:228
Rettighet hefter i: Knr:0301 Gnr:234 Bnr:93 Snr:229
Rettighet hefter i: Knr:0301 Gnr:234 Bnr:93 Snr:230
Rettighet hefter i: Knr:0301 Gnr:234 Bnr:93 Snr:231
Rettighet hefter i: Knr:0301 Gnr:234 Bnr:93 Snr:232
Rettighet hefter i: Knr:0301 Gnr:234 Bnr:93 Snr:233
Rettighet hefter i: Knr:0301 Gnr:234 Bnr:93 Snr:234
Rettighet hefter i: Knr:0301 Gnr:234 Bnr:93 Snr:235
Rettighet hefter i: Knr:0301 Gnr:234 Bnr:93 Snr:236
Rettighet hefter i: Knr:0301 Gnr:234 Bnr:93 Snr:237
Rettighet hefter i: Knr:0301 Gnr:234 Bnr:93 Snr:238
Rettighet hefter i: Knr:0301 Gnr:234 Bnr:93 Snr:239
Rettighet hefter i: Knr:0301 Gnr:234 Bnr:93 Snr:240
Rettighet hefter i: Knr:0301 Gnr:234 Bnr:93 Snr:241
Rettighet hefter i: Knr:0301 Gnr:234 Bnr:93 Snr:242
Rettighet hefter i: Knr:0301 Gnr:234 Bnr:93 Snr:243
Rettighet hefter i: Knr:0301 Gnr:234 Bnr:93 Snr:244
Rettighet hefter i: Knr:0301 Gnr:234 Bnr:93 Snr:245
Rettighet hefter i: Knr:0301 Gnr:234 Bnr:93 Snr:246
Rettighet hefter i: Knr:0301 Gnr:234 Bnr:93 Snr:247
Rettighet hefter i: Knr:0301 Gnr:234 Bnr:93 Snr:248
Rettighet hefter i: Knr:0301 Gnr:234 Bnr:93 Snr:249
Rettighet hefter i: Knr:0301 Gnr:234 Bnr:93 Snr:250
Rettighet hefter i: Knr:0301 Gnr:234 Bnr:93 Snr:251
Rettighet hefter i: Knr:0301 Gnr:234 Bnr:93 Snr:252
Rettighet hefter i: Knr:0301 Gnr:234 Bnr:93 Snr:253
Rettighet hefter i: Knr:0301 Gnr:234 Bnr:93 Snr:254
Rettighet hefter i: Knr:0301 Gnr:234 Bnr:93 Snr:255
Rettighet hefter i: Knr:0301 Gnr:234 Bnr:93 Snr:256
Rettighet hefter i: Knr:0301 Gnr:234 Bnr:93 Snr:257
Rettighet hefter i: Knr:0301 Gnr:234 Bnr:93 Snr:258
Rettighet hefter i: Knr:0301 Gnr:234 Bnr:93 Snr:259
Rettighet hefter i: Knr:0301 Gnr:234 Bnr:93 Snr:260
Rettighet hefter i: Knr:0301 Gnr:234 Bnr:93 Snr:261
Rettighet hefter i: Knr:0301 Gnr:234 Bnr:93 Snr:262
Rettighet hefter i: Knr:0301 Gnr:234 Bnr:93 Snr:263
Rettighet hefter i: Knr:0301 Gnr:234 Bnr:93 Snr:264
Rettighet hefter i: Knr:0301 Gnr:234 Bnr:93 Snr:265
Rettighet hefter i: Knr:0301 Gnr:234 Bnr:93 Snr:266
Rettighet hefter i: Knr:0301 Gnr:234 Bnr:93 Snr:267
Rettighet hefter i: Knr:0301 Gnr:234 Bnr:93 Snr:268
Rettighet hefter i: Knr:0301 Gnr:234 Bnr:93 Snr:269
Rettighet hefter i: Knr:0301 Gnr:234 Bnr:93 Snr:270
Rettighet hefter i: Knr:0301 Gnr:234 Bnr:93 Snr:271
Rettighet hefter i: Knr:0301 Gnr:234 Bnr:93 Snr:272
Rettighet hefter i: Knr:0301 Gnr:234 Bnr:93 Snr:273
Rettighet hefter i: Knr:0301 Gnr:234 Bnr:93 Snr:274
Adkomstrett for drift og vedlikehold av anlegg/ledninger/kabler
Gjelder denne registerenheten med flere
06.03.2023 – Dokumentnr: 242490 – Bestemmelse om adkomstrett
Rettighet hefter i: Knr:0301 Gnr:234 Bnr:152
Gjelder også fremtidige fradelte parseller fra gnr. 234 bnr 134, 60 og 119
Bestemmelse om vedlikehold
06.03.2023 – Dokumentnr: 242529 – Erklæring/avtale
Rettighet hefter i: Knr:0301 Gnr:234 Bnr:151
Rettighet hefter i: Knr:0301 Gnr:234 Bnr:152
Bestemmelse om føringer og kabler
Bestemmelse om adkomstrett for drift og vedlikehold av anlegg/ledninger
Gjelder denne registerenheten med flere
Leiligheten kan leies ut i sin helhet.
Nye leiligheter, moderne kulturbygg, luftige gaterom, varierte butikker og restauranter med uteserveringer vil forme nye Bjørvika. Når Bjørvika står helt ferdig, blir det et av Oslos mest innholdsrike nabolag. Området er i ferd med å etablere seg som Oslos nye kulturelle sentrum, og som Norges mest attraktive bolig- og næringsområde.
Beliggenheten til Vannkunsten Syd, gir deg som flytter inn nærhet til det beste byen og naturen har å by på. Korte spaserturer tar deg til Middelalderparken og Ekebergparken, og fra både Havnepromenaden, Sørenga sjøbad og Operastranda kan man ta seg et forfriskende morgen- eller kveldsbad. Nabolaget vil preges av kunst og kultur, gågater, stilren arkitektur og et rikt byliv på gateplan.
De fem punkthusene skal bygges ut i sjøen, og fjorden vil ledes inn mellom husene, slik at vannspeil, smale broer og kanaler vil gi en intim stemning og maritim opplevelse.
Rammetillatelse datert 13.01.2022, med tillatelse endring utenomhusplan og solskjerming uteservering datert 27.10.2022
Det er gitt 5 dispensasjoner fra reguleringsplanen i rammetillatelsen for Vannkunsten Syd, rammetillatelsen er vedlagt kjøpekontrakten. Det prosjekteres og bygges i henhold til Byggeteknisk forskrift TEK17. Selger har ansvaret for at det foreligger brukstillatelse på leiligheten senest ved kjøpers overtagelse av leiligheten.
Reguleringsbestemmelser og reguleringskart ligger som vedlegg til denne salgsoppgaven. Vannkunsten Syd ligger på felt B6B som er regulert til bolig, forretninger, offentlig eller privat tjenesteyting, kontor, bevertning og energianlegg. Reguleringsbestemmelser for felt B6B i Bjørvika er S-4826, vedtatt 12.11.2014, samt for gangareal mellom byggene og torg syd for Vannkunsten Syd mot felt B9 iht. S4880, vedtatt 03.02.2016. Detaljreguleringen er en del av reguleringsplan S-4099. Felt B6B består av fem punkthus, med reguleringshøyde på kote + 24.
Bebyggelse mot nord på Vannkunsten (felt B6A) er ferdig utbygget. Bebyggelse mot nordøst på Eufemias Plass (felt B7) er ferdig utbygget. Bebyggelse mot øst i Clemenskvartalet (felt B8A) er ferdig utbygget. Fremtidig bebyggelse mot sydøst på felt Mariakvartalet (B8B) har reguleringshøyde på kote +30, med en godkjent dispensasjon og økt høyde til kote + 30,7. Fremtidig bebyggelse mot syd på felt Kongsbrygga (felt B9) har reguleringshøyde på kote + 22,37. Det ersøkt dispensasjon for økt reguleringshøyde på B9 til kote +23, antall etasjer blir maks 6. På takplan vil trappe- og heishus, fellesrom stikke opp over takplan mot øst for Vannkunsten syd med maks kote 26,87. Da Kongsbrygga (felt B9) ikke er prosjektert vil det kunne bli endringer for dette feltet. Ved Munchmuseet er det regulert inn gondolbane til Ekeberg. Reguleringskart med bestemmelser finnes som vedlegg til salgsoppgaven eller hos megler.
1. januar 2016 skiftet Oslo kommune måleregler for kotehøyde. Faktisk høyde vil dermed bli +37 cm høyere enn reguleringskart datert før nevnte dato. Kotehøyder for Kongsbrygga (felt B9) i forrige avsnitt inkluderer +37 cm.
Det er eiendomsskatt på boliger og annen fast eiendom i Oslo kommune. Oslo kommune fastsetter endelige kommunale avgifter (inkl. eiendomsskatt) og det tas derfor forbehold om dette.
Formuesverdien er ikke fastsatt. Formuesverdien fastsettes av skatteetaten som tar hensyn til om boligen er en primærbolig (der boligeieren er folkeregistrert bosatt) eller sekundærbolig (alle andre boliger man måtte eie). Formuesverdien for primærboliger vil i 2024 utgjøre 25 % av den beregnede kvadratmeterprisen multiplisert med boligens areal. For sekundærboliger vil formuesverdien 2024 utgjøre 100% av den beregnede kvadratmeterprisen multiplisert med boligens areal.
Se www.skatteetaten.no for nærmere informasjon.?
1) Det forutsettes at 10 % av kjøpesummen innbetales til meglers klientkonto ved signatur av kjøpekontrakt samt Buofl. § 12 garantien er stilt. Kontantinnbetaling må være fri egenkapital.
Påløpte renter tilfaller kjøper frem til skjøte er tinglyst på kjøper, med mindre selger får disposisjonsretten over beløpet som en følge av at det stilles garanti i medhold av buofl. § 47.
2) Eventuelle endringsbestillinger betales etter nærmere avtale med selger.
3) Resterende del av kjøpesummen betales 3 dager før overtagelse.
4) Det anbefales at alle kjøpers innbetalinger betales inn fra kjøpers konto i norsk finansinstitusjon.
I tilfeller hvor kjøper er profesjonell iht. bustadoppføringslova, dvs. gjør kjøpet som ledd i næringsvirksomhet, vil selger kreve 20% innbetaling ved kontraktsignatur.
ZURICH, forsikringsbevis nr. 17602
Selgers forbehold ift bygging og gjennomføring av prosjektet er bortfalt og kjøpekontrakten er endelig.
Eiendomsmeglere er underlagt Lov om hvitvasking. I henhold til Lov av 01.06.18 nr. 23 om tiltak mot hvitvasking og terrorfinansiering (Hvitvaskingsloven), er megler pliktig til å gjennomføre identitetskontroll av alle involverte parter. Hvitvaskingsloven pålegger blant annet eiendomsmegler å innhente redegjørelse av midlenes opprinnelse. Dette besvares av samtlige kjøpere herunder parter som opptrer på vegne av kjøper, ved en såkalt kundekontroll. Ved eventuelt tilbakehold av informasjon eller mistenkelige transaksjoner, plikter eiendomsmegleren å melde fra til Økokrim. Med «mistenkelig transaksjon» menes transaksjon som mistenkes å involvere utbytte fra straffbar handling, eller som skjer som ledd i terrorfinansiering. Manglende mulighet for kundekontroll kan også være et forhold som gjør transaksjonen mistenkelig.
Selger forbeholder seg retten til å foreta kredittvurdering av kjøpere. Selger forbeholder seg også retten til å kreve dokumentasjon av kjøpers finansiering.
Det kan ikke gjøres ansvar gjeldende mot meglerforetaket som følge av at meglerforetaket overholder sine plikter etter Hvitvaskingsloven.
Kjøper kan avbestille boligen inntil overtakelse har funnet sted. Ved avbestilling kommer reglene i Bustadoppføringslova kapittel VI til anvendelse. Ved avbestilling gjelder bestemmelsene i buofl. § 53. I et slikt tilfelle skal kjøper dekke hele selgers økonomiske tap.
Enkelte tilvalg vil være tilgjengelige i en svært begrenset periode. Konferer megler for den enkelte leilighet.
Sist oppdatert: 15.11.2025
11.2.4
2. Etasje
2-roms
44 m2
9 400 000,-
11.5.2
5. Etasje
2-roms
44 m2
9 500 000,-
11.4.4
4. Etasje
2-roms
m2
9 700 000,-
11.3.1
3. Etasje
3-roms
72 m2
13 500 000,-
11.3.3
3. Etasje
3-roms
72 m2
14 000 000,-
11.4.1
4. Etasje
3-roms
72 m2
14 000 000,-
11.5.3
5. Etasje
3-roms
72 m2
15 500 000,-
14.2.1
2. Etasje
3-roms
70 m2
15 500 000,-
14.2.2
2. Etasje
3-roms
72 m2
19 500 000,-