Matrikkel
Knr. 301 Gnr. 88 Bnr. 311
Knr. 301 Gnr. 88 Bnr. 478
Østre Aker vei 90, 0596 OSLO
Meld din interesse så vil vi ta kontakt med deg og holde deg løpende orientert om prosjektet!


Knr. 301 Gnr. 88 Bnr. 311
Knr. 301 Gnr. 88 Bnr. 478
Velkommen til Linderudløkka – et nytt, levende og fremtidsrettet nabolag med rundt 950 leiligheter, like utenfor Oslo sentrum.
Her skapes et nytt nabolag, med moderne, urbane boliger omgitt av flotte uteområder i form av både gardsrom og felles takterrasser, som gjør hverdagen enkel og behagelig, både inne og ute. Du får et bredt servicetilbud, et trivelig torg, sosiale møteplasser, ny barnehage, flere kollektivforbindelser og bare 15 minutter med t-banen til Oslo S. I tillegg har du marka rett i nærheten.
For å tilrettelegge for flest mulig, kommer det moderne og urbane boliger i ulike størrelser og prisklasser. Mange av leilighetene er tilpasset førstegangskjøpere, med arealeffektive 1-roms fra 30 kvm og smarte 2-roms på 35 til 42 kvm, samt kompakte 3-roms leiligheter på ca 55 kvm for de som ønsker å gå sammen om å kjøpe sin første leilighet. Det blir også et bredt utvalg av familievennlige 4-roms leiligheter, fra arealeffektive på 75 kvm til romslige på opptil 100 kvm. Mange leiligheter på bakkeplan får store markterrasser – perfekt for barnefamilier. I tillegg kommer det leiligheter med mulighet for utleiedel og flotte toppleiligheter med private takterrasser.
Perfekt for deg som bor i Oslo sentrum, men som drømmer om litt mer plass, uten å gi slipp på godt servicetilbud og nærhet til byen. Linderudløkka heier på mangfoldet, og skal tilrettelegge for et varmt og inkluderende nabolag for alle.
Linderud er et sjarmerende område i bydel Bjerke, nederst i Groruddalen, nordøst i Oslo. Området har en rik historie med Linderud gård, som stammer helt tilbake til middelalderen. Gården, som var kirkegods og krongods fra rundt 1100 til 1671, har vært en sentral del av områdets utvikling. I dag fungerer den som et museum med en vakker park åpen for publikum, der deler av det opprinnelige landskapet fortsatt er bevart. Linderud balanserer historie og modernitet på en unik måte. Dette levende nabolaget byr på en blanding av eldre og nye boliger, frodige grøntområder og sosiale møteplasser. Her finner du alt du trenger i hverdagen – nærhet til marka, skoler, butikker og effektive kollektivforbindelser som tar deg raskt til Oslo sentrum.
Med sin unike kombinasjon av urbanitet og historie, tiltrekker Linderud og bydel Bjerke seg både unge og familier som ønsker en balansert livsstil, der byliv og naturopplevelser møtes.
Prosjektutvikler er den anerkjente utbyggeren Stor-Oslo Eiendom AS.
Østre Akervei 90, 0596 OSLO
Knr. 301 Gnr. 88 Bnr. 311
Knr. 301 Gnr. 88 Bnr. 484
Knr. 301 Gnr. 88 Bnr. 481
Linderudløkka AS
Linderudløkka AS
Det vil etableres et felles garasjeanlegg med felles nedkjøring for hele Linderudløkka. Utbyggingen vil pågå suksessivt og parallelt med utbyggingen av de øvrige utbyggingsfeltene. I forbindelse med utbygging av Løkkaparken så vil det bli etablert en midlertidig nedkjøring frem til permanent løsning er på plass. Det må påregnes endret nedkjøring og endret kjøremønster underveis i utbyggingen.
Det etableres ca. 100 parkeringsplasser totalt for bolig ifm utbygging av Løkkaparken. Endelig antall og fordeling avklareres i detaljprosjektering. For enkelte må det påregnes midlertidig parkering i en periode frem til hele Løkkaparken er utbygget. Midlertidig parkering vil tilbys på området tilknyttet Linderudløkka og utendørs parkering må påregnes i denne perioden.
Parkeringsplassene vil dimensjoneres iht Boligprodusentenes bransjenorm fra 2024.
Kjøpere med spesielle behov hva angår parkering oppfordres til å ta dette opp med selger før kjøpstilbud inngis. Alle parkeringsplasser forberedes for elbillader. Elbilladere kan bestilles i tilvalgsprosessen.
Det vil etableres to fellesrom som kan bookes av samtlige beboere tilknyttet Linderudløkka. Fellesrommene er plassert på bakkeplan i B1 og B2 med egne inngangsdører i fasade. Rommene kan åpnes eller lukkes ved hjelp av en foldevegg slik at det kan arrangere større eller mindre sammenkomster etter ønske. Hvert lokale vil ha tilgang på kjøkken og toalett.
Fellesrom vil få normalt god kvalitet. Gulvbelegg, malte vegger og systemhimling. Enhetlig belysning/downlights i himling. Det leveres et kjøkken med integrert oppvaskmaskin, vask, og kjøleskap. Selger forbeholder seg her spesielt retten til å bestemme endelig utforming og materialvalg.
Alle leilighetene har bodareal iht. teknisk forskrift (2,5 kvm for leiligheter under 50 kvm og 5 kvm for leiligheter over 50 kvm). Bodeareal kan være integrert i leiligheten, i kjelleren, eller en kombinasjon.
Enkelte leiligheter vil ha mulighet for å etablere deler av leiligheten som hybel ifm tilvalgsprosessen. Ta kontakt med megler for nærmere detaljer.
Det vises til romskjema for beskrivelse av kjøkkeninnredning og flere detaljer. Det utarbeides egen kjøkkentegning i forbindelse med tilvalgsprosessen.
Det vises til romskjema for beskrivelse av baderomsinnredning, og flere detaljer.
Bad vil bli levert som prefabrikkerte baderomskabiner/-moduler med hvit metallhimling med v-fug avhengig av leverandør. Enkelte bad leveres med utenpåliggende/innkasset sisterne. De leiligheter dette gjelder fremgår av salgstegninger. Fordelerskap plasseres i tak og/ eller på vegg.
Det leveres ikke garderobeskap, men dette kan bestilles i tilvalgsprosessen.
Bygningene utføres med bærekonstruksjon i betong og stål.
Bygningenes fasadevegger utføres som isolerte stendervegger, alternativt levert som prefabrikkerte elementer.
Yttertak utføres i betong/-elementer, belagt med isolasjon og takpapp, tredekke eller sedumtak.
Balkonger utføres med dekker i betong og/eller stål. Balkongrekkverk blir enten med stålspiler eller tett, eller en kombinasjon av tett og spiler. Det vises til salgstegninger for plassering av balkonger. Det vil bli montert glassfront på enkelte balkonger og vinduer for å ivareta lydkrav. De aktuelle glassfeltene er vist på salgstegninger og kontraktstegninger.
For leiligheter med privat takterrasse vil det bli levert dekker i betong og/ eller stål med tremmegulv. Balkongrekkverk blir enten med stålspiler eller tett, eller en kombinasjon av tett og spiler. Det vises til salgstegninger for plassering av private takterrasser.
Det leveres balansert ventilasjon med varmegjenvinning med avtrekk fra våtrom og kjøkken. Hver bolig får eget ventilasjonsaggregat, som fortrinnsvis blir plassert over himling i bod eller entre. Det vil være en synlig luke i himling til aggregatet. Det er ikke kjøling eller mulighet for kjøling i leilighetene.
Dersom kjøper setter inn tørketrommel må det benyttes kondenstørketrommel.
Varmtvann til leilighetene leveres fra felles anlegg.
Brannsluknings- og brannalarmutstyr leveres i henhold til forskrifter. Bygget blir sprinklet og det vil bli synlige sprinklerhoder. Sprinkler plasseres i himling og/eller vegg. Overbygde balkonger sprinkles iht. forskriftskrav.
Det monteres ringetablå ved hovedinngangsdør med videokamera som kan svares via app på smarttelefon.
Selger vil på vegne av sameiet besørge og forplikte sameiet med avtale for tilkobling til internett og TV leverandør. Installasjonen vil være klar til innflytting. Kostnadene kommer i tillegg til de stipulerte felleskostnadene for sameiet. Se romskjema for beskrivelse av kommunikasjon for kabel-TV og internett.
Leilighetene oppvarmes med fjernvarme via radiatorer på vegg. Det leveres gulvvarme på bad. På soverom leveres ikke radiator, men stikkontakt slik at det er mulig å montere egen panelovn. Forbruk av varmt tappevann og varme måles etter arealbrøk. Kostnaden kommer i tillegg til sameiets stipulerte fellesutgifter.
På eiendommen er det tinglyst følgende heftelser og rettigheter som følger eiendommens matrikkel ved overskjøting til ny hjemmelshaver:
301/88/311:
04.07.2025 – Dokumentnr: 777068 – Registerenheten kan ikke disponeres over uten samtykke fra rettighetshaver
Rettighetshaver: Røisland & Co Eiendomsmegling AS
Org.nr: 994 194 410
Elektronisk innsendt
22.03.2013 – Dokumentnr: 241899 – Best. om adkomstrett
Rettighetshaver: Knr:0301 Gnr:88 Bnr:481
Rettighetshaver: Knr:0301 Gnr:88 Bnr:482
Sletting eller endring kan ikke skje uten samtykke fra Oslo kommune
Gjelder denne registerenheten med flere
10.02.2014 – Dokumentnr: 114699 – Best. om adkomstrett
Gnr. 88 bnr. 311, 478, 481, 482 og 484 skal ha gjensidig rett til adkomst til eiendommene for reparasjon og vedlikehold
Gjelder denne registerenheten med flere
10.02.2014 – Dokumentnr: 114699 – Best. om vann/kloakkledn.
Gnr. 88 bnr. 311, 478, 481, 482 og 484 skal ha gjensidig rett til å ha liggende stikkledninger for vann og avløp fram til hovedledninger
Gjelder denne registerenheten med flere
10.02.2014 – Dokumentnr: 114699 – Erklæring/avtale
Gnr. 88 bnr. 311, 478, 481, 482 og 484 skal ha gjensidig rett til å etablere/ha nødvendige installasjoner for teknisk infrastruktur
Gjelder denne registerenheten med flere
10.02.2014 – Dokumentnr: 114699 – Erklæring/avtale
Gnr. 88 bnr. 311, 478, 481, 482 og 484 skal gjensidig rett til bruk av fellesarealene
Gjelder denne registerenheten med flere
26.02.2014 – Dokumentnr: 164080 – Erklæring/avtale
Rettighetshaver: Siemens Energy AS
Org.nr: 915 826 946
Førsterett til leie av lokaler
Gjelder denne registerenheten med flere
23.06.2023 – Dokumentnr: 664827 – Bestemmelse om adkomstrett
Rettighetshaver: Knr:0301 Gnr:88 Bnr:489
Rettighetshaver: Knr:0301 Gnr:88 Bnr:490
Kan ikke slettes uten samtykke fra: Oslo Kommune
Org.nr: 958 935 420
Overført fra: Knr:0301 Gnr:88 Bnr:478
18.10.2023 – Dokumentnr: 1155732 – Erklæring/avtale
Kan ikke slettes uten samtykke fra: Oslo Kommune
Org.nr: 958 935 420
Rettighetshaver allmennheten
Bestemmelse om ferdsel/opphold
Gjelder denne registerenheten med flere
22.03.2013 – Dokumentnr: 241899 – Best. om adkomstrett
Rettighet hefter i: Knr:0301 Gnr:88 Bnr:481
Sletting eller endring kan ikke skje uten samtykke fra Oslo kommune
22.03.2013 – Dokumentnr: 241899 – Best. om adkomstrett
Rettighet hefter i: Knr:0301 Gnr:88 Bnr:482
Sletting eller endring kan ikke skje uten samtykke fra Oslo kommune
22.03.2013 – Dokumentnr: 241899 – Best. om adkomstrett
Rettighetshaver: Knr:0301 Gnr:88 Bnr:311
Rettighetshaver: Knr:0301 Gnr:88 Bnr:481
Rettighetshaver: Knr:0301 Gnr:88 Bnr:482
Sletting eller endring kan ikke skje uten samtykke fra Oslo kommune
Overført fra: Knr:0301 Gnr:88 Bnr:478
22.03.2013 – Dokumentnr: 241899 – Bestemmelse om parkering
Rettighetshaver: Knr:0301 Gnr:88 Bnr:311
Midlertidig bruksrett til 300 plasser til biloppstilling frem til parkeringskjeller på gnr. 88 bnr. 478 er etablert
Sletting eller endring kan ikke skje uten samtykke fra Oslo kommune
Overført fra: Knr:0301 Gnr:88 Bnr:478
22.03.2013 – Dokumentnr: 241899 – Bestemmelse om parkering
Rettighetshaver: Knr:0301 Gnr:88 Bnr:311
Bruksrett til 647 plasser til biloppstilling/garasje
Sletting eller endring kan ikke skje uten samtykke fra Oslo kommune
Overført fra: Knr:0301 Gnr:88 Bnr:478
08.06.1982 – Dokumentnr: 15124 – Erklæring/avtale
BRUKSRETT OG / ELLER DISPOSISJONSRETT
TIL 40 TILFLUKTSROMSPLASSER
RETTIGHETSHAVER:
VEITVEDT SPORTSKLUBB
Overført fra: Knr:0301 Gnr:88 Bnr:478
Gjelder denne registerenheten med flere
13.02.2024 – Dokumentnr: 1092404 – Bestemmelse om vann/kloakk
Rettighetshaver: Oslo Kommune
Org.nr: 958 935 420
Bestemmelse om vedlikehold av anlegg/ledninger
Adkomstrett for drift og vedlikehold av anlegg/ledninger/kabler
Bestemmelse om endring i terrenget i nærheten av anlegg/ledninger/kabler
Bestemmelse om bebyggelse i nærheten av anlegg/ledninger/kabler
Overført fra: Knr:0301 Gnr:88 Bnr:478
21.05.2007 – Dokumentnr: 408705 – Registrering av grunn
Denne matrikkelenhet opprettet fra:
Knr:0301 Gnr:88 Bnr:247
13.10.1967 – Dokumentnr: 13973 – Erklæring/avtale
Vedtak av visse vilkår vedr. utskillelse/bebyggelse
av denne eiendom
Gjelder denne registerenheten med flere
26.02.1968 – Dokumentnr: 2683 – Erklæring/avtale
Vedtak av Oslo kommunes vann- og kloakkreglement
Kan ikke slettes uten samtykke fra kommunen
Gjelder denne registerenheten med flere
19.09.1968 – Dokumentnr: 13771 – Erklæring/avtale
Bestemmelse om trafostasjon/kiosk
Med flere bestemmelser
Gjelder denne registerenheten med flere
08.06.1982 – Dokumentnr: 15124 – Erklæring/avtale
BRUKSRETT OG / ELLER DISPOSISJONSRETT
TIL 40 TILFLUKTSROMSPLASSER
RETTIGHETSHAVER:
VEITVEDT SPORTSKLUBB
Overført fra: Knr:0301 Gnr:88 Bnr:478
Gjelder denne registerenheten med flere
20.02.1989 – Dokumentnr: 10746 – Best. om adkomstrett
Rett for kommunen til å anlegge og vedlikeholde ledninger m.m.
Gjelder denne registerenheten med flere
13.10.2010 – Dokumentnr: 785470 – Erklæring/avtale
Erklæring om frafall av innløsningsrett/krav om samtykke
Med flere bestemmelser
Gjelder denne registerenheten med flere
22.03.2013 – Dokumentnr: 241899 – Best. om adkomstrett
Rettighetshaver: Knr:0301 Gnr:88 Bnr:481
Rettighetshaver: Knr:0301 Gnr:88 Bnr:482
Sletting eller endring kan ikke skje uten samtykke fra Oslo kommune
Gjelder denne registerenheten med flere
22.03.2013 – Dokumentnr: 241899 – Best. om adkomstrett
Rettighetshaver: Knr:0301 Gnr:88 Bnr:311
Rettighetshaver: Knr:0301 Gnr:88 Bnr:481
Rettighetshaver: Knr:0301 Gnr:88 Bnr:482
Sletting eller endring kan ikke skje uten samtykke fra Oslo kommune
Overført fra: Knr:0301 Gnr:88 Bnr:478
22.03.2013 – Dokumentnr: 241899 – Bestemmelse om parkering
Rettighetshaver: Knr:0301 Gnr:88 Bnr:311
Midlertidig bruksrett til 300 plasser til biloppstilling frem til parkeringskjeller på gnr. 88 bnr. 478 er etablert
Sletting eller endring kan ikke skje uten samtykke fra Oslo kommune
Overført fra: Knr:0301 Gnr:88 Bnr:478
22.03.2013 – Dokumentnr: 241899 – Bestemmelse om parkering
Rettighetshaver: Knr:0301 Gnr:88 Bnr:311
Bruksrett til 647 plasser til biloppstilling/garasje
Sletting eller endring kan ikke skje uten samtykke fra Oslo kommune
Overført fra: Knr:0301 Gnr:88 Bnr:478
22.03.2013 – Dokumentnr: 241899 – Bruksrett
Rettighetshaver: Knr:0301 Gnr:88 Bnr:482
Rett til bruk av nødvendig grunn for reparasjon og vedlikehold av bygning
Sletting eller endring kan ikke skje uten samtykke fra Oslo kommune
Gjelder denne registerenheten med flere
10.02.2014 – Dokumentnr: 114636 – Bestemmelse om parkering
Rettighetshaver: Knr:0301 Gnr:88 Bnr:482
Gjelder sykkelparkering for inntil 40 sykler
Gjelder denne registerenheten med flere
10.02.2014 – Dokumentnr: 114699 – Best. om adkomstrett
Gnr. 88 bnr. 311, 478, 481, 482 og 484 skal ha gjensidig rett til adkomst til eiendommene for reparasjon og vedlikehold
Gjelder denne registerenheten med flere
10.02.2014 – Dokumentnr: 114699 – Best. om vann/kloakkledn.
Gnr. 88 bnr. 311, 478, 481, 482 og 484 skal ha gjensidig rett til å ha liggende stikkledninger for vann og avløp fram til hovedledninger
Gjelder denne registerenheten med flere
10.02.2014 – Dokumentnr: 114699 – Erklæring/avtale
Gnr. 88 bnr. 311, 478, 481, 482 og 484 skal ha gjensidig rett til å etablere/ha nødvendige installasjoner for teknisk infrastruktur
Gjelder denne registerenheten med flere
10.02.2014 – Dokumentnr: 114699 – Erklæring/avtale
Gnr. 88 bnr. 311, 478, 481, 482 og 484 skal gjensidig rett til bruk av fellesarealene
Gjelder denne registerenheten med flere
26.02.2014 – Dokumentnr: 164080 – Erklæring/avtale
Rettighetshaver: Siemens Energy AS
Org.nr: 915 826 946
Førsterett til leie av lokaler
Gjelder denne registerenheten med flere
26.02.2014 – Dokumentnr: 164080 – Erklæring/avtale
Rettighetshaver: Siemens Energy AS
Org.nr: 915 826 946
Førsterett til leie av lokaler
Overført fra: Knr:0301 Gnr:88 Bnr:478
23.06.2023 – Dokumentnr: 664827 – Bestemmelse om adkomstrett
Rettighetshaver: Knr:0301 Gnr:88 Bnr:489
Rettighetshaver: Knr:0301 Gnr:88 Bnr:490
Kan ikke slettes uten samtykke fra: Oslo Kommune
Org.nr: 958 935 420
Overført fra: Knr:0301 Gnr:88 Bnr:478
23.06.2023 – Dokumentnr: 664827 – Bestemmelse om adkomstrett
Rettighetshaver: Knr:0301 Gnr:88 Bnr:490
Kan ikke slettes uten samtykke fra: Oslo Kommune
Org.nr: 958 935 420
Bestemmelse om snuplass
23.06.2023 – Dokumentnr: 664827 – Bestemmelse om parkering
Rettighetshaver: Knr:0301 Gnr:88 Bnr:489
Rettighetshaver: Knr:0301 Gnr:88 Bnr:490
Kan ikke slettes uten samtykke fra: Oslo Kommune
Org.nr: 958 935 420
23.06.2023 – Dokumentnr: 664827 – Erklæring/avtale
Rettighetshaver: Knr:0301 Gnr:88 Bnr:489
Kan ikke slettes uten samtykke fra: Oslo Kommune
Org.nr: 958 935 420
Bestemmelse om sykkelparkering
Gjelder denne registerenheten med flere
23.06.2023 – Dokumentnr: 664827 – Erklæring/avtale
Rettighetshaver: Knr:0301 Gnr:88 Bnr:489
Rettighetshaver: Knr:0301 Gnr:88 Bnr:490
Kan ikke slettes uten samtykke fra: Oslo Kommune
Org.nr: 958 935 420
Bestemmelse om vedlikehold av anlegg/ledninger
23.06.2023 – Dokumentnr: 664827 – Bestemmelse om vann/kloakk
Rettighetshaver: Knr:0301 Gnr:88 Bnr:489
Rettighetshaver: Knr:0301 Gnr:88 Bnr:490
Kan ikke slettes uten samtykke fra: Oslo Kommune
Org.nr: 958 935 420
Bestemmelse om vedlikehold av anlegg/ledninger
18.10.2023 – Dokumentnr: 1155732 – Erklæring/avtale
Kan ikke slettes uten samtykke fra: Oslo Kommune
Org.nr: 958 935 420
Rettighetshaver allmennheten
Bestemmelse om ferdsel/opphold
Gjelder denne registerenheten med flere
13.02.2024 – Dokumentnr: 1092404 – Bestemmelse om vann/kloakk
Rettighetshaver: Oslo Kommune
Org.nr: 958 935 420
Bestemmelse om vedlikehold av anlegg/ledninger
Adkomstrett for drift og vedlikehold av anlegg/ledninger/kabler
Bestemmelse om endring i terrenget i nærheten av anlegg/ledninger/kabler
Bestemmelse om bebyggelse i nærheten av anlegg/ledninger/kabler
Overført fra: Knr:0301 Gnr:88 Bnr:478
04.07.2025 – Dokumentnr: 777068 – Registerenheten kan ikke disponeres over uten samtykke fra rettighetshaver
Rettighetshaver: Røisland & Co Eiendomsmegling AS
Org.nr: 994 194 410
Elektronisk innsendt
09.01.1967 – Dokumentnr: 344 – Registrering av grunn
Denne matrikkelenhet opprettet fra:
Knr:0301 Gnr:88 Bnr:247
27.05.1968 – Dokumentnr: 990149 – Sammenslått med denne matrikkelenhet:
GNR 88 BNR 312
12.03.1970 – Dokumentnr: 928114 – Sammenslått med denne matrikkelenhet:
GNR 88 BNR 320 OG 380
22.03.2013 – Dokumentnr: 241890 – Registrering av grunn
Utskilt fra denne matrikkelenhet:
Knr:0301 Gnr:88 Bnr:481
22.03.2013 – Dokumentnr: 241895 – Registrering av grunn
Utskilt fra denne matrikkelenhet:
Knr:0301 Gnr:88 Bnr:482
23.06.2023 – Dokumentnr: 664780 – Registrering av grunn
Utskilt fra denne matrikkelenhet:
Knr:0301 Gnr:88 Bnr:489
23.06.2023 – Dokumentnr: 664793 – Registrering av grunn
Utskilt fra denne matrikkelenhet:
Knr:0301 Gnr:88 Bnr:490
11.08.2025 – Dokumentnr: 930041 – Sammenslåing
Sammenslått med denne matrikkelenhet:
Knr:0301 Gnr:88 Bnr:478
22.03.2013 – Dokumentnr: 241899 – Best. om adkomstrett
Rettighet hefter i: Knr:0301 Gnr:88 Bnr:481
Sletting eller endring kan ikke skje uten samtykke fra Oslo kommune
22.03.2013 – Dokumentnr: 241899 – Best. om adkomstrett
Rettighet hefter i: Knr:0301 Gnr:88 Bnr:482
Sletting eller endring kan ikke skje uten samtykke fra Oslo kommune
22.03.2013 – Dokumentnr: 241899 – Best. om adkomstrett
Rettighet hefter i: Knr:0301 Gnr:88 Bnr:311
Sletting eller endring kan ikke skje uten samtykke fra Oslo kommune
Overført fra: Knr:0301 Gnr:88 Bnr:478
22.03.2013 – Dokumentnr: 241899 – Bestemmelse om parkering
Rettighet hefter i: Knr:0301 Gnr:88 Bnr:482
Bruksrett til 23 bilplasser i garasjeanlegg
Sletting eller endring kan ikke skje uten samtykke fra Oslo kommune
22.03.2013 – Dokumentnr: 241899 – Bestemmelse om parkering
Rettighet hefter i: Knr:0301 Gnr:88 Bnr:481
Midlertidig bruksrett til 140 plasser til biloppstilling frem til parkeringskjeller på gnr. 88 bnr. 478 er etablert
Sletting eller endring kan ikke skje uten samtykke fra Oslo kommune
22.03.2013 – Dokumentnr: 241899 – Bestemmelse om parkering
Rettighet hefter i: Knr:0301 Gnr:88 Bnr:311
Midlertidig bruksrett til 300 plasser til biloppstilling frem til parkeringskjeller på gnr. 88 bnr. 478 er etablert
Sletting eller endring kan ikke skje uten samtykke fra Oslo kommune
Overført fra: Knr:0301 Gnr:88 Bnr:478
22.03.2013 – Dokumentnr: 241899 – Bestemmelse om parkering
Rettighet hefter i: Knr:0301 Gnr:88 Bnr:481
Bruksrett til 122 plasser til biloppstilling/garasje
Sletting eller endring kan ikke skje uten samtykke fra Oslo kommune
22.03.2013 – Dokumentnr: 241899 – Bestemmelse om parkering
Rettighet hefter i: Knr:0301 Gnr:88 Bnr:311
Bruksrett til 647 plasser til biloppstilling/garasje
Sletting eller endring kan ikke skje uten samtykke fra Oslo kommune
Overført fra: Knr:0301 Gnr:88 Bnr:478
10.02.2014 – Dokumentnr: 114636 – Erklæring/avtale
Rettighet hefter i: Knr:0301 Gnr:88 Bnr:482
Bestemmelse om vedlikehold i forbindelse med sykkelparkering
23.06.2023 – Dokumentnr: 664827 – Bestemmelse om vann/kloakk
Rettighet hefter i: Knr:0301 Gnr:88 Bnr:489
Kan ikke slettes uten samtykke fra: Oslo Kommune
Org.nr: 958 935 420
Bestemmelse om vedlikehold av anlegg/ledninger
23.06.2023 – Dokumentnr: 664827 – Bestemmelse om vann/kloakk
Rettighet hefter i: Knr:0301 Gnr:88 Bnr:490
Kan ikke slettes uten samtykke fra: Oslo Kommune
Org.nr: 958 935 420
Bestemmelse om vedlikehold av anlegg/ledninger
Etter pålegg fra Finanstilsynet rettet mot samtlige meglerforetak (ref. rundskriv 21 / 2011) informeres ved dette om at det per dato for overtakelse av den enkelte boligseksjon ikke vil foreligge ferdigattest, samt at ferdigattest først vil foreligge lang tid etter overtakelse. Bakgrunnen er at deler av de arbeider som er påkrevet for å få ferdigattest ikke vil være ferdig per dato for overtakelse av den enkelte boligseksjon.
Det presiseres at fremstillingen over ikke har noen innvirkning på selgers forpliktelse til å fremskaffe ferdigattest eller konsekvensene av at ferdigattest ikke foreligger pr. overtakelse.
Kjøper oppfordres til å kontakte megler dersom det skulle foreligge spørsmål til ovennevnte.
Leiligheten kan leies ut i sin helhet.
Det etableres et åpent gårdsrom med gangveier med belysning, lekeplass, grillområde, m.m. Det vil bli beplanting og opparbeidet grøntarealer. Uteområde vil være offentlig tilgjengelig. Tekniske installasjoner vil forekomme. Det vil etableres 3stk felles takterrasser med beplantning, pergola og møblering. Det leveres et vannuttak per takterrasse.
Sør for Løkkaparken vil det etableres et privat torg som vil være offentlig tilgjengelig. Det er kun halve torget som bygges ifm Løkkaparken og resterende Torg vil etableres suksessivt med videre utbygging. Torget vil bestå av gangveier med belysning, lekeplass og sitteområder, m.m.
Selger forbeholder seg retten til å bestemme endelig utforming og materialvalg.
Det tas et forbehold om at utomhusarealer ikke er ferdig opparbeidet ved overlevering av boligene.
Offentlig tilknyttet.
Løkkaparken (felt E) har en kvartalsstruktur hvor høydene varierer fra kote + 152 til + 159. Felt F er planlagt som neste utbygningsfelt og har maks kote høyde mot Løkkaparken på +154,5. Nord for felt E ligger eksisterende bebyggelse med grøntdrag mellom. Langs grøntdraget er det regulert kraftlinje, som iht. rekkefølgebestemmelsene skal nedlegges i grunnen. Utbygger har påklaget dette vedtaket og endelig konklusjon foreligger derfor ikke ved signatur av kjøpekontrakten. Deler av torget mot syd vil bli opparbeidet i forbindelse med ferdigstillelse av første byggetrinn. Se utomhusplan for ytterligere informasjon. Felt D som utgjør et senere byggetrinn vil utgjøre et kvartal med kotehøyder mellom +152 til +156. For ytterligere informasjon om regulering, se reguleringskart eller kontakt megler.
Det er eiendomsskatt på boliger og annen fast eiendom i Oslo kommune. Skattesatsen er: 2,35 promille for boliger og fritidsboliger. Bunnfradraget for 2025 er på inntil 4,7 millioner kroner.
Formuesverdien er ikke fastsatt, men fastsettes av Skatteetaten etter en beregningsmodell som hensyntar om boligen er «primærbolig»; (der eier er bosatt iht. Folkeregisteret) eller «sekundærbolig»; (andre boliger man eier). For primærbolig er formuesverdien 25 % av markedsverdien opp til kr. 10 000 000 og deretter 70 % av den overskytende markedsverdien, og 100 % for sekundærboliger. Det gjøres oppmerksom på at kjøper selv må sende inn opplysninger om adresse, areal, boligtype og byggeår til skattemyndighetene.
Det tas forbehold om endring av satser, og henvises til Skatteetatens websider dersom ytterligere informasjon er ønskelig.
I tillegg til kjøpesummen må kjøper betale:
1: Dokumentavgift til staten, 2,5% av andel tomteverdi: Kr. 22 070,-
2: Tinglysningsgebyr skjøte: Kr. 545,-
3: Tinglysningsgebyr pantedokument: Kr. 545,-
Totale omkostninger: Kr. 23 160,-
1) Det forutsettes at avtalt forskudd innbetales til meglers klientkonto ved signatur av kjøpekontrakt, samt at Buofl. § 12 garantien er stilt. Kontantinnbetaling må være fri egenkapital.
Påløpte renter tilfaller kjøper frem til skjøte er tinglyst på kjøper, med mindre selger får disposisjonsretten over beløpet som en følge av at det stilles garanti i medhold av buofl. § 47.
2) Eventuelle endringsbestillinger betales etter nærmere avtale med selger.
3) Resterende del av kjøpesummen betales 3 dager før overtagelse.
4) Det anbefales at alle kjøpers innbetalinger betales inn fra kjøpers konto i norsk finansinstitusjon.
For forbrukerkjøpere, som kjøper leilighet ved salgsstart med budfrist, gjelder følgende forskuddsbeløp for de ulike leilighetskategoriene:
1-roms kr. 150 000,-
2-roms kr. 150 000,-
3-roms kr. 250 000,-
4-roms kr. 350 000,-
For kjøp etter salgsstart skal det innbetales forskudd på 10% av kjøpesum.
I tilfeller hvor kjøper er profesjonell iht. bustadoppføringslova, dvs. gjør kjøpet som ledd i næringsvirksomhet, vil selger kreve 20% innbetaling ved kontraktsignatur.
Selger tar følgende forbehold for gjennomføring av kjøpekontrakten:
Selger er ikke bundet av kjøpekontrakten dersom ikke
1. 60% av Løkkaparkens salgsverdi iht. prisliste er solgt.
2. Nødvendige offentlige tillatelser for igangsetting av byggingsarbeidene er gitt.
3. Styret i utbyggerselskapet vedtar byggestart.
Dersom disse forbeholdene ikke er avklart innen 01.07.2026 har partene rett til å kansellere kjøpekontrakten. Kjøper har i en slik situasjon rett til å få innbetalt beløp samt opptjente renter på klientkonto tilbakebetalt dersom opptjente renter er over ½ rettsgebyr. Ut over dette har Selger intet ansvar overfor Kjøper.
Ved enighet mellom partene kan fristene forlenges. Kjøpekontraktens betingelser for øvrig er i et slikt tilfelle de samme.
Selger forbeholder seg retten til å selge deler av prosjektet/enkelte oppganger, blir et slikt salg gjennomført vil det bli eget/egne sameie/r med mulige sambruksarealer mellom sameiene. Dersom et slikt salg gjennomføres vil deler av det som er rammesøkt kunne endre karakter. Selger forbeholder seg retten til å etablere ett eller flere borettslag innen i sameiet, samt selge ut enkelte leiligheter gjennom et eget AS.
Det tas også forbehold om at hele eller deler av kjellereiendommen, gårdsrom, adkomstveier, ledninger mv. vil kunne bli etablert som en egen matrikkelenhet, og at sameiets/den enkelte seksjonseiers rettigheter og plikter mht. bruk og vedlikehold av slike arealer vil fremkomme gjennom tinglyste erklæringer, etablering av realsameier, velforeninger eller annen hensiktsmessig organisering.
Innenfor det enkelte eierseksjonssameiet vil deler av fellesarealet være forbeholdt henholdsvis boligseksjonene og næringsseksjonene, hvilket i tilfelle vil beskrives nærmere i eierseksjonssameiets vedtekter.
Selger forbeholder seg retten til å legge deler av utomhusarealet på bakkeplan i tilknytning til næringsarealer som tilleggsdel for uteservering.
Kjøper aksepterer ved signering av kjøpekontrakt at selger fritt kan transportere kjøpekontrakten og eventuelle senere avtaler til annet selskap i selgers konsern.
Det tas forbehold om at seksjoneringen kan bli forsinket på grunn av offentlige myndigheters saksbehandlingstid. Såfremt tomtearronderingen og seksjoneringen av eiendommen ikke er gjennomført ved overtakelse, vil overskjøting til kjøper skje så snart det praktisk lar seg gjennomføre.
Det tas forbehold om eventuelle feil i salgsoppgaven.
Tegninger og bilder i markedsføringsmateriell er kun illustrasjoner og kan avvike noe i forhold til plan – og fasadetegninger som vedlegges. Selger leverer ikke; innredninger, lamper, øvrig belysningsutstyr, markiser / solavskjerming, tepper, møbler og annet tilbehør, med mindre det fremgår av leveransebeskrivelse samt kontraktstegninger. 3D-modellen er basert på skisser og regulert volum og kun ment som en illustrasjon. Endringer vil skje.
Selger vil benytte egen standard kjøpekontrakt for alle salg i prosjektet. Det forutsettes at bud er lagt inn på grunnlag av denne kjøpekontrakten og en eventuell aksept av bud fra selger gis under samme forutsetning. Standard kjøpekontrakt følger som vedlegg til denne salgsoppgave.
Selger vil benytte egen standard kjøpekontrakt for alle salg i prosjektet. Det forutsettes at bud er lagt inn på grunnlag av denne kjøpekontrakten og en eventuell aksept av bud fra selger gis under samme forutsetning. Standard kjøpekontrakt følger som vedlegg til denne salgsoppgave.
Alle som skal stå som eiere iht. kontrakt må være registrert som budgiver og signere bud elektronisk med BankID. Endring av eierskap fra kjøpers side etter budaksept krever transport og vil medføre en transportkostnad på kr. 25 000,- inkl. mva. til megler. Ved hjemmelsendring til nærstående vil det påløpe et honorar på kr. 25 000,- inkl. mva. til megler som innbetales i forbindelse med endringen.
Kjøpet følger bustadoppføringslova av 13. juni 1997 nr. 43. Loven regulerer forhold hvor selger er profesjonell, og kjøper er forbruker. Iht. loven plikter selger å stille garanti som sikkerhet for oppfyllelse av sine forpliktelser etter kjøpekontrakt senest ved forbehold frafalt. Garantien utgjør 3 % av kjøpesum frem til overtakelse. Beløpet økes til 5 % av kjøpesum og står 5 -fem-år etter overtakelsen jf. buofl. § 12, 3 ledd. Loven kan i sin helhet fås ved henvendelse til megler. Loven finner du også på www.lovdata.no.
I tilfeller hvor kjøper er profesjonell iht. bustadoppføringslova, dvs. gjør kjøpet som ledd i næringsvirksomhet, vil selger kreve at avtalen reguleres av Lov om avhending av fast eiendom av 3. juli 1992 nr. 93 (avhendingslova).
Eiendomsmeglere er underlagt Lov om hvitvasking. I henhold til Lov av 01.06.18 nr. 23 om tiltak mot hvitvasking og terrorfinansiering (Hvitvaskingsloven), er megler pliktig til å gjennomføre identitetskontroll av alle involverte parter, herunder fullmektiger. Dette innebærer bl.a. å bekrefte kunders og reelle rettighetshaveres identitet på bakgrunn av fremvist gyldig legitimasjon eller på annen godkjent måte, samt å innhente opplysninger om kundeforholdets formål og tilsiktede art. Dersom slike kundetiltak ikke kan gjennomføres, kan megler ikke etablere kundeforholdet eller utføre transaksjonen. Hvitvaskingsloven pålegger også eiendomsmegler å innhente redegjørelse av midlenes opprinnelse. Dette besvares av samtlige kjøpere herunder parter som opptrer på vegne av kjøper, ved en såkalt kundekontroll.
Hvis kjøper ikke bidrar til gjennomføring av kundekontrollen og dette fører til at transaksjonen blir forsinket eller ikke kan gjennomføres, vil dette ansees som mislighold av avtalen og gi selger rettigheter etter avhendingslova eller bustadoppføringsloven kapittel 5. I tilfeller der selger ikke bidrar til gjennomføring av løpende kundekontroll underveis i oppdraget, er det selger som misligholder sine forpliktelser etter avtalen og gi kjøper rettigheter etter avhendingslovens eller bustadoppføringsloven kapittel 4. Partene er selv ansvarlige for eventuelle kostnader og ansvar dette kan medføre. Eiendomsmegleren eller eiendomsmeglingsforetaket kan ikke holdes ansvarlig for de konsekvenser dette vil kunne få for partene eller andre som har interesser i eiendomshandelen.
Ved eventuelt tilbakehold av informasjon eller mistenkelige transaksjoner, plikter eiendomsmegleren å melde fra til Økokrim. Med «mistenkelig transaksjon» menes transaksjon som mistenkes å involvere utbytte fra straffbar handling, eller som skjer som ledd i terrorfinansiering. Manglende mulighet for kundekontroll kan også være et forhold som gjør transaksjonen mistenkelig.
Det anbefales at kjøper innbetaler kjøpesummen som ikke kommer fra låneinstitusjon, i en samlet innbetaling fra egen konto i norsk bank.
Selger forbeholder seg også retten til å kreve dokumentasjon av kjøpers finansiering.
Det kan ikke gjøres ansvar gjeldende mot meglerforetaket som følge av at meglerforetaket overholder sine plikter etter Hvitvaskingsloven.
Standard kjøpekontrakt følger som vedlegg til denne salgsoppgave.
Kjøper kan avbestille boligen inntil overtakelse har funnet sted. Ved avbestilling kommer reglene i Bustadoppføringslova kapittel VI til anvendelse. Ved avbestilling gjelder bestemmelsene i buofl. § 53. I et slikt tilfelle skal kjøper dekke hele selgers økonomiske tap.
Selger forbeholder seg retten til å kreve dokumentasjon av kjøpers finansiering.
Kjøper er selv ansvarlig for nødvendig finansiering og bekreftelse på denne. Dersom kjøper skal ha lånefinansiering, bes det oppgitt kontaktinformasjon til långiver slik at megler kan foreta en kontroll av kjøpers finansiering. Til informasjon, kan disse opplysningene bli videreformidlet til selger. Kjøper oppfordres til å innhente verdivurdering av egen bolig dersom egenkapital i nåværende bolig inngår i finansieringsplanen for dette kjøpet. Handelen er juridisk bindende for begge parter når kjøpers bud er akseptert av selger. Dersom kjøper likevel ikke skulle være i stand til å betale kjøpesummen, er kjøper likevel bundet av kjøpet. Selger vil i en slik situasjon kunne påberope seg vesentlig mislighold av avtalen og heve kontrakten. Kjøper er innforstått med at selger vil kunne selge boligen på nytt (dekningssalg) og at ethvert økonomisk tap som selger måtte bli påført som følge av kjøpers mislighold, vil bli krevd dekket av kjøper. Herunder omkostninger i forbindelse med et nytt salg, dekning av en mulig lavere salgspris, rentetap m.m.
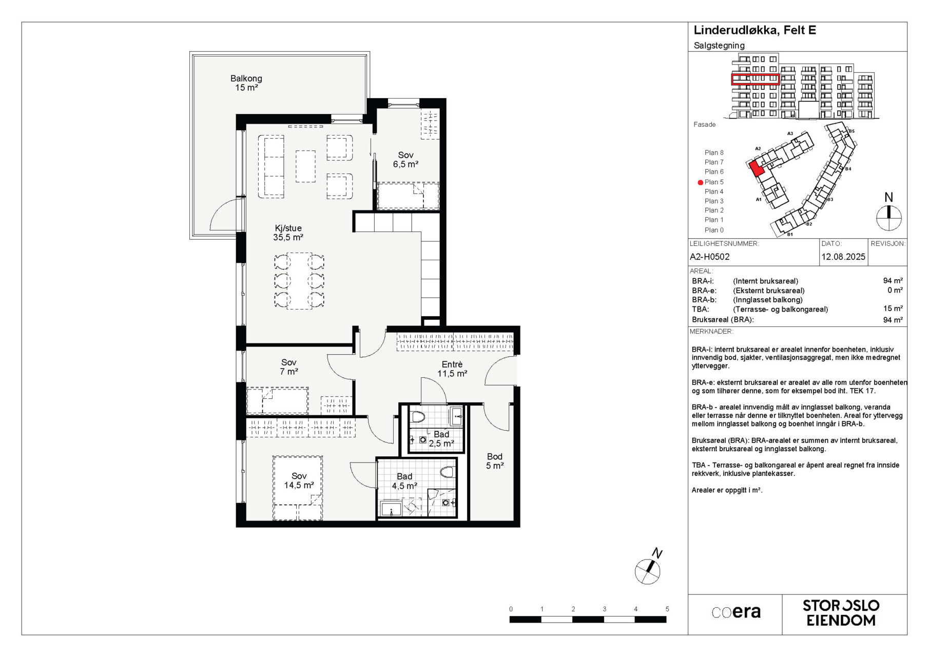
Fra 1. januar 2024 trådte en ny arealstandard i kraft “Areal og Volumberegninger for bygninger” som ble publisert av Norsk Standard 26.10.23. De nye arealbegrepene oppgis som ulike former for BRA, som forklart under. Arealene er oppgitt i hele tall iht. avrundingsregler:
BRA-i
Bruksarealet av boenheten innenfor omsluttede vegger.
BRA-e
Bruksarealet av alle rom som ligger utenfor boenheten, men som tilhører denne.
BRA-b
Bruksarealet av innglasset balkong tilknyttet boenheten.
BRA
Boligens fulle areal eksklusive ytterveggene, altså summen av BRA-i, BRA-e og BRA-b.
De oppgitte arealer er å betrakte som cirka-arealer. Partene har ingen krav mot hverandre dersom arealet skulle vise seg å være 5 % mindre/større enn det oppgitte areal.
Sist oppdatert: 14.04.2026
B4-H0503
5. Etasje
1-roms
30 m²
kr 3 900 000,-
B3-H0603
6. Etasje
1-roms
30 m²
kr 3 900 000,-
B4-H0603
6. Etasje
1-roms
30 m²
kr 4 000 000,-
B4-H0402
4. Etasje
2-roms
41 m²
kr 4 900 000,-
B4-H0602
6. Etasje
2-roms
41 m²
kr 5 150 000,-
B4-H0405
4. Etasje
3-roms
53 m²
kr 5 600 000,-
B4-H0505
5. Etasje
3-roms
53 m²
kr 5 700 000,-
B4-H0605
6. Etasje
3-roms
53 m²
kr 5 900 000,-
B4-H0102
1. Etasje
3-roms
57 m²
kr 6 050 000,-