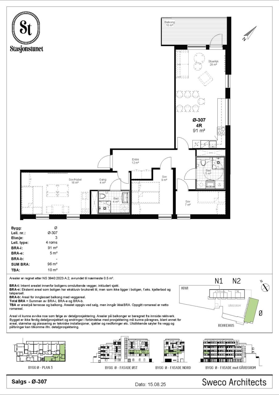
Stasjonstunet|Ø-307| Vestvendt 4 roms med mulighet for hybel beliggende i 3 etg

Lidenskap for nybygg

Stasjonstunet|Ø-307| Vestvendt 4 roms med mulighet for hybel beliggende i 3 etg

Marcus Thranes vei 2 - 6, 1470 LØRENSKOG

Geotag

Pris

  • Prisantydning kr 8 200 000,-
  • Omkostninger kr 50 075,-
  • Totalpris kr 8 250 075,-

Areal

  • BRA 96 m²
  • BRA-I 91 m²
  • BRA-E 5 m²
  • TBA 10 m²

Nøkkelinfo

  • Rom 4
  • Etasje 3
  • Leil.nr Ø-307
  • Boligtype Leilighet
  • Eierform Andel
  • Fellesutgifter/mnd kr 5 130,-

Registrer interesse

Meld din interesse så vil vi ta kontakt med deg og holde deg løpende orientert om prosjektet!

Beskrivelse

Kort om eiendommen

Ny og moderne 4 roms endeleilighet med mulighet for hybel. Leiligheten inneholder romslig entré med avsatt plass til garderobe. Stort soverom med tilgang til eget bad som på tilvalg kan omgjøres til hybel. Videre er det to soverom med avsatt plass til garderobe. Flislagt bad med med storformats fliser. Åpen stue-/ kjøkkenløsning med naturlige møbleringssoner og utgang til vestvendt balkong på 10 kvm.

Dette er bare én av flere leiligheter vi har for salg i prosjektet. Ta en titt på prosjektets hjemmeside og boligvelger for å se på andre alternativer.

Lars Petter Hansrud

Eiendomsmegler

95203993lars.petter.hansrud@roislandco.no

Ingrid Anne Fossli

Eiendomsmegler

93885778ingrid@roislandco.no

Innhold

Totalt bruksareal BRA: 96 kvm
BRA-i: 91 kvm
BRA-e: 5 kvm
TBA: 10 kvm
 
Arealbeskrivelse;
Arealet er beregnet ut fra Norsk standard NS 3940:2023. BRA-i: Internt arealet innenfor boligens omsluttende vegger, inkludert sjakt. BRA-e: Eksternt areal som boligen har eksklusiv bruksrett til, men som ikke ligger i boligen, f.eks. kjellerbod. BRA-b: Areal for innglasset balkong med veggareal. Total BRA = Summen av BRA-i, BRA-e og BRA-b. TBA er areal på terrasse og balkong. Arealet oppgis ved salg, men inngår ikke i BRA. Oppgitt romareal er netto romareal. De oppgitte arealer er å betrakte som cirka-arealer. Partene har ingen krav mot hverandre dersom arealet skulle vise seg å være 5 % mindre / større enn det oppgitte areal.

Matrikkel

Knr. 3222 Gnr. 106 Bnr. 18

Om prosjektet

Byggestart for prosjektet er nå vedtatt og rivningsarbeidene er planlagt å starte opp innen kort tid. Ta kontakt for nærmere informasjon og en digital visning av prosjektet.

Stasjonstunet består av 68 moderne leiligheter og 5 rekkehus – et nytt nabolag som kombinerer bokvalitet, smarte løsninger og et variert boligtilbud. Leilighetene og rekkehusene i Stasjonstunet er utformet med fokus på bokvalitet, lys og funksjonelle planløsninger. De rene linjene og den harmoniske fargepaletten skaper et tidløst uttrykk, mens store vindusflater og private uteplasser gir en luftig og behagelig romfølelse. Materialene er valgt med omtanke – fra den lyse eikeparketten til de elegante flisene på badet – og de små detaljene vitner om solid håndverk og høy standard. Her får du moderne komfort med heis, fjernvarme og balansert ventilasjon, kombinert med energieffektive løsninger og bærekraftige valg. Nedgravde avfallssystemer og garasjeanlegg med elbil-infrastruktur gjør hverdagen enkel og ryddig.

Felles takhage og grønne uteområder inviterer til sosiale møter og avslappende stunder i solen. Fellesområdene er innholdsrike med blant annet kjøkkenhage, ulike lekeapparater, sittergrupper, pergola og utegym for å nevne noe. Dette vil være hyggelig sosiale samlingssteder for både store og små. Stasjonstunet er et sted å vokse, leve og trives – et sted som forener bylivets bekvemmeligheter med naturens ro.

Med Lørenskog stasjon like ved er du på Oslo S på 17 minutter – perfekt for både pendling og byturer. Rett utenfor døren finner du også marka, med stier, skiløyper og badeplasser som innbyr til et aktivt friluftsliv året rundt. Om vinteren kan du stå på ski både ute i naturen og innendørs i SNØ, Norges unike helårsarena for alpint, langrenn og isklatring. For de yngre finnes et bredt idrettstilbud, med WANG toppidrettsgymnas i nærheten. Hverdagen blir ekstra enkel med en helt ny KIWI dagligvare i byggets første etasje – alt du trenger, rett i nærheten.

Her kan du leve et aktivt og balansert hverdagsliv – med enkel tilgang til både byen og naturen.

Velkommen hjem til et nytt kapittel i Lørenskog.

Eiendommen

Marcus Thranes vei 2 – 6, 1470 LØRENSKOG

Knr. 3222 Gnr. 106 Bnr. 18

Selger

Maria Nevjen Roth

Skjalg Sørhaug

Marcus Thranes vei 2 Bolig AS

Ng Eiendom Øst AS

Fremdriftsplan og ferdigstillelse

Byggetiden er forventet å være cirka 27 måneder fra igangsetting. Estimert overtagelse 2. kvartal 2028 ved byggestart første halvår 2026. En lengre byggetid enn forventet kan medføre en senere overtakelse.

Parkering

Garasjeplass kan kjøpes til gjeldene priser: P-plass for bil kr. 400 000,-. I tillegg kommer dokumentavgift på 2,5% av kjøpesummen som kan utgjøre ca. kr. 10 000,-. Kjøper har risiko for endringer i omkostningsbeløpene. Estimert felleskostnad pr p-plass er kr. 200,-pr mnd (+ tillegg for plasser med el-ladepunkt). El-ladepunkt kan bestilles i tillegg, så langt det er kapasitet, konferer megler.

Kjøp av garasjeplass er forbeholdt 3- og 4-roms leiligheter, samt rekkehus. For 2-roms leiligheter vil det være mulig å sette seg på venteliste for kjøp av parkering. Konferer megler ved interesse. Det opprettes egen kjøpekontrakt mellom kjøper og selger på kjøp av garasjeplass. Selger disponerer til enhver tid usolgte parkeringsplasser.

Leveranse

Leveres fra HTH. Fronter i lys beigetone, benkeplate laminat, hvitevarer integrert (Bosh eller tilsv.). Armatur fra Hansgrohe type Focus M41 EcoSmart i krom eller tilsvarende. Ventilator fra Røros Crystall med Monoblokkfilter med komfyrvakt levert av elektro. Ventilator leveres hvit. Det tas forbehold om bytte av leverandører og modeller, nye produkter skal i så fall skal ligge på samme kvalitet som her angitt.

Prosjektet leveres med baderomskabiner. Badene leveres med 60×60 flis på vegger og gulv, type La Fence Circus White.

Prosjektet leveres med to typer baderomsløsning. Det fremgår av salgstegning hva som leveres til den enkelte leilighet.

Bad med side-by-side løsning for vask/tørk: Baderomsinnredning med to skuffer og push open funksjon. Speil på vegg. Det plasseres ekstra downlights i tak for å kompensere for belysning over speil.

Bad med frittstående baderomsinnredning:
Baderomsinnredning med to skuffer og push open funksjon. Størrelse innredning tilpasses de ulike baderomstypene.

For mer informasjon vedrørende leveranse se i leveransebeskrivelse og romskjema som ligger som vedlegg.

Stiplet inn mulig plassering av skap i entre og soverom der dette er aktuelt. Skap er ikke inkludert i leveransen.

Byggemåte

Boligbebyggelsen består av blokkbebyggelse med fem etasjer og rekkehus i tre etasjer, oppført på felles kjelleretasje med parkering, boder og tekniske rom. Byggene er tegnet av Sweco Architects og kjennetegnes av varierte volumer og moderne fasader med robuste materialer. Alle boliger har private uteplasser i form av balkong, markterrasse eller takterrasse. Det etableres heis til alle leilighetsplan.

Fasader utføres med variert materialbruk i tegl, plater og trekledning. Vinduer er trevinduer med utvendig aluminiumsbekledning, malt hvite innvendig.

Takkonstruksjoner som flate tak med membrantekking og isolasjon. Over parkeringsareal etableres felles takhage, og det etableres sedum-tak over boligblokker og rekkehus. Fallsikringssystem monteres for vedlikehold.

Balkonger i betong med rekkverk av stål og glass. Gulv med tremmegulv av impregnert furu. Tak- og markterrasser leveres med tredekke eller heller på oppklossing. Alle uteplasser får lysarmatur og stikkontakt.

Trapper i betong med rekkverk i stål. Heis fra kjeller til øverste plan, utført i stål. Veggene i trapperommet utføres som malte rå betongelementvegger med synlige fuger.

Maskinromsløse personheiser, universelt utformet.

Balansert ventilasjon med varmegjenvinning (egen enhet pr. leilighet). Gulvvarme på bad.

Komplett rør-i-rør system. Individuell vannmåler.

Hele bygget skal tilfredsstille dagens krav til brannsikring. Det innebærer blant annet heldekkende sprinkleranlegg i alle leiligheter og fellesarealer hvor teknisk forskrift krever dette. Sprinklerhoder vil være synlig i himling og leveres med hvit farge i leilighetene.
Noen synlige rørføringer for fremføring av sprinkleranlegg må også påregnes. Det leveres i tillegg ett brannslukningsapparat til hver leilighet. Røykdetektor og alarmgiver i hver leilighet er direkte tilknyttet sentralt brannalarmanlegg.

Oppvarming

Fjernvarme. Vannbåren gulvvarme på bad, varmebatteri i ventilasjon. Individuell energimåler.

Tinglyste Heftelser og Rettigheter

På eiendommen er det tinglyst følgende heftelser og rettigheter som følger eiendommens matrikkel ved overskjøting til ny hjemmelshaver:

3222/106/18:
19.09.1939 – Dokumentnr: 9761 – Elektriske kraftlinjer
Lørenskog EL-verk.
Bestemmelse om trafostasjon/kiosk
PB:B.2.
Gjelder denne registerenheten med flere

14.04.1948 – Dokumentnr: 1423 – Skjønn
Erstatning for tap av vannkraft
Gjelder denne registerenheten med flere

13.03.1974 – Dokumentnr: 1457 – Erklæring/avtale
Bestemmelse om benyttelse
Med flere bestemmelser
Overført fra: Knr:3222 Gnr:107 Bnr:1762
Gjelder denne registerenheten med flere

02.04.1976 – Dokumentnr: 2045 – Bestemmelse om veg
Rettighetshaver parsell I, II og III av Gnr.80 bnr.8
Overført fra: Knr:3222 Gnr:107 Bnr:1762
Gjelder denne registerenheten med flere

03.02.1981 – Dokumentnr: 692 – Skjønn
Bestemmelse om fortau
Gjelder denne registerenheten med flere

08.07.1981 – Dokumentnr: 4562 – Erklæring/avtale
Bestemmelse om å rive/fjerne bygg når bygningsrådet
forlanger det
Overført fra: Knr:3222 Gnr:107 Bnr:1762
Gjelder denne registerenheten med flere

03.02.1989 – Dokumentnr: 1082 – Erklæring/avtale
Kartforr. holdt den 24.09.87.
Areal 3618.28 m2.

03.02.1989 – Dokumentnr: 1084 – Erklæring/avtale
Kartforr. holdt den 24.09.87.
Areal 3795.42 m2.
Overført fra: Knr:3222 Gnr:107 Bnr:1762

27.05.2004 – Dokumentnr: 8905 – Bestemmelse om vannledn.
Rettighetshaver
NEDRE ROMERIKE VANNVERK
Med flere bestemmelser
Overført fra: Knr:3222 Gnr:107 Bnr:1762
———-
Diverse påtegning
Ny rettighetshaver er Nedre Romerike Vannverk IKS organisasjonsnummer 992110996

20.02.2013 – Dokumentnr: 150104 – Best. om adkomstrett
Rettighetshaver: Knr:3222 Gnr:106 Bnr:18
Overført fra: Knr:3222 Gnr:107 Bnr:1762

22.05.1918 – Dokumentnr: 900018 – Registrering av grunn
Denne matrikkelenhet opprettet fra:
Knr:3222 Gnr:106 Bnr:1
SKYLDDELINGS-FORRETNING
PB 7/3-690 ELDRE REG B-771

16.05.1984 – Dokumentnr: 3934 – Registrering av grunn
Utskilt fra denne matrikkelenhet:
Knr:0230 Gnr:106 Bnr:131

01.01.2020 – Dokumentnr: 1777860 – Omnummerering ved kommuneendring
Tidligere: Knr:0230 Gnr:106 Bnr:18

01.01.2024 – Dokumentnr: 166714 – Omnummerering ved kommuneendring
Tidligere: Knr:3029 Gnr:106 Bnr:18

02.04.2024 – Dokumentnr: 1271268 – Sammenslåing
Sammenslått med denne matrikkelenhet:
Knr:3222 Gnr:107 Bnr:1762
Elektronisk innsendt

20.02.2013 – Dokumentnr: 150104 – Best. om adkomstrett
Rettighet hefter i: Knr:3222 Gnr:106 Bnr:18
Overført fra: Knr:3222 Gnr:107 Bnr:1762

Adgang til utleie

Utleie reguleres av borettslagsloven §§ 5-3 til 5-10. Selger ønsker å praktisere en liberal utleiepraksis i den perioden selger er representert i styret i Borettslaget. Styret vil derfor i denne perioden gi samtykke til å leie ut leiligheten i inntil 3 år fra overtakelse, selv om vilkårene for utleie i §§ 5-4 til 5-6 ikke er oppfylt, jf. § 5-3. Eventuell søknad om utleie må sendes styret, og det er opp til styret om utleien godkjennes.

Fellesutgifter

Hver andelseier betaler månedlige felleskostnader til borettslaget. Felleskostnadene for borettslaget er ment å dekke blant annet kommunale avgifter (renovasjon, vann og avløp, feiing), snøbrøyting, utvendig vedlikehold av fellesareal, forretningsførerhonorar, revisjon, forsikring av bygninger, samt fiberaksess og driftskostnader. Estimert kostnad for forbruk av fjernvarme er medtatt i estimerte felleskostnader (14 kr pr. Kvm.). Egen avregning og faktura tilkommer hver andel for sitt forbruk av fjernvarme månedlig. Drifts- og vedlikeholdskostnadene avhenger av hvilke tjenester borettslaget ønsker utført. Kjøper plikter å betale sin forholdsmessige andel av driftsutgiftene for eiendommen fra overtakelsestidspunktet.

Det tilkommer også felleskostnader for de som kjøper parkeringsplass som p.t. er estimert til kr 200,- pr mnd. pr. plass.
Det vil bli krevd inn et likviditetstilskudd fra forretningsfører fra alle andelseierne tilsvarende 2 måneders fellesutgifter for å gi Borettslaget nødvendig likviditet den første tiden etter stiftelse.

Selger forbeholder seg retten til å inngå nødvendige driftsavtaler på vegne av borettslaget, garasjesameiet og velforeningen før overlevering. Det er en forutsetning for Selgers reklamasjonsansvar at borettslaget har diverse avtaler om drift, service og vedlikehold på plass i reklamasjonsperioden. Det kan være bindingstid for de ulike driftsavtaler.

For mer informasjon se vedlegg utkast til budsjett og fordeling felleskostnader fra forretningsfører. Det tas forbehold om endringer i stipulerte kostnader, da dette er basert på erfaringstall.

Eiendomsskatt

Lørenskog Kommune har eiendomsskatt. Stasjonstunet BRL vil faktureres for eiendomsskatt som hjemmelshaver til eiendommen. Den enkelte andelseier er imidlertid selv ansvarlig for å dekke den andel av eiendomsskatten som knytter seg til dennes andel. Dette kommer i tillegg til budsjetterte driftskostnader. Styret/forretningsfører vil viderefakturere eiendomsskatten til den enkelte andelseier. Det tas forbehold om endringer i offentlige skatter og avgifter. Eventuell eiendomsskatt på næringslokalene i fellesarealene vil dekkes som felleskostnader etter borettslagets fordelingsnøkkel.

Formuesverdi

Formuesverdien er ikke fastsatt, men fastsettes av Skatteetaten etter en beregningsmodell som hensyntar om boligen er «primærbolig»; (der eier er bosatt iht. Folkeregisteret) eller «sekundærbolig»; (andre boliger man eier).
For primærbolig er formuesverdien 25 % av markedsverdien opp til kr. 10 000 000 og deretter 70 % av den overskytende markedsverdien, og 100 % for sekundærboliger. Det gjøres oppmerksom på at kjøper selv må sende inn opplysninger om adresse, areal, boligtype og byggeår til skattemyndighetene.

Det tas forbehold om endring av satser, og henvises til Skatteetatens websider dersom ytterligere informasjon er ønskelig.

Omkostninger

 I tillegg til kjøpesummen må kjøper betale:
 
1: Dokumentavgift til staten, 2,5% av andel tomteverdi: Kr. 30 940,-
2: Tinglysningsgebyr hjemmelsdokument: Kr. 545,-
3: Tinglysningsgebyr pantedokument: Kr. 545,-
4: Registrering av andel i nytt borettslag: kr. 545,-
4: Andelskapital: Kr. 5 000,-
5: Etableringsgebyr BRL: 5 000,-
6: Oppstartskapital BRL: 7 500-
 
Totale omkostninger: Kr.50 075

Organisasjonsform

Boligenhetene vil bli solgt som andelsleiligheter og organisert som et frittstående borettslag. Selger, eller et selskap utpekt av selger, vil stifte og tegne alle andelene i borettslaget med foreløpig navn Stasjonstunet BRL. Endelig organisering av sameiet/borettslaget er ikke bestemt.

Dato

Sist oppdatert: 12.02.2026

Denne boligen er en del av Stasjonstunet

Les mer om prosjektet

Andre leiligheter i dette prosjektet

Tilbake til toppen