Vollebekk Stasjon

Lidenskap for nybygg

Pris

  • Prisantydning kr 9 990 000,-
  • Omkostninger kr 59 490,-
  • Totalpris kr 10 049 490,-

Areal

  • BRA 98 m²
  • BRA-I 88 m²
  • BRA-E 5 m²
  • TBA 10 m²

Nøkkelinfo

  • Rom 4
  • Etasje 4
  • Leil.nr G-404
  • Eierform Andel
  • Fellesutgifter/mnd kr 4 312,-

Registrer interesse

Meld din interesse så vil vi ta kontakt med deg og holde deg løpende orientert om prosjektet!

Lars Petter Hansrud

Eiendomsmegler

95203993lars.petter.hansrud@roislandco.no

Ingrid Anne Fossli

Eiendomsmegler

93885778ingrid@roislandco.no

Innhold

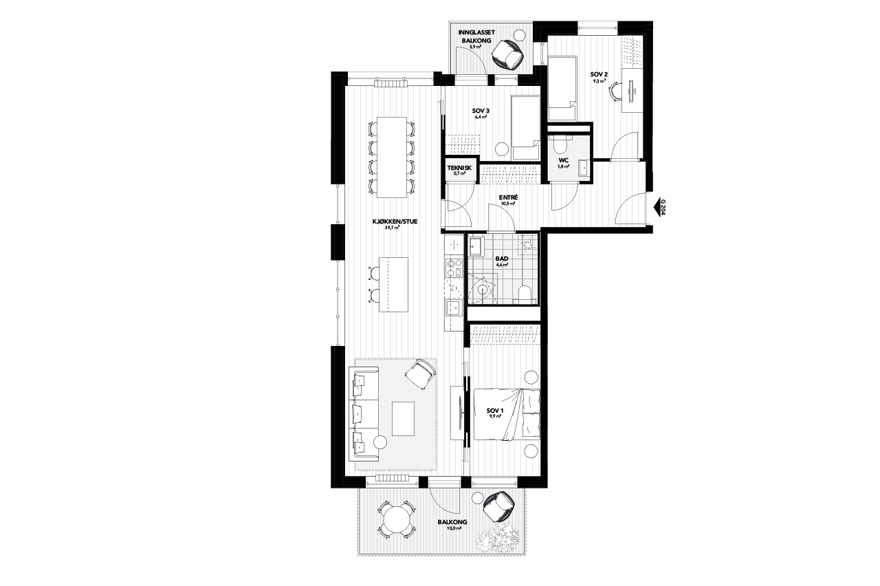
Stor gjennomgående 4-roms i 4. etasje med romslig entré gang med avsatt plass for garderobe. Leiligheten får en stor stue med kjøkken i åpen løsning hvor du enkelt får plass for både spisestuen og sofagruppe. Tre soverom hvorav hovedsoverom med plass for dobbeltseng og nattbord på hver side samt avsatt plass for garderobe. Moderne flislagt bad med wc, servant, dusj og opplegg for vaskemaskin samt et separat toalett i gangen. Fra stue er det utgang til romslig balkong på ca. 10 kvm samt innglasset balkong på ca. 3,9 kvm på motsatt side av leiligheten.

Matrikkel

Knr. 301 Gnr. 88 Bnr. 274

Om prosjektet

På Vollebekk Stasjon får du det beste fra begge verdener. Når du er hjemme her, er du i nærheten av alt. Barnehager, skole og kulturhus, idrettsfasiliteter og T-bane, er alt i gangavstand. Her finner du kombinasjonen av det grønne og moderne, midt i et område som vokser og blir stadig mer sentralt.

Bli kjent med Vollebekk Stasjon beliggende mellom sentrum og marka

Variert boligutvalg: Moderne 1- til 5-roms leiligheter fra 37 til 104 m² sikrer et godt og mangfoldig bomiljø
Felles takterrasser: Store takhager med pergola, utekjøkken, sittebenker og beplantning.
Urban dyrking: Takterrasse tilrettelagt for egen dyrking med drivhus og plantekasser.
Sosialt fellesrom: Stort rom i bygg D med eget kjøkken – perfekt for bursdager, nabo-kaffe og feiringer.
Aktivitetsrom: Eget rom i underetasjen tilrettelagt for barn og unge, med blant annet bordtennis.
Gjennomført interiør: Standardleveranse med Sigdal-kjøkken, integrerte Bosch-hvitevarer og storformatsfliser på bad.
Moderne teknologi: Smarthusstyring av lys/varme og heldigitalt, nøkkelfritt adgangssystem med videoringeklokke til mobil.
Knutepunkt: Umiddelbar nærhet til T-bane med under 25 minutter til Oslo S.
Alt i gangavstand: Barnehager, skoler, kulturhus, idrettsanlegg, matbutikker og apotek rett i nærheten.
Nærhet til marka: Kort vei til Vesletjern med barnevennlig badeplass og milevis med ski- og sykkelstier.
Kun kr 100.000 i forskudd.

TRYGT BOLIGKJØP
Vi vet at det å kjøpe ny bolig er en av livets største beslutninger. Derfor har vi utviklet løsninger som fjerner usikkerhetene og gjør veien til ditt nye drømmehjem på Vollebekk Stasjon trygg og enkel.

GRATIS DOBBELTBOLIGFORSIKRING
Dobbeltboligforsikring er for deg som planlegger å kjøpe på Vollebekk Stasjon før du selger din egen bolig. Forsikringen gir deg økonomisk hjelp hvis det tar tid å selge din egen bolig. Forsikringen dekker de faktiske merutgiftene ved å sitte med to boliger med inntil 15 000 kroner per måned, og maksimalt 135 000 kroner totalt.

BOLIGINNBYTTE
BoligInnbytte er løsningen for deg som har funnet drømmeboligen på Vollebekk Stasjon, men som kvier deg for å selge den du har i dagens marked. BoligInnbytte gir deg forutsigbarhet i bolighandelen. Kjernen i løsningen er at du «veksler inn» din gamle bolig mot en helt ny leilighet på Vollebekk Stasjon. Den store fordelen er økonomisk trygghet ved at du slipper usikkerheten i et svingende marked.

Det viktigste kravet er at verdien på boligen du skal selge, er minst 30 % lavere enn kjøpesummen for den nye boligen. I tillegg må boligen din være i god teknisk stand og ha en attraktiv beliggenhet. Dersom boligen din kvalifiserer, vil du motta et konkret tilbud. Dette tilbudet inkluderer en garantert salgssum for din gamle bolig, inklusive salgsomkostningene. Dette betyr at du får full økonomisk oversikt og vet nøyaktig hva du har å rutte med før du signerer kontrakten for ditt nye hjem.

FINANSIER BOLIGEN SLIK DET PASSER DEG
Når du kjøper bolig på Vollebekk Stasjon har du frihet til å velge finansieringsløsningen som passer deg best. Nedenfor ser du hvilke alternativer vi tilbyr som sikrer deg din drømmeboligen på Vollebekk Stasjon. Kontakt megler dersom du ønsker å vite mer om de forskjellige alternativene.

BOSTART
BoStart gjør at du kan kjøpe en helt ny bolig til en lavere pris enn ordinær markedspris. Når du kjøper bolig med BoStart må boligen være en bolig du selv skal bo i, altså din primærbolig. Ønsker du å selge boligen din etter hvert, vil Fredenborg Bolig ha retten til å kjøpe boligen tilbake til opprinnelig kjøpesum, justert for endring i boligprisene for perioden. Har det vært en verdistigning etter du overtok, er det du som får verdistigningen.

Prisen Fredensborg Bolig kan kjøpe boligen for tar utgangspunkt i boligprisindeksen til Eiendom Norge. Denne beregnes fra datoen da du overtok boligen og fram til datoen du tar kontakt om tilbakekjøp. Den dagen du velger å selge betaler du for deler av salgsomkostningene. Dette tilsvarer 1 % av den indekserte kjøpesummen (inkludert eventuell fellesgjeld), eierskiftegebyr, oppgjør og innhenting av boligopplysninger.

KJØP MED ELLER UTEN FELLESGJELD
Når du kjøper bolig på Vollebekk Stasjon har du full frihet til å velge den beste økonomiske løsningen for deg og din livsstil! Vi tilbyr to alternativer som gir deg muligheten til å sikre din drømmebolig; 100 % innskudd eller 40 % innskudd og 60 % fellesgjeld.

Alternativ 1: 100 % innskudd
Har du mulighet og ønsker en tilværelse uten gjeld velger du 100 % innskudd og eier boligen din helt gjeldfritt. Nyt følelsen av eierskap uten økonomiske byrder og invester med din oppsparte egenkapital.

Alternativ 2: 40 % innskudd og 60 % fellesgjeld
Borettslaget etableres med et felles lån som utgjør inntil 60 % av kjøpesummen. Mangler du egenkapital eller ønsker du å oppnå din drømmebolig uten å måtte binde opp hele din egenkapital? Da kan det være et godt valg for deg å benytte deg av tilbudet om 60 % fellesgjeld.

Med 40 % egenkapital, eller privat finansiering, får du tilgang til din drømmebolig samtidig som du kan gjøre andre investeringer eller rett og slett bare ønsker større økonomisk fleksibilitet.

INDIVIDUELL NEDBETALING AV FELLESGJELD
På Vollebekk har vi også inngått en avtale om individuell nedbetaling av fellesgjeld (IN-ordning). IN-ordningen åpner for at den enkelte eier helt eller delvis kan nedbetale boligens andel av fellesgjeld. En innbetaling innenfor IN-ordningen gir andelseieren reduserte månedlige felleskostnader tilsvarende reduksjonen i renter og avdrag på borettslagets fellesgjeld. Innfrielse ved innbetaling på IN-ordningen kan gjøres ved sluttoppgjøret før overtakelse eller inntil 2 ganger årlig.

Ta kontakt med megler dersom du ønsker prisliste basert på finansiering med andel fellesgjeld.

Eiendommen

Hans Møller Gasmanns vei 3, 0598 OSLO

Knr. 301 Gnr. 88 Bnr. 274

Selger

Oslobolig AS

Vollebekk Stasjon Utbyggingsselskap AS

Fremdriftsplan og ferdigstillelse

Oppgang A, B, C og H – 01.11. 2026 – 01.04.2027. Oppgang D, E, F og G – 15.09.2026 – 15.02.2027.

Parkering

Det vil bli bygget et underjordisk bod- og garasjeanlegg. Garasje- og bodanlegget er planlagt å bestå av 51 parkeringsplasser, boder, sykkelparkeringsplasser, lastesykkelplasser, plass til sykkelvask og enkle reparasjoner og tekniske rom. Det følger ikke med parkeringsplasser til leilighetene. Pris for parkeringsplass er kr 550.000,-.

Boder

Det følger med én bod til hver leilighet enten i leiligheten eller i bodanlegget i garasjekjeller. Størrelsen på boden vil avhenge av størrelsen på leiligheten, og om det er bod i leiligheten eller ikke. Samlet areal på boder i kjeller og leilighet vil være hhv. 5,0 m2 (leilighet over 50 m2 BRA) og min. 2,5 m2 (leilighet under 50 m2 BRA).

Leveranse

Finansier boligen slik det passer deg
Når du kjøper bolig på Vollebekk Stasjon har du full frihet til å velge den beste økonomiske løsningen for deg og din livsstil! Vi tilbyr to alternativer som gir deg muligheten til å sikre din drømmebolig; 100 % innskudd eller 40 % innskudd og 60 % fellesgjeld.

Alternativ 1: 100 % innskudd
Har du mulighet og ønsker en tilværelse uten gjeld velger du 100 % innskudd og eier boligen din helt gjeldfritt. Nyt følelsen av eierskap uten økonomiske byrder og invester med din oppsparte egenkapital.

Alternativ 2: 40 % innskudd og 60 % fellesgjeld
Borettslaget etableres med et felles lån som utgjør inntil 60 % av kjøpesummen. Mangler du egenkapital eller ønsker du å oppnå din drømmebolig uten å måtte binde opp hele din egenkapital? Da kan det være et godt valg for deg å benytte deg av tilbudet om 60 % fellesgjeld.

Med 40 % egenkapital, eller privat finansiering, får du tilgang til din drømmebolig samtidig som du kan gjøre andre investeringer eller rett og slett bare ønsker større økonomisk fleksibilitet.

Individuell nedbetaling av fellesgjeld
På Vollebekk har vi også inngått en avtale om individuell nedbetaling av fellesgjeld (IN-ordning). IN-ordningen åpner for at den enkelte eier helt eller delvis kan nedbetale boligens andel av fellesgjeld. En innbetaling innenfor IN-ordningen gir andelseieren reduserte månedlige felleskostnader tilsvarende reduksjonen i renter og avdrag på borettslagets fellesgjeld. Innfrielse ved innbetaling på IN-ordningen kan gjøres ved sluttoppgjøret før overtakelse eller inntil 2 ganger årlig.

Ta kontakt med megler dersom du ønsker prisliste basert på finansiering med andel fellesgjeld.

Interiørkonseptet Kalkstein
I leveransen får du kjøkken i en delikat beige farge med integrerte hvitevarer. Benkeplate i en mørkere jordtone. Fargepaletten skaper en rolig atmosfære du vil trives i. Utrykket på kjøkkenet gir deg muligheten til å tilpasse stilen fra det klassiske til det moderne. Armatur og øvrige detaljer i krom utførelse. Kjøkkenet leveres av Sigdal med helintegrerte hvitevarer fra Bosch.

Badet leveres med stilrene storformatsfliser. Badet skal være en kilde til ro og avslapping, og er utstyrt med innredning i samme utførelse som på kjøkkenet. På badet får du storformatsfliser på gulv og vegg i lekre gråtoner. Armatur og øvrige detaljer blir også i en stilren krom utførelse.

For mer informasjon rundt leveransen se leveransebeskrivelse og romskjema. Noen få leiligheter avviker fra denne leveransebeskrivelse. Det fremgår av romskjema hvilke det gjelder.

Det leveres ikke garderobeskap.

Byggemåte

Alle bærekonstruksjoner er av tre, betong og stål.

Fasadene mot Østre Aker vei og Hans Møller Gasmanns vei består av tegl. Fasade mot gårdsrom består hovedsakelig av stående trepanel, foruten om nederste etasje som består av tegl. Tegl og trepanel leveres etter arkitektens material- og fargevalg. Aluminiumsbelagte trevinduer/- dører i tilsvarende farge som tegl. Øvrige beslag etter arkitektens material- og fargevalg. Sedumdekke over deler av tak.

Terrassebord på markterrasser, balkonger og takterrasser. Rekkverk på balkongervendt mot Hans Møller Gasmanns vei leveres med
plater i tilnærmet lik farge som teglen, med glassfelt øverst. Spilerekkverk i stål eller aluminium på balkonger inn mot gårdsrom. Innglassede balkonger mot Østre Aker vei. Innglassingen har en støyreduserende effekt og gir god beskyttelse mot vær og vind og gir en vesentlig lengre bruksperiode for balkongene. Glassrekkverk på takterrasser. Håndløper i lakkert/malt stål eller aluminium. Totalhøyden på balkongrekkverket varierer avhengig av forskriftskrav. Alle typer markterrasser og balkonger er å anse som utvendig konstruksjon slik at mindre ansamlinger av vann og drypp fra overliggende balkonger må påregnes.

Heis fra garasjeanlegg/inngangsparti og opp til alle leilighetsplan, dette gjelder ikke for leiligheter i oppgang A. Leilighetene i
oppgang A har adkomst til underetasjen med parkeringsplasser, sykkelplasser og boder via trapperom/heis i oppgang B. Øvrige oppganger har direkte adkomst til bodanlegget i kjeller via heis/trapp. Heiskupéer vil ha en utførelse som harmonerer med trapperom.

Balansert ventilasjon med varmegjenvinning. Det leveres et separat ventilasjonsaggregat plassert i hver leilighet. Det samme gjelder
for leiligheter med hybel. Aggregatene plasseres enten i tak eller i gang med nisjeløsning og dør. For leiligheter med hybel, leveres det omluftsventilasjon (kullfilter) til kjøkkeninnredningen i hybelen. Aggregatets endelige plassering avklares under detaljprosjekteringen.

Det monteres røykvarslere og pulverapparat i henhold til forskrift. Vanntåkeanlegg eller sprinkling for leiligheter. Synlige sprinklerhoder
vil bli plassert forskriftsmessig. I fellesarealer og eventuelt balkonger i henhold til gjeldende krav

Vinduer, terrasse- og balkongdører leveres med energiglass, klassisk hvit innvendig og i henhold til arkitektens fargevalg utvendig. Utførelse, inndeling og slagretning avhenger av hvilke tekniske krav de enkelte vinduer har, herunder i forhold til støy, brannkrav osv. Vindusstørrelser samt vindu- og dørplassering kan avvike noe fra de generelle planer, som følge av bl.a. bærestruktur og den arkitektoniske utformingen av bygget. Det kan forekomme nivåforskjell/ terskel mellom rom, og fra innvendige arealer til terrasser og balkonger. Moderne vinduer isolerer langt bedre enn eldre vinduer, noe som fører til at vinduene blir kaldere på utsiden fordi varmen ikke trekker ut. De kalde utvendige flatene kan gi kondens på utsiden av vinduet. Innvendige dører eller skyvedører som anvist
på plantegning. Det leveres fabrikkmalte, hvite foringer og gerikter i samme farge. Spikerhull sparkles og males. Dørterskel og feielist i eik, tilnærmet lik utførelse som parkett. Dørvridere i børstet stål. De fleste dører leveres med flate terskler for å sikre luftstrømning gjennom leiligheten slik at ventilasjonsanlegget fungerer optimalt. Vindussmyg og balkongdører leveres listefritt med sparklet og malt gipsforing. I rom med parkett blir det levert fotlist i tilnærmet lik farge og materiale som parketten. Synlig innfesting av gulvlist.
Himling, dører og vindusdetaljer leveres i farge NCS S 0500-N, klassisk hvit.

Tinglyste Heftelser og Rettigheter

På eiendommen er det tinglyst følgende heftelser og rettigheter som følger eiendommens matrikkel ved overskjøting til ny hjemmelshaver:

301/88/274:
25.06.2024 – Dokumentnr: 1611186 – Festekontrakt – vilkår
Gjelder feste
Årlig festeavgift: NOK 1 000
Gjelder fra dato: 25/06-2024
Tomteverdi: NOK 200 000 000

06.09.2024 – Dokumentnr: 1915170 – Bestemmelse om jordkabel/jordkabelanlegg
Gjelder feste
Rettighetshaver: Elvia AS
Org.nr: 980 489 698
Adkomstrett for drift og vedlikehold av anlegg/ledninger/kabler
Bestemmelse om bebyggelse i nærheten av anlegg/ledninger/kabler

14.03.2025 – Dokumentnr: 296519 – Registerenheten kan ikke disponeres over uten samtykke fra rettighetshaver
Gjelder feste
Rettighetshaver: Sem & Johnsen Eiendomsmegling AS
Org.nr: 998 387 361

12.09.2025 – Dokumentnr: 1083443 – Bestemmelse om nettstasjon
Gjelder feste
Rettighetshaver: Elvia AS
Org.nr: 980 489 698
Rett til å etablere og ha stetsevarig en frittstående nettstasjon på eiendommen, sam rett itl å foreta fremtidig vedlikehold, fornying og om bygging mv.
Adkomstrett for drift og vedlikehold av anlegg/ledninger/kabler
Bestemmelse om bebyggelse i nærheten av anlegg/ledninger/kabler

21.02.1966 – Dokumentnr: 2583 – Bestemmelse om bebyggelse
Bestemmelse om gjerde
Bestemmelse om kloakkledning
Bestemmelse om veg

07.12.1966 – Dokumentnr: 17942 – Erklæring/avtale
Vedtak av Oslo kommunes vann- og kloakkreglement
Kan ikke slettes uten samtykke fra kommunen

06.09.1988 – Dokumentnr: 59611 – Erklæring/avtale
Bestemmelse om trafostasjon/kiosk
Med flere bestemmelser
———-
Diverse påtegning
Punkt 1 og 2 i erklæringen frafalles

15.02.2023 – Dokumentnr: 168307 – Bestemmelse om adkomstrett
Kan ikke slettes uten samtykke fra: Oslo Kommune
Org.nr: 958 935 420
Rettighetshaver allmennheten

15.02.2023 – Dokumentnr: 168326 – Erklæring/avtale
Kan ikke slettes uten samtykke fra: Oslo Kommune
Org.nr: 958 935 420
Bestemmelse om rett til bruk av fortau
Rettighetshaver allmennheten

25.06.2024 – Dokumentnr: 1611186 – Festekontrakt – vilkår
Årlig festeavgift: NOK 1 000
Gjelder fra dato: 25/06-2024
Tomteverdi: NOK 200 000 000

10.01.1962 – Dokumentnr: 377 – Registrering av grunn
Denne matrikkelenhet opprettet fra:
Knr:0301 Gnr:88 Bnr:247

Hjemmelshaver

Beskrivelse av tomt og utomhus

Byggene skal oppføres på gnr. 88 og bnr 274 i Oslo kommune (“Eiendommen”). Samlet tomteareal er cirka 9 388 m². Eiendommen er planlagt fradelt i flere eiendommer, hvor hvert bygg/borettslag får sitt eget bnr.

Utomhusarealer vil være fellesareal for andelseierne, og er planlagt fradelt som en egen eiendom (“Fellesarealet”) og organisert som et tingsrettslig sameie (realsameie), kalt «Vollebekk Stasjon Driftssameie». Eventuelt nytt bnr. for Fellesarealet vil foreligge når deleforretningen er gjennomført.

Garasjeanlegget er planlagt fradelt som en egen anleggseiendom, med eget bnr, organisert som et tingsrettslig sameie (realsameie).

Det tas forbehold om at deleforretningene blir godkjent, samt endelig størrelse på Fellesarealet og eiendommene etter fradeling.

Eiendommen ligger i dag i Hans Møller Gasmanns vei 3. Det må påregnes at Eiendommen vil få ny adresse før ferdigstillelse.

Fellesgjeld

Finansier boligen slik det passer deg
Når du kjøper bolig i Vollebekk Stasjon har du full frihet til å velge den beste økonomiske løsningen for deg og din livsstil! Vi tilbyr to alternativer som gir deg muligheten til å sikre din drømmebolig; – 100 % innskudd eller 40 % innskudd og 60 % fellesgjeld.

Alternativ 1: 100 % innskudd
Har du mulighet og ønsker en tilværelse uten gjeld velger du 100 % innskudd og eier boligen din helt gjeldfritt. Nyt følelsen av eierskap uten økonomiske byrder og invester med din oppsparte egenkapital.

Alternativ 2: 40 % innskudd og 60 % fellesgjeld
Borettslaget etableres med et felles lån som utgjør inntil 60 % av kjøpesummen. Mangler du egenkapital eller ønsker du å oppnå din drømmebolig uten å måtte binde opp hele din egenkapital? Da kan det være et godt valg for deg å benytte deg av tilbudet om 60 % fellesgjeld.

Med 40 % egenkapital, eller privat finansiering, får du tilgang til din drømmebolig samtidig som du kan gjøre andre investeringer eller rett og slett bare ønsker større økonomisk fleksibilitet.

Finansier boligen slik det passer deg
Når du kjøper bolig i Vollebekk Stasjon har du full frihet til å velge den beste økonomiske løsningen for deg og din livsstil! Vi tilbyr to alternativer som gir deg muligheten til å sikre din drømmebolig; – 100 % innskudd eller 40 % innskudd og 60 % fellesgjeld.

Alternativ 1: 100 % innskudd
Har du mulighet og ønsker en tilværelse uten gjeld velger du 100 % innskudd og eier boligen din helt gjeldfritt. Nyt følelsen av eierskap uten økonomiske byrder og invester med din oppsparte egenkapital.

Alternativ 2: 40 % innskudd og 60 % fellesgjeld
Borettslaget etableres med et felles lån som utgjør inntil 60 % av kjøpesummen. Mangler du egenkapital eller ønsker du å oppnå din drømmebolig uten å måtte binde opp hele din egenkapital? Da kan det være et godt valg for deg å benytte deg av tilbudet om 60 % fellesgjeld.

Med 40 % egenkapital, eller privat finansiering, får du tilgang til din drømmebolig samtidig som du kan gjøre andre investeringer eller rett og slett bare ønsker større økonomisk fleksibilitet.

Sikringsordning fellesgjeld

I Vollebekk Stasjon har vi også inngått en avtale om individuell nedbetaling av fellesgjeld (IN-ordning). IN-ordningen åpner for at den enkelte eier helt eller delvis kan nedbetale boligens andel av fellesgjeld. En innbetaling innenfor IN-ordningen gir andelseieren reduserte månedlige felleskostnader tilsvarende reduksjonen i renter og avdrag på borettslagets fellesgjeld. Innfrielse ved innbetaling på IN-ordningen kan gjøres ved sluttoppgjøret før overtakelse eller inntil 2 ganger årlig.

Formuesverdi

Formuesverdien er ikke fastsatt, men fastsettes av Skatteetaten etter en beregningsmodell som hensyntar om boligen er «primærbolig»; (der eier er bosatt iht. Folkeregisteret) eller «sekundærbolig»; (andre boliger man eier).
For primærbolig er formuesverdien 25 % av markedsverdien opp til kr. 10 000 000 og deretter 70 % av den overskytende markedsverdien, og 100 % for sekundærboliger. Det gjøres oppmerksom på at kjøper selv må sende inn opplysninger om adresse, areal, boligtype og byggeår til skattemyndighetene.

Det tas forbehold om endring av satser, og henvises til Skatteetatens websider dersom ytterligere informasjon er ønskelig.

Omkostninger

 I tillegg til kjøpesummen må kjøper betale:
 
1: Dokumentavgift til staten, 2,5% av andel tomteverdi: Kr. 40 900,-
2: Tinglysningsgebyr hjemmelsdokument: Kr. 545,-
3: Tinglysningsgebyr pantedokument: Kr. 545,-
4: Andelskapital: Kr. 5 000,-
5: Etableringsgebyr BRL: 12 500,-
 
Totale omkostninger: Kr. 59 490,-
 
Tilbud om lånefinansiering
Megler formidler gjerne kontakt med rådgiver hos vår samarbeidspartner Sparebank 1 Hallingdal og Valdres. De har konkurransedyktige betingelser samt rask og løsningsorientert behandling av din lånesøknad. Røisland & Co mottar et honorar for denne formidlingen.

Betalingsbetingelser

Forskudd kr 100 000,- innbetales med 7 dagers forfall så snart selger har stilt garanti iht § 12 i Bustadoppføringslova.

Resterende kjøpesum og omkostninger innbetales 7 virkedager før overtagelse.

Dersom boligkjøper ikke ønsker å betale kontantbeløpet på kr 100 000, kan kjøper på avtaletidspunktet inngå en kjøpsgaranti iht.
buofl. §46, 2 ledd. Kjøpsgarantien innebærer at kjøper ikke trenger å betale depositum / forskudd iht. opprinnelig betalingsplan, førtidspunkt for overtakelse av boligen. Ved overtakelse innbetales total kjøpesum i sin helhet. Garantien gjelder fra kjøpstidspunkt og frem til overtakelse og har en kostnad for kjøper på kr 5 000. For mer informasjon og avtale om inngåelse av kjøpsgaranti, kontakt megler.

Dato

Sist oppdatert: 22.05.2026

Denne boligen er en del av Vollebekk Stasjon

Les mer om prosjektet

Tilbake til toppen ¨