Matrikkel
Knr. 3201 Gnr. 41 Bnr. 845
Fornebuveien 31, 1366 LYSAKER
Meld din interesse så vil vi ta kontakt med deg og holde deg løpende orientert om prosjektet!
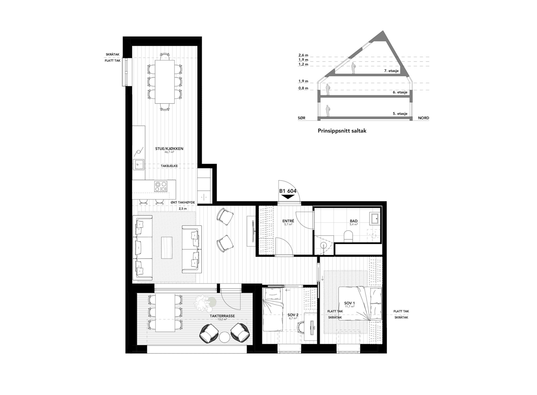
Attraktiv og romslig 3-roms leilighet beliggende i 6. etasje. Leiligheten er effektivt utformet og byr på en lekker privat sydvendt takterrasse. Leiligheten har en stor og åpen stue- og kjøkkenløsning som samtidig er skjermet i hver sin ende. I leiligheten får du økt takhøyde og skråtak, noe som skaper en lys og luftig atmosfære. Kjøkkenet er smart integrert og gir god plass til en stor spiseplass. Boligen har to separate soverom og et delikat bad.
Dette er bare én av flere leiligheter vi har for salg i prosjektet. Se prosjektets hjemmeside og boligvelger for mer informasjon.


Knr. 3201 Gnr. 41 Bnr. 845
Suksessen fortsetter i Poulssons Kvarter – nytt kvartal i salg!
Interessen for Poulssons Kvarter II har vært enorm, og 70 % av leilighetene i første salgstrinn er allerede solgt! Nå har du sjansen til å bli en del av dette unike nabolaget på Fornebu.
I Poulssons Kvarter kan du velg mellom alt fra arealeffektive 2-roms til romslige og eksklusive 4-roms leiligheter. Felles for dem alle er gjennomtenkte planløsninger, høy kvalitet og en ettertraktet beliggenhet med umiddelbar nærhet til både sjøen og sentrumslivet, og ikke minst Fornebubanen.
Prosjektet byr på en rekke kvaliteter både med tanke på materialitet, arkitektur, inngangspartier og fellesfunksjoner, men også gjennomarbeidede planløsninger og gode kvaliteter i leilighetene. Her vil du finne deg en leilighet om du er førstegangskjøper, barnefamilie, eller flytter fra hus til leilighet.
I Poulssons Kvarter vil du befinne deg midt i mellom både strandliv og hverdagsliv. Sjøbris og shopping. Det er kort avstand til fine strender som Storøyodden eller Sollerudstranda, shoppingmuligheter på CC Vest og Fornebu S og gode kollektivtilbud. Siden det ligger i Fornebuporten, inngangen til Fornebu, vil du ha svært god adkomst fra hovedveisystemet og den nye hovedsykkelveien, samt kort avstand til Oslo sentrum. Her trenger du ikke å velge, du får det beste av to verdener.
Grip muligheten – opplev det beste av Fornebu. Velkommen hjem til Poulssons Kvarter.
Poulssons Kvarter tilbyr BoStart som betyr mer bolig for pengene
Veien inn på boligmarkedet kan være lang, men med BoStart blir den litt kortere. Nå tilbyr vi BoStart på Poulssons Kvarter som gjør at du kan kjøpe en helt ny bolig til en lavere pris enn ordinær markedspris.
Å komme inn på boligmarkedet kan være en utfordring selv om du har en fulltidsjobb og god betalingsevne. Høye boligpriser og strenge krav til egenkapital øker utfordringene for mange, spesielt studenter og unge, som ønsker å kjøpe sin første bolig.
I boligvelgeren fremkommer det hvilke enheter som tilbys med BoStart.
Hvordan fungerer BoStart?
Når du kjøper bolig med BoStart må boligen være en bolig du selv skal bo i, altså din primærbolig. Ønsker du å selge boligen din etter hvert, vil Fredensborg Bolig ha retten til å kjøpe boligen tilbake til opprinnelig kjøpesum, justert for endring i boligprisen i perioden. Har det vært en verdistigning etter du overtok, er det du som får verdistigningen.
Prisen Fredensborg Bolig kan kjøpe boligen for tar utgangspunkt i boligprisindeksen til Eiendom Norge. Denne beregnes fra datoen da du overtok boligen og fram til datoen du tar kontakt om tilbakekjøp. Den dagen du velger å selge betaler du for deler av salgsomkostningene. Dette tilsvarer 1 % av den indekserte kjøpesummen (inkludert eventuell fellesgjeld), eierskiftegebyr, oppgjør og innhenting av boligopplysninger.
BoStart har ingen aldersgrense. Du kan velge å kjøpe med BoStart uansett hvor du er i livet – det du trenger er egenkapital og et finansieringsbevis. Så når du leter etter din drømmebolig, se om du kan kjøpe den med BoStart.
Mer informasjon finner du på https://fredensborgbolig.no/bostart/
Poulssons Kvarter tilbyr også BoligInnbytte
Drømmer du om en ny bolig på Poulssons Kvarter, men kvier deg for å selge den du har i dagens marked? Med BoligInnbytte kan du realisere ditt nye hjem trygt og enkelt. Vi garanterer deg en pris for din nåværende bolig slik at du har full økonomisk kontroll.
Denne løsningen er designet for deg som ønsker forutsigbarhet i bolighandelen.
Kjernen i BoligInnbytte er at du «veksler inn» din gamle bolig mot en helt ny fra oss. Den store fordelen er økonomisk trygghet. Du slipper usikkerheten i et svingende marked, ettersom du får en avtalt pris for boligen din uansett.
Slik fungerer BoligInnbytte
Når du finner din nye drømmebolig i et av våre prosjekter, kan du søke om å benytte BoligInnbytte. Ordningen forutsetter at din nåværende bolig oppfyller visse kriterier.
Det viktigste kravet er at verdien på boligen du skal selge, er minst 30 % lavere enn kjøpesummen for den nye boligen. I tillegg må boligen din være i god teknisk stand og ha en attraktiv beliggenhet.
Dersom boligen din kvalifiserer, vil du motta et konkret tilbud. Dette tilbudet inkluderer en garantert salgssum for din gamle bolig, inklusive salgsomkostningene. Dette betyr at du får full økonomisk oversikt og vet nøyaktig hva du har å rutte med før du signerer kontrakten for ditt nye hjem.
Med denne tryggheten kan du glede deg til innflytting, mens Fredensborg Bolig håndterer det praktiske rundt salget av din gamle bolig.
BoligInnbytte er en mulighet for alle som eier bolig i dag og kjøper ny bolig i et av våre utvalgte prosjekter.
Mer informasjon finner du på https://fredensborgbolig.no/nybygg/boliginnbytte
Poulssons Kvarter tilbyr også Dobbeltboligforsikring
Dobbelboligforsikring er en forsikring som gir deg økonomisk hjelp hvis det tar tid å selge din egen bolig. Forsikringen dekker de faktiske merutgiftene ved å sitte med to boliger med inntil 15.000 kroner per måned, og maksimalt 135 000 kroner totalt.
Å kjøpe ny bolig før man har solgt sin eksisterende bolig blir dermed tryggere. Forsikringen gir deg en garanti mot doble boutgifter. Det skal være trygt å bytte bolig.
Fornebuveien 31, 1366 LYSAKER
Knr. 3201 Gnr. 41 Bnr. 845
Fornebuhøyden Utvikling AS
Detaljreguleringen ble vedtatt juni 2023 og rammesøknad er planlagt sendt til kommunen oktober 2025. Fysisk oppstart av grunnarbeider har en forventet oppstart 2. halvår 2026. Byggetiden for BT1 er forventet å være cirka 24 til 30 måneder fra fysisk oppstart av grunnarbeider.
En senere igangsetting og/eller en lengre byggetid enn forventet kan medføre en senere overtakelse. Ferdigstillelse av utomhusområder tilknyttet byggene og felles utomhus- og infrastrukturarealer vil kunne bli utført etter overtakelse, blant annet avhengig av årstiden.
Kjøp av parkeringsplass i garasjeanlegg koster kr 690 000,-. Drifts- og vedlikeholdskostnader for p-plass er stipulert til kr 150,- pr. plass pr. mnd. og blir fakturert til de som kjøper bruksrett til p-plass. Merk at de større leilighetene har fortrinnsrett til kjøp av garasjeplasser.
Lukket og låsbar plass med stikk til lagring av lastesykkel kan kjøpes til kr 85 000,-.
Sosiale soner
Poulssons Kvarter tilbyr et mangfold av fellesfasiliteter for å skape et levende og sosialt nabolag. Det luftige inngangspartiet er ikke bare en port til hjemmet ditt, men også et naturlig samlingspunkt for naboene, med shuffleboard og koselige sitteplasser for avslappede samtaler og hyggelige øyeblikk.
Golfsimulator
Golfsimulatoren er et unikt tilbud som passer både nybegynnere og erfarne spillere. Her kan du trene teknikk, spille kjente baner fra hele verden eller utfordre naboen til en runde – alt uavhengig av vær og sesong. Et sosialt og underholdende tilskudd til hverdagen.
Treningsrom
Det velutstyrte treningsrommet gir deg enkel tilgang til en aktiv livsstil. Her finner du både kondisjonsapparater, styrkeutstyr og frivekter, slik at du kan tilpasse treningen til egne ønsker og behov. Når treningssenteret bare ligger noen skritt unna leiligheten, blir det lettere å prioritere helsen i en travel hverdag.
Forsamlingslokale
Skal du feire en spesiell anledning, står fellesrommet til disposisjon. Komplett med kjøkken, sitteplasser og terrasse er fellesrommet perfekt for alt fra bursdagsfeiringer til uformelle sammenkomster.
For hjemmekontorentusiaster og skippertaksstudenter lages det et rolig og produktivt miljø, med alt de trenger for å få ting gjort.
Det følger med én bod til hver leilighet enten i leiligheten eller i bodanlegget i garasjekjeller. Størrelsen på boden vil avhenge av størrelsen på leiligheten, og om det er bod i leiligheten eller ikke. Samlet areal på boder i kjeller og leilighet vil være hhv. min. 5,0 m² (leilighet over 50 m² BRA-i) og min. 2,5 m² (leilighet under 50 m² BRA-i).
I Poulssons Kvarter får du gjennomtenkte løsninger som gjør hverdagen både enklere og mer behagelig. På de neste sidene finner du en oversikt over både standard- og tilvalgsløsninger. Disse kombinerer komfort, design og funksjon – og gir deg friheten til å skape et hjem som passer din livsstil.
Digital styring av lys og varme
Hjemmet kan bli utstyrt med et avansert digitalt system som enkelt lar deg kontrollere lys og varme. Dette er ikke bare praktisk og komfortabelt, men også energieffektivt. Med trådløs lysstyring kan du flytte brytere og lamper etter behov og ønske, noe som gir deg full frihet til å tilpasse belysningen i hjemmet ditt.
Nøkkelfri adgang
Sikkerheten i ditt nye hjem ivaretas med et nøkkelfritt adgangssystem. Du kan enkelt låse opp hovedinngangen med adgangsbrikke eller mobiltelefon, helt uten nøkler. På leilighetsdøren leveres standard løsning med vanlig nøkkel. Nøkkelfri adkomst til leilighetsdør kan bestilles som tilvalg mot tillegg i pris.
Styr huset med telefonen
Muligheten til å styre lys, varme, sikkerhet og andre hjemmefunksjoner fra hvor som helst, når som helst, gjennom din smarthus-app. Foretrekker du en mer analog tilnærming, kan du selvfølgelig fortsatt også bruke de veggmonterte panelene og bryterne.
Integrert videokommunikasjon
Med den digitale porttelefonen med integrert kamera kan du både se, snakke med, og låse inn besøkende som står ved hovedinngangen, via mobiltelefon eller nettbrett.
Fremtidssrettede løsninger
De digitale løsningene i ditt nye hjem designes for å være fleksible og kan tilpasses over tid. Dette betyr at du kan oppgradere eller legge til funksjoner etter eget ønske etter innflytting.
Deler av løsningene over er tilvalgsmuligheter du som kjøper kan benytte deg av.
Formuesverdien er ikke fastsatt, men fastsettes av Skatteetaten etter en beregningsmodell som hensyntar om boligen er «primærbolig»; (der eier er bosatt iht. Folkeregisteret) eller «sekundærbolig»; (andre boliger man eier).
For primærbolig er formuesverdien 25 % av markedsverdien opp til kr. 10 000 000 og deretter 70 % av den overskytende markedsverdien, og 100 % for sekundærboliger. Det gjøres oppmerksom på at kjøper selv må sende inn opplysninger om adresse, areal, boligtype og byggeår til skattemyndighetene.
Det tas forbehold om endring av satser, og henvises til Skatteetatens websider dersom ytterligere informasjon er ønskelig.
I tillegg til kjøpesummen må kjøper betale:
1: Dokumentavgift til staten, 2,5% av andel tomteverdi: Kr. 84 220,-
2: Tinglysningsgebyr hjemmelsdokument: Kr. 545,-
3: Tinglysningsgebyr pantedokument: Kr. 545,-
4: Andelskapital: Kr. 5 000,-
5: Etableringsgebyr BRL: 12 500,-
Totale omkostninger: Kr. 102 810,-
Tilbud om lånefinansiering
Megler formidler gjerne kontakt med rådgiver hos vår samarbeidspartner Sparebank 1 Hallingdal og Valdres. De har konkurransedyktige betingelser samt rask og løsningsorientert behandling av din lånesøknad. Røisland & Co mottar et honorar for denne formidlingen.
Betalingsplan
Forskudd kr 100 000,- forfaller til betaling med 7 dagers betalingsfrist etter avtaleinngåelse og så snart selger har stilt garanti iht § 12.
Resterende del av kjøpesum, omkostninger og eventuelle tilvalg forfaller til betaling senest 7 virkedager før overtagelse.
Selger tar forbehold om rammetillatelse og igangsettingstillatelse for prosjektet, og at tillatelsene blir gitt med omsøkte dispensasjoner knyttet til oppfyllelse av rekkefølgekrav, og for øvrig uten vilkår eller krav om endringer av vesentlig betydning for prosjektet og de enkelte leilighetene.?
Selger tar forbehold om 60% solgte leiligheter iht. totalverdi i prislisten for BT1 (Witt), og åpning av byggelån.
Selger tar forbehold om tilfredsstillende kontrakt med entreprenør.
Selger tar forbehold om at selgers styre beslutter byggestart.?
Selger må senest innen 15. april 2027 gi skriftlig underretning til kjøper dersom ovennevnte forbehold påberopes og kjøpekontrakten kanselleres.
Sist oppdatert: 20.04.2026
B5-307
3. Etasje
2-roms
45 m²
kr 5 790 000,-
B5-407
4. Etasje
2-roms
45 m²
kr 5 890 000,-
B5-507
5. Etasje
2-roms
45 m²
kr 5 990 000,-
B5-605
6. Etasje
2-roms
39 m²
kr 6 190 000,-
B5-003
0. Etasje
2-roms
49 m²
kr 6 290 000,-
B5-403
4. Etasje
2-roms
45 m²
kr 6 590 000,-
B1-603
6. Etasje
2-roms
42 m²
kr 6 790 000,-
B1-403
4. Etasje
3-roms
47 m²
kr 6 890 000,-
B1-503
5. Etasje
3-roms
47 m²
kr 7 090 000,-