Eiendommen
Knr. 3201 Gnr. 5 Bnr. 131
Komplett Salgsoppgave
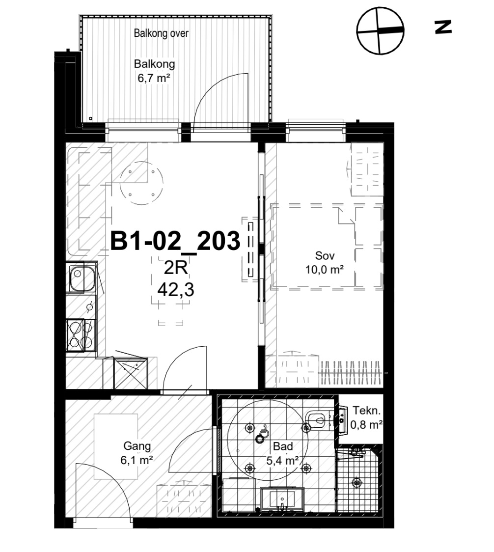
Vallerveien 146- leilighet B1-02-203, 1346 GJETTUM
Meld din interesse så tar vi kontakt med deg og holder deg orientert om boligen!
Dette er et videresalg vedrørende leilighet B1-02_203 i SPG prosjekt Vallergenda. En ny 2-roms leilighet med vestvendt balkong på ca. 6,7 m². Balansert ventilasjon sørger for godt inneklima og lave kostnader til oppvarming. Boligen vil holde en gjennomgående god standard og fremstå som lys og tidsriktig med moderne materialvalg.
– Lav dokumentavgift.
– 2-roms med høy standard
– Vestvendt balkong på 6,7 m²
– Mulighet for kjøp av garasjeplass
– 1-stavs eikeparkett
– 5 års utbyggergaranti
– Energivennlig og godt isolert
– Heis
– Kjellerbod på ca. 5 m²
– Vallerstua – et felles hus med kjøkken, sitteplasser og tilknyttede uteområder.
– Felles hobbyrom og felles takterrasse

Knr. 3201 Gnr. 5 Bnr. 131
Totalt bruksareal BRA: 45 kvm
BRA-i: 42 kvm
BRA-e: 3 kvm
BRA-b: 0 kvm
Åpent areal: (Terrasse, Balkong)6,7 kvm
Arealbeskrivelse;
Arealet er beregnet ut fra Norsk standard NS 3940:2023. BRA-i: Internt arealet innenfor boligens omsluttende vegger, inkludert sjakt. BRA-e: Eksternt areal som boligen har eksklusiv bruksrett til, men som ikke ligger i boligen, f.eks. kjellerbod. BRA-b: Areal for innglasset balkong med veggareal. Total BRA = Summen av BRA-i, BRA-e og BRA-b. TBA er areal på terrasse og balkong. Arealet oppgis ved salg, men inngår ikke i BRA. Oppgitt romareal er netto romareal. De oppgitte arealer er å betrakte som cirka-arealer. Partene har ingen krav mot hverandre dersom arealet skulle vise seg å være 5 % mindre / større enn det oppgitte areal.
Felles parkeringsanlegg under/ved leilighetsbyggene hvor det, i prioritert rekkefølge, vil bli anledning til å kjøpe parkeringsplass, tilrettelagt for lademulighet til El-bil gjennom avtale med Lyse Smartly Charge. Boligkjøper kan selv velge å betale for komplett montert ladestasjon som et engangsbeløp, eller som rentefri nedbetaling over 36 måneder gjennom sin strømregning (forutsetter
strømabonnement fra Lyse). Bestilling av ferdigmontert ladestasjon gjøres direkte med driftsleverandør for lading, via egen bestillingslink: https://www.smartly.no/boligselskap-elbilladerschneider
To av parkeringsplassene er tiltenkt for delebil-løsning gjennom Hyre. Delebilordningen kan også benyttes av nabolaget for øvrig.
Dekke av betong eller asfalt i kjørebanen i garasjen. Vegger og tak av betong eller mur, støvbundet hvit. Netto høyde minimum 2,25 m. Lavere høyde i mindre områder (langs med vegger og søyler)
pga. tekniske føringer vil kunne forekomme.
Parkeringsplasser vil så langt det er mulig ha en bredde på ca. 250 cm, basert på bruk av faste brukere. Det må påregnes en bæresøyle som begrenser bredden i skillet mellom parkeringsplassene.
Dersom parkeringsplassen er plassert ved mindre hensiktsmessig kjøre/vendeareal, vil selger bestrebe å kompensere dette med større bredde på selve parkeringsplassen. Fri høyde på p-plasser vil normal være 225 cm, dog kan det forekomme tekniske installasjoner på vegg som kan begrense høyden i taket på parkeringsplassens innerste del. Eventuelle El-billadere vil normalt bli plassert på parkeringsplassens endevegg.
Innvending organisering av parkeringskjelleren fastsettes i detaljprosjektering.
Det leveres motorstyrt garasjeport med automatisk portåpner. Portåpner aktiveres ved hjelp av anrop.
Tilbudte plasser kan fravike anbefalinger i NBI/SINTEFs blad 312.130 eller senere utgaver. Selger vil også kunne tilby parkeringsplasser med redusert bredde eller med flere begrensninger enn nevnt over. Dette vil i så fall bli særskilt avtalt i de tilfeller med kjøper.
Det gjøres særskilt oppmerksom på at det i henhold til eierseksjonsloven tilrettelegges for en bytteordning for HC-plasser, beskrevet nærmere i vedtektene for eierseksjonssameiet, pkt. 16.
Energibehovet til romoppvarming og oppvarming av tappevann dekkes med minimum 60% energifleksible systemer iht. TEK17. Energiforsyningen skjer via fjernvarme plassert i egen energisentral i tilknytning parkeringskjeller. Oppvarming av rom (dvs. termisk varme) løses ved en vannbåren varmekonvektor i hver leilighet, med unntak av baderom der det blir elektrisk gulvarme.
Oppvarming av varmt tappevann forsynes fra varmeveksler i varmesentral. I hver leilighet blir det et rør-i-rør-skap for fordeling av varmt tappevann og kaldtvann.
Rør-i-rør skapet plasseres i vegg mot sjakt, alternativt i vegg som vender inn mot innvendig bod. Der plassering i bod ikke er mulig vil rør-i-rør skapet vende inn mot bod/vask, vaskerom, badet, gang/entre eller et soverom i denne prioriterte rekkefølgen.
Før overtakelse vil det bli utstedt energiattest for den enkelte bolig. Boligens energibehov er prosjektert iht. TEK17. Energimerkingen er beregnet til å ligge i kategori C, dagens nivå. Det tas forbehold for at avvik fra dette vil forekomme, dette spesielt for boliger med mye vindusflate.
Byggestart er vedtatt og bygging ble igangsatt sommeren 2024. Byggetiden er estimert til ca. 26 måneder fra fysisk oppstart av grunnarbeider. Boligen er planlagt ferdigstilt i tidsintervallet 15.06.26-15.10.26.
Ca. 10 uker før ferdigstillelse vil selger skriftlig varsle kjøper om endelig overtagelsestidspunkt. Den endelige datoen er bindende og dagmulktsutløsende og skal ligge innenfor tidsintervallet.
Dersom arbeidene forsinkes av forhold utenfor selgers kontroll har selger krav på fristforlengelse jf. buofl. § 11. Selger skal informere kjøper dersom det kan påregnes endringer i forhold til den planlagte perioden for overtagelse.
Boligprosjektet Vallergrenda ligger på Gjettum, midt i Bærum. SPG er utbygger av prosjektet som er en del av konseptet «Det gode nabolag», et samarbeidsprosjekt med Bærum kommune og Husbanken med gunstige lånebetingelser.
På en høyde på Gjettum i Bærum, med utsikt over fjorden, ligger Vallergrenda. Her bor du rett ved foten av Kolsåstoppen, med marka som nærmeste nabo. Området byr på mange turmuligheter, både om sommeren og vinteren. Sett deg på sykkelen, og du er ved idylliske Dælivann på ti minutter. Sandvika er bare en syv minutters busstur unna, og til Oslo kommer du raskt med T-bane. Det meste er innen rekkevidde her. Vallergrenda er et bærekraftig og inkluderende nabolag med
hverdagsglede og fellesskap som bærebjelker. I prosjektet er det lagt stor vekt på å bevare så mye urørt natur som mulig. Det å leve tett på naturen gir glede, overskudd og trivsel. De grønne og frodige uterommene på området er tenkt som samlingspunkt for alle som bor her.
I dette boligprosjektet vil gode fellesområder og samhørighet stå sentralt!
Det grønne og frodige tunet er samlingspunktet i Vallergrenda. Her finner du den majestetiske eika – tuntreet – som er like flott om sommeren som om vinteren. Liker du å dyrke dine egne grønnsaker og urter, er det noe du kan ta tak i i kjøkkenhagen. Sentralt på tunet finner du Vallergrendas storstue, Vallerstua, med kjøkken, sittekroker og tilknyttede uteplasser. Her kan du invitere venner og kjente til hyggelig lag, eller du kan ta en kaffe og lese avisen sammen med naboen din. I Vallerstua er det enkelt å finne noen å slå av en prat med. Uansett om du skal ha sommerfest eller bursdag, eller bare blir lokket ut av vårsola en vanlig tirsdag, kan du benytte deg av Vallerstua og tilhørende tunområde.
I det felles hobbyrommet finner du fasiliteter for å fikse sykkelen eller smøre skiene. Kanskje får du samtidig løst noen verdensproblemer sammen med naboen.
Takterrassen er tilgjengelig for alle. Her kan du se solen gå ned over Oslofjorden i godt lag. På takterrassen leverer vi utekjøkken med tilgang til vann og strøm. Her kan du arrangere hyggelige lunsjer eller middager. Her er det tilrettelagt for at du kan nyte en herlig og avslappet atmosfære mens du tar inn den fantastiske utsikten over Vallergrendas naturskjønne omgivelser
Eiendommen er i dag regulert til boligbebyggelse/blokkbebyggelse, se reguleringskart og – bestemmelser datert 30.05.2023 og planID 2020007. Reguleringen tilsier boligbebyggelse med tilhørende leke- og uteoppholdsarealer. Bebyggelsen har til hensikt å skape et blandet bomiljø og skal bestå av omsorgsboliger med tilhørende arbeids-/omsorgsbase, fellesrom og felleslokale, i
kombinasjon med boligtyper for førstegangskjøpere, familieleiligheter for startslånstakere og øvrige leiligheter. Det er regulert naturområde øst for Eiendommen.
Driftskostander: 1917-
TV/bredbånd: 49,-
A konto fjernvarme: 608,-
Kjøper plikter å betale sin andel av fellesutgiftene for Borettslaget fra overtakelse. Budsjett over fellesutgiftene stadfestes av Borettslaget på konstituerende generalforsamling forut for overtakelse. Fellesutgiftene består blant annet av kapitalkostnader (som omtalt nedenfor) og drifts- og vedlikeholdskostnader. Månedlige drifts- og vedlikeholdskostnader for Borettslaget det første driftsåret er stipulert til ca. kr 52-61 per m² BRA-i per måned. Estimerte fellesutgifter per bolig fremkommer av prislisten.
Det er p. d ikke eiendomsskatt
Boligen er nyoppført og det foreligger derfor ikke formuesverdi p.t.
For mer informasjon, se skatteetatens hjemmeside og kalkulator for beregning av formuesverdi.
I tillegg til kjøpesummen må kjøper betale:
1: Dokumentavgift til staten, 2,5% av andel tomteverdi: Kr. 24 477,-
2: Tinglysningsgebyr hjemmelsdokument: Kr. 480,-
3: Tinglysningsgebyr pantedokument: Kr. 910,-
4: Andelskapital: Kr. 5 000,-
Totale omkostninger: Kr. 30 867,-
Tilbud om lånefinansiering
Megler formidler gjerne kontakt med rådgiver hos vår samarbeidspartner Sparebank 1 Hallingdal og Valdres. De har konkurransedyktige betingelser samt rask og løsningsorientert behandling av din lånesøknad. Røisland & Co mottar et honorar for denne formidlingen.
Sameiet og Borettslaget
Eiendommen er planlagt seksjonert i et eierseksjonssameie (Sameiet), som vil bestå av én samleseksjon bolig og næringsseksjoner:
• Boligdelen i prosjektet vil organiseres som borettslag i samleseksjon bolig (Borettslaget). Selger eller et selskap utpekt av selger vil stifte og tegne alle andelene i Borettslaget og skyte samleseksjon bolig inn i det nystiftede laget. Borettslaget vil inneholde 67 andeler som er tilknyttet én bolig hver samt fellesareal.
• Næringsseksjonene i Sameiet vil består av én seksjon med personalbase/fellesrom tilknyttet omsorgsboligene og ca. 30 parkeringseksjoner i innendørs garasjekjeller.
• Tomten og de delene av bebyggelsen på Eiendommen som ikke er selvstendige seksjoner, vil utgjøre fellesareal i Sameiet.
Selger tar forbehold om nødvendige endringer i den tingsrettslige strukturen for Eiendommen.
Borettslagets bokførte verdi på tomt og bygningsmasse vil tilsvare markedsverdi. For bygningsmassens del vil også skattemessig inngangsverdi tilsvare markedsverdien etter overdragelse fra Selger
Borettslaget vil ha en fleksibel finansieringsordning hvor en kan nedbetale hele eller deler av fellesgjelden etter eget ønske. Fellesgjelden vil finansieres av Husbanken, og borettslaget har mulighet for en finansieringsmodell på opptil 70% fellesgjeld. Lånet vil være et annuitetslån over 30 år med 5 års avdragsfrihet og flytende rente iht. Husbankens til enhver tid fastsatte rentesats. Det er
i budsjettet lagt til grunn at fellesgjelden vil forbli et annuitetslån med rente pr. 22.10.24 på 4,677%. Det presiseres at renten vil endres i samsvar med den generelle renteutviklingen og långivers lånevilkår, og således påvirke størrelsen på renter og avdrag og dermed felleskostnadene.
For de kjøperne som ikke ønsker å ha fellesgjeld vil det bli mulighet for å innfri denne i forbindelse med overtagelse. Ta kontakt med prosjektmegler for mer informasjon. Kjøpere av andeler som ikke ønsker fellesgjeld plikter å inngå avtale om individuell nedbetaling av fellesgjeld (IN-avtale).
Egenkapitalen som betales utover 30 % av kjøpesummen, vil ved overtakelse av boligen i sin helhet bli benyttet til å nedbetale boligens andel av fellesgjeld. I tillegg kommer omkostninger.
Fellesgjeld
Renter og avdrag på felleslån betales av Borettslaget via inntekter fra andelseiernes månedlige innbetalinger av felleskostnader. Felleskostnadene består av kapitalkostnader og driftskostnader.
Kapitalkostnader frem til Borettslagets lån blir utbetalt
Kjøper svarer for felleskostnader og kapitalkostnader fra overtagelsesdato. Dersom Borettslagets felleslån ikke er utbetalt til selger ved overtagelse, er Borettslaget forpliktet til å betale kapitalkostnader (renter) for Borettslagets fellesgjeld frem til utbetalingstidspunkt.
Denne rentekostnaden er omfattet av kapitalkostnadene andelseier skal betale til Borettslaget fra overtagelsesdato, og tilsvarer samme beløp som om det hadde påløpt renter for boligens andel av felleslånet fra overtagelsesdato.
IN-ordning
Borettslaget vil inngå avtale med Klare Finans om IN-ordning (individuell nedbetaling fellesgjeld). Fellesgjeld er gjeld Borettslaget har overfor långiver. Andelseierne har ikke noe personlig ansvar for fellesgjelden, men hver andelseier er med på å betjene fellesgjelden ved å betale sine felleskostnader til Borettslaget. IN-ordningen åpner for at den enkelte andelseier kan nedbetale boligens andel av fellesgjelden.
Innbetaling innenfor IN-ordningen gir andelseieren reduserte månedlige felleskostnader tilsvarende reduksjonen i renter og avdrag på Borettslagets fellesgjeld. Innbetaling fra andelseier går til nedbetaling av Borettslagets fellesgjeld.
Etter overtakelse kan nedbetaling av andel fellesgjeld gjøres 2 ganger i året med minimum kr.100.000 per innbetaling. Ordningen er betinget av at fellesgjelden løper med flytende rente. Det presiseres at en nedbetalt andel fellesgjeld ikke kan reverseres.
For å kunne tillate innbetaling av fellesgjeld ved overtagelse, er det en betingelse at borettslagets lån utbetales ved siste dato for overtagelse. Det betyr at kjøper må betale sin andel av renter på borettslagets lån fra den dato hen overtar boligen og frem til lånet utbetales.
Før innfrielse må det inngås en avtale mellom kjøper og Vallergrenda borettslag v/Usbl. Denne avtalen gir bl.a kjøper sikkerhet for innbetalingen. Avtalen må signeres før innbetaling aksepteres.
Beløpet som ønskes innfridd må innbetales til borettslagets IN-konto 14 dager før siste innflytting/overtagelse – uavhengig når kjøper selv flytter inn. Minimumsbeløp er kr 100 000.
Renter for perioden fra innflytting til lånet utbetales faktureres separat.
Ved IN innfrielse påløper et gebyr til kjøper på p.t. kr 3 600,- ink. mva. for å dekke merarbeidet rundt ordningen. Dette faktureres separat.
Garantert betaling av felleskostnader– Sikringsordning
Borettslaget vil søke om å inngå avtale med Klare Finans om garantert betaling av felleskostnader. Avtale om sikringsordning innebærer blant annet at Klare Finans vil:
• Betale borettslaget summen av de månedlige felleskostnadene, både drifts- og kapitalkostnader, på
en fast dato hver måned.
• Ta ansvaret for innkreving av felleskostnadene i sin helhet, og overta risikoen for tap ved mislighold
av felleskostnadene, inntil 5G.
• Overta borettslagets legalpant i andelen.
Premien for sikring utgjør pt. 0,6 % av borettslagets felleskostnader. Premien er hensyntatt i budsjettet for felleskostnadene. Oppsigelsestiden for avtalen er seks måneder. Dersom forretningsføreravtalen med USBL sies opp, vil avtalen om sikringsfond opphøre samtidig. Alternativt vil det bli søkt om annen sikringsordning f.eks. Borettslagenes Sikringsordning via NBBL.
Selger vil være ansvarlig for felleskostnader for eventuelle usolgte leiligheter per ferdigstillelse.
Forbrukerinformasjon om budgivning er vedlagt denne salgsoppgaven.
Alle bud og budforhøyelser må inngis skriftlig. I tillegg må legitimasjon være fremlagt sammen med signatur fra budgiver(e). Vi oppfordrer til å gi bud elektronisk via GI BUD knappen på finn.no, eller roislandco.no. Da vil samtlige vilkår bli oppfylt. Eventuelle forhøyelser eller endringer av budet kan bekreftes på SMS eller på e-post. Vi oppfordrer alltid til å kontakte megler pr. telefon i tillegg da forsinkelser i SMS og mail kan forekomme.
Megler skal legge til rette for en forsvarlig avvikling avbudrunden. I forbrukerforhold (dvs. der selger er forbruker) skal megleren ikke formidle bud med kortere akseptfrist enn kl. 12.00 første virkedag etter siste annonserte visning. Etter denne fristen bør budgivere ikke sette en kortere akseptfrist enn at megler har mulighet til, så langt det er nødvendig, å orientere selger, budgivere og øvrige interessenter om bud og forbehold. Dersom bud inngis med en frist som åpenbart er for kort til at megleren kan avvikle budrunden på en forsvarlig måte som sikrer selger og interessenter et tilstrekkelig grunnlag for sine handlingsvalg, vil megler fraråde budgiver å stille slik frist.
Megler skal ikke formidle bud med forbehold om at budet eller forbehold i budet skal holdes skjult (hemmelig) for andre budgivere og interessenter.
Megleren vil uoppfordret gi sin vurdering av det enkelte bud overfor selger, når budet er gitt innenfor fristene som nevnt over.
Megleren skal, så langt det er nødvendig og mulig, holde budgiverne skriftlig orientert om mottatte bud, herunder budets størrelse, forbehold og akseptfrist. Megler skal så snart som mulig bekrefte skriftlig overfor budgivere at budene deres er mottatt. For øvrig vil megler, på forespørsel fra andre, opplyse om aktuelle bud på eiendommen, herunder relevante forbehold.
Kopi av budjournal skal gis til kjøper og selger utenugrunnet opphold etter at handel er kommet i stand. Dersom det er viktig for budgiver å bevare sin anonymitet, bør budet formidles gjennom fullmektig.
I henhold til eiendomsmeglingsforskriften § 6-3 første ledd har megler en plikt til å oppfordre oppdragsgiver (selger) til ikke å ta imot bud direkte fra budgiver, men henvise til megler. Megler oppfordrer partene til å lese retningslinjene for budgivning vedlagt i salgsoppgaven.
Et eventuelt bud fra selger til kjøper (såkalte «motbud»), er avtalerettslig bindende tilbud som medfører at det foreligger en avtale om salg av eiendommen dersom budet i rett tid aksepteres av kjøper.
Budgiverens opplysning om han er forbruker eller næringsdrivende:
Avhendingsloven ble endret med virkning fra 1. januar 2022 og innebærer blant annet at «som den er»-forbehold ikke har virkning i forbrukerkjøp, jf. avhendingsloven § 3-9 andre ledd, jf. § 1-2 tredje ledd. Med forbrukerkjøper menes en kjøper av eiendom som er en fysisk person og som ikke hovedsakelig handler som ledd i næringsvirksomhet. «Som den er»-forbehold kan imidlertid fremdeles tas utenfor forbrukerkjøp. Hvorvidt eiendommen selges til en forbrukerkjøper eller ikke, kan derfor ha betydning for fordelingen av risiko mellom partene: hvis kjøperen er forbruker, bærer selger ansvaret dersom eiendommen ikke samsvarer med de krav til kvalitet, utrustning og annet som følger av avtalen, jf. avhendingsloven § 3-1. Hvis kjøperen er profesjonell, bærer imidlertid selger ansvaret for slike avvik bare i den grad eiendommen er i vesentlig ringere stand enn kjøperen hadde grunn til å regne med ut fra kjøpesummen og forholdene ellers.
Budgivers opplysning om han er forbruker eller ikke, skal gis i forbindelse med formidling av budet, for eksempel ved at det i budskjemaet krysses av for om man er forbrukerkjøper eller ikke. Budgiver må informere megler om han opptrer som forbruker eller ikke-forbruker ved budgivning for at andre parter involvert i budrunden kan ta stilling til forhold av faktisk og rettslig art som er viktige i forbindelse med avtalen. Megler har begrenset mulighet til å kontrollere budgivers egenopplysning om vedkommende er næringsdrivende eller ikke, og budgiverens skriftlige opplysning om han er forbrukerkjøper eller ikke, må legges til grunn.
Kjøpet følger bustadoppføringslova av 13. juni 1997 nr. 43. Loven regulerer forhold hvor selger er profesjonell og kjøper er forbruker. Iht. loven plikter selger å stille garanti som sikkerhet for oppfyllelse av sine forpliktelser etter kjøpekontrakt senest ved forbehold frafalt. Garantien utgjør 3 % av kjøpesum frem til overtakelse. Beløpet økes til 5 % av kjøpesum og står 5 -fem- år etter overtakelsen jf. buofl. § 12, 3 ledd. Loven kan i sin helhet fås ved henvendelse til megler. Loven finnes også på www.lovdata.no.
I tilfeller hvor kjøper er profesjonell iht. bustadoppføringslova, dvs. gjør kjøpet som ledd i næringsvirksomhet, kan selger kreve at avtalen reguleres av Lov om avhending av fast eiendom av 3. juli 1992 nr. 93 (avhendingslova).
Det forutsettes at hjemmel overføres til kjøper.
Ingen kan direkte eller indirekte erverve mer en to boligseksjoner i et boligsameie jf. eierseksjonsloven § 23. Dersom et erverv har funnet sted i strid med eierseksjonslovens regler kan Kartverket nekte overskjøting. Dersom overskjøting blir nektet, er kjøper likevel forpliktet til å gjennomføre handelen med selger, og oppgjør til selger vil finne sted tross manglende overskjøting.
Eiendomsmeglere er underlagt Lov om hvitvasking. I henhold til Lov av 01.06.18 nr. 23 om tiltak mot hvitvasking og terrorfinansiering (Hvitvaskingsloven), er megler pliktig til å gjennomføre identitetskontroll av alle involverte parter, herunder fullmektiger. Dette innebærer bl.a. å bekrefte kunders og reelle rettighetshaveres identitet på bakgrunn av fremvist gyldig legitimasjon eller på annen godkjent måte, samt å innhente opplysninger om kundeforholdets formål og tilsiktede art. Dersom slike kundetiltak ikke kan gjennomføres, kan megler ikke etablere kundeforholdet eller utføre transaksjonen. Hvitvaskingsloven pålegger også eiendomsmegler å innhente redegjørelse av midlenes opprinnelse. Dette besvares av samtlige kjøpere herunder parter som opptrer på vegne av kjøper, ved en såkalt kundekontroll.
Hvis kjøper ikke bidrar til gjennomføring av kundekontrollen og dette fører til at transaksjonen blir forsinket eller ikke kan gjennomføres, vil dette ansees som mislighold av avtalen og gi selger rettigheter etter avhendingslova eller bustadoppføringsloven kapittel 5. I tilfeller der selger ikke bidrar til gjennomføring av løpende kundekontroll underveis i oppdraget, er det selger som misligholder sine forpliktelser etter avtalen og gi kjøper rettigheter etter avhendingslovens eller bustadoppføringsloven kapittel 4. Partene er selv ansvarlige for eventuelle kostnader og ansvar dette kan medføre. Eiendomsmegleren eller eiendomsmeglingsforetaket kan ikke holdes ansvarlig for de konsekvenser dette vil kunne få for partene eller andre som har interesser i eiendomshandelen.
Ved eventuelt tilbakehold av informasjon eller mistenkelige transaksjoner, plikter eiendomsmegleren å melde fra til Økokrim. Med «mistenkelig transaksjon» menes transaksjon som mistenkes å involvere utbytte fra straffbar handling, eller som skjer som ledd i terrorfinansiering. Manglende mulighet for kundekontroll kan også være et forhold som gjør transaksjonen mistenkelig.
Det anbefales at kjøper innbetaler kjøpesummen som ikke kommer fra låneinstitusjon, i en samlet innbetaling fra egen konto i norsk bank.
Selger forbeholder seg også retten til å kreve dokumentasjon av kjøpers finansiering.
Det kan ikke gjøres ansvar gjeldende mot meglerforetaket som følge av at meglerforetaket overholder sine plikter etter Hvitvaskingsloven.
I henhold til personopplysningsloven gjør vi oppmerksom på at interessenter kan bli registrert for videre oppfølging.
Bunde Eiendom AS
Oppdragsnummer: 3-0006/26
Anne Heidi Rødal
Sist oppdatert: 24.04.2026