Eiendommen
Knr. 3201 Gnr. 41 Bnr. 57
Komplett Salgsoppgave
Poulssons Kvarter, 1366 LYSAKER
Meld din interesse så tar vi kontakt med deg og holder deg orientert om boligen!
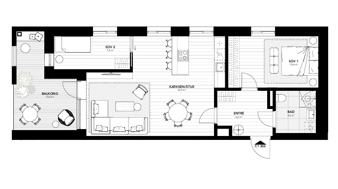
Dette er et resalg av kontrakt gjeldende leilighet C1-306 i prosjektet Poulssons Kvarter i bygget Rode Moderne 3-roms med balansert ventilasjon sørger for godt inneklima. Sentral beliggenhet på Fornebu med kort vei til butikker og kollektivt. Leiligheten får en attraktiv beliggenhet med nærhet til sjø og sentrum, grønne parker og spennende arkitektur. Her får du tilgang til et helt nytt og unikt boligkvartal, med umiddelbar nærhet til det du trenger, når du trenger det.
* Smarte og oppgraderte tilvalg
* Grasjeplass kan kjøpes til Kr.590 000,-
* Innebygd balkong på ca. 13,3 m²
* 5 års utbyggergaranti
* Heis
* Et mangfold av fellesfasiliteter, bl.a fellesrom, kontorhuber og treningsrom
* Shuffleboard og sosialsoner
* Vestvendt og ende- leilighet
* Overtagelse er est. Q1 2027/Q4 2026
* Bod

Knr. 3201 Gnr. 41 Bnr. 57
Totalt bruksareal BRA: 75 kvm
BRA-i: 70 kvm
BRA-e: 5 kvm
TBA: 13 kvm
Arealbeskrivelse;
Arealet er beregnet ut fra Norsk standard NS 3940:2023. BRA-i: Internt arealet innenfor boligens omsluttende vegger, inkludert sjakt. BRA-e: Eksternt areal som boligen har eksklusiv bruksrett til, men som ikke ligger i boligen, f.eks. kjellerbod. BRA-b: Areal for innglasset balkong med veggareal. Total BRA = Summen av BRA-i, BRA-e og BRA-b. TBA er areal på terrasse og balkong. Arealet oppgis ved salg, men inngår ikke i BRA. Oppgitt romareal er netto romareal. De oppgitte arealer er å betrakte som cirka-arealer. Partene har ingen krav mot hverandre dersom arealet skulle vise seg å være 5 % mindre / større enn det oppgitte areal.
Garasjeplass kan kjøpes i tillegg til kr 590.000,-
Oppvarming og varmt tappevann planlegges via fjernvarme.
Energimerking gir relevant informasjon om hvor energieffektiv boligen er. Energiattester vil bli utarbeidet av selger etter at detaljprosjekteringen er gjennomført, og utleveres ved overtakelse av boligen. Energiattesten skal dokumenter at man minst tilfredsstiller Energiklasse (fyll inn). Se www.energimerking.no for mer informasjon om energimerking av boliger.
Det tas forbehold for at avvik fra dette vil forekomme, dette spesielt for boliger med mye vindusflate.
Leilighetene bygges etter TEK 17.
GENERELT OM BEBYGGELSE/BYGGEMÅTE |
Det legges vekt på å oppnå gode miljøkvaliteter i prosjektet, både ved materialvalg og gjennom utførelse. Det etterstrebes bruk av materialer og produkter som er fremstilt med forsvarlig energibruk og lite forurensning.
Materialvalget på Poulssons Kvarter foretas med omtanke for å redusere prosjektets miljøpåvirkning. Her velges varige materialer for å redusere behovet for vedlikehold og utskiftninger gjennom byggenes levetid. Videre stilles det strenge krav til valg av materialer for å sikre et godt inneklima.
Poulssons Kvarter, får kombinert skjermtegl og trepanel på fasader og sedum/kalkmark og bekledningstegl på tak. Trebaserte produkter har lav klimapåvirkning og det dokumenteres at alt trevirke i prosjektet kommer fra lovlig hogst og bærekraftige kilder. Tegl er en ideell klimaskjerm, siden materialet krever minimalt med vedlikehold og er motstandsdyktig i det nordiske klimaet. Skjermteglen og bekledningsteglen er bærekraftige løsninger med tanke på produktenes lange levetid, i tillegg er teglen designet for demontering etter endt levetid. Prosjektet har ambisjon om å ombruke materialer som finnes på tomten i dag. Tegl og andre materialer fra bygg som skal rives søkes ombrukt i prosjektet. Teglen planlegges blant annet brukt i utomhusanlegget som belegningsstein og kantstein i gårdsrom.
Innervegger består av betong eller stenderverk av stål/tre kledd med gips som er sparklet og malt. Alle innervegger i lett konstruksjon leveres med isolasjon. For leiligheter med hybel leveres vegger med ekstra lydisolering med dobbel gips på en side.
Himlinger leveres i betong sparklet og malt med synlig v-fuge eller gips. Innvendig takhøyde er ca. 250 cm netto. Der det forekommer nedforet gipshimling, eventuelt innkassing av tekniske føringer, i hele eller deler av rommet kan takhøyden være minimum 220 cm. Toppleilighetene i Rode og Eger får skråtak i nest øverste og øverste etasje.
Både nedforet gipshimling og eventuell innkassing leveres sparklet og malt. Nedforede himlinger leveres i farge NCS S 0500-N klassisk hvit.
Det tas forbehold om endelig plassering og størrelse på sjakter.
Badene leveres som prefabrikkerte baderomskabiner, med sparklet og malt gipshimling. Enkelte av badene i toppleilighetene med skråtak kan få plassbygde bad.
Vinduer, terrasse- og balkongdører leveres med energiglass. Utførelse, inndeling og slagretning avhenger av hvilke tekniske krav de enkelte vinduer har, herunder i forhold til støy, brannkrav osv. Vindusstørrelser samt vindu- og dørplassering kan avvike noe fra de generelle planer, som følge av bl.a. bærestruktur og den arkitektoniske utformingen av bygget. Det kan forekomme nivåforskjell/terskel mellom rom, og fra innvendige arealer til terrasser og balkonger. Moderne vinduer isolerer langt bedre enn eldre vinduer, noe som fører til at vinduene blir kaldere på utsiden fordi varmen ikke trekker ut. De kalde utvendige flatene kan gi kondens på utsiden av vinduet.
Vindusvask av utvendig dobbelfasade mot Magnus Poulssons vei må utføres av profesjonelle, kostnaden for dette er hensyntatt i borettslagenes budsjetter.
Innvendige dører eller skyvedører som anvist på plantegning. Det leveres fabrikkmalte, hvite foringer og gerikter i samme farge. Dørterskel og feielist i eik, tilnærmet lik utførelse som parkett. Dørvridere i børstet stål. De fleste dører leveres med flate terskler for å sikre luftstrømning gjennom leiligheten slik at ventilasjonsanlegget fungerer optimalt.
Vindussmyg og balkongdører leveres listefritt med sparklet og malt gipsforing. I rom med parkett blir det levert fotlist i tilnærmet lik farge og materiale som parketten. Synlig innfesting av gulvlist.
Alle bærekonstruksjoner er av tre, betong og stål. Fasadene vil bestå av skjermtegl og trepanel iht. arkitektens fargevalg. Aluminiumsbelagte trevinduer/- dører iht. arkitektens fargevalg. Rode og Eger får saltak med takvinduer og bekledningstegl.
Terrassebord på markterrasser. Alle typer markterrasser og balkonger er å anse som utvendig konstruksjon slik at mindre ansamlinger av vann og drypp fra overliggende balkonger må påregnes.
Postkasser er planlagt etablert ved inngangspartiet i første etasje. Endelig plassering besluttes under detaljprosjekteringen.
Hovedinngangsdør med dørpumpe i glass/ aluminium med dørautomatikk og i henhold til arkitektens fargevalg.
Det vil bli opparbeidet et grønt og frodig utomhusareal, med blant annet regnbed, sandkasse, lekeplass, sosiale soner med pergola, sittebenker og interne gangveier. Det leveres utvendig belysning med lyssensor/tidsur på fellesarealer i form av pullerter og lampe ved inngangspartiene. Det leveres 12 frostsikre utekraner på fellesarealet.
Utforming og materialvalg blir levert i henhold til endelig godkjent utomhusplan. En foreløpig utomhusplan for Poulssons Kvarter – PK 1 er inntatt i prospektet. Utomhusplanen vil bearbeides videre under detaljprosjekteringen og er ikke å anse som bindende for Utbygger.
Det foreligger ikke ferdigattest eller midlertidig brukstillatelse på eiendommen, da bygget ikke er ferdigstilt på salgstidspunktet.
Det er utbyggers plikt å fremskaffe ferdigattest på eiendommen. Det gjøres oppmerksom på at midlertidig brukstillatelse eller ferdigattest må foreligge før kjøper kan ta i bruk eiendommen. Kjøper er gjort kjent med at det kan ta lang tid i etterkant av ferdigstillelse av et bygg, før ferdigattest foreligger. Kjøper kan ikke nekte overtagelse ved manglende ferdigattest, dersom midlertidig brukstillatelse foreligger.
På eiendommen er det tinglyst følgende heftelser og rettigheter som følger eiendommens matrikkel ved overskjøting til ny hjemmelshaver:
3201/41/57:
18.11.1910 – Dokumentnr: 904740 – Bestemmelse om deleforbud
Bestemmelse om bebyggelse
Bestemmelse om benyttelse
Bestemmelse om bebyggelse
Bestemmelse om benyttelse
Rett til strand til oppførelse av badehus og til båtfeste,
Best.om veg.
Bestm. om vann m.m.
Gjelder denne registerenheten med flere
02.12.1963 – Dokumentnr: 306406 – Rettigheter iflg. skjøte
Rettighetshaver: Knr:3201 Gnr:41 Bnr:58
Bestemmelse om adkomstrett
Med flere bestemmelser
Gjelder denne registerenheten med flere
01.07.1964 – Dokumentnr: 303542 – Best. om vann/kloakkledn.
Kan ikke slettes uten samtykke fra kommunen
06.06.1974 – Dokumentnr: 8081 – Best. om vann/kloakkledn.
Kan ikke slettes uten samtykke fra kommunen
01.12.1981 – Dokumentnr: 26007 – Erklæring/avtale
Bestemmelse om trafostasjon/kiosk
Gjelder denne registerenheten med flere
09.05.1985 – Dokumentnr: 13548 – Best. om vann/kloakkledn.
Kan ikke slettes uten samtykke fra kommunen
11.06.2008 – Dokumentnr: 471949 – Bestemmelse om parkering
Rettighetshaver: Knr:3201 Gnr:41 Bnr:845
Bestemmelse om gang- og kjøreadkomst til 31 parkeringsplasser.
Kan ikke slettes uten samtykke fra kommunen
Gjelder denne registerenheten med flere
11.06.2008 – Dokumentnr: 472031 – Best. om vann/kloakkledn.
Bestemmelse om anlegg og vedlikehold av ledninger m.m.
Kan ikke slettes uten samtykke fra kommunen
Gjelder denne registerenheten med flere
11.06.2008 – Dokumentnr: 472043 – Bestemmelse om parkering
Rettighetshaver: Knr:3201 Gnr:41 Bnr:58
Bestemmelse om gang- og kjøreadkomst til 6 parkeringsplasser.
Kan ikke slettes uten samtykke fra kommunen
Gjelder denne registerenheten med flere
10.09.2010 – Dokumentnr: 683644 – Bestemmelse om parkering
Rettighetshaver: Knr:3201 Gnr:41 Bnr:58
Kan ikke slettes uten samtykke fra kommunen
Gjelder denne registerenheten med flere
10.09.2010 – Dokumentnr: 683644 – Best. om adkomstrett
Rettighetshaver: Knr:3201 Gnr:41 Bnr:58
Gjelder denne registerenheten med flere
09.05.2023 – Dokumentnr: 480476 – Rettighet
Rettighetshaver: Akershus Fylkeskommune
Org.nr: 930 580 783
Avtale om grunneierbidrag på Fornebu
Gjelder denne registerenheten med flere
09.05.2023 – Dokumentnr: 480494 – Rettighet
Rettighetshaver: Akershus Fylkeskommune
Org.nr: 930 580 783
Tilleggsavtale til 2023/480476
Gjelder denne registerenheten med flere
21.10.1910 – Dokumentnr: 900078 – Registrering av grunn
Denne matrikkelenhet opprettet fra:
Knr:3201 Gnr:41 Bnr:1
09.05.1963 – Dokumentnr: 906846 – Sammenslåing
Sammenslått med denne matrikkelenhet:
Knr:0219 Gnr:41 Bnr:62
21.12.1984 – Dokumentnr: 990752 – Sammenslåing
Sammenslått med denne matrikkelenhet:
Knr:0219 Gnr:41 Bnr:100
21.12.1984 – Dokumentnr: 990755 – Sammenslåing
Sammenslått med denne matrikkelenhet:
Knr:0219 Gnr:41 Bnr:100
Sammenslått med denne matrikkelenhet:
Knr:0219 Gnr:41 Bnr:527
10.04.1986 – Dokumentnr: 10878 – Registrering av grunn
Utskilt fra denne matrikkelenhet:
Knr:0219 Gnr:41 Bnr:628
30.01.2008 – Dokumentnr: 88979 – Sammenslåing
Sammenslått med denne matrikkelenhet:
Knr:0219 Gnr:41 Bnr:328
Sammenslått med denne matrikkelenhet:
Knr:0219 Gnr:41 Bnr:589
Sammenslått med denne matrikkelenhet:
Knr:0219 Gnr:41 Bnr:627
11.06.2008 – Dokumentnr: 471823 – Registrering av grunn
Utskilt fra denne matrikkelenhet:
Knr:0219 Gnr:41 Bnr:846
11.06.2008 – Dokumentnr: 471855 – Registrering av grunn
Utskilt fra denne matrikkelenhet:
Knr:3201 Gnr:41 Bnr:845
11.06.2008 – Dokumentnr: 471999 – Registrering av grunn
Utskilt fra denne matrikkelenhet:
Knr:3201 Gnr:41 Bnr:844
28.08.2008 – Dokumentnr: 697154 – Grensejustering
Regulering av areal i forbindelse med veggrunn/jernbanegrunn
gnr. 300 bnr. 2371
Gjelder denne registerenheten med flere
28.08.2008 – Dokumentnr: 697189 – Grensejustering
Regulering av areal i forbindelse med veggrunn/jernbanegrunn
gnr. 300 bnr. 2371
Gjelder denne registerenheten med flere
28.08.2008 – Dokumentnr: 697230 – Målebrev
Regulering av areal i forbindelse med veggrunn/jernbanegrunn
Lagt til gnr. 300 bnr. 2371
Gjelder denne registerenheten med flere
01.01.2020 – Dokumentnr: 1143606 – Omnummerering ved kommuneendring
Tidligere: Knr:0219 Gnr:41 Bnr:57
01.01.2024 – Dokumentnr: 54331 – Omnummerering ved kommuneendring
Tidligere: Knr:3024 Gnr:41 Bnr:57
11.04.2024 – Dokumentnr: 1308433 – Registrering av grunn
Utskilt fra denne matrikkelenhet:
Knr:3201 Gnr:41 Bnr:2588
Elektronisk innsendt
18.11.1910 – Dokumentnr: 904737 – Bestemmelse om veg
Rettighet hefter i: Knr:3201 Gnr:41 Bnr:1
Bestemmelse om strandlinje
Bestemmelse om størrelse på tilstøtende tomter
Bestemmelse om vannrett
Med flere bestemmelser
05.03.1919 – Dokumentnr: 900455 – Bestemmelse om gjerde
Rettighet hefter i: Knr:3201 Gnr:41 Bnr:1
Gjaldt opprinnelig bnr. 100 som er smf. med bnr. 57
02.12.1963 – Dokumentnr: 306407 – Erklæring/avtale
Rettighet hefter i: Knr:3201 Gnr:41 Bnr:58
Rettighet hefter i: Knr:3201 Gnr:41 Bnr:2604
Rettighet hefter i: Knr:3201 Gnr:41 Bnr:2605
Bestemmelse om septiktank m.v.
Gjelder denne registerenheten med flere
11.06.2008 – Dokumentnr: 471964 – Best. om adkomstrett
Rettighet hefter i: Knr:3201 Gnr:41 Bnr:845
Kan ikke slettes uten samtykke fra kommunen
Leiligheten får en attraktiv beliggenhet med nærhet til sjø og sentrum, grønne parker og spennende arkitektur. Her får du tilgang til et helt nytt og unikt boligkvartal, med umiddelbar nærhet til det du trenger når du trenger det.
Fra leilighetsdøren har du de flotte innvendige fellesarealene i umiddelbar nærhet. De innvendige fellesarealene er planlagt som en sosial sone med sittegrupper, hjemmekontor, barløsning, shuffleboard, kaffestasjon, integrerte postkasser og beplantning. Her kommer det også et selskapslokale med kjøkken, garderobe, WC-fasiliteter og direkte adkomst til markterrasse. (se illustrasjoner og etasjeplan i bildekarusell)
Poulssons Kvarter ligger kun 10 minutter unna Oslo sentrum med kollektivtransport. Likevel er tanken at dette skal være et nabolag som det er verdt å bruke mye tid i, og få mest mulig ut av hver dag uten å måtte flytte for mye på seg.
Midt i mellom sjø og sentrum
I Poulssons Kvarter vil du befinne deg midt i mellom både strandliv og hverdagsliv. Sjøbris og shopping. Det er kort avstand til fine strender som Storøyodden eller Sollerudstranda, shoppingmuligheter på CC Vest og Fornebu S og gode kollektivtilbud. Siden det ligger i Fornebuporten, inngangen til Fornebu, vil du ha svært god adkomst fra hovedveisystemet og den nye hovedsykkelveien, samt kort avstand til Oslo sentrum. Her trenger du ikke å velge, du får det beste av to verdener.
Nærhet til livet
I Poulssons Kvarter finner du moderne boligkvartaler med attraktive uteområder som alle omkranser den felles grønne parken. Boligtypene kommer i forskjellige størrelser og varianter, slik at du kan føle deg hjemme uansett hvilken livsfase du er i.
Her vil du ha nærhet til både det du trenger, men også det du ønsker å ha nærhet til. Arbeidsplasser, butikker og skoler. Men også flotte naturområder, gode muligheter for aktiviteter og kunstneriske gleder.
Start dagen med et frisk bad i sjøen, og ta lunsjen på en av kafeene i nærheten. Gå deg en tur i vakre Nansenparken og avslutt dagen med en bedre middag på retroperlen Sjøflyhavna Kro. Det finnes mange turstier i nærheten og skulle du trenge litt kunstnerisk påfyll er Skanskas gjenvinningsanlegg verdt å få med seg. Her har du den perfekte kombinasjonen av en urban livsstil og naturen. Liv og røre og ro.
I Poulssons Kvarter har du nærhet til natur og by, sjø og hverdag nærhet til livet.
Poulssons Kvarter tilbyr et mangfold av fellesarealer for å skape et levende og sosialt nabolag. Skal du feire en spesiell anledning, står fellesrommet til disposisjon. Komplett rom med kjøkken, sitteplasser og terrasse er fellesrommet perfekt for alt fra brusdager til uformelle sammenkomster. For de som foretrekker å jobbe eller studere utenfor hjemme, tilbyr byggene også moderne kontorhuber. Her kan hjemmekontor-entusiaster og skippertaksstudenter finne et rolig og produktivt miljø, med alt de trenger for å få ting gjort.
Vann og avløp er offentlig tilknyttet. Det tas forbehold om etablering av pumpekum. Pumpekummer m.m. er i så fall inkludert i Utbygger kontraktsleveranse. Avtale om service og vedlikehold for Borettslagene må i så fall påregnes. Eventuelt privat vann- og avløpsnett mellom det offentlige tilknytningspunktet og frem til bygningskroppen skal driftes og vedlikeholdes i fellesskap av de andelseiere som er tilknyttet dette.
Detaljregulering for Fornebuveien 37 m.fl. planID 2021001 med saksnummer:19/24996 ble vedtatt 21.juni 2023. Eiendommen er i hovedsak regulert til boligformål.
I forbindelse med detaljregulering av 164 Poulssons Kvarter 165 Informasjon til kjøper Fornebuveien 37 mfl., krever Bærum kommune at bestemte felter og gangområder innenfor reguleringsplanen skal være allment tilgjengelige.
Grunneierne gir derfor allmennheten rett til ferdsel og opphold på Eiendommene innenfor feltene fSKV1, fSKV2, fSGG, fSGT1, fSGT2 og park felt fGP, slik det følger av plankartet (bilag til salgsprospekt). Tilsvarende skal gangveg innenfor bestemmelsesområde # 4 være allment tilgjengelig. Rettigheten vil bli sikret gjennom tinglyst erklæring.
I henhold til reguleringsplanen er det også planlagt rett til bruk for allmennheten av barnehagens uteområde etter ordinær åpningstid. Det foreligger en vedtatt detaljreguleringsplan for næringsbygg langs E18 i Magnus Poulssons vei 7 m.fl. planID 2021002 med saksnummer 19/19276 vedtatt av Bærum kommunestyre 21. juni 2023. Kjøper oppfordres til å sette seg inn i kart- og reguleringsbestemmelser for området. Kan fås påforespørsel til megler.
Drifskostander per måned eks energikostander
Formuesverdien er ikke fastsatt, men fastsettes av Skatteetaten etter en beregningsmodell som hensyntar om boligen er «primærbolig»; (der eier er bosatt iht. Folkeregisteret) eller «sekundærbolig»; (andre boliger man eier).
Formuesverdi for skatteåret 2024 var for primærbolig 25 % av markedsverdien opp til kr. 10 000 000 og deretter 70 % av den overskytende markedsverdien, og 100 % for sekundærboliger. Det gjøres oppmerksom på at kjøper selv må sende inn opplysninger om adresse, areal, boligtype og byggeår til skattemyndighetene.
Det tas forbehold om endring av satser, og henvises til Skatteetatens websider dersom ytterligere informasjon er ønskelig.
I tillegg til kjøpesummen må kjøper betale:
1: Dokumentavgift til staten, 2,5% av andel tomteverdi: Kr. 87 500,-
2: Tinglysningsgebyr hjemmelsdokument: Kr. 545,-
3: Tinglysningsgebyr pantedokument: Kr. 545,-
4: Andelskapital: Kr. 5 000,-
5: Etableringsgebyr BRL: 12 500,-
6. Gebyr for nedbetaling av fellesgjeld: 5000,-
7. Transport: Kr. 50 000,-
Totale omkostninger: Kr. 161 240
Tilbud om lånefinansiering
Megler formidler gjerne kontakt med rådgiver hos vår samarbeidspartner Sparebank 1 Hallingdal og Valdres. De har konkurransedyktige betingelser samt rask og løsningsorientert behandling av din lånesøknad. Røisland & Co mottar et honorar for denne formidlingen.
Borettslaget Rode er planlagt etablert med 81 andeler.
Markterrasser inngår i Borettslagenes eiendom og er en del av Borettslagets fellesareal. Eksklusiv bruksrett til disse sikres gjennom vedtektsfestet eller tinglyst bruksrett for beboerne.
Det vil bli levert minimum 300 kvm innvendige fellesarealer. Fellesarealene kan disponeres av alle beboerne i Poulssons Kvarter.
I oppgang C2 tilhørende Rode leveres et større gjennomgående inngangsparti. Området planlegges som en sosial sone med sittegrupper, hjemmekontor, barløsning, shuffleboard, kaffestasjon, integrerte postkasser og beplantning.
Tilgang til selvbetjent pakkeboksløsning for post- / varemottak.
I første etasje i samme oppgang kommer et selskapslokale med kjøkken, garderobe og WCfasiliteter og direkte adkomst til markterrasse.
Selskapslokalene kan benyttes til bursdager eller andre sosiale sammenkomster.
I tillegg planlegges det å levere sykkelverksted/ vask i prosjektet. På PK 2 planlegges det et felles treningsrom og en mulig gjestehybel.
Enkelte fellesarealer i Rode er eksklusive for Studio Poulsson , og er forbeholdt beboerne som har kjøpt leilighet i Studio Poulsson . Arealene omfatter bl.a. et fellesvaskeri i første etasje, en innredet mesaninetasje, med sosial sone samt TV- og eventrom med eget kjøkken. Beboerne disponerer i tillegg en markterrasse ut mot bakgården. For nærmere beskrivelse av leveranse til Studio Poulsson henvises det til eget salgsprospekt som vil bli utarbeidet for dette konseptet.
Endelig omfang, kvaliteter, leveranse og funksjon av fellesarealer besluttes nærmere under detaljprosjekteringen.
Forbrukerinformasjon om budgivning er vedlagt denne salgsoppgaven.
Alle bud og budforhøyelser må inngis skriftlig. I tillegg må legitimasjon være fremlagt sammen med signatur fra budgiver(e). Vi oppfordrer til å gi bud elektronisk via GI BUD knappen på finn.no, eller roislandco.no. Da vil samtlige vilkår bli oppfylt. Eventuelle forhøyelser eller endringer av budet kan bekreftes på SMS eller på e-post. Vi oppfordrer alltid til å kontakte megler pr. telefon i tillegg da forsinkelser i SMS og mail kan forekomme.
Megler skal legge til rette for en forsvarlig avvikling avbudrunden. I forbrukerforhold (dvs. der selger er forbruker) skal megleren ikke formidle bud med kortere akseptfrist enn kl. 12.00 første virkedag etter siste annonserte visning. Etter denne fristen bør budgivere ikke sette en kortere akseptfrist enn at megler har mulighet til, så langt det er nødvendig, å orientere selger, budgivere og øvrige interessenter om bud og forbehold. Dersom bud inngis med en frist som åpenbart er for kort til at megleren kan avvikle budrunden på en forsvarlig måte som sikrer selger og interessenter et tilstrekkelig grunnlag for sine handlingsvalg, vil megler fraråde budgiver å stille slik frist.
Megler skal ikke formidle bud med forbehold om at budet eller forbehold i budet skal holdes skjult (hemmelig) for andre budgivere og interessenter.
Megleren vil uoppfordret gi sin vurdering av det enkelte bud overfor selger, når budet er gitt innenfor fristene som nevnt over.
Megleren skal, så langt det er nødvendig og mulig, holde budgiverne skriftlig orientert om mottatte bud, herunder budets størrelse, forbehold og akseptfrist. Megler skal så snart som mulig bekrefte skriftlig overfor budgivere at budene deres er mottatt. For øvrig vil megler, på forespørsel fra andre, opplyse om aktuelle bud på eiendommen, herunder relevante forbehold.
Kopi av budjournal skal gis til kjøper og selger utenugrunnet opphold etter at handel er kommet i stand. Dersom det er viktig for budgiver å bevare sin anonymitet, bør budet formidles gjennom fullmektig.
I henhold til eiendomsmeglingsforskriften § 6-3 første ledd har megler en plikt til å oppfordre oppdragsgiver (selger) til ikke å ta imot bud direkte fra budgiver, men henvise til megler. Megler oppfordrer partene til å lese retningslinjene for budgivning vedlagt i salgsoppgaven.
Et eventuelt bud fra selger til kjøper (såkalte «motbud»), er avtalerettslig bindende tilbud som medfører at det foreligger en avtale om salg av eiendommen dersom budet i rett tid aksepteres av kjøper.
Budgiverens opplysning om han er forbruker eller næringsdrivende:
Avhendingsloven ble endret med virkning fra 1. januar 2022 og innebærer blant annet at «som den er»-forbehold ikke har virkning i forbrukerkjøp, jf. avhendingsloven § 3-9 andre ledd, jf. § 1-2 tredje ledd. Med forbrukerkjøper menes en kjøper av eiendom som er en fysisk person og som ikke hovedsakelig handler som ledd i næringsvirksomhet. «Som den er»-forbehold kan imidlertid fremdeles tas utenfor forbrukerkjøp. Hvorvidt eiendommen selges til en forbrukerkjøper eller ikke, kan derfor ha betydning for fordelingen av risiko mellom partene: hvis kjøperen er forbruker, bærer selger ansvaret dersom eiendommen ikke samsvarer med de krav til kvalitet, utrustning og annet som følger av avtalen, jf. avhendingsloven § 3-1. Hvis kjøperen er profesjonell, bærer imidlertid selger ansvaret for slike avvik bare i den grad eiendommen er i vesentlig ringere stand enn kjøperen hadde grunn til å regne med ut fra kjøpesummen og forholdene ellers.
Budgivers opplysning om han er forbruker eller ikke, skal gis i forbindelse med formidling av budet, for eksempel ved at det i budskjemaet krysses av for om man er forbrukerkjøper eller ikke. Budgiver må informere megler om han opptrer som forbruker eller ikke-forbruker ved budgivning for at andre parter involvert i budrunden kan ta stilling til forhold av faktisk og rettslig art som er viktige i forbindelse med avtalen. Megler har begrenset mulighet til å kontrollere budgivers egenopplysning om vedkommende er næringsdrivende eller ikke, og budgiverens skriftlige opplysning om han er forbrukerkjøper eller ikke, må legges til grunn.
Ved salg av en kontraktsposisjon er det merverdien, (kjøper 1s gevinst) budgiver skal legge inn bud på. Konferer megler før bud legges inn.
Avtalen mellom kjøper 1 (videreselgeren av kontrakten) og kjøper 2 (ny kjøper), blir regulert av avhendingsloven, kjøpsloven og forbrukerkjøpsloven.
Interessenter må sette seg inn i salgsoppgaven utarbeidet i forbindelse med salg av kontraktsposisjonen, samt kjøpekontrakten med tilhørende dokumenter signert av kjøper 1 og selger (utbygger), før bud inngis.
Det forutsettes at hjemmel overføres til kjøper. Hvis kjøper ikke ønsker hjemmelsoverføring av eiendommen, må det tas forbehold om dette i budet.
Ingen kan direkte eller indirekte erverve mer en to boligseksjoner i et boligsameie jf. eierseksjonsloven § 23. Dersom et erverv har funnet sted i strid med eierseksjonslovens regler kan Kartverket nekte overskjøting. Dersom overskjøting blir nektet, er kjøper likevel forpliktet til å gjennomføre handelen med selger, og oppgjør til selger vil finne sted tross manglende overskjøting.
Dette gjelder salg av en kontraktposisjon for en konkret bolig under oppføring. Ny kjøper (kjøper 2) overtar selgers (førstegangskjøpers) rettigheter og forpliktelser iht. opprinnelig kontrakt. Ved kjøp av kontraktposisjon må hovedkontrakten overtas med alle rettigheter og plikter, herunder betalingsvilkår og de lovpålagte garantier. Opprinnelig kontrakt regulerer alle forhold knyttet til leveransen av boligen. Det forutsettes at kjøper grundig har gjennomgått den opprinnelige kjøpekontrakten med tilhørende vedlegg, før bud inngis.
Handelen reguleres av kjøpekontrakt som inngås etter at kjøpstilbud på kontraktposisjonen er akseptert. Det tas forbehold om at utbygger aksepterer transport av opprinnelig kontrakt. Stilt garanti(er) følger boligen, og garanti(er) kan bare gjøres gjeldende av ny kjøper. Eventuelle forbehold som kjøper har tatt skal være avklart.
Ved signering av transportkontrakt skal kjøper av kontraktsposisjonen (kjøper 2) innbetale kjøper 1 sin allerede innbetalte 10%, merverdien (kjøper 1 sin gevinst), samt transportgebyret til utbygger. Kjøper 1 vil få tilbakebetalt sin 10% med fratrekk for meglerkostnadene ved salg. Kjøper 1 sin gevinst ved videresalget (merverdien) vil bero på meglers klientkonto frem til kjøper 2 har overtatt leiligheten og fått rettsvern for sitt erverv. Opptjente renter på merverdien tilfaller kjøper 1 (selger av kontrakten).
Dersom kjøper 2 er forbruker, faller pliktene hans til å betale merverdien bort dersom entreprenøren ikke ferdigstiller boligen, jf. Avhendingsloven §1-1 fjerde ledd. Kjøper 1 har likevel ikke noe ansvar for mangelfull eller forsinket levering fra selgers side, og kjøper 2 plikter å betale hele merverdien i disse tilfellene. Dette gjelder selv om mangelen er vesentlig og gir kjøper 2 rett til å heve kontrakten med selger.
Skulle noe virke uklart, kontakt megler.
Garanti som Selger (utbygger) har stilt i medhold av buofl. § 12 og eventuelt § 47 kan gjøres gjeldende av Kjøper 2 som Kjøper 1 sin rettsetterfølger (jf. buofl. § 12, 6. ledd).
Garantien etter buofl. § 12, som minst lyder på 3% av vederlaget i perioden før overtagelse og 5 % i perioden frem til 5 år etter overtagelsen, er beregnet av opprinnelig kjøpesum mellom Selger og Kjøper 1 i henhold til kjøpekontrakt.
Eiendomsmeglere er underlagt Lov om hvitvasking. I henhold til Lov av 01.06.18 nr. 23 om tiltak mot hvitvasking og terrorfinansiering (Hvitvaskingsloven), er megler pliktig til å gjennomføre identitetskontroll av alle involverte parter, herunder fullmektiger. Dette innebærer bl.a. å bekrefte kunders og reelle rettighetshaveres identitet på bakgrunn av fremvist gyldig legitimasjon eller på annen godkjent måte, samt å innhente opplysninger om kundeforholdets formål og tilsiktede art. Dersom slike kundetiltak ikke kan gjennomføres, kan megler ikke etablere kundeforholdet eller utføre transaksjonen. Hvitvaskingsloven pålegger også eiendomsmegler å innhente redegjørelse av midlenes opprinnelse. Dette besvares av samtlige kjøpere herunder parter som opptrer på vegne av kjøper, ved en såkalt kundekontroll.
Hvis kjøper ikke bidrar til gjennomføring av kundekontrollen og dette fører til at transaksjonen blir forsinket eller ikke kan gjennomføres, vil dette ansees som mislighold av avtalen og gi selger rettigheter etter avhendingslova eller bustadoppføringsloven kapittel 5. I tilfeller der selger ikke bidrar til gjennomføring av løpende kundekontroll underveis i oppdraget, er det selger som misligholder sine forpliktelser etter avtalen og gi kjøper rettigheter etter avhendingslovens eller bustadoppføringsloven kapittel 4. Partene er selv ansvarlige for eventuelle kostnader og ansvar dette kan medføre. Eiendomsmegleren eller eiendomsmeglingsforetaket kan ikke holdes ansvarlig for de konsekvenser dette vil kunne få for partene eller andre som har interesser i eiendomshandelen.
Ved eventuelt tilbakehold av informasjon eller mistenkelige transaksjoner, plikter eiendomsmegleren å melde fra til Økokrim. Med «mistenkelig transaksjon» menes transaksjon som mistenkes å involvere utbytte fra straffbar handling, eller som skjer som ledd i terrorfinansiering. Manglende mulighet for kundekontroll kan også være et forhold som gjør transaksjonen mistenkelig.
Det anbefales at kjøper innbetaler kjøpesummen som ikke kommer fra låneinstitusjon, i en samlet innbetaling fra egen konto i norsk bank.
Selger forbeholder seg også retten til å kreve dokumentasjon av kjøpers finansiering.
Det kan ikke gjøres ansvar gjeldende mot meglerforetaket som følge av at meglerforetaket overholder sine plikter etter Hvitvaskingsloven.
I henhold til personopplysningsloven gjør vi oppmerksom på at interessenter kan bli registrert for videre oppfølging.
Harald Gudmund Longva
Meglers vederlag betales av selger og er avtalt til:
Fastpris: 50 000,00
Tilretteleggingsgebyr: kr.10.000
Markedsføringspakke: kr. 17.990
Oppgjørshonorar: kr. 6.950
Inneståelse- og utleggshonorar: kr. 2.500
Oppslag eiendomsregister: kr. 762,50,-
Megler har i tillegg krav på dekning av utlegg. Alle summer er inkl. mva.
Oppdragsnummer: 3-0008/26
Anne Heidi Rødal
Sist oppdatert: 08.05.2026