Eiendommen
Knr. 3207 Gnr. 241 Bnr. 103
Trelastveien 44, 1415 OPPEGÅRD
Meld din interesse så tar vi kontakt med deg og holder deg orientert om boligen!
Salg av kontraktsposisjon | Dette er en leilighet som er under oppføring. Det er ikke tilgang på selve leiligheten/byggeplass. Konferer med megler.
Dette er et salg av kontraktsposisjon vedrørende leilighet 22-0105 i Prosjektet Myrvoll Stasjon. Leiligheten er en del av Hus 22 i Skogbrynkvartalet som vil bestå av 24 leiligheter. Leiligheten har en nordvestvendt markterrasse på ca. 14,5 m². Kort vei unna ligger Myrvoll torg med dagligvare, baker og andre servicetilbud. Det er nærhet til togstasjonen som kun bruker 24 minutter inn til Oslo S.
– Helt ny 2-roms selveierleilighet
– Nordvestvendt markterrasse på ca. 14,5 m²
– Overtakelse den 3. februar 2026
– Lav dokumentavgift
– Utbyggergaranti
– Svanemerket bolig som gir lavere energiforbruk
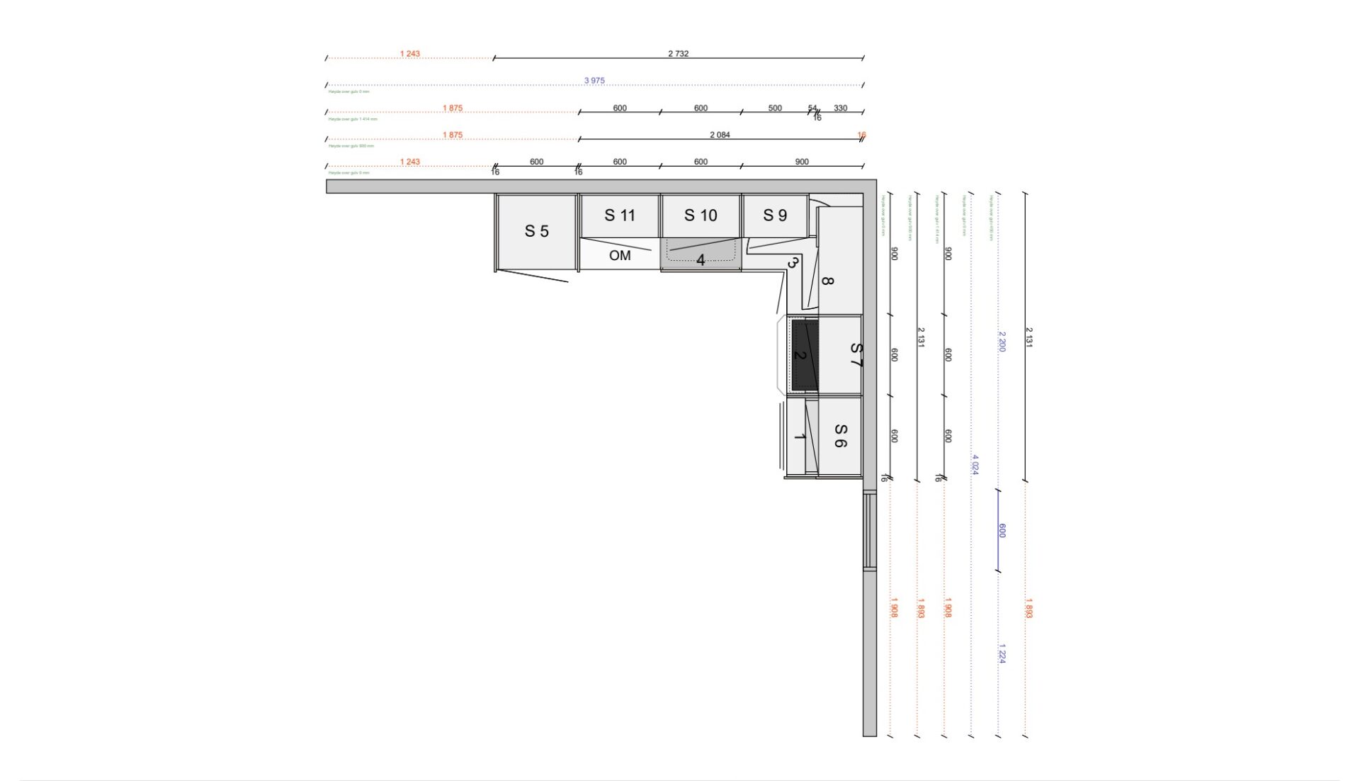
– Kjøkken fra Sigdal med integrerte hvitevarer fra Siemens
– Skyvedørsgarderobe på soverom
– Godt isolert og balansert ventilasjon
– God lagringsplass med innvendig bod, og sportsbod i underetasjen
– Mulighet for kjøp av garasjeplass m/el-lader

Knr. 3207 Gnr. 241 Bnr. 103
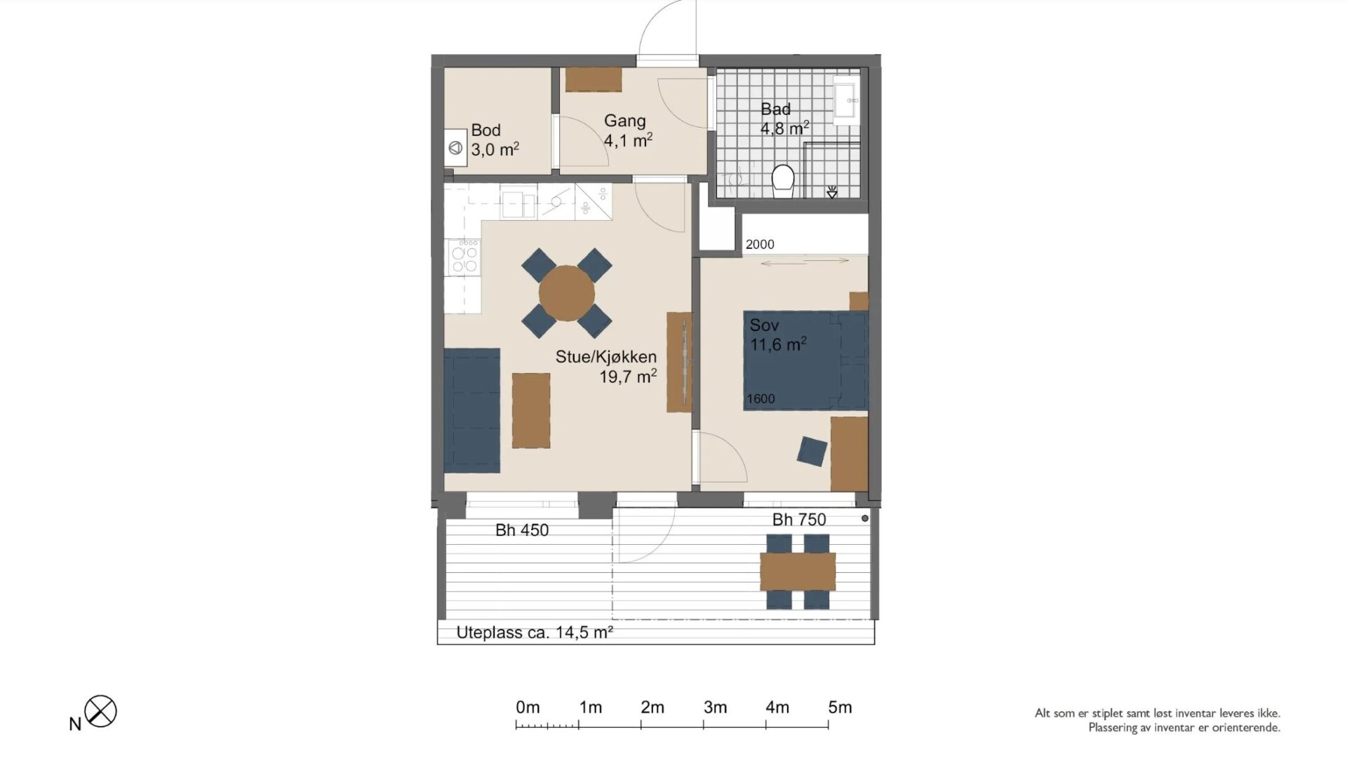
Denne leiligheten ble opprinnelig kjøpt på game måleregler. Arealer iht. opprinnelig kontraktstegning:
BRA: 46 m²
P-ROM: 41,5 m²
Iht. til nye måleregler blir mål stipulert til:
Totalt bruksareal BRA: 48,5 m²
BRA-i: 46 m²
BRA-e: 2,5 m²
TBA: 14,5 m²
BRA-i | 1. etasje: Gang, bod, bad, soverom og stue med åpen kjøkkenløsning.
BRA-e | Kjeller: Det leveres en sportsbod på ca. 2,5 m² plassert i kjeller. Vegger mellom boder leveres av stålnetting.
Sykkelboder:
Det er avsatt plass til sykkelparkering i garasjekjeller, samt en del plasser ute på terreng.
Arealbeskrivelse:
De oppgitte arealer er hentet fra opprinnelige plantegninger fra utbygger. Arealene er oppgitt i BTA bolig, bruksareal (BRA) og primærrom (P-rom). Arealene er beregnet ut fra Norsk Standard 3940. BTA bolig er målt med yttervegg og til midt i vegg mot nabo og gang. Bruksarealet angir leilighetens areal innenfor omsluttende vegger. Primærrom er BRA fratrukket innvendig bod. Innvendig sjakter er medregnet i P-rom, men ikke i de oppgitte romarealene på tegningene. De oppgitte arealer er å betrakte som cirka-arealer.
Gang
Leiligheten har en gang på ca. 4,1 m². På gulvet leveres det en 3-stavs eikeparkett (Parkett Abetone 3-stavs hvitlasert eik, matt lakk). Abetone er en 13 mm tykk 3-stavs hvitlasert eikeparkett. Den har naturlig fargevariasjon og kan inneholde mellomstore kvister. Matt-lakkert overflate.
Hele boligen leveres i fargen er NCS 1102-Y10R, glansgrad 7.
Stue og kjøkken
Videre fra gangen kommer man til en stue på ca. 19,7 m² med åpen kjøkkenløsning. Det leveres et stilrent kjøkkenet fra Sigdal med glatte fronter og laminert benkeplate.
Fronter: Uno Korn er en 16 mm slett front i malt MDF.
Fargen er tilnærmet: NCS 2204-Y24R
Benkeplate: Laminat Hvit Levanto Marmor. Tykkelse 30mm.
Oppvaskkum: Intra Omnia 600SF. Oppvaskkum blir underlimt i benkeplaten.
Bakkantlist: Laminat Hvit Levanto Marmor – høyde: 150mm.
Bestikkinnlegg 60 cm: Bestikkinnlegg i grå plast 60cm.
Integrert kombiskap fra Siemens (KI87SADE0)
Platetopp: Induksjonstopp fra Siemens (EH631BEB6X).
Stekeovn: 1 stk. Innebygd stekeovn fra Siemens (HB517GCS3S) i svart/rustfritt stål.
Oppvaskmaskin: Integrert oppvaskmaskin fra Siemens (SN63HX11TE). Oppvaskmaskinen leveres integrert i kjøkkeninnredningen med møbeldør lik kjøkkenet for øvrig.
Ventilator: Volumhette Slide Sense 60 Safe NCS S 2005-Y20R, med integrert komfyrvakt og LED-belysning.
Markterrasse
Videre fra stuen tar man seg ut på den nordvestvendte markterrassen med uteareal på totalt ca. 14,5 m². Se utbygger sin interaktive simulator (link i FINN-annonsen eller se https://view.3destate.io/boligvelger/myrvoll-stasjon?unit=22-0105).
Bad
Leiligheten får et inbydende bad på ca. 4,8 m².
Gulvflis Grespor Minos 15×15 Day Mate, beige matt.
Veggflis Plain Color Block 20×40, liggende format. hvit matt.
Servantskap Hav/Poem 80 Hvit, håndtakslist. Romslig porselensservant med god frastillingsplass.To skuffer med håndtakslist. Stikkontakt i skuff.
Speil Ista Rundt 80 cm med LED-lys i frostet ramme. Juster lysstyrken rett på speilet. Tre touch-knapper på speilet med av/på, dimme og justere lystemperaturen.
Blandebatteri servant: Blandebatteri servant Inxx II Sharp small, krom.
Dusjvegger: Dusjvegger Skoga 90×90 cm, klart glass og blank profil. Rett hjørne med to sider til å slå inn.
Dusjbatteri: Dusjbatteri INXX II shower kit 150c/c, krom.
Slukrist: Slukrist original utførelse, sølv
WC: TECE veggskål standard.
Trykknapp: Kromfarget matt
Soverom
Stort soverom på ca. 11,6 m². Det er skyvedør i hvit melamin. Døren kommer med softclosing (dempefunksjon). Systemoppheng bestående av bærelist, hengeskinner, trådhylle 40 cm dyp og garderobestang i krom.
Opplysninger ovenfor er hentet fra vedlagte ordebekreftelse, samt Utbyggers leveransebeskrivelse.
Konsept: Sommer (Hele boligen males i NCS 1102-Y10R).
Siste dag for bestilling: 26.03.2025.
Det medfølger ikke parkeringsplass til leiligheten.
Det opplyses om at det er mulig å kjøpe garasjeplass direkte fra JM (Utbygger). Pris kr. 350 000 inkl. el-lader.
Ladestasjoner til El-bil leveres som standard. Ladesystemet er forberedt for laststyring og lastfordeling og kan utvides ved fremtidig behov for flere ladestasjoner.
Felleskostnader til parkeringsanlegg dekkes av kjøpere av p-plass. Kostnader pr. p-plass er stipulert til kr. 200. Forbruk strøm kommer i tillegg.
pr mnd.
Innkjøring fra vest ved Hus 17. P-plass ligger i kjellerplan i felles garasjeanlegg. Garasjeanlegget organiseres som realsameie som administreres av sameiene i felleskap. Bruksrett til parkering må erverves separat i tillegg til leiligheten.
Takhøyden i garasjen er minimum 2,1 meter, bortsett fra under rør og kanaler langs enkelte vegger.
Oppvarming med vannbåren termostatstyrt radiator der det fremgår av kontraktstegning.
I bad leveres elektriske varmekabler med termostat.
Det leveres balansert ventilasjon med varmegjenvinning. Filtrert og forvarmet luft tilføres i oppholdsrom. Avtrekk skjer fra våtrom, kjøkken, bod og gang. Kjøkkenhette er tilknyttet egen avtrekkskanal, og er utstyrt med tidsur.
Ved overtakelse skal det foreligge midlertidig brukstillatelse. JM er ansvarlig for å innhente ferdigattest, men kjøper er innforstått med at denne normalt ikke foreligger før lang tid etter overtakelse.
Boligen kan leies ut i sin helhet. Se sameiets utkast til vedtekter. Ved utleie av bolig er utleier ansvarlig for at boligen har forsvarlig radonverdier. I normaltilfeller er det kun nødvendig å måle radon i leiligheter med bakkekontakt, samt etasjen over.
Myrvoll Stasjon er et nytt og hyggelig nabolag med snart ca 500 leiligheter og 150 rekkehus, med gangavstand til Myrvoll togstasjon. Med toget er du på Oslo S i løpet av 23 minutter, og kun fem minutter unna ligger Kolbotn med et bredt utvalg av shopping, kultur og underholdning. Ønsker du å benytte deg av Nordens største spa så ligger The Well kun 3-4 minutter fra nabolaget. Oppegård golfklubb sin 18 hulls bane ligger også i umiddelbar nærhet.
Myrvoll torg, som er det nye nabolagets naturlige sentrum og samlingspunkt, ligger i kort avstand fra din nye leilighet. Her finner du matbutikk, bakeri, frisør, hudpleiesalong og barnehage. På området har vi lagt til rette for flere hyggelige sosiale uteplasser med benker, pergola, salamanderdam og lekeplasser. Dette er kvaliteter som bidrar til å skape et rikt og levende bomiljø for både store og små.
Området rundt Myrvoll Stasjon byr på mange aktiviteter som lysløyper, golfbane, idrettsanlegg, fotballbane, slalåmbakke og sykkel- og turstier. Nærheten til vann gir også mulighet for padling, roing, seiling og bading.
Sameiets tomt er eiet. Tomten er ikke endelig oppmålt, noe som skjer ved oppmålingsforretning som avholdes av kommunen. Det tas således forbehold om justering av endelig tomteareal og tomtegrenser. Tilsvarende forbehold tas dersom fradeling eller sammenføyning skal finne sted etter krav fra offentlige myndigheter. Det tas også forbehold om justering av fellesarealer i forbindelse med seksjoneringen hvis dette anses hensiktsmessig.
Fellesarealer opparbeides og beplantes i henhold til endelig utomhusplan. Det gjøres oppmerksom på at ferdigstillelse av utomhusarealet kan bli gjennomført etter at boligseksjonene er overtatt avhengig av årstid.
Detaljreguleringsplan for Trelasttomta. Plan ID 0217 2014003. Eiendommen er regulert til boligbebyggelse og sentrumsformål.
Felleskostnader skal dekke sameiets driftskostnader, som vil omfatte bl.a felles bygningsforsikring, kostnader til drift og vedlikehold, forretningsførsel, kommunale avgifter og strøm i fellesarealer. Det vil på vegne av sameiet bli inngått driftsavtaler med tekniske leverandører etter behov.
Felleskostnader er estimert av forretningsfører og er erfaringstall basert på liknende prosjekter. Felleskostnadene oppgitt i prislisten består av et estimat på kr. 25,- pr. kvm BRA pr måned + kr. 12,- pr. BRA pr. måned for oppvarming og varmt tappevann + kr. 390,- for bredbånd og kr. 193,- for Myrvoll Stasjon fellesområder.
Det understrekes at dette er stipulerte kostnader, idet det endelige omfanget vil bero på de ytelser som leveres og på kostnadsnivået.
Vedlagt følger utkast til budsjett. Budsjettet tas opp til behandling på første årsmøte. Endelig fastsettelse av første års driftsbudsjett og felleskostnader gjennomgås også på årsmøtet.
Individuelle kostnader som kommer i tillegg til felleskostnadene:
Strøm i egen bolig, innboforsikring, Kabel-tv. Kommunale avgifter (vann, avløp og renovasjon) faktureres direkte fra Nordre Follo kommune.
Boligen er nyoppført og det foreligger derfor ikke formuesverdi p.t. For mer informasjon, se skatteetatens hjemmeside og kalkulator for beregning av formuesverdi.
I tillegg til kjøpesummen må kjøper betale:
1: Dokumentavgift til staten, 2,5% av andel tomteverdi Kr. 8 475
2: Tinglysningsgebyr skjøte: Kr. 545
3: Tinglysningsgebyr pant : Kr. 545
4: Gebyr for pantattest pr stk kr. 240
5: Etableringsgebyr til sameiet: Kr. 1 000
6: Transportgebyr til utbygger: Kr. 75 000
Totale omkostninger: Kr. 85 715
Total kjøpesum inkl. gebyrer/avgifter og evt. øvrige kostnader: kr. 3 875 805
I tillegg vil det faktureres for startkapital til sameiet tilsvarende 2 mnd felleskostnader. Dette beløpet faktureres direkte fra forretningsfører.
Om prosjektet:
Myrvoll Stasjon består av to store utbyggingsområder, Skogsåsen og Trelasttomten. Trelasttomten utvikles i flere trinn og vil bestå av blokkbebyggelse med boliger og forretninger. Skogsåsen er området oppe på åskammen som utvikles til rekkehus og noe leiligheter.
JM planlegger å bygge til sammen ca. 630 boliger, herav ca. 480 leiligheter og ca. 150 rekkehus.
Skogbrynkvartalet er en del av JMs utbygging på Trelasttomten og vil består av totalt ca 145 leiligheter fordelt på 6 bygninger i 4 til 7 etasjer rundt et felles tun. Hus 22 har 4 etasjer og ligger i vestenden av Skogbrynkvartalet.
Det er varslet følgende fra Utbygger:
Forhåndsbefaring 13. januar 2026 11:30.
Overtakelse 3. februar 2026 11:30.
Forbrukerinformasjon om budgivning er vedlagt denne salgsoppgaven.
Alle bud og budforhøyelser må inngis skriftlig. I tillegg må legitimasjon være fremlagt sammen med signatur fra budgiver(e). Vi oppfordrer til å gi bud elektronisk via GI BUD knappen på finn.no, eller roislandco.no. Da vil samtlige vilkår bli oppfylt. Eventuelle forhøyelser eller endringer av budet kan bekreftes på SMS eller på e-post. Vi oppfordrer alltid til å kontakte megler pr. telefon i tillegg da forsinkelser i SMS og mail kan forekomme.
Megler er forpliktet til å legge til rette for en forsvarlig avvikling av budrunden. For at budene skal kunne bli behandlet og videreformidlet skriftlig til alle involverte parter, må ethvert bud ha en tilstrekkelig lang akseptfrist, jf. eiendomsmeglingsforskriften § 6-3. Selger må også skriftlig akseptere budet før aksept kan formidles til budgiver. Akseptfrist bør derfor være på minimum 30 minutter fra budet er mottatt av megler, og budforhøyelser må derfor skje i god tid før fristens utløp. Bud kan uansett ikke settes med kortere frist enn kl.12.00 første virkedag etter siste annonserte visning. Etter at eiendommen er solgt vil kjøper og selger få tilsendt budjournal. Øvrige budgivere kan få utlevert kopi av budjournalen i anonymisert form.
I henhold til eiendomsmeglingsforskriften § 6-3 første ledd har megler en plikt til å oppfordre oppdragsgiver (selger) til ikke å ta imot bud direkte fra budgiver, men henvise til megler. Megler oppfordrer partene til å lese retningslinjene for budgivning vedlagt i salgsoppgaven.
Et eventuelt bud fra selger til kjøper (såkalte «motbud»), er avtalerettslig bindende tilbud som medfører at det foreligger en avtale om salg av eiendommen dersom budet i rett tid aksepteres av kjøper.
Budgiverens opplysning om han er forbruker eller næringsdrivende:
Avhendingsloven ble endret med virkning fra 1. januar 2022 og innebærer blant annet at «som den er»-forbehold ikke har virkning i forbrukerkjøp, jf. avhendingsloven § 3-9 andre ledd, jf. § 1-2 tredje ledd. Med forbrukerkjøper menes en kjøper av eiendom som er en fysisk person og som ikke hovedsakelig handler som ledd i næringsvirksomhet. «Som den er»-forbehold kan imidlertid fremdeles tas utenfor forbrukerkjøp. Hvorvidt eiendommen selges til en forbrukerkjøper eller ikke, kan derfor ha betydning for fordelingen av risiko mellom partene: hvis kjøperen er forbruker, bærer selger ansvaret dersom eiendommen ikke samsvarer med de krav til kvalitet, utrustning og annet som følger av avtalen, jf. avhendingsloven § 3-1. Hvis kjøperen er profesjonell, bærer imidlertid selger ansvaret for slike avvik bare i den grad eiendommen er i vesentlig ringere stand enn kjøperen hadde grunn til å regne med ut fra kjøpesummen og forholdene ellers.
Budgivers opplysning om han er forbruker eller ikke, skal gis i forbindelse med formidling av budet, for eksempel ved at det i budskjemaet krysses av for om man er forbrukerkjøper eller ikke. Budgiver må informere megler om han opptrer som forbruker eller ikke-forbruker ved budgivning for at andre parter involvert i budrunden kan ta stilling til forhold av faktisk og rettslig art som er viktige i forbindelse med avtalen. Megler har begrenset mulighet til å kontrollere budgivers egenopplysning om vedkommende er næringsdrivende eller ikke, og budgiverens skriftlige opplysning om han er forbrukerkjøper eller ikke, må legges til grunn.
Ved salg av en kontraktsposisjon er det merverdien, (kjøper 1s gevinst) budgiver skal legge inn bud på. Konferer megler før bud legges inn.
Avtalen mellom kjøper 1 (videreselgeren av kontrakten) og kjøper 2 (ny kjøper), blir regulert av avhendingsloven, kjøpsloven og forbrukerkjøpsloven.
Interessenter må sette seg inn i salgsoppgaven utarbeidet i forbindelse med salg av kontraktsposisjonen, samt kjøpekontrakten med tilhørende dokumenter signert av kjøper 1 og selger (utbygger), før bud inngis.
Det forutsettes at hjemmel overføres til kjøper. Hvis kjøper ikke ønsker hjemmelsoverføring av eiendommen, må det tas forbehold om dette i budet.
Ingen kan direkte eller indirekte erverve mer en to boligseksjoner i et boligsameie jf. eierseksjonsloven § 23. Dersom et erverv har funnet sted i strid med eierseksjonslovens regler kan Kartverket nekte overskjøting. Dersom overskjøting blir nektet, er kjøper likevel forpliktet til å gjennomføre handelen med selger, og oppgjør til selger vil finne sted tross manglende overskjøting.
Dette gjelder salg av en kontraktposisjon for en konkret bolig under oppføring. Ny kjøper (kjøper 2) overtar selgers (førstegangskjøpers) rettigheter og forpliktelser iht. opprinnelig kontrakt. Ved kjøp av kontraktposisjon må hovedkontrakten overtas med alle rettigheter og plikter, herunder betalingsvilkår og de lovpålagte garantier. Opprinnelig kontrakt regulerer alle forhold knyttet til leveransen av boligen. Det forutsettes at kjøper grundig har gjennomgått den opprinnelige kjøpekontrakten med tilhørende vedlegg, før bud inngis.
Handelen reguleres av kjøpekontrakt som inngås etter at kjøpstilbud på kontraktposisjonen er akseptert. Det tas forbehold om at utbygger aksepterer transport av opprinnelig kontrakt. Stilt garanti(er) følger boligen, og garanti(er) kan bare gjøres gjeldende av ny kjøper. Eventuelle forbehold som kjøper har tatt skal være avklart.
Ved signering av transportkontrakt skal kjøper av kontraktsposisjonen (kjøper 2) innbetale kjøper 1 sin allerede innbetalte 10%, merverdien (kjøper 1 sin gevinst), samt transportgebyret til utbygger. Kjøper 1 vil få tilbakebetalt sin 10% med fratrekk for meglerkostnadene ved salg. Kjøper 1 sin gevinst ved videresalget (merverdien) vil bero på meglers klientkonto frem til kjøper 2 har overtatt leiligheten og fått rettsvern for sitt erverv. Opptjente renter på merverdien tilfaller kjøper 1 (selger av kontrakten).
Dersom kjøper 2 er forbruker, faller pliktene hans til å betale merverdien bort dersom entreprenøren ikke ferdigstiller boligen, jf. Avhendingsloven §1-1 fjerde ledd. Kjøper 1 har likevel ikke noe ansvar for mangelfull eller forsinket levering fra selgers side, og kjøper 2 plikter å betale hele merverdien i disse tilfellene. Dette gjelder selv om mangelen er vesentlig og gir kjøper 2 rett til å heve kontrakten med selger.
Skulle noe virke uklart, kontakt megler.
Garanti som Selger (utbygger) har stilt i medhold av buofl. § 12 og eventuelt § 47 kan gjøres gjeldende av Kjøper 2 som Kjøper 1 sin rettsetterfølger (jf. buofl. § 12, 6. ledd).
Garantien etter buofl. § 12, som minst lyder på 3% av vederlaget i perioden før overtagelse og 5 % i perioden frem til 5 år etter overtagelsen, er beregnet av opprinnelig kjøpesum mellom Selger og Kjøper 1 i henhold til kjøpekontrakt.
Eiendomsmeglere er underlagt Lov om hvitvasking. I henhold til Lov av 01.06.18 nr. 23 om tiltak mot hvitvasking og terrorfinansiering (Hvitvaskingsloven), er megler pliktig til å gjennomføre identitetskontroll av alle involverte parter. Hvitvaskingsloven pålegger blant annet eiendomsmegler å innhente redegjørelse av midlenes opprinnelse. Dette besvares av samtlige kjøpere herunder parter som opptrer på vegne av kjøper, ved en såkalt kundekontroll. Ved eventuelt tilbakehold av informasjon eller mistenkelige transaksjoner, plikter eiendomsmegleren å melde fra til Økokrim. Med «mistenkelig transaksjon» menes transaksjon som mistenkes å involvere utbytte fra straffbar handling, eller som skjer som ledd i terrorfinansiering. Manglende mulighet for kundekontroll kan også være et forhold som gjør transaksjonen mistenkelig.
Det anbefales at kjøper innbetaler kjøpesummen som ikke kommer fra låneinstitusjon, i en samlet innbetaling fra egen konto i norsk bank.
Selger forbeholder seg også retten til å kreve dokumentasjon av kjøpers finansiering.
Det kan ikke gjøres ansvar gjeldende mot meglerforetaket som følge av at meglerforetaket overholder sine plikter etter Hvitvaskingsloven.
I henhold til personopplysningsloven gjør vi oppmerksom på at interessenter kan bli registrert for videre oppfølging.
Adam Stiblar
Meglers vederlag betales av selger og er avtalt til:
Fastpris: kr. 39 900
Oppstartsgebyr kontraktsposisjon: kr. 12 900
Markedsføringspakke: kr. 17 650
Oppgjørshonorar: kr. 6 950
Oppslag eiendomsregister: kr. 700
Megler har i tillegg krav på dekning av utlegg.
Oppdragsnummer: 3-0014/25
Martin Killi Arnesen
Sist oppdatert: 11.11.2025