Eiendommen
Knr. 3201 Gnr. 41 Bnr. 845
Komplett Salgsoppgave
Fornebuveien 31, 1366 LYSAKER
Meld din interesse så tar vi kontakt med deg og holder deg orientert om boligen!
Salg av kontraktsposisjon: Leiligheten er under oppføring og det er ikke tilgang på selve leiligheten/byggeplass. Det er mulig å gjennomføre en digital visning på Teams for en gjennomgang av spørsmål/fly i simulator (utsikt/solforhold). Konferer med megler for ytterligere informasjon og en hyggelig prat.
Dette er et salg av en kontraktsposisjon vedrørende leilighet C4-403 i prosjektet Poulssons Kvarter I. Denne leiligheten ligger i bygget Eger, og har en god intern beliggenhet. Leiligheten ligger fordelaktig på byggets hjørne i 4. etasje, med nordvestvendt balkong på ca. 8 m². Leiligheten leveres etter interiørkonseptet «Soft» hvor kjøkkenet leveres i en delikat beige farge. Kjøkkenet får integrerte hvitevarer fra Siemens og benkeventilator fra Bora. Enstavs hvitpigmentert eikeparkett i en matt utførelse sammen med lyse gråbeige vegger skaper et dempet og rolig uttrykk i leiligheten.
Prosjektets hjemmeside: https://fredensborgbolig.no/nybygg/vare-prosjekter/poulssons-kvarter/til-salgs
– Lekker 3-roms hjørneleilighet i 4. etasje
– Nordvestvendt balkong på 8 m²
– Estimert innflytting Q1 2027
– Godt isolert og balansert ventilasjon
– Heis
– Ingen forkjøpsrett
– Fellesfasiliteter som treningsrom, fellesrom, kontorhuber, golfsimulator m.m.
– Kun 10 minutter unna Oslo sentrum med kollektivtransport

Knr. 3201 Gnr. 41 Bnr. 845
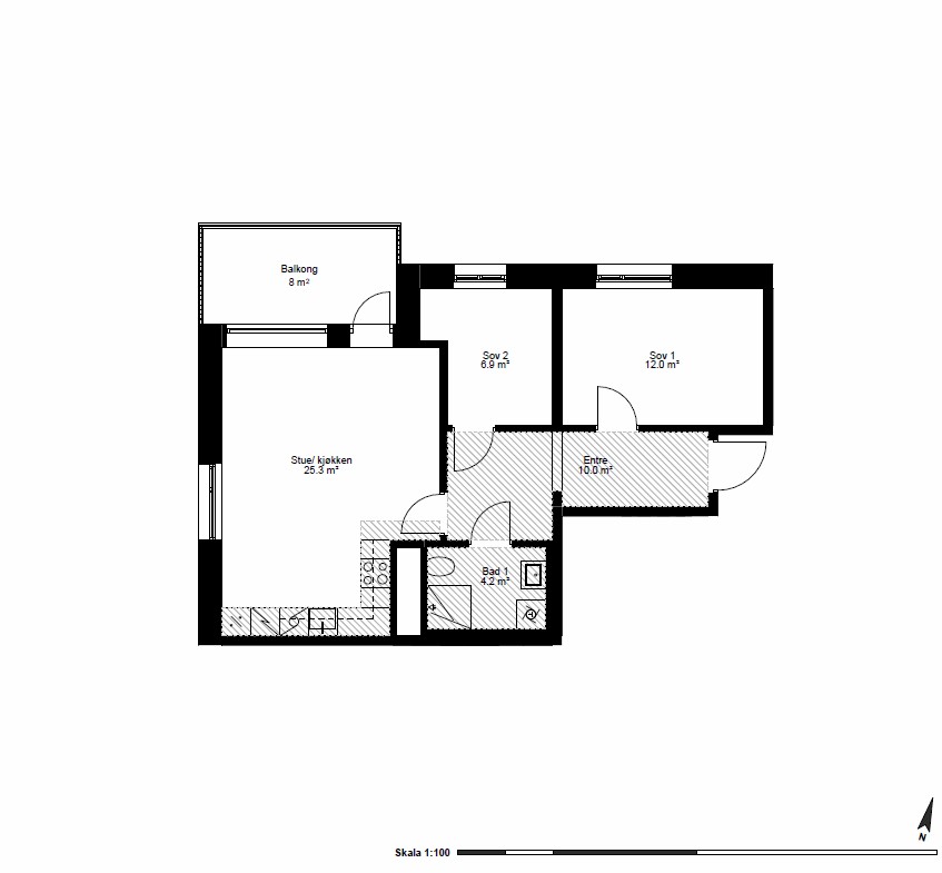
Totalt bruksareal BRA: 68 m²
BRA-i (innvendig i leiligheten): 63 m²
BRA-e (kjellerbod): 5 m²
TBA (balkong): 8 m²
Arealbeskrivelse:
Arealer er hentet fra Utbyggers plantegning. Arealet er beregnet ut fra Norsk standard NS 3940:2023. BRA-i: Internt arealet innenfor boligens omsluttende vegger, inkludert sjakt. BRA-e: Eksternt areal som boligen har eksklusiv bruksrett til, men som ikke ligger i boligen, f. eks. kjellerbod. BRA-b: Areal for innglasset balkong med veggareal. Total BRA = Summen av BRA-i, BRA-e og BRA-b. TBA er areal på terrasse og balkong. Arealet oppgis ved salg, men inngår ikke i BRA. Oppgitt romareal er netto romareal. De oppgitte arealer er å betrakte som cirka-arealer. Partene har ingen krav mot hverandre dersom arealet skulle vise seg å være 5 % mindre / større enn det oppgitte areal.
Interiørkonseptet «Soft» er valgt i leiligheten. Duse og naturlige toner i beige legger til rette for en avslappende og lun atmosfære og lar detaljer tre frem. I standard interiørkonsept får du kjøkken i en delikat beige farge sammen med laminat benkeplate i naturstein imitasjon. Kjøkkenet får integrerte hvitevarer fra Siemens og benkeventilator fra Bora. Armatur og øvrige detaljer i krom utførelse. Enstavs hvitpigmentert eikeparkett i en matt utførelse sammen med lyse gråbeige vegger skaper et dempet og rolig uttrykk i leiligheten.
Badet skal være en kilde til ro og avslapping, og er utstyrt med innredning i samme utførelse som kjøkken. På badet får du eksklusiv storformatflis inspirert av naturstein i lyse nyanser. Ved at samme flis legges på gulv og vegg skaper det et helhetlig og smakfullt uttrykk. Speilet leveres i samme bredde som servant med belysning på vegg. Armatur og øvrige detaljer får en stilren krom utførelse.
Veggfarge: Kalk, NCS 1603 Y31R.
Entre:
Leiligheten får en entré på ca. 10 m². Det blir lagt 1-stavs hvitpigmentert parkett (Haro enstavs eikeparkett, hvitpigmentert. Matt lakk, børstet. 180 mm bredde med fas. Haro 1S Country lightwhite børstet ultramatt lakk 13,5/3,5x180x1750/2200m). Det leveres fotlister i tilnærmet samme farge som parketten. . Det leveres downlights i himling.
Det leveres et digitalt portsystem fra Defigo med touchskjerm og videooverføring. Systemet er koblet opp mot beboers mobiltelefon eller nettbrett og man åpner hovedinngangsdøren direkte fra en av disse enhetene.
Stue og kjøkken:
Stue på ca. 25,3 m² med åpen kjøkkenløsning. Her blir det meget god plass til spisebord, sofa og tv-møblement.
Kjøkken leveres fra Sigdal og inkluderer hvitevarer. Kjøkkentegning ligger vedlagt i salgsoppgaven.
Modell: Vidde Korn
Håndtak Edge, børstet antrasitt.
Benkeplate: Laminat benkeplate 20mm (IM 652 Delaware stein)
Intra Omnia SF600, stål, vask for nedfelling.
Kjøkkenarmatur fra Tapwell ARM184, krom.
Integrerte hvitevarer:
Bora S Pure, benkeventilator.
Siemens kombiskap.
Oppvaskmaskin, Siemens iQ300, helintegrert, 60 cm standard.
Stekeovn, Siemens iQ100, 60 cm.
Balkong:
Fra stuen er det utgang til en nordvestvendt balkong på ca. 8 m². Her har man sol fra rundt kl. 14:30 til 20:00/20:30 midtsommers, ifølge prosjektets solsimulator.
Det blir levert utvendig lampe og en enkel stikkontakt.
Bad:
Leiligheten får et innbydende bad på ca. 4,2 m².
Baderomsinnredning 60 cm bredde med skuffer og heltrukken servant i samme bredde som innredningen. Farge beige (Clay Grey).
Utenpåliggende speil med aluminiumsramme, bredde 60 cm, høyde 100 cm.
Tapwell EVM072 krom med pop-up bunnventil
Vegghengt toalett med soft close uten synlig innfestning
Dører i klart glass, detaljer i krom.
Downlights med dimmer.
Glasskuppel på vegg på bad. Plassering varierer i henhold til utforming på bad.
Vannbåren eller elektrisk gulvvarme.
Det leveres opplegg for vaskemaskin og stikkontakt til tørketrommel.
Soverom:
Hovedsoverommet er på ca. 12 m².
Soverom 2 er på ca. 6,9 m².
Det leveres ikke garderobeskap eller klesskap, men det er avsatt plass til garderobe som vist på plantegning.
Det er ikke bestilt tilvalg i denne leiligheten.
Leiligheten leveres med standardleveranse og konseptet: «Soft».
Det er ikke mulig å gjøre tilvalg i leiligheten da frister er utløpt.
Det medfølger ikke parkeringsplass til denne leiligheten.
Det er planlagt felles bildelingstjeneste i prosjektet for PK1 og PK2. Utbygger vil fremforhandle avtale på vegne av Borettslagene. Det er planlagt inntil 4 delebiler på avsatte plasser i garasjeanlegget på PK 1. Aktuelle parkeringsplasser eies av utbygger.
Oppvarming og varmt tappevann planlegges via fjernvarme. Det leveres vannbåren gulvvarme i stue/kjøkken. Individuell forbruksmåler plassert i fordelerskap i hver leilighet. Bad og WC blir levert med elektrisk eller vannbåren gulvvarme. Det leveres egen vannmåler for varmt tappevann til hver leilighet.
Det er balansert ventilasjon med varmegjenvinning. Det leveres sentralt ventilasjonsanlegg. Det leveres omluftsventilasjon (kullfilter) til kjøkken integrert i koketopp.
Energimerking gir relevant informasjon om hvor energieffektiv boligen er. Energiattester vil bli utarbeidet av selger etter at detaljprosjekteringen er gjennomført, og utleveres ved overtakelse av boligen. Energiattesten skal dokumenter at man minst tilfredsstiller Energiklasse (fyll inn). Se www.energimerking.no for mer informasjon om energimerking av boliger.
Det tas forbehold for at avvik fra dette vil forekomme, dette spesielt for boliger med mye vindusflate.
Det foreligger ikke ferdigattest eller midlertidig brukstillatelse på eiendommen, da bygget ikke er ferdigstilt på salgstidspunktet.
Det er utbyggers plikt å fremskaffe ferdigattest på eiendommen. Det gjøres oppmerksom på at midlertidig brukstillatelse eller ferdigattest må foreligge før kjøper kan ta i bruk eiendommen. Kjøper er gjort kjent med at det kan ta lang tid i etterkant av ferdigstillelse av et bygg, før ferdigattest foreligger. Kjøper kan ikke nekte overtagelse ved manglende ferdigattest, dersom midlertidig brukstillatelse foreligger.
Det er begrenset adgang til å leie ut bolig i borettslag. Andelseier som bor i boligen selv, kan leie ut deler av boligen til andre uten godkjenning, jf. borettslagsloven § 5-4. Med styrets godkjenning og dersom nærmere angitte vilkår er oppfylt, kan boligen leies ut for opptil 3 år, jf. borettslagsloven §§ 5-3 til 5-10. Ellers se borettslagets utkast til vedtekter for bestemmelser knyttet til utleie av boligen.
Ved utleie av bolig er utleier ansvarlig for at boligen har forsvarlig radonverdier. I normaltilfeller er det kun nødvendig å måle radon i leiligheter med bakkekontakt, samt etasjen over.
På eiendommen er det tinglyst følgende heftelser og rettigheter som følger eiendommens matrikkel ved overskjøting til ny hjemmelshaver:
3201/41/845:
23.05.2025 – Dokumentnr: 581214 – Festekontrakt – vilkår
Gjelder feste
Årlig festeavgift: NOK 1 000
Gjelder fra dato: 23/05-2025
Tomteverdi: NOK 414 191 682
18.11.1910 – Dokumentnr: 904740 – Bestemmelse om deleforbud
Bestemmelse om bebyggelse
Bestemmelse om benyttelse
Bestemmelse om bebyggelse
Bestemmelse om benyttelse
Rett til strand til oppførelse av badehus og til båtfeste,
Best.om veg.
Bestm. om vann m.m.
Overført fra: Knr:3201 Gnr:41 Bnr:2588
Gjelder denne registerenheten med flere
16.01.1920 – Dokumentnr: 900571 – Bestemmelse om deleforbud
Bestemmelse om bebyggelse
Bestemmelse om benyttelse
Bestemmelse om gjerde
Bestemmelse om veg
Overført fra: Knr:3201 Gnr:41 Bnr:99
14.06.1935 – Dokumentnr: 28 – Bestemmelse om veg
Registrert feil
Rettet etter tingl. §18
01.10.2024 Arkivref. 24/34940-1
Overført fra: Knr:3201 Gnr:41 Bnr:2600
Gjelder denne registerenheten med flere
14.06.1935 – Dokumentnr: 28 – Bestemmelse om vann/kloakk
Registrert feil
Rettet etter tingl. §18
01.10.2024 Arkivref. 24/34940-1
Overført fra: Knr:3201 Gnr:41 Bnr:2600
Gjelder denne registerenheten med flere
14.06.1935 – Dokumentnr: 28 – Erklæring/avtale
Bestemmelse om rett til å legge ledninger av enhver art
Uteglemt registrert
Rettet etter tingl. §18
01.10.2024 Arkivref. 24/34940-1
Overført fra: Knr:3201 Gnr:41 Bnr:2600
Gjelder denne registerenheten med flere
07.04.1936 – Dokumentnr: 1502 – Bestemmelse om gjerde
Overført fra: Knr:3201 Gnr:41 Bnr:2598
Gjelder denne registerenheten med flere
05.05.1936 – Dokumentnr: 1829 – Bestemmelse om deleforbud
Bestemmelse om vann/kloakkledning
Bestemmelse om bebyggelse
Bestemmelse om benyttelse
Bestemmelse om gjerde
veg
Bestemmelse om garasje/parkering
Bestemmelse om strandlinje
Med flere bestemmelser
Overført fra: Knr:3201 Gnr:41 Bnr:2598
Gjelder denne registerenheten med flere
22.05.1939 – Dokumentnr: 2670 – Erklæring/avtale
Fravikelseskjennelse vedr. ekspropiasjon til utvidelse av
Snarøveien
Overført fra: Knr:3201 Gnr:41 Bnr:99
Gjelder denne registerenheten med flere
31.10.1946 – Dokumentnr: 4749 – Bestemmelse om deleforbud
Bestemmelse om bebyggelse
Bestemmelse om benyttelse
Bestemmelse om vann/kloakkledning
Bestemmelse om gjerde
Bestemmelse om veg
Med flere bestemmelser
Overført fra: Knr:3201 Gnr:41 Bnr:2601
Gjelder denne registerenheten med flere
20.01.1955 – Dokumentnr: 582 – Skjønn
Vedr. ekspropiasjon til Drammensveien
Overført fra: Knr:3201 Gnr:41 Bnr:2598
Gjelder denne registerenheten med flere
02.12.1963 – Dokumentnr: 306406 – Rettigheter iflg. skjøte
Rettighetshaver: Knr:3201 Gnr:41 Bnr:58
Bestemmelse om adkomstrett
Med flere bestemmelser
Overført fra: Knr:3201 Gnr:41 Bnr:2588
Gjelder denne registerenheten med flere
15.05.1979 – Dokumentnr: 9335 – Best. om vann/kloakkledn.
Kan ikke slettes uten samtykke fra kommunen
Overført fra: Knr:3201 Gnr:41 Bnr:99
29.05.1980 – Dokumentnr: 10869 – Best. om adkomstrett
over d.e. for eier av parsell av d.e.
Overført fra: Knr:3201 Gnr:41 Bnr:99
26.08.1980 – Dokumentnr: 17975 – Best. om adkomstrett
Rettighetshaver: Knr:3201 Gnr:41 Bnr:567
– kjørbar
Overført fra: Knr:3201 Gnr:41 Bnr:99
01.12.1981 – Dokumentnr: 26007 – Erklæring/avtale
Bestemmelse om trafostasjon/kiosk
Overført fra: Knr:3201 Gnr:41 Bnr:2588
Gjelder denne registerenheten med flere
30.05.1985 – Dokumentnr: 15415 – Erklæring/avtale
vedr. vann-/kloakkreglement
Overført fra: Knr:3201 Gnr:41 Bnr:99
19.09.1985 – Dokumentnr: 29965 – Vilkår i kjøpekontrakt
Bestemmelse om gjerde
Bestemmelse om adkomstrett – gang/sykkelveg m.m.
Overført fra: Knr:3201 Gnr:41 Bnr:99
12.09.1988 – Dokumentnr: 29461 – Erklæring/avtale
Makesifteavtale på bnr. 247 og bnr. 218 med vegsjefen i
Akershus på vegne av Staten v/Samferdselsdepartementet om
overdragelse av grunn til sistnevnte på forskj. vilkår.
Overført fra: Knr:3201 Gnr:41 Bnr:2601
Gjelder denne registerenheten med flere
27.02.1989 – Dokumentnr: 6398 – Bestemmelse om bebyggelse
Del av d.eid. kan ikke bebygges uten samtykke fra eierne av
bnr. 148, bnr. 182 og bnr. 219.
Overført fra: Knr:3201 Gnr:41 Bnr:2601
Gjelder denne registerenheten med flere
02.06.1989 – Dokumentnr: 18094 – Erklæring/avtale
Vedr. omlegging av den gamle trase for Snarøyveien, bruk av
arealer, veieretter m.v.
Overført fra: Knr:3201 Gnr:41 Bnr:2601
Gjelder denne registerenheten med flere
———-
Diverse påtegning
Dler av eierseksjonssameiet har rett til å utnytte grunnen under 219/41-218.
24.01.1990 – Dokumentnr: 2920 – Erklæring/avtale
Målebrev
Overført fra: Knr:3201 Gnr:41 Bnr:2598
Gjelder denne registerenheten med flere
24.01.1990 – Dokumentnr: 2921 – Erklæring/avtale
Målebrev
Overført fra: Knr:3201 Gnr:41 Bnr:2598
Gjelder denne registerenheten med flere
21.09.1992 – Dokumentnr: 23141 – Erklæring/avtale
ALLE KOSTNADER I F.M. FREMTIDIG VEDLIKEHOLD ER GRUNNEIERENS
ANSVAR, INKLUDERT KOSTNADER FORBUNDET MED TILTAK. DETTE
GJELDER FJELLSKRÅNING OG FORHOLD SOM KAN TILBAKEFØRES TIL
DRENSVANN FRA EIENDOMMEN. DERSOM VEGVESENET VURDERER DET
SLIK AT DET BLIR FOR MYE VANN I VÅRT OVERVANNSSYSTEM, KAN VI
KREVE AT DET INSTALLERES PUMPEANLEGG SLIK AT VANNET BLIR
LEDET EN ANNEN VEG.
Overført fra: Knr:3201 Gnr:41 Bnr:2598
Gjelder denne registerenheten med flere
11.06.2008 – Dokumentnr: 471949 – Bestemmelse om parkering
Rettighetshaver: Knr:3201 Gnr:41 Bnr:845
Bestemmelse om gang- og kjøreadkomst til 31 parkeringsplasser.
Kan ikke slettes uten samtykke fra kommunen
Overført fra: Knr:3201 Gnr:41 Bnr:2588
Gjelder denne registerenheten med flere
11.06.2008 – Dokumentnr: 471964 – Best. om adkomstrett
Rettighetshaver: Knr:3201 Gnr:41 Bnr:57
Kan ikke slettes uten samtykke fra kommunen
11.06.2008 – Dokumentnr: 472031 – Best. om vann/kloakkledn.
Bestemmelse om anlegg og vedlikehold av ledninger m.m.
Kan ikke slettes uten samtykke fra kommunen
Overført fra: Knr:3201 Gnr:41 Bnr:2588
Gjelder denne registerenheten med flere
11.06.2008 – Dokumentnr: 472043 – Bestemmelse om parkering
Rettighetshaver: Knr:3201 Gnr:41 Bnr:58
Bestemmelse om gang- og kjøreadkomst til 6 parkeringsplasser.
Kan ikke slettes uten samtykke fra kommunen
Overført fra: Knr:3201 Gnr:41 Bnr:2588
Gjelder denne registerenheten med flere
10.09.2010 – Dokumentnr: 683644 – Bestemmelse om parkering
Rettighetshaver: Knr:3201 Gnr:41 Bnr:58
Kan ikke slettes uten samtykke fra kommunen
Overført fra: Knr:3201 Gnr:41 Bnr:2588
Gjelder denne registerenheten med flere
10.09.2010 – Dokumentnr: 683644 – Best. om adkomstrett
Rettighetshaver: Knr:3201 Gnr:41 Bnr:58
Overført fra: Knr:3201 Gnr:41 Bnr:2588
Gjelder denne registerenheten med flere
29.03.2021 – Dokumentnr: 376089 – Erklæring/avtale
Rettighetshaver: Akershus Fylkeskommune
Org.nr: 930 580 783
Avtale om grunneierbidrag i forbindelse med etablering av Fornebubanen
Overført fra: Knr:3201 Gnr:41 Bnr:2598 m.fl.
Gjelder denne registerenheten med flere
09.05.2023 – Dokumentnr: 480476 – Rettighet
Rettighetshaver: Akershus Fylkeskommune
Org.nr: 930 580 783
Avtale om grunneierbidrag på Fornebu
Gjelder denne registerenheten med flere
09.05.2023 – Dokumentnr: 480494 – Rettighet
Rettighetshaver: Akershus Fylkeskommune
Org.nr: 930 580 783
Tilleggsavtale til 2023/480476
Gjelder denne registerenheten med flere
25.03.2025 – Dokumentnr: 337300 – Rettighet
Rettighetshaver: Akershus Fylkeskommune
Org.nr: 930 580 783
Avtale om grunneierbidrag på Fornebu
Utvidelse av dokument 2023/480476
Overført fra: Knr:3201 Gnr:41 Bnr:2591 m.fl.
25.03.2025 – Dokumentnr: 337380 – Rettighet
Rettighetshaver: Akershus Fylkeskommune
Org.nr: 930 580 783
Tilleggsavtale til 2025/337300
Utvidelse av dokumentnr 2023/480494
Overført fra: Knr:3201 Gnr:41 Bnr:2591 m.fl.
23.05.2025 – Dokumentnr: 581214 – Festekontrakt – vilkår
Årlig festeavgift: NOK 1 000
Gjelder fra dato: 23/05-2025
Tomteverdi: NOK 414 191 682
30.09.2025 – Dokumentnr: 1162832 – Bestemmelse om vann/kloakk
Rettighetshaver: Bærum Kommune
Org.nr: 935 478 715
Adkomstrett for drift og vedlikehold av anlegg/ledninger/kabler
Bestemmelse om bebyggelse i nærheten av anlegg/ledninger/kabler
30.09.2025 – Dokumentnr: 1162860 – Bestemmelse om vann/kloakk
Kan ikke slettes uten samtykke fra: Bærum Kommune
Org.nr: 935 478 715
Bestemmelse om restriksjonsbeltet
30.09.2025 – Dokumentnr: 1162999 – Bestemmelse om vannledning
Rettighetshaver: Teleplan Eiendom AS
Org.nr: 998 424 097
Kan ikke slettes uten samtykke fra: Bærum Kommune
Org.nr: 935 478 715
10.11.2025 – Dokumentnr: 1376304 – Registerenheten kan ikke disponeres over uten samtykke fra rettighetshaver
Rettighetshaver: Røisland & Co Eiendomsmegling AS
Org.nr: 994 194 410
Elektronisk innsendt
11.06.2008 – Dokumentnr: 471855 – Registrering av grunn
Denne matrikkelenhet opprettet fra:
Knr:3201 Gnr:41 Bnr:57
01.01.2020 – Dokumentnr: 1834315 – Omnummerering ved kommuneendring
Tidligere: Knr:0219 Gnr:41 Bnr:845
01.01.2024 – Dokumentnr: 73720 – Omnummerering ved kommuneendring
Tidligere: Knr:3024 Gnr:41 Bnr:845
19.08.2025 – Dokumentnr: 964697 – Sammenslåing
Sammenslått med denne matrikkelenhet:
Knr:3201 Gnr:41 Bnr:99
Sammenslått med denne matrikkelenhet:
Knr:3201 Gnr:41 Bnr:182
Sammenslått med denne matrikkelenhet:
Knr:3201 Gnr:41 Bnr:183
Sammenslått med denne matrikkelenhet:
Knr:3201 Gnr:41 Bnr:371
Sammenslått med denne matrikkelenhet:
Knr:3201 Gnr:41 Bnr:372
Sammenslått med denne matrikkelenhet:
Knr:3201 Gnr:41 Bnr:623
Sammenslått med denne matrikkelenhet:
Knr:3201 Gnr:41 Bnr:2588
Sammenslått med denne matrikkelenhet:
Knr:3201 Gnr:41 Bnr:2591
Sammenslått med denne matrikkelenhet:
Knr:3201 Gnr:41 Bnr:2593
Sammenslått med denne matrikkelenhet:
Knr:3201 Gnr:41 Bnr:2598
Sammenslått med denne matrikkelenhet:
Knr:3201 Gnr:41 Bnr:2600
Sammenslått med denne matrikkelenhet:
Knr:3201 Gnr:41 Bnr:2601
Sammenslått med denne matrikkelenhet:
Knr:3201 Gnr:300 Bnr:2371
Elektronisk innsendt
11.06.2008 – Dokumentnr: 471949 – Bestemmelse om parkering
Rettighet hefter i: Knr:3201 Gnr:41 Bnr:57
Rettighet hefter i: Knr:3201 Gnr:41 Bnr:845
Bestemmelse om gang- og kjøreadkomst til 31 parkeringsplasser.
Kan ikke slettes uten samtykke fra kommunen
Overført fra: Knr:3201 Gnr:41 Bnr:2588
Gjelder denne registerenheten med flere
Poulssons Kvarter ligger kun 10 minutter unna Oslo sentrum med kollektivtransport. Likevel er tanken at dette skal være et nabolag som det er verdt å bruke mye tid i, og få mest mulig ut av hver dag uten å måtte flytte for mye på seg.
Midt i mellom sjø og sentrum
I Poulssons Kvarter vil du befinne deg midt i mellom både strandliv og hverdagsliv. Sjøbris og shopping. Det er kort avstand til fine strender som Storøyodden eller Sollerudstranda, shoppingmuligheter på CC Vest og Fornebu S og gode kollektivtilbud. Siden det ligger i Fornebuporten, inngangen til Fornebu, vil du ha svært god adkomst fra hovedveisystemet og den nye hovedsykkelveien, samt kort avstand til Oslo sentrum. Her trenger du ikke å velge, du får det beste av to verdener.
Nærhet til livet
I Poulssons Kvarter finner du moderne boligkvartaler med attraktive uteområder som alle omkranser den felles grønne parken. Boligtypene kommer i forskjellige størrelser og varianter, slik at du kan føle deg hjemme uansett hvilken livsfase du er i.
Her vil du ha nærhet til både det du trenger, men også det du ønsker å ha nærhet til. Arbeidsplasser, butikker og skoler. Men også flotte naturområder, gode muligheter for aktiviteter og kunstneriske gleder.
Start dagen med et frisk bad i sjøen, og ta lunsjen på en av kafeene i nærheten. Gå deg en tur i vakre Nansenparken og avslutt dagen med en bedre middag på retroperlen Sjøflyhavna Kro. Det finnes mange turstier i nærheten og skulle du trenge litt kunstnerisk påfyll er Skanskas gjenvinningsanlegg verdt å få med seg. Her har du den perfekte kombinasjonen av en urban livsstil og naturen. Liv og røre og ro.
I Poulssons Kvarter har du nærhet til natur og by.
Utbyggingsområdet består av gnr. 41 og bnr. 845 i Bærum kommune (“Eiendommen”). Samlet tomteareal er cirka 16 700 m².
Eiendommen planlegges fradelt og hvert bygg/borettslag vil få sitt eget bnr. Det vil bli utført enkelte makeskifter mot eiendom i nord for å etablere fornuftige eiendomsgrenser m.h.t. infrastruktur og adkomst. Utomhusarealer vil være fellesareal for Borettslagene, rett til bruk sikres gjennom gjensidige tinglyste erklæringer mellom eiendommene. Garasjeanlegget er planlagt fradelt som en egen anleggseiendom, med eget bnr. Det tas forbehold om at deleforretningene blir godkjent, samt endelig størrelse på eiendommene etter fradeling.
Utbyggingsområdet består av gnr. 41 og bnr./del av bnr. 57, 99, 148, 161, 182, 183, 371, 372, 623, 844, 845, 947 og gnr 300 og bnr 2371 i Bærum kommune ( Eiendommen ). Samlet tomteareal er cirka 16 700 m².
Eiendommene er planlagt sammenføyd til en eiendom og deretter fradelt slik at hvert bygg/ borettslag får sitt eget bnr. Det vil bli utført enkelte makeskifter mot eiendom i nord for å etablere fornuftige eiendomsgrenser m.h.t. infrastruktur og adkomst.
Utomhusarealer vil være fellesareal for Borettslagene, og er planlagt fradelt som en egen eiendom. Eventuelt nytt bnr. vil foreligge når deleforretningen er gjennomført. Garasjeanlegget er planlagt fradelt som en egen anleggseiendom, med eget bnr.
Det er tatt forbehold om at sammenføyningen og deleforretningene blir godkjent, samt endelig størrelse på felles utomhusarealer og Eiendommen/eiendommene etter fradeling.
Detaljregulering for Fornebuveien 37 m.fl. planID 2021001 med saksnummer:19/24996 ble vedtatt 21.juni 2023. Eiendommen er i hovedsak regulert til boligformål.
I forbindelse med detaljregulering av 164 Poulssons Kvarter 165 Informasjon til kjøper Fornebuveien 37 mfl., krever Bærum kommune at bestemte felter og gangområder innenfor reguleringsplanen skal være allment tilgjengelige.
Grunneierne gir derfor allmennheten rett til ferdsel og opphold på Eiendommene innenfor feltene fSKV1, fSKV2, fSGG, fSGT1, fSGT2 og park felt fGP, slik det følger av plankartet (bilag til salgsprospekt). Tilsvarende skal gangveg innenfor bestemmelsesområde # 4 være allment tilgjengelig. Rettigheten vil bli sikret gjennom tinglyst erklæring.
I henhold til reguleringsplanen er det også planlagt rett til bruk for allmennheten av barnehagens uteområde etter ordinær åpningstid. Det foreligger en vedtatt detaljreguleringsplan for næringsbygg langs E18 i Magnus Poulssons vei 7 m.fl. planID 2021002 med saksnummer 19/19276 vedtatt av Bærum kommunestyre 21. juni 2023. Kjøper oppfordres til å sette seg inn i kart- og reguleringsbestemmelser for området. Kan fås påforespørsel til megler.
De estimerte felleskostnadene for denne leiligheten er ca. kr. 4 709 per måned.
Fordelt:
Felleskostnader: ca. kr. 56 per m²
Digital-Tv/bredbånd: kr. 299
Fjernvarme (oppvarming/varmt tappevann): kr. 12 per m²
Drifts- og vedlikeholdskostnadene vil avhenge av hvilke tjenester Borettslagene ønsker utført. Stipulerte felleskostnader for hver enkelt leilighet fremkommer av finansieringsplanen. Månedlige drifts- og vedlikeholdskostnader for Borettslagene det første driftsåret er stipulert til ca. kr. 56-61 per m² BRA-i per måned, hvor blant annet kommunale avgifter, renovasjon, forsikring på byggene, vindusvask av dobbelfasade, vedlikehold og drift av Borettslagenes fellesarealer, vaktmester, forretningsførsel, snømåking, styrehonorar, felles bildelingstjeneste, lading av el sykler, andel av drifts- og vedlikeholdskostnader for realsameiene, renhold, oppvarming og strøm på fellesarealer er inkludert. Kostnadene fordeles etter areal (BRA-i).
Kostnader til oppvarming og varmt tappevann måles individuelt for hver leilighet. À konto innbetaling til Borettslagene med ca. kr 12 per m² BRA-i per måned kommer som tillegg til felleskostnadene, med individuell avregning etter forbruk. Fjernavlesning av målere gjennomføres av Techem, Ista eller tilsvarende leverandør.
Det tas forbehold om endringer i stipulerte kostnader, da dette er basert på erfaringstall. Det understrekes at flere faktorer påvirker størrelsen på felleskostnaden, bl.a. endringer i lønns-, pris og avgiftsnivå på de faste tjenester og produkter som Borettslagene enten må ha, eller selv velger å inngå avtaler med. De faktiske kostnadene kan derfor avvike fra anslagene angitt over. Styret i Borettslagene har ansvar for og plikt til å tilpasse de månedlige felleskostnadene til de reelle utgifter. Styret har også ansvar for at Borettslagene til enhver tid har en sunn økonomi.
Selger garanterer for betaling av fellesutgifter for alle usolgte leiligheter og parkeringsplasser helt frem til alle er solgt og overtatt av ny eier.
Selger har engasjert OBOS som forretningsfører for Borettslagene og sameiene. Kostnader for dette er medtatt i budsjettet. Forretningsfører vil innkalle andelseierne i Borettslagene til ekstraordinær generalforsamling med blant annet valg av nytt styre før leilighetene er ferdigstilt/Informasjon til kjøper overtatt. Kostnader knyttet til konstituerende møte belastes Borettslagene.
Utbygger forbeholder seg retten til før overlevering å inngå nødvendige driftsavtaler med bindingstid på vegne av Borettslagene, herunder avtale om levering av signaler til internett til alle boligene, vaktmestertjenester for Borettslagenes fellesarealer, drift- og vedlikehold av heis, ventilasjonsanlegg og garasjeport, avtale om bygningsforsikring, forretningsføreravtale (fakturering og inndriving av felleskostnader, bistand med årsregnskap, likningsrapportering mv), driftsavtale for avfallsanlegg, samt andre nødvendige drifts- og serviceavtaler for felles installasjoner. Ovennevnte dekkes gjennom drifts og vedlikeholdskostnadene. I forbindelse med innflytting vil selger sørge for tilstrekkelig med avfallscontainere. Kostnader forbundet med dette vil bli belastet Borettslagene.
Det er p.t. ikke eiendomsskatt i Bærum kommune.
Formuesverdien er ikke fastsatt, men fastsettes av Skatteetaten etter en beregningsmodell som hensyntar om boligen er «primærbolig»; (der eier er bosatt iht. Folkeregisteret) eller «sekundærbolig»; (andre boliger man eier).
Formuesverdi for skatteåret 2024 var for primærbolig 25 % av markedsverdien opp til kr. 10 000 000 og deretter 70 % av den overskytende markedsverdien, og 100 % for sekundærboliger. Det gjøres oppmerksom på at kjøper selv må sende inn opplysninger om adresse, areal, boligtype og byggeår til skattemyndighetene.
Det tas forbehold om endring av satser, og henvises til Skatteetatens websider dersom ytterligere informasjon er ønskelig.
I tillegg til kjøpesummen må kjøper betale:
1: Dokumentavgift til staten, 2,5% av andel tomteverdi Kr. 78 750
2: Tinglysningsgebyr hjemmelsdokument: Kr. 545
3: Tinglysningsgebyr pant: Kr. 740
4: Andelskapital: Kr. 5 000
5: Etableringsgebyr Borettslag: Kr. 12 500
6: Gebyr for nedbetaling av fellesgjeld (INordning): kr. 5 000
7: Transportgebyr til utbygger: Kr. 55 000
Totale omkostninger: Kr. 157 535
Total kjøpesum inkl. gebyrer/avgifter og evt. øvrige kostnader: Kr. 8 047 535
Tilbud om lånefinansiering:
Megler formidler gjerne kontakt med rådgiver hos vår samarbeidspartner Sparebank 1 Hallingdal og Valdres. De har konkurransedyktige betingelser samt rask og løsningsorientert behandling av din lånesøknad. Røisland & Co mottar et honorar for denne formidlingen.
Om prosjektet:
Poulssons Kvarter vil bestå av cirka 400 leiligheter når prosjektet står ferdigstilt. Prosjektet består av to delfelt, Poulssons Kvarter 1 (“PK 1”) beliggende på reguleringsområdet BBB2 og Poulssons Kvarter 2 (“PK 2”) beliggende på reguleringsområdet benevnt BBB1. PK 1 skal bygges ut først. Prosjektet vil bli bygget ut gjennom flere byggetrinn, og hvert byggetrinn vil ha flere salgstrinn.
PK 1 består av fire bygg. Leilighetene i hvert bygg planlegges etablert som selvstendige borettslag.
PK 1 bygges ut i flere byggetrinn.
PK 1 består av cirka 195 leiligheter fordelt på 4 bygg, benevnt Rode, Eger, Collett og Eng. Denne leiligheten ligger i bygget Eger.
Bak Poulssons Kvarter står et sterkt team av arkitekter, interiørarkitekter og landskapsarkitekter med høye ambisjoner for bokvalitet. Resultatet er et mangfold av spennende leiligheter, i et nærmiljø som balanserer det landlige og det urbane, det historiske og det moderne.
Fellesarealer:
Det vil bli etablert flere fellesarealer i byggene, til glede for alle beboerne i Poulssons Kvarter. Rettigheter og plikter knyttet til disse fellesarealene sikres gjennom tinglyste bruksrettigheter og drifts- og vedlikeholdsavtaler, og er nærmere regulert i vedtektene.
Borettslaget:
Borettslaget Collett er planlagt etablert med 51 andeler. Borettslaget er del av utbyggingsområdet Poulssons Kvarter som vil bestå av cirka 400 leiligheter når prosjektet står ferdigstilt. Prosjektet består av to delfelt, Poulssons Kvarter 1 (“PK 1”) beliggende på reguleringsområdet BBB2 og Poulssons Kvarter 2 (“PK 2”) beliggende på reguleringsområdet benevnt BBB1. Borettslaget Eger inngår i PK1. Utkast på vedtekter til borettslaget ligger vedlagt i denne salgsoppgaven, og interessenter må gjøre seg kjent med denne.
Antall andeler i Borettslagene kan bli justert i forbindelse med utbyggingen, herunder som følge av sammenslåing av leiligheter eller omprosjektering av byggene. Borettslagene vil bli etablert og organisert iht. lov om burettslag av 6. juni 2003 nr. 39 («borettslagsloven»).
Ved eierskifte må erververen godkjennes av styret for å få rett til å bruke leiligheten.
Det er ikke forkjøpsrett for andelseierne i Borettslagene. Andelseieren kan med styrets godkjenning overlate bruken av hele leiligheten til andre innenfor de rammer som følger av borettslagsloven og vedtektene.
Garantert betaling av felleskostnader (GBF) – Sikringsordning
Borettslagene vil søke om å inngå avtale med OBOS Factoring AS om garantert betaling av felleskostnader («GBF»). Avtale om GBF
innebærer blant annet at OBOS Factoring AS vil:
– Betale Borettslagene summen av de månedlige felleskostnadene, både drifts- og kapitalkostnader, på en fast dato hver måned.
– Ta ansvaret for innkreving av felleskostnadene i sin helhet, og overta risikoen for tap ved mislighold, inntil 5G. Maks felleskostnader pr måned som er omfattet av GBF er 0,25 G.
– Overta Borettslagenes legalpant i andelen. Premien for sikring utgjør cirka 1 % av Borettslagenes felleskostnader. Premien er hensyntatt i budsjettet for felleskostnadene.
Oppsigelsestiden for avtalen er seks måneder. Dersom forretningsføreravtalen med OBOS sies opp vil avtalen om GBF opphøre umiddelbart. Alternativt vil det bli søkt om annen sikringsordning som f. eks. Borettslagenes Sikringsordning via NBBL. Avtale om GBF kan tidligst etableres når samtlige andeler er solgt.
Frittstående borettslag:
Leilighetene i Poulssons Kvarter blir organisert som et frittstående borettslag. Dette betyr at eierne ikke må være medlemmer i et boligbyggelag, slik man må være i tilknyttede borettslag. Dermed er det heller ingen forkjøpsrett ved salg av boliger. OBOS, Norges største boligbyggerlag, er valgt som forretningsfører. Dette sikrer trygghet og stabilitet i driften av borettslaget.
Etablering av borettslagene, overdragelse av eiendomsrett mm.:
Poulssons Kvarter Borettslag er stiftet av Utbygger. Borettslaget ervervet aksjene i et tidligere tomteselskap, som ble fusjonert inn i Borettslaget slik at Borettslag ble reell eier av tomten. Poulssons Kvarter Borettslag skal deles opp i åtte eller flere Borettslag. Borettslagene vil bli reell eier av sin ideelle andel av tomten. Utbygger vil inngå avtale om overdragelse av de ferdige oppførte byggene til de respektive Borettslagene før overtakelse. Grunnbokshjemmelen til eiendommen vil bli overskjøtet direkte til Borettslagene. Borettslagene vil bli etablert og stiftet av Utbygger.
Borettslagenes bokførte verdi på tomt og bygningsmasse tilsvarer markedsverdi ved tidspunktet for erverv av henholdsvis tomt og bygningsmasse. For bygningsmassens del vil også skattemessig inngangsverdi tilsvare markedsverdien etter overdragelsen fra Utbygger. For tomten vil borettslagene videreføre
tomteselskapets skattemessige inngangsverdi gjennom fusjonen, som vil være vesentlig lavere enn markedsverdien per i dag.
Utbygger innestår for at Borettslagene per overlevering ikke vil ha noen uoppgjorte gjeldsforpliktelser, samt leverandørgjeld tilknyttet ordinære driftskostnader for Borettslagene. Boligkjøpernes posisjon sikres ved reklamasjonsrett overfor utførende totalentreprenør, og overfor Selger gjennom kjøpekontrakten og det selgeransvaret som påhviler selskapet etter bustadsoppføringslova, som igjen vil sikres gjennom lovpålagt garanti.
Felles infrastrukturarealer m.m. – Velforening Poulssons Kvarter:
Infrastrukturarealer (adkomst, veier, VA-grøfter o.l.), grøntområder m.m. som skal etableres i forbindelse med prosjektet Poulssons Kvarter er planlagt organisert som et realsameie («Velforeningen Poulssons Kvarter»), hvor alle matrikkelenheter eller seksjoner i PK 1 og PK 2 vil få tinglyst ideelle eierandeler knyttet mot matrikkelenheten eller seksjonen. Velforeningen Poulssons Kvarter vil ha eget styre, budsjett og vedtekter. Kostnader til drift, vedlikehold m.m. av arealene vil bli belastet via felleskostnader til de respektive borettslagene/sameiene. Drifts- og vedlikeholdskostnader for innvendige fellesarealer som alle beboerne disponerer i fellesskap vil også bli ivaretatt gjennom velforeningens budsjett.
Utbygger forbeholder seg retten til å avvente overskjøting av realsameiet inntil hele prosjektet Poulssons Kvarter er ferdigstilt og/eller alle boligsameier/ boligselskaper er ferdigstilt og overlevert. Dersom arealene er ferdigstilt og tatt i bruk anses arealene som overtatt selv om hjemmel ikke er overført.Utbygger har i så fall rett til å viderefakturere eventuelle påløpte driftskostnader til Velforeningen Poulssons Kvarter, eller fremtidige sameiere i Velforeningen Poulssons Kvarter, inntil hjemmel blir overført. Utbygger vil være ansvarlig for boligselskapenes ideelle eierandelene, herunder kostnader for drift, frem til de respektive borettslagene står ferdigstilt. I prosjektets reguleringsplan og tilliggende reguleringsplan for næringsbygg i Magnus Poulssons vei 7 ligger arealer med formålsbetegnelse fSKV1, fSKV2, fSGT1, fG, fSGT2, fsGG, fV, fGS2. Dette er i hovedsak snakk om veiareal, delvis eiet av Borettslaget og delvis i sameie med tilstøtende eiendom (Arcanum). Dette arealet planlegges organisert som et tingsrettslig sameie, veilag eller tilsvarende. Endelig organisering av veiareal besluttes i forbindelse med utbyggingen. Det vil bli tinglyst rettigheter til bruk, vedlikehold og drift på vegne av Borettslagene. Se Forholdet til endelige offentlige planer for mer info om krav til allmenn ferdselsrett over deler av Eiendommen.
Ifølge prosjektets hjemmeside per 30.03.2026: Estimert innflytting Q1 2027. Sluttfristdato for leilighetene i Eger er 02.06.2027.
Forbrukerinformasjon om budgivning er vedlagt denne salgsoppgaven.
Alle bud og budforhøyelser må inngis skriftlig. I tillegg må legitimasjon være fremlagt sammen med signatur fra budgiver(e). Vi oppfordrer til å gi bud elektronisk via GI BUD knappen på finn.no, eller roislandco.no. Da vil samtlige vilkår bli oppfylt. Eventuelle forhøyelser eller endringer av budet kan bekreftes på SMS eller på e-post. Vi oppfordrer alltid til å kontakte megler pr. telefon i tillegg da forsinkelser i SMS og mail kan forekomme.
Megler skal legge til rette for en forsvarlig avvikling avbudrunden. I forbrukerforhold (dvs. der selger er forbruker) skal megleren ikke formidle bud med kortere akseptfrist enn kl. 12.00 første virkedag etter siste annonserte visning. Etter denne fristen bør budgivere ikke sette en kortere akseptfrist enn at megler har mulighet til, så langt det er nødvendig, å orientere selger, budgivere og øvrige interessenter om bud og forbehold. Dersom bud inngis med en frist som åpenbart er for kort til at megleren kan avvikle budrunden på en forsvarlig måte som sikrer selger og interessenter et tilstrekkelig grunnlag for sine handlingsvalg, vil megler fraråde budgiver å stille slik frist.
Megler skal ikke formidle bud med forbehold om at budet eller forbehold i budet skal holdes skjult (hemmelig) for andre budgivere og interessenter.
Megleren vil uoppfordret gi sin vurdering av det enkelte bud overfor selger, når budet er gitt innenfor fristene som nevnt over.
Megleren skal, så langt det er nødvendig og mulig, holde budgiverne skriftlig orientert om mottatte bud, herunder budets størrelse, forbehold og akseptfrist. Megler skal så snart som mulig bekrefte skriftlig overfor budgivere at budene deres er mottatt. For øvrig vil megler, på forespørsel fra andre, opplyse om aktuelle bud på eiendommen, herunder relevante forbehold.
Kopi av budjournal skal gis til kjøper og selger utenugrunnet opphold etter at handel er kommet i stand. Dersom det er viktig for budgiver å bevare sin anonymitet, bør budet formidles gjennom fullmektig.
I henhold til eiendomsmeglingsforskriften § 6-3 første ledd har megler en plikt til å oppfordre oppdragsgiver (selger) til ikke å ta imot bud direkte fra budgiver, men henvise til megler. Megler oppfordrer partene til å lese retningslinjene for budgivning vedlagt i salgsoppgaven.
Et eventuelt bud fra selger til kjøper (såkalte «motbud»), er avtalerettslig bindende tilbud som medfører at det foreligger en avtale om salg av eiendommen dersom budet i rett tid aksepteres av kjøper.
Budgiverens opplysning om han er forbruker eller næringsdrivende:
Avhendingsloven ble endret med virkning fra 1. januar 2022 og innebærer blant annet at «som den er»-forbehold ikke har virkning i forbrukerkjøp, jf. avhendingsloven § 3-9 andre ledd, jf. § 1-2 tredje ledd. Med forbrukerkjøper menes en kjøper av eiendom som er en fysisk person og som ikke hovedsakelig handler som ledd i næringsvirksomhet. «Som den er»-forbehold kan imidlertid fremdeles tas utenfor forbrukerkjøp. Hvorvidt eiendommen selges til en forbrukerkjøper eller ikke, kan derfor ha betydning for fordelingen av risiko mellom partene: hvis kjøperen er forbruker, bærer selger ansvaret dersom eiendommen ikke samsvarer med de krav til kvalitet, utrustning og annet som følger av avtalen, jf. avhendingsloven § 3-1. Hvis kjøperen er profesjonell, bærer imidlertid selger ansvaret for slike avvik bare i den grad eiendommen er i vesentlig ringere stand enn kjøperen hadde grunn til å regne med ut fra kjøpesummen og forholdene ellers.
Budgivers opplysning om han er forbruker eller ikke, skal gis i forbindelse med formidling av budet, for eksempel ved at det i budskjemaet krysses av for om man er forbrukerkjøper eller ikke. Budgiver må informere megler om han opptrer som forbruker eller ikke-forbruker ved budgivning for at andre parter involvert i budrunden kan ta stilling til forhold av faktisk og rettslig art som er viktige i forbindelse med avtalen. Megler har begrenset mulighet til å kontrollere budgivers egenopplysning om vedkommende er næringsdrivende eller ikke, og budgiverens skriftlige opplysning om han er forbrukerkjøper eller ikke, må legges til grunn.
Ved salg av en kontraktsposisjon er det merverdien, (kjøper 1s gevinst) budgiver skal legge inn bud på. Konferer megler før bud legges inn.
Avtalen mellom kjøper 1 (videreselgeren av kontrakten) og kjøper 2 (ny kjøper), blir regulert av avhendingsloven, kjøpsloven og forbrukerkjøpsloven.
Interessenter må sette seg inn i salgsoppgaven utarbeidet i forbindelse med salg av kontraktsposisjonen, samt kjøpekontrakten med tilhørende dokumenter signert av kjøper 1 og selger (utbygger), før bud inngis.
Det forutsettes at hjemmel overføres til kjøper. Hvis kjøper ikke ønsker hjemmelsoverføring av eiendommen, må det tas forbehold om dette i budet.
Ingen kan direkte eller indirekte erverve mer en to boligseksjoner i et boligsameie jf. eierseksjonsloven § 23. Dersom et erverv har funnet sted i strid med eierseksjonslovens regler kan Kartverket nekte overskjøting. Dersom overskjøting blir nektet, er kjøper likevel forpliktet til å gjennomføre handelen med selger, og oppgjør til selger vil finne sted tross manglende overskjøting.
Dette gjelder salg av en kontraktposisjon for en konkret bolig under oppføring. Ny kjøper (kjøper 2) overtar selgers (førstegangskjøpers) rettigheter og forpliktelser iht. opprinnelig kontrakt. Ved kjøp av kontraktposisjon må hovedkontrakten overtas med alle rettigheter og plikter, herunder betalingsvilkår og de lovpålagte garantier. Opprinnelig kontrakt regulerer alle forhold knyttet til leveransen av boligen. Det forutsettes at kjøper grundig har gjennomgått den opprinnelige kjøpekontrakten med tilhørende vedlegg, før bud inngis.
Handelen reguleres av kjøpekontrakt som inngås etter at kjøpstilbud på kontraktposisjonen er akseptert. Det tas forbehold om at utbygger aksepterer transport av opprinnelig kontrakt. Stilt garanti(er) følger boligen, og garanti(er) kan bare gjøres gjeldende av ny kjøper. Eventuelle forbehold som kjøper har tatt skal være avklart.
Ved signering av transportkontrakt skal kjøper av kontraktsposisjonen (kjøper 2) innbetale kjøper 1 sin allerede innbetalte 10%, merverdien (kjøper 1 sin gevinst), samt transportgebyret til utbygger. Kjøper 1 vil få tilbakebetalt sin 10% med fratrekk for meglerkostnadene ved salg. Kjøper 1 sin gevinst ved videresalget (merverdien) vil bero på meglers klientkonto frem til kjøper 2 har overtatt leiligheten og fått rettsvern for sitt erverv. Opptjente renter på merverdien tilfaller kjøper 1 (selger av kontrakten).
Dersom kjøper 2 er forbruker, faller pliktene hans til å betale merverdien bort dersom entreprenøren ikke ferdigstiller boligen, jf. Avhendingsloven §1-1 fjerde ledd. Kjøper 1 har likevel ikke noe ansvar for mangelfull eller forsinket levering fra selgers side, og kjøper 2 plikter å betale hele merverdien i disse tilfellene. Dette gjelder selv om mangelen er vesentlig og gir kjøper 2 rett til å heve kontrakten med selger.
Skulle noe virke uklart, kontakt megler.
Garanti som Selger (utbygger) har stilt i medhold av buofl. § 12 og eventuelt § 47 kan gjøres gjeldende av Kjøper 2 som Kjøper 1 sin rettsetterfølger (jf. buofl. § 12, 6. ledd).
Garantien etter buofl. § 12, som minst lyder på 3% av vederlaget i perioden før overtagelse og 5 % i perioden frem til 5 år etter overtagelsen, er beregnet av opprinnelig kjøpesum mellom Selger og Kjøper 1 i henhold til kjøpekontrakt.
Eiendomsmeglere er underlagt Lov om hvitvasking. I henhold til Lov av 01.06.18 nr. 23 om tiltak mot hvitvasking og terrorfinansiering (Hvitvaskingsloven), er megler pliktig til å gjennomføre identitetskontroll av alle involverte parter, herunder fullmektiger. Dette innebærer bl.a. å bekrefte kunders og reelle rettighetshaveres identitet på bakgrunn av fremvist gyldig legitimasjon eller på annen godkjent måte, samt å innhente opplysninger om kundeforholdets formål og tilsiktede art. Dersom slike kundetiltak ikke kan gjennomføres, kan megler ikke etablere kundeforholdet eller utføre transaksjonen. Hvitvaskingsloven pålegger også eiendomsmegler å innhente redegjørelse av midlenes opprinnelse. Dette besvares av samtlige kjøpere herunder parter som opptrer på vegne av kjøper, ved en såkalt kundekontroll.
Hvis kjøper ikke bidrar til gjennomføring av kundekontrollen og dette fører til at transaksjonen blir forsinket eller ikke kan gjennomføres, vil dette ansees som mislighold av avtalen og gi selger rettigheter etter avhendingslova eller bustadoppføringsloven kapittel 5. I tilfeller der selger ikke bidrar til gjennomføring av løpende kundekontroll underveis i oppdraget, er det selger som misligholder sine forpliktelser etter avtalen og gi kjøper rettigheter etter avhendingslovens eller bustadoppføringsloven kapittel 4. Partene er selv ansvarlige for eventuelle kostnader og ansvar dette kan medføre. Eiendomsmegleren eller eiendomsmeglingsforetaket kan ikke holdes ansvarlig for de konsekvenser dette vil kunne få for partene eller andre som har interesser i eiendomshandelen.
Ved eventuelt tilbakehold av informasjon eller mistenkelige transaksjoner, plikter eiendomsmegleren å melde fra til Økokrim. Med «mistenkelig transaksjon» menes transaksjon som mistenkes å involvere utbytte fra straffbar handling, eller som skjer som ledd i terrorfinansiering. Manglende mulighet for kundekontroll kan også være et forhold som gjør transaksjonen mistenkelig.
Det anbefales at kjøper innbetaler kjøpesummen som ikke kommer fra låneinstitusjon, i en samlet innbetaling fra egen konto i norsk bank.
Selger forbeholder seg også retten til å kreve dokumentasjon av kjøpers finansiering.
Det kan ikke gjøres ansvar gjeldende mot meglerforetaket som følge av at meglerforetaket overholder sine plikter etter Hvitvaskingsloven.
I henhold til personopplysningsloven gjør vi oppmerksom på at interessenter kan bli registrert for videre oppfølging.
Bernhard Bjerch
Oppdragsnummer: 3-0019/26
Martin Killi Arnesen
Sist oppdatert: 30.03.2026