Eiendommen
Knr. 301 Gnr. 225 Bnr. 407
Komplett Salgsoppgave
Østgaards gate 44, 0474 OSLO
Meld din interesse så tar vi kontakt med deg og holder deg orientert om boligen!
Salg av kontraktsposisjon: Leiligheten er under oppføring og det er ikke tilgang på selve leiligheten/byggeplass. Det er mulig å gjennomføre en digital visning på Teams for en gjennomgang av spørsmål/fly i simulator (utsikt/solforhold). Konferer med megler for ytterligere informasjon og en hyggelig prat.
Dette er et salg av kontraktsposisjon vedrørende leilighet L-504 i prosjektet Over Torshov. En lekker 3-roms hjørneleilighet beliggende i byggets 5. etasje. Boligen er designet med fokus på kvalitet og komfort, og inkluderer store vinduer som slipper inn rikelig med naturlig lys, åpen stue- og kjøkkenløsning, og et stilfullt bad. Prosjektet Over Torshov består av 34 nye selveierleiligheter med stor felles takhage. Her får du en enestående mulighet til å leve tett på den urbane byen uten å gi avkall på etterlengtet fred og ro i vakre Torshovdalen like i nærheten.
– Lekker 3-roms hjørneleilighet
– Estimert innflytting fra Q4 26 / Q1 27
– Stilrent kjøkken fra HTH med integrerte hvitevarer
– Franske balkonger med doble vinduer som kan åpnes helt opp
– Fortsatt mulig å gjøre tilvalg i leiligheten (frist 10.04.26)
– Energivennlig og godt isolert
– Balansert ventilasjon
– God lagringsplass med kjellerbod på ca. 5 m²
– Heis
– Lav dokumentavgift
– 5 års reklamasjonsrett
– Felles takterrasse
– Svært sentralt

Knr. 301 Gnr. 225 Bnr. 407
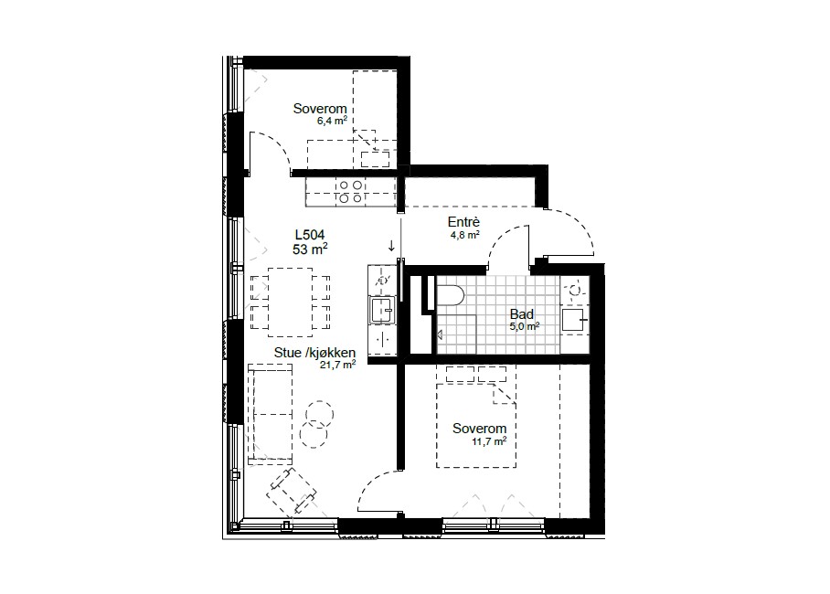
Totalt bruksareal BRA: 58 m²
BRA-i: 53 m²
BRA-e: 5 m²
Arealbeskrivelse:
Arealet er beregnet ut fra Norsk standard NS 3940:2023. BRA-i: Internt arealet innenfor boligens omsluttende vegger, inkludert sjakt. BRA-e: Eksternt areal som boligen har eksklusiv bruksrett til, men som ikke ligger i boligen, f. eks. kjellerbod. BRA-b: Areal for innglasset balkong med veggareal. Total BRA = Summen av BRA-i, BRA-e og BRA-b. TBA er areal på terrasse og balkong. Arealet oppgis ved salg, men inngår ikke i BRA. Oppgitt romareal er netto romareal. De oppgitte arealer er å betrakte som cirka-arealer. Partene har ingen krav mot hverandre dersom arealet skulle vise seg å være 5 % mindre / større enn det oppgitte areal.
Kjellerbod:
Sportsbodene leveres med himling og gulv av støvbundet betong. Skillevegger mellom sportsbodene vil bli utført med nettingvegger type Troax eller tilsvarende for gjennomgående branndetektering, belysning, kabelføring og sprinkling, samt balansert ventilasjon. Felles bodbelysning, sprinkling og branndetektering fra bodkorridortak. Boder vil bli tildelt av selger i forbindelse med seksjonering.
Standard leveranse for interiørkonsept er «Lys Balanse», og er valgt i denne leiligheten. Dette er et konsept som kombinerer tidløs eleganse med en naturlig ro. Med lyse beige toner som grunnlag, skapes et harmonisk uttrykk der balanse mellom lys og varme står i sentrum. Konseptet henter inspirasjon fra naturens egne nyanser og fokuserer på myke teksturer, rene linjer og subtile kontraster, som gir rommene en følelse av letthet og harmoni. Lys Balanse er mer enn en stil – det er en invitasjon til å skape et hjem fylt med ro, varme og skjønnhet.
Entré:
Innenfor døren møtes man av en entré på ca. 4,8 m². I entréen leveres det gulvfliser i format 60x60cm, i samme farge og kvalitet som på bad, eller eksponert betong.
Det blir vannbåren gulvvarme som gir både økonomiske og miljøemessige fordeler. Løsningen er energieffektiv og gir lave driftskostnader.
Belysning i himling: Downlights – SG – Junistar Eco Isosafe Hvit DimToWarm 510lm 2000-2800K, tilknyttet dimmer.
Stilkonsept veggfarge: Sommersne
En gråhvit, gråere enn tradisjonelle gylne hvite. Himling i malt betong med synlig v-fuger eller gips der tak er nedforet utføres i farge hvit takmatt NCS S-0500N med 05 glans. Valg av veggfarge gjelder alle malte vegger i leiligheten.
Det er en plassbesparende skyvedør mellom entréen og stue.
Stue/kjøkken:
Videre fra entréen kommer man inn til en stue på ca. 21,7 m² med åpen kjøkkenløsning. Leilighetens plassering på byggets hjørne gir dagslys fra to himmelretninger, og det er franske balkonger med doble dører som kan åpnes helt. Det blir en god takhøyde på 2,5 meter, som sammen med lysinnslippet vil gi en behagelig romopplevelse. Standard leveranse har en lekker 1-stavs eikeparkett Bianco Grande Hvit (leveres i stue og på soverom). Det er vannbåren gulvvarme. Det leveres utvendig screens, iht. vedlagte tegning for solskjerming.
Kjøkkenet leveres fra HTH og standard leveranse inneholder:
– Integrerte Siemens hvitevarer.
– Ventilator: Slimline Røros Crystall 1160 med kullfilter.
– Front: Glatt Beige melamin. Skrogene har hvit forkant.
– Håndtak: Line børstet messing 20 cm
– Benkeplate: Laminat 652 Sandsten, 2cm tykkelse m/F32 forkant
– Vask: Nedfelt Blanco Naya 6, Farge Tartufo. 1 kum i Silgranit
– Høyde kjøkken: 228cm.
– Integrert belysning i kjøkken.
Bad:
Leiligheten får et innbydende bad på ca. 5 m². Bad leveres som ferdige typegodkjente/prefabrikkerte baderomsmoduler, eller som plassbygget leveranse. Det leveres gulvfliser på bad av god kvalitet, i format 60x60cm (Flispakke Mirage ReStone Dune RS1). Det leveres fliser nedfelt i dusjsonen i tilsvarende kvalitet og farge i format 5x5cm. Sementbasert fuge i farge tilpasset flisvalg.
Baderomsinnredning i fargen «Cashmere».
Armatur Tapwell 74400 Krom Art.nr 8575833
Det er oppgradert med speilskap i fargen «Cashmere».
Det er oppgradert med baderomskabin i utstyrspakke «Sort».
Toalettskål m/sete: Duravit – Starck 3 Hvit Art.nr 422509. Eller tilsvarende.
Betjeningsplate: TECEbase Forkrommet – 6122293. Eller tilsvarende.
Belysning: Downlights – SG – Junistar Eco Isosafe Hvit DimToWarm 510lm 2000-2800K, tilknyttet dimmer.
Elektrisk varme i gulv eller vannbåren varme.
Opplegg for vaskemaskin.
Soverom:
Leiligheten har 2 soverom. Hovedsoverommet er på ca. 11,7 m² og det er avsatt plass til garderobeløsning.
Det andre soverommet er på ca. 6,4 m². Rommet passer også utmerket som et dedikert kontor.
Det leveres ikke garderobeskap som standard. Der salgstegningene viser stiplede skap, er dette kun å regne som en illustrasjon av skap-potensialet i boligen.
Informasjonen ovenfor er hentet fra utbyggers salgsoppgave/leveransebeskrivelse, romskjema for konsept 1 og ordrebekreftelse for tilvalg. Det tas forbehold om feil.
Interessenter må gjøre seg godt kjent med disse dokumentene. Konferer med megler hvis det er noen spørsmål.
Følgende tilvalg er bestilt til denne leiligheten:
– Bad: Speilskap i farge «Cashmere»: kr. 6 468,75
– Bad: Baderomskabin utstyrspakke «Sort»: kr. 22 281,25
Totalt kr. 28 750.
Beløpet er inkludert i total prisantydning, og ny kjøper overtar betalingsforpliktelsene.
Tilvalgsfrist for badet er utløpt, og bestilling som nevnt ovenfor er sendt inn.
Det er fortsatt mulig å gjøre tilvalg i øvrige rom. Frist for disse tilvalgene er 10.04.2026.
Konferer med megler for ytterligere informasjon.
Det er ikke parkeringsplasser for bil i Over Torshov.
Det er et stort innvendig sykkelrom i 1. etasje reservert for leilighetene. Sykkelparkeringen inkluderer rom for vedlikehold/reparasjoner. Sykkelrommet er dimensjonert for ca. 90 sykler og 14 lastesykler.
Romoppvarming i leilighetene dekkes ved termostatstyrt vannbåren gulvvarme i alle oppholdsrom, med unntak av baderom hvor det kan bli aktuelt med elektriske varmekabler. Elektrisk eller vannbåren oppvarming i soverom. For energiforbruk til varmt tappevann og vannbåren gulvvarme leveres det energimålere for manuell avlesning, men anlegget er forberedt for fjernavlesing slik at sameiet på et senere tidspunkt kan bestille og bytte ut målerne (mot tillegg) til målere med fjernavlesning. Energiforbruk til fellesarealer inngår i felleskostnadene som fordeles i sameiet.
Leilighetene skal ha balansert mekanisk ventilasjon med avtrekk fra bad og kjøkken. Tilluft på soverom og stue/kjøkken. Det vil bli levert ett desentralisert ventilasjonsaggregat for balansert ventilasjon med varmegjenvinning pr. leilighet. Aggregatet vil i hovedsak bli plassert i tak i entré.
Før overtakelse vil det bli utstedt energiattest for den enkelte bolig. Boligens energibehov er dimensjonert iht. TEK17. Energimerkingen er beregnet til å ligge i minimum kategori C, dagens nivå. Det tas forbehold for at avvik fra dette vil forekomme, dette spesielt for boliger med mye vindusflate.
Det foreligger ikke ferdigattest eller midlertidig brukstillatelse på eiendommen, da bygget ikke er ferdigstilt på salgstidspunktet.
Det er utbyggers plikt å fremskaffe ferdigattest på eiendommen. Det gjøres oppmerksom på at midlertidig brukstillatelse eller ferdigattest må foreligge før kjøper kan ta i bruk eiendommen. Kjøper er gjort kjent med at det kan ta lang tid i etterkant av ferdigstillelse av et bygg, før ferdigattest foreligger. Kjøper kan ikke nekte overtagelse ved manglende ferdigattest, dersom midlertidig brukstillatelse foreligger.
Boligen kan leies ut i sin helhet.
Se sameiets utkast til vedtekter.
Det gjøres oppmerksom på at utleie av boligen før seksjoneringsbegjæringen er tinglyst, kan utløse kjøpsrett for leietager til redusert pris, jf. Eierseksjonsloven kap. III. Dette er kjøpers risiko.
Ved utleie av bolig er utleier ansvarlig for at boligen har forsvarlig radonverdier. I normaltilfeller er det kun nødvendig å måle radon i leiligheter med bakkekontakt, samt etasjen over.
På eiendommen er det tinglyst følgende heftelser og rettigheter som følger eiendommens matrikkel ved overskjøting til ny hjemmelshaver:
301/225/407:
18.11.2024 – Dokumentnr: 2251825 – Registerenheten kan ikke disponeres over uten samtykke fra rettighetshaver
Rettighetshaver: Røisland & Co Eiendomsmegling AS
Org.nr: 994 194 410
Elektronisk innsendt
20.12.1861 – Dokumentnr: 900098 – Opprettelse av matrikkelenheten
OPPRETTELSE – FRADELT FRA L NR 105A
Det kan bli tinglyst diverse nødvendige erklæringer om bruksretter, adkomst, infrastruktur, videre utbygging i området, felles rettigheter og plikter mht. bruk og vedlikehold av fellesarealer og teknisk infrastruktur (inkl. kostnadsdeling), drifts-/leverandøravtaler mv. i forbindelse med fradeling av arealer, etablering av sambruksarealer (arealer i sambruk/fellesarealer mellom flere eiendommer) og seksjonering. Dette vil bli nærmere regulert i kjøpekontrakten.
Kjøperen kan ikke motsette seg eller kreve prisavslag/erstatning for tinglysing av nødvendige erklæringer knyttet til gjennomføringen av prosjektet. Kjøper aksepterer videre at eiendommen kan påheftes nye private og offentlige rådighetsinnskrenkninger dersom offentlige myndigheter krever det.
Østgaards gate 44 ligger like ved vakre Torshovdalen. Torshovdalen er kjent for sine grønne lunger og fantastiske utsikt. Her finner man også turstier, lekeplasser og rikelig med plass for piknik, trening og avslapning. I tillegg er det et bredt utvalg av kaféer, restauranter og butikker bare noen minutter unna, samt enkel tilgang til både buss og trikk.
Du finner en rekke butikker kaféer, restauranter, barer og puber i nærområdet. Torshov Sport er som en institusjon å regne, og folk kommer langveis fra for å handle hos Strøm Larsen, byens beste slakter. I trikkestallen ligger Café Teater, hvor du finner uteservering og dukketeater.
Om du ønsker å utfolde deg fysisk, ligger Torshovparken rett i nærheten. Her kan du spille sandvolleyball og basket.
Det er planlagt ca. 34 selveierleiligheter i ny bebyggelse bestående av et bygg i 10 etasjer pluss kjeller og felles takterrasse. Tomten og felles takhage vil være felles utearealer for boligene. Det blir ett trappeløp og boliginngang blir fra gateplan.
Reguleringsbestemmelser og reguleringskart ligger som vedlegg til denne salgsoppgaven. Eiendommen er avsatt til hovedformål bebyggelse og anlegg i kommuneplan 2015 – Oslo mot 2030, vedtatt 23.09.2015.
Over Torshov ligger i et byggeområde for boliger i reguleringsplan S-2255, vedtatt 28.07.77, endret reg. best. S-2937 01.10.87. Tidligere reguleringsplan for Oslo sentrum og indre sone i Oslo kommune, S-2255, vedtatt 28.07.1977 er i sin helhet opphevet på eiendommen, jf. vedlegg 5 i kommuneplanen. Eiendommen er omfattet av kommunedelplan for torg og møteplasser, KDP-17, vedtatt 23.09.2015.
Eiendommen befinner seg i avvikssonen og delvis i gul og rød støysone. Dette følger av kommuneplanens arealdel med tilhørende temakart T1 for støy (datert 04.03.2015).
Boligbygget har 10 etasjer med gesimshøyde på 28,3 meter, samt takoppbygg med høyde på 31,2-32,0 meter, målt fra gjennomsnittlig planert terreng. Tiltaket er derfor i strid med høydebestemmelsen og avhengig av dispensasjon. Det er søkt om dispensasjon.
Det er gitt rammetillatelse og dispensasjon for tiltaket datert 22.04.24.
Fellesutgiftene for Eiendommen fastsettes av eierseksjonssameiet. Fellesutgiftene inkluderer blant annet forretningsførsel, kommunale avgifter, fellesforsikring, renhold av innvendige fellesarealer, vedlikehold av utvendige fellesarealer inkl. takterrasse og snørydding. Hvor store utgiftene blir, avhenger av hvor mange ytelser sameiet rekvirerer.
Et forventet nivå ved Overtakelse vil ligge på ca. kr. 43,- per kvm BRA-i pr måned. I tillegg kommer a-konto forbruk fjernvarme og varmtvann kr. 10,- per kvm BRA-i pr måned. Tv-pakke og fibernett kommer i tillegg. Det vil bli inngått kollektiv avtale for bredbånd og TV. Dette er stipulert til ca. kr. 400,- pr. mnd. I tillegg kommer kr. 75 pr. mnd for felleskostnader Østergaards Gate 44 Realsameiet (Bod).
Det kan bli etablert et vel, bestående av eiendommer/eierseksjonssameier som blir etablert. Dersom et slikt vel etableres har seksjonseierne plikt og rett til å være medlem av velet og en slik plikt kan bli tinglyst på eiendommen. Velforeningen har til oppgave å ivareta medlemmenes felles interesser og eventuelt drift av sambruksarealer. Den enkelte eiendom/eierseksjonssameie er som medlem av velet pliktig å betale årskontingent/driftsutgifter fastsatt av velforeningens årsmøte.
Det er eiendomsskatt på boliger og annen fast eiendom i Oslo kommune. Dette kommer i tillegg til budsjetterte driftskostnader. Skattesatsen for 2025 er 2,35 promille. Eiendomsskattegrunnlaget er 70% boligverdien, og bunnfradraget er 4,7 millioner. Satsen for beregningsgrunnlaget til eiendomsskatten blir fastsatt årlig av bystyret. Eiendomsskatten vil derfor kunne variere fra år til år. Det tas forbehold om endringer i offentlige skatter og avgifter.
Formuesverdien er ikke fastsatt, men fastsettes av Skatteetaten etter en beregningsmodell som hensyntar om boligen er «primærbolig»; (der eier er bosatt iht. Folkeregisteret) eller «sekundærbolig»; (andre boliger man eier).
For primærbolig er formuesverdien 25 % av markedsverdien opp til kr. 10 000 000 og deretter 70 % av den overskytende markedsverdien, og 100 % for sekundærboliger. Det gjøres oppmerksom på at kjøper selv må sende inn opplysninger om adresse, areal, boligtype og byggeår til skattemyndighetene.
Det tas forbehold om endring av satser, og henvises til Skatteetatens nettsider dersom ytterligere informasjon er ønskelig.
I tillegg til kjøpesummen må kjøper betale:
1: Dokumentavgift til staten (2,5% av andel tomteverdi): Kr. 21 320
2: Tinglysningsgebyr skjøte: Kr. 545
3: Tinglysningsgebyr pant : Kr. 545
4: Etableringsgebyr til forretningsfører: kr. 7 000
5: Transportgebyr til utbygger: Kr. 50 000
Totale omkostninger: Kr. 79 410
Total kjøpesum inkl. gebyrer/avgifter og evt. øvrige kostnader: Kr. 7 469 410
Oppstartskapital til sameiet kr. 10 000 kommer i tillegg for å sikre sameiets likviditet i startfasen.
Tilbud om lånefinansiering:
Megler formidler gjerne kontakt med rådgiver hos vår samarbeidspartner Sparebank 1 Hallingdal og Valdres. De har konkurransedyktige betingelser samt rask og løsningsorientert behandling av din lånesøknad. Røisland & Co mottar et honorar for denne formidlingen.
Om prosjektet: Over Torshov består av lyse, luftige selveierleiligheter med gjennomtenkte planløsninger. Her får du moderne komfort i en urban beliggenhet, med flotte fasiliteter som en stor felles takhage, heis og sykkelparkering. Fra takhagen vil du se hvor nært på Oslo sentrum det nye hjemmet ditt faktisk ligger. Byen vil bokstavelig talt ligge for dine føtter. Her vil du bo tett på det urbane og det pulserende livet. På noen minutter til fots er du i Oslos mest levende bydel, i motsatt retning ligger Torshovdalen bare noen meter unna. Her venter et stort parkområde på nærmere 200 mål hvor du virkelig kan finne roen – året rundt.
Felles takterrasse:
Det blir et fellesareal på cirka 200 kvadratmeter med mange ulike sosiale soner. Mot syd og vest, de sosiale og solrike sonene, blir det felles langbord, grillplass, solplasser og skjermede arealer for ro og hvile. Ved heisen og trapperommet blir det etablert en pergola med åpent eller lukket tak. Mot øst og nord, de aktive sonene, blir det etablert ulike aktivtetsområder. Her blir det også plass for benker og spilevegger med beplantning som vil danne forskjellige rom. Fra takhagen har man den fantastiske utsikten med by, fjord og skogkledde åser i horisonten.
Illustrasjoner:
Kjøper er gjort kjent med at alle 3D-presentasjoner, digitale modeller, planer, skisser, bilder i prospekt, tilvalgspresentasjon og annet salgsmateriell er av illustrativ karakter, og utarbeidet før gjennomført detaljprosjektering. Materialet kan derfor vise bygningsvolumer, innredning, beplantning og detaljer mv. som ikke inngår i avtalen.
Estimert innflytting er 4. kvartal 2026 – 1. kvartal 2027.
Siste publisert nyhet på Utbyggers/prosjektets hjemmeside:
«Grunnarbeidene nærmer seg slutten, og i januar starter byggingen
Vi ønsker å gi en liten status for prosjektet på slutten av året. Arbeidene i Over Torshov går som planlagt. Grunnarbeidene nærmer seg nå slutten, og rett over nyttår vil dere se at det nye bygget begynner å reise seg. Dette markerer en milepæl i prosjektet, og forventet overlevering er fortsatt i 4. kvartal 2026 / 1. kvartal 2027.
Når det gjelder tilvalg, er tilvalg på baderom nå avsluttet, og gjennomføring av resterende tilvalg er rett rundt hjørnet.»
Forbrukerinformasjon om budgivning er vedlagt denne salgsoppgaven.
Alle bud og budforhøyelser må inngis skriftlig. I tillegg må legitimasjon være fremlagt sammen med signatur fra budgiver(e). Vi oppfordrer til å gi bud elektronisk via GI BUD knappen på finn.no, eller roislandco.no. Da vil samtlige vilkår bli oppfylt. Eventuelle forhøyelser eller endringer av budet kan bekreftes på SMS eller på e-post. Vi oppfordrer alltid til å kontakte megler pr. telefon i tillegg da forsinkelser i SMS og mail kan forekomme.
Megler skal legge til rette for en forsvarlig avvikling avbudrunden. I forbrukerforhold (dvs. der selger er forbruker) skal megleren ikke formidle bud med kortere akseptfrist enn kl. 12.00 første virkedag etter siste annonserte visning. Etter denne fristen bør budgivere ikke sette en kortere akseptfrist enn at megler har mulighet til, så langt det er nødvendig, å orientere selger, budgivere og øvrige interessenter om bud og forbehold. Dersom bud inngis med en frist som åpenbart er for kort til at megleren kan avvikle budrunden på en forsvarlig måte som sikrer selger og interessenter et tilstrekkelig grunnlag for sine handlingsvalg, vil megler fraråde budgiver å stille slik frist.
Megler skal ikke formidle bud med forbehold om at budet eller forbehold i budet skal holdes skjult (hemmelig) for andre budgivere og interessenter.
Megleren vil uoppfordret gi sin vurdering av det enkelte bud overfor selger, når budet er gitt innenfor fristene som nevnt over.
Megleren skal, så langt det er nødvendig og mulig, holde budgiverne skriftlig orientert om mottatte bud, herunder budets størrelse, forbehold og akseptfrist. Megler skal så snart som mulig bekrefte skriftlig overfor budgivere at budene deres er mottatt. For øvrig vil megler, på forespørsel fra andre, opplyse om aktuelle bud på eiendommen, herunder relevante forbehold.
Kopi av budjournal skal gis til kjøper og selger utenugrunnet opphold etter at handel er kommet i stand. Dersom det er viktig for budgiver å bevare sin anonymitet, bør budet formidles gjennom fullmektig.
I henhold til eiendomsmeglingsforskriften § 6-3 første ledd har megler en plikt til å oppfordre oppdragsgiver (selger) til ikke å ta imot bud direkte fra budgiver, men henvise til megler. Megler oppfordrer partene til å lese retningslinjene for budgivning vedlagt i salgsoppgaven.
Et eventuelt bud fra selger til kjøper (såkalte «motbud»), er avtalerettslig bindende tilbud som medfører at det foreligger en avtale om salg av eiendommen dersom budet i rett tid aksepteres av kjøper.
Budgiverens opplysning om han er forbruker eller næringsdrivende:
Avhendingsloven ble endret med virkning fra 1. januar 2022 og innebærer blant annet at «som den er»-forbehold ikke har virkning i forbrukerkjøp, jf. avhendingsloven § 3-9 andre ledd, jf. § 1-2 tredje ledd. Med forbrukerkjøper menes en kjøper av eiendom som er en fysisk person og som ikke hovedsakelig handler som ledd i næringsvirksomhet. «Som den er»-forbehold kan imidlertid fremdeles tas utenfor forbrukerkjøp. Hvorvidt eiendommen selges til en forbrukerkjøper eller ikke, kan derfor ha betydning for fordelingen av risiko mellom partene: hvis kjøperen er forbruker, bærer selger ansvaret dersom eiendommen ikke samsvarer med de krav til kvalitet, utrustning og annet som følger av avtalen, jf. avhendingsloven § 3-1. Hvis kjøperen er profesjonell, bærer imidlertid selger ansvaret for slike avvik bare i den grad eiendommen er i vesentlig ringere stand enn kjøperen hadde grunn til å regne med ut fra kjøpesummen og forholdene ellers.
Budgivers opplysning om han er forbruker eller ikke, skal gis i forbindelse med formidling av budet, for eksempel ved at det i budskjemaet krysses av for om man er forbrukerkjøper eller ikke. Budgiver må informere megler om han opptrer som forbruker eller ikke-forbruker ved budgivning for at andre parter involvert i budrunden kan ta stilling til forhold av faktisk og rettslig art som er viktige i forbindelse med avtalen. Megler har begrenset mulighet til å kontrollere budgivers egenopplysning om vedkommende er næringsdrivende eller ikke, og budgiverens skriftlige opplysning om han er forbrukerkjøper eller ikke, må legges til grunn.
Ved salg av en kontraktsposisjon er det merverdien, (kjøper 1s gevinst) budgiver skal legge inn bud på. Konferer megler før bud legges inn.
Kjøpet følger bustadoppføringslova av 13. juni 1997 nr. 43. Loven regulerer forhold hvor selger er profesjonell og kjøper er forbruker. Iht. loven plikter selger å stille garanti som sikkerhet for oppfyllelse av sine forpliktelser etter kjøpekontrakt senest ved forbehold frafalt. Garantien utgjør 3 % av kjøpesum frem til overtakelse. Beløpet økes til 5 % av kjøpesum og står 5 -fem- år etter overtakelsen jf. buofl. § 12, 3 ledd. Loven kan i sin helhet fås ved henvendelse til megler. Loven finnes også på www.lovdata.no.
I tilfeller hvor kjøper er profesjonell iht. bustadoppføringslova, dvs. gjør kjøpet som ledd i næringsvirksomhet, kan selger kreve at avtalen reguleres av Lov om avhending av fast eiendom av 3. juli 1992 nr. 93 (avhendingslova).
Det forutsettes at hjemmel overføres til kjøper.
Ingen kan direkte eller indirekte erverve mer en to boligseksjoner i et boligsameie jf. eierseksjonsloven § 23. Dersom et erverv har funnet sted i strid med eierseksjonslovens regler kan Kartverket nekte overskjøting. Dersom overskjøting blir nektet, er kjøper likevel forpliktet til å gjennomføre handelen med selger, og oppgjør til selger vil finne sted tross manglende overskjøting.
Dette gjelder salg av en kontraktposisjon for en konkret bolig under oppføring. Ny kjøper (kjøper 2) overtar selgers (førstegangskjøpers) rettigheter og forpliktelser iht. opprinnelig kontrakt. Ved kjøp av kontraktposisjon må hovedkontrakten overtas med alle rettigheter og plikter, herunder betalingsvilkår og de lovpålagte garantier. Opprinnelig kontrakt regulerer alle forhold knyttet til leveransen av boligen. Det forutsettes at kjøper grundig har gjennomgått den opprinnelige kjøpekontrakten med tilhørende vedlegg, før bud inngis.
Handelen reguleres av kjøpekontrakt som inngås etter at kjøpstilbud på kontraktposisjonen er akseptert. Det tas forbehold om at utbygger aksepterer transport av opprinnelig kontrakt. Stilt garanti(er) følger boligen, og garanti(er) kan bare gjøres gjeldende av ny kjøper. Eventuelle forbehold som kjøper har tatt skal være avklart.
Ved signering av transportkontrakt skal kjøper av kontraktsposisjonen (kjøper 2) innbetale kjøper 1 sin allerede innbetalte 10%, merverdien (kjøper 1 sin gevinst), samt transportgebyret til utbygger. Kjøper 1 vil få tilbakebetalt sin 10% med fratrekk for meglerkostnadene ved salg. Kjøper 1 sin gevinst ved videresalget (merverdien) vil bero på meglers klientkonto frem til kjøper 2 har overtatt leiligheten og fått rettsvern for sitt erverv. Opptjente renter på merverdien tilfaller kjøper 1 (selger av kontrakten).
Dersom kjøper 2 er forbruker, faller pliktene hans til å betale merverdien bort dersom entreprenøren ikke ferdigstiller boligen, jf. Avhendingsloven §1-1 fjerde ledd. Kjøper 1 har likevel ikke noe ansvar for mangelfull eller forsinket levering fra selgers side, og kjøper 2 plikter å betale hele merverdien i disse tilfellene. Dette gjelder selv om mangelen er vesentlig og gir kjøper 2 rett til å heve kontrakten med selger.
Skulle noe virke uklart, kontakt megler.
Garanti som Selger (utbygger) har stilt i medhold av buofl. § 12 og eventuelt § 47 kan gjøres gjeldende av Kjøper 2 som Kjøper 1 sin rettsetterfølger (jf. buofl. § 12, 6. ledd).
Garantien etter buofl. § 12, som minst lyder på 3% av vederlaget i perioden før overtagelse og 5 % i perioden frem til 5 år etter overtagelsen, er beregnet av opprinnelig kjøpesum mellom Selger og Kjøper 1 i henhold til kjøpekontrakt.
Eiendomsmeglere er underlagt Lov om hvitvasking. I henhold til Lov av 01.06.18 nr. 23 om tiltak mot hvitvasking og terrorfinansiering (Hvitvaskingsloven), er megler pliktig til å gjennomføre identitetskontroll av alle involverte parter. Hvitvaskingsloven pålegger blant annet eiendomsmegler å innhente redegjørelse av midlenes opprinnelse. Dette besvares av samtlige kjøpere herunder parter som opptrer på vegne av kjøper, ved en såkalt kundekontroll. Ved eventuelt tilbakehold av informasjon eller mistenkelige transaksjoner, plikter eiendomsmegleren å melde fra til Økokrim. Med «mistenkelig transaksjon» menes transaksjon som mistenkes å involvere utbytte fra straffbar handling, eller som skjer som ledd i terrorfinansiering. Manglende mulighet for kundekontroll kan også være et forhold som gjør transaksjonen mistenkelig.
Det anbefales at kjøper innbetaler kjøpesummen som ikke kommer fra låneinstitusjon, i en samlet innbetaling fra egen konto i norsk bank.
Selger forbeholder seg også retten til å kreve dokumentasjon av kjøpers finansiering.
Det kan ikke gjøres ansvar gjeldende mot meglerforetaket som følge av at meglerforetaket overholder sine plikter etter Hvitvaskingsloven.
Kjøper er selv ansvarlig for nødvendig finansiering og bekreftelse på denne. Dersom kjøper skal ha lånefinansiering, bes det oppgitt kontaktinformasjon til långiver slik at megler kan foreta en kontroll av kjøpers finansiering. Til informasjon, kan disse opplysningene bli videreformidlet til selger. Kjøper oppfordres til å innhente verdivurdering av egen bolig dersom egenkapital i nåværende bolig inngår i finansieringsplanen for dette kjøpet. Handelen er juridisk bindende for begge parter når kjøpers bud er akseptert av selger. Dersom kjøper likevel ikke skulle være i stand til å betale kjøpesummen, er kjøper likevel bundet av kjøpet. Selger vil i en slik situasjon kunne påberope seg vesentlig mislighold av avtalen og heve kontrakten. Kjøper er innforstått med at selger vil kunne selge boligen på nytt (dekningssalg) og at ethvert økonomisk tap som selger måtte bli påført som følge av kjøpers mislighold, vil bli krevd dekket av kjøper. Herunder omkostninger i forbindelse med et nytt salg, dekning av en mulig lavere salgspris, rentetap m.m.
Mette Boganes
Meglers vederlag betales av selger og er avtalt til:
Fastpris: kr. 49 000
Tilretteleggingsgebyr: kr. 14 990
Markedsføringspakke: kr. 17 990
Oppgjørshonorar: kr. 6 950
Oppslag eiendomsregister: kr. 762,50
Megler har i tillegg krav på dekning av utlegg. Alle summer er inkl. mva.
Oppdragsnummer: 3-0026/26
Martin Killi Arnesen
Sist oppdatert: 11.03.2026