Eiendommen
Knr. 3222 Gnr. 102 Bnr. 462 Snr. 71
Komplett Salgsoppgave
Garchinggata 5, 1473 LØRENSKOG
Meld din interesse så tar vi kontakt med deg og holder deg orientert om boligen!
Salg av kontraktsposisjon: Leiligheten er under oppføring og det er ikke tilgang på selve leiligheten/byggeplass. Det er mulig å gjennomføre en digital visning på Teams for en gjennomgang av spørsmål/fly i simulator (utsikt/solforhold). Konferer med megler for ytterligere informasjon og en hyggelig prat.
Dette er et salg av kontraktsposisjon vedrørende leilighet 71 i prosjektet Mathildetundet, Hus D. En meget pen 2-roms med god intern beliggenhet. Leiligheten byr på kvaliteter som lys en-stavs eikeparkett, generøs takhøyde og store vindusflater. Det er balansert ventilasjon sørger for godt inneklima og lave kostnader til oppvarming.
– 2-roms selveierleilighet med sørvendt balkong på ca. 8 m²
– Vendt inn mot fellesarealer og svært gode solforhold
– Garasjeplass med el-lader medfølger
– Estimert ferdigstillelse fra september 2026
– God takhøyde (ca. 2,6m i stue)
– Stilrent kjøkken fra Sigdal
– En-stavs eikeparkett
– Godt isolert og balansert ventilasjon, som gir godt inneklima og lave kostnader til oppvarming
– 5 års utbyggergaranti
– Svært sentral beliggenhet

Knr. 3222 Gnr. 102 Bnr. 462 Snr. 71
Totalt bruksareal BRA: 48 m²
BRA-i (innvendig i leiligheten): 45,5 m²
BRA-e (kjellerbod): 2,5 m²
TBA (balkong): 8 m²
Kjellerbod: Alle leilighetene får egen sportsbod. Bodene vil hovedsakelig være lokalisert i parkeringsskjeller. Bodene vil bli fordelt av selger i forkant av innflytting. Sportsboder får en størrelse på minst 2,5 m² for leiligheter under 50 m² Sportsbod utføres som nettingbod med tett dør og med feste for hengelås. Bod vil følge leiligheten, og planlegges seksjonert som tilleggsdel til denne.
Arealbeskrivelse: Alle arealer er hentet fra Utbyggers plantegning. Arealet er beregnet ut fra Norsk standard NS 3940:2023. BRA-i: Internt arealet innenfor boligens omsluttende vegger, inkludert sjakt. BRA-e: Eksternt areal som boligen har eksklusiv bruksrett til, men som ikke ligger i boligen, f.eks. kjellerbod. BRA-b: Areal for innglasset balkong med veggareal. Total BRA = Summen av BRA-i, BRA-e og BRA-b. TBA er areal på terrasse og balkong. Arealet oppgis ved salg, men inngår ikke i BRA. Oppgitt romareal er netto romareal. De oppgitte arealer er å betrakte som cirka-arealer. Partene har ingen krav mot hverandre dersom arealet skulle vise seg å være 5 % mindre / større enn det oppgitte areal.
Det gjøres spesielt oppmerksom på følgende informasjon i romskjema:
– Skyvedørsfronter og garderober er stiplet inn i salgstegningene for å vise mulig plassering, og er ikke en del av leveransen.
– Hvitevarer er ikke en del av leveransen.
– Bad vil bli plassbygget eller levert som badekabiner.
– Plantegningene presentert i prospektet er ikke detaljplanlagt med kjøkkenleverandør. Det vil derfor i noen tilfeller være avvik på kjøkken mellom plantegning og kjøkkentegning.
Entré:
Innenfor inngangsdøren møtes man av en entré på ca. 5,2 m², med nisje for garderobeløsning. Det leveres en lekker 1-stavs eikeparkett på gulv (Bjelin enstavs lyspigmentert eikeparkett, 182mm bredde, matt lakkert). Lampepunkt i tak med bryter.
Stue og kjøkken:
Stue på ca. 22,6 m² med åpen kjøkkenløsning. Det er en generell takhøyde på 2,6 meter der det ikke nedforet.
Det leveres et stilrent kjøkken fra Sigdal, etter interiørkonseptet «Losby». Se vedlagte illustrasjon av kjøkkenet.
Fronter: Uno Korn NCS S2005-Y20R
Oppvaskkum: Intra Omnia 600 SF
Kjøkkenkran: ORAS Saga Krom med høy tut og avstenging
Grep: Hekken 2, rustfritt stål. 128 mm
Benkeplate: Betong 558
Innfelte spotter under overskap.
Slimline ventilator (Røros Slimline Crystall 1160) over platetopp med lys og integrert komfyrvakt.
Det medfølger ikke hvitevarer.
Balkong:
Videre fra stuen er det utgang til en sørvendt balkong på ca. 8 m² med flott utsyn over fellesarealer. Det er svært gode solforhold med sol fra tidlig morgen til rundt 19-tiden midtsommers, ifølge Selvaags interaktive simulator. Se lenke i FINN-annonse eller se Selvaags hjemmeside. Det leveres tremmegulv som er lunt å gå på, samt stikkontakt og utebelysning.
Bad:
Det leveres et innbydende bad på ca. 4,1 m².
Veggflis: Vitra Flakestone Light Greige 60×30 (5x5cm mosaikkflis i dusjsonen).
Gulvflis: Vitra Flakestone Light Greige 30×30.
Innfelte hvite LED downlights i tak.
Lys i speil.
Dobbelt stikk på vegg ved servant.
Stikkontakter for vaskemaskin og tørketrommel.
Vegghengt toalett.
Servantbatteri, Ettgrep med oppløft (propp).
Dusjbatteri med termostat, dusjhode med slange på veggmontert stang.
Rettvinklete dusjvegger i herdet klart glass som kan svinges inn i dusjnisjen når dusjveggene ikke er i bruk.
Det leveres vannbåren varme i badegulv.
Soverom:
Leilighetens soverom er på ca. 10,3 m². Inngang fra stue via plassbesparende skyvedør.
Det er avsatt plass til garderobeskap. Rommet er vendt inn mot bilfritt fellesareal.
Det er ikke bestilt tilvalg i denne leiligheten.
Interiørkonseptet «Losby» er valgt, iht. vedlagte ordrebekreftelse.
Det er ikke mulig å gjøre ytterligere tilvalg i denne leiligheten.
Det medfølger én parkeringsplass i underjordisk garasjeanlegg.
I garasjeanlegget under og mellom byggene etableres det parkeringsplasser inkludert HC plasser i henhold til kommunale krav Kontakt selger for mer informasjon om hvilke leiligheter som selges med parkeringsplass.
Det er ikke er satt av plasser i garasjeanlegget til gjesteparkeringParkeringsanlegget for Skårerbyen 4 Sameie planlegges som ett sammenhengende anlegg, og tilkoblet parkeringsanlegget til Gårdskvartalet For hus G, H, K og J vil garasjeinnkjøring midlertidig være innkjøring til Gårdskvartalets garasjeanleggPermanent adkomst og nedkjøring til Mathildetunets garasjeanlegg planlegges under bygg F, se utomhusplanUnderveis i utbyggingen vil midlertidig adkomst kunne etableres og endres. Det vil være gjensidige tinglyste rettigheter for adkomst gjennom parkeringskjellerne for de ulike sameiene.
Parkeringsplassene i innendørs garasjeanlegg leveres med lader for el-bil. Fellessystemet leveres med lastfordeling, slik at tilgjengelig effekt omfordeles på samtlige ladepunkter og kapasiteten på det enkelte punkt vil kunne variere.
Enkelte av leilighetene vil få tildelt HC-plass som sin parkeringsplass Det gjøres oppmerksom på at kjøpere av leiligheter med tilknyttet HC plass, vil måtte akseptere bruksbytte dersom en annen beboer med parkeringsplass har dokumentert behov for HC plass Bruken av HC plasser administreres av det fremtidige sameiet.
Mathildetunet planlegges med felles (sammenhengende) garasje under bakken, forbudet med en kulvert («Garasjeeiendommen»). Garasjeeiendommen planlegges etablert som en anleggseiendom (underjordisk volum) under Skårerbyen 4 Sameie. Hver garasjeplass vil utgjøre en ideell eierandel i Garasjeeiendommen, som planlegges organisert som et tingsrettslig realsameie. Det vil si at Garasjeeiendommen eies i felleskap mellom andelseierne og at eierandelene knyttes opp mot leiligheten/seksjonen som disponerer plassen. Parkeringsplassene tildeles av utbygger før innflytting. Utbygger tar forbehold om annen organisering av Garasjeeiendommen og bodene dersom det finnes nødvendig eller formålstjenlig.
Leilighetene leveres med elektrisk oppvarming ved wifistyrte panelovner.
På baderom leveres det vannbåren varme i gulv.
Det leveres balanserte sentrale fellesventilasjonsaggregat med varmegjenvinner plassert i teknisk rom i kjeller, eller på tak Innblåsing av luft til alle oppholdsrom via ventiler, samt avtrekk fra bad og kjøkkenventilator Utlufting over tak/ventilasjonstårn kan medføre sjenerende lukt.
Alle boenhetene vil bli energimerket. Energiattester vil bli utarbeidet av selger i samarbeid med utførende entreprenør etter at detaljprosjekteringen er gjennomført, og utleveres ved overtakelse av boligen. Energimerkingen skal dokumentere at leilighetene minst tilfredsstiller kategori C. Energimerking gir relevant informasjon om hvor energieffektiv eiendommen er. Karakterskalaen strekker seg fra A (høyest) til G (lavest). Se www.energimerking.no for mer informasjon om energimerking av boliger.
Ferdigattest eller midlertidig brukstillatelse skal foreligge før overtakelse kan finne sted I motsatt fall anbefaler megler at overtakelse utsettes.
Bolig i eierseksjonssameie kan som hovedregel fritt leies ut. Se sameiets utkast til vedtekter.
På eiendommen er det tinglyst følgende heftelser og rettigheter som følger eiendommens matrikkel ved overskjøting til ny hjemmelshaver:
3222/102/462:
07.12.2020 – Dokumentnr: 3446431 – Registrering av grunn
Denne matrikkelenhet opprettet fra:
Knr:3222 Gnr:102 Bnr:1
15.12.2023 – Dokumentnr: 1406180 – Registrering av grunn
Utskilt fra denne matrikkelenhet:
Knr:3222 Gnr:102 Bnr:468
01.01.2024 – Dokumentnr: 174528 – Omnummerering ved kommuneendring
Tidligere: Knr:3029 Gnr:102 Bnr:462
23.01.2025 – Dokumentnr: 83014 – Registrering av grunn
Utskilt fra denne matrikkelenhet:
Knr:3222 Gnr:102 Bnr:483
23.01.2025 – Dokumentnr: 83193 – Registrering av grunn
Utskilt fra denne matrikkelenhet:
Knr:3222 Gnr:102 Bnr:484
12.06.2025 – Dokumentnr: 662577 – Sammenslåing
Sammenslått med denne matrikkelenhet:
Knr:3222 Gnr:102 Bnr:484
01.12.2025 – Dokumentnr: 1466864 – Seksjonering
Opprettet seksjoner:
Snr: 1 – Snr: 149
Formål: Bolig
Tilleggsdel: Bygning
Sameiebrøk: 88/8895
Snr: 150
Formål: Næring
Sameiebrøk: 1/8895
Snr: 151
Formål: Næring
Sameiebrøk: 1/8895
Snr: 152
Formål: Næring
Sameiebrøk: 1/8895
Snr: 153
Formål: Næring
Sameiebrøk: 1/8895
Gjelder denne registerenheten med flere
20.12.2023 – Dokumentnr: 1425339 – Bestemmelse om adkomstrett
Rettighet hefter i: Knr:3222 Gnr:102 Bnr:468
Bestemmelse om vedlikehold
13.03.2024 – Dokumentnr: 1211568 – Bruksrett
Rettighet hefter i: Knr:3222 Gnr:102 Bnr:460 Snr:1 – Snr:188
Midlertidig bruksrett til avfallsanlegg
Gjelder denne registerenheten med flere
12.09.2024 – Dokumentnr: 1942625 – Bruksrett
Rettighet hefter i: Knr:3222 Gnr:102 Bnr:460 Snr:1 – Snr:188
Bruksrett til avfallsanlegg
Bestemmelse om drift og vedlikehold
Gjelder denne registerenheten med flere
23.01.2025 – Dokumentnr: 83261 – Bestemmelse om adkomstrett
Rettighet hefter i: Knr:3222 Gnr:102 Bnr:483
Kan ikke slettes uten samtykke fra: Lørenskog Kommune
Org.nr: 842 566 142
Adkomstrett med motorisert kjøretøy
Adkomstrett til fots
23.01.2025 – Dokumentnr: 83261 – Bestemmelse om parkering
Rettighet hefter i: Knr:3222 Gnr:102 Bnr:483
Kan ikke slettes uten samtykke fra: Lørenskog Kommune
Org.nr: 842 566 142
Bestemmelse om parkering og sykkelparkering
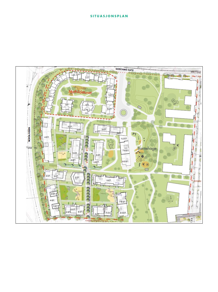
Midt i det nye sentrum av Lørenskog ligger Skårerbyen – et nytt nabolag hvor fremtidens bo-behov får legge premissene for både arkitektur og funksjon. Visjonen vår er å skape et godt sted å vokse opp og bo gjennom et helt liv.
Neste nabolag i Skårerbyen er Mathildetunet. Her planlegger vi 195 nye hjem rundt en stor og luftig gårdshage. Midt i tunet står signalbygget Mathilde, oppkalt etter Søster Mathilde som også har gitt navn til veinettet rundt.
Leilighetene bygges etter siste tekniske standard som gir et godt inneklima og lave energikostnader. Leilighetene får store vindusflater og generøs takhøyde. Ved kjøp innen tilvalgsfristen kan man kostnadsfritt velge mellom tre interiørkonsepter, inkludert kjøkken og bad.
Nye Skårerbyens beste kvalitet er den store nye parken som bygges midt i feltet. Med sine 15 000 kvm byr parken på aktivitetstilbud som tuftepark og fotballbane, og store grønne lunger for stille stunder.
Hos oss får du tilgang til nye fellesarealer i Mathildetunet og til de eksisterende fellesområdene i bygget Kongla. Nabolagene Løkkatunet, Gårdskvartalet og nye Mathildetunet deler på fellesarealene sine og naboskapsvert Camilla er tilstede på dagtid. Her kan du feire barnebursdag, invitere til juleverksted, ha hjemmekontor eller nyte en kopp kaffe for å dyrke sosialt fellesskap med gode naboer.
De nye fellesarealene som bygges sammen som del av Mathildetunet vil inkludere møterom og selskapsrom, arbeidssted for hjemmekontor eller hjemmelekser, og sosiale soner for små og store treff.
Hele Mathildetunet planlegges med 195 leiligheter fordelt på 10 hus.
Tomten blir opparbeidet med blant annet gressplen, beplantning, gangveier, lekeplass og utomhusarealer med utstyr iht. utomhusplanen. Endelig detaljprosjektering og/eller myndighetskrav vil kunne medføre enkelte endringer på utomhusplanen.
Tomten ligger i enden av Søster Mathildes gate. Lørenskog kommune vil utstede et adressevedtak på et senere tidspunkt.
Eiendommen er regulert til boligformål. Det er levert inn rammesøknad som inkluderer dispensasjon/reguleringsendring på gjeldende regulering. Se Selvaags hjemmeside for mer informasjon/illustrasjoner av videre bebyggelse i prosjektet/området.
Felleskostnader skal dekke sameiets ordinære driftsutgifter og avhenger av ytelsene sameiet rekvirerer. Basert på utkast til budsjett som er utarbeidet av utbygger i samarbeid med forretningsfører, er disse stipulert til ca. kr. 54,- pr. kvm BRA-i pr. mnd. Fastsettelse av første års driftsbudsjett og felleskostnader vedtas på sameiets konstituerende sameiermøte. Felleskostnadene fordeles i henhold til vedtektene.
Forretningsfører vil på vegne av sameiet, i forbindelse med kjøpers overtakelse av bolig, innkreve 2 måneders ekstra felleskostnader som startkapital til sameiet. Kapitaltilskuddet vil ikke bli avregnet mot månedlige felleskostnader eller tilbakebetalt ved eventuelt salg av seksjonen.
Følgende kostnader kommer i tillegg til månedlige felleskostnader:
– Kostnad kabel-TV og bredbånd er stipulert til ca. kr. 450,- pr. mnd.
– Felleskostnad Selvaag Pluss Service AS ca. kr. 200 pr. leil. pr. mnd.
– Kostnad fjernvarme som inkluderer oppvarming på bad og varmt vann, fakturert etter faktisk forbruk. Forretningsfører stipulerer kostnad til ca. kr. 12,- pr. kvm BRA-i. I tillegg kommer kostnader til måling og avlesing.
– Felleskostnad garasjeplass, stipulert til ca. kr. 200,- pr. mnd. pr. garasjeplass.
– Eventuell kommunal eiendomsskatt faktureres om regel direkte til den enkelte sameier.
Det er p.t. ikke eiendomsskatt i Lørenskog kommune.
Formuesverdien er ikke fastsatt, men fastsettes av Skatteetaten etter en beregningsmodell som hensyntar om boligen er «primærbolig»; (der eier er bosatt iht. Folkeregisteret) eller «sekundærbolig»; (andre boliger man eier).
For primærbolig er formuesverdien 25 % av markedsverdien opp til kr. 10 000 000 og deretter 70 % av den overskytende markedsverdien, og 100 % for sekundærboliger. Det gjøres oppmerksom på at kjøper selv må sende inn opplysninger om adresse, areal, boligtype og byggeår til skattemyndighetene.
Det tas forbehold om endring av satser, og henvises til Skatteetatens nettsider dersom ytterligere informasjon er ønskelig.
I tillegg til kjøpesummen må kjøper betale:
1: Dokumentavgift til staten (2,5% av andel tomteverdi): Kr. 22 750
2: Tinglysningsgebyr skjøte: Kr. 545
3: Tinglysningsgebyr pant: Kr. 545
4: Transportgebyr til utbygger: Kr: 40 000
Totale omkostninger: Kr. 63 840
Total kjøpesum inkl. gebyrer/avgifter og evt. øvrige kostnader: Kr. 4 863 840
Forretningsfører vil på vegne av sameiet, i forbindelse med kjøpers overtakelse av bolig, innkreve 2 måneders ekstra felleskostnader som startkapital til sameiet. Kapitaltilskuddet vil ikke bli avregnet mot månedlige felleskostnader eller tilbakebetalt ved eventuelt salg av seksjonen.
Tilbud om lånefinansiering:
Megler formidler gjerne kontakt med rådgiver hos vår samarbeidspartner Sparebank 1 Hallingdal og Valdres. De har konkurransedyktige betingelser samt rask og løsningsorientert behandling av din lånesøknad. Røisland & Co mottar et honorar for denne formidlingen.
Om prosjektet:
Denne leiligheten ligger i hus D i Mathildetunet i Skårerbyen, del av byggetrinn 8 i Skårerbyen. Boligprosjektet Skårerbyen ligger i Lørenskog kommune. Mathildetunet planlegges med til sammen 196 leiligheter.
Skårerbyen planlegges med til sammen 9 byggetrinn og ca. 1100 boliger.
Mathildetunet (byggetrinn 7 og 8 i Skårerbyen) består av husene A, B, C, D, E, F, G, H, J og K. Hus C, D, E, F, G, H, J og K planlegges organisert som et sameie: Skårerbyen 4 sameie. Hus A og B vil utgjøre et eget sameie.
Forslag til vedtekter for Boligsameiet og Garasjesameiet er utarbeidet. Det forutsettes at kjøper aksepterer vedtektene som grunnlag for avtalen. Eventuelle forslag til endringer kan fremmes i henhold til vedtektene og eierseksjonsloven på senere sameiermøte.
Det gjøres oppmerksom på at balkongrekkverk kan bli noe annerledes enn vist på tegninger og 3D-illustrasjoner. På noen leiligheter kan rekkverk leveres med horisontale spiler og/eller glassrekkverk.
Fellesområder:
I Mathildetunet er det planlagt etablering av to felleslokaler med nabolagsfunksjoner for nabolagene Løkkatunet, Gårdskvartalet og Mathildetunet, som skal driftes og administreres av Selvaag Pluss Service AS. Lokalene er ikke endelig prosjekterte, men planlegges for bruk som: Fellesareal i hus H planlegges brukt som selskapslokale/ møterom/hjemmekontor med garderobe og toalett.
Fellesareal i hus F planlegges innredet for tilsvarende bruk. Det legges tilrette for smørebod/ sykkelverksted i parkeringskjeller.
Selskapet Selvaag Pluss Service AS drifter et nabolagskonsept med formål å tilrettelegge for godt naboskap og bruk av felleslokaler/-funksjoner.
Utbygger forbeholder seg retten til å innlemme Skårerbyen 4 Sameie i avtalen som Selvaag Pluss Service AS har tegnet med Skårerbyen 1 Sameie og Skårerbyen 3 Sameie. Avtalen vil gi seksjonseierne tilgang til nabolagskonseptet, og til de felles nabolagsfunksjoner som etableres: fellesareal i Kongla/fellesareal i hus H/fellesareal i hus F.
Skårerbyen 4 Sameie vil da være forpliktet til å delta i drift og vedlikehold av og til å bære sin forholdsmessige del av utgiftene knyttet til drift/vedlikehold av lokalene og til avtalen med Selvaag Pluss Service AS. Seksjonseierne
i Skårerbyen 1 Sameie og Skårerbyen 3 Sameie vil få tilsvarende rettigheter og plikter i forhold til fellesarealene i Hus H og Hus F.
For Felleslokalet vil utbygger fastsette egne vedtekter/avtale, med nærmere bestemmelser om eierskap, bruk, råderett mv. Utbygger forbeholder seg retten til å overføre hjemmel til ideell eierandel til Felleslokalet til Skårerbyen 3 Sameie, og/eller tinglyse rettigheter og plikter.
Det vil kunne bli etablert en Driftsforening for Skårerbyen – kalt Skårerbyen Driftsforening, heretter «Driftsforeningen». Foreningens formål er å eie, samt sørge for drift og vedlikehold av fellesarealer og installasjoner, herunder veier, arealer til lek og rekreasjon, biloppstillingsplasser, belysning og annen infrastruktur som er ment til felles benyttelse for beboerne på Skårerbyen. Selger forbeholder seg retten til å definere omfanget av nevnte arealer og installasjoner under sin utvikling av Skårerbyen. Det vil kunne bli tinglyst pliktig medlemskap i Driftsforeningen for alle beboerne i Skårerbyen. Det gjøres oppmerksom på at det vil bli tinglyst erklæring om allmenhetens ferdselsrett over deler av arealer og installasjoner underlagt Driftsforeningen. Kostnader til drift og vedlikehold av Driftsforeningen vil fordeles på foreningens medlemmer, via Boligselskapene, med utgangspunkt i antall boenheter i det enkelte Boligselskap. Utbygger tar forbehold om å differensiere fordelingen av drift- og vedlikeholdskostnadene basert på det enkelte
Boligselskaps beregnede bruksnytte av fellesarealene og installasjoner. Kostnad er medtatt i estimert nivå på felleskostnader.
Utbygger vil om nødvendig på vegne av Driftsforeningen engasjere forretningsfører til å sørge for driften av Driftsforeningen for de tre første driftsårene. Forretningsfører har utarbeidet forslag til vedtekter og driftsbudsjett til Driftsforeningen. Driftsforeningen ledes av et styre valgt fra de ulike Boligselskapene.
Forretningsfører:
OBOS Forvaltning AS (org.nr. 934 261 585) er engasjert som forretningsfører for Sameiet. Avtalen har ingen bindingstid. Det er 6 måneders oppsigelse på avtalen. Utbygger vil også inngå drift og vedlikeholdsavtaler på vegne av sameiet. Det er 6 måneders oppsigelse på avtalen, men oppsigelse frarådes.
Utbygger:
Utbygger er Skårer Bolig AS, org. nr. 990 212 929 heretter benevnt «Utbygger». Skårer Bolig AS er 100% eid av Selvaag Bolig ASA, org. nr. 992 587 776.
Ifølge prosjektets hjemmeside, står det estimert innflytting fra september 2026.
Forbrukerinformasjon om budgivning er vedlagt denne salgsoppgaven.
Alle bud og budforhøyelser må inngis skriftlig. I tillegg må legitimasjon være fremlagt sammen med signatur fra budgiver(e). Vi oppfordrer til å gi bud elektronisk via GI BUD knappen på finn.no, eller roislandco.no. Da vil samtlige vilkår bli oppfylt. Eventuelle forhøyelser eller endringer av budet kan bekreftes på SMS eller på e-post. Vi oppfordrer alltid til å kontakte megler pr. telefon i tillegg da forsinkelser i SMS og mail kan forekomme.
Megler skal legge til rette for en forsvarlig avvikling avbudrunden. I forbrukerforhold (dvs. der selger er forbruker) skal megleren ikke formidle bud med kortere akseptfrist enn kl. 12.00 første virkedag etter siste annonserte visning. Etter denne fristen bør budgivere ikke sette en kortere akseptfrist enn at megler har mulighet til, så langt det er nødvendig, å orientere selger, budgivere og øvrige interessenter om bud og forbehold. Dersom bud inngis med en frist som åpenbart er for kort til at megleren kan avvikle budrunden på en forsvarlig måte som sikrer selger og interessenter et tilstrekkelig grunnlag for sine handlingsvalg, vil megler fraråde budgiver å stille slik frist.
Megler skal ikke formidle bud med forbehold om at budet eller forbehold i budet skal holdes skjult (hemmelig) for andre budgivere og interessenter.
Megleren vil uoppfordret gi sin vurdering av det enkelte bud overfor selger, når budet er gitt innenfor fristene som nevnt over.
Megleren skal, så langt det er nødvendig og mulig, holde budgiverne skriftlig orientert om mottatte bud, herunder budets størrelse, forbehold og akseptfrist. Megler skal så snart som mulig bekrefte skriftlig overfor budgivere at budene deres er mottatt. For øvrig vil megler, på forespørsel fra andre, opplyse om aktuelle bud på eiendommen, herunder relevante forbehold.
Kopi av budjournal skal gis til kjøper og selger utenugrunnet opphold etter at handel er kommet i stand. Dersom det er viktig for budgiver å bevare sin anonymitet, bør budet formidles gjennom fullmektig.
I henhold til eiendomsmeglingsforskriften § 6-3 første ledd har megler en plikt til å oppfordre oppdragsgiver (selger) til ikke å ta imot bud direkte fra budgiver, men henvise til megler. Megler oppfordrer partene til å lese retningslinjene for budgivning vedlagt i salgsoppgaven.
Et eventuelt bud fra selger til kjøper (såkalte «motbud»), er avtalerettslig bindende tilbud som medfører at det foreligger en avtale om salg av eiendommen dersom budet i rett tid aksepteres av kjøper.
Budgiverens opplysning om han er forbruker eller næringsdrivende:
Avhendingsloven ble endret med virkning fra 1. januar 2022 og innebærer blant annet at «som den er»-forbehold ikke har virkning i forbrukerkjøp, jf. avhendingsloven § 3-9 andre ledd, jf. § 1-2 tredje ledd. Med forbrukerkjøper menes en kjøper av eiendom som er en fysisk person og som ikke hovedsakelig handler som ledd i næringsvirksomhet. «Som den er»-forbehold kan imidlertid fremdeles tas utenfor forbrukerkjøp. Hvorvidt eiendommen selges til en forbrukerkjøper eller ikke, kan derfor ha betydning for fordelingen av risiko mellom partene: hvis kjøperen er forbruker, bærer selger ansvaret dersom eiendommen ikke samsvarer med de krav til kvalitet, utrustning og annet som følger av avtalen, jf. avhendingsloven § 3-1. Hvis kjøperen er profesjonell, bærer imidlertid selger ansvaret for slike avvik bare i den grad eiendommen er i vesentlig ringere stand enn kjøperen hadde grunn til å regne med ut fra kjøpesummen og forholdene ellers.
Budgivers opplysning om han er forbruker eller ikke, skal gis i forbindelse med formidling av budet, for eksempel ved at det i budskjemaet krysses av for om man er forbrukerkjøper eller ikke. Budgiver må informere megler om han opptrer som forbruker eller ikke-forbruker ved budgivning for at andre parter involvert i budrunden kan ta stilling til forhold av faktisk og rettslig art som er viktige i forbindelse med avtalen. Megler har begrenset mulighet til å kontrollere budgivers egenopplysning om vedkommende er næringsdrivende eller ikke, og budgiverens skriftlige opplysning om han er forbrukerkjøper eller ikke, må legges til grunn.
Ved salg av en kontraktsposisjon er det merverdien, (kjøper 1s gevinst) budgiver skal legge inn bud på. Konferer megler før bud legges inn.
Avtalen mellom kjøper 1 (videreselgeren av kontrakten) og kjøper 2 (ny kjøper), blir regulert av avhendingsloven, kjøpsloven og forbrukerkjøpsloven.
Interessenter må sette seg inn i salgsoppgaven utarbeidet i forbindelse med salg av kontraktsposisjonen, samt kjøpekontrakten med tilhørende dokumenter signert av kjøper 1 og selger (utbygger), før bud inngis.
Det forutsettes at hjemmel overføres til kjøper. Hvis kjøper ikke ønsker hjemmelsoverføring av eiendommen, må det tas forbehold om dette i budet.
Ingen kan direkte eller indirekte erverve mer en to boligseksjoner i et boligsameie jf. eierseksjonsloven § 23. Dersom et erverv har funnet sted i strid med eierseksjonslovens regler kan Kartverket nekte overskjøting. Dersom overskjøting blir nektet, er kjøper likevel forpliktet til å gjennomføre handelen med selger, og oppgjør til selger vil finne sted tross manglende overskjøting.
Dette gjelder salg av en kontraktposisjon for en konkret bolig under oppføring. Ny kjøper (kjøper 2) overtar selgers (førstegangskjøpers) rettigheter og forpliktelser iht. opprinnelig kontrakt. Ved kjøp av kontraktposisjon må hovedkontrakten overtas med alle rettigheter og plikter, herunder betalingsvilkår og de lovpålagte garantier. Opprinnelig kontrakt regulerer alle forhold knyttet til leveransen av boligen. Det forutsettes at kjøper grundig har gjennomgått den opprinnelige kjøpekontrakten med tilhørende vedlegg, før bud inngis.
Handelen reguleres av kjøpekontrakt som inngås etter at kjøpstilbud på kontraktposisjonen er akseptert. Det tas forbehold om at utbygger aksepterer transport av opprinnelig kontrakt. Stilt garanti(er) følger boligen, og garanti(er) kan bare gjøres gjeldende av ny kjøper. Eventuelle forbehold som kjøper har tatt skal være avklart.
Ved signering av transportkontrakt skal kjøper av kontraktsposisjonen (kjøper 2) innbetale kjøper 1 sin allerede innbetalte 10%, merverdien (kjøper 1 sin gevinst), samt transportgebyret til utbygger. Kjøper 1 vil få tilbakebetalt sin 10% med fratrekk for meglerkostnadene ved salg. Kjøper 1 sin gevinst ved videresalget (merverdien) vil bero på meglers klientkonto frem til kjøper 2 har overtatt leiligheten og fått rettsvern for sitt erverv. Opptjente renter på merverdien tilfaller kjøper 1 (selger av kontrakten).
Dersom kjøper 2 er forbruker, faller pliktene hans til å betale merverdien bort dersom entreprenøren ikke ferdigstiller boligen, jf. Avhendingsloven §1-1 fjerde ledd. Kjøper 1 har likevel ikke noe ansvar for mangelfull eller forsinket levering fra selgers side, og kjøper 2 plikter å betale hele merverdien i disse tilfellene. Dette gjelder selv om mangelen er vesentlig og gir kjøper 2 rett til å heve kontrakten med selger.
Skulle noe virke uklart, kontakt megler.
Garanti som Selger (utbygger) har stilt i medhold av buofl. § 12 og eventuelt § 47 kan gjøres gjeldende av Kjøper 2 som Kjøper 1 sin rettsetterfølger (jf. buofl. § 12, 6. ledd).
Garantien etter buofl. § 12, som minst lyder på 3% av vederlaget i perioden før overtagelse og 5 % i perioden frem til 5 år etter overtagelsen, er beregnet av opprinnelig kjøpesum mellom Selger og Kjøper 1 i henhold til kjøpekontrakt.
Eiendomsmeglere er underlagt Lov om hvitvasking. I henhold til Lov av 01.06.18 nr. 23 om tiltak mot hvitvasking og terrorfinansiering (Hvitvaskingsloven), er megler pliktig til å gjennomføre identitetskontroll av alle involverte parter, herunder fullmektiger. Dette innebærer bl.a. å bekrefte kunders og reelle rettighetshaveres identitet på bakgrunn av fremvist gyldig legitimasjon eller på annen godkjent måte, samt å innhente opplysninger om kundeforholdets formål og tilsiktede art. Dersom slike kundetiltak ikke kan gjennomføres, kan megler ikke etablere kundeforholdet eller utføre transaksjonen. Hvitvaskingsloven pålegger også eiendomsmegler å innhente redegjørelse av midlenes opprinnelse. Dette besvares av samtlige kjøpere herunder parter som opptrer på vegne av kjøper, ved en såkalt kundekontroll.
Hvis kjøper ikke bidrar til gjennomføring av kundekontrollen og dette fører til at transaksjonen blir forsinket eller ikke kan gjennomføres, vil dette ansees som mislighold av avtalen og gi selger rettigheter etter avhendingslova eller bustadoppføringsloven kapittel 5. I tilfeller der selger ikke bidrar til gjennomføring av løpende kundekontroll underveis i oppdraget, er det selger som misligholder sine forpliktelser etter avtalen og gi kjøper rettigheter etter avhendingslovens eller bustadoppføringsloven kapittel 4. Partene er selv ansvarlige for eventuelle kostnader og ansvar dette kan medføre. Eiendomsmegleren eller eiendomsmeglingsforetaket kan ikke holdes ansvarlig for de konsekvenser dette vil kunne få for partene eller andre som har interesser i eiendomshandelen. Ved eventuelt tilbakehold av informasjon eller mistenkelige transaksjoner, plikter eiendomsmegleren å melde fra til Økokrim. Med «mistenkelig transaksjon» menes transaksjon som mistenkes å involvere utbytte fra straffbar handling, eller som skjer som ledd i terrorfinansiering. Manglende mulighet for kundekontroll kan også være et forhold som gjør transaksjonen mistenkelig.
Det anbefales at kjøper innbetaler kjøpesummen som ikke kommer fra låneinstitusjon, i en samlet innbetaling fra egen konto i norsk bank.
Selger forbeholder seg også retten til å kreve dokumentasjon av kjøpers finansiering.
Det kan ikke gjøres ansvar gjeldende mot meglerforetaket som følge av at meglerforetaket overholder sine plikter etter Hvitvaskingsloven.
I henhold til personopplysningsloven gjør vi oppmerksom på at interessenter kan bli registrert for videre oppfølging.
Diego Bonilla
Jon Vegard Wasvik
Meglers vederlag betales av selger og er avtalt til:
Fastpris: kr. 49 000
Tilretteleggingsgebyr: kr. 14 900
Markedsføringspakke: kr. 17 990
Oppgjørshonorar: kr. 6 950
Oppslag eiendomsregister: kr. 762,50
Megler har i tillegg krav på dekning av utlegg. Alle summer er inkl. mva.
Oppdragsnummer: 3-0029/26
Martin Killi Arnesen
Sist oppdatert: 09.04.2026