Eiendommen
Knr. 3222 Gnr. 102 Bnr. 462
Komplett Salgsoppgave
Emaljeverksgata 7, 1473 LØRENSKOG
Meld din interesse så tar vi kontakt med deg og holder deg orientert om boligen!
Videresalg under oppføring: Leiligheten er under oppføring og det er ikke tilgang på selve leiligheten/byggeplass. Det er mulig å gjennomføre en digital visning på Teams for en gjennomgang av spørsmål/fly i simulator (utsikt/solforhold). Konferer med megler for ytterligere informasjon og en hyggelig prat.
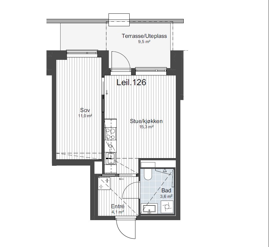
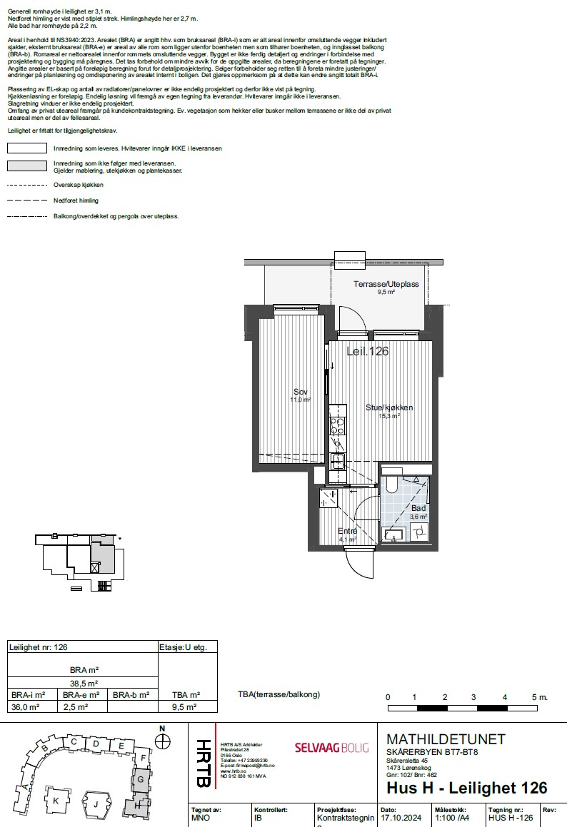
Dette er et videresalg av leilighet 126 i Hus H, i prosjektet Mathildetunet. En lekker 2-roms selveierleilighet beliggende i U-etasje/bakkeplan med markterrasse. Leiligheten byr på kvaliteter som lys en-stavs eikeparkett, generøs takhøyde på hele 3,1m og store vindusflater. Det er balansert ventilasjon sørger for godt inneklima og lave kostnader til oppvarming.
– Estimert ferdigstillelse nov 26 – jan 27
– Lav dokumentavgift. Kun kr. 17 020
– 2-roms selveierleilighet med østvendt terrasse på 9,5 m²
– God takhøyde på hele 3,1m i stue/soverom
– Stilrent kjøkken fra Sigdal
– En-stavs eikeparkett
– Godt isolert og balansert ventilasjon, som gir godt inneklima og lave kostnader til oppvarming
– 5 års utbyggergaranti
– Tilgang på fellesområder
– Svært sentral beliggenhet

Knr. 3222 Gnr. 102 Bnr. 462
Totalt bruksareal BRA: 38,5 m²
BRA-i (innvendig i leiligheten): 36 m²
BRA-e (kjellerbod): 2,5 m²
TBA (balkong): 9,5 m²
Kjellerbod: Alle leilighetene får egen sportsbod. Bodene vil hovedsakelig være lokalisert i parkeringsskjeller. Bodene vil bli fordelt av selger i forkant av innflytting. Sportsboder får en størrelse på minst 2,5 m² for leiligheter under 50 m² Sportsbod utføres som nettingbod med tett dør og med feste for hengelås.
Arealbeskrivelse:
Alle arealer er hentet fra Utbyggers plantegning. Arealet er beregnet ut fra Norsk standard NS 3940:2023. BRA-i: Internt arealet innenfor boligens omsluttende vegger, inkludert sjakt. BRA-e: Eksternt areal som boligen har eksklusiv bruksrett til, men som ikke ligger i boligen, f.eks. kjellerbod. BRA-b: Areal for innglasset balkong med veggareal. Total BRA = Summen av BRA-i, BRA-e og BRA-b. TBA er areal på terrasse og balkong. Arealet oppgis ved salg, men inngår ikke i BRA. Oppgitt romareal er netto romareal. De oppgitte arealer er å betrakte som cirka-arealer. Partene har ingen krav mot hverandre dersom arealet skulle vise seg å være 5 % mindre / større enn det oppgitte areal.
Merknader til Utbyggers plantegning:
– Generell romhøyde i leilighet er 3,1 m. Nedforet himling er vist med stiplet strek. Himlingshøyde her er 2,7 m. Alle bad har romhøyde på 2,2 m.
– Skyvedørsfronter og garderober er stiplet inn i salgstegningene for å vise mulig plassering, og er ikke en del av leveransen.
– Leilighet er fritatt for tilgjengelighetskrav.
– Hvitevarer er ikke en del av leveransen.
– Bad vil bli plassbygget eller levert som badekabiner.
– Det gjøres særlig oppmerksom på at møbleringsforslag angitt med heltrukne linjer på plantegningene ikke gjennomgående tilfredsstiller forskriftsmessige tilgjengelighetskrav. Plantegningene er stedvis derfor også vist med stiplede linjer, som angir møbleringsforslag i tråd med forskriftskrav i det aktuelle rommet.
Entré (ca. 4,1 m²):
Standard Bjelin enstavs lyspigmentert eikeparkett, 182mm bredde, matt lakkert
Innvendig dører Standard Easy lettdør
Innvendig skyvedører Standard Easy lettdør
To-veis porttelefon med kamera.
Lampepunkt i tak m. bryter.
Stikkontakter.
Maling:
Standard veggfarge, iht. konsept Losby
Standard himlingsfarge: 0702-Y35R/ 0486 Silke
Stue og kjøkken (ca. 15,3 m²):
Leiligheten har en stue med åpen kjøkkenløsning. Det er en takhøyde på hele 3,1m.
Kjøkkeninnredning iht. valgt konsept «Losby».
Farge: Korn, NCS S 2005-Y20R
Dekksider og takavslutning i samme farge som fronter.
Håndtak: Håndtak i børstet stål.
Benkeplate: Laminat benkeplate iht. interiørkonsept, 20 mm tykkelse.
Kum: bredde iht plantegning, i rustfritt stål eller tilsvarende, topplimt som standard.
Kjøkkenet er forberedt for integrerte hvitevarer. Hvitevarer inngår ikke i leveransen.
Standard Røros Slimline Crystall
Standard ORAS Saga Krom med høy tut og avstenging
Markterrasse/uteplass (9,5 m²):
Fra stuen er det utgang til en østvendt markterrasse. Det leveres tremmegulv, samt stikkontakt og utebelysning.
Ifølge prosjektets simulator er det sol på terrassen fra tidlig morgen til rundt kl. 12:30/13:00 midtsommers. Avvik kan forekomme. Lenke til simulator ligger vedlagt i annonse.
Bad (ca. 3,6 m²):
Leira – Flispakke
Veggflis: Vitra Flakestone Grey 60×30
Gulvflis: Vitra Flakestone Grey 30×30 (5×5 i dusjsone).
Standard baderomsmøbel
Standard speil med LED-lys
Standard servantkran Tapwell SK071
Standard dusjsett Tapwell EVM168
Standard dusjvegger, klart glass med krom lister
Standard Geberit spyleknapp, hvit
Vegghengt toalett.
Innfelte hvite LED downlights i tak.
Dobbelt stikk på vegg ved servant.
Stikkontakter for vaskemaskin og tørketrommel.
Det leveres vannbåren varme i badegulv.
Soverom (ca. 11 m²):
Inngang fra stue via plassbesparende skyvedør.
Det leveres ikke garderobeskap på soverom og entré som standard.
Informasjon ovenfor er hentet fra utbyggers leveransebeskrivelse og ordrebekreftelse. Det tas forbehold om feil.
Interessenter bes gjøre seg godt kjent med disse dokumentene som er vedlagt i denne salgsoppgaven.
Leiligheten leveres etter konseptet «Losby». På badet er flispakken «Leira» valgt.
Det er ikke bestilt noen tilvalg i leiligheten.
Det er ikke mulig å gjøre ytterligere tilvalg i leiligheten, da frister er utløpt.
Det medfølger ikke parkeringsplass.
Nedkjøring til Mathildetunets garasjeanlegg planlegges under bygg F, se utomhusplan.
Leilighetene leveres med elektrisk oppvarming ved wifistyrte panelovner. På baderom leveres det vannbåren varme i gulv.
Det leveres balanserte sentrale fellesventilasjonsaggregat med varmegjenvinner plassert i teknisk rom i kjeller, eller på tak. Innblåsing av luft til alle oppholdsrom via ventiler, samt avtrekk fra bad og kjøkkenventilator. Utlufting over tak/ventilasjonstårn kan medføre sjenerende lukt.
Alle boenhetene vil bli energimerket. Energiattester vil bli utarbeidet av selger i samarbeid med utførende entreprenør etter at detaljprosjekteringen er gjennomført, og utleveres ved overtakelse av boligen. Energimerkingen skal dokumentere at leilighetene minst tilfredsstiller kategori C. Energimerking gir relevant informasjon om hvor energieffektiv eiendommen er. Karakterskalaen strekker seg fra A (høyest) til G (lavest). Se www.energimerking.no for mer informasjon om energimerking av boliger.
Det foreligger ikke ferdigattest eller midlertidig brukstillatelse på eiendommen, da bygget ikke er ferdigstilt på salgstidspunktet.
Det er utbyggers plikt å fremskaffe ferdigattest på eiendommen. Det gjøres oppmerksom på at midlertidig brukstillatelse eller ferdigattest må foreligge før kjøper kan ta i bruk eiendommen. Kjøper er gjort kjent med at det kan ta lang tid i etterkant av ferdigstillelse av et bygg, før ferdigattest foreligger. Kjøper kan ikke nekte overtagelse ved manglende ferdigattest, dersom midlertidig brukstillatelse foreligger.
Bolig i eierseksjonssameie kan som hovedregel fritt leies ut. Se sameiets utkast til vedtekter.
På eiendommen er det tinglyst følgende heftelser og rettigheter som følger eiendommens matrikkel ved overskjøting til ny hjemmelshaver:
3222/102/462:
07.12.2020 – Dokumentnr: 3446431 – Registrering av grunn
Denne matrikkelenhet opprettet fra:
Knr:3222 Gnr:102 Bnr:1
15.12.2023 – Dokumentnr: 1406180 – Registrering av grunn
Utskilt fra denne matrikkelenhet:
Knr:3222 Gnr:102 Bnr:468
01.01.2024 – Dokumentnr: 174528 – Omnummerering ved kommuneendring
Tidligere: Knr:3029 Gnr:102 Bnr:462
23.01.2025 – Dokumentnr: 83014 – Registrering av grunn
Utskilt fra denne matrikkelenhet:
Knr:3222 Gnr:102 Bnr:483
23.01.2025 – Dokumentnr: 83193 – Registrering av grunn
Utskilt fra denne matrikkelenhet:
Knr:3222 Gnr:102 Bnr:484
12.06.2025 – Dokumentnr: 662577 – Sammenslåing
Sammenslått med denne matrikkelenhet:
Knr:3222 Gnr:102 Bnr:484
01.12.2025 – Dokumentnr: 1466864 – Seksjonering
Opprettet seksjoner:
Snr: 1 – Snr: 153
Formål: Næring
Sameiebrøk: 1/8895
Gjelder denne registerenheten med flere
20.12.2023 – Dokumentnr: 1425339 – Bestemmelse om adkomstrett
Rettighet hefter i: Knr:3222 Gnr:102 Bnr:468
Bestemmelse om vedlikehold
13.03.2024 – Dokumentnr: 1211568 – Bruksrett
Rettighet hefter i: Knr:3222 Gnr:102 Bnr:460 Snr:1 – Snr:188
Midlertidig bruksrett til avfallsanlegg
Gjelder denne registerenheten med flere
12.09.2024 – Dokumentnr: 1942625 – Bruksrett
Rettighet hefter i: Knr:3222 Gnr:102 Bnr:460 Snr:1 – Snr:188
Bruksrett til avfallsanlegg
Bestemmelse om drift og vedlikehold
Gjelder denne registerenheten med flere
23.01.2025 – Dokumentnr: 83261 – Bestemmelse om adkomstrett
Rettighet hefter i: Knr:3222 Gnr:102 Bnr:483
Kan ikke slettes uten samtykke fra: Lørenskog Kommune
Org.nr: 842 566 142
Adkomstrett med motorisert kjøretøy
Adkomstrett til fots
23.01.2025 – Dokumentnr: 83261 – Bestemmelse om parkering
Rettighet hefter i: Knr:3222 Gnr:102 Bnr:483
Kan ikke slettes uten samtykke fra: Lørenskog Kommune
Org.nr: 842 566 142
Bestemmelse om parkering og sykkelparkering
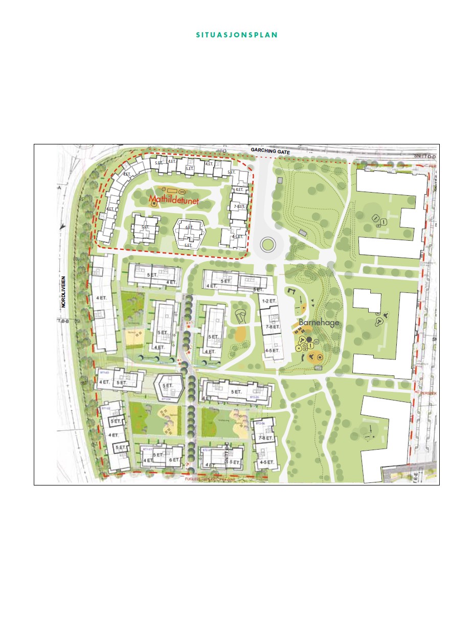
Lørenskog har opplevd en rivende utvikling de siste årene, med en langsiktig plan om å bygge opp et nytt bysentrum. Midt i smørøyet ligger området hvor Selvaag Bolig skal skape en ny bydel, med opp mot 1100 hjem i direkte tilknytning til parkområdet.
I Lørenskog finner du to kjøpesentre med et stort utvalg butikker, servering- og spisesteder: Triaden Lørenskog Storsenter og kjøpesenteret Metro. Vegg i vegg med Metro finner du kulturhuset Lørenskog Hus, som rommer både kinosaler, bibliotek og scener for et allsidig utvalg kulturaktiviteter.
Triaden Lørenskog Storsenter, som ligger rett i nærheten av Skårerbyen, er bygget ut og er nå utvidet med nye spisesteder og aktivitetstilbud som går hånd i hånd med shopping.
En av de unike kvalitetene i Skårerbyen er den store parken som bygges i umiddelbar nærhet til leilighetene. Enhver bydel trenger en felles boltreplass, og Skårerbyen er intet unntak. Med sine 15 000 kvadratmeter vil byparken tilby ulike fasiliteter og aktivitetstilbud som blant annet tuftepark, bordtennisbord, klatrevegg, trampoliner og fotballbaner.
Det gjøres oppmerksom på at dette er en foreløpig beregning av arealet, og at avvik vil forekomme. Det kan bli gjennomført justeringer av tomtens grenser og areal før overtakelse. Tomten blir opparbeidet med blant annet gressplen, beplantning, gangveier, lekeplass og utomhusarealer med utstyr iht. utomhusplanen. Endelig detaljprosjektering og/eller myndighetskrav vil kunne medføre enkelte endringer på utomhusplanen.
Eiendommen er regulert til boligformål. Det foreligger rammetillatelse. Interessenter bes gjøre seg kjent med Selvaags hjemmeside for prosjektet og øvrige planer i området.
Felleskostnader skal dekke sameiets ordinære driftsutgifter og avhenger av ytelsene sameiet rekvirerer. Basert på utkast til budsjett som er utarbeidet av utbygger i samarbeid med forretningsfører, er disse stipulert til ca. kr. 54,- pr. kvm BRA-i pr. mnd. Fastsettelse av første års driftsbudsjett og felleskostnader vedtas på sameiets konstituerende sameiermøte. Felleskostnadene fordeles i henhold til vedtektene.
Følgende kostnader kommer i tillegg til månedlige felleskostnader:
Kostnad kabel-TV og bredbånd er stipulert til ca. kr. 450,- pr. mnd.
Felleskostnad Selvaag Pluss Service AS ca. kr. 200 pr. leil. pr. mnd.
Kostnad fjernvarme som inkluderer oppvarming på bad og varmt vann, fakturert etter faktisk forbruk. Forretningsfører stipulerer kostnad til ca. kr. 12,- pr. kvm BRA-i. I tillegg kommer kostnader til måling og avlesing.
Stipulert til kr. 3 026 per måned for denne leiligheten.
Eventuell kommunal eiendomsskatt faktureres om regel direkte til den enkelte sameier.
Det er p.t. ikke eiendomsskatt i Lørenskog kommune.
Formuesverdien er ikke fastsatt, men fastsettes av Skatteetaten etter en beregningsmodell som hensyntar om boligen er «primærbolig»; (der eier er bosatt iht. Folkeregisteret) eller «sekundærbolig»; (andre boliger man eier).
For primærbolig er formuesverdien 25 % av markedsverdien opp til kr. 10 000 000 og deretter 70 % av den overskytende markedsverdien, og 100 % for sekundærboliger. Det gjøres oppmerksom på at kjøper selv må sende inn opplysninger om adresse, areal, boligtype og byggeår til skattemyndighetene.
Det tas forbehold om endring av satser, og henvises til Skatteetatens nettsider dersom ytterligere informasjon er ønskelig.
I tillegg til kjøpesummen må kjøper betale:
1: Dokumentavgift til staten, 2,5% av tomteverdi: Kr. 17 020
2: Tinglysningsgebyr skjøte: Kr. 545
3: Tinglysningsgebyr pant: Kr. 545
4: Administrasjonsgebyr til utbygger: Kr. 40 000
Totale omkostninger: Kr. 58 110
Total kjøpesum inkl. gebyrer/avgifter og evt. øvrige kostnader: Kr. 3 708 110
Forretningsfører vil på vegne av sameiet, i forbindelse med kjøpers overtakelse av bolig, innkreve 2 måneders ekstra felleskostnader som startkapital til sameiet. Kapitaltilskuddet vil ikke bli avregnet mot månedlige felleskostnader eller tilbakebetalt ved eventuelt salg av seksjonen.
Tilbud om lånefinansiering:
Megler formidler gjerne kontakt med rådgiver hos vår samarbeidspartner Sparebank 1 Hallingdal og Valdres. De har konkurransedyktige betingelser samt rask og løsningsorientert behandling av din lånesøknad. Røisland & Co mottar et honorar for denne formidlingen.
Om prosjektet:
Denne leiligheten ligger i hus F,G og H i Mathildetunet i Skårerbyen, del av byggetrinn 8 i Skårerbyen. Boligprosjektet Skårerbyen ligger i Lørenskog kommune.
Mathildetunet planlegges med til sammen 195 leiligheter. Byggetrinn 7 bestående av hus A, B, K og J ble igangsatt i 2024.
I Skårerbyen er de første fem byggetrinnene ferdigstilt, og byggetrinn seks (Gårdskvartalet del 2) og syv (Mathildetunet del 1) er under bygging. Skårerbyen planlegges med til sammen 9 byggetrinn og ca. 1100 boliger.
Eierform og organisering:
Skårerbyen 4 Sameie planlegges organisert som ett eierseksjonssameie i samsvar med eierseksjonsloven av 16.06.2017.
Fellesområder:
I Mathildetunet er det planlagt etablering av to felleslokaler med nabolagsfunksjoner for nabolagene Løkkatunet, Gårdskvartalet og Mathildetunet, som skal driftes og administreres av Selvaag Pluss Service AS. Lokalene er ikke endelig prosjekterte, men planlegges for bruk som: Fellesareal i hus H planlegges brukt som selskapslokale/ møterom/hjemmekontor med garderobe og toalett.
Fellesareal i hus F planlegges innredet for tilsvarende bruk. Det legges tilrette for smørebod/ sykkelverksted i parkeringskjeller.
Selskapet Selvaag Pluss Service AS drifter et nabolagskonsept med formål å tilrettelegge for godt naboskap og bruk av felleslokaler/-funksjoner.
Utbygger forbeholder seg retten til å innlemme Skårerbyen 4 Sameie i avtalen som Selvaag Pluss Service AS har tegnet med Skårerbyen 1 Sameie og Skårerbyen 3 Sameie. Avtalen vil gi seksjonseierne tilgang til nabolagskonseptet, og til de felles nabolagsfunksjoner som etableres: fellesareal i Kongla/fellesareal i hus H/fellesareal i hus F.
Skårerbyen 4 Sameie vil da være forpliktet til å delta i drift og vedlikehold av og til å bære sin forholdsmessige del av utgiftene knyttet til drift/vedlikehold av lokalene og til avtalen med Selvaag Pluss Service AS. Seksjonseierne
i Skårerbyen 1 Sameie og Skårerbyen 3 Sameie vil få tilsvarende rettigheter og plikter i forhold til fellesarealene i Hus H og Hus F.
For Felleslokalet vil utbygger fastsette egne vedtekter/avtale, med nærmere bestemmelser om eierskap, bruk, råderett mv. Utbygger forbeholder seg retten til å overføre hjemmel til ideell eierandel til Felleslokalet til Skårerbyen 3 Sameie, og/eller tinglyse rettigheter og plikter.
Det vil kunne bli etablert en Driftsforening for Skårerbyen – kalt Skårerbyen Driftsforening, heretter «Driftsforeningen». Foreningens formål er å eie, samt sørge for drift og vedlikehold av fellesarealer og installasjoner, herunder veier, arealer til lek og rekreasjon, biloppstillingsplasser, belysning og annen infrastruktur som er ment til felles benyttelse for beboerne på Skårerbyen. Selger forbeholder seg retten til å definere omfanget av nevnte arealer og installasjoner under sin utvikling av Skårerbyen. Det vil kunne bli tinglyst pliktig medlemskap i Driftsforeningen for alle beboerne i Skårerbyen. Det gjøres oppmerksom på at det vil bli tinglyst erklæring om allmenhetens ferdselsrett over deler av arealer og installasjoner underlagt Driftsforeningen. Kostnader til drift og vedlikehold av Driftsforeningen vil fordeles på foreningens medlemmer, via Boligselskapene, med utgangspunkt i antall boenheter i det enkelte Boligselskap. Utbygger tar forbehold om å differensiere fordelingen av drift- og vedlikeholdskostnadene basert på det enkelte
Boligselskaps beregnede bruksnytte av fellesarealene og installasjoner. Kostnad er medtatt i estimert nivå på felleskostnader.
Utbygger vil om nødvendig på vegne av Driftsforeningen engasjere forretningsfører til å sørge for driften av Driftsforeningen for de tre første driftsårene. Forretningsfører har utarbeidet forslag til vedtekter og driftsbudsjett til Driftsforeningen. Driftsforeningen ledes av et styre valgt fra de ulike Boligselskapene.
Forretningsfører:
OBOS Forvaltning AS (org.nr. 934 261 585) er engasjert som forretningsfører for Sameiet. Avtalen har ingen bindingstid. Det er 6 måneders oppsigelse på avtalen. Utbygger vil også inngå drift og vedlikeholdsavtaler på vegne av sameiet. Det er 6 måneders oppsigelse på avtalen, men oppsigelse frarådes.
Utbygger:
Utbygger er Skårer Bolig AS, org. nr. 990 212 929 heretter benevnt «Utbygger». Skårer Bolig AS er 100% eid av Selvaag Bolig ASA, org. nr. 992 587 776.
Per 25.02.2026 står det følgende på Selvaags hjemmeside: Hus F/G har planlagt innflytting fra oktober 2026. Hus H har planlagt innflytting fra sent november 2026.
Forbrukerinformasjon om budgivning er vedlagt denne salgsoppgaven.
Alle bud og budforhøyelser må inngis skriftlig. I tillegg må legitimasjon være fremlagt sammen med signatur fra budgiver(e). Vi oppfordrer til å gi bud elektronisk via GI BUD knappen på finn.no, eller roislandco.no. Da vil samtlige vilkår bli oppfylt. Eventuelle forhøyelser eller endringer av budet kan bekreftes på SMS eller på e-post. Vi oppfordrer alltid til å kontakte megler pr. telefon i tillegg da forsinkelser i SMS og mail kan forekomme.
Megler skal legge til rette for en forsvarlig avvikling avbudrunden. I forbrukerforhold (dvs. der selger er forbruker) skal megleren ikke formidle bud med kortere akseptfrist enn kl. 12.00 første virkedag etter siste annonserte visning. Etter denne fristen bør budgivere ikke sette en kortere akseptfrist enn at megler har mulighet til, så langt det er nødvendig, å orientere selger, budgivere og øvrige interessenter om bud og forbehold. Dersom bud inngis med en frist som åpenbart er for kort til at megleren kan avvikle budrunden på en forsvarlig måte som sikrer selger og interessenter et tilstrekkelig grunnlag for sine handlingsvalg, vil megler fraråde budgiver å stille slik frist.
Megler skal ikke formidle bud med forbehold om at budet eller forbehold i budet skal holdes skjult (hemmelig) for andre budgivere og interessenter.
Megleren vil uoppfordret gi sin vurdering av det enkelte bud overfor selger, når budet er gitt innenfor fristene som nevnt over.
Megleren skal, så langt det er nødvendig og mulig, holde budgiverne skriftlig orientert om mottatte bud, herunder budets størrelse, forbehold og akseptfrist. Megler skal så snart som mulig bekrefte skriftlig overfor budgivere at budene deres er mottatt. For øvrig vil megler, på forespørsel fra andre, opplyse om aktuelle bud på eiendommen, herunder relevante forbehold.
Kopi av budjournal skal gis til kjøper og selger utenugrunnet opphold etter at handel er kommet i stand. Dersom det er viktig for budgiver å bevare sin anonymitet, bør budet formidles gjennom fullmektig.
I henhold til eiendomsmeglingsforskriften § 6-3 første ledd har megler en plikt til å oppfordre oppdragsgiver (selger) til ikke å ta imot bud direkte fra budgiver, men henvise til megler. Megler oppfordrer partene til å lese retningslinjene for budgivning vedlagt i salgsoppgaven.
Et eventuelt bud fra selger til kjøper (såkalte «motbud»), er avtalerettslig bindende tilbud som medfører at det foreligger en avtale om salg av eiendommen dersom budet i rett tid aksepteres av kjøper.
Budgiverens opplysning om han er forbruker eller næringsdrivende:
Avhendingsloven ble endret med virkning fra 1. januar 2022 og innebærer blant annet at «som den er»-forbehold ikke har virkning i forbrukerkjøp, jf. avhendingsloven § 3-9 andre ledd, jf. § 1-2 tredje ledd. Med forbrukerkjøper menes en kjøper av eiendom som er en fysisk person og som ikke hovedsakelig handler som ledd i næringsvirksomhet. «Som den er»-forbehold kan imidlertid fremdeles tas utenfor forbrukerkjøp. Hvorvidt eiendommen selges til en forbrukerkjøper eller ikke, kan derfor ha betydning for fordelingen av risiko mellom partene: hvis kjøperen er forbruker, bærer selger ansvaret dersom eiendommen ikke samsvarer med de krav til kvalitet, utrustning og annet som følger av avtalen, jf. avhendingsloven § 3-1. Hvis kjøperen er profesjonell, bærer imidlertid selger ansvaret for slike avvik bare i den grad eiendommen er i vesentlig ringere stand enn kjøperen hadde grunn til å regne med ut fra kjøpesummen og forholdene ellers.
Budgivers opplysning om han er forbruker eller ikke, skal gis i forbindelse med formidling av budet, for eksempel ved at det i budskjemaet krysses av for om man er forbrukerkjøper eller ikke. Budgiver må informere megler om han opptrer som forbruker eller ikke-forbruker ved budgivning for at andre parter involvert i budrunden kan ta stilling til forhold av faktisk og rettslig art som er viktige i forbindelse med avtalen. Megler har begrenset mulighet til å kontrollere budgivers egenopplysning om vedkommende er næringsdrivende eller ikke, og budgiverens skriftlige opplysning om han er forbrukerkjøper eller ikke, må legges til grunn.
Dette er et videresalg av leilighet under oppføring, hvor selger er en profesjonell part som har kjøpt boligen fra utbygger og selger denne videre. Ved forbrukerkjøp følger bustadoppføringslova av 13. juni 1997 nr. 43. Loven regulerer forhold hvor selger er profesjonell og kjøper er forbruker. Iht. loven plikter selger å stille garanti, heretter kalt § 12 som sikkerhet for oppfyllelse av sine forpliktelser etter kjøpekontrakt senest ved forbehold frafalt. § 12 garantien utgjør 3 % av kjøpesum frem til overtakelse. Beløpet økes til 5 % av kjøpesum og står 5 -fem- år etter overtakelsen jf. buofl. § 12, 3 ledd. Loven kan i sin helhet fås ved henvendelse til megler. Loven finnes også på www.lovdata.no.
I tilfeller hvor kjøper er profesjonell iht. bustadoppføringslova, dvs. gjør kjøpet som ledd i næringsvirksomhet, kan selger kreve at avtalen reguleres av Lov om avhending av fast eiendom av 3. juli 1992 nr. 93 (avhendingslova). Loven kan i sin helhet fås ved henvendelse til megler. Loven finnes også på www.lovdata.no.
Det forutsettes at hjemmel overføres til kjøper.
Ingen kan direkte eller indirekte erverve mer en to boligseksjoner i et boligsameie jf. eierseksjonsloven § 23. Dersom et erverv har funnet sted i strid med eierseksjonslovens regler kan Kartverket nekte overskjøting. Dersom overskjøting blir nektet, er kjøper likevel forpliktet til å gjennomføre handelen med selger, og oppgjør til selger vil finne sted tross manglende overskjøting.
Eiendomsmeglere er underlagt Lov om hvitvasking. I henhold til Lov av 01.06.18 nr. 23 om tiltak mot hvitvasking og terrorfinansiering (Hvitvaskingsloven), er megler pliktig til å gjennomføre identitetskontroll av alle involverte parter, herunder fullmektiger. Dette innebærer bl.a. å bekrefte kunders og reelle rettighetshaveres identitet på bakgrunn av fremvist gyldig legitimasjon eller på annen godkjent måte, samt å innhente opplysninger om kundeforholdets formål og tilsiktede art. Dersom slike kundetiltak ikke kan gjennomføres, kan megler ikke etablere kundeforholdet eller utføre transaksjonen. Hvitvaskingsloven pålegger også eiendomsmegler å innhente redegjørelse av midlenes opprinnelse. Dette besvares av samtlige kjøpere herunder parter som opptrer på vegne av kjøper, ved en såkalt kundekontroll.
Hvis kjøper ikke bidrar til gjennomføring av kundekontrollen og dette fører til at transaksjonen blir forsinket eller ikke kan gjennomføres, vil dette ansees som mislighold av avtalen og gi selger rettigheter etter avhendingslova eller bustadoppføringsloven kapittel 5. I tilfeller der selger ikke bidrar til gjennomføring av løpende kundekontroll underveis i oppdraget, er det selger som misligholder sine forpliktelser etter avtalen og gi kjøper rettigheter etter avhendingslovens eller bustadoppføringsloven kapittel 4. Partene er selv ansvarlige for eventuelle kostnader og ansvar dette kan medføre. Eiendomsmegleren eller eiendomsmeglingsforetaket kan ikke holdes ansvarlig for de konsekvenser dette vil kunne få for partene eller andre som har interesser i eiendomshandelen.
Ved eventuelt tilbakehold av informasjon eller mistenkelige transaksjoner, plikter eiendomsmegleren å melde fra til Økokrim. Med «mistenkelig transaksjon» menes transaksjon som mistenkes å involvere utbytte fra straffbar handling, eller som skjer som ledd i terrorfinansiering. Manglende mulighet for kundekontroll kan også være et forhold som gjør transaksjonen mistenkelig.
Det anbefales at kjøper innbetaler kjøpesummen som ikke kommer fra låneinstitusjon, i en samlet innbetaling fra egen konto i norsk bank.
Selger forbeholder seg også retten til å kreve dokumentasjon av kjøpers finansiering.
Det kan ikke gjøres ansvar gjeldende mot meglerforetaket som følge av at meglerforetaket overholder sine plikter etter Hvitvaskingsloven.
I henhold til personopplysningsloven gjør vi oppmerksom på at interessenter kan bli registrert for videre oppfølging.
Prerna Malhotra
Meglers vederlag betales av selger og er avtalt til:
Fastpris: kr. 55 000
Markedsføringspakke: kr. 20 000
Oppgjørshonorar: kr. 8 125
Oppslag eiendomsregister: kr. 762
Megler har i tillegg krav på dekning av utlegg. Alle summer er inkl. mva.
Oppdragsnummer: 3-0033/26
Martin Killi Arnesen
Sist oppdatert: 23.04.2026