Eiendommen
Knr. 301 Gnr. 11 Bnr. 7
Komplett Salgsoppgave
Griniveien 4G, 0756 OSLO
Meld din interesse så tar vi kontakt med deg og holder deg orientert om boligen!
Salg av kontraktsposisjon: Leiligheten er under oppføring og det er ikke tilgang på selve leiligheten/byggeplass. Det er mulig å gjennomføre en digital visning på Teams for en gjennomgang av spørsmål. Konferer med megler Martin Killi Arnesen for ytterligere informasjon og en hyggelig prat.
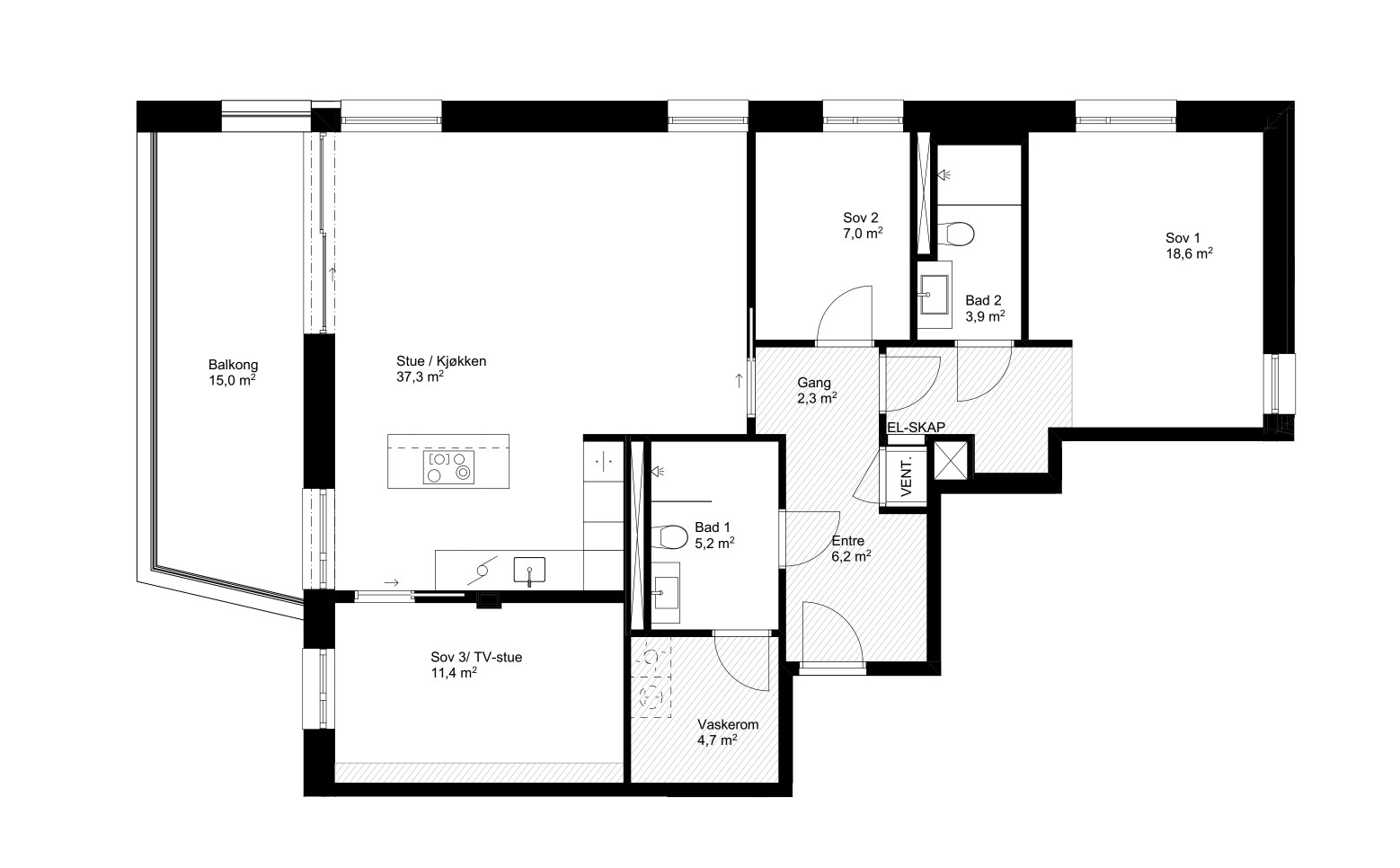
Dette er et salg av kontraktsposisjon vedrørende leilighet C-403 i prosjektet Røa-X. En lekker og stor 4-roms endeleilighet med vestvendt balkong på hele 15 m². Garasjeplass kan kjøpes. Denne leiligheten ligger i bygg C, som har flest solgte enheter i prosjektet per tid. Røa-X blir et kvalitetsprosjekt som består av totalt 4 punkthus hvor det er lagt vekt på gode planløsninger og store private balkonger. Anerkjente og prisvinnende Lund+Slaatto Arkitekter som har tegnet Røa X.
– Overtakelse fra utbygger den 8/4-2026, men overtagelse ifm kjøp kan avtales senere
– 4-roms selveierleilighet på byggets hjørne i 4. etasje
– Vestvendt balkong på 15 m² med meget gode solforhold
– Høyt og luftig
– *Garasjeplass nærmest oppgang/heis kan kjøpes
– Lav dokumentavgift
– 5års reklamasjonsrett
– Gjennomgående planløsning
– Lekkert kjøkken fra HTH med øy og integrerte hvitevarer
– 3 soverom, 2 bad og eget vaskerom
– Gode støytiltak på vinduer og terrasse
– Heis
– Energivennlig (Godt isolert og balansert ventilasjon)

Knr. 301 Gnr. 11 Bnr. 7
Opprinnelig kontraktstegning inneholder gamle måleregler:
BRA: 103,5 m²
P-ROM: 102,5 m²
Etter dagens målebenevnelser er det stipulert til:
Total BRA: 108,5 m²
BRA-i (innvendig i leilighet): 103,5 m²
BRA-e (kjellerbod): 5 m²
TBA (balkong): 15 m²
BRA-i:
4. etasje: Entré/gang, vaskerom, teknisk rom, 2 bad, 3 soverom og stue med åpen kjøkkenløsning.
Heis:
Adkomst til leiligheten med heis og trapp, som også går ned til boder og parkering i kjellerplan.
Kjellerbod:
Det medfølger en sportsbod på ca. 5 m². Sportsboder er lokalisert i egne bodsoner i kjellerplan. Skillevegger i stålnetting med hengelåsfeste på dør. Det vil kunne være begrenset lagringshøyde i sportsboder grunnet konstruksjoner og sprinkling, og det kan forekomme rørføringer på vegg. Innvendig bod i leiligheter som det fremgår av kontraktstegningene. Leilighetenes ventilasjonsaggregater er plassert i nisje i entre eller innvendige boder/vaskerom. Plassering fremgår av kontraktstegning. Aggregat i entre/gang leveres i nisje med dør. Ventilasjonsaggregat er frittstående plassert i bod, og vil kunne ha synlige rørkanaler. Det må påregnes synlige kanaler/tekniske føringer og rør på vegg og i himling i bod. Det kan forekomme inspeksjonsluke(r) i tak eller vegg. 1 LED taklampe med bevegelsessensor. Stikkontakt ved gulv iht. NEK.
Felles rom for sykkel-/hundevask:
I tilknytning til sykkelrom i kjeller er det avsatt et eget rom hvor det leveres vaskekar som kan benyttes til vask av hund og sykkel.
Arealbeskrivelse;
Vedlagte plantegninger er ikke målbare. De oppgitte arealer er hentet fra opprinnelige plantegninger fra utbygger. Vi gjør oppmerksom på at det er gamle måleregler i opprinnelig kontraktstegning. Det kommer av at leiligheten som videreselges, ble kjøpt før de nye målereglene trådte i kraft (før 1/1-2024). Total BRA og BRA-i oppgitt i annonsen, er stipulert av megler utfra BRA/P-ROM i kontraktstegning og kjellerbodstørrelse. Opprinnelige areal ifølge utbyggers kontraktstegning: BRA: 103,5 m²/ P-ROM: 102,5 m².
Det er valgt interiørkonseptet «Terra» som omtales som stilren og varm. Jordfargene som er brukt i Terra gir leiligheten en svakt gyllen glød, med spennende mørke kontraster i armaturer og dører. Med sine rene linjer og tydelige fargebruk vil Terra gi et stilrent og varmt hjem.
Entré/Gang:
I entréen leveres det LED downlights med dimmer.
Gulvflis i entréen: MARAZZI TERRATECH, MATT, 600 MM X 600 MM, CANELLA. FUGEFARGE MAPEI 110. En keramisk flis i «betonglook».
Øvrig i leiligheten (untatt våtrom) leveres det en lekker 1-stavs eikeparkett: PERGO LOFOTEN EIK NORLYS ACCENT FP220. Dette er en livlig fargevariasjon og trestruktur. Kviststørrelse på opptil 50 mm og små sparklede endesprekker kan forekomme. Fotlist i hvit matt lakk.
I tilknytning til gangen er det en innvendig bod/teknisk rom.
Stue:
Leiligheten har en stor stue på ca. 37,3 m² med åpen kjøkkenløsning. Stuen areal gir mange muligheter for innredning.
Stilrent kjøkken fra HTH med øy, type modell «Focus» og lakkfarge: Leire (NCS S4005-Y20R).
Benkeplate i laminat, Surface 597.
Grep overskap: Grepsfritt med integrert LED gripelist. Grep underskap: Line, børstet sort
Kjøkkenarmatur EVO184, MATT SORT. Kjøkkenbatteri med avstengning for oppvaskmaskin.
Matt sort underlimt vask, Blanco Dalago 6 Antracit.
Malte vegger mellom over- og underskap.
Dempere på alle skapdører og skuffer.
Kildesortering i 80 cm bred skuff under vask, med mulighet for 6 fraksjoner.
Der det ikke er plass til 80 cm avfallsskuff, leveres ekstra beholdere montert i bod eller annet egnet sted i leiligheten.
Røroshetta One koketopp med integrert benkeventilator, kfr. kontraktstegning.
Det leveres hvitevarepakke fra Siemens bestående av innbyggingsovn med pyrolyse, 60 cm induksjonstopp, integrert kombiskap og oppvaskmaskin.
Balkong:
Videre fra stuen tar man seg ut til den store vestvendte balkongen på hele 15 m². Balkonger og terrasser leveres med tremmegulv (terrassedekke i tre). Klart glassrekkverk over en lav teglbrystning på utside av balkong, platekledt mot innsiden av balkongen og u-profil håndløper på toppen av glasset. Det leveres typisk 1 stk. LED utelampe med dobbel stikkontakt, og bryter på innsiden.
Bad 1:
Bad 1 har inngang fra entréen og er på ca. 5,2 m².
Servantskap VISKAN GRIP BLACK OAK 80 CM. Servantskap i minimalistisk stil med grepslist i aluminium. Grepslisten kommer i samme farge som møbelet. Svart finér som er beiset og deretter lakkert. Servant i hvit porselen.
Dusjvegger LINC 2 ORIGINAL, MATTE BLACK. Rett dusjvegg i klart glass.
Dusj TVM7200 TAKDUSJ, FARGE MATT SORT. Takdusj med trykk- og termostatstyrt dusjbatteri. Teleskopstang for enkel høydetilpasning av taksilen.
Servantbatteri EVM071 INKL. BUNNVENTIL, FARGE MATT SORT. Servantbatteri med pop-up bunnventil.
Gulvflis MARAZZI TERRATECH, MATT, FARGE: CANELLA. 600 mm x 600 mm, 50 mm x 50 mm i dusjsone
Veggflis MARAZZI SISTEMS, MATT, FARGE: SAND. 600 mm x 600 mm
Speil og speilskap LOOX, Ø90 CM. Rundt speil med integrert lys.
Toalett SUBWAY 2.0. Vegghengt toalett i minimalistisk design. Toalettsete med soft close.
Spyleknapp GEBERIT SIGMA 30, SORT/BLANK FORKROMMET. Spyleknapp med vannsparende funksjon.
Elektro: ELKO PLUS, SORT. Sorte stikkontakter og dimmer/bryter i baderommet.
Bad 2:
Bad 2 har inngang fra soverom 1, og er på ca. 3,9 m².
Servantskap VISKAN GRIP BLACK OAK 100 CM. Servantskap i minimalistisk stil med grepslist i aluminium. Grepslisten kommer i samme farge som møbelet. Svart finér som er beiset og deretter lakkert. Servant i hvit porselen.
Dusjvegger LINC 2 ORIGINAL, MATTE BLACK. Rett dusjvegg i klart glass.
Dusj TVM7200 TAKDUSJ, FARGE MATT SORT. Takdusj med trykk- og termostatstyrt dusjbatteri. Teleskopstang for enkel høydetilpasning av taksilen.
Servantbatteri EVM071 INKL. BUNNVENTIL, FARGE MATT SORT. Servantbatteri med pop-up bunnventil.
Gulvflis MARAZZI TERRATECH, MATT, FARGE: CANELLA. 600 mm x 600 mm, 50 mm x 50 mm i dusjsone.
Veggflis MARAZZI SISTEMS, MATT, FARGE: SAND. 600 mm x 600 mm.
Speil og speilskap LOOX, Ø90 CM. Rundt speil med integrert lys.
Spyleknapp GEBERIT SIGMA 30, SORT/BLANK FORKROMMET. Spyleknapp med vannsparende funksjon.
Elektro ELKO PLUS, SORT. Sorte stikkontakter og dimmer/bryter i baderommet.
Badene leveres som ferdige typegodkjente/prefabrikkerte baderomsmoduler.
LED Downlights i himling, med dimmer på vegg. Antall avhengig av størrelse på rommet.
Pop-down sprinklerhode.
Det leveres klessnor.
Det leveres ikke toalettrullholder, håndklestang og knagger.
I bad/våtrom der det er vist mulighet for vaskemaskin leveres kran og avløp for tilkobling av vaskemaskin, kfr. kontraktstegning.
Det leveres spikerslag på utvalgte områder og bak speil for montering av hyller/skap på baderom.
Fordelingsskapets dør kles med samme flis som veggflis eller leveres lakkert i tilsvarende farge som veggflis i valgt interiørkonsept.
Vaskerom:
Flislagt gulv: MARAZZI TERRATECH, MATT, 600 MM X 600 MM, CANELLA. FUGEFARGE MAPEI 110. Keramisk flis i betonglook.
Det er sluk i gulv.
Stikkontakt for vaskemaskin og tørketrommel.
NB: Utslagsvask med armatur leveres ikke, rommet leveres for øvrig uinnredet. Vask og eventuell innredning kan kjøpes som tilvalg hos kjøkkenleverandør (ikke bestilt i denne leiligheten). Det må påregnes synlige elektroføringer, rør og kanaler i vaskerom.
Soverom:
Leiligheten har totalt 3 soverom.
Soverom 1 er på ca. 18,6 m². I tiknytning til soverommet er det et eget bad.
Soverom 2 er på ca. 7 m².
Soverom 3/TV-stue er på ca. 11,4 m². Det leveres utvendig screens på dette soverommet.
Det leveres ikke garderobeskap eller garderobeinnredning.
Screens:
Soverom 3/TV-stue leveres med utvendig screens.
Vinduer mot nord i stue, soverom 2 og soverom 1 + vindu mot øst på soverom 1, leveres forberedt for screens. Se vedlagte oversikt vedrørende screens og solskjerming.
Generelt:
Maling Vegger:
Generell: NCS 2102-Y26R
Master soverom: NCS 5302-Y32R
Sekundære soverom: NCS 3504-Y19R
Dører:
5. stk. dørblad STABLE GW. NCS S8500-N.
1. stk. skyvedør mellom entré/gang og stue/kjøkken STABLE GW, SKYVEDØR. NCS S8500-N.
1 stk. skyvedør STABLE GW, SKYVEDØR. NCS S8500-N.
Karmer, utforinger og gerikter malt i samme farge som dørblad. Inkludert pluskarm og tetningslist.
5 stk. dørhåndtak HOPPE STOCKHOLM DØRHÅNDTAK, BLACK NUANCE.
2 stk. skyvedørsbeslag per dør SWEDOOR STOCKHOLM SKYVEDØRSBESLAG, BLACK NUANCE.
Spikerslag TV:
1 stk. Spikerslag for TV er inkludert som standard og monteres på det stedet som er angitt for TV på salgstegningen.
Takhøyde:
Standard takhøyde er ca. 2,6 m med unntak av baderom som har standard takhøyde på ca. 2,2 m. Det vil være redusert himlingshøyde og lokale nedforinger ned mot ca. 2,2-2,3 m i områder der dette er nødvendig for fremføring av ventilasjonskanaler og andre tekniske installasjoner. Omfang av nedsenket himling er vist på kontraktstegning. I bod vil det kunne forekomme synlige rør og kanaler. Det leveres ikke taklister. På bad leveres det glatt hvit himling.
Smarthusteknologi/Smarthjemtjenester:
– Adgangsstyring. Smart porttelefon ved fellesinngangsdør. Til leilighetsdør leveres elektronisk lås type Danalock.
– Energiservice med «sanntidsenergimåling», varmtvann og oppvarming.
Vær oppmerksom på at enkelte av disse tjenestene innebærer abonnement, som vil inngås av utbygger før overtakelse. Med abonnement følger utgifter til sameiet som vil dekkes inn gjennom fellesutgifter eller faktureres beboerne direkte. Dersom noen av disse avtalene sies opp av sameiet etter overtakelse, vil tjenestene ikke lenger være tilgjengelig for sameiet.
Alle opplysninger rundt leveranse er hentet fra mottatte ordrebekreftelse og Utbyggers romskjema/levereransebeskrivelse. Interessenter må gjøre seg godt kjent med disse dokumentene.
Konsept «Terra – Stilren og varm» er valgt.
Det er ikke bestilt noen tilvalg i leiligheten.
Det er ikke mulig å gjøre tilvalg i leiligheten da frister er utløpt.
Selger av denne kontrakten har én garasjeplass som kan kjøpes til denne leiligheten. Konferer med megler om det er ønskelig å kjøpe denne i tillegg.
Pris: kr. 800 000 + omk.
Det gjøres oppmerksom på at i opprinnelig akseptert bud av Utbygger, og oppgitt i signert kjøpekontrakt mellom Kjøper 1 og Utbygger under punktet «Særskilte avtaler»:
«Forbehold gitt og akseptert i bud: Ønske å kjøpe parkeringsplass nær inngangen med en minimumsstørrelse på 2,5m.»
Garasjeandelen gir rett til å disponere en biloppstillingsplass inkl. klargjøring for ladesøyle til el-bil i garasjeeiendommen. Garasjeeiendommen er planlagt organisert som en tilleggsdel til leiligheten eller en ideell andel i en næringsseksjon.
Driftskostnad for parkeringsplass ca. kr. 200 per måned.
Opprinnelig garasjekontrakt ligger vedlagt i denne salgsoppgaven.
Det er ikke endelig bestemt om parkeringsanlegget blir skilt ut som et eget gårds- og bruksnummer (anleggseiendom), eller om det skal inngå i eierseksjonssameiet.
Avhengig av valgt organisering av kjellereiendommen kan sameiet få rettigheter og plikter til bruk av og adkomst til arealer i kjellereiendommen. Iht. reguleringsbestemmelsene skal tilstøtende eiendommer ved fremtidig utvikling knytte seg til prosjektets innkjøring fra Griniveien. Utbygger vil utarbeide avtale med aktuelle naboer om rettigheter og plikter dersom dette skjer før ferdigstillelse av Røa X.
Boligene leveres med termostatstyrt vannbåren gulvvarme med jordvarme i alle rom bortsett fra bod. Dette gjelder også på baderom og WC. Dette er komfortvarme og man bør regne med at justeringer av varmen tar lengre tid enn ved elektrisk oppvarming.
Skanska Eiendomsutvikling har valgt å BREEAM-sertifisere alle sine boligprosjekter. Det legges dermed vekt på å oppnå gode miljøkvaliteter i prosjektet, både planlegging, ved utførelse og ved materialvalg. Det etterstrebes bruk av materialer og produkter som er fremstilt med forsvarlig energibruk og lite forurensning. Røa X planlegges BREEAM-sertifisert til Very Good. Generelt vil leilighetene få energiattest med oppvarmingskarakter grønn og energikarakter B, avvik kan forekomme for enkelte leiligheter. Ingen leiligheter vil få svakere energikarakter enn C. Energimerking utføres av selger og må foreligge for å få utstedt ferdigattest. I denne beskrivelsen er gjeldende energimerkeordning lagt til grunn. Denne er under revisjon.
Det leveres anlegg for balansert ventilasjon med varmegjenvinning, med eget aggregat for hver leilighet. Kullfilter på kjøkkenventilator. Avtrekk kjøkken og bad via avtrekksventiler. Avtrekk fra øvrige rom via spalte under dør, eller ventil i vegg. Aggregat plasseres i bod eller annet egnet sted i leiligheter, kfr. kontraktstegninger. I leiligheter med aggregat i entre/gang vil det leveres i nisje med dør. I bod vil rørføringer ut av aggregat kunne få synlige kanaler. Luftinntak i fasade og avkast over tak.
Utbygger skal fremskaffe ferdigattest for boligen. Kjøper er kjent med at slik ferdigattest normalt vil foreligge først en god stund etter overtagelse. Dersom ferdigattest ikke foreligger, gjennomføres overtagelsen mot midlertidig brukstillatelse.
Kjøper kan ikke nekte overtagelse ved manglende ferdigattest, dersom midlertidig brukstillatelse foreligger.
Boligen kan leies ut i tråd med gjeldende lovverk. Korttidsutleie er tillatt i opptil 90 døgn i året, jf. eierseksjonsloven § 24. Grensen på 90 døgn kan fravikes i vedtektene, men må settes til mellom 60 og 120 døgn. Med korttidsutleie menes utleie i inntil 30 døgn sammenhengende.
På eiendommen er det tinglyst følgende heftelser og rettigheter som følger eiendommens matrikkel ved overskjøting til ny hjemmelshaver:
301/11/7:
02.08.1850 – Dokumentnr: 900016 – Registrering av grunn
Denne matrikkelenhet opprettet fra:
Knr:0301 Gnr:11 Bnr:1
03.09.1858 – Dokumentnr: 900043 – Registrering av grunn
Utskilt fra denne matrikkelenhet:
Knr:0301 Gnr:11 Bnr:5
16.05.1930 – Dokumentnr: 900299 – Registrering av grunn
Utskilt fra denne matrikkelenhet:
Knr:0301 Gnr:11 Bnr:60
16.10.1931 – Dokumentnr: 900748 – Registrering av grunn
Utskilt fra denne matrikkelenhet:
Knr:0301 Gnr:11 Bnr:66
05.04.1935 – Dokumentnr: 900333 – Registrering av grunn
Utskilt fra denne matrikkelenhet:
Knr:0301 Gnr:11 Bnr:79
24.01.2025 – Dokumentnr: 90570 – Sammenslåing
Sammenslått med denne matrikkelenhet:
Knr:0301 Gnr:12 Bnr:3
Sammenslått med denne matrikkelenhet:
Knr:0301 Gnr:12 Bnr:7
Sammenslått med denne matrikkelenhet:
Knr:0301 Gnr:12 Bnr:625
Sammenslått med denne matrikkelenhet:
Knr:0301 Gnr:12 Bnr:646
16.10.2025 – Dokumentnr: 1244666 – Seksjonering
Opprettet seksjoner:
Snr: 1
Formål: Bolig
Tilleggsdel: Bygning
Sameiebrøk: 56/5786
Snr: 2
Formål: Bolig
Tilleggsdel: Bygning
Sameiebrøk: 81/5786
Snr: 3
Formål: Bolig
Tilleggsdel: Bygning
Sameiebrøk: 98/5786
Snr: 4
Formål: Bolig
Tilleggsdel: Bygning
Sameiebrøk: 46/5786
Snr: 5
Formål: Bolig
Sameiebrøk: 56/5786
Snr: 6
Formål: Bolig
Sameiebrøk: 81/5786
Snr: 7
Formål: Bolig
Sameiebrøk: 98/5786
Snr: 8
Formål: Bolig
Sameiebrøk: 46/5786
Snr: 9
Formål: Bolig
Sameiebrøk: 100/5786
Snr: 10
Formål: Bolig
Sameiebrøk: 56/5786
Snr: 11
Formål: Bolig
Sameiebrøk: 81/5786
Snr: 12
Formål: Bolig
Sameiebrøk: 98/5786
Snr: 13
Formål: Bolig
Sameiebrøk: 46/5786
Snr: 14
Formål: Bolig
Sameiebrøk: 100/5786
Snr: 15
Formål: Bolig
Tilleggsdel: Bygning
Sameiebrøk: 188/5786
Snr: 16
Formål: Bolig
Tilleggsdel: Bygning
Sameiebrøk: 113/5786
Snr: 17
Formål: Bolig
Tilleggsdel: Bygning
Sameiebrøk: 86/5786
Snr: 18
Formål: Bolig
Tilleggsdel: Bygning
Sameiebrøk: 107/5786
Snr: 19
Formål: Bolig
Tilleggsdel: Bygning
Sameiebrøk: 63/5786
Snr: 20
Formål: Bolig
Tilleggsdel: Bygning
Sameiebrøk: 98/5786
Snr: 21
Formål: Bolig
Sameiebrøk: 107/5786
Snr: 22
Formål: Bolig
Sameiebrøk: 77/5786
Snr: 23
Formål: Bolig
Sameiebrøk: 98/5786
Snr: 24
Formål: Bolig
Sameiebrøk: 107/5786
Snr: 25
Formål: Bolig
Sameiebrøk: 77/5786
Snr: 26
Formål: Bolig
Sameiebrøk: 98/5786
Snr: 27
Formål: Bolig
Sameiebrøk: 94/5786
Snr: 28
Formål: Bolig
Tilleggsdel: Bygning
Sameiebrøk: 109/5786
Snr: 29
Formål: Bolig
Sameiebrøk: 211/5786
Snr: 30
Formål: Bolig
Tilleggsdel: Bygning
Sameiebrøk: 71/5786
Snr: 31
Formål: Bolig
Sameiebrøk: 96/5786
Snr: 32
Formål: Bolig
Sameiebrøk: 72/5786
Snr: 33
Formål: Bolig
Sameiebrøk: 104/5786
Snr: 34
Formål: Bolig
Sameiebrøk: 95/5786
Snr: 35
Formål: Bolig
Sameiebrøk: 71/5786
Snr: 36
Formål: Bolig
Sameiebrøk: 103/5786
Snr: 37
Formål: Bolig
Sameiebrøk: 96/5786
Snr: 38
Formål: Bolig
Sameiebrøk: 72/5786
Snr: 39
Formål: Bolig
Sameiebrøk: 104/5786
Snr: 40
Formål: Bolig
Tilleggsdel: Bygning
Sameiebrøk: 186/5786
Snr: 41
Formål: Bolig
Tilleggsdel: Bygning
Sameiebrøk: 95/5786
Snr: 42
Formål: Bolig
Tilleggsdel: Bygning
Sameiebrøk: 97/5786
Snr: 43
Formål: Bolig
Tilleggsdel: Bygning
Sameiebrøk: 67/5786
Snr: 44
Formål: Bolig
Tilleggsdel: Bygning
Sameiebrøk: 43/5786
Snr: 45
Formål: Bolig
Sameiebrøk: 119/5786
Snr: 46
Formål: Bolig
Sameiebrøk: 98/5786
Snr: 47
Formål: Bolig
Sameiebrøk: 100/5786
Snr: 48
Formål: Bolig
Sameiebrøk: 119/5786
Snr: 49
Formål: Bolig
Sameiebrøk: 97/5786
Snr: 50
Formål: Bolig
Sameiebrøk: 100/5786
Snr: 51
Formål: Bolig
Sameiebrøk: 119/5786
Snr: 52
Formål: Bolig
Sameiebrøk: 97/5786
Snr: 53
Formål: Bolig
Sameiebrøk: 100/5786
Snr: 54
Formål: Bolig
Tilleggsdel: Bygning
Sameiebrøk: 104/5786
Snr: 55
Formål: Bolig
Sameiebrøk: 103/5786
Snr: 56
Formål: Næring
Sameiebrøk: 145/5786
Snr: 57
Formål: Næring
Sameiebrøk: 192/5786
Snr: 58
Formål: Næring
Sameiebrøk: 50/5786
Snr: 59
Formål: Næring
Tilleggsdel: Bygning
Sameiebrøk: 195/5786
Gjelder denne registerenheten med flere
Røa er et område folk gjerne flytter til, men motvillig flytter fra. Beliggenheten bidrar til dette. Kort reisevei til jobben, enten den er i Oslo sentrum eller i Bærum, gjør det bekvemt å bo på Røa. Nærheten til Sørkedalen og Bogstadvannet gjør det enkelt å leve et aktivt liv med flotte naturopplevelser. På Røa Senter, som ligger rett over veien, finner du alt fra hyggelige butikker og kafeer til frisør og legesenter. I motsatt retning ligger Røa Torg med Vinmonopol, flere butikker, restauranter og kafeer. Et treningssenter og Røa Bad ligger kun et par minutter unna til fots, og det samme gjør spesialbutikker for dyreutstyr, sport og jernvare.
Tar du T-banen mot Stortinget, møtes du av storbylivet i løpet av femten minutter. Setter du deg på sykkelen, er du ved Bogstadvannet etter like lang tid. Bogstadvannet er en god grunn i seg selv til å flytte til Røa. Her finner du alt fra stille viker med bare fuglesang som selskap til badeplasser med barnelatter. Og om vinteren er det verdens vakreste snarvei på ski.
Foreløpig utomhusplan er inntatt i prospektet. Arealet mellom byggene opparbeides med grønne soner, sykkelparkering, oppholdssoner med benker, lekeapparater og gangareal med fast og gruset dekke. Utomhusplanen er en illustrasjon og enkelte endringer i utforming og materialvalg må påregnes. Utomhusarealene vil ferdigstilles samtidig med ferdigstillelsen av prosjektet for øvrig, alternativt ved egnet årstid.
Eiendommen utgjør felt A10 og del av A11 i reguleringsplanen S-4110, vedtatt 22.09.2004. Reguleringsbestemmelser og reguleringskart ligger som vedlegg til denne salgsoppgaven.
Eiendommen er regulert til; byggeområde for bolig, forretning, kontorer, offentlig bygninger, allmennyttig formål, herberge og bevertningssteder. Rammetillatelsen er gitt, se sak på saksinnsyn 2020018433.
Naboeiendommen mot vest – Vækerøveien 203 (gnr. 12, bnr. 34) på hjørne mot Griniveien/Vækerøveien (det gule huset) er regulert til spesialområde-bevaring.
Naboeiendommen mot sørvest for prosjektet – Vækerøveien 197-199 (gnr. 11 bnr. 66/gnr. 32 bnr. 627).
Forhåndskonferanse – Oppføring av leilighetsbygg
Saksnr: 202210301
På eiendommen ligger det i dag et næringsbygg (det blå bygget). Eier har søkt om oppføring av et kombinert nærings-/ leilighetsbygg på 4+1 etasjer, se sak på saksinnsyn. Gjeldende reguleringsplan tillater bebyggelse i tre etasjer pluss inntrukken toppetasje på eiendommen gnr. 11 bnr. 60 (naboeiendommen) i inntil 4 etasjer pluss inntrukket toppetasje på et mulig fremtidig lokk over T- banesporet. Siste aktivitet i saken var i 2022 og saken er avsluttet, ifølge innsyn byggesak.
Naboeiendommen mot nord for prosjektet – Griniveien 7 (gnr. 12, bnr. 445)
Oppføring av bygg for handel, restauranter og kontor, påbygg med boliger på eksisterende bebyggelse, riving av bensinstasjon – Røa senter
Saksnr: 202512376
Det er gitt igangsettelsestillatelse for oppføring av bygg for handel, restauranter og kontor, påbygg med boliger på eksisterende bebyggelse, riving av bensinstasjon – Røa senter. Byggesaken omfatter riving av eksisterende bensinstasjon og oppføring av et handel- og kontorbygg på reguleringsfelt A6. Videre omfatter tiltaket oppføring av et påbygg med boliger på eksisterende bebyggelse, mot Vækerøveien, på reguleringsfelt A5. Prosjektet Nye Røa Senter omfatter et nytt tilbygg til eksisterende senter på cirka 4 500 m², med plass til handel, kontor, servering og treningssenter. Samspillsfasen er planlagt å starte i fjerde kvartal 2025. Byggestart er forventet i 2026, med ferdigstillelse i 2027. Se mer informasjon: https://magna.no/prosjekter/nye-roa-senter/
Totale stipulerte felleskostnader utgjør kr. 6 295 per måned.
Fordelt følgende, iht. budsjettforslag:
– Felleskostnader bolig kvm/BRA kr. 42 Eierbrøk alle
– Akonto energi – oppvarming og varmt tappevann kvm/BRA kr. 14
– Digital-tv / bredbånd pr seksjon kr. 499
Dette er et forslag til driftsbudsjett for normaldrift av sameiet i 1 år, basert på stipulerte inntekter og kostnader. Budsjettet er utarbeidet av OBOS basert på opplysninger om eiendommen gitt av selger/utbygger og normtall fra tilsvarende eiendommer. Det tas forbehold om oppgitte arealer, antall leil. og øvrige opplysninger om prosjektet som kan endre forutsetningene for budsjettforslaget. Det tas forbehold om stipulerte inntekter og kostnader da styret vil kunne endre budsjettet og inngå avtaler som vil tilføre boligselskapet andre eller større kostnader. Endelig fastsettelse av budsjett og nivå på felleskostnader vil bli foretatt av styret i boligselskapet. Normalt prisstigning fra første gangs salg til overtagelse må påregnes.
Felleskostnader dekker bl.a. kommunale avgifter, vaktmester/renhold, internett, a konto fjernvarme, honorar til styret, forretningsførsel, bygningsforsikring (ikke innbo), fellesstrøm, vedlikeholdsfond og lignende, basert på et foreløpig budsjett utarbeidet av forretningsfører. Kostnader til drift av realsameienes utomhusareal og parkeringskjeller belastes også via sameiets felleskostnader.
I tillegg til felleskostnader vil det påløpe andre løpende kostnader som for eksempel strømforbruk i den enkelte leilighet, innboforsikring, mm.
Kostnader med eiendommen som ikke knytter seg til den enkelte bruksenhet, skal fordeles mellom sameierne etter sameiebrøken med mindre særlige grunner taler for å fordele kostnadene etter nytten for den enkelte bruksenhet eller etter forbruk. Normalordningen er at eierbrøken fordeles etter bruksareal (BRA). Kjøper er forpliktet til å betale sin andel av eierseksjonssameiets felleskostnader. Selger forplikter seg til å betale løpende fastsatte felleskostnader og stiftelsesomkostninger for usolgte enheter.
Det er eiendomsskatt i Oslo Kommune. Oslo kommune fastsetter endelige kommunale avgifter (inkl. eiendomsskatt) og det tas derfor forbehold om dette.
Formuesverdien er ikke fastsatt, men fastsettes av Skatteetaten etter en beregningsmodell som hensyntar om boligen er «primærbolig»; (der eier er bosatt iht. Folkeregisteret) eller «sekundærbolig»; (andre boliger man eier).
Formuesverdi for skatteåret 2024 var for primærbolig 25 % av markedsverdien opp til kr. 10 000 000 og deretter 70 % av den overskytende markedsverdien, og 100 % for sekundærboliger. Det gjøres oppmerksom på at kjøper selv må sende inn opplysninger om adresse, areal, boligtype og byggeår til skattemyndighetene.
Det tas forbehold om endring av satser, og henvises til Skatteetatens websider dersom ytterligere informasjon er ønskelig.
I tillegg til kjøpesummen må kjøper betale:
1: Dokumentavgift til staten (2,5% av andel tomteverdi) for leilighet: Kr. 107 620
2: Tinglysningsgebyr skjøte: Kr. 545
3: Tinglysningsgebyr pant: Kr. 545
4: Transportgebyr til utbygger: Kr. 40 000
Totale omkostninger: Kr. 148 710
Total kjøpesum inkl. gebyrer/avgifter og evt. øvrige kostnader: Kr. 14 998 710
Ved overtakelse vil forretningsfører kreve inn startkapital til sameiet, 3 x månedlige felleskostnader.
Total prisantydning inneholder:
1: Prisantydning kontraktsposisjon (merverdi): Kr. 0 (minus Kr. 1 050 000)
2: Innskudd: Kr. 540 000
3: Rest iht. kjøpekontrakt (leilighet): Kr. 14 310 000
Total prisantydning utgjør: Kr. 14 850 000
Total prisantydning inkl. gebyrer/avgifter og evt. øvrige kostnader: Kr. 14 998 710
Innbetaling av kjøpesum og omkostninger deles opp i to innbetalinger:
1: Kontant ved kontraktsignering (innskudd, merverdi for kontraktposisjonen, og transportgebyr til utbygger) kr. 540 000 + 0 + 40 000 = Totalt kr. 580 000
Første delinnbetaling må være fri egenkapital da det ikke er mulig å få sikkerhet i boligen ved delinnbetaling 1. Alternativt må det avklares med banken før bud inngis at det kan tas sikkerhet i en annen bolig ved delinnbetaling 1.
2: Betaling i forkant av overtagelse (resterende kjøpesum og omkostninger iht. kjøpekontrakt) totalt kr. 14 310 000 + 108 710 = Totalt kr. 14 418 710
Om prosjektet:
Røa X vil bestå av 56 boligseksjoner, 3 næringsseksjoner for næringsvirksomhet, samt 2-4 seksjoner (næringsseksjoner) for boder. Bebyggelsen er fordelt på 4 bygg, i tillegg til garasjeanlegg og bodareal under bakken.
I prosjektet inngår to næringslokaler for utadrettet virksomhet. Det må påregnes aktivitet i forbindelse med næringslokalene. Det kan forekomme en del tilpasninger på næringsdelen som f. eks. endret inngangsparti/ vinduer o.l. Virksomheten i næringsseksjonen skal drives etter de til enhver tid gjeldende offentlige bestemmelser, herunder bestemmelser om lukketid. Virksomheten i næringsseksjonen skal uansett utøves på en måte som hensyntar boligseksjonene. Næringseier/leietaker skal ha rett til sedvanlig skilting på fasader med mer. Skilting skal ikke utføres på en måte som hindrer lys og utsikt for boligene eller på annen måte er til ulempe for boligene. Selger kan uten videre varsel også søke omgjøring av næringsarealet til boligformål, eller omvendt.
Det gamle huset blir en næringsseksjon i sameiet, og relokert til passasjen vest for bebyggelsen.
Tomten er fellesareal. At tomten er fellesareal innebærer at sameiet eier og disponerer over de aktuelle områdene i fellesskap. Dette gir ikke hver enkelt seksjon en eksklusiv rett til bruk eller å disponere arealene, med mindre annet er uttrykkelig avtalt i avtale eller at det følger av vedtektene.
Bebyggelse:
Røa X vil bestå av 56 boligseksjoner, 2 næringsseksjoner for næringsvirksomhet, samt 2-4 seksjoner (næringsseksjoner) for boder. Bebyggelsen er fordelt på 4 bygg, i tillegg til garasjeanlegg og bodareal under bakken.
I prosjektet inngår to næringslokaler for utadrettet virksomhet. Det må påregnes aktivitet i forbindelse med næringslokalene. Det kan forekomme en del tilpasninger på næringsdelen som f. eks. endret inngangsparti/vinduer o.l. Virksomheten i næringsseksjonen skal drives etter de til enhver tid gjeldende o?entlige bestemmelser, herunder bestemmelser om lukketid. Virksomheten i næringsseksjonen skal uansett utøves på en måte som hensyntar boligseksjonene. Næringseier/leietaker skal ha rett til sedvanlig skilting på fasader med mer. Skilting skal ikke utføres på en måte som hindrer lys og utsikt for boligene eller på annen måte er til ulempe for boligene. Selger kan uten videre varsel også søke omgjøring av næringsarealet til boligformål, eller omvendt. Det forventes også å bli utadrettet næringsvirksomhet i det gamle huset som blir relokert til passasjen vest for bebyggelsen. Dette er planlagt fradelt som egen grunneiendom, som ikke blir en del av sameiet.
Opprinnelig selger/Utbygger av prosjektet:
Skanska Eiendomsutvikling AS org.nr. 979 476 256 er eier og opprinnelig Selger av prosjektet.
Hjemmelshaver:
Skanska Norge AS er registrert som hjemmelshaver til gnr. 12 bnr. 646, 625 i Oslo Kommune. Vækerøveien 203 ANS, et selskap eid av Skanska Norge AS, er registrert som hjemmelshaver til gnr. 12 bnr. 3, 7, og gnr. 11 bnr. 7 i Oslo Kommune.
Forvaltning, drift og vedlikehold:
Selger har på vegne av eierseksjonssameiet, inngått bindende forretningsføreravtale vedrørende løpende forvaltning, stifting, utarbeidelse av budsjett og vedtekter med Obos Eiendomsforvaltning AS.
Røa X Eierseksjonssameie
Eierseksjonssameie i eiendommen gnr. 11, bnr. 7 i Oslo bestående av:
Seksjon 1 – 55 Boligseksjoner (bolig)
Seksjon 56 – 57 Næringsseksjoner for næringsvirksomhet i nybygg
Seksjon 58 Næringsseksjon i bevart frittliggende hus.
Seksjon 59 Næringsseksjon for parkering
– Seksjonert 16.10.2025.
– Sameiebrøken bygger på hoveddelens BRA areal (ekskl. balkonger, terrasser, uteareal osv.).
– Private markterrasser er seksjonert som tilleggsdel til seksjonen.
– Hver boligseksjon har enerett til bruk av en bod i sameiets fellesareal.
– Kombinert sameie hvor det er vedtektsfestet enerett til bruk av fellesareal for hhv. bolig- og næringsseksjonene.
Internett/TV:
Viken Fiber leverer signaler til Altibox tv og internett til Røa-X og du er en del av fellesavtalen Fiberaksess. Med denne avtalen kan du velge om du vil ha både tv og internett, kun internett eller kun tv.
Altibox Fiberaksess fellesavtale – Viken Fiber er leverandør av fibernett til Røa-X
– Altibox Fiberaksess – kr 59.- pr mnd. pr boenhet i fellesutgift
– Hjemmesentral, wifi-router og dekoder* er inkludert i leveransen
– Det er ikke forhåndsvalgt produktpakke i fellesavtalen, men fibernettet er klart til bruk når du bestiller tjenester fra Viken Fiber
– Full frihet til å bestemme produkter og tjenester etter eget behov
– Hver enkelt beboer betaler selv for det man ønsker av produkter og tjenester
Denne leiligheten har overlevering fra Utbygger den 8. april 2026. Fullt oppgjør ved kjøp av denne kontrakten, må være inne på klientkonto et par virkedager før den 8. april. Konferer med megler for ytterligere informasjon.
Forbrukerinformasjon om budgivning er vedlagt denne salgsoppgaven.
Alle bud og budforhøyelser må inngis skriftlig. I tillegg må legitimasjon være fremlagt sammen med signatur fra budgiver(e). Vi oppfordrer til å gi bud elektronisk via GI BUD knappen på finn.no, eller roislandco.no. Da vil samtlige vilkår bli oppfylt. Eventuelle forhøyelser eller endringer av budet kan bekreftes på SMS eller på e-post. Vi oppfordrer alltid til å kontakte megler pr. telefon i tillegg da forsinkelser i SMS og mail kan forekomme.
Megler skal legge til rette for en forsvarlig avvikling avbudrunden. I forbrukerforhold (dvs. der selger er forbruker) skal megleren ikke formidle bud med kortere akseptfrist enn kl. 12.00 første virkedag etter siste annonserte visning. Etter denne fristen bør budgivere ikke sette en kortere akseptfrist enn at megler har mulighet til, så langt det er nødvendig, å orientere selger, budgivere og øvrige interessenter om bud og forbehold. Dersom bud inngis med en frist som åpenbart er for kort til at megleren kan avvikle budrunden på en forsvarlig måte som sikrer selger og interessenter et tilstrekkelig grunnlag for sine handlingsvalg, vil megler fraråde budgiver å stille slik frist.
Megler skal ikke formidle bud med forbehold om at budet eller forbehold i budet skal holdes skjult (hemmelig) for andre budgivere og interessenter.
Megleren vil uoppfordret gi sin vurdering av det enkelte bud overfor selger, når budet er gitt innenfor fristene som nevnt over.
Megleren skal, så langt det er nødvendig og mulig, holde budgiverne skriftlig orientert om mottatte bud, herunder budets størrelse, forbehold og akseptfrist. Megler skal så snart som mulig bekrefte skriftlig overfor budgivere at budene deres er mottatt. For øvrig vil megler, på forespørsel fra andre, opplyse om aktuelle bud på eiendommen, herunder relevante forbehold.
Kopi av budjournal skal gis til kjøper og selger utenugrunnet opphold etter at handel er kommet i stand. Dersom det er viktig for budgiver å bevare sin anonymitet, bør budet formidles gjennom fullmektig.
I henhold til eiendomsmeglingsforskriften § 6-3 første ledd har megler en plikt til å oppfordre oppdragsgiver (selger) til ikke å ta imot bud direkte fra budgiver, men henvise til megler. Megler oppfordrer partene til å lese retningslinjene for budgivning vedlagt i salgsoppgaven.
Et eventuelt bud fra selger til kjøper (såkalte «motbud»), er avtalerettslig bindende tilbud som medfører at det foreligger en avtale om salg av eiendommen dersom budet i rett tid aksepteres av kjøper.
Budgiverens opplysning om han er forbruker eller næringsdrivende:
Avhendingsloven ble endret med virkning fra 1. januar 2022 og innebærer blant annet at «som den er»-forbehold ikke har virkning i forbrukerkjøp, jf. avhendingsloven § 3-9 andre ledd, jf. § 1-2 tredje ledd. Med forbrukerkjøper menes en kjøper av eiendom som er en fysisk person og som ikke hovedsakelig handler som ledd i næringsvirksomhet. «Som den er»-forbehold kan imidlertid fremdeles tas utenfor forbrukerkjøp. Hvorvidt eiendommen selges til en forbrukerkjøper eller ikke, kan derfor ha betydning for fordelingen av risiko mellom partene: hvis kjøperen er forbruker, bærer selger ansvaret dersom eiendommen ikke samsvarer med de krav til kvalitet, utrustning og annet som følger av avtalen, jf. avhendingsloven § 3-1. Hvis kjøperen er profesjonell, bærer imidlertid selger ansvaret for slike avvik bare i den grad eiendommen er i vesentlig ringere stand enn kjøperen hadde grunn til å regne med ut fra kjøpesummen og forholdene ellers.
Budgivers opplysning om han er forbruker eller ikke, skal gis i forbindelse med formidling av budet, for eksempel ved at det i budskjemaet krysses av for om man er forbrukerkjøper eller ikke. Budgiver må informere megler om han opptrer som forbruker eller ikke-forbruker ved budgivning for at andre parter involvert i budrunden kan ta stilling til forhold av faktisk og rettslig art som er viktige i forbindelse med avtalen. Megler har begrenset mulighet til å kontrollere budgivers egenopplysning om vedkommende er næringsdrivende eller ikke, og budgiverens skriftlige opplysning om han er forbrukerkjøper eller ikke, må legges til grunn.
Ved salg av en kontraktsposisjon er det merverdien, (kjøper 1s gevinst) budgiver skal legge inn bud på. Konferer megler før bud legges inn.
Avtalen mellom kjøper 1 (videreselgeren av kontrakten) og kjøper 2 (ny kjøper), blir regulert av avhendingsloven, kjøpsloven og forbrukerkjøpsloven.
Interessenter må sette seg inn i salgsoppgaven utarbeidet i forbindelse med salg av kontraktsposisjonen, samt kjøpekontrakten med tilhørende dokumenter signert av kjøper 1 og selger (utbygger), før bud inngis.
Det forutsettes at hjemmel overføres til kjøper. Hvis kjøper ikke ønsker hjemmelsoverføring av eiendommen, må det tas forbehold om dette i budet.
Ingen kan direkte eller indirekte erverve mer en to boligseksjoner i et boligsameie jf. eierseksjonsloven § 23. Dersom et erverv har funnet sted i strid med eierseksjonslovens regler kan Kartverket nekte overskjøting. Dersom overskjøting blir nektet, er kjøper likevel forpliktet til å gjennomføre handelen med selger, og oppgjør til selger vil finne sted tross manglende overskjøting.
Dette gjelder salg av en kontraktposisjon for en konkret bolig under oppføring. Ny kjøper (kjøper 2) overtar selgers (førstegangskjøpers) rettigheter og forpliktelser iht. opprinnelig kontrakt. Ved kjøp av kontraktposisjon må hovedkontrakten overtas med alle rettigheter og plikter, herunder betalingsvilkår og de lovpålagte garantier. Opprinnelig kontrakt regulerer alle forhold knyttet til leveransen av boligen. Det forutsettes at kjøper grundig har gjennomgått den opprinnelige kjøpekontrakten med tilhørende vedlegg, før bud inngis.
Handelen reguleres av kjøpekontrakt som inngås etter at kjøpstilbud på kontraktposisjonen er akseptert. Det tas forbehold om at utbygger aksepterer transport av opprinnelig kontrakt. Stilt garanti(er) følger boligen, og garanti(er) kan bare gjøres gjeldende av ny kjøper. Eventuelle forbehold som kjøper har tatt skal være avklart.
Ved signering av transportkontrakt skal kjøper av kontraktsposisjonen (kjøper 2) innbetale kjøper 1 sin allerede innbetalte 10%, merverdien (kjøper 1 sin gevinst), samt transportgebyret til utbygger. Kjøper 1 vil få tilbakebetalt sin 10% med fratrekk for meglerkostnadene ved salg. Kjøper 1 sin gevinst ved videresalget (merverdien) vil bero på meglers klientkonto frem til kjøper 2 har overtatt leiligheten og fått rettsvern for sitt erverv. Opptjente renter på merverdien tilfaller kjøper 1 (selger av kontrakten).
Dersom kjøper 2 er forbruker, faller pliktene hans til å betale merverdien bort dersom entreprenøren ikke ferdigstiller boligen, jf. Avhendingsloven §1-1 fjerde ledd. Kjøper 1 har likevel ikke noe ansvar for mangelfull eller forsinket levering fra selgers side, og kjøper 2 plikter å betale hele merverdien i disse tilfellene. Dette gjelder selv om mangelen er vesentlig og gir kjøper 2 rett til å heve kontrakten med selger.
Skulle noe virke uklart, kontakt megler.
Fristen for salg av kontrakt er senest innen én måned før varslet overtagelse, ref. kjøpekontrakt med Utbygger.
Garanti som Selger (utbygger) har stilt i medhold av buofl. § 12 og eventuelt § 47 kan gjøres gjeldende av Kjøper 2 som Kjøper 1 sin rettsetterfølger (jf. buofl. § 12, 6. ledd).
Garantien etter buofl. § 12, som minst lyder på 3% av vederlaget i perioden før overtagelse og 5 % i perioden frem til 5 år etter overtagelsen, er beregnet av opprinnelig kjøpesum mellom Selger og Kjøper 1 i henhold til kjøpekontrakt.
Eiendomsmeglere er underlagt Lov om hvitvasking. I henhold til Lov av 01.06.18 nr. 23 om tiltak mot hvitvasking og terrorfinansiering (Hvitvaskingsloven), er megler pliktig til å gjennomføre identitetskontroll av alle involverte parter, herunder fullmektiger. Dette innebærer bl.a. å bekrefte kunders og reelle rettighetshaveres identitet på bakgrunn av fremvist gyldig legitimasjon eller på annen godkjent måte, samt å innhente opplysninger om kundeforholdets formål og tilsiktede art. Dersom slike kundetiltak ikke kan gjennomføres, kan megler ikke etablere kundeforholdet eller utføre transaksjonen. Hvitvaskingsloven pålegger også eiendomsmegler å innhente redegjørelse av midlenes opprinnelse. Dette besvares av samtlige kjøpere herunder parter som opptrer på vegne av kjøper, ved en såkalt kundekontroll.
Hvis kjøper ikke bidrar til gjennomføring av kundekontrollen og dette fører til at transaksjonen blir forsinket eller ikke kan gjennomføres, vil dette ansees som mislighold av avtalen og gi selger rettigheter etter avhendingslova eller bustadoppføringsloven kapittel 5. I tilfeller der selger ikke bidrar til gjennomføring av løpende kundekontroll underveis i oppdraget, er det selger som misligholder sine forpliktelser etter avtalen og gi kjøper rettigheter etter avhendingslovens eller bustadoppføringsloven kapittel 4. Partene er selv ansvarlige for eventuelle kostnader og ansvar dette kan medføre. Eiendomsmegleren eller eiendomsmeglingsforetaket kan ikke holdes ansvarlig for de konsekvenser dette vil kunne få for partene eller andre som har interesser i eiendomshandelen.
Ved eventuelt tilbakehold av informasjon eller mistenkelige transaksjoner, plikter eiendomsmegleren å melde fra til Økokrim. Med «mistenkelig transaksjon» menes transaksjon som mistenkes å involvere utbytte fra straffbar handling, eller som skjer som ledd i terrorfinansiering. Manglende mulighet for kundekontroll kan også være et forhold som gjør transaksjonen mistenkelig.
Det anbefales at kjøper innbetaler kjøpesummen som ikke kommer fra låneinstitusjon, i en samlet innbetaling fra egen konto i norsk bank.
Selger forbeholder seg også retten til å kreve dokumentasjon av kjøpers finansiering.
Det kan ikke gjøres ansvar gjeldende mot meglerforetaket som følge av at meglerforetaket overholder sine plikter etter Hvitvaskingsloven.
I henhold til personopplysningsloven gjør vi oppmerksom på at interessenter kan bli registrert for videre oppfølging.
Åke Joakim Randklev Abrahamsson
Anne Kristin Randklev Abrahamsson
Meglers vederlag betales av selger og er avtalt til:
Fastpris: kr. 55 000
Tilretteleggingsgebyr: kr. 9 900
Markedsføringspakke: kr. 17 990
Oppgjørshonorar: kr. 6 950
Oppslag eiendomsregister: kr. 762,50
Megler har i tillegg krav på dekning av utlegg. Alle summer er inkl. mva.
Oppdragsnummer: 3-0118/25
Martin Killi Arnesen
Sist oppdatert: 27.04.2026