Eiendommen
Knr. 301 Gnr. 88 Bnr. 274
Komplett Salgsoppgave
Hans Møller Gasmanns vei 3D, 0598 OSLO
Meld din interesse så tar vi kontakt med deg og holder deg orientert om boligen!
Salg av kontraktsposisjon: Leiligheten er under oppføring og det er ikke tilgang på selve leiligheten/byggeplass. Det er mulig å gjennomføre en digital visning på Teams for en gjennomgang av spørsmål/fly i simulator (utsikt/solforhold). Konferer med megler for ytterligere informasjon og en hyggelig prat.
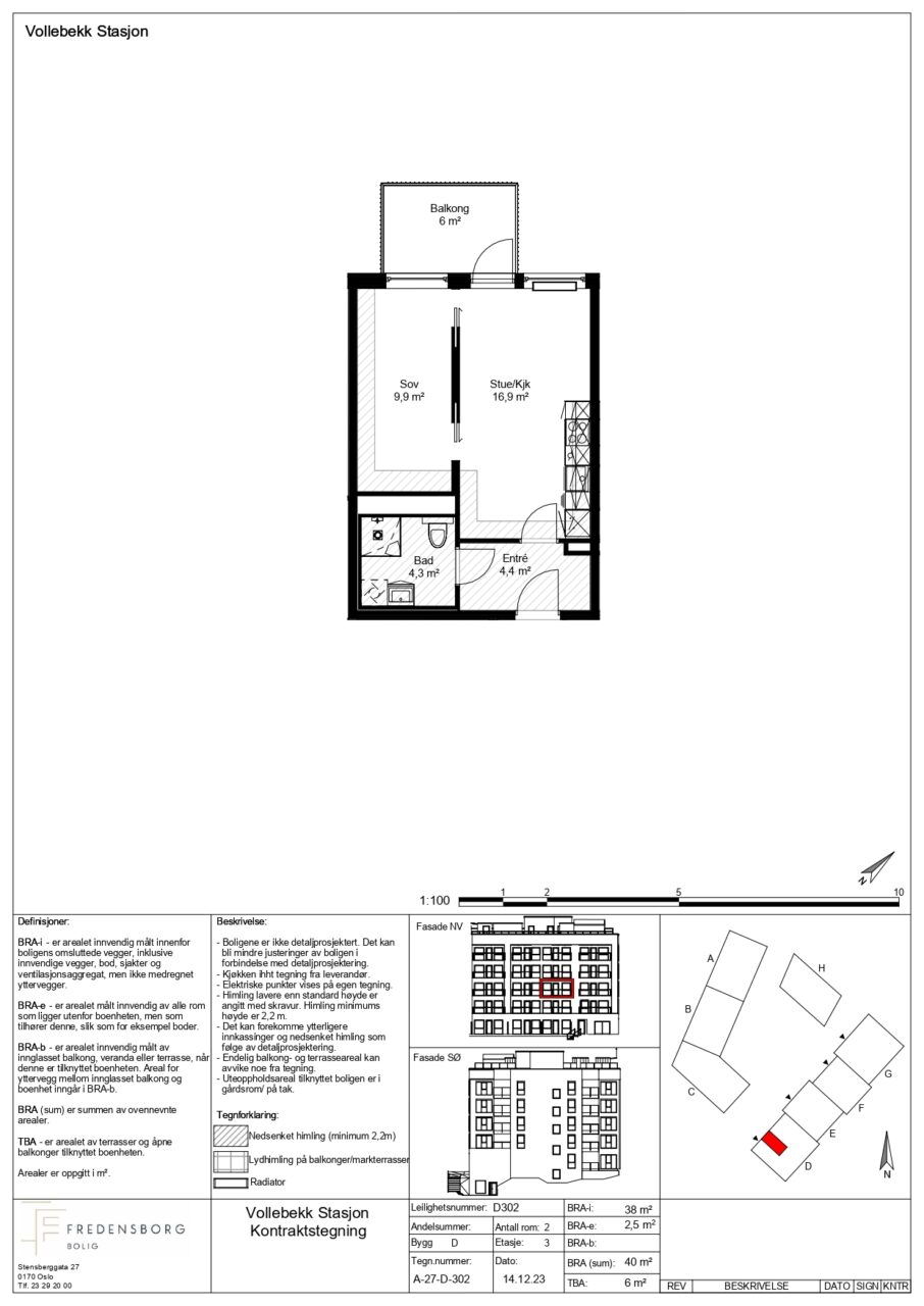
Dette er et salg av kontraktsposisjon vedrørende leilighet D-302 i prosjektet Vollebekk Stasjon. En lekker 2-roms som ligger i byggets 3. etasje. Leiligheten har nordvestvendt balkong på ca. 6 m². Prosjektet har høy bokvalitet med mye lys og store uterom. Beliggenhet mellom sentrum og marka, og Vollebekk har det beste fra begge verdener. Her har du plass til å leve livet slik du ønsker.
– Estimert innflytting Q4 2026-Q1 2027
– Lekker 2-roms andelsleilighet beliggende i 3. etasje
– Nordvestvendt balkong på ca. 6 m²
– Lav dokumentavgift
– 5 års reklamasjonsrett
– Stilrent kjøkken fra Sigdal med integrerte hvitevarer fra Bosch
– Påkostet 1-stavs eikeparkett
– Heis
– Energivennlig og godt isolert
– Balansert ventilasjon
– Kjellerbod
– Felles takterrasse
– Sentral beliggenhet
– Nærhet til t-bane

Knr. 301 Gnr. 88 Bnr. 274
Total BRA: 40,5 m²
BRA-i (innvendig i leilighet): 38 m²
BRA-e (kjellerbod): 2,5 m²
TBA (balkong): 6 m²
Bod:
Det følger med én bod til hver leilighet enten i leiligheten eller i bodanlegget i garasjekjeller. Størrelsen på boden vil avhenge av størrelsen på leiligheten, og om det er bod i leiligheten eller ikke. Areal på bod vil være 2,5 m².
Gulv i gang- og bodarealer leveres som malt betong, epoxy eller tilsvarende. Vegger og himlinger støvbindes i hvitt. Bodvegger leveres med tette vegger i gips eller metall mot fellesareal. Innvendige skillevegger mellom boder kan leveres som nettingvegger. Vegger leveres av branntekniske årsaker ikke i full høyde til himling. Dør leveres med hengelås. Det kan forekomme tekniske installasjoner i boder (ventilasjonsrør eller lignende). Bod i garasjeanlegget egner seg kun for oppbevaring av gjenstander som tåler temperatur- og fuktsvingninger.
Adkomst:
Adkomst via heis eller trapper. Det er heis fra inngangsparti og opp til alle leilighetsplan.
Arealbeskrivelse:
De oppgitte arealer er hentet fra opprinnelige plantegninger fra utbygger. De oppgitte arealene er å betrakte som omtrentlig areal og mindre arealavvik utgjør ingen mangel. Arealet er beregnet ut fra Norsk standard NS 3940:2023. BRA-i: Internt arealet innenfor boligens omsluttende vegger, inkludert sjakt. BRA-e: Eksternt areal som boligen har eksklusiv bruksrett til, men som ikke ligger i boligen, f.eks. kjellerbod. BRA-b: Areal for innglasset balkong med veggareal. Total BRA = Summen av BRA-i, BRA-e og BRA-b. TBA er areal på terrasse og balkong. Arealet oppgis ved salg, men inngår ikke i BRA. Oppgitt romareal er netto romareal. De oppgitte arealer er å betrakte som cirka-arealer. Partene har ingen krav mot hverandre dersom arealet skulle vise seg å være 5 % mindre/større enn det oppgitte areal.
Det medfølger ikke parkeringsplass til denne leiligheten.
Bildeling er tidsriktig, smart og økonomisk. Derfor introduserer vi bildelingstjeneste på Vollebekk Stasjon. Delebilene lokaliseres lett tilgjengelig i parkeringskjeller. Reservasjon og bruk av delebilene er enkelt og nøkkelfritt i egen app. Med bildeling har man frihet til å velge bil, når man vil. Delebilene på Vollebekk er bra for lommeboka.
Vollebekk t-bane ligger kun en liten spasertur unna leiligheten.
Leilighetene oppvarmes med termostatstyrte radiatorer via fjernvarme, med individuell forbruksmåler plassert i fordelerskap i hver leilighet.
Det leveres panelovn på soverom.
Planlagt plassering av radiatorer er vist på illustrasjonene og plantegningene, endelig plassering besluttes under detaljprosjekteringen.
Badene blir levert med vannbåren gulvvarme.
Det leveres egen vannmåler for varmt tappevann til hver leilighet. Målerne er trådløse tilrettelagt for fjernavlesning.
Balansert ventilasjon:
Balansert ventilasjon med varmegjenvinning. Det leveres et separat ventilasjonsaggregat plassert i hver leilighet.
Aggregatene plasseres enten i tak eller i gang med nisjeløsning og dør.
Energimerkeforskriften krever at selger innhenter energiattest for nye bygg ved ferdigstillelse, denne viser bygningens energistandard. Det vil ikke innhentes energiattest per leilighet. Dersom det innhentes energiattest for enkeltleiligheter, kan denne variere fra byggets energiattest. Dette skyldes primært leilighetenes plassering i bygget. Midtleiligheter har ofte lavere varmetap enn ende- og toppleiligheter, som har flere kvadratmeter vegg og/eller tak mot friluft. De fleste byggene til Fredensborg Bolig vil oppnå energimerke A eller B, og i enkelte tilfeller energimerke C.
Leilighetene bygges etter TEK 17.
Alle bærekonstruksjoner er av tre, betong og stål. Fasadene mot Østre Aker vei og Hans Møller Gasmanns vei består av tegl.
Fasade mot gårdsrom består hovedsakelig av stående trepanel, foruten om nederste etasje som består av tegl. Tegl og trepanel leveres etter arkitektens material- og fargevalg. Aluminiumsbelagte trevinduer/- dører i tilsvarende farge som tegl. Øvrige beslag etter arkitektens material- og fargevalg. Sedumdekke over deler av tak.
Innvendig takhøyde er cirka 250 cm netto. Der det forekommer nedforet gipshimling, eventuell innkassing av tekniske føringer, i hele eller deler av rommet, kan takhøyden være minimum 220 cm. I første etasje vil netto takhøyde være ca. 300 cm på soverom, stue og kjøkken. Der det forekommer nedforet gipshimling, eventuelt innkassing av tekniske føringer, i hele eller deler av rommet kan takhøyden være minimum 220 cm.
Bærekraftige materialvalg:
Materialvalgene på Vollebekk Stasjon foretas med omtanke for å redusere prosjektets miljøpåvirkning. Vi benytter varige materialer, som teglstein på fasader, for å redusere behovet for vedlikehold og utskiftinger gjennom byggets levetid. Det er strenge krav til innkjøp og valg av materialer med hensyn til forurensing, miljøgifter og utslipp. Vollebekk stasjon får også et godt innslag av trevirke på fasadene mot gårdsrommet, på takterrasser og på uteområder. Trebaserte produkter har lavere klimapåvirkning og det dokumenteres at alt trevirke som benyttes kommer fra lovlig hogst og bærekraftige kilder.
Det foreligger ikke ferdigattest eller midlertidig brukstillatelse på eiendommen, da bygget ikke er ferdigstilt på salgstidspunktet.
Det er utbyggers plikt å fremskaffe ferdigattest på eiendommen. Det gjøres oppmerksom på at midlertidig brukstillatelse eller ferdigattest må foreligge før kjøper kan ta i bruk eiendommen. Kjøper er gjort kjent med at det kan ta lang tid i etterkant av ferdigstillelse av et bygg, før ferdigattest foreligger. Kjøper kan ikke nekte overtagelse ved manglende ferdigattest, dersom midlertidig brukstillatelse foreligger.
Utleie reguleres av borettslagsloven §§ 5-3 til 5-10. Utbygger ønsker å praktisere en liberal utleiepraksis i den perioden Utbygger er representert i styret i Borettslaget. Styret vil derfor i denne perioden også kunne gi samtykke til å leie ut leiligheten i inntil 3 år fra overtakelse, selv om vilkårene for utleie i §§ 5-4 til 5-6 ikke er oppfylt, jf. § 5-3. Eventuell søknad om utleie må sendes styret v/ forretningsfører oef@obos.no senest to uker før overtakelse (med eller uten signert leiekontrakt). Det er opp til styret om utleien godkjennes. For å kunne godkjenne utleie, forutsettes det at leieavtale er signert. Dersom leiekontrakt ikke er signert på søknadstidspunktet må leiekontrakt med kontaktinformasjon til leietaker ettersendes forretningsfører som underlag for godkjenning og registrering straks avtale er inngått og senest innen fire uker etter overtakelse, som er tidspunktet for når Utbygger normalt vil tre ut av styret. Er ikke navn og kontaktinfo på leietaker oversendt innen fire uker etter overtakelse, vil utleie ikke bli godkjent. Utleie uten styrets godkjenning vil være mislighold av andelseiers forpliktelser overfor borettslaget.
På eiendommen er det tinglyst følgende heftelser og rettigheter som følger eiendommens matrikkel ved overskjøting til ny hjemmelshaver:
301/88/274:
25.06.2024 – Dokumentnr: 1611186 – Festekontrakt – vilkår
Gjelder feste
Årlig festeavgift: NOK 1 000
Gjelder fra dato: 25/06-2024
Tomteverdi: NOK 200 000 000
06.09.2024 – Dokumentnr: 1915170 – Bestemmelse om jordkabel/jordkabelanlegg
Gjelder feste
Rettighetshaver: Elvia AS
Org.nr: 980 489 698
Adkomstrett for drift og vedlikehold av anlegg/ledninger/kabler
Bestemmelse om bebyggelse i nærheten av anlegg/ledninger/kabler
14.03.2025 – Dokumentnr: 296519 – Registerenheten kan ikke disponeres over uten samtykke fra rettighetshaver
Gjelder feste
Rettighetshaver: Sem & Johnsen Eiendomsmegling AS
Org.nr: 998 387 361
12.09.2025 – Dokumentnr: 1083443 – Bestemmelse om nettstasjon
Gjelder feste
Rettighetshaver: Elvia AS
Org.nr: 980 489 698
Rett til å etablere og ha stetsevarig en frittstående nettstasjon på eiendommen, sam rett itl å foreta fremtidig vedlikehold, fornying og om bygging mv.
Adkomstrett for drift og vedlikehold av anlegg/ledninger/kabler
Bestemmelse om bebyggelse i nærheten av anlegg/ledninger/kabler
20.11.2025 – Dokumentnr: 1424965 – Registerenheten kan ikke disponeres over uten samtykke fra rettighetshaver
Gjelder feste
Rettighetshaver: Røisland & Co Eiendomsmegling AS
Org.nr: 994 194 410
21.02.1966 – Dokumentnr: 2583 – Bestemmelse om bebyggelse
Bestemmelse om gjerde
Bestemmelse om kloakkledning
Bestemmelse om veg
07.12.1966 – Dokumentnr: 17942 – Erklæring/avtale
Vedtak av Oslo kommunes vann- og kloakkreglement
Kan ikke slettes uten samtykke fra kommunen
06.09.1988 – Dokumentnr: 59611 – Erklæring/avtale
Bestemmelse om trafostasjon/kiosk
Med flere bestemmelser
———-
Diverse påtegning
Punkt 1 og 2 i erklæringen frafalles
15.02.2023 – Dokumentnr: 168307 – Bestemmelse om adkomstrett
Kan ikke slettes uten samtykke fra: Oslo Kommune
Org.nr: 958 935 420
Rettighetshaver allmennheten
15.02.2023 – Dokumentnr: 168326 – Erklæring/avtale
Kan ikke slettes uten samtykke fra: Oslo Kommune
Org.nr: 958 935 420
Bestemmelse om rett til bruk av fortau
Rettighetshaver allmennheten
25.06.2024 – Dokumentnr: 1611186 – Festekontrakt – vilkår
Årlig festeavgift: NOK 1 000
Gjelder fra dato: 25/06-2024
Tomteverdi: NOK 200 000 000
20.11.2025 – Dokumentnr: 1424965 – Registerenheten kan ikke disponeres over uten samtykke fra rettighetshaver
Rettighetshaver: Røisland & Co Eiendomsmegling AS
Org.nr: 994 194 410
10.01.1962 – Dokumentnr: 377 – Registrering av grunn
Denne matrikkelenhet opprettet fra:
Knr:0301 Gnr:88 Bnr:247
Vollebekk er et område i sterk vekst. Plassert mellom sentrum og marka har Vollebekk det beste fra begge verdener. Når du er hjemme her, er du i nærheten av alt. Barnehager, skole og kulturhus, idrettsfasiliteter og T-bane, er alt i gangavstand fra Vollebekk Stasjon. Her finner du kombinasjonen av det grønne og moderne, midt i et område som vokser og blir stadig mer sentralt.
I området finner du flere barnehager og skoler i umiddelbar nærhet. Kortere avstander betyr mindre tid brukt på transport, noe som gir mer tid sammen med barna og mindre stress i morgenrushet. I tillegg gir nærliggende barnehager og skoler en følelse av fellesskap, der barn og foreldre enkelt kan delta i aktiviteter.
Linderud Gård er en historisk perle som ligger vakkert til i Oslo. Gården, som har røtter tilbake til middelalderen, er kjent for sin vakre arkitektur, velstelte hager og sin rolle som et kulturelt og historisk senter. Gården er omgitt av frodige grøntområder og tilbyr en rolig oase midt i byen.
Vollebekk er en flott arena for utendørsaktiviteter for barn. Her finner man lekeplasser hvor barn kan svinge, klatre og utforske i trygge omgivelser. Parker i nærheten er perfekt for piknik og familieutflukter. For de som er nysgjerrige på naturen, er det grønne områder hvor barn kan oppdage planter og dyreliv.
På uteområdene til Vollebekk Stasjon skal det være godt å oppholde seg. Byggene omkranser et romslig gårdsrom med flere sosiale soner, opparbeidet med robuste utemøbler og egen grillplass. Det tilrettelegges også for lek og aktiviteter for store og små.
Uteområdene beplantes med stauder, busker og nyttetrær. I plantevalg prioriteres stedegne planter. I fremkant av byggene etableres et torg og møteplass med amfitrapp og grønn beplantning. Her plasseres også et belyst signaturtre, en visuell kvalitet som ønsker besøkende og beboere velkommen.
På sørsiden av utearealet vil det bli opparbeidet en amfitrapp fra Hans Møller Gasmanns vei som leder opp til en felles møteplass. En foreløpig utomhusplan for Vollebekk Stasjon er inntatt i prospektet (se vedlagt).
Det leveres utvendig belysning med lyssensor/ tidsur på fellesarealer i form av pullerter og lampe ved inngangspartiene. Det leveres et begrenset antall frostsikre utekraner på fellesarealet.
Vann og avløp er offentlig tilknyttet. Det tas forbehold om etablering av pumpekum. Pumpekummer m.m. er i så fall inkludert i Utbyggers kontraktsleveranse. Avtale om service og vedlikehold for Borettslagene må i så fall påregnes. Eventuelt privat vann- og avløpsnett mellom det offentlige tilknytningspunkte og frem til bygningskroppen skal driftes og vedlikeholdes i fellesskap av de andelseiere som er tilknyttet dette.
Eiendommen er regulert til boligbebyggelse i henhold til reguleringsplan datert november 2025.
Det planlegges to gangveier over Eiendommen, med fri ferdsel for allmennheten. Rettigheten ligger tinglyst som heftelse på eiendommen. En av gangveiene går langs sørsiden av Eiendommen via trapper og trasé fra Hans Møller Gasmanns vei og ned til bussholdeplassen ved Østre Aker vei. Den andre traséen er en gangvei som skal opparbeides parallelt med Hans Møller
Gasmanns vei.
Det gjøres oppmerksom på at det foreligger en ikke tinglyst samtykkeerklæring for naboeiendommen gnr/bnr 88/273, adresse Hans Møller Gasmanns vei 1. Bebyggelsen på eiendommen er plassert nærmere enn fire meter fra eiendomsgrensen, og ligger inntil Vollebekk stasjons eiendomsgrense, se vedlagt kartutsnitt.
Det følger restriksjoner i reguleringsbestemmelsene rundt bruk av grønn kolle i nord, ta kontakt med megler for nærmere informasjon.
Utsnitt av plan med tilhørende bestemmelser kan fås ved henvendelse til megler.
Utbyggingsavtale:
Etablering av utbyggingsavtale med Oslo kommune er inngått. Denne skal sikre at utbyggingen skjer i henhold til kommunens intensjoner og en helhetlig utvikling av området. I henhold til Oslo kommunes rekkefølgebestemmelser skal bl.a. krysset mellom Hans Møller Gasmanns vei og Lunden oppgraderes. Fortau langs Hans Møller Gasmanns vei skal utvides og ny bussholdeplass skal opparbeides langs Østre Aker vei, med direkte adkomst til Vollebekk Stasjon, via gangvei med trapp fra bussholdeplassen.
Drifts- og vedlikeholdskostnadene vil avhenge av hvilke tjenester Sameiet/Borettslagene ønsker utført. Stipulerte felleskostnade for hver enkelt leilighet fremkommer av finansieringsplanen.
Månedlige drifts- og vedlikeholdskostnader det første driftsåret varierer noe for de ulike Borettslagene avhengig av antall andeler som inngår i det enkelte borettslag.
Felleskostnadene er stipulert til ca. kr. 49 til kr. 60 per m² BRA per måned, hvor blant annet kommunale avgifter, renovasjon, forsikring på byggene, vedlikehold og drift av Borettslagenes fellesarealer, mulig kostnad for gangforbindelse omtalt i reguleringsplanens §13, vaktmester, forretningsførsel, snømåking, styrehonorar, felles bildelingstjeneste, andel av drifts- og vedlikeholdskostnader for realsameiene, renhold og strøm på fellesarealer er inkludert. Kostnadene fordeles etter areal (BRA).
Fordelt:
1 – Felleskostnader 53 kr pr kvm pr mnd
2 – Kapitalkostnader Se finansieringsplan
3 – Digital-Tv/bredbånd 349 kr pr leil pr mnd (Avtale ikke kjent)
4 – Fjernvarme (oppvarming/varmt tappevann) 12 kr pr kvm pr mnd Individuell avregning
Stipulert for denne leiligheten ifølge prisliste:
Driftskostnad per måned eksklusiv energikost – fordelt areal: kr. 2 014
TV/bredbånd per måned: kr. 349
Kapitalkostnader avdragsfri periode år 1-10: kr. 10 147
Stipulerte felleskostnader (eksl. energikostnad) per måned (avdragsfri periode) år 1-10: kr. 12 510
Kapitalkostnader etter avdragsfri periode (fra år 11): kr. 13 200
Stipulerte felleskostnader (eksl. energikostnad) etter avdragsfri periode (fra år 11): kr. 15 214
Energikostnader:
Kostnader til oppvarming og varmt tappevann måles individuelt for hver leilighet. À konto innbetaling til Borettslagene med ca. kr. 12-15 per kvm BRA per måned kommer som tillegg til felleskostnadene, med individuell avregning etter forbruk. Fjernavlesning av målere gjennomføres av Techem, Ista eller tilsvarende leverandør.
Defigo/nøkkelsystem:
Det digitale portssystemet (Defigo) og det nøkkelfrie systemet (Salto) til leilighetsdører gir hver leilighet en månedskostnad på ca. kr. 125 som kommer i tillegg til de ordinære felleskostnadene.
Det tas forbehold om endringer i stipulerte kostnader, da dette er basert på erfaringstall. Det understrekes at flere faktorer påvirker størrelsen på felleskostnaden, bl.a. endringer i lønns-, pris- og avgiftsnivå på de faste tjenester og produkter som Borettslagene enten må ha, eller selv velger å inngå avtaler med. De faktiske kostnadene kan derfor avvike fra anslagene angitt over.
Utbygger garanterer for betaling av fellesutgifter for alle usolgte leiligheter og parkeringsplasser helt frem til alle er solgt og overtatt av ny eier.
Forretningsfører vil innkalle andelseierne i Borettslagene til ekstraordinær generalforsamling med blant annet valg av nytt styre før leilighetene er ferdigstilt/overtatt. Kostnader knyttet til konstituerende møte belastes Borettslagene.
Utbygger forbeholder seg retten til før overlevering å inngå nødvendige driftsavtaler med bindingstid på vegne av Borettslagene, herunder avtale om levering av signaler til internett til alle boligene, vaktmestertjenester for Borettslagenes fellesarealer, drift- og vedlikehold av heis, ventilasjonsanlegg og garasjeport, avtale om bygningsforsikring, forretningsføreravtale (fakturering og inndriving av felleskostnader, bistand med årsregnskap, likningsrapportering mv), driftsavtale for avfallsanlegg, samt andre nødvendige driftsog serviceavtaler for felles installasjoner. Ovennevnte dekkes gjennom drifts- og vedlikeholdskostnadene. I forbindelse med innflytting vil Utbygger sørge for tilstrekkelig med avfallscontainere. Kostnader forbundet med dette vil bli belastet Borettslagene.
I Oslo kommune er det eiendomsskatt på boliger og fast eiendom som overstiger en fastsatt verdi. Informasjonen over er hentet fra eiendomsskattelistene. For mer informasjon rundt beregningsgrunnlaget for eiendommen, se http://www.oslo.kommune.no/skatt-og-naring/skatt-og-avgift/eiendomsskatt/eiendomsskatt. Informasjon om eiendomsskatt er innhentet fra eiendomsskattelistene til Oslo kommune.
Formuesverdi er foreløpig ikke fastsatt. Formuesverdien fastsettes av Skatteetaten etter en beregningsmodell som tar hensyn til om leiligheten er en såkalt «primærbolig» (der boligeieren er folkeregistrert bosatt) eller «sekundærbolig» (alle andre boliger man måtte eie). Interessenter oppfordres til å sjekke: www.skatteetaten.no eller kontakte megler for nærmere informasjon om fastsettelse av formuesverdi. Det tas forbehold om at regelendringer kan medføre endret formuesverdi for leilighetene.
I tillegg til kjøpesummen må kjøper betale:
1. Tinglysingsgebyr for hjemmelsdokument: Kr. 545
2. Gebyr for tinglysning av pant/heftelse: Kr. 545
3. Etableringsgebyr Borettslag: Kr. 12 500
4. Andelskapital: Kr. 5 000
5: Dokumentavgift til staten (2,5% av andel tomteverdi): Kr. 17 670
6: Transportgebyr til utbygger: Kr. 55 000
Totale omkostninger: Kr. 91 260
Prisantydning inkl. omkostninger: Kr. 2 451 260
I tillegg til beløpene som skal innbetales iht. oppgjørsbestemmelsene ovenfor, overtar Kjøper en andel fellesgjeld på kr. 2 490 000. Fellesgjelden er finansiert ved lån i OBOS- banken AS. Dette lånet har en løpetid på 40 år, (regnet fra hele lånet ble utbetalt til Borettslagene), hvorav de første 10 årene er avdragsfrie. Nedbetalingstiden er på 30 år. Lånet er et annuitetslån, og det er avtalt flytende rente på p.t 4,89 %. Avdragsfrihet, løpetid og rente kan endre seg frem til inngåelse av endelig avtale med banken, samt i hele lånets løpetid. Slike endringer vil påvirke størrelsen på kapitalkostnadene og dermed felleskostnadene for andelseierne.
Prisantydning inkludert andel fellesgjeld: Kr. 4 850 000
Totalpris inkl. andel fellesgjeld og omkostninger: Kr. 4 941 260
Øvrig:
Dokumentavgift påløper i forbindelse med overskjøting av tomt til Borettslagene. Ved overskjøting beregnes det dokumentavgift med 2,5 % av tomtens salgsverdi og ikke markedsverdi av leiligheten. Dokumentavgiften for andel tomteverdi er beregnet til kr. 465 per kvm BRA-i. Omkostninger inklusive dokumentavgift for den enkelte leilighet fremkommer av finansieringsplanen.
I tillegg kommer eventuelt gebyr for tinglysing av borett med kr. 545.
Etableringsgebyr vil blant annet dekke stiftelse av Borettslagene, gebyrer til registrering av Borettslagene, stiftelse av Sameiet og administrasjonskostnader til forretningsfører.
Det gjøres oppmerksom på at forretningsfører vil på vegne av Borettslaget kreve inn oppstartskapital tilsvarende to måneders felleskostnader.
Utbygger/Arkitekt/Entreprenør:
Utbygger/opprinnelig selger av prosjekter er Vollebekk Stasjon Utbyggingsselskap AS, org.nr. 929 424 689, et heleid datterselskap av Fredensborg Bolig AS.
Hjemmelshaver til eiendomsrett er Vollebekk Stasjon Borettslag, org.nr.: 934 028 775. Hjemmelshaver til festerett er Vollebekk Stasjon Utbyggingsselskap. Fredensborg Bolig AS, org. 919 998 296, skal lede prosjektgjennomføringen.
Det er Sweco Architects som har tegnet Vollebekk Stasjon.
Veidekke Entreprenør, org. nr. 984 024 290, er valgt som entreprenør for prosjektet.
Om prosjektet:
Vollebekk Stasjon består av 149 leiligheter fordelt på tre bygg med totalt åtte oppganger, A til H. Vollebekk Stasjon tilbyr leiligheter fra 2- til 5-roms med BRA fra 37 m² til 104,5 m². Byggenes etasjehøyde får en naturlig nedtrapping som følger terrenget, fra 6 etasjer i nord til 3 etasjer mot sør. Alle leilighetene får private uteplasser i form av markterrasser, balkonger eller takterrasser. Felles underjordisk bod- og parkeringsanlegg og inn- og utvendige fellesarealer.
Byggene skal oppføres på gnr. 88 og bnr. 274 i Oslo kommune (“Eiendommen”). Samlet tomteareal er cirka 9 388 m².
Leilighetene er planlagt etablert som to selvstendige borettslag (“Borettslagene”).
Borettslaget Vollebekk Stasjon 1 (oppgang A – C, D, 1. og 6. etasje i oppgang E, 1. etasje i oppgang F, oppgang G og oppgang H) er planlagt etablert med 125 andeler.
Borettslaget Vollebekk Stasjon 2 (2. – 5. etasje i oppgang E og 2. til 5. etasje i oppgang F) er planlagt etablert med 24 andeler.
Antall andeler i Borettslagene kan bli justert i forbindelse med utbyggingen, herunder som følge av sammenslåing av leiligheter eller omprosjektering av byggene. Borettslagene vil bli etablert og organisert iht. lov om burettslag av 6. juni 2003 nr. 39 («borettslagsloven»).
Felles sykkelparkering:
Det er planlagt sykkelparkering og lastesykkelparkering i garasjeanlegget og på utvendig fellesareal. Det er avsatt et eget areal i kjeller til sykkelvask, enkle sykkelreparasjoner eller tilsvarende.
Felles takterrasser:
Beboerne får glede av to felles takterrasser med blant annet sittegrupper, utekjøkken og pergola. Det blir også opparbeidet plantekasser med mulighet for dyrking av grønnsaker og andre nyttevekster.
I tillegg planlegges deler av takflatene på Vollebekk Stasjon med blomstrende sedumtak som består av plantearten bergknapp, gjerne i flere varianter.
Bergknapp er en hardfør plante som tåler vinterkulde godt og holder seg delvis vintergrønn. Grønne sedumtak er effektive til å absorbere nedbør og bidrar til håndtering av overvann ved kraftige regnskyll. Takene gir renere luft og er naturlige habitat for pollinatorer, sommerfugler og insekter. Planteveksten tåler sterk solvarme og på sommerstid bidrar sedumtak til å holde temperaturen nede i de underliggende rommene.
Fellesrom:
Vollebekk Stasjon får et større fellesrom som kan lånes ut til beboere og være et sosialt knutepunkt hvor naboer kan møtes, bli kjent og bygge fellesskap. I første etasje i bygg D skal det bygges et fellesrom til beboerne på ca. 80 m². Rommet leveres som et flerfunksjonelt rom med mulighet for soneinndeling i form av foldedør. Det leveres laminat på gulv, og malte vegger i henhold til arkitektens fargevalg. Kjøkken med hvitevarer, spisebord, stoler og en sofagruppe, samt toalett tilrettelagt for handikappede. I underetasjen i bygg D skal det etableres et aktivitetsrom på ca. 40 m². Arealet består av to oppholdsrom og et tilknyttet toalett. Rommet er tiltenkt barn og unge på Vollebekk Stasjon hvor bl. a. bordtennisbord er en del av leveransen. Adkomst til aktivitetsrommet via trapperom i bygg D.
Renovasjon:
Det vil bli levert nedgravde avfallscontainere langs med Hans Møller Gasmanns vei som vist på utomhusplan.
Øvrig:
Alle opplysninger om leilighetene og prosjektet for øvrig er derfor gitt med forbehold om rett til endringer som er hensiktsmessige og nødvendige i forbindelse med nærmere detaljering av prosjektet og leilighetene,
herunder som følge av pålegg fra myndighetene eller tiltak for å tilfredsstille aktuelle forskriftskrav. Generelt står utbygger fritt til å velge løsninger i den grad det ikke forringer standarden på prosjektet
Utbygger har videre rett til, uten at kjøperen kan kreve endring i pris, å foreta mindre endringer i oppgitte spesifikasjoner, produkter og beskrivelser som anses hensiktsmessige og/eller nødvendige, og som ikke forringer prosjektets eller leilighetenes kvalitet og funksjon i vesentlig grad.
Utbygger forbeholder seg også retten til å bestemme endelig utforming av utomhusarealer, fellesarealer og materialvalg i og på bygningene.
Det gjøres oppmerksom på at perspektiver, utomhusplan, plantegninger og bilder i dette prospektet/Utbyggers salgsoppgave er av illustrativ karakter og inneholder derfor detaljer som farger, innredninger, møblering, dør- og vindusutforming/inndeling, beplantning og arkitektoniske detaljer m.v. som ikke inngår i leveransen. Utstyr/standard som leveres fremgår av kvalitetsbeskrivelsen og romskjema i prospektet.
På de enkelte plantegningene er det vist forslag til plassering av møbler, utstyr og hvitevarer.
Det samme gjelder garderobeinnredning i entré og på soverom, vaskemaskin på bad og stiplede løsninger. Forslagene er kun av illustrativ karakter og ment som eksempler.
På plantegninger og illustrasjoner er det vist forslag til plassering av radiatorer, endelig plassering besluttes under detaljprosjekteringen. Det gjøres oppmerksom på at radiatorer kan bli plassert ved eller i nærheten av vinduer på stue og kjøkken.
Leilighetene er bygget etter TEK 17. Det gjøres oppmerksom på at forslag til møblering vist på illustrasjoner og plantegninger ikke nødvendigvis gjenspeiler krav om tilgjengelighet. Eksempel på dette kan være på et soverom, hvor tilgjengelighetskravet er ivaretatt ved møblering av en enkeltseng, men illustrasjonen/plantegningen kan likevel vise en dobbeltseng.
Den foreløpige utomhusplanen er kun ment som en illustrasjon av standard og funksjoner.
Det ferdige produkt vil kunne avvike fra illustrasjonen uten at dette gir kjøper rett til å kreve prisavslag.
Det kan forekomme målestokkavvik ved trykking av salgsmaterialet, og prospektet må derfor ikke brukes for nøyaktig måltaking. Det tas forbehold om at sjakter og føringsveier for VVS installasjoner kan bli endret.
Dersom det er motstrid mellom romskjema, kvalitetsbeskrivelse og tegninger, skal gjeldende leveranse følge forannevnte rekkefølge. For øvrig gjelder yngre bestemmelser foran eldre, spesielle bestemmelser foran generelle, og bestemmelser utarbeidet særskilt for denne avtale foran standardiserte bestemmelser.
Det tas forbehold om skrive- og trykkfeil.
Forretningsfører:
Utbygger har engasjert OBOS som forretningsfører for Borettslagene. Kostnader for dette er medtatt i budsjettet.
Organisering eierform:
Leilighetene på Vollebekk Stasjon blir organisert som frittstående borettslag. Borettslag og sameier har mange likheter, og begge er trygge valg for deg som skal kjøpe bolig.
Frittstående borettslag:
Borettslag som er stiftet av et boligbyggelag kalles ofte tilknyttede borettslag. Eiere av boliger i tilknyttede borettslag må være medlemmer i boligbyggelaget. Vollebekk Stasjon Borettslag er et frittstående borettslag. Dette innebærer blant annet at eierne ikke trenger å være medlemmer i et boligbyggelag, og det er heller ingen forkjøpsrett ved omsetning av boliger.
Frittstående borettslag kan velge å kjøpe kommersielle tjenester som boligbyggelagene tilbyr, som forretningsførsel eller kurs i styrearbeid. For Vollebekk Stasjon er OBOS engasjert som forretningsfører. OBOS er Norges største boligbyggelag. Lang erfaring og solid kompetanse gir trygghet for sikker drift av borettslaget.
Finansiering i borettslaget:
Et borettslag er et selskap som eies av de som bor der. Borettslaget blir delvis finansiert av et felleslån med sikkerhet i borettslagets eiendom, og delvis av et innskudd som betales av boligkjøperen. Innskuddet pluss boligens andel av fellesgjelden utgjør totalprisen for boligen. Når du kjøper en borettslagsbolig, er den knyttet til en andel i borettslaget. Alle beboerne er andelseiere og har bruksrett til egen bolig og borettslagets fellesarealer. I et borettslag er det laget selv som eier bygningene og eiendommen. Borettslaget kan ta opp et felles lån med pant i fellesarealene for å finansiere utgifter til vedlikeholdsarbeid.
Felleskostnader i borettslaget:
Som andelseier i borettslaget må du betale din del av de månedlige felleskostnadene. Disse dekker din del av kostnadene til vaktmester, ytre vedlikehold, strøm i fellesrom, offentlige avgifter og lignende. For de som velger å kjøpe med fellesgjeld, vil også renter og avdrag på fellesgjelden inngå i felleskostnadene.
Utleie av boligen:
Borettslagsloven innebærer at du blant annet kan leie ut boligen ved midlertidig behov for å flytte, for eksempel i forbindelse med jobb eller utdannelse i en annen by. Det er viktig at styret og forretningsfører er opplyst om hvem som bor i boligen din. Derfor skal styret i borettslaget godkjenne utleieperioden og leietakeren. Dersom de generelle vilkårene er oppfylt, kan styret kun avvise utleiesøknaden din ved saklig grunn, som for eksempel at leietakeren er en person som borettslaget tidligere har hatt problemer med. Selger ønsker å praktisere en liberal utleiepraksis i den perioden selger er representert i styret i Borettslaget. Styret vil derfor i denne perioden kunne gi samtykke til å leie ut leiligheten i inntil 3 år, dersom eier har skaffet en leietaker senest innen fire uker etter overtakelse. Dersom leietaker flytter før utløp av de første tre årene, må eier søke nytt styret om godkjenning av utleie.
Hvem bestemmer i borettslaget?
Hvert år er det generalforsamling i borettslaget. Alle boligeierne har rett til å delta på møtet, komme med forslag til fellestiltak og stemme over saker som gjelder borettslaget. På generalforsamlingen velger deltakerne et styre som skal ha ansvaret for den daglige driften av borettslaget. Styret tar alle beslutninger i den daglige driften, men må følge borettslagsloven og vedtektene fra generalforsamlingen. Borettslaget blir tildelt en egen rådgiver fra OBOS som hjelper styret med oppgaver og ansvar knyttet til drift og økonomien i borettslaget.
Etablering av borettslagene, overdragelse av eiendomsrett mm.:
Vollebekk Stasjon Borettslag er stiftet av Utbygger. Borettslaget ervervet aksjene i et tidligere tomteselskap, som ble fusjonert inn i Borettslaget slik at Borettslaget ble reell eier av tomten. Vollebekk Stasjon Borettslag er delt i to. Borettslagene vil bli reell eier av sin ideelle andel av tomten. Utbygger vil inngå avtale om overdragelse av de ferdige oppførte byggene til de respektive Borettslagene før overtakelse.
Grunnbokshjemmelen til eiendommen vil bli overskjøtet direkte til Borettslagene. Borettslagenes bokførte verdi på tomt og bygningsmasse tilsvarer markedsverdi ved tidspunktet for erverv av henholdsvis tomt og bygningsmasse. For bygningsmassens del vil også skattemessig inngangsverdi tilsvare markedsverdien etter overdragelsen fra selger. For tomten vil borettslagene videreføre tomteselskapets skattemessige inngangsverdi gjennom fusjonen, som vil være vesentlig lavere enn markedsverdien per i dag. Utbygger innestår for at borettslagene per overlevering ikke vil ha noen uoppgjorte gjeldsforpliktelser, samt leverandørgjeld tilknyttet ordinære driftskostnader for borettslagene.
Boligkjøpernes posisjon sikres ved reklamasjonsrett overfor utførende totalentreprenør, og overfor Selger gjennom kjøpekontrakten og det selgeransvaret som påhviler selskapet etter bustadsoppføringslova, som igjen vil sikres gjennom lovpålagt garanti.
Fellesgjeld:
Borettslagene etableres med et felleslån som utgjør 60 % (andel fellesgjeld iht. bygge- og finansieringsplanen) av kjøpesummen, men leilighetene selges med mulighet for innfrielse av fellesgjeld ved overtakelse. Innfrielse av fellesgjeld ved overtakelse gir kjøper reduserte månedlige felleskostnader/kapitalkostnader tilsvarende reduksjonen i renter og avdrag på Borettslagenes fellesgjeld.
Kjøpesummen for leiligheten består av innskudd/kontantdel på 40%, samt egenkapital for innfrielse av andel fellesgjeld på 60 % i henhold til egen avtale om individuell innbetaling av fellesgjeld. Innskudd i henhold til Borettslagenes bygge- og finanseringsplan pantesikres i borettslagets eiendom.
Fellesgjelden på 60 % er finansiert ved lån i OBOS- banken AS. Dette lånet har en løpetid på 40 år, (regnet fra hele lånet ble utbetalt til Borettslagene), hvorav de første 10 årene er avdragsfrie. Nedbetalingstiden er på 30 år. Lånet er et annuitetslån, og det er avtalt flytende rente på p.t 4,89 %. Avdragsfrihet, løpetid og rente kan endre seg frem til inngåelse av endelig avtale med banken, samt i hele lånets løpetid. Slike endringer vil påvirke størrelsen på kapitalkostnadene og dermed felleskostnadene for andelseierne.
Renter og avdrag på felleslån for de andeler som har fellesgjeld, betales av Borettslagene via inntekter fra andelseiernes månedlige innbetalinger av felleskostnader.
Borettslagene kan senere beslutte å binde hele eller deler av fellesgjelden til en fastrente i en periode etter nærmere avtale med långiver.
I denne perioden fryses andelseiernes mulighet til å foreta individuelle nedbetalinger av sin andel av fellesgjelden, men som gjeninnføres etter fastrenteperiodens utløp. Se avsnitt om IN-ordning.
Renteutgiftene på andel fellesgjeld er etter gjeldende regelverk per tid fradragsberettiget med 22 %, forutsatt at andelseier har skattbar inntekt.
Kapitalkostnader til borettslagenes lån blir utbetalt
Den del av kjøpesummen som Borettslagene skal finansiere ved lån i finansinstitusjon samt eventuell opparbeidet klientkontorente, forfaller til betaling, suksessivt, ved den enkelte leilighetskjøpers/fremtidige andelseiers overtakelse av de enkelte boliger på eiendommen. Utbygger gir Borettslagene midlertidig kreditt for denne delen av kjøpesummen for så vidt gjelder andel felleslån knyttet til boliger som overtas før Borettslagenes felleslån utbetales til Utbygger. Borettslagene skal betale vederlag (rente) til Utbygger for denne kreditten i perioden fra overtakelse av den enkelte bolig og frem til Borettslagenes felleslån utbetales til Utbygger. Dette vederlaget fastsettes til et beløp av samme størrelse som om det hadde påløpt renter på de overtatte boligenes andel av felleslånet. For å kunne dekke Utbyggers krav på dette vederlaget, skal Borettslagenes felleskostnader frem til Borettslagenes felleslån er utbetalt til Utbygger, omfatte kapitalkostnader til dekning av Utbyggers vederlag. Vederlaget for kreditten forfaller til betaling samtidig med at kjøpesummen for øvrig forfaller til betaling. Selger skal innen forfall, ved regning direkte til Borettslagene, redegjøre for vederlagets størrelse. Utbyggers krav på vederlag omfatter også eventuelle renter som er opptjent på de beløp som er innbetalt til Borettslagene til dekning av vederlaget.
IN-ordning:
Borettslagene har IN-ordning (individuell nedbetaling av fellesgjeld). IN-ordningen åpner for at den enkelte andelseier kan innfri boligens andel av fellesgjeld. En innbetaling gjennom IN-ordningen gir andelseieren reduserte månedlige felleskostnader tilsvarende reduksjonen i renter og avdrag på Borettslagenes fellesgjeld. Kjøper kan foreta innbetaling på IN-ordningen etter overtakelse, 2 ganger i året, med minimum innbetaling på kr 60 000. IN-ordningen forutsetter flytende rente, og innbetalinger kan ikke reverseres.
Opprinnelig kjøper av denne leiligheten har inngått avtale om at leiligheten kjøpes med andel fellesgjeld. Det er ikke mulig å endre denne avtalen i ettertid.
Garantert betaling av felleskostnader (GBF) – Sikringsordning
Borettslagene vil søke om å inngå avtale med OBOS Factoring AS om garantert betaling av felleskostnader («GBF»). Avtale om GBF innebærer blant annet at OBOS Factoring AS vil:
– Betale Borettslagene summen av de månedlige felleskostnadene, både drifts- og kapitalkostnader, på en fast dato hver måned.
– Ta ansvaret for innkreving av felleskostnadene i sin helhet, og overta risikoen for tap ved mislighold, inntil 5G. Maks felleskostnader pr måned som er omfattet av GBF er 0,25G
– Overta Borettslagenes legalpant i andelen.
Premien for sikring utgjør cirka 1 % av Borettslagenes felleskostnader. Premien er hensyntatt i budsjettet for felleskostnadene. Oppsigelsestiden for avtalen er seks måneder. Dersom forretningsføreravtalen med OBOS sies opp vil avtalen om GBF opphøre umiddelbart.
Alternativt vil det bli søkt om annen sikringsordning som f. eks. Borettslagenes Sikringsordning via NBBL. Avtale om GBF kan tidligst etableres når samtlige andeler er solgt.
Forbrukerinformasjon om budgivning er vedlagt denne salgsoppgaven.
Alle bud og budforhøyelser må inngis skriftlig. I tillegg må legitimasjon være fremlagt sammen med signatur fra budgiver(e). Vi oppfordrer til å gi bud elektronisk via GI BUD knappen på finn.no, eller roislandco.no. Da vil samtlige vilkår bli oppfylt. Eventuelle forhøyelser eller endringer av budet kan bekreftes på SMS eller på e-post. Vi oppfordrer alltid til å kontakte megler pr. telefon i tillegg da forsinkelser i SMS og mail kan forekomme.
Megler skal legge til rette for en forsvarlig avvikling avbudrunden. I forbrukerforhold (dvs. der selger er forbruker) skal megleren ikke formidle bud med kortere akseptfrist enn kl. 12.00 første virkedag etter siste annonserte visning. Etter denne fristen bør budgivere ikke sette en kortere akseptfrist enn at megler har mulighet til, så langt det er nødvendig, å orientere selger, budgivere og øvrige interessenter om bud og forbehold. Dersom bud inngis med en frist som åpenbart er for kort til at megleren kan avvikle budrunden på en forsvarlig måte som sikrer selger og interessenter et tilstrekkelig grunnlag for sine handlingsvalg, vil megler fraråde budgiver å stille slik frist.
Megler skal ikke formidle bud med forbehold om at budet eller forbehold i budet skal holdes skjult (hemmelig) for andre budgivere og interessenter.
Megleren vil uoppfordret gi sin vurdering av det enkelte bud overfor selger, når budet er gitt innenfor fristene som nevnt over.
Megleren skal, så langt det er nødvendig og mulig, holde budgiverne skriftlig orientert om mottatte bud, herunder budets størrelse, forbehold og akseptfrist. Megler skal så snart som mulig bekrefte skriftlig overfor budgivere at budene deres er mottatt. For øvrig vil megler, på forespørsel fra andre, opplyse om aktuelle bud på eiendommen, herunder relevante forbehold.
Kopi av budjournal skal gis til kjøper og selger utenugrunnet opphold etter at handel er kommet i stand. Dersom det er viktig for budgiver å bevare sin anonymitet, bør budet formidles gjennom fullmektig.
I henhold til eiendomsmeglingsforskriften § 6-3 første ledd har megler en plikt til å oppfordre oppdragsgiver (selger) til ikke å ta imot bud direkte fra budgiver, men henvise til megler. Megler oppfordrer partene til å lese retningslinjene for budgivning vedlagt i salgsoppgaven.
Et eventuelt bud fra selger til kjøper (såkalte «motbud»), er avtalerettslig bindende tilbud som medfører at det foreligger en avtale om salg av eiendommen dersom budet i rett tid aksepteres av kjøper.
Budgiverens opplysning om han er forbruker eller næringsdrivende:
Avhendingsloven ble endret med virkning fra 1. januar 2022 og innebærer blant annet at «som den er»-forbehold ikke har virkning i forbrukerkjøp, jf. avhendingsloven § 3-9 andre ledd, jf. § 1-2 tredje ledd. Med forbrukerkjøper menes en kjøper av eiendom som er en fysisk person og som ikke hovedsakelig handler som ledd i næringsvirksomhet. «Som den er»-forbehold kan imidlertid fremdeles tas utenfor forbrukerkjøp. Hvorvidt eiendommen selges til en forbrukerkjøper eller ikke, kan derfor ha betydning for fordelingen av risiko mellom partene: hvis kjøperen er forbruker, bærer selger ansvaret dersom eiendommen ikke samsvarer med de krav til kvalitet, utrustning og annet som følger av avtalen, jf. avhendingsloven § 3-1. Hvis kjøperen er profesjonell, bærer imidlertid selger ansvaret for slike avvik bare i den grad eiendommen er i vesentlig ringere stand enn kjøperen hadde grunn til å regne med ut fra kjøpesummen og forholdene ellers.
Budgivers opplysning om han er forbruker eller ikke, skal gis i forbindelse med formidling av budet, for eksempel ved at det i budskjemaet krysses av for om man er forbrukerkjøper eller ikke. Budgiver må informere megler om han opptrer som forbruker eller ikke-forbruker ved budgivning for at andre parter involvert i budrunden kan ta stilling til forhold av faktisk og rettslig art som er viktige i forbindelse med avtalen. Megler har begrenset mulighet til å kontrollere budgivers egenopplysning om vedkommende er næringsdrivende eller ikke, og budgiverens skriftlige opplysning om han er forbrukerkjøper eller ikke, må legges til grunn.
Ved salg av en kontraktsposisjon er det merverdien, (kjøper 1s gevinst) budgiver skal legge inn bud på. Konferer megler før bud legges inn.
Avtalen mellom kjøper 1 (videreselgeren av kontrakten) og kjøper 2 (ny kjøper), blir regulert av avhendingsloven, kjøpsloven og forbrukerkjøpsloven.
Interessenter må sette seg inn i salgsoppgaven utarbeidet i forbindelse med salg av kontraktsposisjonen, samt kjøpekontrakten med tilhørende dokumenter signert av kjøper 1 og selger (utbygger), før bud inngis.
Det forutsettes at hjemmel overføres til kjøper. Hvis kjøper ikke ønsker hjemmelsoverføring av eiendommen, må det tas forbehold om dette i budet.
Ingen kan direkte eller indirekte erverve mer en to boligseksjoner i et boligsameie jf. eierseksjonsloven § 23. Dersom et erverv har funnet sted i strid med eierseksjonslovens regler kan Kartverket nekte overskjøting. Dersom overskjøting blir nektet, er kjøper likevel forpliktet til å gjennomføre handelen med selger, og oppgjør til selger vil finne sted tross manglende overskjøting.
Dette gjelder salg av en kontraktposisjon for en konkret bolig under oppføring. Ny kjøper (kjøper 2) overtar selgers (førstegangskjøpers) rettigheter og forpliktelser iht. opprinnelig kontrakt. Ved kjøp av kontraktposisjon må hovedkontrakten overtas med alle rettigheter og plikter, herunder betalingsvilkår og de lovpålagte garantier. Opprinnelig kontrakt regulerer alle forhold knyttet til leveransen av boligen. Det forutsettes at kjøper grundig har gjennomgått den opprinnelige kjøpekontrakten med tilhørende vedlegg, før bud inngis.
Handelen reguleres av kjøpekontrakt som inngås etter at kjøpstilbud på kontraktposisjonen er akseptert. Det tas forbehold om at utbygger aksepterer transport av opprinnelig kontrakt. Stilt garanti(er) følger boligen, og garanti(er) kan bare gjøres gjeldende av ny kjøper. Eventuelle forbehold som kjøper har tatt skal være avklart.
Ved signering av transportkontrakt skal kjøper av kontraktsposisjonen (kjøper 2) innbetale kjøper 1 sin allerede innbetalte 10%, merverdien (kjøper 1 sin gevinst), samt transportgebyret til utbygger. Kjøper 1 vil få tilbakebetalt sin 10% med fratrekk for meglerkostnadene ved salg. Kjøper 1 sin gevinst ved videresalget (merverdien) vil bero på meglers klientkonto frem til kjøper 2 har overtatt leiligheten og fått rettsvern for sitt erverv. Opptjente renter på merverdien tilfaller kjøper 1 (selger av kontrakten).
Dersom kjøper 2 er forbruker, faller pliktene hans til å betale merverdien bort dersom entreprenøren ikke ferdigstiller boligen, jf. Avhendingsloven §1-1 fjerde ledd. Kjøper 1 har likevel ikke noe ansvar for mangelfull eller forsinket levering fra selgers side, og kjøper 2 plikter å betale hele merverdien i disse tilfellene. Dette gjelder selv om mangelen er vesentlig og gir kjøper 2 rett til å heve kontrakten med selger.
Skulle noe virke uklart, kontakt megler.
Garanti som Selger (utbygger) har stilt i medhold av buofl. § 12 og eventuelt § 47 kan gjøres gjeldende av Kjøper 2 som Kjøper 1 sin rettsetterfølger (jf. buofl. § 12, 6. ledd).
Garantien etter buofl. § 12, som minst lyder på 3% av vederlaget i perioden før overtagelse og 5 % i perioden frem til 5 år etter overtagelsen, er beregnet av opprinnelig kjøpesum mellom Selger og Kjøper 1 i henhold til kjøpekontrakt.
Eiendomsmeglere er underlagt Lov om hvitvasking. I henhold til Lov av 01.06.18 nr. 23 om tiltak mot hvitvasking og terrorfinansiering (Hvitvaskingsloven), er megler pliktig til å gjennomføre identitetskontroll av alle involverte parter, herunder fullmektiger. Dette innebærer bl.a. å bekrefte kunders og reelle rettighetshaveres identitet på bakgrunn av fremvist gyldig legitimasjon eller på annen godkjent måte, samt å innhente opplysninger om kundeforholdets formål og tilsiktede art. Dersom slike kundetiltak ikke kan gjennomføres, kan megler ikke etablere kundeforholdet eller utføre transaksjonen. Hvitvaskingsloven pålegger også eiendomsmegler å innhente redegjørelse av midlenes opprinnelse. Dette besvares av samtlige kjøpere herunder parter som opptrer på vegne av kjøper, ved en såkalt kundekontroll. Hvis kjøper ikke bidrar til gjennomføring av kundekontrollen og dette fører til at transaksjonen blir forsinket eller ikke kan gjennomføres, vil dette ansees som mislighold av avtalen og gi selger rettigheter etter avhendingslova eller bustadoppføringsloven kapittel 5. I tilfeller der selger ikke bidrar til gjennomføring av løpende kundekontroll underveis i oppdraget, er det selger som misligholder sine forpliktelser etter avtalen og gi kjøper rettigheter etter avhendingslovens eller bustadoppføringsloven kapittel 4. Partene er selv ansvarlige for eventuelle kostnader og ansvar dette kan medføre. Eiendomsmegleren eller eiendomsmeglingsforetaket kan ikke holdes ansvarlig for de konsekvenser dette vil kunne få for partene eller andre som har interesser i eiendomshandelen. Ved eventuelt tilbakehold av informasjon eller mistenkelige transaksjoner, plikter eiendomsmegleren å melde fra til Økokrim. Med «mistenkelig transaksjon» menes transaksjon som mistenkes å involvere utbytte fra straffbar handling, eller som skjer som ledd i terrorfinansiering. Manglende mulighet for kundekontroll kan også være et forhold som gjør transaksjonen mistenkelig.
Det anbefales at kjøper innbetaler kjøpesummen som ikke kommer fra låneinstitusjon, i en samlet innbetaling fra egen konto i norsk bank.
Selger forbeholder seg også retten til å kreve dokumentasjon av kjøpers finansiering.
Det kan ikke gjøres ansvar gjeldende mot meglerforetaket som følge av at meglerforetaket overholder sine plikter etter Hvitvaskingsloven.
I henhold til personopplysningsloven gjør vi oppmerksom på at interessenter kan bli registrert for videre oppfølging.
Nikolai Tefre Lunder
Meglers vederlag betales av selger og er avtalt til:
Fastpris: kr. 45 000
Tilretteleggingsgebyr: kr. 14 900
Markedsføringspakke: kr. 17 990
Oppgjørshonorar: kr. 6 950
Oppslag eiendomsregister: kr. 762,50
Megler har i tillegg krav på dekning av utlegg. Alle summer er inkl. mva.
Oppdragsnummer: 3-0135/25
Martin Killi Arnesen
Sist oppdatert: 27.04.2026