Helgerudkvartalet|B1004|Ingen forskudd|Ny og romslig 3 roms hjørneleilighet med sydvestvendt balkong|Innflytningsklar

Lidenskap for nybygg

Helgerudkvartalet|B1004|Ingen forskudd|Ny og romslig 3 roms hjørneleilighet med sydvestvendt balkong|Innflytningsklar

Jørgen Kanitz’ gate 26, 1337 SANDVIKA

Geotag
Prisantydning
kr 8 400 000,-
Omkostninger
kr 48 500,-
Totalpris inkl.omk
kr 8 448 500,-
Fellesutgifter/mnd
kr 4 394,-
P-ROM
66 m2
BRA
72 m2
Rom
3
Etasje
10
Leil.nr
B1004
Boligtype
Leilighet
Eierform
Eierseksjon

Registrer interesse

Meld din interesse så vil vi ta kontakt med deg og holde deg løpende orientert om prosjektet!

Visning

Ta kontakt for å avtale visning!

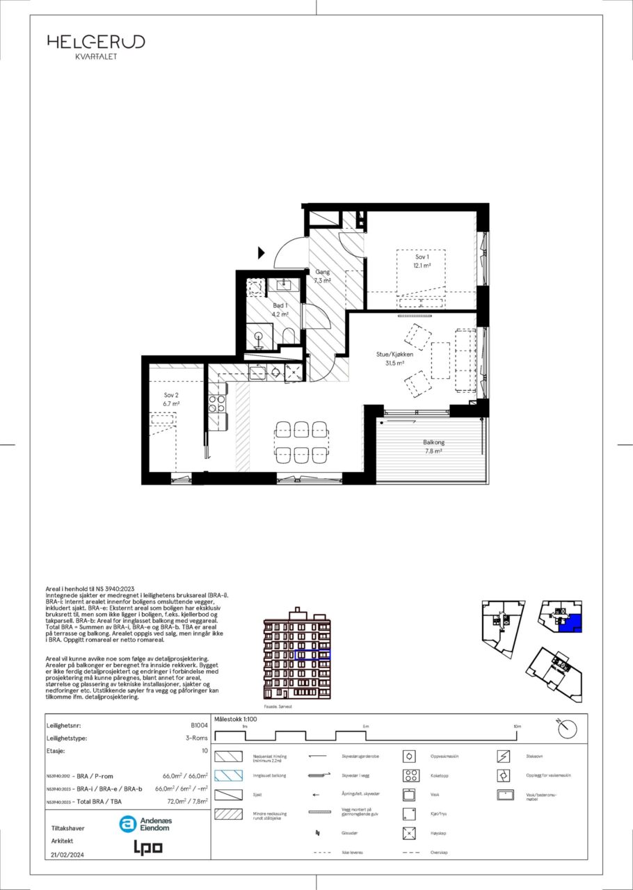
Dette er en romslig 3-roms leilighet med god planløsning beliggende i 10. etasje. Leiligheten inneholder romslig gang med avsatt plass til garderobe, bad og 2 soverom. Åpen stue-/ kjøkkenløsning, hvor man samtidig oppnår egne soner for kjøkken og stue. Store vindusflater og den sydvestvendte beliggenheten sørger for rikelig med dagslys inn i leiligheten. Utgang til sydvestvendt balkong på 7,8 kvm fra stue.

Dette er en av mange leiligheter som er for salg nå. For å se flere leiligheter klikk på fanen prosjektets hjemmeside eller gå inn på Helgerudkvartalet.no

Lars Petter Hansrud

Eiendomsmegler

95203993lars.petter.hansrud@roislandco.no

Ingrid Anne Fossli

Eiendomsmegler

93885778ingrid@roislandco.no

Innhold

BRA-i: 66 kvm
BRA-e: 6 kvm
TBA: 7,8 kvm
 
BRA-i:
10.etasje: Entré/gang, stue/kjøkken, 2 soverom, bad.
 
Arealbeskrivelse;
Arealet er beregnet ut fra Norsk standard NS 3940:2023. BRA-i: Internt arealet innenfor boligens omsluttende vegger, inkludert sjakt. BRA-e: Eksternt areal som boligen har eksklusiv bruksrett til, men som ikke ligger i boligen, f.eks. kjellerbod. BRA-b: Areal for innglasset balkong med veggareal. Total BRA = Summen av BRA-i, BRA-e og BRA-b. TBA er areal på terrasse og balkong. Arealet oppgis ved salg, men inngår ikke i BRA. Oppgitt romareal er netto romareal. De oppgitte arealer er å betrakte som cirka-arealer. Partene har ingen krav mot hverandre dersom arealet skulle vise seg å være 5 % mindre / større enn det oppgitte areal.

Matrikkel

Knr. 3201 Gnr. 7 Bnr. 341 Snr. 58

Om prosjektet

Helgerudkvartalet får hjertet i Sandvika til å banke varmt.

Helgerudkvartalet vil skape nytt liv i Sandvika sentrum, et sted som allerede har gjennomgått mange spennende forandringer og har enda flere i vente. Første etasje i Helgerudkvartalet vil huse varierte næringslokaler, som skaper et pulserende miljø og en hyggelig atmosfære. Her kan man nyte deilig, spansk tapas til middag, og unne seg italiensk gelato til dessert, for både Delicatessen og Gioia er på plass. Sistnevnte er kåret til Oslos beste is. I tillegg kommer REMA1000, Baker Hansen og Gullsmed Hellmann inn og sikrer et enda bredere tilbud. Alt dette, og enda er ikke alle detaljene endelig fastlagt. Det forventes et galleri og spennende forretninger som fremmer god kultur, samt spisesteder, kafeer og sosiale møteplasser som skaper et livlig og pulserende bygulv. Dette vil gi et løft for hele Sandvika Sentrum.

Fra sjette etasje og oppover blir det boliger, og en leilighet i første ligger egentlig i sjette, for å gi det et lettfattelig bilde. Dette gjør at alle leilighetene i Helgerudkvartalet får lys og luft, høyt hevet over bakkeplanet. Øverst i to av byggene, i 14. etasje, blir det felles takterrasser hvor alt er tilrettelagt for å kunne invitere venner og kjente til et imponerende måltid. Utsikten du får her er det ingen andre i Sandvika som har hatt før deg. Det er ytterst sjelden ordet «unikt» er berettiget å bruke. Dette er en av de få gangene det faktisk er det. Det blir 6 «frittstående» boligbygg på taket av 2 fem etasjes næringsbygg. Boligbyggene er fra 6 til 10 etasjer høye, til sammen fra 11 til 15 etasjer over bakkeplan. I sjette etasje blir det felles takhager for boligene, anlagt på taket av kontorlokalene i femte.

Alle leilighetene ligger høyt over bygulvet, og flere med fjordutsikt. Her kan du finne deg en bolig du aldri har sett maken til tidligere, med en kvalitet på materialer og finisher du vil nyte å ha rundt deg. Samtlige leiligheter får egen uteplass, tilgang til felles takhage i 6. etasje og felles takterrasse i 14. etasje.

Ved å bo i Helgerudkvartalet har du byen for dine føtter og mye av det du trenger rett under.

Tilbudet av caféer, spisesteder og restauranter i Sandvika spenner fra små lokale bedrifter til internasjonale kjeder. Du kan gå rett fra en liten spesialbutikk til Norges største kjøpesenter, du får bibliotek, kulturhus, treningssentre, Kadettangen og Sandvikselven i gåavstand hjemmefra. Du kan se en film på Sandvika Kino, spasere en tur langs den nye elvepromenaden, ta deg et bad på Kalvøya og deretter se solnedgangen fra takterrassen. Ønsker du skog og mark er veien kort – Bærumsmarka, Vestmarka, Krokskogen og snøsikre langrennsløyper på Sollihøgda er bare en kort kjøretur unna.

«Knutepunkt» er et begrep Sandvika kler godt. Du bruker bare noen minutter på å gå til togstasjonen. Herfra går det både flytog, intercitytog og vanlige langdistansetog. Bussterminalen ligger i tilknytning til togstasjonen, med bussavganger som dekker Bærum og Oslo. Tunellen til nye E16 starter like i nærheten av garasjen din, og du er på E18 i løpet av minutter. Herfra er du i Oslo i løpet av et kvarter. I lokalmiljøet beveger du deg lett med sykkel eller til fots. Alt du trenger like ved og 12 minutter til Oslo Sentrum.

Helgerudkvartalet er et prosjekt av Andenæs Eiendom som har en historie i Sandvika som går tilbake til 50-tallet, og er en av Sandvikas største gårdeiere. Familien har en lang og solid tradisjon med å engasjere seg i eiendommene sine, både i utvikling og drift. Her er langsiktighet og tett samarbeid nøkkelord. Dette er både et garantistempel og en trygghet for alle som skal holde til i Helgerudkvartalet. Andenæs Eiendom har store miljømessige ambisjoner for prosjektet, de etterstreber å få byggene klassifisert som BREEAM Excellent, en av de beste miljøklassifiseringene på markedet.

Eiendommen

Rådmann Halmrasts vei 7-9, 1337 SANDVIKA

Knr. 3201 Gnr. 7 Bnr. 341

Knr. 3201 Gnr. 7 Bnr. 342

Selger

Helgerudkvartalet Bolig AS

Helgerudkvartalet Bolig AS

Andenæsgårdene Bærum AS

Parkering

I kjelleren blir det parkeringsgarasje, med heis rett ned fra alle byggene og mulighet til å kjøpe sin egen parkeringsplass for kr 590.000,- for leiligheter fra 71 kvm og oppover.

I kjeller vil det anlegges ca. 140 sykkelparkeringsplasser for bolig i fellesanlegg. Sykkelparkering vil organiseres i to høyder for god arealutnyttelse. I forbindelse med fellesanlegget vil det også etableres en servicestasjon med mulighet for å fylle luft, vaske sykkel og utføre enkelt vedlikehold.

Som et bidrag for å redusere bilbruk vil det også tilbys en bilpoolordning, slik at biler kan leies ved behov.

Boder

Leiligheter over 50 kvm BRA har bruksrett til en sportsbod på cirka 6 kvm i kjeller eller øvrig fellesareal. Leiligheter under 50 kvm BRA har bruksrett til en sportsbod på cirka 3,5 kvm i kjeller eller øvrig fellesareal. Sykkelparkering er i hovedsak inkludert i sportsbod og størrelse på bod er økt tilsvarende plass til én sykkel.

Leveranse

RCO interiørdesign har utviklet konseptet Nordisk eleganse for Helgerudkvartalet, slik at du som boligkjøper kan være trygg på at du får en gjennomført stil. Farger og materialvalg er nøye valgt ut slik at de harmonerer med hverandre og skaper en flott ramme for øvrig interiør.

Det gjøres oppmerksom på at tilvalgfristen er utløpt.

Det er satt av plass til garderobeskap på soverom. Avsatt plass er anvist på salgstegning med stiplet linje. I noen boliger leveres garderobeløsninger, men er da markert med heltrukken linje. Se salgstegning for avklaring.

Tinglyste Heftelser og Rettigheter

På eiendommen er det tinglyst følgende heftelser og rettigheter som følger eiendommens matrikkel ved overskjøting til ny hjemmelshaver:

3201/7/341:
30.06.2004 – Dokumentnr: 18683 – Erklæring/avtale
Bestemmelse om garasje/parkering
Med flere bestemmelser
Gjelder denne registerenheten med flere

05.03.2021 – Dokumentnr: 276938 – Registerenheten kan ikke disponeres over uten samtykke fra rettighetshaver
Rettighetshaver: Røisland & Co Eiendomsmegling AS
Org.nr: 994 194 410
Overført fra: Knr:3024 Gnr:7 Bnr:54 Snr:4 m.fl.
Gjelder denne registerenheten med flere
———-
Prioritetsbestemmelse
Veket for: Pantedokument 2022/232640-1/200
Gjelder denne registerenheten med flere

04.09.1973 – Dokumentnr: 12589 – Registrering av grunn
Denne matrikkelenhet opprettet fra:
Knr:3024 Gnr:7 Bnr:53

01.03.1974 – Dokumentnr: 990173 – Sammenslåing
Sammenslått med denne matrikkelenhet:
Knr:0219 Gnr:7 Bnr:245

01.01.2020 – Dokumentnr: 1732173 – Omnummerering ved kommuneendring
Tidligere: Knr:0219 Gnr:7 Bnr:244

10.06.2022 – Dokumentnr: 625244 – Registrering av grunn
Utskilt fra denne matrikkelenhet:
Knr:3024 Gnr:7 Bnr:328

21.03.1974 – Dokumentnr: 4336 – Best. om adkomstrett
Rettighet hefter i: Knr:3201 Gnr:7 Bnr:247 Snr:1

29.04.2011 – Dokumentnr: 324885 – Bestemmelse om veg
Rettighet hefter i: Knr:3201 Gnr:7 Bnr:316

17.12.1915 – Dokumentnr: 900209 – Bestemmelse om gjerde
Med flere bestemmelser
Overført fra: Knr:3024 Gnr:7 Bnr:54 Snr:10 m.fl.
Gjelder denne registerenheten med flere

16.12.1927 – Dokumentnr: 900595 – Bestemmelse om bebyggelse
Overført fra: Knr:3024 Gnr:7 Bnr:54 Snr:3 m.fl.
Gjelder denne registerenheten med flere

09.02.1952 – Dokumentnr: 901 – Bestemmelse om vannledn.
Kan ikke slettes uten samtykke fra kommunen
Overført fra: Knr:3024 Gnr:7 Bnr:54 Snr:8 m.fl.
Gjelder denne registerenheten med flere

28.12.1953 – Dokumentnr: 9998 – Bestemmelse om vannledn.
Kan ikke slettes uten samtykke fra kommunen
Overført fra: Knr:3024 Gnr:7 Bnr:54 Snr:12 m.fl.
Gjelder denne registerenheten med flere

28.01.1975 – Dokumentnr: 1326 – Best. om vann/kloakkledn.
Kan ikke slettes uten samtykke fra kommunen
Overført fra: Knr:3024 Gnr:7 Bnr:54 Snr:11 m.fl.
Gjelder denne registerenheten med flere

12.05.2003 – Dokumentnr: 12126 – Erklæring/avtale
Motstrid mellom sum teller og nevner i eierseksjonssameie
Overført fra: Knr:3024 Gnr:7 Bnr:54 Snr:10 m.fl.
Gjelder denne registerenheten med flere

11.11.2022 – Dokumentnr: 1283255 – Bestemmelse om nettstasjon
Rettighetshaver: Elvia AS
Org.nr: 980 489 698
Adkomstrett for drift og vedlikehold av anlegg/ledninger/kabler
Bestemmelse om bebyggelse i nærheten av anlegg/ledninger/kabler
Bestemmelse om endring i terrenget i nærheten av anlegg/ledninger/kabler
Gjelder denne registerenheten med flere

16.09.1906 – Dokumentnr: 900090 – Bestemmelse om gjerde
Bestemmelse om generende virksomhet
Bestemmelse om vann/kloakkledning
Med flere bestemmelser
Overført fra: Knr:3024 Gnr:7 Bnr:325 m.fl.
Gjelder denne registerenheten med flere

21.02.1955 – Dokumentnr: 164 – Bestemmelse om vannledn.
Bestemmelse om veg
Med flere bestemmelser
Overført fra: Knr:3024 Gnr:7 Bnr:325 m.fl.
Gjelder denne registerenheten med flere

19.08.1970 – Dokumentnr: 306253 – Erklæring/avtale
BESTEMMELSE OM KLOAKKRENSEANLEGG
Kan ikke slettes uten samtykke fra kommunen
Overført fra: Knr:3024 Gnr:7 Bnr:325 m.fl.
Gjelder denne registerenheten med flere

12.12.2023 – Dokumentnr: 1388587 – Sammenslåing
Sammenslått med denne matrikkelenhet:
Knr:3024 Gnr:7 Bnr:327
Sammenslått med denne matrikkelenhet:
Knr:3024 Gnr:7 Bnr:329
Sammenslått med denne matrikkelenhet:
Knr:3024 Gnr:7 Bnr:336

01.01.2024 – Dokumentnr: 23762 – Omnummerering ved kommuneendring
Tidligere: Knr:3024 Gnr:7 Bnr:244

05.03.2025 – Dokumentnr: 254991 – Bestemmelse om adkomstrett
Rettighetshaver: Knr:3201 Gnr:7 Bnr:342 Snr:1
Rettighetshaver: Knr:3201 Gnr:7 Bnr:342 Snr:2
Rettighetshaver: Knr:3201 Gnr:7 Bnr:342 Snr:3
Rettighetshaver: Knr:3201 Gnr:7 Bnr:342 Snr:4
Rettighetshaver: Knr:3201 Gnr:7 Bnr:342 Snr:5
Rettighetshaver: Knr:3201 Gnr:7 Bnr:342 Snr:6
Rettighetshaver: Knr:3201 Gnr:7 Bnr:342 Snr:7
Rettighetshaver: Knr:3201 Gnr:7 Bnr:342 Snr:8
Rettighetshaver: Knr:3201 Gnr:7 Bnr:342 Snr:9
Rettighetshaver: Knr:3201 Gnr:7 Bnr:342 Snr:10
Rettighetshaver: Knr:3201 Gnr:7 Bnr:342 Snr:11
Rettighetshaver: Knr:3201 Gnr:7 Bnr:342 Snr:12
Rettighetshaver: Knr:3201 Gnr:7 Bnr:342 Snr:13
Rettighetshaver: Knr:3201 Gnr:7 Bnr:342 Snr:14
Rettighetshaver: Knr:3201 Gnr:7 Bnr:342 Snr:15
Rettighetshaver: Knr:3201 Gnr:7 Bnr:342 Snr:16
Rettighetshaver: Knr:3201 Gnr:7 Bnr:342 Snr:17
Rettighetshaver: Knr:3201 Gnr:7 Bnr:342 Snr:18
Rettighetshaver: Knr:3201 Gnr:7 Bnr:342 Snr:19
Rettighetshaver: Knr:3201 Gnr:7 Bnr:342 Snr:20
Rettighetshaver: Knr:3201 Gnr:7 Bnr:342 Snr:21
Rettighetshaver: Knr:3201 Gnr:7 Bnr:342 Snr:22
Rettighetshaver: Knr:3201 Gnr:7 Bnr:342 Snr:23
Rettighetshaver: Knr:3201 Gnr:7 Bnr:342 Snr:24
Rettighetshaver: Knr:3201 Gnr:7 Bnr:342 Snr:25
Rettighetshaver: Knr:3201 Gnr:7 Bnr:342 Snr:26
Rettighetshaver: Knr:3201 Gnr:7 Bnr:342 Snr:27
Rettighetshaver: Knr:3201 Gnr:7 Bnr:342 Snr:28
Rettighetshaver: Knr:3201 Gnr:7 Bnr:342 Snr:29
Rettighetshaver: Knr:3201 Gnr:7 Bnr:342 Snr:30
Rettighetshaver: Knr:3201 Gnr:7 Bnr:342 Snr:31
Rettighetshaver: Knr:3201 Gnr:7 Bnr:342 Snr:32
Rettighetshaver: Knr:3201 Gnr:7 Bnr:342 Snr:33
Rettighetshaver: Knr:3201 Gnr:7 Bnr:342 Snr:34
Rettighetshaver: Knr:3201 Gnr:7 Bnr:342 Snr:35
Rettighetshaver: Knr:3201 Gnr:7 Bnr:342 Snr:36
Rettighetshaver: Knr:3201 Gnr:7 Bnr:342 Snr:37
Rettighetshaver: Knr:3201 Gnr:7 Bnr:342 Snr:38
Rettighetshaver: Knr:3201 Gnr:7 Bnr:342 Snr:39
Rettighetshaver: Knr:3201 Gnr:7 Bnr:342 Snr:40
Rettighetshaver: Knr:3201 Gnr:7 Bnr:342 Snr:41
Rettighetshaver: Knr:3201 Gnr:7 Bnr:342 Snr:42
Rettighetshaver: Knr:3201 Gnr:7 Bnr:342 Snr:43
Rettighetshaver: Knr:3201 Gnr:7 Bnr:342 Snr:44
Rettighetshaver: Knr:3201 Gnr:7 Bnr:342 Snr:45
Rettighetshaver: Knr:3201 Gnr:7 Bnr:342 Snr:46
Rettighetshaver: Knr:3201 Gnr:7 Bnr:342 Snr:47
Rettighetshaver: Knr:3201 Gnr:7 Bnr:342 Snr:48
Rettighetshaver: Knr:3201 Gnr:7 Bnr:342 Snr:49
Rettighetshaver: Knr:3201 Gnr:7 Bnr:342 Snr:50
Rettighetshaver: Knr:3201 Gnr:7 Bnr:342 Snr:51
Rettighetshaver: Knr:3201 Gnr:7 Bnr:342 Snr:52
Rettighetshaver: Knr:3201 Gnr:7 Bnr:342 Snr:53
Rettighetshaver: Knr:3201 Gnr:7 Bnr:342 Snr:54
Rettighetshaver: Knr:3201 Gnr:7 Bnr:342 Snr:55
Rettighetshaver: Knr:3201 Gnr:7 Bnr:342 Snr:56
Rettighetshaver: Knr:3201 Gnr:7 Bnr:342 Snr:57
Rettighetshaver: Knr:3201 Gnr:7 Bnr:342 Snr:58
Rettighetshaver: Knr:3201 Gnr:7 Bnr:342 Snr:59
Rettighetshaver: Knr:3201 Gnr:7 Bnr:342 Snr:60
Rettighetshaver: Knr:3201 Gnr:7 Bnr:342 Snr:61
Rettighetshaver: Knr:3201 Gnr:7 Bnr:342 Snr:62
Rettighetshaver: Knr:3201 Gnr:7 Bnr:342 Snr:63
Rettighetshaver: Knr:3201 Gnr:7 Bnr:342 Snr:64
Rettighetshaver: Knr:3201 Gnr:7 Bnr:342 Snr:65
Rettighetshaver: Knr:3201 Gnr:7 Bnr:342 Snr:66
Rettighetshaver: Knr:3201 Gnr:7 Bnr:342 Snr:67
Rettighetshaver: Knr:3201 Gnr:7 Bnr:342 Snr:68
Rettighetshaver: Knr:3201 Gnr:7 Bnr:342 Snr:69
Rettighetshaver: Knr:3201 Gnr:7 Bnr:342 Snr:70
Rettighetshaver: Knr:3201 Gnr:7 Bnr:342 Snr:71
Rettighetshaver: Knr:3201 Gnr:7 Bnr:342 Snr:72
Rettighetshaver: Knr:3201 Gnr:7 Bnr:342 Snr:73
Rettighetshaver: Knr:3201 Gnr:7 Bnr:342 Snr:74
Rettighetshaver: Knr:3201 Gnr:7 Bnr:342 Snr:75
Rettighetshaver: Knr:3201 Gnr:7 Bnr:342 Snr:76
Rettighetshaver: Knr:3201 Gnr:7 Bnr:342 Snr:77
Rettighetshaver: Knr:3201 Gnr:7 Bnr:342 Snr:78
Rettighetshaver: Knr:3201 Gnr:7 Bnr:342 Snr:79
Rettighetshaver: Knr:3201 Gnr:7 Bnr:342 Snr:80
Rettighetshaver: Knr:3201 Gnr:7 Bnr:342 Snr:81
Rettighetshaver: Knr:3201 Gnr:7 Bnr:342 Snr:82
Rettighetshaver: Knr:3201 Gnr:7 Bnr:342 Snr:83
Rettighetshaver: Knr:3201 Gnr:7 Bnr:342 Snr:84
Rettighetshaver: Knr:3201 Gnr:7 Bnr:342 Snr:85
Rettighetshaver: Knr:3201 Gnr:7 Bnr:342 Snr:86
Rettighetshaver: Knr:3201 Gnr:7 Bnr:342 Snr:87
Rettighetshaver: Knr:3201 Gnr:7 Bnr:342 Snr:88
Rettighetshaver: Knr:3201 Gnr:7 Bnr:342 Snr:89
Rettighetshaver: Knr:3201 Gnr:7 Bnr:342 Snr:90
Rettighetshaver: Knr:3201 Gnr:7 Bnr:342 Snr:91
Rettighetshaver: Knr:3201 Gnr:7 Bnr:342 Snr:92
Rettighetshaver: Knr:3201 Gnr:7 Bnr:342 Snr:93
Rettighetshaver: Knr:3201 Gnr:7 Bnr:342 Snr:94
Rettighetshaver: Knr:3201 Gnr:7 Bnr:342 Snr:95
Rettighetshaver: Knr:3201 Gnr:7 Bnr:342 Snr:96
Rettighetshaver: Knr:3201 Gnr:7 Bnr:342 Snr:97
Rettighetshaver: Knr:3201 Gnr:7 Bnr:342 Snr:98
Rettighetshaver: Knr:3201 Gnr:7 Bnr:342 Snr:99
Rettighetshaver: Knr:3201 Gnr:7 Bnr:342 Snr:100
Rettighetshaver: Knr:3201 Gnr:7 Bnr:342 Snr:101
Rettighetshaver: Knr:3201 Gnr:7 Bnr:342 Snr:102
Rettighetshaver: Knr:3201 Gnr:7 Bnr:342 Snr:103
Rettighetshaver: Knr:3201 Gnr:7 Bnr:342 Snr:104
Rettighetshaver: Knr:3201 Gnr:7 Bnr:342 Snr:105
Rettighetshaver: Knr:3201 Gnr:7 Bnr:342 Snr:106
Rettighetshaver: Knr:3201 Gnr:7 Bnr:342 Snr:107
Rettighetshaver: Knr:3201 Gnr:7 Bnr:342 Snr:108
Rettighetshaver: Knr:3201 Gnr:7 Bnr:342 Snr:109
Rettighetshaver: Knr:3201 Gnr:7 Bnr:342 Snr:110
Rettighetshaver: Knr:3201 Gnr:7 Bnr:342 Snr:111
Rettighetshaver: Knr:3201 Gnr:7 Bnr:342 Snr:112
Rettighetshaver: Knr:3201 Gnr:7 Bnr:342 Snr:113
Rettighetshaver: Knr:3201 Gnr:7 Bnr:342 Snr:114
Rettighetshaver: Knr:3201 Gnr:7 Bnr:342 Snr:115
Rettighetshaver: Knr:3201 Gnr:7 Bnr:342 Snr:116
Rettighetshaver: Knr:3201 Gnr:7 Bnr:342 Snr:117
Rettighetshaver: Knr:3201 Gnr:7 Bnr:342 Snr:118
Rettighetshaver: Knr:3201 Gnr:7 Bnr:342 Snr:119
Rettighetshaver: Knr:3201 Gnr:7 Bnr:342 Snr:120
Rettighetshaver: Knr:3201 Gnr:7 Bnr:342 Snr:121
Rettighetshaver: Knr:3201 Gnr:7 Bnr:342 Snr:122
Rettighetshaver: Knr:3201 Gnr:7 Bnr:342 Snr:123
Rettighetshaver: Knr:3201 Gnr:7 Bnr:342 Snr:124
Bestemmelse om vedlikehold
Gjelder denne registerenheten med flere

05.03.2025 – Dokumentnr: 254991 – Erklæring/avtale
Bestemmelse om vedlikehold av tak og taktekking i gnr. 7 bnr. 339, 340, 341 og 342
Gjelder denne registerenheten med flere

05.03.2025 – Dokumentnr: 254991 – Erklæring/avtale
Gjensidig rett til å ha liggende, samt atkomst til, nødvendig tekisk infrastruktur på og i hverandres eiendommer
Gjelder denne registerenheten med flere

27.12.2024 – Dokumentnr: 2409951 – Registrering av grunn
Utskilt fra denne matrikkelenhet:
Knr:3201 Gnr:7 Bnr:338

27.12.2024 – Dokumentnr: 2409953 – Registrering av grunn
Utskilt fra denne matrikkelenhet:
Knr:3201 Gnr:7 Bnr:339

27.12.2024 – Dokumentnr: 2409958 – Registrering av grunn
Denne matrikkelenhet opprettet fra:
Knr:3201 Gnr:7 Bnr:244

15.04.2024 – Dokumentnr: 1318813 – Erklæring/avtale
Rettighet hefter i: Knr:3201 Gnr:7 Bnr:322
Kan ikke slettes uten samtykke fra: Bærum Kommune
Org.nr: 935 478 715
Bestemmelse om gangbru

05.03.2025 – Dokumentnr: 254991 – Erklæring/avtale
Rettighet hefter i: Knr:3201 Gnr:7 Bnr:341 Snr:1
Rettighet hefter i: Knr:3201 Gnr:7 Bnr:341 Snr:2
Rettighet hefter i: Knr:3201 Gnr:7 Bnr:341 Snr:3
Rettighet hefter i: Knr:3201 Gnr:7 Bnr:341 Snr:4
Rettighet hefter i: Knr:3201 Gnr:7 Bnr:341 Snr:5
Rettighet hefter i: Knr:3201 Gnr:7 Bnr:341 Snr:6
Rettighet hefter i: Knr:3201 Gnr:7 Bnr:341 Snr:7
Rettighet hefter i: Knr:3201 Gnr:7 Bnr:341 Snr:8
Rettighet hefter i: Knr:3201 Gnr:7 Bnr:341 Snr:9
Rettighet hefter i: Knr:3201 Gnr:7 Bnr:341 Snr:10
Rettighet hefter i: Knr:3201 Gnr:7 Bnr:341 Snr:11
Rettighet hefter i: Knr:3201 Gnr:7 Bnr:341 Snr:12
Rettighet hefter i: Knr:3201 Gnr:7 Bnr:341 Snr:13
Rettighet hefter i: Knr:3201 Gnr:7 Bnr:341 Snr:14
Rettighet hefter i: Knr:3201 Gnr:7 Bnr:341 Snr:15
Rettighet hefter i: Knr:3201 Gnr:7 Bnr:341 Snr:16
Rettighet hefter i: Knr:3201 Gnr:7 Bnr:341 Snr:17
Rettighet hefter i: Knr:3201 Gnr:7 Bnr:341 Snr:18
Rettighet hefter i: Knr:3201 Gnr:7 Bnr:341 Snr:19
Rettighet hefter i: Knr:3201 Gnr:7 Bnr:341 Snr:20
Rettighet hefter i: Knr:3201 Gnr:7 Bnr:341 Snr:21
Rettighet hefter i: Knr:3201 Gnr:7 Bnr:341 Snr:22
Rettighet hefter i: Knr:3201 Gnr:7 Bnr:341 Snr:23
Rettighet hefter i: Knr:3201 Gnr:7 Bnr:341 Snr:24
Rettighet hefter i: Knr:3201 Gnr:7 Bnr:341 Snr:25
Rettighet hefter i: Knr:3201 Gnr:7 Bnr:341 Snr:26
Rettighet hefter i: Knr:3201 Gnr:7 Bnr:341 Snr:27
Rettighet hefter i: Knr:3201 Gnr:7 Bnr:341 Snr:28
Rettighet hefter i: Knr:3201 Gnr:7 Bnr:341 Snr:29
Rettighet hefter i: Knr:3201 Gnr:7 Bnr:341 Snr:30
Rettighet hefter i: Knr:3201 Gnr:7 Bnr:341 Snr:31
Rettighet hefter i: Knr:3201 Gnr:7 Bnr:341 Snr:32
Rettighet hefter i: Knr:3201 Gnr:7 Bnr:341 Snr:33
Rettighet hefter i: Knr:3201 Gnr:7 Bnr:341 Snr:34
Rettighet hefter i: Knr:3201 Gnr:7 Bnr:341 Snr:35
Rettighet hefter i: Knr:3201 Gnr:7 Bnr:341 Snr:36
Rettighet hefter i: Knr:3201 Gnr:7 Bnr:341 Snr:37
Rettighet hefter i: Knr:3201 Gnr:7 Bnr:341 Snr:38
Rettighet hefter i: Knr:3201 Gnr:7 Bnr:341 Snr:39
Rettighet hefter i: Knr:3201 Gnr:7 Bnr:341 Snr:40
Rettighet hefter i: Knr:3201 Gnr:7 Bnr:341 Snr:41
Rettighet hefter i: Knr:3201 Gnr:7 Bnr:341 Snr:42
Rettighet hefter i: Knr:3201 Gnr:7 Bnr:341 Snr:43
Rettighet hefter i: Knr:3201 Gnr:7 Bnr:341 Snr:44
Rettighet hefter i: Knr:3201 Gnr:7 Bnr:341 Snr:45
Rettighet hefter i: Knr:3201 Gnr:7 Bnr:341 Snr:46
Rettighet hefter i: Knr:3201 Gnr:7 Bnr:341 Snr:47
Rettighet hefter i: Knr:3201 Gnr:7 Bnr:341 Snr:48
Rettighet hefter i: Knr:3201 Gnr:7 Bnr:341 Snr:49
Rettighet hefter i: Knr:3201 Gnr:7 Bnr:341 Snr:50
Rettighet hefter i: Knr:3201 Gnr:7 Bnr:341 Snr:51
Rettighet hefter i: Knr:3201 Gnr:7 Bnr:341 Snr:52
Rettighet hefter i: Knr:3201 Gnr:7 Bnr:341 Snr:53
Rettighet hefter i: Knr:3201 Gnr:7 Bnr:341 Snr:54
Rettighet hefter i: Knr:3201 Gnr:7 Bnr:341 Snr:55
Rettighet hefter i: Knr:3201 Gnr:7 Bnr:341 Snr:56
Rettighet hefter i: Knr:3201 Gnr:7 Bnr:341 Snr:57
Rettighet hefter i: Knr:3201 Gnr:7 Bnr:341 Snr:58
Rettighet hefter i: Knr:3201 Gnr:7 Bnr:341 Snr:59
Rettighet hefter i: Knr:3201 Gnr:7 Bnr:341 Snr:60
Rettighet hefter i: Knr:3201 Gnr:7 Bnr:341 Snr:61
Rettighet hefter i: Knr:3201 Gnr:7 Bnr:341 Snr:62
Rettighet hefter i: Knr:3201 Gnr:7 Bnr:341 Snr:63
Rettighet hefter i: Knr:3201 Gnr:7 Bnr:341 Snr:64
Rettighet hefter i: Knr:3201 Gnr:7 Bnr:341 Snr:65
Rettighet hefter i: Knr:3201 Gnr:7 Bnr:341 Snr:66
Rettighet hefter i: Knr:3201 Gnr:7 Bnr:341 Snr:67
Rettighet hefter i: Knr:3201 Gnr:7 Bnr:341 Snr:68
Rettighet hefter i: Knr:3201 Gnr:7 Bnr:341 Snr:69
Rettighet hefter i: Knr:3201 Gnr:7 Bnr:341 Snr:70
Rettighet hefter i: Knr:3201 Gnr:7 Bnr:341 Snr:71
Rettighet hefter i: Knr:3201 Gnr:7 Bnr:341 Snr:72
Rettighet hefter i: Knr:3201 Gnr:7 Bnr:341 Snr:73
Rettighet hefter i: Knr:3201 Gnr:7 Bnr:341 Snr:74
Rettighet hefter i: Knr:3201 Gnr:7 Bnr:341 Snr:75
Rettighet hefter i: Knr:3201 Gnr:7 Bnr:341 Snr:76
Rettighet hefter i: Knr:3201 Gnr:7 Bnr:341 Snr:77
Rettighet hefter i: Knr:3201 Gnr:7 Bnr:341 Snr:78
Rettighet hefter i: Knr:3201 Gnr:7 Bnr:341 Snr:79
Rettighet hefter i: Knr:3201 Gnr:7 Bnr:341 Snr:80
Rettighet hefter i: Knr:3201 Gnr:7 Bnr:341 Snr:81
Rettighet hefter i: Knr:3201 Gnr:7 Bnr:341 Snr:82
Rettighet hefter i: Knr:3201 Gnr:7 Bnr:341 Snr:83
Rettighet hefter i: Knr:3201 Gnr:7 Bnr:341 Snr:84
Rettighet hefter i: Knr:3201 Gnr:7 Bnr:341 Snr:85
Rettighet hefter i: Knr:3201 Gnr:7 Bnr:341 Snr:86
Rettighet hefter i: Knr:3201 Gnr:7 Bnr:342 Snr:1
Rettighet hefter i: Knr:3201 Gnr:7 Bnr:342 Snr:2
Rettighet hefter i: Knr:3201 Gnr:7 Bnr:342 Snr:3
Rettighet hefter i: Knr:3201 Gnr:7 Bnr:342 Snr:4
Rettighet hefter i: Knr:3201 Gnr:7 Bnr:342 Snr:5
Rettighet hefter i: Knr:3201 Gnr:7 Bnr:342 Snr:6
Rettighet hefter i: Knr:3201 Gnr:7 Bnr:342 Snr:7
Rettighet hefter i: Knr:3201 Gnr:7 Bnr:342 Snr:8
Rettighet hefter i: Knr:3201 Gnr:7 Bnr:342 Snr:9
Rettighet hefter i: Knr:3201 Gnr:7 Bnr:342 Snr:10
Rettighet hefter i: Knr:3201 Gnr:7 Bnr:342 Snr:11
Rettighet hefter i: Knr:3201 Gnr:7 Bnr:342 Snr:12
Rettighet hefter i: Knr:3201 Gnr:7 Bnr:342 Snr:13
Rettighet hefter i: Knr:3201 Gnr:7 Bnr:342 Snr:14
Rettighet hefter i: Knr:3201 Gnr:7 Bnr:342 Snr:15
Rettighet hefter i: Knr:3201 Gnr:7 Bnr:342 Snr:16
Rettighet hefter i: Knr:3201 Gnr:7 Bnr:342 Snr:17
Rettighet hefter i: Knr:3201 Gnr:7 Bnr:342 Snr:18
Rettighet hefter i: Knr:3201 Gnr:7 Bnr:342 Snr:19
Rettighet hefter i: Knr:3201 Gnr:7 Bnr:342 Snr:20
Rettighet hefter i: Knr:3201 Gnr:7 Bnr:342 Snr:21
Rettighet hefter i: Knr:3201 Gnr:7 Bnr:342 Snr:22
Rettighet hefter i: Knr:3201 Gnr:7 Bnr:342 Snr:23
Rettighet hefter i: Knr:3201 Gnr:7 Bnr:342 Snr:24
Rettighet hefter i: Knr:3201 Gnr:7 Bnr:342 Snr:25
Rettighet hefter i: Knr:3201 Gnr:7 Bnr:342 Snr:26
Rettighet hefter i: Knr:3201 Gnr:7 Bnr:342 Snr:27
Rettighet hefter i: Knr:3201 Gnr:7 Bnr:342 Snr:28
Rettighet hefter i: Knr:3201 Gnr:7 Bnr:342 Snr:29
Rettighet hefter i: Knr:3201 Gnr:7 Bnr:342 Snr:30
Rettighet hefter i: Knr:3201 Gnr:7 Bnr:342 Snr:31
Rettighet hefter i: Knr:3201 Gnr:7 Bnr:342 Snr:32
Rettighet hefter i: Knr:3201 Gnr:7 Bnr:342 Snr:33
Rettighet hefter i: Knr:3201 Gnr:7 Bnr:342 Snr:34
Rettighet hefter i: Knr:3201 Gnr:7 Bnr:342 Snr:35
Rettighet hefter i: Knr:3201 Gnr:7 Bnr:342 Snr:36
Rettighet hefter i: Knr:3201 Gnr:7 Bnr:342 Snr:37
Rettighet hefter i: Knr:3201 Gnr:7 Bnr:342 Snr:38
Rettighet hefter i: Knr:3201 Gnr:7 Bnr:342 Snr:39
Rettighet hefter i: Knr:3201 Gnr:7 Bnr:342 Snr:40
Rettighet hefter i: Knr:3201 Gnr:7 Bnr:342 Snr:41
Rettighet hefter i: Knr:3201 Gnr:7 Bnr:342 Snr:42
Rettighet hefter i: Knr:3201 Gnr:7 Bnr:342 Snr:43
Rettighet hefter i: Knr:3201 Gnr:7 Bnr:342 Snr:44
Rettighet hefter i: Knr:3201 Gnr:7 Bnr:342 Snr:45
Rettighet hefter i: Knr:3201 Gnr:7 Bnr:342 Snr:46
Rettighet hefter i: Knr:3201 Gnr:7 Bnr:342 Snr:47
Rettighet hefter i: Knr:3201 Gnr:7 Bnr:342 Snr:48
Rettighet hefter i: Knr:3201 Gnr:7 Bnr:342 Snr:49
Rettighet hefter i: Knr:3201 Gnr:7 Bnr:342 Snr:50
Rettighet hefter i: Knr:3201 Gnr:7 Bnr:342 Snr:51
Rettighet hefter i: Knr:3201 Gnr:7 Bnr:342 Snr:52
Rettighet hefter i: Knr:3201 Gnr:7 Bnr:342 Snr:53
Rettighet hefter i: Knr:3201 Gnr:7 Bnr:342 Snr:54
Rettighet hefter i: Knr:3201 Gnr:7 Bnr:342 Snr:55
Rettighet hefter i: Knr:3201 Gnr:7 Bnr:342 Snr:56
Rettighet hefter i: Knr:3201 Gnr:7 Bnr:342 Snr:57
Rettighet hefter i: Knr:3201 Gnr:7 Bnr:342 Snr:58
Rettighet hefter i: Knr:3201 Gnr:7 Bnr:342 Snr:59
Rettighet hefter i: Knr:3201 Gnr:7 Bnr:342 Snr:60
Rettighet hefter i: Knr:3201 Gnr:7 Bnr:342 Snr:61
Rettighet hefter i: Knr:3201 Gnr:7 Bnr:342 Snr:62
Rettighet hefter i: Knr:3201 Gnr:7 Bnr:342 Snr:63
Rettighet hefter i: Knr:3201 Gnr:7 Bnr:342 Snr:64
Rettighet hefter i: Knr:3201 Gnr:7 Bnr:342 Snr:65
Rettighet hefter i: Knr:3201 Gnr:7 Bnr:342 Snr:66
Rettighet hefter i: Knr:3201 Gnr:7 Bnr:342 Snr:67
Rettighet hefter i: Knr:3201 Gnr:7 Bnr:342 Snr:68
Rettighet hefter i: Knr:3201 Gnr:7 Bnr:342 Snr:69
Rettighet hefter i: Knr:3201 Gnr:7 Bnr:342 Snr:70
Rettighet hefter i: Knr:3201 Gnr:7 Bnr:342 Snr:71
Rettighet hefter i: Knr:3201 Gnr:7 Bnr:342 Snr:72
Rettighet hefter i: Knr:3201 Gnr:7 Bnr:342 Snr:73
Rettighet hefter i: Knr:3201 Gnr:7 Bnr:342 Snr:74
Rettighet hefter i: Knr:3201 Gnr:7 Bnr:342 Snr:75
Rettighet hefter i: Knr:3201 Gnr:7 Bnr:342 Snr:76
Rettighet hefter i: Knr:3201 Gnr:7 Bnr:342 Snr:77
Rettighet hefter i: Knr:3201 Gnr:7 Bnr:342 Snr:78
Rettighet hefter i: Knr:3201 Gnr:7 Bnr:342 Snr:79
Rettighet hefter i: Knr:3201 Gnr:7 Bnr:342 Snr:80
Rettighet hefter i: Knr:3201 Gnr:7 Bnr:342 Snr:81
Rettighet hefter i: Knr:3201 Gnr:7 Bnr:342 Snr:82
Rettighet hefter i: Knr:3201 Gnr:7 Bnr:342 Snr:83
Rettighet hefter i: Knr:3201 Gnr:7 Bnr:342 Snr:84
Rettighet hefter i: Knr:3201 Gnr:7 Bnr:342 Snr:85
Rettighet hefter i: Knr:3201 Gnr:7 Bnr:342 Snr:86
Rettighet hefter i: Knr:3201 Gnr:7 Bnr:342 Snr:87
Rettighet hefter i: Knr:3201 Gnr:7 Bnr:342 Snr:88
Rettighet hefter i: Knr:3201 Gnr:7 Bnr:342 Snr:89
Rettighet hefter i: Knr:3201 Gnr:7 Bnr:342 Snr:90
Rettighet hefter i: Knr:3201 Gnr:7 Bnr:342 Snr:91
Rettighet hefter i: Knr:3201 Gnr:7 Bnr:342 Snr:92
Rettighet hefter i: Knr:3201 Gnr:7 Bnr:342 Snr:93
Rettighet hefter i: Knr:3201 Gnr:7 Bnr:342 Snr:94
Rettighet hefter i: Knr:3201 Gnr:7 Bnr:342 Snr:95
Rettighet hefter i: Knr:3201 Gnr:7 Bnr:342 Snr:96
Rettighet hefter i: Knr:3201 Gnr:7 Bnr:342 Snr:97
Rettighet hefter i: Knr:3201 Gnr:7 Bnr:342 Snr:98
Rettighet hefter i: Knr:3201 Gnr:7 Bnr:342 Snr:99
Rettighet hefter i: Knr:3201 Gnr:7 Bnr:342 Snr:100
Rettighet hefter i: Knr:3201 Gnr:7 Bnr:342 Snr:101
Rettighet hefter i: Knr:3201 Gnr:7 Bnr:342 Snr:102
Rettighet hefter i: Knr:3201 Gnr:7 Bnr:342 Snr:103
Rettighet hefter i: Knr:3201 Gnr:7 Bnr:342 Snr:104
Rettighet hefter i: Knr:3201 Gnr:7 Bnr:342 Snr:105
Rettighet hefter i: Knr:3201 Gnr:7 Bnr:342 Snr:106
Rettighet hefter i: Knr:3201 Gnr:7 Bnr:342 Snr:107
Rettighet hefter i: Knr:3201 Gnr:7 Bnr:342 Snr:108
Rettighet hefter i: Knr:3201 Gnr:7 Bnr:342 Snr:109
Rettighet hefter i: Knr:3201 Gnr:7 Bnr:342 Snr:110
Rettighet hefter i: Knr:3201 Gnr:7 Bnr:342 Snr:111
Rettighet hefter i: Knr:3201 Gnr:7 Bnr:342 Snr:112
Rettighet hefter i: Knr:3201 Gnr:7 Bnr:342 Snr:113
Rettighet hefter i: Knr:3201 Gnr:7 Bnr:342 Snr:114
Rettighet hefter i: Knr:3201 Gnr:7 Bnr:342 Snr:115
Rettighet hefter i: Knr:3201 Gnr:7 Bnr:342 Snr:116
Rettighet hefter i: Knr:3201 Gnr:7 Bnr:342 Snr:117
Rettighet hefter i: Knr:3201 Gnr:7 Bnr:342 Snr:118
Rettighet hefter i: Knr:3201 Gnr:7 Bnr:342 Snr:119
Rettighet hefter i: Knr:3201 Gnr:7 Bnr:342 Snr:120
Rettighet hefter i: Knr:3201 Gnr:7 Bnr:342 Snr:121
Rettighet hefter i: Knr:3201 Gnr:7 Bnr:342 Snr:122
Rettighet hefter i: Knr:3201 Gnr:7 Bnr:342 Snr:123
Rettighet hefter i: Knr:3201 Gnr:7 Bnr:342 Snr:124
Rett til å ha liggende, samt atkomst til, nødvendige tekniske installasjoner
Gjelder denne registerenheten med flere

05.03.2025 – Dokumentnr: 254991 – Erklæring/avtale
Rettighet hefter i: Knr:3201 Gnr:7 Bnr:341 Snr:1
Rettighet hefter i: Knr:3201 Gnr:7 Bnr:341 Snr:2
Rettighet hefter i: Knr:3201 Gnr:7 Bnr:341 Snr:3
Rettighet hefter i: Knr:3201 Gnr:7 Bnr:341 Snr:4
Rettighet hefter i: Knr:3201 Gnr:7 Bnr:341 Snr:5
Rettighet hefter i: Knr:3201 Gnr:7 Bnr:341 Snr:6
Rettighet hefter i: Knr:3201 Gnr:7 Bnr:341 Snr:7
Rettighet hefter i: Knr:3201 Gnr:7 Bnr:341 Snr:8
Rettighet hefter i: Knr:3201 Gnr:7 Bnr:341 Snr:9
Rettighet hefter i: Knr:3201 Gnr:7 Bnr:341 Snr:10
Rettighet hefter i: Knr:3201 Gnr:7 Bnr:341 Snr:11
Rettighet hefter i: Knr:3201 Gnr:7 Bnr:341 Snr:12
Rettighet hefter i: Knr:3201 Gnr:7 Bnr:341 Snr:13
Rettighet hefter i: Knr:3201 Gnr:7 Bnr:341 Snr:14
Rettighet hefter i: Knr:3201 Gnr:7 Bnr:341 Snr:15
Rettighet hefter i: Knr:3201 Gnr:7 Bnr:341 Snr:16
Rettighet hefter i: Knr:3201 Gnr:7 Bnr:341 Snr:17
Rettighet hefter i: Knr:3201 Gnr:7 Bnr:341 Snr:18
Rettighet hefter i: Knr:3201 Gnr:7 Bnr:341 Snr:19
Rettighet hefter i: Knr:3201 Gnr:7 Bnr:341 Snr:20
Rettighet hefter i: Knr:3201 Gnr:7 Bnr:341 Snr:21
Rettighet hefter i: Knr:3201 Gnr:7 Bnr:341 Snr:22
Rettighet hefter i: Knr:3201 Gnr:7 Bnr:341 Snr:23
Rettighet hefter i: Knr:3201 Gnr:7 Bnr:341 Snr:24
Rettighet hefter i: Knr:3201 Gnr:7 Bnr:341 Snr:25
Rettighet hefter i: Knr:3201 Gnr:7 Bnr:341 Snr:26
Rettighet hefter i: Knr:3201 Gnr:7 Bnr:341 Snr:27
Rettighet hefter i: Knr:3201 Gnr:7 Bnr:341 Snr:28
Rettighet hefter i: Knr:3201 Gnr:7 Bnr:341 Snr:29
Rettighet hefter i: Knr:3201 Gnr:7 Bnr:341 Snr:30
Rettighet hefter i: Knr:3201 Gnr:7 Bnr:341 Snr:31
Rettighet hefter i: Knr:3201 Gnr:7 Bnr:341 Snr:32
Rettighet hefter i: Knr:3201 Gnr:7 Bnr:341 Snr:33
Rettighet hefter i: Knr:3201 Gnr:7 Bnr:341 Snr:34
Rettighet hefter i: Knr:3201 Gnr:7 Bnr:341 Snr:35
Rettighet hefter i: Knr:3201 Gnr:7 Bnr:341 Snr:36
Rettighet hefter i: Knr:3201 Gnr:7 Bnr:341 Snr:37
Rettighet hefter i: Knr:3201 Gnr:7 Bnr:341 Snr:38
Rettighet hefter i: Knr:3201 Gnr:7 Bnr:341 Snr:39
Rettighet hefter i: Knr:3201 Gnr:7 Bnr:341 Snr:40
Rettighet hefter i: Knr:3201 Gnr:7 Bnr:341 Snr:41
Rettighet hefter i: Knr:3201 Gnr:7 Bnr:341 Snr:42
Rettighet hefter i: Knr:3201 Gnr:7 Bnr:341 Snr:43
Rettighet hefter i: Knr:3201 Gnr:7 Bnr:341 Snr:44
Rettighet hefter i: Knr:3201 Gnr:7 Bnr:341 Snr:45
Rettighet hefter i: Knr:3201 Gnr:7 Bnr:341 Snr:46
Rettighet hefter i: Knr:3201 Gnr:7 Bnr:341 Snr:47
Rettighet hefter i: Knr:3201 Gnr:7 Bnr:341 Snr:48
Rettighet hefter i: Knr:3201 Gnr:7 Bnr:341 Snr:49
Rettighet hefter i: Knr:3201 Gnr:7 Bnr:341 Snr:50
Rettighet hefter i: Knr:3201 Gnr:7 Bnr:341 Snr:51
Rettighet hefter i: Knr:3201 Gnr:7 Bnr:341 Snr:52
Rettighet hefter i: Knr:3201 Gnr:7 Bnr:341 Snr:53
Rettighet hefter i: Knr:3201 Gnr:7 Bnr:341 Snr:54
Rettighet hefter i: Knr:3201 Gnr:7 Bnr:341 Snr:55
Rettighet hefter i: Knr:3201 Gnr:7 Bnr:341 Snr:56
Rettighet hefter i: Knr:3201 Gnr:7 Bnr:341 Snr:57
Rettighet hefter i: Knr:3201 Gnr:7 Bnr:341 Snr:58
Rettighet hefter i: Knr:3201 Gnr:7 Bnr:341 Snr:59
Rettighet hefter i: Knr:3201 Gnr:7 Bnr:341 Snr:60
Rettighet hefter i: Knr:3201 Gnr:7 Bnr:341 Snr:61
Rettighet hefter i: Knr:3201 Gnr:7 Bnr:341 Snr:62
Rettighet hefter i: Knr:3201 Gnr:7 Bnr:341 Snr:63
Rettighet hefter i: Knr:3201 Gnr:7 Bnr:341 Snr:64
Rettighet hefter i: Knr:3201 Gnr:7 Bnr:341 Snr:65
Rettighet hefter i: Knr:3201 Gnr:7 Bnr:341 Snr:66
Rettighet hefter i: Knr:3201 Gnr:7 Bnr:341 Snr:67
Rettighet hefter i: Knr:3201 Gnr:7 Bnr:341 Snr:68
Rettighet hefter i: Knr:3201 Gnr:7 Bnr:341 Snr:69
Rettighet hefter i: Knr:3201 Gnr:7 Bnr:341 Snr:70
Rettighet hefter i: Knr:3201 Gnr:7 Bnr:341 Snr:71
Rettighet hefter i: Knr:3201 Gnr:7 Bnr:341 Snr:72
Rettighet hefter i: Knr:3201 Gnr:7 Bnr:341 Snr:73
Rettighet hefter i: Knr:3201 Gnr:7 Bnr:341 Snr:74
Rettighet hefter i: Knr:3201 Gnr:7 Bnr:341 Snr:75
Rettighet hefter i: Knr:3201 Gnr:7 Bnr:341 Snr:76
Rettighet hefter i: Knr:3201 Gnr:7 Bnr:341 Snr:77
Rettighet hefter i: Knr:3201 Gnr:7 Bnr:341 Snr:78
Rettighet hefter i: Knr:3201 Gnr:7 Bnr:341 Snr:79
Rettighet hefter i: Knr:3201 Gnr:7 Bnr:341 Snr:80
Rettighet hefter i: Knr:3201 Gnr:7 Bnr:341 Snr:81
Rettighet hefter i: Knr:3201 Gnr:7 Bnr:341 Snr:82
Rettighet hefter i: Knr:3201 Gnr:7 Bnr:341 Snr:83
Rettighet hefter i: Knr:3201 Gnr:7 Bnr:341 Snr:84
Rettighet hefter i: Knr:3201 Gnr:7 Bnr:341 Snr:85
Rettighet hefter i: Knr:3201 Gnr:7 Bnr:341 Snr:86
Rettighet hefter i: Knr:3201 Gnr:7 Bnr:342 Snr:1
Rettighet hefter i: Knr:3201 Gnr:7 Bnr:342 Snr:2
Rettighet hefter i: Knr:3201 Gnr:7 Bnr:342 Snr:3
Rettighet hefter i: Knr:3201 Gnr:7 Bnr:342 Snr:4
Rettighet hefter i: Knr:3201 Gnr:7 Bnr:342 Snr:5
Rettighet hefter i: Knr:3201 Gnr:7 Bnr:342 Snr:6
Rettighet hefter i: Knr:3201 Gnr:7 Bnr:342 Snr:7
Rettighet hefter i: Knr:3201 Gnr:7 Bnr:342 Snr:8
Rettighet hefter i: Knr:3201 Gnr:7 Bnr:342 Snr:9
Rettighet hefter i: Knr:3201 Gnr:7 Bnr:342 Snr:10
Rettighet hefter i: Knr:3201 Gnr:7 Bnr:342 Snr:11
Rettighet hefter i: Knr:3201 Gnr:7 Bnr:342 Snr:12
Rettighet hefter i: Knr:3201 Gnr:7 Bnr:342 Snr:13
Rettighet hefter i: Knr:3201 Gnr:7 Bnr:342 Snr:14
Rettighet hefter i: Knr:3201 Gnr:7 Bnr:342 Snr:15
Rettighet hefter i: Knr:3201 Gnr:7 Bnr:342 Snr:16
Rettighet hefter i: Knr:3201 Gnr:7 Bnr:342 Snr:17
Rettighet hefter i: Knr:3201 Gnr:7 Bnr:342 Snr:18
Rettighet hefter i: Knr:3201 Gnr:7 Bnr:342 Snr:19
Rettighet hefter i: Knr:3201 Gnr:7 Bnr:342 Snr:20
Rettighet hefter i: Knr:3201 Gnr:7 Bnr:342 Snr:21
Rettighet hefter i: Knr:3201 Gnr:7 Bnr:342 Snr:22
Rettighet hefter i: Knr:3201 Gnr:7 Bnr:342 Snr:23
Rettighet hefter i: Knr:3201 Gnr:7 Bnr:342 Snr:24
Rettighet hefter i: Knr:3201 Gnr:7 Bnr:342 Snr:25
Rettighet hefter i: Knr:3201 Gnr:7 Bnr:342 Snr:26
Rettighet hefter i: Knr:3201 Gnr:7 Bnr:342 Snr:27
Rettighet hefter i: Knr:3201 Gnr:7 Bnr:342 Snr:28
Rettighet hefter i: Knr:3201 Gnr:7 Bnr:342 Snr:29
Rettighet hefter i: Knr:3201 Gnr:7 Bnr:342 Snr:30
Rettighet hefter i: Knr:3201 Gnr:7 Bnr:342 Snr:31
Rettighet hefter i: Knr:3201 Gnr:7 Bnr:342 Snr:32
Rettighet hefter i: Knr:3201 Gnr:7 Bnr:342 Snr:33
Rettighet hefter i: Knr:3201 Gnr:7 Bnr:342 Snr:34
Rettighet hefter i: Knr:3201 Gnr:7 Bnr:342 Snr:35
Rettighet hefter i: Knr:3201 Gnr:7 Bnr:342 Snr:36
Rettighet hefter i: Knr:3201 Gnr:7 Bnr:342 Snr:37
Rettighet hefter i: Knr:3201 Gnr:7 Bnr:342 Snr:38
Rettighet hefter i: Knr:3201 Gnr:7 Bnr:342 Snr:39
Rettighet hefter i: Knr:3201 Gnr:7 Bnr:342 Snr:40
Rettighet hefter i: Knr:3201 Gnr:7 Bnr:342 Snr:41
Rettighet hefter i: Knr:3201 Gnr:7 Bnr:342 Snr:42
Rettighet hefter i: Knr:3201 Gnr:7 Bnr:342 Snr:43
Rettighet hefter i: Knr:3201 Gnr:7 Bnr:342 Snr:44
Rettighet hefter i: Knr:3201 Gnr:7 Bnr:342 Snr:45
Rettighet hefter i: Knr:3201 Gnr:7 Bnr:342 Snr:46
Rettighet hefter i: Knr:3201 Gnr:7 Bnr:342 Snr:47
Rettighet hefter i: Knr:3201 Gnr:7 Bnr:342 Snr:48
Rettighet hefter i: Knr:3201 Gnr:7 Bnr:342 Snr:49
Rettighet hefter i: Knr:3201 Gnr:7 Bnr:342 Snr:50
Rettighet hefter i: Knr:3201 Gnr:7 Bnr:342 Snr:51
Rettighet hefter i: Knr:3201 Gnr:7 Bnr:342 Snr:52
Rettighet hefter i: Knr:3201 Gnr:7 Bnr:342 Snr:53
Rettighet hefter i: Knr:3201 Gnr:7 Bnr:342 Snr:54
Rettighet hefter i: Knr:3201 Gnr:7 Bnr:342 Snr:55
Rettighet hefter i: Knr:3201 Gnr:7 Bnr:342 Snr:56
Rettighet hefter i: Knr:3201 Gnr:7 Bnr:342 Snr:57
Rettighet hefter i: Knr:3201 Gnr:7 Bnr:342 Snr:58
Rettighet hefter i: Knr:3201 Gnr:7 Bnr:342 Snr:59
Rettighet hefter i: Knr:3201 Gnr:7 Bnr:342 Snr:60
Rettighet hefter i: Knr:3201 Gnr:7 Bnr:342 Snr:61
Rettighet hefter i: Knr:3201 Gnr:7 Bnr:342 Snr:62
Rettighet hefter i: Knr:3201 Gnr:7 Bnr:342 Snr:63
Rettighet hefter i: Knr:3201 Gnr:7 Bnr:342 Snr:64
Rettighet hefter i: Knr:3201 Gnr:7 Bnr:342 Snr:65
Rettighet hefter i: Knr:3201 Gnr:7 Bnr:342 Snr:66
Rettighet hefter i: Knr:3201 Gnr:7 Bnr:342 Snr:67
Rettighet hefter i: Knr:3201 Gnr:7 Bnr:342 Snr:68
Rettighet hefter i: Knr:3201 Gnr:7 Bnr:342 Snr:69
Rettighet hefter i: Knr:3201 Gnr:7 Bnr:342 Snr:70
Rettighet hefter i: Knr:3201 Gnr:7 Bnr:342 Snr:71
Rettighet hefter i: Knr:3201 Gnr:7 Bnr:342 Snr:72
Rettighet hefter i: Knr:3201 Gnr:7 Bnr:342 Snr:73
Rettighet hefter i: Knr:3201 Gnr:7 Bnr:342 Snr:74
Rettighet hefter i: Knr:3201 Gnr:7 Bnr:342 Snr:75
Rettighet hefter i: Knr:3201 Gnr:7 Bnr:342 Snr:76
Rettighet hefter i: Knr:3201 Gnr:7 Bnr:342 Snr:77
Rettighet hefter i: Knr:3201 Gnr:7 Bnr:342 Snr:78
Rettighet hefter i: Knr:3201 Gnr:7 Bnr:342 Snr:79
Rettighet hefter i: Knr:3201 Gnr:7 Bnr:342 Snr:80
Rettighet hefter i: Knr:3201 Gnr:7 Bnr:342 Snr:81
Rettighet hefter i: Knr:3201 Gnr:7 Bnr:342 Snr:82
Rettighet hefter i: Knr:3201 Gnr:7 Bnr:342 Snr:83
Rettighet hefter i: Knr:3201 Gnr:7 Bnr:342 Snr:84
Rettighet hefter i: Knr:3201 Gnr:7 Bnr:342 Snr:85
Rettighet hefter i: Knr:3201 Gnr:7 Bnr:342 Snr:86
Rettighet hefter i: Knr:3201 Gnr:7 Bnr:342 Snr:87
Rettighet hefter i: Knr:3201 Gnr:7 Bnr:342 Snr:88
Rettighet hefter i: Knr:3201 Gnr:7 Bnr:342 Snr:89
Rettighet hefter i: Knr:3201 Gnr:7 Bnr:342 Snr:90
Rettighet hefter i: Knr:3201 Gnr:7 Bnr:342 Snr:91
Rettighet hefter i: Knr:3201 Gnr:7 Bnr:342 Snr:92
Rettighet hefter i: Knr:3201 Gnr:7 Bnr:342 Snr:93
Rettighet hefter i: Knr:3201 Gnr:7 Bnr:342 Snr:94
Rettighet hefter i: Knr:3201 Gnr:7 Bnr:342 Snr:95
Rettighet hefter i: Knr:3201 Gnr:7 Bnr:342 Snr:96
Rettighet hefter i: Knr:3201 Gnr:7 Bnr:342 Snr:97
Rettighet hefter i: Knr:3201 Gnr:7 Bnr:342 Snr:98
Rettighet hefter i: Knr:3201 Gnr:7 Bnr:342 Snr:99
Rettighet hefter i: Knr:3201 Gnr:7 Bnr:342 Snr:100
Rettighet hefter i: Knr:3201 Gnr:7 Bnr:342 Snr:101
Rettighet hefter i: Knr:3201 Gnr:7 Bnr:342 Snr:102
Rettighet hefter i: Knr:3201 Gnr:7 Bnr:342 Snr:103
Rettighet hefter i: Knr:3201 Gnr:7 Bnr:342 Snr:104
Rettighet hefter i: Knr:3201 Gnr:7 Bnr:342 Snr:105
Rettighet hefter i: Knr:3201 Gnr:7 Bnr:342 Snr:106
Rettighet hefter i: Knr:3201 Gnr:7 Bnr:342 Snr:107
Rettighet hefter i: Knr:3201 Gnr:7 Bnr:342 Snr:108
Rettighet hefter i: Knr:3201 Gnr:7 Bnr:342 Snr:109
Rettighet hefter i: Knr:3201 Gnr:7 Bnr:342 Snr:110
Rettighet hefter i: Knr:3201 Gnr:7 Bnr:342 Snr:111
Rettighet hefter i: Knr:3201 Gnr:7 Bnr:342 Snr:112
Rettighet hefter i: Knr:3201 Gnr:7 Bnr:342 Snr:113
Rettighet hefter i: Knr:3201 Gnr:7 Bnr:342 Snr:114
Rettighet hefter i: Knr:3201 Gnr:7 Bnr:342 Snr:115
Rettighet hefter i: Knr:3201 Gnr:7 Bnr:342 Snr:116
Rettighet hefter i: Knr:3201 Gnr:7 Bnr:342 Snr:117
Rettighet hefter i: Knr:3201 Gnr:7 Bnr:342 Snr:118
Rettighet hefter i: Knr:3201 Gnr:7 Bnr:342 Snr:119
Rettighet hefter i: Knr:3201 Gnr:7 Bnr:342 Snr:120
Rettighet hefter i: Knr:3201 Gnr:7 Bnr:342 Snr:121
Rettighet hefter i: Knr:3201 Gnr:7 Bnr:342 Snr:122
Rettighet hefter i: Knr:3201 Gnr:7 Bnr:342 Snr:123
Rettighet hefter i: Knr:3201 Gnr:7 Bnr:342 Snr:124
Rett til å ha liggende, samt ha atkomst til solceller med tilhørende utstyr for energiproduksjon
Gjelder denne registerenheten med flere

28.02.2025 – Dokumentnr: 233742 – Seksjonering
Opprettet seksjoner:
Snr: 1
Formål: Bolig
Sameiebrøk: 58/6340
Snr: 2
Formål: Bolig
Tilleggsdel: Bygning
Sameiebrøk: 59/6340
Snr: 3
Formål: Bolig
Tilleggsdel: Bygning
Sameiebrøk: 25/6340
Snr: 4
Formål: Bolig
Tilleggsdel: Bygning
Sameiebrøk: 72/6340
Snr: 5
Formål: Bolig
Sameiebrøk: 88/6340
Snr: 6
Formål: Bolig
Sameiebrøk: 58/6340
Snr: 7
Formål: Bolig
Sameiebrøk: 57/6340
Snr: 8
Formål: Bolig
Sameiebrøk: 117/6340
Snr: 9
Formål: Bolig
Sameiebrøk: 88/6340
Snr: 10
Formål: Bolig
Sameiebrøk: 58/6340
Snr: 11
Formål: Bolig
Sameiebrøk: 57/6340
Snr: 12
Formål: Bolig
Sameiebrøk: 117/6340
Snr: 13
Formål: Bolig
Sameiebrøk: 88/6340
Snr: 14
Formål: Bolig
Sameiebrøk: 58/6340
Snr: 15
Formål: Bolig
Sameiebrøk: 57/6340
Snr: 16
Formål: Bolig
Sameiebrøk: 117/6340
Snr: 17
Formål: Bolig
Sameiebrøk: 88/6340
Snr: 18
Formål: Bolig
Sameiebrøk: 58/6340
Snr: 19
Formål: Bolig
Sameiebrøk: 57/6340
Snr: 20
Formål: Bolig
Sameiebrøk: 117/6340
Snr: 21
Formål: Bolig
Sameiebrøk: 88/6340
Snr: 22
Formål: Bolig
Sameiebrøk: 58/6340
Snr: 23
Formål: Bolig
Sameiebrøk: 57/6340
Snr: 24
Formål: Bolig
Sameiebrøk: 117/6340
Snr: 25
Formål: Bolig
Sameiebrøk: 88/6340
Snr: 26
Formål: Bolig
Sameiebrøk: 58/6340
Snr: 27
Formål: Bolig
Sameiebrøk: 57/6340
Snr: 28
Formål: Bolig
Sameiebrøk: 117/6340
Snr: 29
Formål: Bolig
Sameiebrøk: 88/6340
Snr: 30
Formål: Bolig
Sameiebrøk: 58/6340
Snr: 31
Formål: Bolig
Sameiebrøk: 57/6340
Snr: 32
Formål: Bolig
Sameiebrøk: 117/6340
Snr: 33
Formål: Bolig
Sameiebrøk: 88/6340
Snr: 34
Formål: Bolig
Sameiebrøk: 61/6340
Snr: 35
Formål: Bolig
Sameiebrøk: 175/6340
Snr: 36
Formål: Bolig
Sameiebrøk: 88/6340
Snr: 37
Formål: Bolig
Sameiebrøk: 175/6340
Snr: 38
Formål: Bolig
Sameiebrøk: 151/6340
Snr: 39
Formål: Bolig
Tilleggsdel: Bygning
Sameiebrøk: 34/6340
Snr: 40
Formål: Bolig
Sameiebrøk: 43/6340
Snr: 41
Formål: Bolig
Sameiebrøk: 46/6340
Snr: 42
Formål: Bolig
Sameiebrøk: 72/6340
Snr: 43
Formål: Bolig
Sameiebrøk: 46/6340
Snr: 44
Formål: Bolig
Sameiebrøk: 43/6340
Snr: 45
Formål: Bolig
Sameiebrøk: 46/6340
Snr: 46
Formål: Bolig
Sameiebrøk: 66/6340
Snr: 47
Formål: Bolig
Sameiebrøk: 46/6340
Snr: 48
Formål: Bolig
Sameiebrøk: 43/6340
Snr: 49
Formål: Bolig
Sameiebrøk: 46/6340
Snr: 50
Formål: Bolig
Sameiebrøk: 66/6340
Snr: 51
Formål: Bolig
Sameiebrøk: 46/6340
Snr: 52
Formål: Bolig
Sameiebrøk: 43/6340
Snr: 53
Formål: Bolig
Sameiebrøk: 46/6340
Snr: 54
Formål: Bolig
Sameiebrøk: 66/6340
Snr: 55
Formål: Bolig
Sameiebrøk: 46/6340
Snr: 56
Formål: Bolig
Sameiebrøk: 43/6340
Snr: 57
Formål: Bolig
Sameiebrøk: 46/6340
Snr: 58
Formål: Bolig
Sameiebrøk: 66/6340
Snr: 59
Formål: Bolig
Sameiebrøk: 46/6340
Snr: 60
Formål: Bolig
Sameiebrøk: 43/6340
Snr: 61
Formål: Bolig
Sameiebrøk: 46/6340
Snr: 62
Formål: Bolig
Sameiebrøk: 66/6340
Snr: 63
Formål: Bolig
Sameiebrøk: 46/6340
Snr: 64
Formål: Bolig
Sameiebrøk: 43/6340
Snr: 65
Formål: Bolig
Sameiebrøk: 46/6340
Snr: 66
Formål: Bolig
Sameiebrøk: 66/6340
Snr: 67
Formål: Bolig
Sameiebrøk: 46/6340
Snr: 68
Formål: Bolig
Sameiebrøk: 43/6340
Snr: 69
Formål: Bolig
Sameiebrøk: 46/6340
Snr: 70
Formål: Bolig
Sameiebrøk: 66/6340
Snr: 71
Formål: Bolig
Tilleggsdel: Bygning
Sameiebrøk: 119/6340
Snr: 72
Formål: Bolig
Sameiebrøk: 53/6340
Snr: 73
Formål: Bolig
Tilleggsdel: Bygning
Sameiebrøk: 89/6340
Snr: 74
Formål: Bolig
Sameiebrøk: 119/6340
Snr: 75
Formål: Bolig
Sameiebrøk: 53/6340
Snr: 76
Formål: Bolig
Sameiebrøk: 100/6340
Snr: 77
Formål: Bolig
Sameiebrøk: 119/6340
Snr: 78
Formål: Bolig
Sameiebrøk: 53/6340
Snr: 79
Formål: Bolig
Sameiebrøk: 100/6340
Snr: 80
Formål: Bolig
Sameiebrøk: 119/6340
Snr: 81
Formål: Bolig
Sameiebrøk: 53/6340
Snr: 82
Formål: Bolig
Sameiebrøk: 100/6340
Snr: 83
Formål: Bolig
Sameiebrøk: 119/6340
Snr: 84
Formål: Bolig
Sameiebrøk: 53/6340
Snr: 85
Formål: Bolig
Sameiebrøk: 100/6340
Snr: 86
Formål: Bolig
Tilleggsdel: Bygning
Sameiebrøk: 197/6340
Gjelder denne registerenheten med flere

27.12.2024 – Dokumentnr: 2409960 – Registrering av grunn
Denne matrikkelenhet opprettet fra:
Knr:3201 Gnr:7 Bnr:54

28.02.2025 – Dokumentnr: 233226 – Seksjonering
Opprettet seksjoner:
Snr: 1
Formål: Bolig
Sameiebrøk: 22/8230
Snr: 2
Formål: Bolig
Sameiebrøk: 21/8230
Snr: 3
Formål: Bolig
Sameiebrøk: 21/8230
Snr: 4
Formål: Bolig
Tilleggsdel: Bygning
Sameiebrøk: 77/8230
Snr: 5
Formål: Bolig
Tilleggsdel: Bygning
Sameiebrøk: 84/8230
Snr: 6
Formål: Bolig
Tilleggsdel: Bygning
Sameiebrøk: 60/8230
Snr: 7
Formål: Bolig
Tilleggsdel: Bygning
Sameiebrøk: 63/8230
Snr: 8
Formål: Bolig
Tilleggsdel: Bygning
Sameiebrøk: 80/8230
Snr: 9
Formål: Bolig
Tilleggsdel: Bygning
Sameiebrøk: 71/8230
Snr: 10
Formål: Bolig
Sameiebrøk: 25/8230
Snr: 11
Formål: Bolig
Sameiebrøk: 22/8230
Snr: 12
Formål: Bolig
Sameiebrøk: 21/8230
Snr: 13
Formål: Bolig
Sameiebrøk: 21/8230
Snr: 14
Formål: Bolig
Sameiebrøk: 77/8230
Snr: 15
Formål: Bolig
Sameiebrøk: 84/8230
Snr: 16
Formål: Bolig
Sameiebrøk: 42/8230
Snr: 17
Formål: Bolig
Sameiebrøk: 42/8230
Snr: 18
Formål: Bolig
Sameiebrøk: 63/8230
Snr: 19
Formål: Bolig
Sameiebrøk: 80/8230
Snr: 20
Formål: Bolig
Sameiebrøk: 71/8230
Snr: 21
Formål: Bolig
Sameiebrøk: 25/8230
Snr: 22
Formål: Bolig
Sameiebrøk: 22/8230
Snr: 23
Formål: Bolig
Sameiebrøk: 21/8230
Snr: 24
Formål: Bolig
Sameiebrøk: 21/8230
Snr: 25
Formål: Bolig
Sameiebrøk: 77/8230
Snr: 26
Formål: Bolig
Sameiebrøk: 84/8230
Snr: 27
Formål: Bolig
Sameiebrøk: 42/8230
Snr: 28
Formål: Bolig
Sameiebrøk: 42/8230
Snr: 29
Formål: Bolig
Sameiebrøk: 63/8230
Snr: 30
Formål: Bolig
Sameiebrøk: 80/8230
Snr: 31
Formål: Bolig
Sameiebrøk: 71/8230
Snr: 32
Formål: Bolig
Sameiebrøk: 25/8230
Snr: 33
Formål: Bolig
Sameiebrøk: 22/8230
Snr: 34
Formål: Bolig
Sameiebrøk: 21/8230
Snr: 35
Formål: Bolig
Sameiebrøk: 21/8230
Snr: 36
Formål: Bolig
Sameiebrøk: 77/8230
Snr: 37
Formål: Bolig
Sameiebrøk: 84/8230
Snr: 38
Formål: Bolig
Sameiebrøk: 42/8230
Snr: 39
Formål: Bolig
Sameiebrøk: 42/8230
Snr: 40
Formål: Bolig
Sameiebrøk: 63/8230
Snr: 41
Formål: Bolig
Sameiebrøk: 80/8230
Snr: 42
Formål: Bolig
Sameiebrøk: 71/8230
Snr: 43
Formål: Bolig
Sameiebrøk: 25/8230
Snr: 44
Formål: Bolig
Sameiebrøk: 22/8230
Snr: 45
Formål: Bolig
Sameiebrøk: 21/8230
Snr: 46
Formål: Bolig
Sameiebrøk: 21/8230
Snr: 47
Formål: Bolig
Sameiebrøk: 77/8230
Snr: 48
Formål: Bolig
Sameiebrøk: 84/8230
Snr: 49
Formål: Bolig
Sameiebrøk: 42/8230
Snr: 50
Formål: Bolig
Sameiebrøk: 42/8230
Snr: 51
Formål: Bolig
Sameiebrøk: 63/8230
Snr: 52
Formål: Bolig
Sameiebrøk: 80/8230
Snr: 53
Formål: Bolig
Sameiebrøk: 71/8230
Snr: 54
Formål: Bolig
Sameiebrøk: 25/8230
Snr: 55
Formål: Bolig
Sameiebrøk: 22/8230
Snr: 56
Formål: Bolig
Sameiebrøk: 21/8230
Snr: 57
Formål: Bolig
Sameiebrøk: 21/8230
Snr: 58
Formål: Bolig
Sameiebrøk: 77/8230
Snr: 59
Formål: Bolig
Sameiebrøk: 84/8230
Snr: 60
Formål: Bolig
Sameiebrøk: 42/8230
Snr: 61
Formål: Bolig
Sameiebrøk: 42/8230
Snr: 62
Formål: Bolig
Sameiebrøk: 63/8230
Snr: 63
Formål: Bolig
Sameiebrøk: 80/8230
Snr: 64
Formål: Bolig
Sameiebrøk: 71/8230
Snr: 65
Formål: Bolig
Sameiebrøk: 25/8230
Snr: 66
Formål: Bolig
Sameiebrøk: 22/8230
Snr: 67
Formål: Bolig
Sameiebrøk: 21/8230
Snr: 68
Formål: Bolig
Sameiebrøk: 21/8230
Snr: 69
Formål: Bolig
Sameiebrøk: 172/8230
Snr: 70
Formål: Bolig
Sameiebrøk: 42/8230
Snr: 71
Formål: Bolig
Sameiebrøk: 42/8230
Snr: 72
Formål: Bolig
Sameiebrøk: 63/8230
Snr: 73
Formål: Bolig
Sameiebrøk: 80/8230
Snr: 74
Formål: Bolig
Sameiebrøk: 71/8230
Snr: 75
Formål: Bolig
Sameiebrøk: 25/8230
Snr: 76
Formål: Bolig
Sameiebrøk: 22/8230
Snr: 77
Formål: Bolig
Sameiebrøk: 21/8230
Snr: 78
Formål: Bolig
Sameiebrøk: 21/8230
Snr: 79
Formål: Bolig
Sameiebrøk: 172/8230
Snr: 80
Formål: Bolig
Sameiebrøk: 42/8230
Snr: 81
Formål: Bolig
Sameiebrøk: 42/8230
Snr: 82
Formål: Bolig
Sameiebrøk: 63/8230
Snr: 83
Formål: Bolig
Sameiebrøk: 80/8230
Snr: 84
Formål: Bolig
Sameiebrøk: 71/8230
Snr: 85
Formål: Bolig
Sameiebrøk: 25/8230
Snr: 86
Formål: Bolig
Tilleggsdel: Bygning
Sameiebrøk: 168/8230
Snr: 87
Formål: Bolig
Tilleggsdel: Bygning
Sameiebrøk: 128/8230
Snr: 88
Formål: Bolig
Tilleggsdel: Bygning
Sameiebrøk: 63/8230
Snr: 89
Formål: Bolig
Tilleggsdel: Bygning
Sameiebrøk: 164/8230
Snr: 90
Formål: Bolig
Sameiebrøk: 109/8230
Snr: 91
Formål: Bolig
Sameiebrøk: 63/8230
Snr: 92
Formål: Bolig
Sameiebrøk: 54/8230
Snr: 93
Formål: Bolig
Sameiebrøk: 119/8230
Snr: 94
Formål: Bolig
Sameiebrøk: 109/8230
Snr: 95
Formål: Bolig
Sameiebrøk: 63/8230
Snr: 96
Formål: Bolig
Sameiebrøk: 54/8230
Snr: 97
Formål: Bolig
Sameiebrøk: 118/8230
Snr: 98
Formål: Bolig
Sameiebrøk: 109/8230
Snr: 99
Formål: Bolig
Sameiebrøk: 63/8230
Snr: 100
Formål: Bolig
Sameiebrøk: 54/8230
Snr: 101
Formål: Bolig
Sameiebrøk: 119/8230
Snr: 102
Formål: Bolig
Sameiebrøk: 109/8230
Snr: 103
Formål: Bolig
Sameiebrøk: 63/8230
Snr: 104
Formål: Bolig
Sameiebrøk: 54/8230
Snr: 105
Formål: Bolig
Sameiebrøk: 119/8230
Snr: 106
Formål: Bolig
Sameiebrøk: 109/8230
Snr: 107
Formål: Bolig
Tilleggsdel: Bygning
Sameiebrøk: 125/8230
Snr: 108
Formål: Bolig
Tilleggsdel: Bygning
Sameiebrøk: 124/8230
Snr: 109
Formål: Bolig
Tilleggsdel: Bygning
Sameiebrøk: 108/8230
Snr: 110
Formål: Bolig
Tilleggsdel: Bygning
Sameiebrøk: 63/8230
Snr: 111
Formål: Bolig
Tilleggsdel: Bygning
Sameiebrøk: 108/8230
Snr: 112
Formål: Bolig
Sameiebrøk: 117/8230
Snr: 113
Formål: Bolig
Sameiebrøk: 63/8230
Snr: 114
Formål: Bolig
Sameiebrøk: 108/8230
Snr: 115
Formål: Bolig
Sameiebrøk: 117/8230
Snr: 116
Formål: Bolig
Sameiebrøk: 63/8230
Snr: 117
Formål: Bolig
Sameiebrøk: 108/8230
Snr: 118
Formål: Bolig
Sameiebrøk: 117/8230
Snr: 119
Formål: Bolig
Sameiebrøk: 63/8230
Snr: 120
Formål: Bolig
Sameiebrøk: 108/8230
Snr: 121
Formål: Bolig
Sameiebrøk: 121/8230
Snr: 122
Formål: Bolig
Sameiebrøk: 146/8230
Snr: 123
Formål: Bolig
Tilleggsdel: Bygning
Sameiebrøk: 177/8230
Snr: 124
Formål: Næring
Sameiebrøk: 1/8230
Gjelder denne registerenheten med flere

3201/7/342:
30.06.2004 – Dokumentnr: 18683 – Erklæring/avtale
Bestemmelse om garasje/parkering
Med flere bestemmelser
Gjelder denne registerenheten med flere

05.03.2021 – Dokumentnr: 276938 – Registerenheten kan ikke disponeres over uten samtykke fra rettighetshaver
Rettighetshaver: Røisland & Co Eiendomsmegling AS
Org.nr: 994 194 410
Overført fra: Knr:3024 Gnr:7 Bnr:54 Snr:4 m.fl.
Gjelder denne registerenheten med flere
———-
Prioritetsbestemmelse
Veket for: Pantedokument 2022/232640-1/200
Gjelder denne registerenheten med flere

04.09.1973 – Dokumentnr: 12589 – Registrering av grunn
Denne matrikkelenhet opprettet fra:
Knr:3024 Gnr:7 Bnr:53

01.03.1974 – Dokumentnr: 990173 – Sammenslåing
Sammenslått med denne matrikkelenhet:
Knr:0219 Gnr:7 Bnr:245

01.01.2020 – Dokumentnr: 1732173 – Omnummerering ved kommuneendring
Tidligere: Knr:0219 Gnr:7 Bnr:244

10.06.2022 – Dokumentnr: 625244 – Registrering av grunn
Utskilt fra denne matrikkelenhet:
Knr:3024 Gnr:7 Bnr:328

21.03.1974 – Dokumentnr: 4336 – Best. om adkomstrett
Rettighet hefter i: Knr:3201 Gnr:7 Bnr:247 Snr:1

29.04.2011 – Dokumentnr: 324885 – Bestemmelse om veg
Rettighet hefter i: Knr:3201 Gnr:7 Bnr:316

17.12.1915 – Dokumentnr: 900209 – Bestemmelse om gjerde
Med flere bestemmelser
Overført fra: Knr:3024 Gnr:7 Bnr:54 Snr:10 m.fl.
Gjelder denne registerenheten med flere

16.12.1927 – Dokumentnr: 900595 – Bestemmelse om bebyggelse
Overført fra: Knr:3024 Gnr:7 Bnr:54 Snr:3 m.fl.
Gjelder denne registerenheten med flere

09.02.1952 – Dokumentnr: 901 – Bestemmelse om vannledn.
Kan ikke slettes uten samtykke fra kommunen
Overført fra: Knr:3024 Gnr:7 Bnr:54 Snr:8 m.fl.
Gjelder denne registerenheten med flere

28.12.1953 – Dokumentnr: 9998 – Bestemmelse om vannledn.
Kan ikke slettes uten samtykke fra kommunen
Overført fra: Knr:3024 Gnr:7 Bnr:54 Snr:12 m.fl.
Gjelder denne registerenheten med flere

28.01.1975 – Dokumentnr: 1326 – Best. om vann/kloakkledn.
Kan ikke slettes uten samtykke fra kommunen
Overført fra: Knr:3024 Gnr:7 Bnr:54 Snr:11 m.fl.
Gjelder denne registerenheten med flere

12.05.2003 – Dokumentnr: 12126 – Erklæring/avtale
Motstrid mellom sum teller og nevner i eierseksjonssameie
Overført fra: Knr:3024 Gnr:7 Bnr:54 Snr:10 m.fl.
Gjelder denne registerenheten med flere

11.11.2022 – Dokumentnr: 1283255 – Bestemmelse om nettstasjon
Rettighetshaver: Elvia AS
Org.nr: 980 489 698
Adkomstrett for drift og vedlikehold av anlegg/ledninger/kabler
Bestemmelse om bebyggelse i nærheten av anlegg/ledninger/kabler
Bestemmelse om endring i terrenget i nærheten av anlegg/ledninger/kabler
Gjelder denne registerenheten med flere

16.09.1906 – Dokumentnr: 900090 – Bestemmelse om gjerde
Bestemmelse om generende virksomhet
Bestemmelse om vann/kloakkledning
Med flere bestemmelser
Overført fra: Knr:3024 Gnr:7 Bnr:325 m.fl.
Gjelder denne registerenheten med flere

21.02.1955 – Dokumentnr: 164 – Bestemmelse om vannledn.
Bestemmelse om veg
Med flere bestemmelser
Overført fra: Knr:3024 Gnr:7 Bnr:325 m.fl.
Gjelder denne registerenheten med flere

19.08.1970 – Dokumentnr: 306253 – Erklæring/avtale
BESTEMMELSE OM KLOAKKRENSEANLEGG
Kan ikke slettes uten samtykke fra kommunen
Overført fra: Knr:3024 Gnr:7 Bnr:325 m.fl.
Gjelder denne registerenheten med flere

12.12.2023 – Dokumentnr: 1388587 – Sammenslåing
Sammenslått med denne matrikkelenhet:
Knr:3024 Gnr:7 Bnr:327
Sammenslått med denne matrikkelenhet:
Knr:3024 Gnr:7 Bnr:329
Sammenslått med denne matrikkelenhet:
Knr:3024 Gnr:7 Bnr:336

01.01.2024 – Dokumentnr: 23762 – Omnummerering ved kommuneendring
Tidligere: Knr:3024 Gnr:7 Bnr:244

05.03.2025 – Dokumentnr: 254991 – Bestemmelse om adkomstrett
Rettighetshaver: Knr:3201 Gnr:7 Bnr:342 Snr:1
Rettighetshaver: Knr:3201 Gnr:7 Bnr:342 Snr:2
Rettighetshaver: Knr:3201 Gnr:7 Bnr:342 Snr:3
Rettighetshaver: Knr:3201 Gnr:7 Bnr:342 Snr:4
Rettighetshaver: Knr:3201 Gnr:7 Bnr:342 Snr:5
Rettighetshaver: Knr:3201 Gnr:7 Bnr:342 Snr:6
Rettighetshaver: Knr:3201 Gnr:7 Bnr:342 Snr:7
Rettighetshaver: Knr:3201 Gnr:7 Bnr:342 Snr:8
Rettighetshaver: Knr:3201 Gnr:7 Bnr:342 Snr:9
Rettighetshaver: Knr:3201 Gnr:7 Bnr:342 Snr:10
Rettighetshaver: Knr:3201 Gnr:7 Bnr:342 Snr:11
Rettighetshaver: Knr:3201 Gnr:7 Bnr:342 Snr:12
Rettighetshaver: Knr:3201 Gnr:7 Bnr:342 Snr:13
Rettighetshaver: Knr:3201 Gnr:7 Bnr:342 Snr:14
Rettighetshaver: Knr:3201 Gnr:7 Bnr:342 Snr:15
Rettighetshaver: Knr:3201 Gnr:7 Bnr:342 Snr:16
Rettighetshaver: Knr:3201 Gnr:7 Bnr:342 Snr:17
Rettighetshaver: Knr:3201 Gnr:7 Bnr:342 Snr:18
Rettighetshaver: Knr:3201 Gnr:7 Bnr:342 Snr:19
Rettighetshaver: Knr:3201 Gnr:7 Bnr:342 Snr:20
Rettighetshaver: Knr:3201 Gnr:7 Bnr:342 Snr:21
Rettighetshaver: Knr:3201 Gnr:7 Bnr:342 Snr:22
Rettighetshaver: Knr:3201 Gnr:7 Bnr:342 Snr:23
Rettighetshaver: Knr:3201 Gnr:7 Bnr:342 Snr:24
Rettighetshaver: Knr:3201 Gnr:7 Bnr:342 Snr:25
Rettighetshaver: Knr:3201 Gnr:7 Bnr:342 Snr:26
Rettighetshaver: Knr:3201 Gnr:7 Bnr:342 Snr:27
Rettighetshaver: Knr:3201 Gnr:7 Bnr:342 Snr:28
Rettighetshaver: Knr:3201 Gnr:7 Bnr:342 Snr:29
Rettighetshaver: Knr:3201 Gnr:7 Bnr:342 Snr:30
Rettighetshaver: Knr:3201 Gnr:7 Bnr:342 Snr:31
Rettighetshaver: Knr:3201 Gnr:7 Bnr:342 Snr:32
Rettighetshaver: Knr:3201 Gnr:7 Bnr:342 Snr:33
Rettighetshaver: Knr:3201 Gnr:7 Bnr:342 Snr:34
Rettighetshaver: Knr:3201 Gnr:7 Bnr:342 Snr:35
Rettighetshaver: Knr:3201 Gnr:7 Bnr:342 Snr:36
Rettighetshaver: Knr:3201 Gnr:7 Bnr:342 Snr:37
Rettighetshaver: Knr:3201 Gnr:7 Bnr:342 Snr:38
Rettighetshaver: Knr:3201 Gnr:7 Bnr:342 Snr:39
Rettighetshaver: Knr:3201 Gnr:7 Bnr:342 Snr:40
Rettighetshaver: Knr:3201 Gnr:7 Bnr:342 Snr:41
Rettighetshaver: Knr:3201 Gnr:7 Bnr:342 Snr:42
Rettighetshaver: Knr:3201 Gnr:7 Bnr:342 Snr:43
Rettighetshaver: Knr:3201 Gnr:7 Bnr:342 Snr:44
Rettighetshaver: Knr:3201 Gnr:7 Bnr:342 Snr:45
Rettighetshaver: Knr:3201 Gnr:7 Bnr:342 Snr:46
Rettighetshaver: Knr:3201 Gnr:7 Bnr:342 Snr:47
Rettighetshaver: Knr:3201 Gnr:7 Bnr:342 Snr:48
Rettighetshaver: Knr:3201 Gnr:7 Bnr:342 Snr:49
Rettighetshaver: Knr:3201 Gnr:7 Bnr:342 Snr:50
Rettighetshaver: Knr:3201 Gnr:7 Bnr:342 Snr:51
Rettighetshaver: Knr:3201 Gnr:7 Bnr:342 Snr:52
Rettighetshaver: Knr:3201 Gnr:7 Bnr:342 Snr:53
Rettighetshaver: Knr:3201 Gnr:7 Bnr:342 Snr:54
Rettighetshaver: Knr:3201 Gnr:7 Bnr:342 Snr:55
Rettighetshaver: Knr:3201 Gnr:7 Bnr:342 Snr:56
Rettighetshaver: Knr:3201 Gnr:7 Bnr:342 Snr:57
Rettighetshaver: Knr:3201 Gnr:7 Bnr:342 Snr:58
Rettighetshaver: Knr:3201 Gnr:7 Bnr:342 Snr:59
Rettighetshaver: Knr:3201 Gnr:7 Bnr:342 Snr:60
Rettighetshaver: Knr:3201 Gnr:7 Bnr:342 Snr:61
Rettighetshaver: Knr:3201 Gnr:7 Bnr:342 Snr:62
Rettighetshaver: Knr:3201 Gnr:7 Bnr:342 Snr:63
Rettighetshaver: Knr:3201 Gnr:7 Bnr:342 Snr:64
Rettighetshaver: Knr:3201 Gnr:7 Bnr:342 Snr:65
Rettighetshaver: Knr:3201 Gnr:7 Bnr:342 Snr:66
Rettighetshaver: Knr:3201 Gnr:7 Bnr:342 Snr:67
Rettighetshaver: Knr:3201 Gnr:7 Bnr:342 Snr:68
Rettighetshaver: Knr:3201 Gnr:7 Bnr:342 Snr:69
Rettighetshaver: Knr:3201 Gnr:7 Bnr:342 Snr:70
Rettighetshaver: Knr:3201 Gnr:7 Bnr:342 Snr:71
Rettighetshaver: Knr:3201 Gnr:7 Bnr:342 Snr:72
Rettighetshaver: Knr:3201 Gnr:7 Bnr:342 Snr:73
Rettighetshaver: Knr:3201 Gnr:7 Bnr:342 Snr:74
Rettighetshaver: Knr:3201 Gnr:7 Bnr:342 Snr:75
Rettighetshaver: Knr:3201 Gnr:7 Bnr:342 Snr:76
Rettighetshaver: Knr:3201 Gnr:7 Bnr:342 Snr:77
Rettighetshaver: Knr:3201 Gnr:7 Bnr:342 Snr:78
Rettighetshaver: Knr:3201 Gnr:7 Bnr:342 Snr:79
Rettighetshaver: Knr:3201 Gnr:7 Bnr:342 Snr:80
Rettighetshaver: Knr:3201 Gnr:7 Bnr:342 Snr:81
Rettighetshaver: Knr:3201 Gnr:7 Bnr:342 Snr:82
Rettighetshaver: Knr:3201 Gnr:7 Bnr:342 Snr:83
Rettighetshaver: Knr:3201 Gnr:7 Bnr:342 Snr:84
Rettighetshaver: Knr:3201 Gnr:7 Bnr:342 Snr:85
Rettighetshaver: Knr:3201 Gnr:7 Bnr:342 Snr:86
Rettighetshaver: Knr:3201 Gnr:7 Bnr:342 Snr:87
Rettighetshaver: Knr:3201 Gnr:7 Bnr:342 Snr:88
Rettighetshaver: Knr:3201 Gnr:7 Bnr:342 Snr:89
Rettighetshaver: Knr:3201 Gnr:7 Bnr:342 Snr:90
Rettighetshaver: Knr:3201 Gnr:7 Bnr:342 Snr:91
Rettighetshaver: Knr:3201 Gnr:7 Bnr:342 Snr:92
Rettighetshaver: Knr:3201 Gnr:7 Bnr:342 Snr:93
Rettighetshaver: Knr:3201 Gnr:7 Bnr:342 Snr:94
Rettighetshaver: Knr:3201 Gnr:7 Bnr:342 Snr:95
Rettighetshaver: Knr:3201 Gnr:7 Bnr:342 Snr:96
Rettighetshaver: Knr:3201 Gnr:7 Bnr:342 Snr:97
Rettighetshaver: Knr:3201 Gnr:7 Bnr:342 Snr:98
Rettighetshaver: Knr:3201 Gnr:7 Bnr:342 Snr:99
Rettighetshaver: Knr:3201 Gnr:7 Bnr:342 Snr:100
Rettighetshaver: Knr:3201 Gnr:7 Bnr:342 Snr:101
Rettighetshaver: Knr:3201 Gnr:7 Bnr:342 Snr:102
Rettighetshaver: Knr:3201 Gnr:7 Bnr:342 Snr:103
Rettighetshaver: Knr:3201 Gnr:7 Bnr:342 Snr:104
Rettighetshaver: Knr:3201 Gnr:7 Bnr:342 Snr:105
Rettighetshaver: Knr:3201 Gnr:7 Bnr:342 Snr:106
Rettighetshaver: Knr:3201 Gnr:7 Bnr:342 Snr:107
Rettighetshaver: Knr:3201 Gnr:7 Bnr:342 Snr:108
Rettighetshaver: Knr:3201 Gnr:7 Bnr:342 Snr:109
Rettighetshaver: Knr:3201 Gnr:7 Bnr:342 Snr:110
Rettighetshaver: Knr:3201 Gnr:7 Bnr:342 Snr:111
Rettighetshaver: Knr:3201 Gnr:7 Bnr:342 Snr:112
Rettighetshaver: Knr:3201 Gnr:7 Bnr:342 Snr:113
Rettighetshaver: Knr:3201 Gnr:7 Bnr:342 Snr:114
Rettighetshaver: Knr:3201 Gnr:7 Bnr:342 Snr:115
Rettighetshaver: Knr:3201 Gnr:7 Bnr:342 Snr:116
Rettighetshaver: Knr:3201 Gnr:7 Bnr:342 Snr:117
Rettighetshaver: Knr:3201 Gnr:7 Bnr:342 Snr:118
Rettighetshaver: Knr:3201 Gnr:7 Bnr:342 Snr:119
Rettighetshaver: Knr:3201 Gnr:7 Bnr:342 Snr:120
Rettighetshaver: Knr:3201 Gnr:7 Bnr:342 Snr:121
Rettighetshaver: Knr:3201 Gnr:7 Bnr:342 Snr:122
Rettighetshaver: Knr:3201 Gnr:7 Bnr:342 Snr:123
Rettighetshaver: Knr:3201 Gnr:7 Bnr:342 Snr:124
Bestemmelse om vedlikehold
Gjelder denne registerenheten med flere

05.03.2025 – Dokumentnr: 254991 – Erklæring/avtale
Bestemmelse om vedlikehold av tak og taktekking i gnr. 7 bnr. 339, 340, 341 og 342
Gjelder denne registerenheten med flere

05.03.2025 – Dokumentnr: 254991 – Erklæring/avtale
Gjensidig rett til å ha liggende, samt atkomst til, nødvendig tekisk infrastruktur på og i hverandres eiendommer
Gjelder denne registerenheten med flere

27.12.2024 – Dokumentnr: 2409951 – Registrering av grunn
Utskilt fra denne matrikkelenhet:
Knr:3201 Gnr:7 Bnr:338

27.12.2024 – Dokumentnr: 2409953 – Registrering av grunn
Utskilt fra denne matrikkelenhet:
Knr:3201 Gnr:7 Bnr:339

27.12.2024 – Dokumentnr: 2409958 – Registrering av grunn
Denne matrikkelenhet opprettet fra:
Knr:3201 Gnr:7 Bnr:244

15.04.2024 – Dokumentnr: 1318813 – Erklæring/avtale
Rettighet hefter i: Knr:3201 Gnr:7 Bnr:322
Kan ikke slettes uten samtykke fra: Bærum Kommune
Org.nr: 935 478 715
Bestemmelse om gangbru

05.03.2025 – Dokumentnr: 254991 – Erklæring/avtale
Rettighet hefter i: Knr:3201 Gnr:7 Bnr:341 Snr:1
Rettighet hefter i: Knr:3201 Gnr:7 Bnr:341 Snr:2
Rettighet hefter i: Knr:3201 Gnr:7 Bnr:341 Snr:3
Rettighet hefter i: Knr:3201 Gnr:7 Bnr:341 Snr:4
Rettighet hefter i: Knr:3201 Gnr:7 Bnr:341 Snr:5
Rettighet hefter i: Knr:3201 Gnr:7 Bnr:341 Snr:6
Rettighet hefter i: Knr:3201 Gnr:7 Bnr:341 Snr:7
Rettighet hefter i: Knr:3201 Gnr:7 Bnr:341 Snr:8
Rettighet hefter i: Knr:3201 Gnr:7 Bnr:341 Snr:9
Rettighet hefter i: Knr:3201 Gnr:7 Bnr:341 Snr:10
Rettighet hefter i: Knr:3201 Gnr:7 Bnr:341 Snr:11
Rettighet hefter i: Knr:3201 Gnr:7 Bnr:341 Snr:12
Rettighet hefter i: Knr:3201 Gnr:7 Bnr:341 Snr:13
Rettighet hefter i: Knr:3201 Gnr:7 Bnr:341 Snr:14
Rettighet hefter i: Knr:3201 Gnr:7 Bnr:341 Snr:15
Rettighet hefter i: Knr:3201 Gnr:7 Bnr:341 Snr:16
Rettighet hefter i: Knr:3201 Gnr:7 Bnr:341 Snr:17
Rettighet hefter i: Knr:3201 Gnr:7 Bnr:341 Snr:18
Rettighet hefter i: Knr:3201 Gnr:7 Bnr:341 Snr:19
Rettighet hefter i: Knr:3201 Gnr:7 Bnr:341 Snr:20
Rettighet hefter i: Knr:3201 Gnr:7 Bnr:341 Snr:21
Rettighet hefter i: Knr:3201 Gnr:7 Bnr:341 Snr:22
Rettighet hefter i: Knr:3201 Gnr:7 Bnr:341 Snr:23
Rettighet hefter i: Knr:3201 Gnr:7 Bnr:341 Snr:24
Rettighet hefter i: Knr:3201 Gnr:7 Bnr:341 Snr:25
Rettighet hefter i: Knr:3201 Gnr:7 Bnr:341 Snr:26
Rettighet hefter i: Knr:3201 Gnr:7 Bnr:341 Snr:27
Rettighet hefter i: Knr:3201 Gnr:7 Bnr:341 Snr:28
Rettighet hefter i: Knr:3201 Gnr:7 Bnr:341 Snr:29
Rettighet hefter i: Knr:3201 Gnr:7 Bnr:341 Snr:30
Rettighet hefter i: Knr:3201 Gnr:7 Bnr:341 Snr:31
Rettighet hefter i: Knr:3201 Gnr:7 Bnr:341 Snr:32
Rettighet hefter i: Knr:3201 Gnr:7 Bnr:341 Snr:33
Rettighet hefter i: Knr:3201 Gnr:7 Bnr:341 Snr:34
Rettighet hefter i: Knr:3201 Gnr:7 Bnr:341 Snr:35
Rettighet hefter i: Knr:3201 Gnr:7 Bnr:341 Snr:36
Rettighet hefter i: Knr:3201 Gnr:7 Bnr:341 Snr:37
Rettighet hefter i: Knr:3201 Gnr:7 Bnr:341 Snr:38
Rettighet hefter i: Knr:3201 Gnr:7 Bnr:341 Snr:39
Rettighet hefter i: Knr:3201 Gnr:7 Bnr:341 Snr:40
Rettighet hefter i: Knr:3201 Gnr:7 Bnr:341 Snr:41
Rettighet hefter i: Knr:3201 Gnr:7 Bnr:341 Snr:42
Rettighet hefter i: Knr:3201 Gnr:7 Bnr:341 Snr:43
Rettighet hefter i: Knr:3201 Gnr:7 Bnr:341 Snr:44
Rettighet hefter i: Knr:3201 Gnr:7 Bnr:341 Snr:45
Rettighet hefter i: Knr:3201 Gnr:7 Bnr:341 Snr:46
Rettighet hefter i: Knr:3201 Gnr:7 Bnr:341 Snr:47
Rettighet hefter i: Knr:3201 Gnr:7 Bnr:341 Snr:48
Rettighet hefter i: Knr:3201 Gnr:7 Bnr:341 Snr:49
Rettighet hefter i: Knr:3201 Gnr:7 Bnr:341 Snr:50
Rettighet hefter i: Knr:3201 Gnr:7 Bnr:341 Snr:51
Rettighet hefter i: Knr:3201 Gnr:7 Bnr:341 Snr:52
Rettighet hefter i: Knr:3201 Gnr:7 Bnr:341 Snr:53
Rettighet hefter i: Knr:3201 Gnr:7 Bnr:341 Snr:54
Rettighet hefter i: Knr:3201 Gnr:7 Bnr:341 Snr:55
Rettighet hefter i: Knr:3201 Gnr:7 Bnr:341 Snr:56
Rettighet hefter i: Knr:3201 Gnr:7 Bnr:341 Snr:57
Rettighet hefter i: Knr:3201 Gnr:7 Bnr:341 Snr:58
Rettighet hefter i: Knr:3201 Gnr:7 Bnr:341 Snr:59
Rettighet hefter i: Knr:3201 Gnr:7 Bnr:341 Snr:60
Rettighet hefter i: Knr:3201 Gnr:7 Bnr:341 Snr:61
Rettighet hefter i: Knr:3201 Gnr:7 Bnr:341 Snr:62
Rettighet hefter i: Knr:3201 Gnr:7 Bnr:341 Snr:63
Rettighet hefter i: Knr:3201 Gnr:7 Bnr:341 Snr:64
Rettighet hefter i: Knr:3201 Gnr:7 Bnr:341 Snr:65
Rettighet hefter i: Knr:3201 Gnr:7 Bnr:341 Snr:66
Rettighet hefter i: Knr:3201 Gnr:7 Bnr:341 Snr:67
Rettighet hefter i: Knr:3201 Gnr:7 Bnr:341 Snr:68
Rettighet hefter i: Knr:3201 Gnr:7 Bnr:341 Snr:69
Rettighet hefter i: Knr:3201 Gnr:7 Bnr:341 Snr:70
Rettighet hefter i: Knr:3201 Gnr:7 Bnr:341 Snr:71
Rettighet hefter i: Knr:3201 Gnr:7 Bnr:341 Snr:72
Rettighet hefter i: Knr:3201 Gnr:7 Bnr:341 Snr:73
Rettighet hefter i: Knr:3201 Gnr:7 Bnr:341 Snr:74
Rettighet hefter i: Knr:3201 Gnr:7 Bnr:341 Snr:75
Rettighet hefter i: Knr:3201 Gnr:7 Bnr:341 Snr:76
Rettighet hefter i: Knr:3201 Gnr:7 Bnr:341 Snr:77
Rettighet hefter i: Knr:3201 Gnr:7 Bnr:341 Snr:78
Rettighet hefter i: Knr:3201 Gnr:7 Bnr:341 Snr:79
Rettighet hefter i: Knr:3201 Gnr:7 Bnr:341 Snr:80
Rettighet hefter i: Knr:3201 Gnr:7 Bnr:341 Snr:81
Rettighet hefter i: Knr:3201 Gnr:7 Bnr:341 Snr:82
Rettighet hefter i: Knr:3201 Gnr:7 Bnr:341 Snr:83
Rettighet hefter i: Knr:3201 Gnr:7 Bnr:341 Snr:84
Rettighet hefter i: Knr:3201 Gnr:7 Bnr:341 Snr:85
Rettighet hefter i: Knr:3201 Gnr:7 Bnr:341 Snr:86
Rettighet hefter i: Knr:3201 Gnr:7 Bnr:342 Snr:1
Rettighet hefter i: Knr:3201 Gnr:7 Bnr:342 Snr:2
Rettighet hefter i: Knr:3201 Gnr:7 Bnr:342 Snr:3
Rettighet hefter i: Knr:3201 Gnr:7 Bnr:342 Snr:4
Rettighet hefter i: Knr:3201 Gnr:7 Bnr:342 Snr:5
Rettighet hefter i: Knr:3201 Gnr:7 Bnr:342 Snr:6
Rettighet hefter i: Knr:3201 Gnr:7 Bnr:342 Snr:7
Rettighet hefter i: Knr:3201 Gnr:7 Bnr:342 Snr:8
Rettighet hefter i: Knr:3201 Gnr:7 Bnr:342 Snr:9
Rettighet hefter i: Knr:3201 Gnr:7 Bnr:342 Snr:10
Rettighet hefter i: Knr:3201 Gnr:7 Bnr:342 Snr:11
Rettighet hefter i: Knr:3201 Gnr:7 Bnr:342 Snr:12
Rettighet hefter i: Knr:3201 Gnr:7 Bnr:342 Snr:13
Rettighet hefter i: Knr:3201 Gnr:7 Bnr:342 Snr:14
Rettighet hefter i: Knr:3201 Gnr:7 Bnr:342 Snr:15
Rettighet hefter i: Knr:3201 Gnr:7 Bnr:342 Snr:16
Rettighet hefter i: Knr:3201 Gnr:7 Bnr:342 Snr:17
Rettighet hefter i: Knr:3201 Gnr:7 Bnr:342 Snr:18
Rettighet hefter i: Knr:3201 Gnr:7 Bnr:342 Snr:19
Rettighet hefter i: Knr:3201 Gnr:7 Bnr:342 Snr:20
Rettighet hefter i: Knr:3201 Gnr:7 Bnr:342 Snr:21
Rettighet hefter i: Knr:3201 Gnr:7 Bnr:342 Snr:22
Rettighet hefter i: Knr:3201 Gnr:7 Bnr:342 Snr:23
Rettighet hefter i: Knr:3201 Gnr:7 Bnr:342 Snr:24
Rettighet hefter i: Knr:3201 Gnr:7 Bnr:342 Snr:25
Rettighet hefter i: Knr:3201 Gnr:7 Bnr:342 Snr:26
Rettighet hefter i: Knr:3201 Gnr:7 Bnr:342 Snr:27
Rettighet hefter i: Knr:3201 Gnr:7 Bnr:342 Snr:28
Rettighet hefter i: Knr:3201 Gnr:7 Bnr:342 Snr:29
Rettighet hefter i: Knr:3201 Gnr:7 Bnr:342 Snr:30
Rettighet hefter i: Knr:3201 Gnr:7 Bnr:342 Snr:31
Rettighet hefter i: Knr:3201 Gnr:7 Bnr:342 Snr:32
Rettighet hefter i: Knr:3201 Gnr:7 Bnr:342 Snr:33
Rettighet hefter i: Knr:3201 Gnr:7 Bnr:342 Snr:34
Rettighet hefter i: Knr:3201 Gnr:7 Bnr:342 Snr:35
Rettighet hefter i: Knr:3201 Gnr:7 Bnr:342 Snr:36
Rettighet hefter i: Knr:3201 Gnr:7 Bnr:342 Snr:37
Rettighet hefter i: Knr:3201 Gnr:7 Bnr:342 Snr:38
Rettighet hefter i: Knr:3201 Gnr:7 Bnr:342 Snr:39
Rettighet hefter i: Knr:3201 Gnr:7 Bnr:342 Snr:40
Rettighet hefter i: Knr:3201 Gnr:7 Bnr:342 Snr:41
Rettighet hefter i: Knr:3201 Gnr:7 Bnr:342 Snr:42
Rettighet hefter i: Knr:3201 Gnr:7 Bnr:342 Snr:43
Rettighet hefter i: Knr:3201 Gnr:7 Bnr:342 Snr:44
Rettighet hefter i: Knr:3201 Gnr:7 Bnr:342 Snr:45
Rettighet hefter i: Knr:3201 Gnr:7 Bnr:342 Snr:46
Rettighet hefter i: Knr:3201 Gnr:7 Bnr:342 Snr:47
Rettighet hefter i: Knr:3201 Gnr:7 Bnr:342 Snr:48
Rettighet hefter i: Knr:3201 Gnr:7 Bnr:342 Snr:49
Rettighet hefter i: Knr:3201 Gnr:7 Bnr:342 Snr:50
Rettighet hefter i: Knr:3201 Gnr:7 Bnr:342 Snr:51
Rettighet hefter i: Knr:3201 Gnr:7 Bnr:342 Snr:52
Rettighet hefter i: Knr:3201 Gnr:7 Bnr:342 Snr:53
Rettighet hefter i: Knr:3201 Gnr:7 Bnr:342 Snr:54
Rettighet hefter i: Knr:3201 Gnr:7 Bnr:342 Snr:55
Rettighet hefter i: Knr:3201 Gnr:7 Bnr:342 Snr:56
Rettighet hefter i: Knr:3201 Gnr:7 Bnr:342 Snr:57
Rettighet hefter i: Knr:3201 Gnr:7 Bnr:342 Snr:58
Rettighet hefter i: Knr:3201 Gnr:7 Bnr:342 Snr:59
Rettighet hefter i: Knr:3201 Gnr:7 Bnr:342 Snr:60
Rettighet hefter i: Knr:3201 Gnr:7 Bnr:342 Snr:61
Rettighet hefter i: Knr:3201 Gnr:7 Bnr:342 Snr:62
Rettighet hefter i: Knr:3201 Gnr:7 Bnr:342 Snr:63
Rettighet hefter i: Knr:3201 Gnr:7 Bnr:342 Snr:64
Rettighet hefter i: Knr:3201 Gnr:7 Bnr:342 Snr:65
Rettighet hefter i: Knr:3201 Gnr:7 Bnr:342 Snr:66
Rettighet hefter i: Knr:3201 Gnr:7 Bnr:342 Snr:67
Rettighet hefter i: Knr:3201 Gnr:7 Bnr:342 Snr:68
Rettighet hefter i: Knr:3201 Gnr:7 Bnr:342 Snr:69
Rettighet hefter i: Knr:3201 Gnr:7 Bnr:342 Snr:70
Rettighet hefter i: Knr:3201 Gnr:7 Bnr:342 Snr:71
Rettighet hefter i: Knr:3201 Gnr:7 Bnr:342 Snr:72
Rettighet hefter i: Knr:3201 Gnr:7 Bnr:342 Snr:73
Rettighet hefter i: Knr:3201 Gnr:7 Bnr:342 Snr:74
Rettighet hefter i: Knr:3201 Gnr:7 Bnr:342 Snr:75
Rettighet hefter i: Knr:3201 Gnr:7 Bnr:342 Snr:76
Rettighet hefter i: Knr:3201 Gnr:7 Bnr:342 Snr:77
Rettighet hefter i: Knr:3201 Gnr:7 Bnr:342 Snr:78
Rettighet hefter i: Knr:3201 Gnr:7 Bnr:342 Snr:79
Rettighet hefter i: Knr:3201 Gnr:7 Bnr:342 Snr:80
Rettighet hefter i: Knr:3201 Gnr:7 Bnr:342 Snr:81
Rettighet hefter i: Knr:3201 Gnr:7 Bnr:342 Snr:82
Rettighet hefter i: Knr:3201 Gnr:7 Bnr:342 Snr:83
Rettighet hefter i: Knr:3201 Gnr:7 Bnr:342 Snr:84
Rettighet hefter i: Knr:3201 Gnr:7 Bnr:342 Snr:85
Rettighet hefter i: Knr:3201 Gnr:7 Bnr:342 Snr:86
Rettighet hefter i: Knr:3201 Gnr:7 Bnr:342 Snr:87
Rettighet hefter i: Knr:3201 Gnr:7 Bnr:342 Snr:88
Rettighet hefter i: Knr:3201 Gnr:7 Bnr:342 Snr:89
Rettighet hefter i: Knr:3201 Gnr:7 Bnr:342 Snr:90
Rettighet hefter i: Knr:3201 Gnr:7 Bnr:342 Snr:91
Rettighet hefter i: Knr:3201 Gnr:7 Bnr:342 Snr:92
Rettighet hefter i: Knr:3201 Gnr:7 Bnr:342 Snr:93
Rettighet hefter i: Knr:3201 Gnr:7 Bnr:342 Snr:94
Rettighet hefter i: Knr:3201 Gnr:7 Bnr:342 Snr:95
Rettighet hefter i: Knr:3201 Gnr:7 Bnr:342 Snr:96
Rettighet hefter i: Knr:3201 Gnr:7 Bnr:342 Snr:97
Rettighet hefter i: Knr:3201 Gnr:7 Bnr:342 Snr:98
Rettighet hefter i: Knr:3201 Gnr:7 Bnr:342 Snr:99
Rettighet hefter i: Knr:3201 Gnr:7 Bnr:342 Snr:100
Rettighet hefter i: Knr:3201 Gnr:7 Bnr:342 Snr:101
Rettighet hefter i: Knr:3201 Gnr:7 Bnr:342 Snr:102
Rettighet hefter i: Knr:3201 Gnr:7 Bnr:342 Snr:103
Rettighet hefter i: Knr:3201 Gnr:7 Bnr:342 Snr:104
Rettighet hefter i: Knr:3201 Gnr:7 Bnr:342 Snr:105
Rettighet hefter i: Knr:3201 Gnr:7 Bnr:342 Snr:106
Rettighet hefter i: Knr:3201 Gnr:7 Bnr:342 Snr:107
Rettighet hefter i: Knr:3201 Gnr:7 Bnr:342 Snr:108
Rettighet hefter i: Knr:3201 Gnr:7 Bnr:342 Snr:109
Rettighet hefter i: Knr:3201 Gnr:7 Bnr:342 Snr:110
Rettighet hefter i: Knr:3201 Gnr:7 Bnr:342 Snr:111
Rettighet hefter i: Knr:3201 Gnr:7 Bnr:342 Snr:112
Rettighet hefter i: Knr:3201 Gnr:7 Bnr:342 Snr:113
Rettighet hefter i: Knr:3201 Gnr:7 Bnr:342 Snr:114
Rettighet hefter i: Knr:3201 Gnr:7 Bnr:342 Snr:115
Rettighet hefter i: Knr:3201 Gnr:7 Bnr:342 Snr:116
Rettighet hefter i: Knr:3201 Gnr:7 Bnr:342 Snr:117
Rettighet hefter i: Knr:3201 Gnr:7 Bnr:342 Snr:118
Rettighet hefter i: Knr:3201 Gnr:7 Bnr:342 Snr:119
Rettighet hefter i: Knr:3201 Gnr:7 Bnr:342 Snr:120
Rettighet hefter i: Knr:3201 Gnr:7 Bnr:342 Snr:121
Rettighet hefter i: Knr:3201 Gnr:7 Bnr:342 Snr:122
Rettighet hefter i: Knr:3201 Gnr:7 Bnr:342 Snr:123
Rettighet hefter i: Knr:3201 Gnr:7 Bnr:342 Snr:124
Rett til å ha liggende, samt atkomst til, nødvendige tekniske installasjoner
Gjelder denne registerenheten med flere

05.03.2025 – Dokumentnr: 254991 – Erklæring/avtale
Rettighet hefter i: Knr:3201 Gnr:7 Bnr:341 Snr:1
Rettighet hefter i: Knr:3201 Gnr:7 Bnr:341 Snr:2
Rettighet hefter i: Knr:3201 Gnr:7 Bnr:341 Snr:3
Rettighet hefter i: Knr:3201 Gnr:7 Bnr:341 Snr:4
Rettighet hefter i: Knr:3201 Gnr:7 Bnr:341 Snr:5
Rettighet hefter i: Knr:3201 Gnr:7 Bnr:341 Snr:6
Rettighet hefter i: Knr:3201 Gnr:7 Bnr:341 Snr:7
Rettighet hefter i: Knr:3201 Gnr:7 Bnr:341 Snr:8
Rettighet hefter i: Knr:3201 Gnr:7 Bnr:341 Snr:9
Rettighet hefter i: Knr:3201 Gnr:7 Bnr:341 Snr:10
Rettighet hefter i: Knr:3201 Gnr:7 Bnr:341 Snr:11
Rettighet hefter i: Knr:3201 Gnr:7 Bnr:341 Snr:12
Rettighet hefter i: Knr:3201 Gnr:7 Bnr:341 Snr:13
Rettighet hefter i: Knr:3201 Gnr:7 Bnr:341 Snr:14
Rettighet hefter i: Knr:3201 Gnr:7 Bnr:341 Snr:15
Rettighet hefter i: Knr:3201 Gnr:7 Bnr:341 Snr:16
Rettighet hefter i: Knr:3201 Gnr:7 Bnr:341 Snr:17
Rettighet hefter i: Knr:3201 Gnr:7 Bnr:341 Snr:18
Rettighet hefter i: Knr:3201 Gnr:7 Bnr:341 Snr:19
Rettighet hefter i: Knr:3201 Gnr:7 Bnr:341 Snr:20
Rettighet hefter i: Knr:3201 Gnr:7 Bnr:341 Snr:21
Rettighet hefter i: Knr:3201 Gnr:7 Bnr:341 Snr:22
Rettighet hefter i: Knr:3201 Gnr:7 Bnr:341 Snr:23
Rettighet hefter i: Knr:3201 Gnr:7 Bnr:341 Snr:24
Rettighet hefter i: Knr:3201 Gnr:7 Bnr:341 Snr:25
Rettighet hefter i: Knr:3201 Gnr:7 Bnr:341 Snr:26
Rettighet hefter i: Knr:3201 Gnr:7 Bnr:341 Snr:27
Rettighet hefter i: Knr:3201 Gnr:7 Bnr:341 Snr:28
Rettighet hefter i: Knr:3201 Gnr:7 Bnr:341 Snr:29
Rettighet hefter i: Knr:3201 Gnr:7 Bnr:341 Snr:30
Rettighet hefter i: Knr:3201 Gnr:7 Bnr:341 Snr:31
Rettighet hefter i: Knr:3201 Gnr:7 Bnr:341 Snr:32
Rettighet hefter i: Knr:3201 Gnr:7 Bnr:341 Snr:33
Rettighet hefter i: Knr:3201 Gnr:7 Bnr:341 Snr:34
Rettighet hefter i: Knr:3201 Gnr:7 Bnr:341 Snr:35
Rettighet hefter i: Knr:3201 Gnr:7 Bnr:341 Snr:36
Rettighet hefter i: Knr:3201 Gnr:7 Bnr:341 Snr:37
Rettighet hefter i: Knr:3201 Gnr:7 Bnr:341 Snr:38
Rettighet hefter i: Knr:3201 Gnr:7 Bnr:341 Snr:39
Rettighet hefter i: Knr:3201 Gnr:7 Bnr:341 Snr:40
Rettighet hefter i: Knr:3201 Gnr:7 Bnr:341 Snr:41
Rettighet hefter i: Knr:3201 Gnr:7 Bnr:341 Snr:42
Rettighet hefter i: Knr:3201 Gnr:7 Bnr:341 Snr:43
Rettighet hefter i: Knr:3201 Gnr:7 Bnr:341 Snr:44
Rettighet hefter i: Knr:3201 Gnr:7 Bnr:341 Snr:45
Rettighet hefter i: Knr:3201 Gnr:7 Bnr:341 Snr:46
Rettighet hefter i: Knr:3201 Gnr:7 Bnr:341 Snr:47
Rettighet hefter i: Knr:3201 Gnr:7 Bnr:341 Snr:48
Rettighet hefter i: Knr:3201 Gnr:7 Bnr:341 Snr:49
Rettighet hefter i: Knr:3201 Gnr:7 Bnr:341 Snr:50
Rettighet hefter i: Knr:3201 Gnr:7 Bnr:341 Snr:51
Rettighet hefter i: Knr:3201 Gnr:7 Bnr:341 Snr:52
Rettighet hefter i: Knr:3201 Gnr:7 Bnr:341 Snr:53
Rettighet hefter i: Knr:3201 Gnr:7 Bnr:341 Snr:54
Rettighet hefter i: Knr:3201 Gnr:7 Bnr:341 Snr:55
Rettighet hefter i: Knr:3201 Gnr:7 Bnr:341 Snr:56
Rettighet hefter i: Knr:3201 Gnr:7 Bnr:341 Snr:57
Rettighet hefter i: Knr:3201 Gnr:7 Bnr:341 Snr:58
Rettighet hefter i: Knr:3201 Gnr:7 Bnr:341 Snr:59
Rettighet hefter i: Knr:3201 Gnr:7 Bnr:341 Snr:60
Rettighet hefter i: Knr:3201 Gnr:7 Bnr:341 Snr:61
Rettighet hefter i: Knr:3201 Gnr:7 Bnr:341 Snr:62
Rettighet hefter i: Knr:3201 Gnr:7 Bnr:341 Snr:63
Rettighet hefter i: Knr:3201 Gnr:7 Bnr:341 Snr:64
Rettighet hefter i: Knr:3201 Gnr:7 Bnr:341 Snr:65
Rettighet hefter i: Knr:3201 Gnr:7 Bnr:341 Snr:66
Rettighet hefter i: Knr:3201 Gnr:7 Bnr:341 Snr:67
Rettighet hefter i: Knr:3201 Gnr:7 Bnr:341 Snr:68
Rettighet hefter i: Knr:3201 Gnr:7 Bnr:341 Snr:69
Rettighet hefter i: Knr:3201 Gnr:7 Bnr:341 Snr:70
Rettighet hefter i: Knr:3201 Gnr:7 Bnr:341 Snr:71
Rettighet hefter i: Knr:3201 Gnr:7 Bnr:341 Snr:72
Rettighet hefter i: Knr:3201 Gnr:7 Bnr:341 Snr:73
Rettighet hefter i: Knr:3201 Gnr:7 Bnr:341 Snr:74
Rettighet hefter i: Knr:3201 Gnr:7 Bnr:341 Snr:75
Rettighet hefter i: Knr:3201 Gnr:7 Bnr:341 Snr:76
Rettighet hefter i: Knr:3201 Gnr:7 Bnr:341 Snr:77
Rettighet hefter i: Knr:3201 Gnr:7 Bnr:341 Snr:78
Rettighet hefter i: Knr:3201 Gnr:7 Bnr:341 Snr:79
Rettighet hefter i: Knr:3201 Gnr:7 Bnr:341 Snr:80
Rettighet hefter i: Knr:3201 Gnr:7 Bnr:341 Snr:81
Rettighet hefter i: Knr:3201 Gnr:7 Bnr:341 Snr:82
Rettighet hefter i: Knr:3201 Gnr:7 Bnr:341 Snr:83
Rettighet hefter i: Knr:3201 Gnr:7 Bnr:341 Snr:84
Rettighet hefter i: Knr:3201 Gnr:7 Bnr:341 Snr:85
Rettighet hefter i: Knr:3201 Gnr:7 Bnr:341 Snr:86
Rettighet hefter i: Knr:3201 Gnr:7 Bnr:342 Snr:1
Rettighet hefter i: Knr:3201 Gnr:7 Bnr:342 Snr:2
Rettighet hefter i: Knr:3201 Gnr:7 Bnr:342 Snr:3
Rettighet hefter i: Knr:3201 Gnr:7 Bnr:342 Snr:4
Rettighet hefter i: Knr:3201 Gnr:7 Bnr:342 Snr:5
Rettighet hefter i: Knr:3201 Gnr:7 Bnr:342 Snr:6
Rettighet hefter i: Knr:3201 Gnr:7 Bnr:342 Snr:7
Rettighet hefter i: Knr:3201 Gnr:7 Bnr:342 Snr:8
Rettighet hefter i: Knr:3201 Gnr:7 Bnr:342 Snr:9
Rettighet hefter i: Knr:3201 Gnr:7 Bnr:342 Snr:10
Rettighet hefter i: Knr:3201 Gnr:7 Bnr:342 Snr:11
Rettighet hefter i: Knr:3201 Gnr:7 Bnr:342 Snr:12
Rettighet hefter i: Knr:3201 Gnr:7 Bnr:342 Snr:13
Rettighet hefter i: Knr:3201 Gnr:7 Bnr:342 Snr:14
Rettighet hefter i: Knr:3201 Gnr:7 Bnr:342 Snr:15
Rettighet hefter i: Knr:3201 Gnr:7 Bnr:342 Snr:16
Rettighet hefter i: Knr:3201 Gnr:7 Bnr:342 Snr:17
Rettighet hefter i: Knr:3201 Gnr:7 Bnr:342 Snr:18
Rettighet hefter i: Knr:3201 Gnr:7 Bnr:342 Snr:19
Rettighet hefter i: Knr:3201 Gnr:7 Bnr:342 Snr:20
Rettighet hefter i: Knr:3201 Gnr:7 Bnr:342 Snr:21
Rettighet hefter i: Knr:3201 Gnr:7 Bnr:342 Snr:22
Rettighet hefter i: Knr:3201 Gnr:7 Bnr:342 Snr:23
Rettighet hefter i: Knr:3201 Gnr:7 Bnr:342 Snr:24
Rettighet hefter i: Knr:3201 Gnr:7 Bnr:342 Snr:25
Rettighet hefter i: Knr:3201 Gnr:7 Bnr:342 Snr:26
Rettighet hefter i: Knr:3201 Gnr:7 Bnr:342 Snr:27
Rettighet hefter i: Knr:3201 Gnr:7 Bnr:342 Snr:28
Rettighet hefter i: Knr:3201 Gnr:7 Bnr:342 Snr:29
Rettighet hefter i: Knr:3201 Gnr:7 Bnr:342 Snr:30
Rettighet hefter i: Knr:3201 Gnr:7 Bnr:342 Snr:31
Rettighet hefter i: Knr:3201 Gnr:7 Bnr:342 Snr:32
Rettighet hefter i: Knr:3201 Gnr:7 Bnr:342 Snr:33
Rettighet hefter i: Knr:3201 Gnr:7 Bnr:342 Snr:34
Rettighet hefter i: Knr:3201 Gnr:7 Bnr:342 Snr:35
Rettighet hefter i: Knr:3201 Gnr:7 Bnr:342 Snr:36
Rettighet hefter i: Knr:3201 Gnr:7 Bnr:342 Snr:37
Rettighet hefter i: Knr:3201 Gnr:7 Bnr:342 Snr:38
Rettighet hefter i: Knr:3201 Gnr:7 Bnr:342 Snr:39
Rettighet hefter i: Knr:3201 Gnr:7 Bnr:342 Snr:40
Rettighet hefter i: Knr:3201 Gnr:7 Bnr:342 Snr:41
Rettighet hefter i: Knr:3201 Gnr:7 Bnr:342 Snr:42
Rettighet hefter i: Knr:3201 Gnr:7 Bnr:342 Snr:43
Rettighet hefter i: Knr:3201 Gnr:7 Bnr:342 Snr:44
Rettighet hefter i: Knr:3201 Gnr:7 Bnr:342 Snr:45
Rettighet hefter i: Knr:3201 Gnr:7 Bnr:342 Snr:46
Rettighet hefter i: Knr:3201 Gnr:7 Bnr:342 Snr:47
Rettighet hefter i: Knr:3201 Gnr:7 Bnr:342 Snr:48
Rettighet hefter i: Knr:3201 Gnr:7 Bnr:342 Snr:49
Rettighet hefter i: Knr:3201 Gnr:7 Bnr:342 Snr:50
Rettighet hefter i: Knr:3201 Gnr:7 Bnr:342 Snr:51
Rettighet hefter i: Knr:3201 Gnr:7 Bnr:342 Snr:52
Rettighet hefter i: Knr:3201 Gnr:7 Bnr:342 Snr:53
Rettighet hefter i: Knr:3201 Gnr:7 Bnr:342 Snr:54
Rettighet hefter i: Knr:3201 Gnr:7 Bnr:342 Snr:55
Rettighet hefter i: Knr:3201 Gnr:7 Bnr:342 Snr:56
Rettighet hefter i: Knr:3201 Gnr:7 Bnr:342 Snr:57
Rettighet hefter i: Knr:3201 Gnr:7 Bnr:342 Snr:58
Rettighet hefter i: Knr:3201 Gnr:7 Bnr:342 Snr:59
Rettighet hefter i: Knr:3201 Gnr:7 Bnr:342 Snr:60
Rettighet hefter i: Knr:3201 Gnr:7 Bnr:342 Snr:61
Rettighet hefter i: Knr:3201 Gnr:7 Bnr:342 Snr:62
Rettighet hefter i: Knr:3201 Gnr:7 Bnr:342 Snr:63
Rettighet hefter i: Knr:3201 Gnr:7 Bnr:342 Snr:64
Rettighet hefter i: Knr:3201 Gnr:7 Bnr:342 Snr:65
Rettighet hefter i: Knr:3201 Gnr:7 Bnr:342 Snr:66
Rettighet hefter i: Knr:3201 Gnr:7 Bnr:342 Snr:67
Rettighet hefter i: Knr:3201 Gnr:7 Bnr:342 Snr:68
Rettighet hefter i: Knr:3201 Gnr:7 Bnr:342 Snr:69
Rettighet hefter i: Knr:3201 Gnr:7 Bnr:342 Snr:70
Rettighet hefter i: Knr:3201 Gnr:7 Bnr:342 Snr:71
Rettighet hefter i: Knr:3201 Gnr:7 Bnr:342 Snr:72
Rettighet hefter i: Knr:3201 Gnr:7 Bnr:342 Snr:73
Rettighet hefter i: Knr:3201 Gnr:7 Bnr:342 Snr:74
Rettighet hefter i: Knr:3201 Gnr:7 Bnr:342 Snr:75
Rettighet hefter i: Knr:3201 Gnr:7 Bnr:342 Snr:76
Rettighet hefter i: Knr:3201 Gnr:7 Bnr:342 Snr:77
Rettighet hefter i: Knr:3201 Gnr:7 Bnr:342 Snr:78
Rettighet hefter i: Knr:3201 Gnr:7 Bnr:342 Snr:79
Rettighet hefter i: Knr:3201 Gnr:7 Bnr:342 Snr:80
Rettighet hefter i: Knr:3201 Gnr:7 Bnr:342 Snr:81
Rettighet hefter i: Knr:3201 Gnr:7 Bnr:342 Snr:82
Rettighet hefter i: Knr:3201 Gnr:7 Bnr:342 Snr:83
Rettighet hefter i: Knr:3201 Gnr:7 Bnr:342 Snr:84
Rettighet hefter i: Knr:3201 Gnr:7 Bnr:342 Snr:85
Rettighet hefter i: Knr:3201 Gnr:7 Bnr:342 Snr:86
Rettighet hefter i: Knr:3201 Gnr:7 Bnr:342 Snr:87
Rettighet hefter i: Knr:3201 Gnr:7 Bnr:342 Snr:88
Rettighet hefter i: Knr:3201 Gnr:7 Bnr:342 Snr:89
Rettighet hefter i: Knr:3201 Gnr:7 Bnr:342 Snr:90
Rettighet hefter i: Knr:3201 Gnr:7 Bnr:342 Snr:91
Rettighet hefter i: Knr:3201 Gnr:7 Bnr:342 Snr:92
Rettighet hefter i: Knr:3201 Gnr:7 Bnr:342 Snr:93
Rettighet hefter i: Knr:3201 Gnr:7 Bnr:342 Snr:94
Rettighet hefter i: Knr:3201 Gnr:7 Bnr:342 Snr:95
Rettighet hefter i: Knr:3201 Gnr:7 Bnr:342 Snr:96
Rettighet hefter i: Knr:3201 Gnr:7 Bnr:342 Snr:97
Rettighet hefter i: Knr:3201 Gnr:7 Bnr:342 Snr:98
Rettighet hefter i: Knr:3201 Gnr:7 Bnr:342 Snr:99
Rettighet hefter i: Knr:3201 Gnr:7 Bnr:342 Snr:100
Rettighet hefter i: Knr:3201 Gnr:7 Bnr:342 Snr:101
Rettighet hefter i: Knr:3201 Gnr:7 Bnr:342 Snr:102
Rettighet hefter i: Knr:3201 Gnr:7 Bnr:342 Snr:103
Rettighet hefter i: Knr:3201 Gnr:7 Bnr:342 Snr:104
Rettighet hefter i: Knr:3201 Gnr:7 Bnr:342 Snr:105
Rettighet hefter i: Knr:3201 Gnr:7 Bnr:342 Snr:106
Rettighet hefter i: Knr:3201 Gnr:7 Bnr:342 Snr:107
Rettighet hefter i: Knr:3201 Gnr:7 Bnr:342 Snr:108
Rettighet hefter i: Knr:3201 Gnr:7 Bnr:342 Snr:109
Rettighet hefter i: Knr:3201 Gnr:7 Bnr:342 Snr:110
Rettighet hefter i: Knr:3201 Gnr:7 Bnr:342 Snr:111
Rettighet hefter i: Knr:3201 Gnr:7 Bnr:342 Snr:112
Rettighet hefter i: Knr:3201 Gnr:7 Bnr:342 Snr:113
Rettighet hefter i: Knr:3201 Gnr:7 Bnr:342 Snr:114
Rettighet hefter i: Knr:3201 Gnr:7 Bnr:342 Snr:115
Rettighet hefter i: Knr:3201 Gnr:7 Bnr:342 Snr:116
Rettighet hefter i: Knr:3201 Gnr:7 Bnr:342 Snr:117
Rettighet hefter i: Knr:3201 Gnr:7 Bnr:342 Snr:118
Rettighet hefter i: Knr:3201 Gnr:7 Bnr:342 Snr:119
Rettighet hefter i: Knr:3201 Gnr:7 Bnr:342 Snr:120
Rettighet hefter i: Knr:3201 Gnr:7 Bnr:342 Snr:121
Rettighet hefter i: Knr:3201 Gnr:7 Bnr:342 Snr:122
Rettighet hefter i: Knr:3201 Gnr:7 Bnr:342 Snr:123
Rettighet hefter i: Knr:3201 Gnr:7 Bnr:342 Snr:124
Rett til å ha liggende, samt ha atkomst til solceller med tilhørende utstyr for energiproduksjon
Gjelder denne registerenheten med flere

28.02.2025 – Dokumentnr: 233742 – Seksjonering
Opprettet seksjoner:
Snr: 1
Formål: Bolig
Sameiebrøk: 58/6340
Snr: 2
Formål: Bolig
Tilleggsdel: Bygning
Sameiebrøk: 59/6340
Snr: 3
Formål: Bolig
Tilleggsdel: Bygning
Sameiebrøk: 25/6340
Snr: 4
Formål: Bolig
Tilleggsdel: Bygning
Sameiebrøk: 72/6340
Snr: 5
Formål: Bolig
Sameiebrøk: 88/6340
Snr: 6
Formål: Bolig
Sameiebrøk: 58/6340
Snr: 7
Formål: Bolig
Sameiebrøk: 57/6340
Snr: 8
Formål: Bolig
Sameiebrøk: 117/6340
Snr: 9
Formål: Bolig
Sameiebrøk: 88/6340
Snr: 10
Formål: Bolig
Sameiebrøk: 58/6340
Snr: 11
Formål: Bolig
Sameiebrøk: 57/6340
Snr: 12
Formål: Bolig
Sameiebrøk: 117/6340
Snr: 13
Formål: Bolig
Sameiebrøk: 88/6340
Snr: 14
Formål: Bolig
Sameiebrøk: 58/6340
Snr: 15
Formål: Bolig
Sameiebrøk: 57/6340
Snr: 16
Formål: Bolig
Sameiebrøk: 117/6340
Snr: 17
Formål: Bolig
Sameiebrøk: 88/6340
Snr: 18
Formål: Bolig
Sameiebrøk: 58/6340
Snr: 19
Formål: Bolig
Sameiebrøk: 57/6340
Snr: 20
Formål: Bolig
Sameiebrøk: 117/6340
Snr: 21
Formål: Bolig
Sameiebrøk: 88/6340
Snr: 22
Formål: Bolig
Sameiebrøk: 58/6340
Snr: 23
Formål: Bolig
Sameiebrøk: 57/6340
Snr: 24
Formål: Bolig
Sameiebrøk: 117/6340
Snr: 25
Formål: Bolig
Sameiebrøk: 88/6340
Snr: 26
Formål: Bolig
Sameiebrøk: 58/6340
Snr: 27
Formål: Bolig
Sameiebrøk: 57/6340
Snr: 28
Formål: Bolig
Sameiebrøk: 117/6340
Snr: 29
Formål: Bolig
Sameiebrøk: 88/6340
Snr: 30
Formål: Bolig
Sameiebrøk: 58/6340
Snr: 31
Formål: Bolig
Sameiebrøk: 57/6340
Snr: 32
Formål: Bolig
Sameiebrøk: 117/6340
Snr: 33
Formål: Bolig
Sameiebrøk: 88/6340
Snr: 34
Formål: Bolig
Sameiebrøk: 61/6340
Snr: 35
Formål: Bolig
Sameiebrøk: 175/6340
Snr: 36
Formål: Bolig
Sameiebrøk: 88/6340
Snr: 37
Formål: Bolig
Sameiebrøk: 175/6340
Snr: 38
Formål: Bolig
Sameiebrøk: 151/6340
Snr: 39
Formål: Bolig
Tilleggsdel: Bygning
Sameiebrøk: 34/6340
Snr: 40
Formål: Bolig
Sameiebrøk: 43/6340
Snr: 41
Formål: Bolig
Sameiebrøk: 46/6340
Snr: 42
Formål: Bolig
Sameiebrøk: 72/6340
Snr: 43
Formål: Bolig
Sameiebrøk: 46/6340
Snr: 44
Formål: Bolig
Sameiebrøk: 43/6340
Snr: 45
Formål: Bolig
Sameiebrøk: 46/6340
Snr: 46
Formål: Bolig
Sameiebrøk: 66/6340
Snr: 47
Formål: Bolig
Sameiebrøk: 46/6340
Snr: 48
Formål: Bolig
Sameiebrøk: 43/6340
Snr: 49
Formål: Bolig
Sameiebrøk: 46/6340
Snr: 50
Formål: Bolig
Sameiebrøk: 66/6340
Snr: 51
Formål: Bolig
Sameiebrøk: 46/6340
Snr: 52
Formål: Bolig
Sameiebrøk: 43/6340
Snr: 53
Formål: Bolig
Sameiebrøk: 46/6340
Snr: 54
Formål: Bolig
Sameiebrøk: 66/6340
Snr: 55
Formål: Bolig
Sameiebrøk: 46/6340
Snr: 56
Formål: Bolig
Sameiebrøk: 43/6340
Snr: 57
Formål: Bolig
Sameiebrøk: 46/6340
Snr: 58
Formål: Bolig
Sameiebrøk: 66/6340
Snr: 59
Formål: Bolig
Sameiebrøk: 46/6340
Snr: 60
Formål: Bolig
Sameiebrøk: 43/6340
Snr: 61
Formål: Bolig
Sameiebrøk: 46/6340
Snr: 62
Formål: Bolig
Sameiebrøk: 66/6340
Snr: 63
Formål: Bolig
Sameiebrøk: 46/6340
Snr: 64
Formål: Bolig
Sameiebrøk: 43/6340
Snr: 65
Formål: Bolig
Sameiebrøk: 46/6340
Snr: 66
Formål: Bolig
Sameiebrøk: 66/6340
Snr: 67
Formål: Bolig
Sameiebrøk: 46/6340
Snr: 68
Formål: Bolig
Sameiebrøk: 43/6340
Snr: 69
Formål: Bolig
Sameiebrøk: 46/6340
Snr: 70
Formål: Bolig
Sameiebrøk: 66/6340
Snr: 71
Formål: Bolig
Tilleggsdel: Bygning
Sameiebrøk: 119/6340
Snr: 72
Formål: Bolig
Sameiebrøk: 53/6340
Snr: 73
Formål: Bolig
Tilleggsdel: Bygning
Sameiebrøk: 89/6340
Snr: 74
Formål: Bolig
Sameiebrøk: 119/6340
Snr: 75
Formål: Bolig
Sameiebrøk: 53/6340
Snr: 76
Formål: Bolig
Sameiebrøk: 100/6340
Snr: 77
Formål: Bolig
Sameiebrøk: 119/6340
Snr: 78
Formål: Bolig
Sameiebrøk: 53/6340
Snr: 79
Formål: Bolig
Sameiebrøk: 100/6340
Snr: 80
Formål: Bolig
Sameiebrøk: 119/6340
Snr: 81
Formål: Bolig
Sameiebrøk: 53/6340
Snr: 82
Formål: Bolig
Sameiebrøk: 100/6340
Snr: 83
Formål: Bolig
Sameiebrøk: 119/6340
Snr: 84
Formål: Bolig
Sameiebrøk: 53/6340
Snr: 85
Formål: Bolig
Sameiebrøk: 100/6340
Snr: 86
Formål: Bolig
Tilleggsdel: Bygning
Sameiebrøk: 197/6340
Gjelder denne registerenheten med flere

27.12.2024 – Dokumentnr: 2409960 – Registrering av grunn
Denne matrikkelenhet opprettet fra:
Knr:3201 Gnr:7 Bnr:54

28.02.2025 – Dokumentnr: 233226 – Seksjonering
Opprettet seksjoner:
Snr: 1
Formål: Bolig
Sameiebrøk: 22/8230
Snr: 2
Formål: Bolig
Sameiebrøk: 21/8230
Snr: 3
Formål: Bolig
Sameiebrøk: 21/8230
Snr: 4
Formål: Bolig
Tilleggsdel: Bygning
Sameiebrøk: 77/8230
Snr: 5
Formål: Bolig
Tilleggsdel: Bygning
Sameiebrøk: 84/8230
Snr: 6
Formål: Bolig
Tilleggsdel: Bygning
Sameiebrøk: 60/8230
Snr: 7
Formål: Bolig
Tilleggsdel: Bygning
Sameiebrøk: 63/8230
Snr: 8
Formål: Bolig
Tilleggsdel: Bygning
Sameiebrøk: 80/8230
Snr: 9
Formål: Bolig
Tilleggsdel: Bygning
Sameiebrøk: 71/8230
Snr: 10
Formål: Bolig
Sameiebrøk: 25/8230
Snr: 11
Formål: Bolig
Sameiebrøk: 22/8230
Snr: 12
Formål: Bolig
Sameiebrøk: 21/8230
Snr: 13
Formål: Bolig
Sameiebrøk: 21/8230
Snr: 14
Formål: Bolig
Sameiebrøk: 77/8230
Snr: 15
Formål: Bolig
Sameiebrøk: 84/8230
Snr: 16
Formål: Bolig
Sameiebrøk: 42/8230
Snr: 17
Formål: Bolig
Sameiebrøk: 42/8230
Snr: 18
Formål: Bolig
Sameiebrøk: 63/8230
Snr: 19
Formål: Bolig
Sameiebrøk: 80/8230
Snr: 20
Formål: Bolig
Sameiebrøk: 71/8230
Snr: 21
Formål: Bolig
Sameiebrøk: 25/8230
Snr: 22
Formål: Bolig
Sameiebrøk: 22/8230
Snr: 23
Formål: Bolig
Sameiebrøk: 21/8230
Snr: 24
Formål: Bolig
Sameiebrøk: 21/8230
Snr: 25
Formål: Bolig
Sameiebrøk: 77/8230
Snr: 26
Formål: Bolig
Sameiebrøk: 84/8230
Snr: 27
Formål: Bolig
Sameiebrøk: 42/8230
Snr: 28
Formål: Bolig
Sameiebrøk: 42/8230
Snr: 29
Formål: Bolig
Sameiebrøk: 63/8230
Snr: 30
Formål: Bolig
Sameiebrøk: 80/8230
Snr: 31
Formål: Bolig
Sameiebrøk: 71/8230
Snr: 32
Formål: Bolig
Sameiebrøk: 25/8230
Snr: 33
Formål: Bolig
Sameiebrøk: 22/8230
Snr: 34
Formål: Bolig
Sameiebrøk: 21/8230
Snr: 35
Formål: Bolig
Sameiebrøk: 21/8230
Snr: 36
Formål: Bolig
Sameiebrøk: 77/8230
Snr: 37
Formål: Bolig
Sameiebrøk: 84/8230
Snr: 38
Formål: Bolig
Sameiebrøk: 42/8230
Snr: 39
Formål: Bolig
Sameiebrøk: 42/8230
Snr: 40
Formål: Bolig
Sameiebrøk: 63/8230
Snr: 41
Formål: Bolig
Sameiebrøk: 80/8230
Snr: 42
Formål: Bolig
Sameiebrøk: 71/8230
Snr: 43
Formål: Bolig
Sameiebrøk: 25/8230
Snr: 44
Formål: Bolig
Sameiebrøk: 22/8230
Snr: 45
Formål: Bolig
Sameiebrøk: 21/8230
Snr: 46
Formål: Bolig
Sameiebrøk: 21/8230
Snr: 47
Formål: Bolig
Sameiebrøk: 77/8230
Snr: 48
Formål: Bolig
Sameiebrøk: 84/8230
Snr: 49
Formål: Bolig
Sameiebrøk: 42/8230
Snr: 50
Formål: Bolig
Sameiebrøk: 42/8230
Snr: 51
Formål: Bolig
Sameiebrøk: 63/8230
Snr: 52
Formål: Bolig
Sameiebrøk: 80/8230
Snr: 53
Formål: Bolig
Sameiebrøk: 71/8230
Snr: 54
Formål: Bolig
Sameiebrøk: 25/8230
Snr: 55
Formål: Bolig
Sameiebrøk: 22/8230
Snr: 56
Formål: Bolig
Sameiebrøk: 21/8230
Snr: 57
Formål: Bolig
Sameiebrøk: 21/8230
Snr: 58
Formål: Bolig
Sameiebrøk: 77/8230
Snr: 59
Formål: Bolig
Sameiebrøk: 84/8230
Snr: 60
Formål: Bolig
Sameiebrøk: 42/8230
Snr: 61
Formål: Bolig
Sameiebrøk: 42/8230
Snr: 62
Formål: Bolig
Sameiebrøk: 63/8230
Snr: 63
Formål: Bolig
Sameiebrøk: 80/8230
Snr: 64
Formål: Bolig
Sameiebrøk: 71/8230
Snr: 65
Formål: Bolig
Sameiebrøk: 25/8230
Snr: 66
Formål: Bolig
Sameiebrøk: 22/8230
Snr: 67
Formål: Bolig
Sameiebrøk: 21/8230
Snr: 68
Formål: Bolig
Sameiebrøk: 21/8230
Snr: 69
Formål: Bolig
Sameiebrøk: 172/8230
Snr: 70
Formål: Bolig
Sameiebrøk: 42/8230
Snr: 71
Formål: Bolig
Sameiebrøk: 42/8230
Snr: 72
Formål: Bolig
Sameiebrøk: 63/8230
Snr: 73
Formål: Bolig
Sameiebrøk: 80/8230
Snr: 74
Formål: Bolig
Sameiebrøk: 71/8230
Snr: 75
Formål: Bolig
Sameiebrøk: 25/8230
Snr: 76
Formål: Bolig
Sameiebrøk: 22/8230
Snr: 77
Formål: Bolig
Sameiebrøk: 21/8230
Snr: 78
Formål: Bolig
Sameiebrøk: 21/8230
Snr: 79
Formål: Bolig
Sameiebrøk: 172/8230
Snr: 80
Formål: Bolig
Sameiebrøk: 42/8230
Snr: 81
Formål: Bolig
Sameiebrøk: 42/8230
Snr: 82
Formål: Bolig
Sameiebrøk: 63/8230
Snr: 83
Formål: Bolig
Sameiebrøk: 80/8230
Snr: 84
Formål: Bolig
Sameiebrøk: 71/8230
Snr: 85
Formål: Bolig
Sameiebrøk: 25/8230
Snr: 86
Formål: Bolig
Tilleggsdel: Bygning
Sameiebrøk: 168/8230
Snr: 87
Formål: Bolig
Tilleggsdel: Bygning
Sameiebrøk: 128/8230
Snr: 88
Formål: Bolig
Tilleggsdel: Bygning
Sameiebrøk: 63/8230
Snr: 89
Formål: Bolig
Tilleggsdel: Bygning
Sameiebrøk: 164/8230
Snr: 90
Formål: Bolig
Sameiebrøk: 109/8230
Snr: 91
Formål: Bolig
Sameiebrøk: 63/8230
Snr: 92
Formål: Bolig
Sameiebrøk: 54/8230
Snr: 93
Formål: Bolig
Sameiebrøk: 119/8230
Snr: 94
Formål: Bolig
Sameiebrøk: 109/8230
Snr: 95
Formål: Bolig
Sameiebrøk: 63/8230
Snr: 96
Formål: Bolig
Sameiebrøk: 54/8230
Snr: 97
Formål: Bolig
Sameiebrøk: 118/8230
Snr: 98
Formål: Bolig
Sameiebrøk: 109/8230
Snr: 99
Formål: Bolig
Sameiebrøk: 63/8230
Snr: 100
Formål: Bolig
Sameiebrøk: 54/8230
Snr: 101
Formål: Bolig
Sameiebrøk: 119/8230
Snr: 102
Formål: Bolig
Sameiebrøk: 109/8230
Snr: 103
Formål: Bolig
Sameiebrøk: 63/8230
Snr: 104
Formål: Bolig
Sameiebrøk: 54/8230
Snr: 105
Formål: Bolig
Sameiebrøk: 119/8230
Snr: 106
Formål: Bolig
Sameiebrøk: 109/8230
Snr: 107
Formål: Bolig
Tilleggsdel: Bygning
Sameiebrøk: 125/8230
Snr: 108
Formål: Bolig
Tilleggsdel: Bygning
Sameiebrøk: 124/8230
Snr: 109
Formål: Bolig
Tilleggsdel: Bygning
Sameiebrøk: 108/8230
Snr: 110
Formål: Bolig
Tilleggsdel: Bygning
Sameiebrøk: 63/8230
Snr: 111
Formål: Bolig
Tilleggsdel: Bygning
Sameiebrøk: 108/8230
Snr: 112
Formål: Bolig
Sameiebrøk: 117/8230
Snr: 113
Formål: Bolig
Sameiebrøk: 63/8230
Snr: 114
Formål: Bolig
Sameiebrøk: 108/8230
Snr: 115
Formål: Bolig
Sameiebrøk: 117/8230
Snr: 116
Formål: Bolig
Sameiebrøk: 63/8230
Snr: 117
Formål: Bolig
Sameiebrøk: 108/8230
Snr: 118
Formål: Bolig
Sameiebrøk: 117/8230
Snr: 119
Formål: Bolig
Sameiebrøk: 63/8230
Snr: 120
Formål: Bolig
Sameiebrøk: 108/8230
Snr: 121
Formål: Bolig
Sameiebrøk: 121/8230
Snr: 122
Formål: Bolig
Sameiebrøk: 146/8230
Snr: 123
Formål: Bolig
Tilleggsdel: Bygning
Sameiebrøk: 177/8230
Snr: 124
Formål: Næring
Sameiebrøk: 1/8230
Gjelder denne registerenheten med flere

Midlertidig brukstillatelse og ferdigattest

Det er utbyggers plikt å fremskaffe ferdigattest på eiendommen. Kjøper er gjort kjent med at det kan ta lang tid i etterkant av overtagelse før ferdigattest foreligger.

Adgang til utleie

Leiligheten kan leies ut i sin helhet.

Fellesutgifter

Det er estimert kr 51,-pr. kvm. BRA i felleskostnader pr. mnd. og dette inkluderer blant annet A-konto fjernvarmeoppvarming og varmtvann. I tillegg kommer det kr. 1.216,-pr. mnd for internettpakke, samt likedelte felleskostnader, herunder generell drift av sameiet, kommunale avgifter mv.

Felleskostnader dekker bl.a. vaktmester/renhold, TV/bredbånd, a-konto varme og varmt vann, honorar til styret, forretningsførsel, bygningsforsikring (ikke innbo), fellesstrøm, vedlikeholdsfond og lignende, basert på et foreløpig budsjett utarbeidet av forretningsfører. I tillegg til felleskostnader vil det påløpe andre løpende kostnader som for eksempel strømforbruk i den enkelte leilighet og innboforsikring.

Organisasjonsform

Leilighetene vil bli solgt som eierleiligheter og organisert som sameie og følger eierseksjonsloven av 16. juni 2017, nr. 65 hvor man blant annet I sameier som bare inneholder boligseksjoner har en stemme pr. seksjon, og flertallet regnes etter antall stemmer. Selve bygget er et kombinasjonsbygg med næring og bolig. Næringsarealene vil hovedsakelig ligge i 1. – 5. etasje. Eierseksjonsloven kan i sin helhet, fås ved henvendelse til megler. Loven finnes også på www.lovdata.no. Sameiet vil bli ledet av et styre som velges blant eierne. Styret skal ivareta alle saker av felles interesse for sameierne.

Selger vil på vegne av sameiet engasjere en forretningsfører / teknisk drifter som vil forestå driften av sameiet innenfor de rammer sameiet vedtar. Selger vil på vegne av sameiet inngå driftsavtaler, eksempelvis avtale vedr. fibernett. Sistnevnte avtaler i dette avsnitt vil kunne ha en fast avtaleperiode med tidligste opphørsdato eller oppsigelsesmulighet 5 år etter det ekstraordinære årsmøtet som avholdes i forbindelse med overtakelse av boligseksjonene.

Selger forbeholder seg retten til å dele opp felt S7 og S8 (Helgerudkvartalet) i flere eierseksjonssameier og/eller gårds- og bruksnumre både over og under bakken (inkludert kjellereiendommen) og eventuelle uteeiendommer, herunder å omdisponere det enkelte areal innenfor kvartalet slik at areal som er godkjent til næringslokaler gjøres om til ytterligere boligareal, at boligarealer endres til næringsareal, eller at boligsammensetningen endres (f. eks ved at leiligheter slås sammen eller deles e.l.). Selger forbeholder seg videre retten til å justere størrelsen på det enkelte sameie i forhold til hva som er hensiktsmessig med hensyn til utbyggingstakt, fremtidig drift og bruksrettigheter.

Vedtekter/husordensregler

Kjøper plikter å rette seg etter de til enhver tid gjeldende vedtekter for sameiet. Vedlagt salgsoppgaven følger foreløpige vedtekter som gjelder for sameiet. Selger har rett til å tilpasse vedtektene frem til ekstraordinært årsmøte, og vil bl.a. endre vedtektene i samsvar med eventuelle endringer i eierseksjonslovgivningen forut for ekstraordinært årsmøte, samt eventuelle behov for endringer som skyldes endret organisering av Helgerudkvartalet og eierseksjonssameiet(ene) og tilhørende rettigheter og organisering mv. som beskrevet i denne Kjøpekontrakten. Selger innkaller til ekstraordinært årsmøte ca. 1 måned før overtagelse av boligseksjonene for å velge styre til eierseksjonssameiet. Selger vil kunne være eier av og kan i tilfelle stemme på vegne av eventuelle usolgte seksjoner. Kjøpere av de solgte seksjonene har rett til å stemme på ekstraordinært årsmøte selv om overtakelse ikke er gjennomført. Kjøper plikter å betale sin forholdsmessige andel av driftsutgiftene for eiendommen/eierseksjonssameiet fra overtakelsestidspunktet. Budsjett over driftsutgiftene samt vedtektene stadfestes av sameiet i ekstraordinært sameiermøte. Regler for styring og drift av boligsameiet følger av Eierseksjonsloven.

Forsikringsselskap

Gjensidige med polisenummer 94964825

Dato

Sist oppdatert: 21.01.2026

Denne boligen er en del av Helgerudkvartalet del 2 – Bærum

Les mer om prosjektet

Tilbake til toppen