Matrikkel
Knr. 301 Gnr. 214 Bnr. 481
Sporveisgata 7C, 0354 OSLO
Meld din interesse så vil vi ta kontakt med deg og holde deg løpende orientert om prosjektet!


Knr. 301 Gnr. 214 Bnr. 481
KLP bygger nå et særegent boligprosjekt med ca. 165 selveierleiligheter, sentralt plassert ved Stensparken på Fagerborg/Bislett. Boligene vil ramme inn de historiske mursteinsbyggene og skape en lun og trivelig atmosfære på det indre gårdstunet. Om du ønsker en ny og moderne selveierleilighet midt i byen, er boligprosjektet NORA stedet for deg.
Du kan velge mellom flere ulike lyse og harmoniske leiligheter 2-5 roms fra ca. 35-200 kvm. Leilighetene ligger fra 2. etasje sett fra Pilestredet/Sporveisgata. I 1. etasje kommer et nytt, lite nærsenter med bl.a. dagligvarebutikk. Noen utvalgte leiligheter blir forberedt for hybel-/generasjonsdel som tilvalg.
Leilighetene vil ha kvalitetene fra et nybygg med attraktive og smarte planløsninger, men også den gode sjarmen som følger med nærområdet.
DET GODE LIV I BYEN
Alle leilighetene får gjennomgående god standard med vannbåren gulvvarme, balansert ventilasjon, HTH kjøkken med hvitevarer, plassbygde bad med fliser, temperert bod etc.
Du kan kostnadsfritt velge mellom 3 flotte stil- og fargekonsepter, slik at din leiligheten blir akkurat slik du ønsker.
Med den grønne Stensparken i ryggen, kort gange til det pulserende livet i Bogstadveien og rolige smågater på Fagerbord -og ikke minst panoramautsikt over Oslo fra takterrassene – er urbane Nora noe for seg selv.
Her bor du sentral – men kan allikevel trekke deg tilbake til et lunt og godt hjem med egen uteplass og flere flotte fellesarealer
HISTORIEN OM NORA
Navnet NORA peker tilbake til de originale Nora-fabrikkene som holdt til her på 1800-tallet, og Pilestredet langs Stensparken har i lang tid hatt tilnavnet «Norabakken».
Med sine røffe mursteiner og vakre blyvinduer har de originale fabrikklokalene satt sitt preg på området. Her har norsk skaperkraft trivdes helt siden 1881, og nabolaget har huset både brusfabrikk og brødbakeri. Nå tar vi med oss det beste fra historien, og puster liv i området igjen med nye og moderne leiligheter.
NORA vil bygges med stor omtanke for området og beboere. Her får du kvalitetene fra et nybygg, men også sjarmen fra et historisk nærområde.
NÆROMRÅDET
Området rundt NORA byr på et spennende utvalg av aktører på gateplan, med flust av restauranter, butikker og kulturliv i alle sjangre.
Går du mot vest finner du et mylder av spennende kaféer, butikker og restauranter på rekke og rad i Bogstadveien. Ta med deg jentegjengen til champangelunsj på Delicatessen, eller smak det beste fra det nordiske kjøkkenet på Publiko sammen med kjæresten. Nabolaget har flere skjulte perler.
Går du mot øst finner du Stensparken som er perfekt for en løpetur i det fri – eller hva med en rolig kveldstur her eller i smågatene rundt Fagerborg. Eller så kan du jo også bare å ta piknikkpleddet under armen og plukke opp en kaffe på veien – for å så nyte late dager under trærne.
Med et området som dette, har du aktiviteter som kan både øke og senke pulsen, og er noe av det som gjør det enkelt å trives på NORA.
Og vil du utforske andre deler av byen, er det flere trikkestopp bare en kort spasertur unna.
Prosjektet er godkjent regulert og KLP har fått rammetillatelse og satt i gang byggeprosessen.
Pilestredet 75 C, 0354 OSLO
Knr. 301 Gnr. 214 Bnr. 481
Nora Stensparken AS
Leilighetene selges uten parkeringsplass. Inntil 64 parkeringsplasser (per 05/2024) i kjeller kan etter særskilt avtale kjøpes til fast pris (se prisliste). 5-roms, 4-roms og 3-roms leiligheter større enn 83 BRA-i har fortrinnsrett til kjøp av parkeringsplass.
Det legges opp til at hver oppgang har tilgang på en takhage med ulikt innhold som sittegrupper under pergolaer, utekjøkken, drivhus og områder for soling og avslapning. Det er høy andel av vegetasjon på takene som er med på å skjerme de ulike oppholdssonene, håndtere overvannet, og øke biologisk mangfold.
Alle leilighetene har bruksrett til en egen sportsbod/lagringsbod i kjeller (kjellernivå 2).
Kjøper kan innenfor tilvalgsfrist kostnadsfritt velge mellom de tre interiørkonseptene:
«Havre» (enkel, tidløs og harmonisk), «Høst» (dybde, eleganse og karakter) og «Organisk» (naturlig, beroligende og avslappende).
Boligene er planlagt med god himlingshøyde på ca 2,6m. Noen leiligeter vil av
konstruksjonsmessige årsaker ha helt eller delvis himlingshøyde på opptil ca. 2,9/3,0m.
HTH er valgt som kjøkkenleverandør for prosjektet, og leveransen omfatter det som er spesifisert i leilighetsplanen og romskjemaet. En detaljert kjøkkentegning vil medfølge kontraktsdokumentene. Det leveres integrerte hvitevarer fra Bosch, Siemens eller likeverdig.
Kjøkkenet leveres med ekstra høyde på overskap og med høyskap på 2,28m. Fargen på kjøkkenfrontene er angitt i romskjema. Enkelte leiligheter vil være utstyrt med en kjøkkenøy, som har strømtilførsel og stikkontakt integrert i benkeplaten. Alle kjøkken er designet for å
harmonere med leilighetens generelle stiluttrykk og de ulike stilpakkene som er tilgjengelige.
Baderommene bygges på plassen (ikke ferdigproduserte kabiner). Gulv og vegger leveres med 60×60 flis med farge iht. valgt interiørkonsept.
Det leveres 1-stavs eikeparkett og eikefinerte fotlister på gulv. Vegger består av gips eller betong og blir malt i farge iht. valgt interiørkonsept.
Det leveres nisjer forberedt for skyvedørsgarderober som angitt på kontraktstegning. Det leveres ikke skrog/skinner/fronter eller innredning.
Bæresystemet utføres i all hovedsak i plasstøpt betong og stål. Dekkene i leilighetene leveres med platten-dekker som gir synlig v-fuge i himling. Trapper, balkonger og bærende etasjevegger kan leveres som betongelementer.
Yttervegg leveres som klimavegg i hovedsak som isolert bindings-verksvegg i tre med teglkledning. Byggene skal utføres med tegl som gjennomgående materiale. Det er tenkt variasjon mellom hvert bygg, både hva gjelder farger og forskjeller i detaljer. Enkelte felt skal utføres i relieff for å skape et spill og understreke inndelinger og skifte av struktur i fasaden. Det leveres trekledning på balkongene.
Alle leilighetene (med noen unntak) får balkonger eller inntrukne takterrasser. Vær oppmerksom på at tilnærmelsesvis lik leilighet kan ha varierende balkongutforming. Sjekk derfor nøye den enkelte leilighets salgstegning.
Det leveres personheis som betjener alle boligetasjer inkludert garasjeplan. Heiser i bårestørrelser med innvendig mål 1,1×2,1m. Heiser leveres med oppgradert hastighet til 1,6m/s.
Det leveres sentralisert balansert ventilasjonsanlegg iht. TEK17. Aggregatene plasseres i kjeller og tilluft og avtrekk til leilighetene føres opp i vertikale sjakter før de spres ut til boligene. Det leveres tilluftsventiler i soverom og oppholdsrom og avtrekksventiler på kjøkken, bad og i eventuelle boder. Tilluftstemperaturen på ventilasjonsanlegget styres sentralt av sameiet.
Det leveres komplett rør-i-rør system med fordelerskap over toalett på baderom. Disse fordelerskapene leveres med flislagte dører. I noen leiligheter vil det være behov for et ekstra fordelerskap. Det presiseres at fordelerskapene ikke er endelig plassert og at endringer kan forekomme. Det etableres stoppekran i hver leilighet. Varmt tappevann i leilighetene leveres fra sentralt anlegg oppvarmet av fjernvarme.
Byggene tilfredsstiller gjeldende krav til brannsikring. Det innebærer blant annet heldekkende sprinkelanlegg i alle fellesarealer, garasjeanlegg og i alle leilighetene med direkte varsling til brannvesenet eller annen bemannet vaktsentral. Det vil også bli levert sprinkling på utvendige balkonger og terrasser hvor teknisk forskrift krever dette.
Det leveres Defigo porttelefon med kamera ved utvendig hovedinngangsdør til hvert bygg. Portelefonanlegget kobles opp via Defigos app mot boligkjøpers telefon. Eventuelt eget svartablå i leilighetene kan velges i tilvalgslisten.
Leverandør fører frem og eier fibernettet frem til sentralt punkt på eiendommen. Det monteres en fiberfordeler i hvert bygg. Det er beregnet to fibertråder fra hovedsentral og ut til hver leilighet som avsluttes i fibermodem. Fibermodem monteres i svakstrømskapet i leiligheten. Tjenesteleverandør er GlobalConnect.
Leilighetene oppvarmes med vannbåren gulvvarme. Det leveres vannbåren gulvvarme i alle rom i leilighetene bortsett fra bod og hovedsoverom. Det leveres egen termostat for alle rom med gulvvarme.
På eiendommen er det tinglyst følgende heftelser og rettigheter som følger eiendommens matrikkel ved overskjøting til ny hjemmelshaver:
301/214/286:
25.01.1900 – Dokumentnr: 900299 – Erklæring/avtale
Bestemmelser om brannvegg/-dør
01.02.1917 – Dokumentnr: 912571 – Erklæring/avtale
Bestemmelse om byggeforbud på deler av eiendommen
22.01.1921 – Dokumentnr: 920634 – Erklæring/avtale
Bestemmelse om benyttelse
18.06.1932 – Dokumentnr: 990766 – Best om garasje/parkering
13.09.1934 – Dokumentnr: 910672 – Erklæring/avtale
Bestemmelse om kloakkledning
16.11.1935 – Dokumentnr: 990763 – Bestemmelse om gjerde
19.12.1935 – Dokumentnr: 990764 – Best. om vann/kloakkledn.
29.09.1937 – Dokumentnr: 304209 – Erklæring/avtale
ang. takavløp
Gjelder denne registerenheten med flere
28.10.1937 – Dokumentnr: 304728 – Best. om vann/kloakkledn.
Kan ikke slettes uten samtykke fra kommunen
03.05.1938 – Dokumentnr: 302112 – Erklæring/avtale
Bestemmelser om tak-/veggreklame
Gjelder denne registerenheten med flere
01.04.1941 – Dokumentnr: 301248 – Erklæring/avtale
Bestemmelser om brannvegg/-dør
01.04.1941 – Dokumentnr: 301249 – Erklæring/avtale
Vedtak av visse vilkår vedr. utskillelse/bebyggelse
av denne eiendom
Kan ikke slettes uten samtykke fra bygningsrådet
Gjelder denne registerenheten med flere
28.04.1948 – Dokumentnr: 301358 – Erklæring/avtale
Bestemmelse om anlegg og vedlikehold av ledninger m.v.
Gjelder denne registerenheten med flere
03.08.1948 – Dokumentnr: 302371 – Erklæring/avtale
Bestemmelser om brannvegg/-dør
11.05.1949 – Dokumentnr: 301565 – Erklæring/avtale
Bestemmelser om brannvegg/-dør
11.04.1951 – Dokumentnr: 301026 – Erklæring/avtale
Bestemmelser om tak-/veggreklame
05.03.1952 – Dokumentnr: 300592 – Erklæring/avtale
Vedtak av visse vilkår vedr. utskillelse/bebyggelse
av denne eiendom
11.11.1982 – Dokumentnr: 511602 – Erklæring/avtale
Bestemmelse om trafostasjon/kiosk
06.02.1990 – Dokumentnr: 8687 – Best. om vann/kloakkledn.
Med flere bestemmelser
Kan ikke slettes uten samtykke fra kommunen
Gjelder denne registerenheten med flere
09.08.1990 – Dokumentnr: 47883 – Erklæring/avtale
Rettighetshaver: Knr:0301 Gnr:214 Bnr:465
Rett til kjørbar adkomst på visse vilkår
Kan ikke avyses uten samtykke fra Oslo bygningsråd
Gjelder denne registerenheten med flere
09.08.1990 – Dokumentnr: 47883 – Erklæring/avtale
Rettighetshaver: Knr:0301 Gnr:214 Bnr:327
Rettighetshaver: Knr:0301 Gnr:214 Bnr:465
Felles vann og avløpsanlegg m.v.
Kan ikke avlyses uten samtykke fra Oslo bygningsråd.
20.02.1991 – Dokumentnr: 9282 – Erklæring/avtale
Rettighetshaver: Knr:0301 Gnr:214 Bnr:327
Vedr. veirett med div. best.
12.12.1994 – Dokumentnr: 71172 – Best. om adkomstrett
Rettighetshaver: Knr:0301 Gnr:214 Bnr:463
Kan ikke slettes uten samtykke fra Plan- og bygningsetaten
14.11.2002 – Dokumentnr: 74836 – Best. om adkomstrett
Rettighetshaver: Knr:0301 Gnr:214 Bnr:472 Snr:1
Rettighetshaver: Knr:0301 Gnr:214 Bnr:472 Snr:2
Rettighetshaver: Knr:0301 Gnr:214 Bnr:472 Snr:3
Rettighetshaver: Knr:0301 Gnr:214 Bnr:472 Snr:4
Rettighetshaver: Knr:0301 Gnr:214 Bnr:472 Snr:5
Rettighetshaver: Knr:0301 Gnr:214 Bnr:472 Snr:6
Rettighetshaver: Knr:0301 Gnr:214 Bnr:472 Snr:7
Rettighetshaver: Knr:0301 Gnr:214 Bnr:472 Snr:8
Rettighetshaver: Knr:0301 Gnr:214 Bnr:472 Snr:9
Rettighetshaver: Knr:0301 Gnr:214 Bnr:472 Snr:10
Rettighetshaver: Knr:0301 Gnr:214 Bnr:472 Snr:11
Rettighetshaver: Knr:0301 Gnr:214 Bnr:472 Snr:12
Rettighetshaver: Knr:0301 Gnr:214 Bnr:472 Snr:13
Rettighetshaver: Knr:0301 Gnr:214 Bnr:472 Snr:14
Rettighetshaver: Knr:0301 Gnr:214 Bnr:472 Snr:15
Rettighetshaver: Knr:0301 Gnr:214 Bnr:472 Snr:16
Rettighetshaver: Knr:0301 Gnr:214 Bnr:472 Snr:17
Rettighetshaver: Knr:0301 Gnr:214 Bnr:472 Snr:18
Rettighetshaver: Knr:0301 Gnr:214 Bnr:472 Snr:19
Rettighetshaver: Knr:0301 Gnr:214 Bnr:472 Snr:20
Rettighetshaver: Knr:0301 Gnr:214 Bnr:472 Snr:21
Rettighetshaver: Knr:0301 Gnr:214 Bnr:472 Snr:22
Rettighetshaver: Knr:0301 Gnr:214 Bnr:472 Snr:23
Rettighetshaver: Knr:0301 Gnr:214 Bnr:472 Snr:24
Rettighetshaver: Knr:0301 Gnr:214 Bnr:472 Snr:25
Rettighetshaver: Knr:0301 Gnr:214 Bnr:472 Snr:26
Rettighetshaver: Knr:0301 Gnr:214 Bnr:472 Snr:27
Rettighetshaver: Knr:0301 Gnr:214 Bnr:472 Snr:28
Rettighetshaver: Knr:0301 Gnr:214 Bnr:472 Snr:29
Rettighetshaver: Knr:0301 Gnr:214 Bnr:472 Snr:30
Rettighetshaver: Knr:0301 Gnr:214 Bnr:472 Snr:31
Rettighetshaver: Knr:0301 Gnr:214 Bnr:472 Snr:32
Rettighetshaver: Knr:0301 Gnr:214 Bnr:472 Snr:33
Rettighetshaver: Knr:0301 Gnr:214 Bnr:472 Snr:34
Rettighetshaver: Knr:0301 Gnr:214 Bnr:472 Snr:35
Rettighetshaver: Knr:0301 Gnr:214 Bnr:472 Snr:36
Rettighetshaver: Knr:0301 Gnr:214 Bnr:472 Snr:37
Rettighetshaver: Knr:0301 Gnr:214 Bnr:472 Snr:38
Rettighetshaver: Knr:0301 Gnr:214 Bnr:472 Snr:39
Rettighetshaver: Knr:0301 Gnr:214 Bnr:472 Snr:40
Rettighetshaver: Knr:0301 Gnr:214 Bnr:472 Snr:41
Rettighetshaver: Knr:0301 Gnr:214 Bnr:472 Snr:42
Rettighetshaver: Knr:0301 Gnr:214 Bnr:472 Snr:43
Rettighetshaver: Knr:0301 Gnr:214 Bnr:472 Snr:44
Rettighetshaver: Knr:0301 Gnr:214 Bnr:472 Snr:45
Rettighetshaver: Knr:0301 Gnr:214 Bnr:472 Snr:46
Rettighetshaver: Knr:0301 Gnr:214 Bnr:472 Snr:47
Rettighetshaver: Knr:0301 Gnr:214 Bnr:472 Snr:48
Rettighetshaver: Knr:0301 Gnr:214 Bnr:472 Snr:49
Rettighetshaver: Knr:0301 Gnr:214 Bnr:472 Snr:50
Rettighetshaver: Knr:0301 Gnr:214 Bnr:472 Snr:51
Rettighetshaver: Knr:0301 Gnr:214 Bnr:472 Snr:52
Rettighetshaver: Knr:0301 Gnr:214 Bnr:472 Snr:53
Rettighetshaver: Knr:0301 Gnr:214 Bnr:472 Snr:54
Rettighetshaver: Knr:0301 Gnr:214 Bnr:472 Snr:55
Rettighetshaver: Knr:0301 Gnr:214 Bnr:472 Snr:56
Rettighetshaver: Knr:0301 Gnr:214 Bnr:472 Snr:57
Rettighetshaver: Knr:0301 Gnr:214 Bnr:472 Snr:58
Rettighetshaver: Knr:0301 Gnr:214 Bnr:472 Snr:59
Rettighetshaver: Knr:0301 Gnr:214 Bnr:472 Snr:60
Rettighetshaver: Knr:0301 Gnr:214 Bnr:472 Snr:62
Rettighetshaver: Knr:0301 Gnr:214 Bnr:472 Snr:63
Rettighetshaver: Knr:0301 Gnr:214 Bnr:472 Snr:64
Rettighetshaver: Knr:0301 Gnr:214 Bnr:472 Snr:65
Kan ikke slettes eller endres uten samtykke fra Oslo kommune
v/Plan-og bygningsetaten.
14.11.2002 – Dokumentnr: 74836 – Erklæring/avtale
Bestemmelse om anlegg og vedlikehold av ledninger m.m.
Kan ikke slettes eller endres uten samtykke fra Oslo kommune
v/Plan-og bygningsetaten.
Gjelder denne registerenheten med flere
08.05.2003 – Dokumentnr: 27031 – Erklæring/avtale
Rettighetshaver: Knr:0301 Gnr:214 Bnr:465
Bestemmelse om adkomstrett
Bestemmelse om veg
Med flere bestemmelser
28.10.2019 – Dokumentnr: 1276282 – Erklæring/avtale
Kan ikke slettes uten samtykke fra: Oslo Kommune
Org.nr: 958 935 420
Rett til ferdsel og opphold
Rett til bruk av gangforbindelse
Rettighetsahver er allmenheten
Erklæringen kan ikke endres uten Oslo kommune sitt samtykke
Med flere bestemmelser
10.10.1876 – Dokumentnr: 900179 – Registrering av grunn
Denne matrikkelenhet opprettet fra:
Knr:0301 Gnr:214 Bnr:448
29.05.1942 – Dokumentnr: 301860 – Registrering av grunn
Utskilt fra denne matrikkelenhet:
Knr:0301 Gnr:214 Bnr:327
09.08.1990 – Dokumentnr: 47882 – Registrering av grunn
Utskilt fra denne matrikkelenhet:
Knr:0301 Gnr:214 Bnr:465
Areal ca 470 m2.
13.09.1990 – Dokumentnr: 55144 – Grensejustering
Gjelder denne registerenheten med flere
14.11.2002 – Dokumentnr: 74834 – Registrering av grunn
Utskilt fra denne matrikkelenhet:
Knr:0301 Gnr:214 Bnr:472
09.08.1990 – Dokumentnr: 47883 – Erklæring/avtale
Rettighet hefter i: Knr:0301 Gnr:214 Bnr:465
Felles vann og avløp Kan ikke avlyses uteen samtykke fra
Oslo bygningsråd
09.08.1990 – Dokumentnr: 47883 – Erklæring/avtale
Rettighet hefter i: Knr:0301 Gnr:214 Bnr:327
felles vann og avløpsanlegg m.v.
Kan ikke avlyses uten samtykke fra Oslo bygningsråd
20.02.1991 – Dokumentnr: 9281 – Erklæring/avtale
Rettighet hefter i: Knr:0301 Gnr:214 Bnr:465
Vedr. veirett med div. betingelser.
20.02.1991 – Dokumentnr: 9283 – Erklæring/avtale
Rettighet hefter i: Knr:0301 Gnr:214 Bnr:327
Vedr. veirett med div. best.
15.03.1995 – Dokumentnr: 14114 – Erklæring/avtale
Rettighet hefter i: Knr:0301 Gnr:214 Bnr:465
Ang. å gjenmure åpninger/vinduer i grenseskille mot gnr.214
bnr.286
06.12.2002 – Dokumentnr: 80506 – Erklæring/avtale
Rettighet hefter i: Knr:0301 Gnr:214 Bnr:472 Snr:1
Rettighet hefter i: Knr:0301 Gnr:214 Bnr:472 Snr:2
Rettighet hefter i: Knr:0301 Gnr:214 Bnr:472 Snr:3
Rettighet hefter i: Knr:0301 Gnr:214 Bnr:472 Snr:4
Rettighet hefter i: Knr:0301 Gnr:214 Bnr:472 Snr:5
Rettighet hefter i: Knr:0301 Gnr:214 Bnr:472 Snr:6
Rettighet hefter i: Knr:0301 Gnr:214 Bnr:472 Snr:7
Rettighet hefter i: Knr:0301 Gnr:214 Bnr:472 Snr:8
Rettighet hefter i: Knr:0301 Gnr:214 Bnr:472 Snr:9
Rettighet hefter i: Knr:0301 Gnr:214 Bnr:472 Snr:10
Rettighet hefter i: Knr:0301 Gnr:214 Bnr:472 Snr:11
Rettighet hefter i: Knr:0301 Gnr:214 Bnr:472 Snr:12
Rettighet hefter i: Knr:0301 Gnr:214 Bnr:472 Snr:13
Rettighet hefter i: Knr:0301 Gnr:214 Bnr:472 Snr:14
Rettighet hefter i: Knr:0301 Gnr:214 Bnr:472 Snr:15
Rettighet hefter i: Knr:0301 Gnr:214 Bnr:472 Snr:16
Rettighet hefter i: Knr:0301 Gnr:214 Bnr:472 Snr:17
Rettighet hefter i: Knr:0301 Gnr:214 Bnr:472 Snr:18
Rettighet hefter i: Knr:0301 Gnr:214 Bnr:472 Snr:19
Rettighet hefter i: Knr:0301 Gnr:214 Bnr:472 Snr:20
Rettighet hefter i: Knr:0301 Gnr:214 Bnr:472 Snr:21
Rettighet hefter i: Knr:0301 Gnr:214 Bnr:472 Snr:22
Rettighet hefter i: Knr:0301 Gnr:214 Bnr:472 Snr:23
Rettighet hefter i: Knr:0301 Gnr:214 Bnr:472 Snr:24
Rettighet hefter i: Knr:0301 Gnr:214 Bnr:472 Snr:25
Rettighet hefter i: Knr:0301 Gnr:214 Bnr:472 Snr:26
Rettighet hefter i: Knr:0301 Gnr:214 Bnr:472 Snr:27
Rettighet hefter i: Knr:0301 Gnr:214 Bnr:472 Snr:28
Rettighet hefter i: Knr:0301 Gnr:214 Bnr:472 Snr:29
Rettighet hefter i: Knr:0301 Gnr:214 Bnr:472 Snr:30
Rettighet hefter i: Knr:0301 Gnr:214 Bnr:472 Snr:31
Rettighet hefter i: Knr:0301 Gnr:214 Bnr:472 Snr:32
Rettighet hefter i: Knr:0301 Gnr:214 Bnr:472 Snr:33
Rettighet hefter i: Knr:0301 Gnr:214 Bnr:472 Snr:34
Rettighet hefter i: Knr:0301 Gnr:214 Bnr:472 Snr:35
Rettighet hefter i: Knr:0301 Gnr:214 Bnr:472 Snr:36
Rettighet hefter i: Knr:0301 Gnr:214 Bnr:472 Snr:37
Rettighet hefter i: Knr:0301 Gnr:214 Bnr:472 Snr:38
Rettighet hefter i: Knr:0301 Gnr:214 Bnr:472 Snr:39
Rettighet hefter i: Knr:0301 Gnr:214 Bnr:472 Snr:40
Rettighet hefter i: Knr:0301 Gnr:214 Bnr:472 Snr:41
Rettighet hefter i: Knr:0301 Gnr:214 Bnr:472 Snr:42
Rettighet hefter i: Knr:0301 Gnr:214 Bnr:472 Snr:43
Rettighet hefter i: Knr:0301 Gnr:214 Bnr:472 Snr:44
Rettighet hefter i: Knr:0301 Gnr:214 Bnr:472 Snr:45
Rettighet hefter i: Knr:0301 Gnr:214 Bnr:472 Snr:46
Rettighet hefter i: Knr:0301 Gnr:214 Bnr:472 Snr:47
Rettighet hefter i: Knr:0301 Gnr:214 Bnr:472 Snr:48
Rettighet hefter i: Knr:0301 Gnr:214 Bnr:472 Snr:49
Rettighet hefter i: Knr:0301 Gnr:214 Bnr:472 Snr:50
Rettighet hefter i: Knr:0301 Gnr:214 Bnr:472 Snr:51
Rettighet hefter i: Knr:0301 Gnr:214 Bnr:472 Snr:52
Rettighet hefter i: Knr:0301 Gnr:214 Bnr:472 Snr:53
Rettighet hefter i: Knr:0301 Gnr:214 Bnr:472 Snr:54
Rettighet hefter i: Knr:0301 Gnr:214 Bnr:472 Snr:55
Rettighet hefter i: Knr:0301 Gnr:214 Bnr:472 Snr:56
Rettighet hefter i: Knr:0301 Gnr:214 Bnr:472 Snr:57
Rettighet hefter i: Knr:0301 Gnr:214 Bnr:472 Snr:58
Rettighet hefter i: Knr:0301 Gnr:214 Bnr:472 Snr:59
Rettighet hefter i: Knr:0301 Gnr:214 Bnr:472 Snr:60
Rettighet hefter i: Knr:0301 Gnr:214 Bnr:472 Snr:62
Rettighet hefter i: Knr:0301 Gnr:214 Bnr:472 Snr:63
Rettighet hefter i: Knr:0301 Gnr:214 Bnr:472 Snr:64
Rettighet hefter i: Knr:0301 Gnr:214 Bnr:472 Snr:65
Bestemmelse om anlegg og vedlikehold av ledninger m.m.
Kan ikke slettes uten samtykke fra gnr 214 bnr 286
Med flere bestemmelser
Gjelder denne registerenheten med flere
Rammetillatelse datert 26.06.2023.
Det er gitt totalt 5 dispensasjoner fra reguleringsplanen og kommuneplanen i rammetillatelsen for NORA Bolig. Rammetillatelsen er vedlagt kjøpekontrakten. Det prosjekteres og bygges i henhold til Byggeteknisk forskrift TEK17. Selger har ansvaret for at det foreligger brukstillatelse på leiligheten senest ved kjøpers overtagelse av leiligheten. Etter pålegg fra Finanstilsynet rettet mot samtlige meglerforetak (ref. rundskriv 21 / 2011) informeres ved dette om at det per dato for overtakelse av den enkelte boligseksjon ikke vil foreligge ferdigattest, samt at ferdigattest først vil foreligge lang tid etter overtakelse. Bakgrunnen er at deler av de arbeider som er påkrevet for å få ferdigattest, ikke vil være ferdig per dato for overtakelse av den enkelte boligseksjon.
Under henvisning til at selger av den aktuelle boligseksjon er et selskap 100 % eiet av KLP, vurderer megler risikoen for manglende ferdigstillelse av de gjenstående arbeidene samt risikoen for at ferdigattest ikke blir gitt, som liten. Det presiseres at fremstillingen over ikke har noen innvirkning på selgers forpliktelse til å fremskaffe ferdigattest eller konsekvensene av at ferdigattest ikke foreligger pr. overtakelse.
Leiligheten kan leies ut i sin helhet.
Reguleringsbestemmelser og reguleringskart ligger som vedlegg til denne salgsoppgaven. NORA Bolig ligger i et område som er avsatt til hovedformål bebyggelse og anlegg U3, fremtidig (utviklingsområde Akerselva og andre områder) i kommuneplan 2015 – Oslo mot 2030, vedtatt 23.09.2015.
Eiendommen er regulert til underformål kombinert bebyggelse og anleggsformål i reguleringsplan S-5107, vedtatt 16.12.2020. NORA Bolig utgjør boligdelen av Felt B, der reguleringen legger til rette for ny bebyggelse over 3 til 10 etasjer. Reguleringshøyder k67,2-k84,3.
Ifølge reguleringen skal det ikke være boenheter i første etasje mot Sporveisgata og Pilestredet. I 1. etasje (Felt B) og underetasje/kjellere (Felt I) tillater reguleringen en rekke næringsformål, herunder forretning, bilutleie, undervisning, kultur, tjenesteyting, kontor, bevertning etc. Trappegjennomgang (øst) fra Sporveisgata til øvre gårdsrom skal være allment tilgjengelig.
I samme reguleringsplan er naboeiendom regulert til bl.a. gatetun tilgjengelig for beboere og allmenheten, bevaring av bebyggelse/kulturmiljø og større arealer og uteoppholdsarealer til eksisterende Rosenborg barnehage.
Det gjøres oppmerksom på at det tidligere har foreligget regulering for to boligblokker med kote 71,6 på naboeiendommen gnr. 214 bnr. 286. Planen er helt eller delvis opphevet som følge av bystyrets vedtak 23.09.2015, sak 262(Kommuneplan 2015 – Oslo mot 2030 – Smart, trygg og grønn). https://innsyn.pbe.oslo.kommune.no/saksinnsyn/showregbest.asp?planid=4073152
https://od2.pbe.oslo.kommune.no/kart/#596941,6642882,7
Sporveisgata 21 eies i dag av KLP. Bygget har behov for renovering, og det kan også være aktuelt med riving og gjenoppføring. Det foreligger per i dag ikke avklarte planer for tiltakets omfang eller utforming, og endringer kan derfor forekomme.
Det er eiendomsskatt på boliger og annen fast eiendom i Oslo kommune. Oslo kommune fastsetter endelige kommunale avgifter (inkl. eiendomsskatt) og det tas derfor forbehold om dette.
Formuesverdien er ikke fastsatt, men fastsettes av Skatteetaten etter en beregningsmodell som hensyntar om boligen er «primærbolig»; (der eier er bosatt iht. Folkeregisteret) eller «sekundærbolig»; (andre boliger man eier).
For primærbolig er formuesverdien 25 % av markedsverdien opp til kr. 10 000 000 og deretter 70 % av den overskytende markedsverdien, og 100 % for sekundærboliger. Det gjøres oppmerksom på at kjøper selv må sende inn opplysninger om adresse, areal, boligtype og byggeår til skattemyndighetene.
Det tas forbehold om endring av satser, og henvises til Skatteetatens nettsider dersom ytterligere informasjon er ønskelig.
1) Det forutsettes at forskudd iht. leilighetstype innbetales til meglers klientkonto ved signatur av kjøpekontrakt samt at garantien er stilt etter buofl. § 12. Kontantinnbetaling må være fri egenkapital.
Påløpte renter tilfaller kjøper frem til skjøte er tinglyst på kjøper, med mindre selger får disposisjonsretten over beløpet som en følge av at det stilles garanti i medhold av buofl. §47.
Følgende forskuddsbeløp er gjeldende for de ulike leilighetstypene;
2- roms NOK 100.000
3- roms NOK 200.000
4- roms NOK 300.000
2) Eventuelle endringsbestillinger betales etter nærmere avtale med selger.
3) Resterende del av kjøpesummen betales 3 dager før overtagelse.
4) Alle betalinger skal betales inn fra kjøpers konto i norsk finansinstitusjon.
I tilfeller hvor kjøper er profesjonell iht. bustadoppføringslova, dvs. gjør kjøpet som ledd i næringsvirksomhet, vil selger kreve 20% innbetaling ved kontraktsignatur.
Leilighetene vil bli solgt som eierleiligheter og organisert som sameie og følger eierseksjonsloven av 16.juni 2017, nr. 65. Bygget er et kombinasjonsbygg med næring og bolig hvor man bl.a. har stemmerett etter eierbrøk. Næringsarealene vil hovedsakelig ligge i 1. etasje-/underetasje/gateplan og kjeller mot Sporveisgaten og Pilestredet, samt et lokale i 2. etasje på hjørnet Pilestredet/Sporveisgata.
Deler av fellesarealet vil være forbeholdt til eksklusiv bruk, drift og vedlikehold for henholdsvis boligseksjonene og næringsseksjonene, hvilket beskrives nærmere i eierseksjonssameiets vedtekter og/eller ved tinglysing. Det vil i vedtektene og/eller ved tinglysing bli fastsatt at eierne av boligseksjonene ikke kan motsette seg reseksjonering og ombygging av næringsseksjonene.
Eierseksjonsloven kan i sin helhet, fås ved henvendelse til megler. Loven finnes også på www.lovdata.no.
Kjøper plikter å rette seg etter de til enhver tid gjeldende vedtekter for sameiet. Vedlagt salgsoppgaven følger foreløpige vedtekter. Likeledes plikter kjøper å betale sin forholdsmessige andel av driftsutgiftene for eiendommene fra overtakelsestidspunktet. Budsjett over driftsutgiftene samt vedtektene stadfestes av sameiet i ekstraordinært sameiermøte. Regler for styring og drift av boligsameiet følger av Eierseksjonsloven.
Forbehold om realisering av prosjektet og kansellering av inngått kjøpekontrakt, som følge av manglende offentlige tillatelser eller nødvendig avklaring med entreprenør, er frafalt og prosjektet er igangsatt.
Da prosjektet fortsatt er i en prosjekteringsfase, er alle opplysninger i leveransebeskrivelse gitt med forbehold om rett til, uten forutgående varsel, å gjøre endringer som er hensiktsmessige og nødvendige, eksempelvis pga. offentlige pålegg, byggesakskrav og lignende, uten at den planlagte generelle standard forringes i nevneverdig grad. Videre kan størrelse på sjakter og veggtykkelse bli justert. Omfang av nedforete himlinger eller innkassinger kan justeres ettersom detaljprosjekteringen gjennomføres. Plassering av vinduer og dører, samt form på disse, kan avvike noe fra plantegninger og fasadetegninger i den enkelte leilighet. Dette som følge av valg av leverandør, behov for tilpasninger og arkitektoniske utforminger av bygget. Alle angivelser av produkt/modellnavn skal oppfattes som veiledende og kan erstattes av andre tilsvarende produkter/modeller.
Kjøper er gjort kjent med at den endelige arealfordeling/oppdeling av prosjektet ikke er fastlagt på avtaletidspunktet. Antall seksjoner og antall eierseksjonssameier som vil bli etablert i prosjektet eller størrelsen på det enkelte sameie er følgelig ikke endelig besluttet.
Selger forbeholder seg derfor retten til å dele opp prosjektet i flere eierseksjonssameier og/eller gårds- og bruksnumre, herunder å omdisponere det enkelte areal slik at areal som er godkjent til næringslokaler gjøres om til ytterligere leiligheter, at boligarealer endres til næringsareal, eller at boligsammensetningen endres (f. eks ved at leiligheter slås sammen eller deles). Selger forbeholder seg videre retten til å justere størrelsen på det enkelte sameie i forhold til hva som er hensiktsmessig med hensyn til utbyggingstakt, fremtidig drift og bruksrettigheter.
Selger forbeholder seg retten til å selge deler av prosjektet/enkelte oppganger i prosjektet separat. Blir et slikt salg gjennomført kan det bli eget/egne sameie/r med mulige sambruksarealer mellom sameiene. Dersom et slikt salg gjennomføres vil deler av det som er rammesøkt kunne endre karakter.
Det tas også forbehold om at hele eller deler av kjellereiendommen, gårdsrom, adkomstveier, ledninger mv. vil kunne bli etablert som en egen matrikkelenhet, og at sameiets/den enkelte seksjonseiers rettigheter og plikter mht. bruk og vedlikehold av slike arealer vil fremkomme gjennom tinglyste erklæringer, etablering av realsameier, velforeninger eller annen hensiktsmessig organisering.
For kjøpere med rett til parkeringsplass/er vil kjøpesummen for p-plass bero på meglerskonto inntil kjelleren er ferdig organisert og kjøper har fått rettsvern for sin rett til parkeringsplass/er.
Kjøper aksepterer ved signering av Kjøpekontrakten at Selger fritt kan transportere Kjøpekontrakten og eventuelle senere avtaler.
Kjøper er kjent med at Kjøpekontrakten er utarbeidet på et tidlig tidspunkt i utbyggingen av prosjektet og det tas forbehold om endringer i dokumentene opplistet under. Det tas også forbehold om endringer i offentlige dokumenter.
Kjøper aksepterer eventuelle konsekvenser av de forbehold som fremkommer i salgsoppgaven med vedlegg, og kan ikke fremme krav mot Selger pga. dette.
Det tas forbehold om at seksjoneringen kan bli forsinket på grunn av offentlige myndigheters saksbehandlingstid. Såfremt tomtearronderingen og seksjoneringen av eiendommen ikke er gjennomført ved overtakelse, vil overskjøting til kjøper skje så snart det praktisk lar seg gjennomføre.
Selger forbeholder seg retten til å forestå fordelingen/plasseringen av sportsboder og eventuelle parkeringsplasser.
Det tas forbehold om eventuelle feil i salgsoppgaven.
Tegninger og bilder i markedsføringsmateriell er kun illustrasjoner og kan avvike noe i forhold til plan – og fasadetegninger som vedlegges. Selger leverer ikke; innredninger, garderobeskap, lamper, øvrig belysningsutstyr, markiser/solavskjerming, tepper, møbler og annet tilbehør, med mindre det fremgår av leveransebeskrivelse samt kontraktstegninger. 3D og VR-modellen er basert på skisser og regulert volum og kun ment som en illustrasjon. Endringer vil skje.
Kjøpet følger bustadoppføringslova av 13. juni 1997 nr. 43. Loven regulerer forhold hvor selger er profesjonell, og kjøper er forbruker. Iht. loven plikter selger å stille garanti som sikkerhet for oppfyllelse av sine forpliktelser etter kjøpekontrakt senest ved forbehold frafalt. Garantien utgjør 3 % av kjøpesum frem til overtakelse. Beløpet økes til 5 % av kjøpesum og står 5 -fem-år etter overtakelsen jf. buofl. § 12, 3 ledd. Loven kan i sin helhet fås ved henvendelse til megler. Loven finner du også på www.lovdata.no.
I tilfeller hvor kjøper er profesjonell iht. bustadoppføringslova, dvs. gjør kjøpet som ledd i næringsvirksomhet, vil selger kreve at avtalen reguleres av Lov om avhending av fast eiendom av 3. juli 1992 nr. 93 (avhendingslova).
Eiendomsmeglere er underlagt Lov om hvitvasking. I henhold til Lov av 01.06.18 nr. 23 om tiltak mot hvitvasking og terrorfinansiering (Hvitvaskingsloven), er megler pliktig til å gjennomføre identitetskontroll av alle involverte parter, herunder fullmektiger. Dette innebærer bl.a. å bekrefte kunders og reelle rettighetshaveres identitet på bakgrunn av fremvist gyldig legitimasjon eller på annen godkjent måte, samt å innhente opplysninger om kundeforholdets formål og tilsiktede art. Dersom slike kundetiltak ikke kan gjennomføres, kan megler ikke etablere kundeforholdet eller utføre transaksjonen. Hvitvaskingsloven pålegger også eiendomsmegler å innhente redegjørelse av midlenes opprinnelse. Dette besvares av samtlige kjøpere herunder parter som opptrer på vegne av kjøper, ved en såkalt kundekontroll.
Hvis kjøper ikke bidrar til gjennomføring av kundekontrollen og dette fører til at transaksjonen blir forsinket eller ikke kan gjennomføres, vil dette ansees som mislighold av avtalen og gi selger rettigheter etter avhendingslova eller bustadoppføringsloven kapittel 5. I tilfeller der selger ikke bidrar til gjennomføring av løpende kundekontroll underveis i oppdraget, er det selger som misligholder sine forpliktelser etter avtalen og gi kjøper rettigheter etter avhendingslovens eller bustadoppføringsloven kapittel 4. Partene er selv ansvarlige for eventuelle kostnader og ansvar dette kan medføre. Eiendomsmegleren eller eiendomsmeglingsforetaket kan ikke holdes ansvarlig for de konsekvenser dette vil kunne få for partene eller andre som har interesser i eiendomshandelen.
Ved eventuelt tilbakehold av informasjon eller mistenkelige transaksjoner, plikter eiendomsmegleren å melde fra til Økokrim. Med «mistenkelig transaksjon» menes transaksjon som mistenkes å involvere utbytte fra straffbar handling, eller som skjer som ledd i terrorfinansiering. Manglende mulighet for kundekontroll kan også være et forhold som gjør transaksjonen mistenkelig.
Det anbefales at kjøper innbetaler kjøpesummen som ikke kommer fra låneinstitusjon, i en samlet innbetaling fra egen konto i norsk bank.
Selger forbeholder seg også retten til å kreve dokumentasjon av kjøpers finansiering.
Det kan ikke gjøres ansvar gjeldende mot meglerforetaket som følge av at meglerforetaket overholder sine plikter etter Hvitvaskingsloven.
Selger vil benytte egen standard kjøpekontrakt for alle salg i prosjektet. Det forutsettes at bud er lagt inn på grunnlag av denne kjøpekontrakten og en eventuell aksept av bud fra selger gis under samme forutsetning. Standard kjøpekontrakt følger som vedlegg til denne salgsoppgave.
Kjøper kan avbestille boligen inntil overtakelse har funnet sted. Ved avbestilling kommer reglene i Bustadoppføringslova kapittel VI til anvendelse. Ved avbestilling gjelder bestemmelsene i buofl. § 53. I et slikt tilfelle skal kjøper dekke hele selgers økonomiske tap.
Kjøper er selv ansvarlig for nødvendig finansiering og bekreftelse på denne. Dersom kjøper skal ha lånefinansiering, bes det oppgitt kontaktinformasjon til långiver slik at megler kan foreta en kontroll av kjøpers finansiering. Til informasjon, kan disse opplysningene bli videreformidlet til selger. Kjøper oppfordres til å innhente verdivurdering av egen bolig dersom egenkapital i nåværende bolig inngår i finansieringsplanen for dette kjøpet. Handelen er juridisk bindende for begge parter når kjøpers bud er akseptert av selger. Dersom kjøper likevel ikke skulle være i stand til å betale kjøpesummen, er kjøper likevel bundet av kjøpet. Selger vil i en slik situasjon kunne påberope seg vesentlig mislighold av avtalen og heve kontrakten. Kjøper er innforstått med at selger vil kunne selge boligen på nytt (dekningssalg) og at ethvert økonomisk tap som selger måtte bli påført som følge av kjøpers mislighold, vil bli krevd dekket av kjøper. Herunder omkostninger i forbindelse med et nytt salg, dekning av en mulig lavere salgspris, rentetap m.m.
Fra 1. januar 2024 trådte en ny arealstandard i kraft “Areal og Volumberegninger for bygninger” som ble publisert av Norsk Standard 26.10.23. De nye arealbegrepene oppgis som ulike former for BRA, som forklart under:
BRA-i Bruksarealet av boenheten innenfor omsluttede vegger.
BRA-e Bruksarealet av alle rom som ligger utenfor boenheten, men som tilhører denne.
BRA-b Bruksarealet av innglasset balkong tilknyttet boenheten.
BRA Boligens fulle areal eksklusive ytterveggene, altså summen av BRA-i. BRA-e og BRA-b.
Kontraktstegning for den enkelte leilighet kan lastes ned via prosjektets boligvelger eller tilsendes ved henvendelse til megler.
De oppgitte arealer er å betrakte som cirka-arealer. Partene har ingen krav mot hverandre dersom arealet skulle vise seg å være 5 % mindre/større enn det oppgitte areal. Marginale avvik på intern romfordeling og på garasjeplassenes bredde/lengde kan også forekomme uten at partene har krav mot hverandre.
Sist oppdatert: 20.04.2026
B1 404
4. Etasje
2-roms
42 m²
kr 7 300 000,-
A1 405
4. Etasje
2-roms
42 m²
kr 7 300 000,-
A2 503
5. Etasje
2-roms
41 m²
kr 7 400 000,-
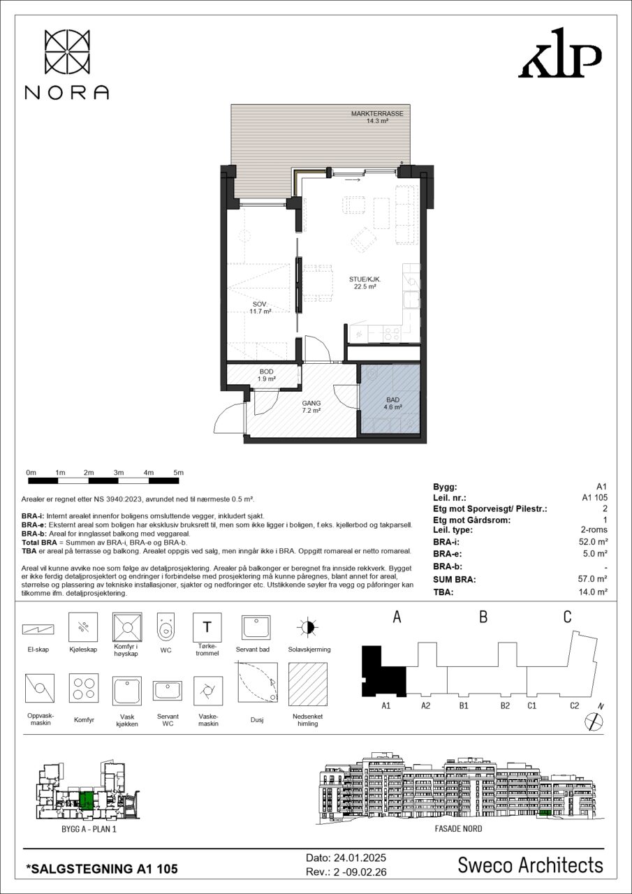
A1 105
1. Etasje
2-roms
52 m²
kr 7 700 000,-
B1 502
5. Etasje
2-roms
45 m²
kr 8 200 000,-
A2 403
4. Etasje
3-roms
51 m²
kr 8 600 000,-
A2 101
1. Etasje
3-roms
76 m²
kr 9 900 000,-
A1 103
1. Etasje
3-roms
79,5 m²
kr 9 990 000,-
A2 103
1. Etasje
3-roms
84 m²
kr 11 700 000,-