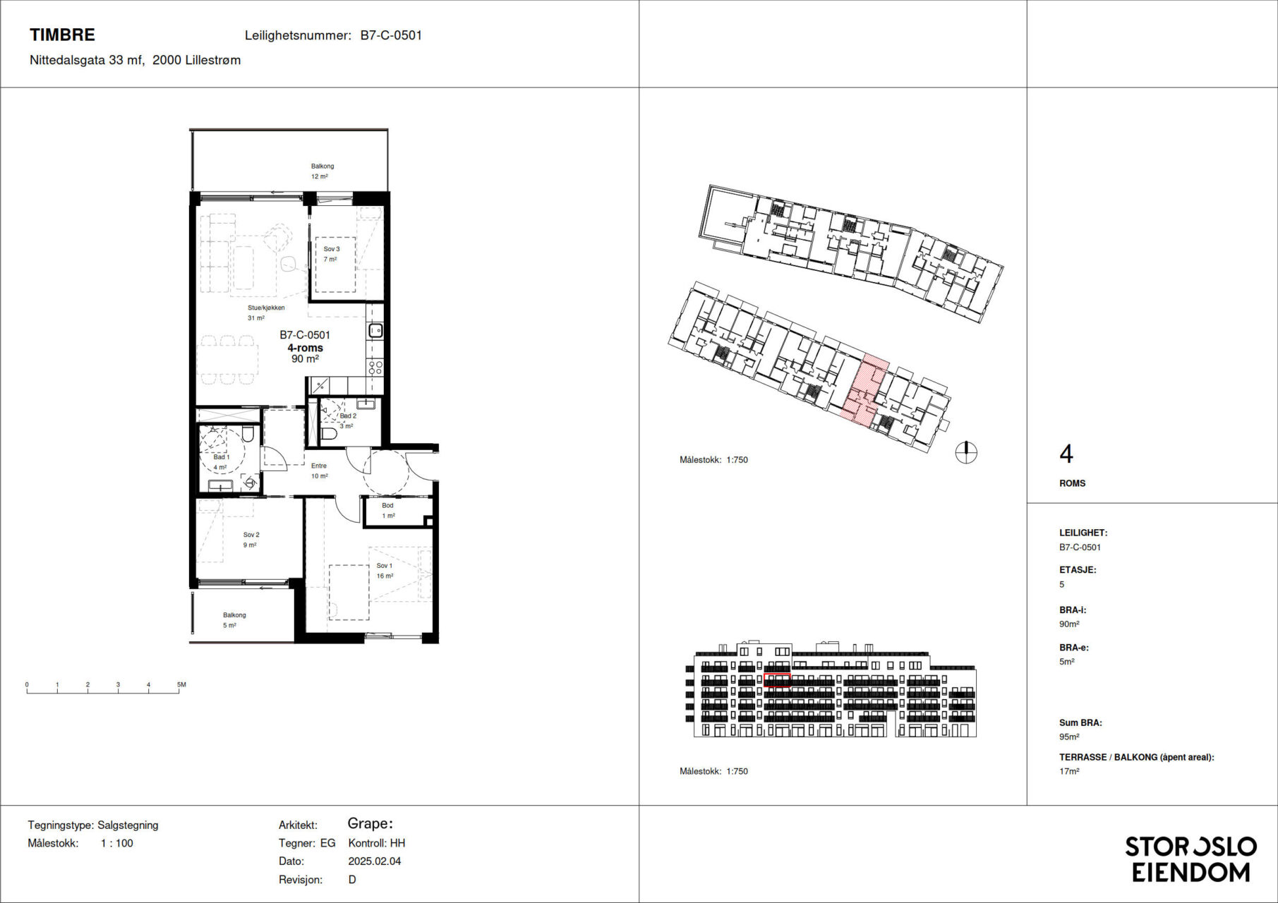
Timbre – Innholdsrik 4-roms med tre soverom, to bad og to balkonger.

Lidenskap for nybygg

Timbre – Innholdsrik 4-roms med tre soverom, to bad og to balkonger.

Nittedalsgata 33, 2000 LILLESTRØM

Geotag

Pris

  • Prisantydning kr 9 400 000,-
  • Omkostninger kr 40 240,-
  • Totalpris kr 9 440 240,-

Areal

  • BRA 95 m²
  • BRA-I 90 m²
  • BRA-E 5 m²
  • TBA 17 m²

Nøkkelinfo

  • Rom 4
  • Etasje 5
  • Leil.nr B7C-0501
  • Eierform Eierseksjon
  • Fellesutgifter/mnd kr 4 986,-

Registrer interesse

Meld din interesse så vil vi ta kontakt med deg og holde deg løpende orientert om prosjektet!

Beskrivelse

Kort om eiendommen

Arealeffektiv og fin 4-roms med to balkonger. Leiligheten har entré med tilgang til praktisk, innvendig bod som kan brukes til lagring av yttertøy. Åpen kjøkken-/stueløsning med naturlige møbleringssoner og utgang til sydvestvendt balkong. Kjøkkenet er trukket noe tilbake fra resten av stuen, og har god skap-/benkeplass. 3 soverom med avsatt plass til garderobe. I tillegg har leiligheten 2 flislagte baderom hvorav det ene har opplegg for vaskemaskin og tørketrommel.

Dette er en av mange leiligheter som er for salg nå. For å se flere leiligheter klikk på fanen prosjektets hjemmeside.

Lars Petter Hansrud

Eiendomsmegler

95203993lars.petter.hansrud@roislandco.no

Ingrid Anne Fossli

Eiendomsmegler

93885778ingrid@roislandco.no

Innhold

BRA-i: 90 kvm BRA-e: 5 kvm TBA: 17 kvm
BRA-i: 5.etasje: Entré, baderom, innvendig bod, stue med åpen kjøkkenløsning og tre soverom.

Arealbeskrivelse; De oppgitte arealer er hentet fra opprinnelige plantegninger fra utbygger. Vedlagte plantegninger er ikke målbare. Arealet er beregnet ut fra Norsk standard NS 3940:2023. BRA-i: Internt arealet innenfor boligens omsluttende vegger, inkludert sjakt. BRA-e: Eksternt areal som boligen har eksklusiv bruksrett til, men som ikke ligger i boligen, f.eks. kjellerbod. BRA-b: Areal for innglasset balkong med veggareal. Total BRA = Summen av BRA-i, BRA-e og BRA-b. TBA er areal på terrasse og balkong. Arealet oppgis ved salg, men inngår ikke i BRA. Oppgitt romareal er netto romareal. De oppgitte arealer er å betrakte som cirka-arealer. Partene har ingen krav mot hverandre dersom arealet skulle vise seg å være 5 % mindre / større enn det oppgitte areal.

Matrikkel

Knr. 3205 Gnr. 81 Bnr. 152

Knr. 3205 Gnr. 81 Bnr. 146

Knr. 3205 Gnr. 81 Bnr. 166

Om prosjektet

I en begrenset periode betaler du nå et lavt forskudd ved kjøp av leilighet i Timbre. Størrelsen på forskudd avhenger av leilighetstype.
Forskudd 2-roms 150 000, 3-roms kr 250.000 og 4 roms kr 400.000,-. Ta kontakt for mer informasjon om prosjektet og for å avtale tid for visning.

De 168 leilighetene i Timbre ligger perfekt til der Lillestrøms sjarmerende trehusbebyggelse møter den nye, mer urbane byen.

Ta kontakt med megler for å avtale privatvisning digitalt eller på vårt visningssenter på Lillestrøm.

Timbre vil ligge mellom “nye” og “gamle” Lillestrøm, der sentrum og hagebyen Volla møtes. Her får du gangavstand til butikker, torg, kulturtilbud og kino, og kort vei til promenaden langs Nitelva, samt Nebbursvollen friluftsbad, Lillestrøm Idrettspark og Sørum gård. På nordsiden ligger Lillestrøm kirke med tilhørende parkområde, og Vollaparken på vestsiden.

Nittedalsgata bussholdeplass i Adolph Tidemands gate ligger i hjørnet av tomten, og mindre enn 500 m unna finner du toget som tar deg til Oslo S på 10 min og Gardermoen på 12 min. Det betyr at du faktisk kommer deg til sentrum av Oslo langt raskere enn mange som bor i hovedstaden. Lillestrøm er en av Europas fremste sykkelbyer, og Timbre grenser mot flere viktige forbindelsesårer for sykkel. Alle skoletrinn ligger i kort gåavstand, barneskolen bare et par kvartaler unna.

I Timbre finner du komfortable leiligheter i mange varianter, så du kan enkelt velge den som passer best for deg. Den gode følelsen av et helt nytt hjem møter deg allerede ved inngangsdøren – alt er splitter nytt, og du slipper å bruke tid og ressurser på vedlikehold. Leilighetene har store vinduer som gir mye lys og gjennomtenkte planløsninger. Gjennomarbeidede plan- og interiørløsninger og funksjonelle rom skaper et moderne og innbydende hjem.

Vannbåren gulvvarme gir jevn og behagelig oppvarming, samtidig som det skaper et bedre inneklima og et stilrent uttrykk uten synlige radiatorer. Kjøkkenet leveres med sømløst integrerte hvitevarer, inkludert en selvrensende stekeovn for enkel rengjøring. De større leilighetene har vinduer både mot gaten og den grønne kvartalshagen, med stue og kjøkken i ett gjennomgående, åpent og luftig rom. Toppetasjene i lamellbygget mot Teatergata vil få en ekstra romfølelse med saltak og god takhøyde. Alle leilighetene vil få egen uteplass enten som balkong eller terrasse.

Mot vest, langs Teatergata, blir bygningene lavere og får et mer tradisjonelt utseende med saltak og fasader i tre som passer inn med de nærliggende trehusene.

I tillegg til din private uteplass kan du nyte ettermiddagssola på en av de hyggelige takterrassene, hvor du blant annet er omgitt av planter og sittegrupper. Terrassene er inndelt i forskjellige soner, og det blir god plass både for trening og mindre arrangementer, gjerne i le under en pergola. Opphøyde plantekasser med jord vil stå klare av de som vil dyrke eget. I tillegg til oppbevaringsmuligheter i leiligheten, blir det levert en praktisk kjellerbod og det blir også rikelig med sykkelparkering, både ute og inne.

I Timbre er det lagt stor vekt på gode uteområder. Boligene kranser rundt en frodig kvartalshage med flere sitteplasser og lekeplasser. La humøret bestemme om du vil finne et rolig hjørne, eller en plass som inviterer mer til sosial omgang. Høydeforskjellen skaper steder for lek og opphold der du blant annet vil finne bordtennisbord og sklier, om vinteren blir det akebakker. Høydeforskjeller og beplantning skiller også de private uteområdene fra fellesarealene.

Kvartalshagen passer for alle og har flere soner for lek, avslapning og sosialt samvær. Uteområdene er designet for bruk hele året, med beplantning som endrer seg med årstidene og skaper et godt miljø.

Det er også tenkt på bærekraft. Gårdsrommet er plantet med lokale vekster som absorberer overvann og gir et frodig utseende. Takene blir grønne og de blir både miljøvennlige og pene å se på. Sykkelparkering finnes overalt, så det er enkelt å bruke sykkel i hverdagen.

Eiendommen

Nittedalsgata 27, 2000 LILLESTRØM

Knr. 3205 Gnr. 81 Bnr. 152

Knr. 3205 Gnr. 81 Bnr. 166

Knr. 3205 Gnr. 81 Bnr. 2740

Knr. 3205 Gnr. 81 Bnr. 146

Selger

Nittedalsgata 33 AS

Fremdriftsplan og ferdigstillelse

Boligen planlegges ferdigstilt 3. kvartal 2027 for byggetrinn Øst (Bygg B3 og B4) og 2. kvartal 2028 for byggetrinn Vest som nå er for salg (Bygg B1, B2, B7), under forutsetning av om vedtak om byggestart foreligger innen 31.03.2026. Dette tidspunktet er foreløpig og ikke bindende, og utløser ikke dagmulkt. Senest seks måneder før Selger estimerer ferdigstillelse, basert på reell fremdrift i Prosjektet, vil Selger varsle en planlagt overtakelsesmåned. Selger skal senest 10 uker før ferdigstillelse av Boligen gi Kjøper skriftlig melding om endelig overtakelsesdato. Den endelige datoen er bindende og dagmulktsutløsende.

Parkering

Garasjeplass kan kjøpes til gjeldene priser: P-plass for bil kr. 600 000,-. I tillegg kommer dokumentavgift på 2,5% av kjøpesummen som kan utgjøre ca. kr. 15 000,-. Kjøper har risiko for endringer i omkostningsbeløpene. Estimert felleskostnad pr p-plass er kr. 300,- pr mnd (+ tillegg for plasser medel-ladepunkt). El-ladepunkt kan bestilles i tillegg, så langt det er kapasitet, konferer megler.

Det legges opp til et system fra Aneo Mobility eller tilsvarende. Det er ingen etableringskostnad. Det er estimert fra kr 249 -1399,- pr. mnd avhengig av ladebehov og kjørelengde. Kjøp av garasjeplass er forbeholdt leiligheter større enn 85 kvm BRA-i eventuelt 4-roms. Konferer megler for eventuell interesseliste.

Boder

Det medfølger én sportsbod pr. leilighet. Disse varierer i størrelse avhengig av bl.a. type boligenhet de tilhører.

Leveranse

Sammen med Gitte Rimstad i RCO Interiørdesign har vi satt sammen en helhetlig interiørstil som kjennetegnes av lys, luft og minimalistisk estetikk. Inspirasjonen er hentet fra den nordiske naturen med fokus på funksjonalitet og enkelhet.
Lyse og nøytrale farger som hvitt, beige og lys gråbeige dominerer interiøret og bidrar til å reflektere lyset og skape en luftig atmosfære som gir hjemmet en følelse av ro, åpenhet og trivsel. Kombinert med myke tekstiler i lin, ull og skinn, levende lys og grønne planter vil det gi ytterlige varme til interiøret.

Det er utarbeidet to forskjellige stilretninger for Timbre: Standard for leiligheter på opptil 75 kvm og Plus for leiligheter over 75 kvm. Grunnpalletten passer godt sammen med begge disse stilretningene.

Tilvalg – sammen gjør vi din boligdrøm til virkelighet.
Å kjøpe ny bolig er en stor investering, og vi vil at du skal bli fornøyd. Derfor er det lagd en gjennomtenkt tilvalgsliste med mange valgmuligheter, slik at du kan finne en stil som passer deg.
Kjøkkenet er hjemmets hjerte – et sted for matlaging, samvær og lekser og design, kvalitet og funksjonalitet er viktig. Gjennom leverandøren HTH kan du velge blant det meste av deres sortiment mot tillegg i pris. For leiligheter over 75 kvm kan du kostnadsfritt velge mellom tre utvalgte farger på kjøkkenfrontene. For mer informasjon vedrørende leveranse se romskjema og prospekt.

Tinglyste Heftelser og Rettigheter

På eiendommen er det tinglyst følgende heftelser og rettigheter som følger eiendommens matrikkel ved overskjøting til ny hjemmelshaver:

3205/81/152:
10.07.2020 – Dokumentnr: 2733749 – Kjøpekontrakt
Rettighetshaver: Nittedalsgata 27 29 AS
Org.nr: 919 943 912
Gjelder ideell andel

10.07.2020 – Dokumentnr: 2733777 – Registerenheten kan ikke disponeres over uten samtykke fra rettighetshaver
Rettighetshaver: Nittedalsgata 27 29 AS
Org.nr: 919 943 912

01.08.1898 – Dokumentnr: 800011 – Registrering av grunn
Denne matrikkelenhet opprettet fra:
Knr:0231 Gnr:81 Bnr:18

19.08.1938 – Dokumentnr: 900001 – Sammenslått med denne matrikkelenhet:
Gnr.163, 256 og 352.

13.06.2019 – Dokumentnr: 667680 – Sammenslåing
Sammenslått med denne matrikkelenhet:
Knr:0231 Gnr:81 Bnr:298
Sammenslått med denne matrikkelenhet:
Knr:0231 Gnr:81 Bnr:353
Elektronisk innsendt

01.01.2020 – Dokumentnr: 7832 – Omnummerering ved kommuneendring
Tidligere: Knr:0231 Gnr:81 Bnr:152

04.11.2022 – Dokumentnr: 1255230 – Arealoverføring
Areal overført fra: Knr:3030 Gnr:81 Bnr:2685
Vederlag: NOK 520 000
Omsetningstype: Annet

01.01.2024 – Dokumentnr: 161909 – Omnummerering ved kommuneendring
Tidligere: Knr:3030 Gnr:81 Bnr:152

15.05.2020 – Dokumentnr: 2464355 – Registerenheten kan ikke disponeres over uten samtykke fra rettighetshaver
Rettighetshaver: Dnb Bank Asa
Org.nr: 984 851 006
Gjelder denne registerenheten med flere

24.11.2022 – Dokumentnr: 1338982 – Erklæring/avtale
Kan ikke slettes uten samtykke fra: Lillestrøm Kommune
Org.nr: 820 710 592
Avtale om ferdsels- og oppholdsrett for allmennheten
Bestemmelse drift og vedlikehold
Bestemmelse om byggverk eller andre disposisjoner som kan være til hinder
Gjelder denne registerenheten med flere

01.10.1897 – Dokumentnr: 800015 – Registrering av grunn
Denne matrikkelenhet opprettet fra:
Knr:0231 Gnr:81 Bnr:18

01.01.2020 – Dokumentnr: 988966 – Omnummerering ved kommuneendring
Tidligere: Knr:0231 Gnr:81 Bnr:146

01.01.2024 – Dokumentnr: 161845 – Omnummerering ved kommuneendring
Tidligere: Knr:3030 Gnr:81 Bnr:146

28.10.1942 – Dokumentnr: 103141 – Bestemmelse om vannledn.
Vegvesenets betingelser vedtatt

02.07.1959 – Dokumentnr: 101954 – Bestemmelse om vannledn.
Vegvesenets betingelser vedtatt
Overført fra: Knr:3205 Gnr:81 Bnr:165

27.04.1970 – Dokumentnr: 102256 – Bestemmelse om bebyggelse
Rettighetshaver: Knr:3205 Gnr:81 Bnr:166
Overført fra: Knr:3205 Gnr:81 Bnr:217

15.05.2020 – Dokumentnr: 2464355 – Registerenheten kan ikke disponeres over uten samtykke fra rettighetshaver
Rettighetshaver: Dnb Bank Asa
Org.nr: 984 851 006
Gjelder denne registerenheten med flere

24.11.2022 – Dokumentnr: 1338982 – Erklæring/avtale
Kan ikke slettes uten samtykke fra: Lillestrøm Kommune
Org.nr: 820 710 592
Avtale om ferdsels- og oppholdsrett for allmennheten
Bestemmelse drift og vedlikehold
Bestemmelse om byggverk eller andre disposisjoner som kan være til hinder
Overført fra: Knr:3205 Gnr:81 Bnr:210 m.fl.
Gjelder denne registerenheten med flere

05.12.1898 – Dokumentnr: 800034 – Registrering av grunn
Denne matrikkelenhet opprettet fra:
Knr:0231 Gnr:81 Bnr:18

04.06.1953 – Dokumentnr: 900002 – Sammenslått med denne matrikkelenhet:
Gnr.81 bnr.297.

01.01.2020 – Dokumentnr: 898442 – Omnummerering ved kommuneendring
Tidligere: Knr:0231 Gnr:81 Bnr:166

01.01.2024 – Dokumentnr: 162391 – Omnummerering ved kommuneendring
Tidligere: Knr:3030 Gnr:81 Bnr:166

12.06.2024 – Dokumentnr: 1554267 – Sammenslåing
Sammenslått med denne matrikkelenhet:
Knr:3205 Gnr:81 Bnr:155
Sammenslått med denne matrikkelenhet:
Knr:3205 Gnr:81 Bnr:165
Sammenslått med denne matrikkelenhet:
Knr:3205 Gnr:81 Bnr:167
Sammenslått med denne matrikkelenhet:
Knr:3205 Gnr:81 Bnr:209
Sammenslått med denne matrikkelenhet:
Knr:3205 Gnr:81 Bnr:210
Sammenslått med denne matrikkelenhet:
Knr:3205 Gnr:81 Bnr:217

27.04.1970 – Dokumentnr: 102256 – Bestemmelse om bebyggelse
Rettighet hefter i: Knr:3205 Gnr:81 Bnr:166
Overført fra: Knr:3205 Gnr:81 Bnr:217

3205/81/146:
10.07.2020 – Dokumentnr: 2733749 – Kjøpekontrakt
Rettighetshaver: Nittedalsgata 27 29 AS
Org.nr: 919 943 912
Gjelder ideell andel

10.07.2020 – Dokumentnr: 2733777 – Registerenheten kan ikke disponeres over uten samtykke fra rettighetshaver
Rettighetshaver: Nittedalsgata 27 29 AS
Org.nr: 919 943 912

01.08.1898 – Dokumentnr: 800011 – Registrering av grunn
Denne matrikkelenhet opprettet fra:
Knr:0231 Gnr:81 Bnr:18

19.08.1938 – Dokumentnr: 900001 – Sammenslått med denne matrikkelenhet:
Gnr.163, 256 og 352.

13.06.2019 – Dokumentnr: 667680 – Sammenslåing
Sammenslått med denne matrikkelenhet:
Knr:0231 Gnr:81 Bnr:298
Sammenslått med denne matrikkelenhet:
Knr:0231 Gnr:81 Bnr:353
Elektronisk innsendt

01.01.2020 – Dokumentnr: 7832 – Omnummerering ved kommuneendring
Tidligere: Knr:0231 Gnr:81 Bnr:152

04.11.2022 – Dokumentnr: 1255230 – Arealoverføring
Areal overført fra: Knr:3030 Gnr:81 Bnr:2685
Vederlag: NOK 520 000
Omsetningstype: Annet

01.01.2024 – Dokumentnr: 161909 – Omnummerering ved kommuneendring
Tidligere: Knr:3030 Gnr:81 Bnr:152

15.05.2020 – Dokumentnr: 2464355 – Registerenheten kan ikke disponeres over uten samtykke fra rettighetshaver
Rettighetshaver: Dnb Bank Asa
Org.nr: 984 851 006
Gjelder denne registerenheten med flere

24.11.2022 – Dokumentnr: 1338982 – Erklæring/avtale
Kan ikke slettes uten samtykke fra: Lillestrøm Kommune
Org.nr: 820 710 592
Avtale om ferdsels- og oppholdsrett for allmennheten
Bestemmelse drift og vedlikehold
Bestemmelse om byggverk eller andre disposisjoner som kan være til hinder
Gjelder denne registerenheten med flere

01.10.1897 – Dokumentnr: 800015 – Registrering av grunn
Denne matrikkelenhet opprettet fra:
Knr:0231 Gnr:81 Bnr:18

01.01.2020 – Dokumentnr: 988966 – Omnummerering ved kommuneendring
Tidligere: Knr:0231 Gnr:81 Bnr:146

01.01.2024 – Dokumentnr: 161845 – Omnummerering ved kommuneendring
Tidligere: Knr:3030 Gnr:81 Bnr:146

28.10.1942 – Dokumentnr: 103141 – Bestemmelse om vannledn.
Vegvesenets betingelser vedtatt

02.07.1959 – Dokumentnr: 101954 – Bestemmelse om vannledn.
Vegvesenets betingelser vedtatt
Overført fra: Knr:3205 Gnr:81 Bnr:165

27.04.1970 – Dokumentnr: 102256 – Bestemmelse om bebyggelse
Rettighetshaver: Knr:3205 Gnr:81 Bnr:166
Overført fra: Knr:3205 Gnr:81 Bnr:217

15.05.2020 – Dokumentnr: 2464355 – Registerenheten kan ikke disponeres over uten samtykke fra rettighetshaver
Rettighetshaver: Dnb Bank Asa
Org.nr: 984 851 006
Gjelder denne registerenheten med flere

24.11.2022 – Dokumentnr: 1338982 – Erklæring/avtale
Kan ikke slettes uten samtykke fra: Lillestrøm Kommune
Org.nr: 820 710 592
Avtale om ferdsels- og oppholdsrett for allmennheten
Bestemmelse drift og vedlikehold
Bestemmelse om byggverk eller andre disposisjoner som kan være til hinder
Overført fra: Knr:3205 Gnr:81 Bnr:210 m.fl.
Gjelder denne registerenheten med flere

05.12.1898 – Dokumentnr: 800034 – Registrering av grunn
Denne matrikkelenhet opprettet fra:
Knr:0231 Gnr:81 Bnr:18

04.06.1953 – Dokumentnr: 900002 – Sammenslått med denne matrikkelenhet:
Gnr.81 bnr.297.

01.01.2020 – Dokumentnr: 898442 – Omnummerering ved kommuneendring
Tidligere: Knr:0231 Gnr:81 Bnr:166

01.01.2024 – Dokumentnr: 162391 – Omnummerering ved kommuneendring
Tidligere: Knr:3030 Gnr:81 Bnr:166

12.06.2024 – Dokumentnr: 1554267 – Sammenslåing
Sammenslått med denne matrikkelenhet:
Knr:3205 Gnr:81 Bnr:155
Sammenslått med denne matrikkelenhet:
Knr:3205 Gnr:81 Bnr:165
Sammenslått med denne matrikkelenhet:
Knr:3205 Gnr:81 Bnr:167
Sammenslått med denne matrikkelenhet:
Knr:3205 Gnr:81 Bnr:209
Sammenslått med denne matrikkelenhet:
Knr:3205 Gnr:81 Bnr:210
Sammenslått med denne matrikkelenhet:
Knr:3205 Gnr:81 Bnr:217

27.04.1970 – Dokumentnr: 102256 – Bestemmelse om bebyggelse
Rettighet hefter i: Knr:3205 Gnr:81 Bnr:166
Overført fra: Knr:3205 Gnr:81 Bnr:217

3205/81/166:
10.07.2020 – Dokumentnr: 2733749 – Kjøpekontrakt
Rettighetshaver: Nittedalsgata 27 29 AS
Org.nr: 919 943 912
Gjelder ideell andel

10.07.2020 – Dokumentnr: 2733777 – Registerenheten kan ikke disponeres over uten samtykke fra rettighetshaver
Rettighetshaver: Nittedalsgata 27 29 AS
Org.nr: 919 943 912

01.08.1898 – Dokumentnr: 800011 – Registrering av grunn
Denne matrikkelenhet opprettet fra:
Knr:0231 Gnr:81 Bnr:18

19.08.1938 – Dokumentnr: 900001 – Sammenslått med denne matrikkelenhet:
Gnr.163, 256 og 352.

13.06.2019 – Dokumentnr: 667680 – Sammenslåing
Sammenslått med denne matrikkelenhet:
Knr:0231 Gnr:81 Bnr:298
Sammenslått med denne matrikkelenhet:
Knr:0231 Gnr:81 Bnr:353
Elektronisk innsendt

01.01.2020 – Dokumentnr: 7832 – Omnummerering ved kommuneendring
Tidligere: Knr:0231 Gnr:81 Bnr:152

04.11.2022 – Dokumentnr: 1255230 – Arealoverføring
Areal overført fra: Knr:3030 Gnr:81 Bnr:2685
Vederlag: NOK 520 000
Omsetningstype: Annet

01.01.2024 – Dokumentnr: 161909 – Omnummerering ved kommuneendring
Tidligere: Knr:3030 Gnr:81 Bnr:152

15.05.2020 – Dokumentnr: 2464355 – Registerenheten kan ikke disponeres over uten samtykke fra rettighetshaver
Rettighetshaver: Dnb Bank Asa
Org.nr: 984 851 006
Gjelder denne registerenheten med flere

24.11.2022 – Dokumentnr: 1338982 – Erklæring/avtale
Kan ikke slettes uten samtykke fra: Lillestrøm Kommune
Org.nr: 820 710 592
Avtale om ferdsels- og oppholdsrett for allmennheten
Bestemmelse drift og vedlikehold
Bestemmelse om byggverk eller andre disposisjoner som kan være til hinder
Gjelder denne registerenheten med flere

01.10.1897 – Dokumentnr: 800015 – Registrering av grunn
Denne matrikkelenhet opprettet fra:
Knr:0231 Gnr:81 Bnr:18

01.01.2020 – Dokumentnr: 988966 – Omnummerering ved kommuneendring
Tidligere: Knr:0231 Gnr:81 Bnr:146

01.01.2024 – Dokumentnr: 161845 – Omnummerering ved kommuneendring
Tidligere: Knr:3030 Gnr:81 Bnr:146

28.10.1942 – Dokumentnr: 103141 – Bestemmelse om vannledn.
Vegvesenets betingelser vedtatt

02.07.1959 – Dokumentnr: 101954 – Bestemmelse om vannledn.
Vegvesenets betingelser vedtatt
Overført fra: Knr:3205 Gnr:81 Bnr:165

27.04.1970 – Dokumentnr: 102256 – Bestemmelse om bebyggelse
Rettighetshaver: Knr:3205 Gnr:81 Bnr:166
Overført fra: Knr:3205 Gnr:81 Bnr:217

15.05.2020 – Dokumentnr: 2464355 – Registerenheten kan ikke disponeres over uten samtykke fra rettighetshaver
Rettighetshaver: Dnb Bank Asa
Org.nr: 984 851 006
Gjelder denne registerenheten med flere

24.11.2022 – Dokumentnr: 1338982 – Erklæring/avtale
Kan ikke slettes uten samtykke fra: Lillestrøm Kommune
Org.nr: 820 710 592
Avtale om ferdsels- og oppholdsrett for allmennheten
Bestemmelse drift og vedlikehold
Bestemmelse om byggverk eller andre disposisjoner som kan være til hinder
Overført fra: Knr:3205 Gnr:81 Bnr:210 m.fl.
Gjelder denne registerenheten med flere

05.12.1898 – Dokumentnr: 800034 – Registrering av grunn
Denne matrikkelenhet opprettet fra:
Knr:0231 Gnr:81 Bnr:18

04.06.1953 – Dokumentnr: 900002 – Sammenslått med denne matrikkelenhet:
Gnr.81 bnr.297.

01.01.2020 – Dokumentnr: 898442 – Omnummerering ved kommuneendring
Tidligere: Knr:0231 Gnr:81 Bnr:166

01.01.2024 – Dokumentnr: 162391 – Omnummerering ved kommuneendring
Tidligere: Knr:3030 Gnr:81 Bnr:166

12.06.2024 – Dokumentnr: 1554267 – Sammenslåing
Sammenslått med denne matrikkelenhet:
Knr:3205 Gnr:81 Bnr:155
Sammenslått med denne matrikkelenhet:
Knr:3205 Gnr:81 Bnr:165
Sammenslått med denne matrikkelenhet:
Knr:3205 Gnr:81 Bnr:167
Sammenslått med denne matrikkelenhet:
Knr:3205 Gnr:81 Bnr:209
Sammenslått med denne matrikkelenhet:
Knr:3205 Gnr:81 Bnr:210
Sammenslått med denne matrikkelenhet:
Knr:3205 Gnr:81 Bnr:217

27.04.1970 – Dokumentnr: 102256 – Bestemmelse om bebyggelse
Rettighet hefter i: Knr:3205 Gnr:81 Bnr:166
Overført fra: Knr:3205 Gnr:81 Bnr:217

Midlertidig brukstillatelse og ferdigattest

Det foreligger ikke ferdigattest eller midlertidig brukstillatelse på eiendommen, da bygget ikke er ferdigstilt på salgstidspunktet.
 
Det er utbyggers plikt å fremskaffe ferdigattest på eiendommen. Det gjøres oppmerksom på at midlertidig brukstillatelse eller ferdigattest på foreligge før kjøper kan ta i bruk eiendommen. Kjøper er gjort kjent med at det kan ta lang tid i etterkant av ferdigstillelse av et bygg, før ferdigattest foreligger. Kjøper kan ikke nekte overtagelse ved manglende ferdigattest, dersom midlertidig brukstillatelse foreligger. 

Adgang til utleie

Leiligheten kan leies ut i sin helhet. Korttidsutleie er imidlertid begrenset til inntil 90 dager pr. år, se nærmere foreløpige sameievedtekter vedlagt salgsoppgaven.

Hjemmelshaver

Formuesverdi

Formuesverdien er ikke fastsatt, men fastsettes av Skatteetaten etter en beregningsmodell som hensyntar om boligen er «primærbolig»; (der eier er bosatt iht. Folkeregisteret) eller «sekundærbolig»; (andre boliger man eier). For primærbolig er formuesverdien 25 % av markedsverdien opp til kr. 10 000 000 og deretter 70 % av den overskytende markedsverdien, og 100 % for sekundærboliger. Det gjøres oppmerksom på at kjøper selv må sende inn opplysninger om adresse, areal, boligtype og byggeår til skattemyndighetene.

Det tas forbehold om endring av satser, og henvises til Skatteetatens websider dersom ytterligere informasjon er ønskelig.

Omkostninger

I tillegg til kjøpesummen må kjøper betale:
 
1: Dokumentavgift til staten, 2,5% av andel tomteverdi: Kr. 39 150,-
2: Tinglysningsgebyr skjøte: Kr. 545,-
3: Tinglysningsgebyr pantedokument: Kr. 545,-
 
Totale omkostninger: Kr. 40 240,-
 
Tilbud om lånefinansiering
Megler formidler gjerne kontakt med rådgiver hos vår samarbeidspartner Sparebank 1 Hallingdal og Valdres. De har konkurransedyktige betingelser samt rask og løsningsorientert behandling av din lånesøknad. Røisland & Co mottar et honorar for denne formidlingen.

Organisasjonsform

Leilighetene vil bli solgt som eierleiligheter og organisert som sameie og følger eierseksjonsloven av 16. juni 2017, nr. 65. Deler av fellesarealet vil være forbeholdt til eksklusiv bruk, drift og vedlikehold for boligseksjonene, hvilket beskrives nærmere i eierseksjonssameiets vedtekter og/eller ved tinglysing. Eierseksjonsloven kan i sin helhet fås ved henvendelse til megler. Loven finnes også på www.lovdata.no.

Vedtekter/husordensregler

Kjøper plikter å rette seg etter de til enhver tid gjeldende vedtekter for sameiet. Vedlagt salgsoppgaven følger foreløpige vedtekter. Selger har rett til å tilpasse vedtektene frem til avholdelse av ekstraordinær generalforsamling. Kjøper plikter å betale sin forholdsmessige andel av driftsutgiftene for eiendommene fra overtakelsestidspunktet. Budsjett over driftsutgiftene samt vedtektene stadfestes av sameiet i ekstraordinært sameiermøte. Selger vil innkalle til ekstraordinær generalforsamling ca. 1 måned før overtakelse for å velge styre. Regler for styring og drift av boligsameiet følger av Eierseksjonsloven.

Forbehold fra utbygger

Selger er ikke bundet av kjøpekontrakten dersom ikke
a) 50% av Eiendommens salgsverdi iht. prisliste er solgt.
b) Nødvendige offentlige tillatelser for igangsetting av byggingsarbeidene er gitt.
c) Styret i utbyggerselskapet vedtar byggestart.

Dersom disse forbeholdene ikke er avklart innen 31.03.2026 har partene rett til å kansellere kjøpekontrakten.

Dato

Sist oppdatert: 10.04.2026

Denne boligen er en del av Timbre – Lillestrøm

Les mer om prosjektet

Tilbake til toppen ¨