Innhold
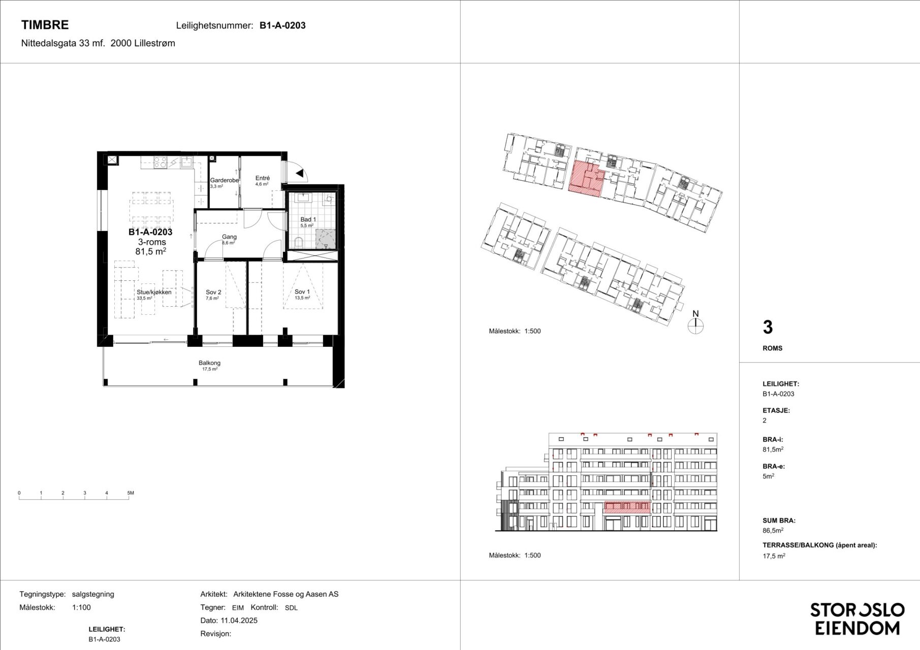
BRA-i: 81,5 kvm BRA-e: 5 kvm TBA: 17,5 kvm BRA-i:
2.etasje: Entré, baderom, stue med åpen kjøkkenløsning og 2 soverom.
Arealbeskrivelse; De oppgitte arealer er hentet fra opprinnelige plantegninger fra utbygger. Vedlagte plantegninger er ikke målbare. Arealet er beregnet ut fra Norsk standard NS 3940:2023. BRA-i: Internt arealet innenfor boligens omsluttende vegger, inkludert sjakt. BRA-e: Eksternt areal som boligen har eksklusiv bruksrett til, men som ikke ligger i boligen, f.eks. kjellerbod. BRA-b: Areal for innglasset balkong med veggareal. Total BRA = Summen av BRA-i, BRA-e og BRA-b. TBA er areal på terrasse og balkong. Arealet oppgis ved salg, men inngår ikke i BRA. Oppgitt romareal er netto romareal. De oppgitte arealer er å betrakte som cirka-arealer. Partene har ingen krav mot hverandre dersom arealet skulle vise seg å være 5 % mindre / større enn det oppgitte areal.

