Kampenhagen – Lys og fin arealeffektiv 4-roms hjørneleilighet med sydvendt balkong

Lidenskap for nybygg

Kampenhagen – Lys og fin arealeffektiv 4-roms hjørneleilighet med sydvendt balkong

Hedmarksgata 13-15, 0658 OSLO

Geotag

Pris

  • Prisantydning kr 11 500 000,-
  • Omkostninger kr 53 590,-
  • Totalpris kr 11 553 590,-

Areal

  • BRA 86 m²
  • BRA-I 81 m²
  • BRA-E 5 m²
  • TBA 7 m²

Nøkkelinfo

  • Rom 4
  • Etasje 5
  • Leil.nr A0502
  • Eierform Andel
  • Fellesutgifter/mnd kr 3 510,-

Registrer interesse

Meld din interesse så vil vi ta kontakt med deg og holde deg løpende orientert om prosjektet!

Beskrivelse

Kort om eiendommen

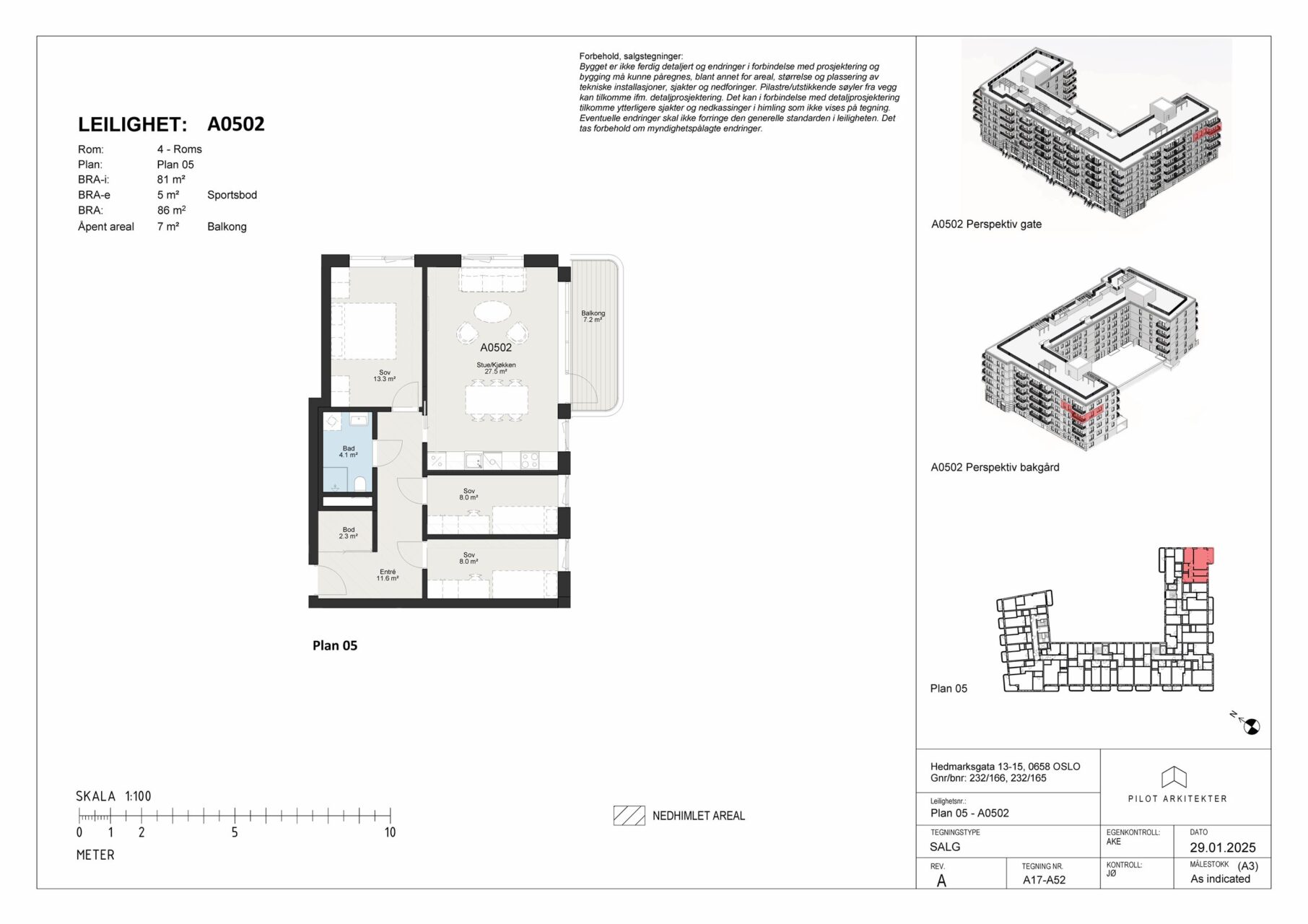
Dette er en fin og arealeffektiv 4-roms hjørneleilighet med sydvendt balkong. Leiligheten har store vindusflater og lys inn fra to sider. Inneholder entré med innvendig bod, 3 soverom med plass til garderobe, baderom og fin åpen stue-/kjøkkenløsning som byr på en naturlig soneoppdeling for møblering. Her har man god plass til både spisebord og sofagruppe.

Dette er en av mange leiligheter som er for salg nå. For å se flere leiligheter klikk på fanen prosjektets hjemmeside eller gå inn på kampenhagen.no

Ingrid Anne Fossli

Eiendomsmegler

93885778ingrid@roislandco.no

Karoline Cecilie Michaelsen

Eiendomsmegler

95183057karoline@roislandco.no

Innhold

BRA-i: 81 kvm
BRA-e: 5 kvm
TBA: 7 kvm
 
BRA-i:
5.etasje: Entré, innvendig bod, 3 soverom, baderom og åpen stue-/kjøkkenløsning.
 
Arealbeskrivelse;
De oppgitte arealer er hentet fra opprinnelige plantegninger fra utbygger. Vedlagte plantegninger er ikke målbare. Arealet er beregnet ut fra Norsk standard NS 3940:2023. BRA-i: Internt arealet innenfor boligens omsluttende vegger, inkludert sjakt. BRA-e: Eksternt areal som boligen har eksklusiv bruksrett til, men som ikke ligger i boligen, f.eks. kjellerbod. BRA-b: Areal for innglasset balkong med veggareal. Total BRA = Summen av BRA-i, BRA-e og BRA-b. TBA er areal på terrasse og balkong. Arealet oppgis ved salg, men inngår ikke i BRA. Oppgitt romareal er netto romareal. De oppgitte arealer er å betrakte som cirka-arealer. Partene har ingen krav mot hverandre dersom arealet skulle vise seg å være 5 % mindre / større enn det oppgitte areal.

Matrikkel

Knr. 301 Gnr. 232 Bnr. 165

Om prosjektet

Kampenhagen er et nytt boligprosjekt med meget attraktiv beliggenhet ved Jordal og Vålerenga. Her vil du oppleve en landlig og tilbaketrukket sentrumsstemning. Kampenhagen tilbyr leiligheter fra cirka 42 til 120 kvm fordelt over seks etasjer.

Kampenhagen har leiligheter for enhver smak, fra kule dupleks-leiligheter på bakkeplan, til 2-, 3- og 4-roms leiligheter med balkong til flotte toppleiligheter med privat takterrasse.

Et av prosjektets høydepunkter er takterrassen, hvor det er skapt et helt eget landskap i høyden. Det er lagt stor vekt på å bruke kvalitetsmaterialer som står godt mot vær og vind, og som samtidig gir en lun og innbydende atmosfære. Terrassene erinnrammet av grønne elementer – alt fra klatreplanter til blomstrende busker i plantekasser, noe som gir en følelse av nærhet til naturen selv i høyden. Dette er ikke bare en takterrasse, men en hage til alle beboerne med enestående utsikt over byens tak og horisont. Det er lagt opp til store fellesarealer på takene, samt egne private parseller. De private parsellene skjermes med levegger og klatreplanter, slik at de får en trivelig og intim atmosfære.

Kampenhagen har også en frodig og hyggelig grønn bakgård som gir beboerne et fredelig tilfluktssted midt i byen. Bakgården er nøye anlagt med vakre planter og grønne områder som skaper en innbydende atmosfære. Her kan man slappe av, lese en bok, eller nyte en kopp kaffe i rolige omgivelser. Den grønne bakgården blir et naturlig samlingspunkt for beboerne, hvor man kan møte naboer og knytte nye vennskap. Med sitt grønne preg og hyggelige atmosfære, vil bakgården være et verdifullt tillegg til livskvaliteten i Kampenhagen.

Arkitekturen i Kampenhagen er nøye utformet for å reflektere områdets rike historie og unike karakter. Prosjektet er spesielt med tanke på byreparasjon, da det ivaretar gatelivet og utfyller kvartalet på en harmonisk måte. På hjørnet av gården planlegges det et utadrettet lokale, som en kafé med uteservering, hvor både beboere og besøkende kan nyte mat og drikke. I underetasjen vil det også være en dagligvarebutikk, noe som gir bygget og gaten et livlig preg.

Eiendommen

Hedmarksgata 13 – 15, 0658 OSLO

Knr. 301 Gnr. 232 Bnr. 165

Selger

Oslobolig AS

Hedmarksgata Holding AS

Fremdriftsplan og ferdigstillelse

Byggetiden er forventet å være ca. 30 til 33 måneder fra igangsetting. Leilighetene forventes å kunne ferdigstilles første halvår 2028. En lengre byggetid enn forventet kan medføre en senere overtakelse.

Parkering

Det vil bli mulighet for kjøp av parkeringsplass i underjordisk garasjeanlegg for noen utvalgte 4-roms leiligheter. Det fremgår av prislisten som du finner på prosjektet hjemmeside hvilke leiligheter dette gjelder.

Garasjeplass kan kjøpes til gjeldene priser: P-plass for bil kr. 850.000,-.

Boder

Leiligheter over 50 kvm BRA-i har bruksrett til en sportsbod på cirka 5 kvm i kjeller eller øvrig fellesareal. Leiligheter under 50 kvm BRA-i har bruksrett til en sportsbod på cirka 2,5 kvm i kjeller eller øvrig fellesareal. Selger forbeholder seg retten til å kunne fordele bodene og garasjeplasser.

Leveranse

Kampenhagen er utviklet med tanke på å tilby hjem med nøye utvalgte materialer, farger og gjennomtenkte kvaliteter. Vi har lagt til rette for at dette skal være et
sted som gir rom for både trivsel og trygghet – et sted du kan glede deg til å komme hjem til. Kjøkkenet er av mange sett på som husets hjerte, og sammen med våre samarbeidspartnere og interiørarkitekt har vi brukt mye tid på å velge konsept som kompletterer leiligheten på en god måte. På Kampenhagen er Drømmekjøkkenet valgt som leverandør av ditt nye kjøkken.

For Kampenhagen er det utviklet et standard interiørkonsept som sikrer at du som boligkjøper kan være trygg på at du får en gjennomført stil. Legg også merke til at det vil være mulighet for enkelte kostnadsfrie tilvalg. Enkelte av leilighetene vil leveres med et eget premium interiørkonsept.

Drømmekjøkken standard konsept:
Kjøkkenfronten Bistro er en populær og tidløs front i malt MDF. Den er slett, lett å holde ren og kan enkelt brukes til å skape ulike stiler. Den leveres i fargen Østersbeige som
standard. Diskret profilhåndtak i børstet metall gir et stilrent uttrykk. Benkeplaten er i laminat i 2 cm tykkelse i en lysmønstret farge. Laminat er slitesterkt og vedlikeholdsfritt. Vasken er i rustfritt stål. Kjøkkenfronten med tilhørende benkeplate og håndtak kan velges i to andre fargekonsept uten ekstra kostnad.

Premium konsept:
Materialvalg med en kombinasjon dype toner og varm beige skaper et sofistikert og innbydende uttrykk. Dette konseptet kombinerer de moderne kvalitetene ved mørke flater med den nøytrale, lune atmosfæren som en lys varm fargepalett gir. Veggene i fargen Kalk gir en lun bakgrunn som fremhever de mørke kjøkkenflatene i brunbeiset ask finèr. Kombinert med den lyse benkeplaten i komposittsten skapes en kontrast som understreker det elegante uttrykket. Aksentfarger som kjøkkenkran i dyp bronze og sort vask understreker uttrykket ytterligere.

Badet leveres med fliser i en lys tone i størrelse 30*30 på gulv og vegger, og 5*5 i dusjsonen. Baderomsinnredning hvit utførelse med heldekkende vask og grepsløse skuffer med push open funksjon. Det leveres rundt speil med backlight belysning. Størrelse på baderomsinnredning og speil tilpasses de ulike baderomstypene. Bad leveres som prefabrikkerte badekabiner

For detaljert informasjon vedrørende konseptene og de kostnadsfrie tilvalgene se romskjema vedlagt i prospekt.

Det er satt av plass til garderobeskap. Avsatt plass er anvist på kontraktstegning. Garderobeskap leveres ikke.

Byggemåte

Bygget fundamenteres til fjell. Hovedbæresystem leveres i en kombinasjon av stål og betong. Etasjeskiller leveres i betong. Yttervegger (klimavegger) utføres som isolert bindingsverk. Bærende innervegger, trapperoms vegger og heissjakt utføres i betong. Øvrige vegger bygges opp av isolerte tre eller stålstendere kledd med gipsplater.
Bygget vil tilfredsstille gjeldende forskrifter hva angår brann og lyd (TEK17). Lyddemping i henhold til forskriftskrav lydklasse C iht. NS8175.

Fasader består i hovedsak av teglstein.

Balkonger planlegges utført som utenpåhengte konstruksjoner. Dekkeforkant og brystning forblendes med tegl. Balkonger mot bakgård leveres med brystning i farget beslag. Rekkverk leveres som spilerekkverk i lakkert metall etter arkitektens material- og fargevalg. Alle utvendige metallkonstruksjoner leveres overflatebehandlet. Balkonger og takterrasser uten overhengende balkong får glassbaldakin over balkongdør.

Det leveres anlegg for balansert ventilasjon uten kjøling med varmegjenvinning, med eget aggregat for hver leilighet. Anlegget sender tilluft til stue og soverom, og avtrekk fra kjøkken og bad via avtrekksventiler.
Plassering av ventilasjonsaggregat er ikke endelig bestemt. Denne vil vises på tegning ved oppstart av tilvalgsprosessen. Hovedsakelig planlegges ventilasjonsaggregatet montert i bod eller i himling i entré.

Oppvarming

Leilighetene varmes opp med vannbåren gulvvarme, med individuell forbruksmåler plassert i fordelerskap i hver leilighet. Plassering av fordelerskap avklares under detaljprosjektering. Det leveres ikke oppvarming for bod eller soverom. For soverom kan gulvvarme leveres som tilvalg. Elektrisk eller vannbåren varme leveres på bad/vaskerom/WC. Det leveres egen vannmåler for varmt tappevann til hver leilighet. Alle målere er tilrettelagt for fjernavlesing. Forbruk av fjernvarme vil faktureres direkte fra leverandør Lyse.

Tinglyste Heftelser og Rettigheter

På eiendommen er det tinglyst følgende heftelser og rettigheter som følger eiendommens matrikkel ved overskjøting til ny hjemmelshaver:

301/232/165:
01.11.1932 – Dokumentnr: 991065 – Erklæring/avtale
Bestemmelse om trafostasjon/kiosk

24.08.1936 – Dokumentnr: 405430 – Erklæring/avtale
Bestemmelse om trafostasjon/kiosk

06.04.1961 – Dokumentnr: 505632 – Bestemmelse om bebyggelse
Bestemmelse om vann/kloakkledning
Med flere bestemmelser

06.03.2001 – Dokumentnr: 12658 – Leie av næringslokale
Leietid: 10 år
Fra dato: 01/11-2000
Leie: NOK 130 636 pr. år
Rettighetshaver: Kampen Pub Ans
Org.nr: 882 562 042
Leieobjekt:195m2 i 1 etg.
Bestemmelser om regulering av leien
Kan ikke framleies/overdras uten samtykke fra
hjemmelshaver/utleier
Best om pantsettelse.
Med flere bestemmelser

17.06.2014 – Dokumentnr: 492309 – Leieavtale
Leietid: 10 år
Fra dato: 01/08-2007
Rettighetshaver: Sats Norway AS
Org.nr: 892 625 522
Bestemmelser om forlengelse
Med flere bestemmelser
———-
Transport
Fra: Sats Norge AS
Org.nr: 980 056 252
Til: Sats Norway AS
Org.nr: 892 625 522
———-
Nye vilkår i leie
Gjelder dokument: Leieavtale 2014/492309-1/200
Leie: NOK 2 560 000 pr. år
Gjeldende leiekontrakt forlenges med ett års varighet fra 31.12.2017 til 31.12.2018
Bestemmelser om forlengelse
Bestemmelser om regulering av leien

15.11.2019 – Dokumentnr: 1371906 – Forbud mot salg og pantsetting uten samtykke fra rettighetshaver
Rettighetshaver: Nordea Bank Abp Filial I Norge
Org.nr: 920 058 817

Dokumentnr: 911647 – Registrering av grunn
Denne matrikkelenhet opprettet fra:
Knr:0301 Gnr:237 Bnr:26

Midlertidig brukstillatelse og ferdigattest

Det prosjekteres og bygges i henhold til Byggeteknisk forskrift TEK17. Selger har ansvaret for at det foreligger brukstillatelse eller ferdigattest på leiligheten senest ved kjøpers overtakelse av leiligheten.

Adgang til utleie

Utleie reguleres av borettslagsloven §§ 5-3 til 5-10. Selger ønsker å praktisere en liberal utleiepraksis i den perioden selger er representert i styret i Borettslaget. Styret vil derfor i denne perioden gi samtykke til å leie ut leiligheten i inntil 3 år fra overtakelse, selv om vilkårene for utleie i §§ 5-4 til 5-6 ikke er oppfylt, jf. § 5-3. Eventuell søknad om utleie må sendes styret og det er opp til styret om utleien godkjennes.

Områdebeskrivelse

Kampenhagen ligger idyllisk til i et meget sentralt og attraktiv boområde. Det myldrer av koselige kafeer, puber og restauranter rundt Kampenhagen. Her finner du smaker fra alle verdenshjørner og kan velge om du vil ha noe digg gatemat eller gå for en helaften på Kampen Bistro, Smia eller Galleri Bastian. Du er aldri langt unna en god kopp kaffe eller noe leskende i et glass med og uten stett, og er du interessert i fotball, er Vålerenga vertshus like i nærheten.

Nye Thorbjørn Egners plass er et godt eksempel på den positive utviklingen i hele området, der byrom moderniseres og «gis tilbake» til de som bor der. Andre eksempler er gjenåpningen av Hovinbekken, som igjen vil se dagens lys i form av sildrende vann og badekulp i nye Jordal Park, som ligger vis-à-vis Kampenhagen. Jordal park ble også fornyet og rustet opp i forbindelse med byggingen av Jordal Idrettspark, som nå rommer alt fra ishockey og amerikansk fotball til skateboard og lekeplass.

Hjemmelshaver

Reguleringsplan og - bestemmelser

Eiendommen er regulert til bolig, forretning, annen offentlig eller privat tjenesteyting (treningssenter) i S-5054, vedtatt 25.09.2019, se reguleringskart og -bestemmelser. Omkringliggende eiendommer er regulert til bolig. Sør/øst for eiendommen ligger Østerdalsgata 1 med gnr. 232, bnr 400. Denne eiendommen er i dag regulert til industri med tilhørende anlegg. Bygget i Østerdalsgata 1 skal rehabiliteres og er planlagt som næringsarealer og kontor. Treningssenteret Sats skal flytte inn i bygget i Østerdalsgata 1. Et forsiktig estimat er at byggearbeidene for Sats starter i 1. kvartal 2025 og resterende rehabilitering av bygget i 2026, men dette er ikke endelig besluttet. Vi anbefaler alle budgivere å sette seg inn i gjeldende reguleringsbestemmelser. Se også vedlagt reguleringskart.

Rammetillatelse
Det foreligger rammetillatelse for tiltaket og tillatelsen følger som vedlegg til salgsoppgaven.

Fellesutgifter

Hver andelseier betaler månedlige felleskostnader til borettslaget. Felleskostnadene for borettslaget er ment å dekke blant annet kommunale avgifter (renovasjon, vann og avløp, feiing), snøbrøyting, utvendig vedlikehold av fellesareal, forretningsførerhonorar, revisjon, forsikring av bygninger, samt fiberaksess fra Altibox og driftskostnader. Estimert kostnad for forbruk av fjernvarme er medtatt i estimerte felleskostnader. Egen avregning og faktura tilkommer hver andel for sitt forbruk av fjernvarme månedlig. I tillegg kommer kr 124 kr inkl mva i månedlig avgift. Dette faktureres direkte fra leverandør Lyse og er ikke en del av felleskostnadene etter overtagelse. Drifts- og vedlikeholdskostnadene avhenger av hvilke tjenester borettslaget ønsker utført. Kjøper plikter å betale sin forholdsmessige andel av driftsutgiftene for eiendommen fra overtakelsestidspunktet.

Det tilkommer også felleskostnader for de som kjøper parkeringsplass som er estimert til kr 300,- pr mnd.

Det vil bli krevd inn et likviditetstilskudd fra forretningsfører fra alle seksjonseierne tilsvarende 2 måneders fellesutgifter for å gi sameiet nødvendig likviditet den første tiden etter stiftelse.

For mer informasjon se vedlegg utkast til budsjett og fordeling felleskostnader fra forretningsfører.

Eiendomsskatt

Oslo Kommune har eiendomsskatt. Hedmarksgata BRL vil faktureres for eiendomsskatt som hjemmelshaver til eiendommen. Den enkelte andelseier er imidlertid selv ansvarlig for å dekke den andel av eiendomsskatten som knytter seg til dennes andel. Dette kommer i tillegg til budsjetterte driftskostnader. Styret/forretningsfører vil viderefakturere eiendomsskatten til den enkelte andelseier. Det tas forbehold om endringer i offentlige skatter og avgifter. Eventuell eiendomsskatt på næringslokalene i fellesarealene vil dekkes som felleskostnader etter borettslagets fordelingsnøkkel.

Formuesverdi

Formuesverdien er ikke fastsatt, men fastsettes av Skatteetaten etter en beregningsmodell som hensyntar om boligen er «primærbolig»; (der eier er bosatt iht. Folkeregisteret) eller «sekundærbolig»; (andre boliger man eier). For primærbolig er formuesverdien 25 % av markedsverdien opp til kr. 10 000 000 og deretter 70 % av den overskytende markedsverdien, og 100 % for sekundærboliger. Det gjøres oppmerksom på at kjøper selv må sende inn opplysninger om adresse, areal, boligtype og byggeår til skattemyndighetene.

Det tas forbehold om endring av satser, og henvises til Skatteetatens websider dersom ytterligere informasjon er ønskelig.

Omkostninger

 I tillegg til kjøpesummen må kjøper betale:
 
1: Dokumentavgift til staten: Kr. 35 000,-
2: Tinglysningsgebyr skjøte: Kr. 545,-
3: Tinglysningsgebyr pant og pantattest: Kr. 545,-
4: Andelskapital: Kr. 5 000,-
5: Etableringsgebyr BRL: 12 500,-
 
Totale omkostninger: Kr. 53 590,-

Betalingsbetingelser

1) Det forutsettes at forskudd kjøpesummen innbetales til meglers klientkonto ved signatur av kjøpekontrakt samt at garantien er stilt etter buofl. § 12. Kontantinnbetaling må være fri egenkapital.
Påløpte renter tilfaller kjøper frem til skjøte er tinglyst på kjøper, med mindre selger får disposisjonsretten over beløpet som en følge av at det stilles garanti i medhold av buofl. § 47.
2) Eventuelle endringsbestillinger betales etter nærmere avtale med selger.
3) Resterende del av kjøpesummen betales 3 dager før overtagelse.
4) Alle betalinger skal betales inn fra kjøpers konto i norsk finansinstitusjon.

Størrelsen på forskudd avhenger av størrelsen på kjøpt leilighet. Følgende forskuddsbeløp er gjeldende for de ulike leilighetstypene;

2-roms: 100 000 NOK
3-roms: 100 000 NOK
4-roms opptil 12 mill NOK: 300 000 NOK
4-roms fra 12 mill NOK og oppover: 5 % av kjøpesummen

Organisasjonsform

Boligenhetene vil bli solgt som andelsleiligheter og organisert som et borettslag. Selger, eller et selskap utpekt av selger, vil stifte og tegne alle andelene i borettslaget med foreløpig navn Hedmarksgata BRL. Endelig organisering er ikke bestemt.

På bakkeplan vil det bli etablert to næringslokaler. Næringslokalet vil bli seksjonert som en egen seksjon og drevet som næringsareal med utadrettet virksomhet.

Vedtekter/husordensregler

Kjøper plikter å rette seg etter de til enhver tid gjeldende vedtekter for borettslaget. Foreløpige vedtekter følger som vedlegg til denne salgsoppgaven. Selger har rett til å tilpasse vedtektene frem til avholdelse av ekstraordinær generalforsamling. Selger vil innkalle til ekstraordinær generalforsamling ca. 1 måned før overtakelse av andelene for å velge styre.

Regler for styring og drift av borettslaget følger for øvrig av borettslagsloven.

Forbehold fra utbygger

Selger kan kansellere inngått Kjøpekontrakt frem til 01.06.2026 dersom ikke nødvendig forhåndssalg eller tilfredsstillende finansiering er oppnådd. Videre kan Selger kansellere dersom styrets godkjenning, igangsettelsestillatelse eller annen nødvendig tillatelse fra kommunen eller annen offentlig myndighet ikke gis innen samme frist. Selger skal sende skriftlig varsel til Kjøper når grunnlaget for forbeholdene er bortfalt og kontrakten derved er endelig, sammen med angivelse av endelig tidspunkt for overlevering (Overtakelse).

Selger tar forbehold om endringer av opplysninger gitt i salgsmateriell og leveransebeskrivelse med hensyn til konstruksjon og materialvalg, fargevalg og arkitektoniske løsninger, herunder bl.a. mindre endringer i planløsninger. Opplysningene gitt i bilagene til kjøpekontrakten kan fravikes dersom selger anser det nødvendig eller ønskelig. Det tas spesielt forbehold om endringer og justeringer som er hensiktsmessige og nødvendige for eksempel i forhold til plassering av sjakter og kanaler, herunder innkassinger av kanaler/føringer som ikke er vist på tegningene. Det presiseres at plassering av vinduer, dører, m.m. samt form på disse kan avvike noe fra tegningsgrunnlaget/ bilagene til kjøpekontrakten.

Selger tar videre forbehold om den endelige utformingen av prosjektets utomhusanlegg. Prosjektets uteareal blir trinnvis ferdig opparbeidet. Kjøper oppfordres til å sette seg inn i utomhusplanen, og det tas uttrykkelig forbehold om at endelig tilpasning av terreng og utforming av fellesarealer og privatiserte parseller i forbindelse med utbyggingen vil føre til endringer i forhold til illustrasjoner i salgsmaterialet. Endelig utforming kan derfor avvike fra den foreløpige landskapsplanen som gjelder som bilag til kjøpekontrakten.

Kjøper aksepterer ved signering av kjøpekontrakt at selger fritt kan transportere kjøpekontrakten og eventuelle senere avtaler til annet selskap i selgers konsern.

Kjøper er videre forpliktet til å godta endringer for boligen, eiendommen og prosjektet kostnadsfritt som måtte følge av krav fra Plan- og bygningsetaten eller annen offentlig myndighet samt også det som følger av generell forbeholdstekst.

Kjøper er gjort kjent med at alle 3D-presentasjoner, digitale modeller, planer, skisser, bilder i prospekt, tilvalgspresentasjon og annet salgsmateriell er av illustrativ karakter, og utarbeidet før gjennomført detaljprosjektering. Materialet kan derfor vise bygningsvolumer, innredning, beplantning og detaljer mv. som ikke inngår i avtalen.

Lovanvendelse

Kjøpet følger bustadoppføringslova av 13. juni 1997 nr. 43. Loven regulerer forhold hvor selger er profesjonell og kjøper er forbruker. Iht. loven plikter selger å stille garanti som sikkerhet for oppfyllelse av sine forpliktelser etter kjøpekontrakt senest ved forbehold frafalt. Garantien utgjør 3 % av kjøpesum frem til overtakelse. Beløpet økes til 5 % av kjøpesum og står 5 -fem- år etter overtakelsen jf. buofl. § 12, 3 ledd. Loven kan i sin helhet fås ved henvendelse til megler. Loven finnes også på www.lovdata.no.

Hvitvaskingsloven

Eiendomsmeglere er underlagt Lov om hvitvasking. I henhold til Lov av 01.06.18 nr. 23 om tiltak mot hvitvasking og terrorfinansiering (Hvitvaskingsloven), er megler pliktig til å gjennomføre identitetskontroll av alle involverte parter. Hvitvaskingsloven pålegger blant annet eiendomsmegler å innhente redegjørelse av midlenes opprinnelse. Dette besvares av samtlige kjøpere herunder parter som opptrer på vegne av kjøper, ved en såkalt kundekontroll. Ved eventuelt tilbakehold av informasjon eller mistenkelige transaksjoner, plikter eiendomsmegleren å melde fra til Økokrim. Med «mistenkelig transaksjon» menes transaksjon som mistenkes å involvere utbytte fra straffbar handling, eller som skjer som ledd i terrorfinansiering. Manglende mulighet for kundekontroll kan også være et forhold som gjør transaksjonen mistenkelig.

Selger forbeholder seg retten til å foreta kredittvurdering av kjøpere. Selger forbeholder seg også retten til å kreve dokumentasjon av kjøpers finansiering.

Det kan ikke gjøres ansvar gjeldende mot meglerforetaket som følge av at meglerforetaket overholder sine plikter etter Hvitvaskingsloven.

Avbestilling

Kjøper kan avbestille boligen inntil overtakelse har funnet sted. Ved avbestilling kommer reglene i bustadoppføringslova kapittel VI til anvendelse. I et slikt tilfelle skal kjøper dekke hele selgers økonomiske tap.

Tilvalg og endringer

Selger utarbeider tilvalgsliste hvor valgmulighetene for tilleggsbestillinger og endringer fremkommer. Kjøper er gjort spesielt oppmerksom på at dette er et stort prosjekt med mange leiligheter som gjennomføres i en planlagt serieproduksjon. Det vil derfor i alminnelighet ikke bli godtatt endringer eller tilleggsbestillinger utover tilvalgslisten, da dette vil gripe inn i den planlagte produksjonsprosessen, jf. buofl § 9, annet ledd.

Arealdefinisjoner

Fra 1. januar 2024 trådte en ny arealstandard i kraft “Areal og Volumberegninger for bygninger” som ble publisert av Norsk Standard 26.10.23. De nye arealbegrepene oppgis som ulike former for BRA, som forklart under. Arealene er oppgitt i hele tall iht. avrundingsregler:

BRA-i
Bruksarealet av boenheten innenfor omsluttede vegger.

BRA-e
Bruksarealet av alle rom som ligger utenfor boenheten, men som tilhører denne.

BRA-b
Bruksarealet av innglasset balkong tilknyttet boenheten.

TBA
Arealet av terrasser og åpne balkonger tilknyttet boenheten.

BRA
Boligens fulle areal eksklusive ytterveggene, altså summen av BRA-i, BRA-e og BRA-b.

Salgstegninger ligger i boligvelger. Kontraktstegning for den enkelte leilighet kan lastes ned via prosjektets boligvelger eller tilsendes ved henvendelse til megler.

De oppgitte arealer er å betrakte som cirka-arealer. Arealer er beregnet og avrundet etter NS3940:2023, og alle arealer følger normal avrundingsregel og avrundes til nærmeste hele kvm. Som følge av avrundingsregelen vil leiligheter under 50 kvm Bra-i med bruksrett til sportsbod på 2,5 kvm ha oppgitt BRA-e (sportsbod) på 3 kvm på kontraktstegning. Det gjøres oppmerksom på at sportsboden som leveres er på 2,5 kvm for disse leilighetene. Leiligheter over 50 kvm leveres med sportsbod på 5 kvm som oppgitt på kontraktstegning.

Partene har ingen krav mot hverandre dersom arealet skulle vise seg å være 5 % mindre/større enn det oppgitte areal.

Dato

Sist oppdatert: 10.02.2026

Denne boligen er en del av Kampenhagen – RETT VED JORDAL PARK

Les mer om prosjektet

Tilbake til toppen