Matrikkel
Knr. 301 Gnr. 85 Bnr. 179
Refstadveien 102, 0589 OSLO
Meld din interesse så vil vi ta kontakt med deg og holde deg løpende orientert om prosjektet!
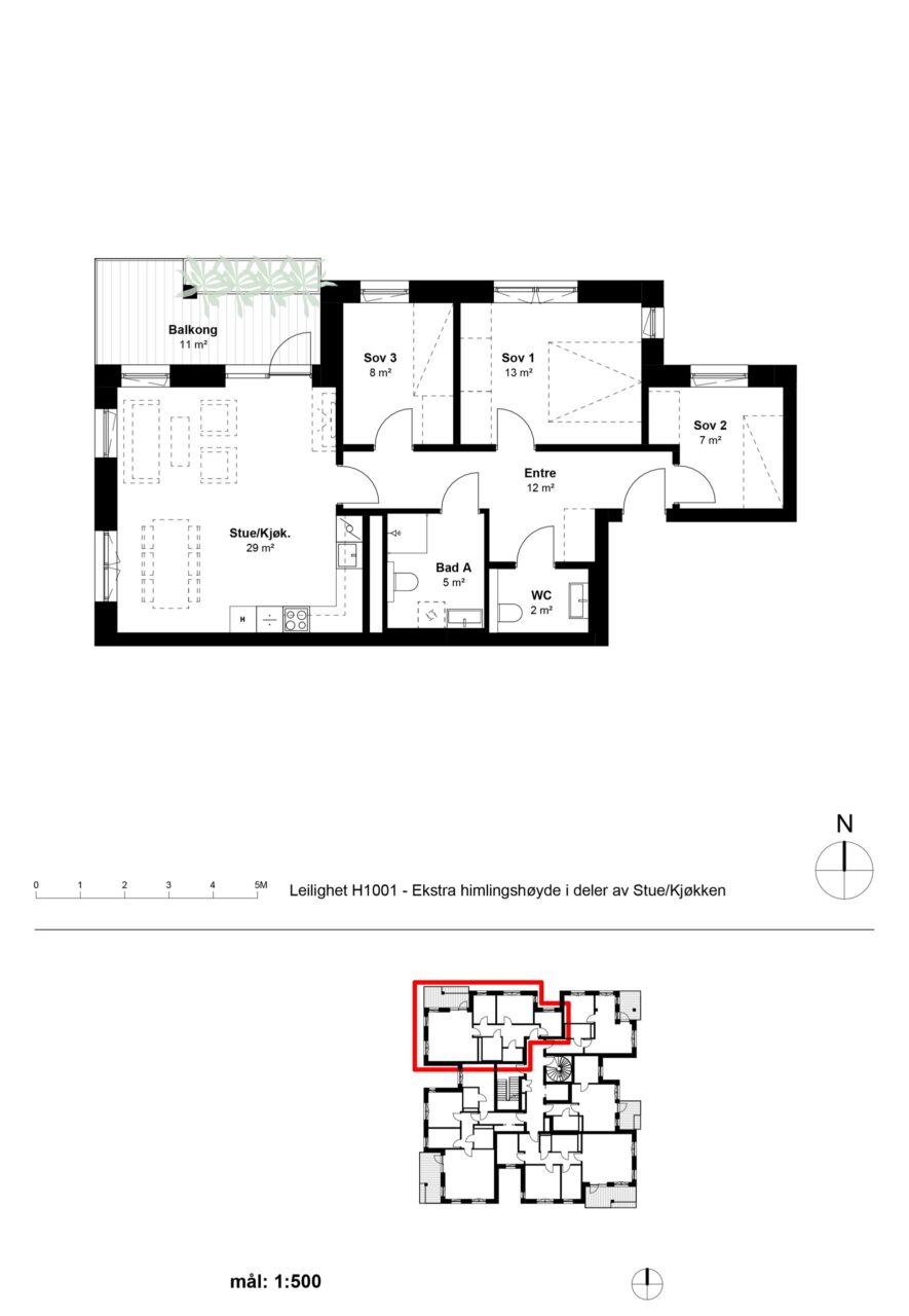
106-H1002 er en lys og arealeffektiv 4-roms hjørneleilighet i 10. etasje med balkong. Leiligheten inneholder blant annet 3 soverom, et flislagt bad og eget gjestetoalett.


Knr. 301 Gnr. 85 Bnr. 179
Luftig, like ved Bjerkebanen bygges det snart et fremtidsrettet og attraktivt punkthus med 63 BREEAM-sertifiserte leiligheter. Her bor du med lite innsyn og god utsikt. Pilar Bjerke er et «Green Living» prosjekt, der miljø og grønne kvaliteter er i fokus.
Prosjektet i Refstadveien vil bestå av 2- til 4-roms leiligheter (35 – 132 kvm) med gjennomtenkte planløsninger og god standard. Prosjektet passer dermed både førstegangskjøpere, unge par, barnefamilier og voksne etablerte. Pilar Bjerke er et punkthus på 12 etasjer, med god avstand til omgivelsene i alle retninger, der de aller fleste leilighetene ligger på et hjørne. Dette gir de beste forutsetninger for gode lysforhold, lite innsyn og mange av leilighetene får flott utsikt og gode solforhold.
Har du drømt om en romslig og luftig toppleilighet? I Pilar Bjerke er toppleilighetene over 130 kvm og man har fantastisk utsikt i flere retninger fra toppen av tårnet!
Også utenfor nabolagets kjerne er aktivitetstilbudene mange. Alt fra butikker, skoler og barnehager til idrettsplasser og grønne lunger er i umiddelbar nærhet. Har du lyst på en tur inn til Oslo sentrum, er du bare en liten busstur unna. Ønsker du fuglekvitter og skogens ro, har du Lillomarka i ryggen. Det er kort avstand til ypperlige utgangspunkter for både langrenn og alpint (Oslo skisenter) om vinteren.
Leilighetene selges etter førstemann til mølla og til fast pris.
10 av leilighetene selges via OsloBolig. Dette er et deleiekonsept som skal gjøre veien inn på boligmarkedet kortere for bl.a førstegangskjøpere. I korte trekk betyr det at man kjøper minst 50% av boligen og at OsloBolig eier resterende andel. På sikt kan man kjøpe større andel av boligen og med mål om etter hvert å eie hele selv. Les mer om konseptet på www.oslobolig.no eller kontakt megler for mer informasjon.
Refstadveien 102, 0589 OSLO
Knr. 301 Gnr. 85 Bnr. 179
Oslobolig AS
Refstadveien 102 AS
Boligene forventes ferdigstilt 4. kvartal 2026, uten at dette er å anse som bindende frist for overlevering.
Det medfølger ikke parkeringsplass til leilighetene. Det er mulighet for kjøp av parkeringsplass i garasjeanlegget under blokken. Muligheten er begrenset til å gjelde 4- og 5-roms leiligheter. Det planlegges etablert ca. 23 parkeringsplasser i garasjeanlegget. Det vil bli bilheis for adkomst til garasjeanlegget. Borettslagets fellesarealer inneholder også flere sykkelparkeringsplasser.
Det medfølger én sportsbod pr. boligenhet. Disse varierer i størrelse avhengig av bl.a. type boligenhet de tilhører.
Det vises til romskjema for beskrivelse av kjøkkeninnredning, og flere detaljer. Det leveres ikke hvitevarer som standard, men det forberedes for integrert komfyr med benkeplate for nedfelling av koketopp (utskjæring må gjøres ved montering) og innbyggingsskrog for kjøl/frys. Hvitevarepakke kan bestilles for en fast pris ved kjøpstidspunktet eventuelt senere i tilvalgsprosessen.
Det vises til romskjema for beskrivelse av baderomsinnredning, og flere detaljer. Bad kan bli levert som prefabrikkerte baderomskabiner/-moduler, da med hvit metall- eller gipshimling. Enkelte bad og wc-rom leveres med utenpåliggende/innkasset sisterne. De leiligheter dette gjelder fremgår av salgstegninger.
Det leveres ikke garderobeskap, men dette kan bestilles i tilvalgsprosessen.
Bygningen utføres med bærekonstruksjon i betong og stål. Utvendig vegger i tårnet blir kledd i et fasademateriale med hvit/lys grå farge, som platekledning, eller puss, tegl, og felter med treverk.. Lamellbebygget blir en malt trekledning i en rød farge tilsvarende som plantekasser, og tårnets base. Yttertak utføres i betong/-elementer, belagt med isolasjon og takpapp, tredekke eller sedumtak. Felles takterrasse på taket av lamell.
For ytterligere informasjon, se leveransebeskrivelse.
Det leveres balansert ventilasjon med varmegjenvinning med avtrekk fra våtrom og kjøkken. Hver bolig får eget ventilasjonsaggregat, som fortrinnsvis blir plassert over himling i bod eller entre.
Leilighetene oppvarmes med fjernvarme via radiatorer. Forbruk av varmt tappevann og varme måles pr. leilighet. Kostnaden kommer i tillegg til sameiets stipulerte fellesutgifter.
På eiendommen er det tinglyst følgende heftelser og rettigheter som følger eiendommens matrikkel ved overskjøting til ny hjemmelshaver:
301/85/179:
19.12.2013 – Dokumentnr: 1106528 – Best. om vann/kloakkledn.
Rettighetshaver: Oslo Kommune
Org.nr: 958 935 420
Bestemmelse om kummer o.l.
Bestemmelse om anlegg og vedlikehold av ledninger m.m.
Opprinnelig tinglyst 27.05.1987 med dokumentnummer 32757.
Gjeninnført etter tgl § 18. 19.12.2013 K.B.E.
Gjelder denne registerenheten med flere
19.12.2013 – Dokumentnr: 1106528 – Elektriske kraftlinjer
Rettighetshaver: Oslo Kommune
Org.nr: 958 935 420
Bestemmelse om nettstasjon
Bestemmelse om elektriske ledninger/kabler
Bestemmelse om kommunale installasjoner
Bestemmelse om anlegg og vedlikehold av ledninger m.m.
Opprinnelig tinglyst 27.05.1987 med dokumentnummer 32757.
Gjeninnført etter tgl § 18. 19.12.2013 K.B.E.
Gjelder denne registerenheten med flere
19.12.2013 – Dokumentnr: 1106528 – Bestemmelse om gjerde
Rettighetshaver: Oslo Kommune
Org.nr: 958 935 420
Opprinnelig tinglyst 27.05.1987 med dokumentnummer 32757.
Gjeninnført etter tgl § 18. 19.12.2013 K.B.E.
Gjelder denne registerenheten med flere
19.12.2013 – Dokumentnr: 1106528 – Erklæring/avtale
Rettighetshaver: Oslo Kommune
Org.nr: 958 935 420
Pliktig medlemskap i velforening/huseierforening
Opprinnelig tinglyst 27.05.1987 med dokumentnummer 32757.
Gjeninnført etter tgl § 18. 19.12.2013 K.B.E.
Gjelder denne registerenheten med flere
19.12.2013 – Dokumentnr: 1106528 – Bestemmelse om veg
Rettighetshaver: Oslo Kommune
Org.nr: 958 935 420
Bestemmelse om avståelse av grunn til veiutvidelse, adkomst m.m.
Opprinnelig tinglyst 27.05.1987 med dokumentnummer 32757.
Gjeninnført etter tgl § 18. 19.12.2013 K.B.E.
Gjelder denne registerenheten med flere
14.11.1962 – Dokumentnr: 14478 – Registrering av grunn
Denne matrikkelenhet opprettet fra:
Knr:0301 Gnr:85 Bnr:3
Refstadveien 102 AS
Formuesverdien er ikke fastsatt, men fastsettes av Skatteetaten etter en beregningsmodell som hensyntar om boligen er «primærbolig»; (der eier er bosatt iht. Folkeregisteret) eller «sekundærbolig»; (andre boliger man eier). For primærbolig er formuesverdien 25 % av markedsverdien opp til kr. 10 000 000 og deretter 70 % av den overskytende markedsverdien, og 100 % for sekundærboliger. Det gjøres oppmerksom på at kjøper selv må sende inn opplysninger om adresse, areal, boligtype og byggeår til skattemyndighetene.
Det tas forbehold om endring av satser, og henvises til Skatteetatens websider dersom ytterligere informasjon er ønskelig.
I tillegg til kjøpesummen må kjøper betale:
1: Dokumentavgift til staten, 2,5% av andel tomteverdi: Kr. 49 800,-
2: Tinglysningsgebyr skjøte: Kr. 545,-
3: Tinglysningsgebyr pant og pantattest: Kr. 545,-
4: Registrering av borett: Kr. 545,-
5: Andelskapital: Kr. 5 000,-
Totale omkostninger: Kr. 56 435,-
Sist oppdatert: 09.02.2026
OsloB 106-H0101
1. Etasje
3-roms
64 m²
kr 2 800 000,-
OsloB 102-H0302
3. Etasje
3-roms
59 m²
kr 2 900 000,-
OsloB 102-H0201
2. Etasje
3-roms
65 m²
kr 2 900 000,-
OsloB 106-H0203
2. Etasje
3-roms
68 m²
kr 2 950 000,-
OsloB 106-H0304
3. Etasje
3-roms
68 m²
kr 3 050 000,-
106-H0306
3. Etasje
4-roms
88 m²
kr 3 990 000,-
106-H0502
5. Etasje
3-roms
85 m²
kr 4 500 000,-
106-H0702
7. Etasje
3-roms
85 m²
kr 4 700 000,-
106-H0406
4. Etasje
4-roms
88 m²
kr 4 700 000,-