Matrikkel
Knr. 3201 Gnr. 14 Bnr. 622
Knr. 3201 Gnr. 14 Bnr. 100
Knr. 3201 Gnr. 14 Bnr. 336
Gamle Drammensvei 37A, 1369 STABEKK
Meld din interesse så vil vi ta kontakt med deg og holde deg løpende orientert om prosjektet!
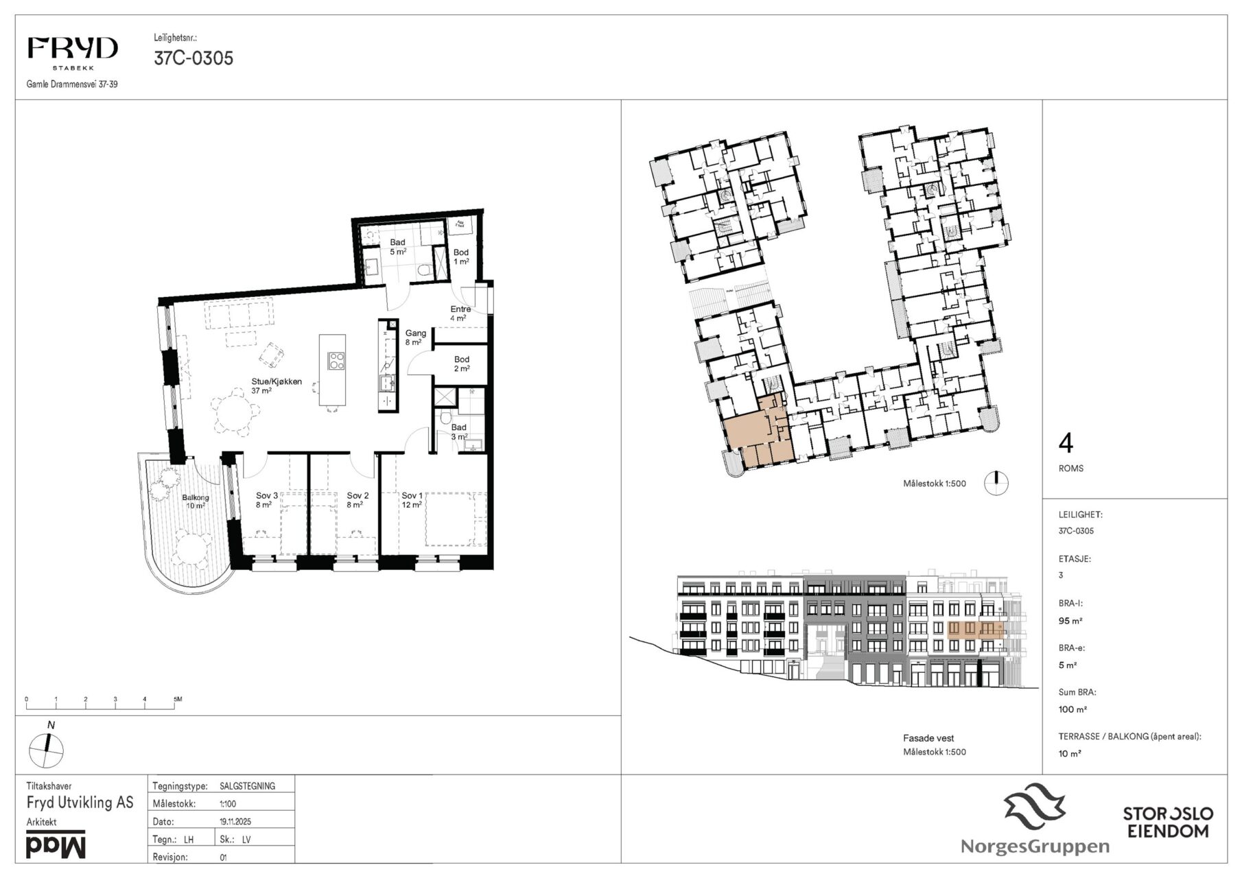
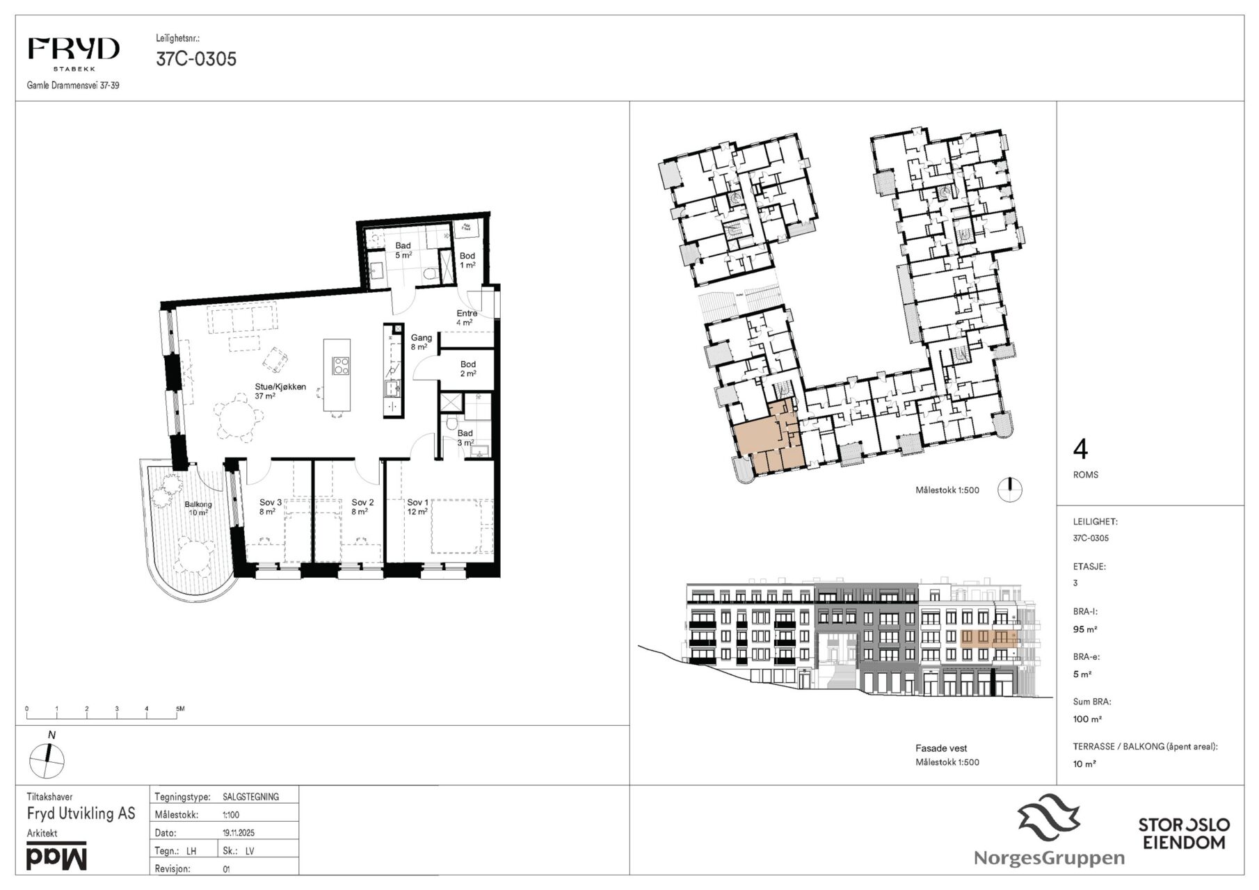
Ny og lekker 4-roms hjørneleilighet med sydvestvendt beliggenhet.
Leiligheten inneholder entré med avsatt plass til garderobe og tilgang til praktisk innvendig bod. Åpen stue og kjøkkenløsning med gode møbleringsmuligheter, samt kjøkkenøy som fungerer som en naturlig romdeler. Leiligheten har store vindusflater som sørger for mye naturlig lys. Leiligheten har videre tre soverom, alle med avsatt plass til garderobe I tilegg har leiligheten to delikate bad hvor det ene badet er i direkte tilknytning til hovedsoverommet. Utgang fra stue til sydvestvendt balkong med avrundede hjørner og gode solforhold. Her kan du nyte livet på Stabekk fra første rad.
Dette er en av flere leiligheter som er for salg nå. For å se flere leiligheter, klikk på fanen prosjektets hjemmeside eller gå inn på https://soeiendom.no/prosjekter/fryd-stabekk/til-salgs


Knr. 3201 Gnr. 14 Bnr. 622
Knr. 3201 Gnr. 14 Bnr. 100
Knr. 3201 Gnr. 14 Bnr. 336
Velkommen til Fryd, et nytt boligprosjekt midt i hjertet av Stabekk. Med 113 nye boliger fordelt på to byhus og ett bykvartal vil Fryd bestå av et variert utvalg leiligheter som passer alle livsfaser og familietyper. Første salgstrinn består av 62 leiligheter beliggende i bykvartalet. Størrelsene på leilighetene i dette salgstrinnet vil variere fra smarte ett-roms til romslige topp- og hjørneleiligheter med store terrasser eller private takhager.
Her kan du bo midt i sentrum med alt du trenger noen få skritt unna – en sann fryd!
På gateplan vil det komme flere små og hyggelige butikker som bidrar til et livlig og trivelig nærmiljø. I tillegg vil det komme en stor og flott Meny-butikk hvor du får hele handlelisten på ett sted, med et stort utvalg av dagligvarer, fersk fisk, kjøtt og butikkskåret ost. Kvaliteten og utvalget er imponerende, og dyktige butikkmedarbeidere vil sørge for førsteklasses handleopplevelse hver gang.
I Fryd blir du en del av et aktivt og frodig nærmiljø. Prosjektet inkluderer en vakker park og et helt nytt torg som sammen skaper et naturlig samlingspunkt for både beboere og innbyggere. Her kan du slappe av av i flotte omgivelser, møte naboer og venner, eller utforske de unike småbutikkene som tilfører den sjarmen og karakteren Stabekk er kjent for.
Om du foretrekker frisk luft fremfor byluft ligger både markastier, sjøbad og idylliske turveier mot Fornebu og Lysaker tett på. Sportsklubber, kulturhus og bibliotek sørger for at både små og store finner sine arenaer, og det godt utbygde kollektivnettet gir enkel tilgang til Sandvika, Bekkestua og resten av regionen. Fra perrongen rett ved Fryd tar toget deg til Oslo sentrum på under et kvarter, og sykler du når du byen langs fine gang- og sykkelveier.
Gamle Drammensvei 37A, 1369 STABEKK
Knr. 3201 Gnr. 14 Bnr. 622
Knr. 3201 Gnr. 14 Bnr. 100
Knr. 3201 Gnr. 14 Bnr. 336
Syrinhaven AS
Boligene planlegges ferdigstilt i perioden 1. halvår 2028 under forutsetning av at vedtak om byggestart foreligger innen 15.02.2026.
Dette tidspunktet er foreløpig og ikke bindende, og utløser ikke dagmulkt. Senest seks måneder før Selger estimerer ferdigstillelse, basert på reell fremdrift i Prosjektet, vil Selger varsle en planlagt overtakelsesmåned. Selger skal senest 10 uker før ferdigstillelse av Boligen gi Kjøper skriftlig melding om endelig overtakelsesdato. Den endelige datoen er bindende og dagmulktsutløsende.
Garasjeplass kan kjøpes til gjeldene priser: P-plass for bil kr. 680.000,-. I tillegg kommer dokumentavgift på 2,5% av kjøpesummen som kan utgjøre ca. kr. 15 000,-. Kjøper har risiko for endringer i omkostningsbeløpene. Estimert felleskostnad pr p-plass er ca. kr. 300,- pr mnd. En løsning for lading av elbil vil presenteres, og kan bestilles i forbindelse med tilvalg.
Kjøp av garasjeplass er forbeholdt leiligheter større enn 70 kvm BRA-i. Konferer megler for eventuell interesseliste. Det opprettes egen kjøpekontrakt mellom kjøper og selger på kjøp av garasjeplass. Selger disponerer til en hver tid usolgte parkeringsplasser.
Leiligheter over 50 kvm BRA-i har bruksrett til en sportsbod på cirka 5 kvm i kjeller eller øvrig fellesareal. Leiligheter under 50 kvm BRA-i leveres med kjellerbod på 2,5 kvm.
Selger forbeholder seg retten til å kunne fordele bodene og garasjeplasser
Sammen med Gitte Rimstad i RCO Interiørdesign er det satt sammen en helhetlig interiørstil. Innredningen i Fryd defineres av en tidløs estetikk med inspirasjon fra naturen og det nordiske lyset. Konseptet bygger på en lett og luftig base med fokus på enkelhet og visuell ro. De naturlige materialene og det minimalistisk formspråk er med på å skape et hjem med en innbydende atmosfære. Gulvet i 1-stavs eikeparkett binder rommene sammen og tilfører en naturlig varme som harmonerer vakkert med de nøytrale veggene.
Kjøkkeninnredningen Uno Palett fra Sigdal (eller tilsvarende) leveres med slette, malte fronter i en elegant lys beige tone – et tidløst valg som kombinerer stil og funksjonalitet. Benkeplaten Delaware laminat med stenuttrykk setter prikken over i-en og binder rommets fargepalett sammen behagelig måte. Leiligheter over 100 kvm leveres med benkeplate Linen Cream i komposittsten fra Silestone (eller tilsvarende) – et eksklusivt og slitesterkt valg som løfter helhetsinntrykket. Edge-grep i antikkbrun er diskré integrert i overkant av skapene og gir kjøkkenet et stramt og moderne uttrykk. Alle detaljer – fra sokler til foringer og dekksider – leveres i samme finish som frontene, for et helhetlig og gjennomført design.
For at du skal kunne sette ditt personlige preg på boligen, tilbys det tre nøye sammensatte og kostnadsfrie interiørkonsepter for kjøkkenfronter og veggfarger. Alle gir boligen særpreg og en lun, moderne atmosfære – du velger det som passer din smak best. Konseptet Korn leveres som standard.
Alle leiligheter leveres med fullintegrert kjøleskap og oppvaskmaskin, induksjonstopp og integrert komfyr fra Bosch eller tilsvarende.
Ønsker du noe helt eget, står du fritt til å sette ditt eget preg på boligen. Kjøkkenfronten Uno Palett (eller tilsvarende) kan leveres i 15 utvalgte farger – eller nær sagt hvilken som helst farge fra NCS-skalaen, for maksimal frihet. I tillegg tilbyr Sigdal (eller tilsvarende leverandør) et bredt utvalg av fronter, benkeplater og grep, slik at du kan tilpasse kjøkkenet helt etter din smak.
Også veggfarger kan leveres etter dine preferanser, slik at hjemmet får akkurat den stemningen du ønsker deg. En praktisk tilvalgsmeny, som blant annet inkluderer valg av parkett og innvendige dører og inventar til bad, vil gjøre det enkelt å finne de rette løsningene. Tilpasninger utover standard leveranse medfører tillegg i pris, men gir deg muligheten til å forme et hjem som virkelig føles personlig og gjennomført. For mer informasjon vedrørende leveranse se romskjema og prospekt.
Baderommet er innredet med moderne, minimalistiske fliser i en elegant grå tone med subtil sementlook – et tidløst uttrykk som harmonerer perfekt med en nordisk interiørstil. Standard leveranse omfatter fliser i formatene 30×30 cm på gulv og 30×60 cm på vegg. For leiligheter over 75 kvm leveres flisene i et større format, 60×60 cm, på både gulv
og vegg, noe som forsterker det moderne og eksklusive uttrykket. Den nøytrale fargepaletten gir rom for vakre materialkombinasjoner, som for eksempel varme tretoner, og skaper en stilren og innbydende atmosfære.
På eiendommen er det tinglyst følgende heftelser og rettigheter som følger eiendommens matrikkel ved overskjøting til ny hjemmelshaver:
3201/14/100:
18.11.1898 – Dokumentnr: 900130 – Bestemmelse om bebyggelse
Bestemmelse om generende virksomhet
Overført fra: Knr:3201 Gnr:14 Bnr:100
Gjelder denne registerenheten med flere
18.11.1898 – Dokumentnr: 900130 – Bestemmelse om bebyggelse
Bestemmelse om generende virksomhet
Overført fra: Knr:3201 Gnr:14 Bnr:100
Gjelder denne registerenheten med flere
24.11.1964 – Dokumentnr: 306440 – Bestemmelse om veg
Bestemmelse om vann/kloakkledning
Overført fra: Knr:3201 Gnr:14 Bnr:100
Gjelder denne registerenheten med flere
24.11.1964 – Dokumentnr: 306440 – Bestemmelse om veg
Bestemmelse om vann/kloakkledning
Overført fra: Knr:3201 Gnr:14 Bnr:100
Gjelder denne registerenheten med flere
29.01.1965 – Dokumentnr: 300575 – Best. om vann/kloakkledn.
Kan ikke slettes uten samtykke fra kommunen
Overført fra: Knr:3201 Gnr:14 Bnr:100
Gjelder denne registerenheten med flere
29.01.1965 – Dokumentnr: 300575 – Best. om vann/kloakkledn.
Kan ikke slettes uten samtykke fra kommunen
Overført fra: Knr:3201 Gnr:14 Bnr:100
Gjelder denne registerenheten med flere
10.12.1969 – Dokumentnr: 308982 – Best om garasje/parkering
Overført fra: Knr:3201 Gnr:14 Bnr:100
Gjelder denne registerenheten med flere
10.12.1969 – Dokumentnr: 308982 – Best om garasje/parkering
Overført fra: Knr:3201 Gnr:14 Bnr:100
Gjelder denne registerenheten med flere
05.01.1971 – Dokumentnr: 300028 – Bestemmelse om vannledn.
Overført fra: Knr:3201 Gnr:14 Bnr:100
Gjelder denne registerenheten med flere
05.01.1971 – Dokumentnr: 300028 – Bestemmelse om vannledn.
Overført fra: Knr:3201 Gnr:14 Bnr:100
Gjelder denne registerenheten med flere
08.03.1971 – Dokumentnr: 301706 – Erklæring/avtale
Bestemmelse om kloakkrenseanlegg
Overført fra: Knr:3201 Gnr:14 Bnr:100
Gjelder denne registerenheten med flere
08.03.1971 – Dokumentnr: 301706 – Erklæring/avtale
Bestemmelse om kloakkrenseanlegg
Overført fra: Knr:3201 Gnr:14 Bnr:100
Gjelder denne registerenheten med flere
08.03.1971 – Dokumentnr: 301707 – Best. om adkomstrett
Bestemmelse om bebyggelse
Overført fra: Knr:3201 Gnr:14 Bnr:100
Gjelder denne registerenheten med flere
08.03.1971 – Dokumentnr: 301707 – Best. om adkomstrett
Bestemmelse om bebyggelse
Overført fra: Knr:3201 Gnr:14 Bnr:100
Gjelder denne registerenheten med flere
27.09.2019 – Dokumentnr: 1135649 – Registerenheten kan ikke disponeres over uten samtykke fra rettighetshaver
Rettighetshaver: Dnb Bank Asa
Org.nr: 984 851 006
16.09.1898 – Dokumentnr: 900059 – Registrering av grunn
Denne matrikkelenhet opprettet fra:
Knr:3201 Gnr:14 Bnr:2
16.09.1898 – Dokumentnr: 900059 – Registrering av grunn
Denne matrikkelenhet opprettet fra:
Knr:3201 Gnr:14 Bnr:2
26.03.1992 – Dokumentnr: 8561 – Registrering av grunn
Utskilt fra denne matrikkelenhet:
Knr:3201 Gnr:14 Bnr:1071
26.03.1992 – Dokumentnr: 8561 – Registrering av grunn
Utskilt fra denne matrikkelenhet:
Knr:3201 Gnr:14 Bnr:1071
01.01.2020 – Dokumentnr: 70092 – Omnummerering ved kommuneendring
Tidligere: Knr:0219 Gnr:14 Bnr:100
01.01.2020 – Dokumentnr: 70092 – Omnummerering ved kommuneendring
Tidligere: Knr:0219 Gnr:14 Bnr:100
20.06.1919 – Dokumentnr: 900376 – Bestemmelse om veg
Rettighet hefter i: Knr:3024 Gnr:14 Bnr:2
Rettighet hefter i: Knr:3024 Gnr:14 Bnr:1167
Rettighet hefter i: Knr:3024 Gnr:14 Bnr:1168
Rettighet hefter i: Knr:3024 Gnr:14 Bnr:1169
Rettighet hefter i: Knr:3024 Gnr:14 Bnr:1170
Gjelder denne registerenheten med flere
07.01.1971 – Dokumentnr: 300088 – Bestemmelse om vannledn.
Rettighet hefter i: Knr:3201 Gnr:14 Bnr:101 Snr:1
Rettighet hefter i: Knr:3201 Gnr:14 Bnr:101 Snr:2
Rettighet hefter i: Knr:3201 Gnr:14 Bnr:101 Snr:3
Rettighet hefter i: Knr:3201 Gnr:14 Bnr:101 Snr:4
Rettighet hefter i: Knr:3201 Gnr:14 Bnr:101 Snr:5
Rettighet hefter i: Knr:3201 Gnr:14 Bnr:101 Snr:6
Rettighet hefter i: Knr:3201 Gnr:14 Bnr:101 Snr:7
Rettighet hefter i: Knr:3201 Gnr:14 Bnr:101 Snr:8
Rettighet hefter i: Knr:3201 Gnr:14 Bnr:101 Snr:9
Rettighet hefter i: Knr:3201 Gnr:14 Bnr:101 Snr:10
Rettighet hefter i: Knr:3201 Gnr:14 Bnr:101 Snr:11
Rettighet hefter i: Knr:3201 Gnr:14 Bnr:101 Snr:12
Rettighet hefter i: Knr:3201 Gnr:14 Bnr:101 Snr:13
Rettighet hefter i: Knr:3201 Gnr:14 Bnr:101 Snr:14
Rettighet hefter i: Knr:3201 Gnr:14 Bnr:101 Snr:15
Rettighet hefter i: Knr:3201 Gnr:14 Bnr:101 Snr:16
Rettighet hefter i: Knr:3201 Gnr:14 Bnr:101 Snr:17
Rettighet hefter i: Knr:3201 Gnr:14 Bnr:101 Snr:18
Rettighet hefter i: Knr:3201 Gnr:14 Bnr:101 Snr:19
Rettighet hefter i: Knr:3201 Gnr:14 Bnr:101 Snr:20
Rettighet hefter i: Knr:3201 Gnr:14 Bnr:101 Snr:21
Rettighet hefter i: Knr:3201 Gnr:14 Bnr:101 Snr:22
Rettighet hefter i: Knr:3201 Gnr:14 Bnr:101 Snr:23
Rettighet hefter i: Knr:3201 Gnr:14 Bnr:101 Snr:24
Rettighet hefter i: Knr:3201 Gnr:14 Bnr:101 Snr:25
Rettighet hefter i: Knr:3201 Gnr:14 Bnr:101 Snr:26
Rettighet hefter i: Knr:3201 Gnr:14 Bnr:101 Snr:27
Rettighet hefter i: Knr:3201 Gnr:14 Bnr:101 Snr:28
Rettighet hefter i: Knr:3201 Gnr:14 Bnr:101 Snr:29
Rettighet hefter i: Knr:3201 Gnr:14 Bnr:101 Snr:30
Rettighet hefter i: Knr:3201 Gnr:14 Bnr:101 Snr:31
Rettighet hefter i: Knr:3201 Gnr:14 Bnr:101 Snr:32
Gjelder denne registerenheten med flere
07.01.1971 – Dokumentnr: 300088 – Bestemmelse om vannledn.
Rettighet hefter i: Knr:3201 Gnr:14 Bnr:101 Snr:1
Rettighet hefter i: Knr:3201 Gnr:14 Bnr:101 Snr:2
Rettighet hefter i: Knr:3201 Gnr:14 Bnr:101 Snr:3
Rettighet hefter i: Knr:3201 Gnr:14 Bnr:101 Snr:4
Rettighet hefter i: Knr:3201 Gnr:14 Bnr:101 Snr:5
Rettighet hefter i: Knr:3201 Gnr:14 Bnr:101 Snr:6
Rettighet hefter i: Knr:3201 Gnr:14 Bnr:101 Snr:7
Rettighet hefter i: Knr:3201 Gnr:14 Bnr:101 Snr:8
Rettighet hefter i: Knr:3201 Gnr:14 Bnr:101 Snr:9
Rettighet hefter i: Knr:3201 Gnr:14 Bnr:101 Snr:10
Rettighet hefter i: Knr:3201 Gnr:14 Bnr:101 Snr:11
Rettighet hefter i: Knr:3201 Gnr:14 Bnr:101 Snr:12
Rettighet hefter i: Knr:3201 Gnr:14 Bnr:101 Snr:13
Rettighet hefter i: Knr:3201 Gnr:14 Bnr:101 Snr:14
Rettighet hefter i: Knr:3201 Gnr:14 Bnr:101 Snr:15
Rettighet hefter i: Knr:3201 Gnr:14 Bnr:101 Snr:16
Rettighet hefter i: Knr:3201 Gnr:14 Bnr:101 Snr:17
Rettighet hefter i: Knr:3201 Gnr:14 Bnr:101 Snr:18
Rettighet hefter i: Knr:3201 Gnr:14 Bnr:101 Snr:19
Rettighet hefter i: Knr:3201 Gnr:14 Bnr:101 Snr:20
Rettighet hefter i: Knr:3201 Gnr:14 Bnr:101 Snr:21
Rettighet hefter i: Knr:3201 Gnr:14 Bnr:101 Snr:22
Rettighet hefter i: Knr:3201 Gnr:14 Bnr:101 Snr:23
Rettighet hefter i: Knr:3201 Gnr:14 Bnr:101 Snr:24
Rettighet hefter i: Knr:3201 Gnr:14 Bnr:101 Snr:25
Rettighet hefter i: Knr:3201 Gnr:14 Bnr:101 Snr:26
Rettighet hefter i: Knr:3201 Gnr:14 Bnr:101 Snr:27
Rettighet hefter i: Knr:3201 Gnr:14 Bnr:101 Snr:28
Rettighet hefter i: Knr:3201 Gnr:14 Bnr:101 Snr:29
Rettighet hefter i: Knr:3201 Gnr:14 Bnr:101 Snr:30
Rettighet hefter i: Knr:3201 Gnr:14 Bnr:101 Snr:31
Rettighet hefter i: Knr:3201 Gnr:14 Bnr:101 Snr:32
Gjelder denne registerenheten med flere
22.12.2020 – Dokumentnr: 3526116 – Seksjonering
Opprettet seksjoner:
Snr: 1
Formål: Bolig
Sameiebrøk: 60/2158
Snr: 2
Formål: Bolig
Sameiebrøk: 72/2158
Snr: 3
Formål: Bolig
Sameiebrøk: 68/2158
Snr: 4
Formål: Bolig
Sameiebrøk: 50/2158
Snr: 5
Formål: Bolig
Sameiebrøk: 117/2158
Snr: 6
Formål: Bolig
Sameiebrøk: 98/2158
Snr: 7
Formål: Bolig
Sameiebrøk: 112/2158
Snr: 8
Formål: Bolig
Sameiebrøk: 99/2158
Snr: 9
Formål: Bolig
Sameiebrøk: 97/2158
Snr: 10
Formål: Bolig
Sameiebrøk: 119/2158
Snr: 11
Formål: Bolig
Sameiebrøk: 113/2158
Snr: 12
Formål: Bolig
Sameiebrøk: 98/2158
Snr: 13
Formål: Bolig
Sameiebrøk: 112/2158
Snr: 14
Formål: Bolig
Sameiebrøk: 99/2158
Snr: 15
Formål: Bolig
Sameiebrøk: 97/2158
Snr: 16
Formål: Bolig
Sameiebrøk: 114/2158
Snr: 17
Formål: Bolig
Sameiebrøk: 113/2158
Snr: 18
Formål: Bolig
Sameiebrøk: 98/2158
Snr: 19
Formål: Bolig
Sameiebrøk: 112/2158
Snr: 20
Formål: Bolig
Sameiebrøk: 99/2158
Snr: 21
Formål: Bolig
Sameiebrøk: 97/2158
Snr: 22
Formål: Bolig
Sameiebrøk: 114/2158
Gjelder denne registerenheten med flere
01.01.2024 – Dokumentnr: 26018 – Omnummerering ved kommuneendring
Tidligere: Knr:3024 Gnr:14 Bnr:100
Gjelder denne registerenheten med flere
30.09.1960 – Dokumentnr: 303948 – Erklæring/avtale
Midlertidig dispensasjon fra Bygningsloven vedr. fjernelse
av servicestasjonsbygning.
05.11.1960 – Dokumentnr: 304563 – Best. om vann/kloakkledn.
Kan ikke slettes uten samtykke fra kommunen
28.01.1966 – Dokumentnr: 300558 – Erklæring/avtale
Rett for kommunen til å anlegge og vedlikeholde ledninger m.m.
05.10.1968 – Dokumentnr: 306129 – Skjønn
Gjelder denne registerenheten med flere
14.12.1973 – Dokumentnr: 19340 – Erklæring/avtale
Bestemmelse om kloakkrenseanlegg
Kan ikke slettes uten samtykke fra kommunen
06.12.2004 – Dokumentnr: 34536 – Bestemmelse om bebyggelse
Gjelder denne registerenheten med flere
26.10.2017 – Dokumentnr: 1190064 – Forkjøpsrett på vilkår
Rettighetshaver: Esso Norge AS
Org.nr: 914 803 802
Gjelder denne registerenheten med flere
26.10.2017 – Dokumentnr: 1190087 – Erklæring/avtale
Rettighetshaver: Esso Norge AS
Org.nr: 914 803 802
Bestemmelse om benyttelse
Bestemmelse om adkomst
Med flere bestemmelser
Gjelder denne registerenheten med flere
20.02.1925 – Dokumentnr: 900129 – Registrering av grunn
Denne matrikkelenhet opprettet fra:
Knr:3201 Gnr:14 Bnr:105
01.01.2020 – Dokumentnr: 393214 – Omnummerering ved kommuneendring
Tidligere: Knr:0219 Gnr:14 Bnr:336
01.01.2024 – Dokumentnr: 35103 – Omnummerering ved kommuneendring
Tidligere: Knr:3024 Gnr:14 Bnr:336
3201/14/336:
18.11.1898 – Dokumentnr: 900130 – Bestemmelse om bebyggelse
Bestemmelse om generende virksomhet
Overført fra: Knr:3201 Gnr:14 Bnr:100
Gjelder denne registerenheten med flere
18.11.1898 – Dokumentnr: 900130 – Bestemmelse om bebyggelse
Bestemmelse om generende virksomhet
Overført fra: Knr:3201 Gnr:14 Bnr:100
Gjelder denne registerenheten med flere
24.11.1964 – Dokumentnr: 306440 – Bestemmelse om veg
Bestemmelse om vann/kloakkledning
Overført fra: Knr:3201 Gnr:14 Bnr:100
Gjelder denne registerenheten med flere
24.11.1964 – Dokumentnr: 306440 – Bestemmelse om veg
Bestemmelse om vann/kloakkledning
Overført fra: Knr:3201 Gnr:14 Bnr:100
Gjelder denne registerenheten med flere
29.01.1965 – Dokumentnr: 300575 – Best. om vann/kloakkledn.
Kan ikke slettes uten samtykke fra kommunen
Overført fra: Knr:3201 Gnr:14 Bnr:100
Gjelder denne registerenheten med flere
29.01.1965 – Dokumentnr: 300575 – Best. om vann/kloakkledn.
Kan ikke slettes uten samtykke fra kommunen
Overført fra: Knr:3201 Gnr:14 Bnr:100
Gjelder denne registerenheten med flere
10.12.1969 – Dokumentnr: 308982 – Best om garasje/parkering
Overført fra: Knr:3201 Gnr:14 Bnr:100
Gjelder denne registerenheten med flere
10.12.1969 – Dokumentnr: 308982 – Best om garasje/parkering
Overført fra: Knr:3201 Gnr:14 Bnr:100
Gjelder denne registerenheten med flere
05.01.1971 – Dokumentnr: 300028 – Bestemmelse om vannledn.
Overført fra: Knr:3201 Gnr:14 Bnr:100
Gjelder denne registerenheten med flere
05.01.1971 – Dokumentnr: 300028 – Bestemmelse om vannledn.
Overført fra: Knr:3201 Gnr:14 Bnr:100
Gjelder denne registerenheten med flere
08.03.1971 – Dokumentnr: 301706 – Erklæring/avtale
Bestemmelse om kloakkrenseanlegg
Overført fra: Knr:3201 Gnr:14 Bnr:100
Gjelder denne registerenheten med flere
08.03.1971 – Dokumentnr: 301706 – Erklæring/avtale
Bestemmelse om kloakkrenseanlegg
Overført fra: Knr:3201 Gnr:14 Bnr:100
Gjelder denne registerenheten med flere
08.03.1971 – Dokumentnr: 301707 – Best. om adkomstrett
Bestemmelse om bebyggelse
Overført fra: Knr:3201 Gnr:14 Bnr:100
Gjelder denne registerenheten med flere
08.03.1971 – Dokumentnr: 301707 – Best. om adkomstrett
Bestemmelse om bebyggelse
Overført fra: Knr:3201 Gnr:14 Bnr:100
Gjelder denne registerenheten med flere
27.09.2019 – Dokumentnr: 1135649 – Registerenheten kan ikke disponeres over uten samtykke fra rettighetshaver
Rettighetshaver: Dnb Bank Asa
Org.nr: 984 851 006
16.09.1898 – Dokumentnr: 900059 – Registrering av grunn
Denne matrikkelenhet opprettet fra:
Knr:3201 Gnr:14 Bnr:2
16.09.1898 – Dokumentnr: 900059 – Registrering av grunn
Denne matrikkelenhet opprettet fra:
Knr:3201 Gnr:14 Bnr:2
26.03.1992 – Dokumentnr: 8561 – Registrering av grunn
Utskilt fra denne matrikkelenhet:
Knr:3201 Gnr:14 Bnr:1071
26.03.1992 – Dokumentnr: 8561 – Registrering av grunn
Utskilt fra denne matrikkelenhet:
Knr:3201 Gnr:14 Bnr:1071
01.01.2020 – Dokumentnr: 70092 – Omnummerering ved kommuneendring
Tidligere: Knr:0219 Gnr:14 Bnr:100
01.01.2020 – Dokumentnr: 70092 – Omnummerering ved kommuneendring
Tidligere: Knr:0219 Gnr:14 Bnr:100
20.06.1919 – Dokumentnr: 900376 – Bestemmelse om veg
Rettighet hefter i: Knr:3024 Gnr:14 Bnr:2
Rettighet hefter i: Knr:3024 Gnr:14 Bnr:1167
Rettighet hefter i: Knr:3024 Gnr:14 Bnr:1168
Rettighet hefter i: Knr:3024 Gnr:14 Bnr:1169
Rettighet hefter i: Knr:3024 Gnr:14 Bnr:1170
Gjelder denne registerenheten med flere
07.01.1971 – Dokumentnr: 300088 – Bestemmelse om vannledn.
Rettighet hefter i: Knr:3201 Gnr:14 Bnr:101 Snr:1
Rettighet hefter i: Knr:3201 Gnr:14 Bnr:101 Snr:2
Rettighet hefter i: Knr:3201 Gnr:14 Bnr:101 Snr:3
Rettighet hefter i: Knr:3201 Gnr:14 Bnr:101 Snr:4
Rettighet hefter i: Knr:3201 Gnr:14 Bnr:101 Snr:5
Rettighet hefter i: Knr:3201 Gnr:14 Bnr:101 Snr:6
Rettighet hefter i: Knr:3201 Gnr:14 Bnr:101 Snr:7
Rettighet hefter i: Knr:3201 Gnr:14 Bnr:101 Snr:8
Rettighet hefter i: Knr:3201 Gnr:14 Bnr:101 Snr:9
Rettighet hefter i: Knr:3201 Gnr:14 Bnr:101 Snr:10
Rettighet hefter i: Knr:3201 Gnr:14 Bnr:101 Snr:11
Rettighet hefter i: Knr:3201 Gnr:14 Bnr:101 Snr:12
Rettighet hefter i: Knr:3201 Gnr:14 Bnr:101 Snr:13
Rettighet hefter i: Knr:3201 Gnr:14 Bnr:101 Snr:14
Rettighet hefter i: Knr:3201 Gnr:14 Bnr:101 Snr:15
Rettighet hefter i: Knr:3201 Gnr:14 Bnr:101 Snr:16
Rettighet hefter i: Knr:3201 Gnr:14 Bnr:101 Snr:17
Rettighet hefter i: Knr:3201 Gnr:14 Bnr:101 Snr:18
Rettighet hefter i: Knr:3201 Gnr:14 Bnr:101 Snr:19
Rettighet hefter i: Knr:3201 Gnr:14 Bnr:101 Snr:20
Rettighet hefter i: Knr:3201 Gnr:14 Bnr:101 Snr:21
Rettighet hefter i: Knr:3201 Gnr:14 Bnr:101 Snr:22
Rettighet hefter i: Knr:3201 Gnr:14 Bnr:101 Snr:23
Rettighet hefter i: Knr:3201 Gnr:14 Bnr:101 Snr:24
Rettighet hefter i: Knr:3201 Gnr:14 Bnr:101 Snr:25
Rettighet hefter i: Knr:3201 Gnr:14 Bnr:101 Snr:26
Rettighet hefter i: Knr:3201 Gnr:14 Bnr:101 Snr:27
Rettighet hefter i: Knr:3201 Gnr:14 Bnr:101 Snr:28
Rettighet hefter i: Knr:3201 Gnr:14 Bnr:101 Snr:29
Rettighet hefter i: Knr:3201 Gnr:14 Bnr:101 Snr:30
Rettighet hefter i: Knr:3201 Gnr:14 Bnr:101 Snr:31
Rettighet hefter i: Knr:3201 Gnr:14 Bnr:101 Snr:32
Gjelder denne registerenheten med flere
07.01.1971 – Dokumentnr: 300088 – Bestemmelse om vannledn.
Rettighet hefter i: Knr:3201 Gnr:14 Bnr:101 Snr:1
Rettighet hefter i: Knr:3201 Gnr:14 Bnr:101 Snr:2
Rettighet hefter i: Knr:3201 Gnr:14 Bnr:101 Snr:3
Rettighet hefter i: Knr:3201 Gnr:14 Bnr:101 Snr:4
Rettighet hefter i: Knr:3201 Gnr:14 Bnr:101 Snr:5
Rettighet hefter i: Knr:3201 Gnr:14 Bnr:101 Snr:6
Rettighet hefter i: Knr:3201 Gnr:14 Bnr:101 Snr:7
Rettighet hefter i: Knr:3201 Gnr:14 Bnr:101 Snr:8
Rettighet hefter i: Knr:3201 Gnr:14 Bnr:101 Snr:9
Rettighet hefter i: Knr:3201 Gnr:14 Bnr:101 Snr:10
Rettighet hefter i: Knr:3201 Gnr:14 Bnr:101 Snr:11
Rettighet hefter i: Knr:3201 Gnr:14 Bnr:101 Snr:12
Rettighet hefter i: Knr:3201 Gnr:14 Bnr:101 Snr:13
Rettighet hefter i: Knr:3201 Gnr:14 Bnr:101 Snr:14
Rettighet hefter i: Knr:3201 Gnr:14 Bnr:101 Snr:15
Rettighet hefter i: Knr:3201 Gnr:14 Bnr:101 Snr:16
Rettighet hefter i: Knr:3201 Gnr:14 Bnr:101 Snr:17
Rettighet hefter i: Knr:3201 Gnr:14 Bnr:101 Snr:18
Rettighet hefter i: Knr:3201 Gnr:14 Bnr:101 Snr:19
Rettighet hefter i: Knr:3201 Gnr:14 Bnr:101 Snr:20
Rettighet hefter i: Knr:3201 Gnr:14 Bnr:101 Snr:21
Rettighet hefter i: Knr:3201 Gnr:14 Bnr:101 Snr:22
Rettighet hefter i: Knr:3201 Gnr:14 Bnr:101 Snr:23
Rettighet hefter i: Knr:3201 Gnr:14 Bnr:101 Snr:24
Rettighet hefter i: Knr:3201 Gnr:14 Bnr:101 Snr:25
Rettighet hefter i: Knr:3201 Gnr:14 Bnr:101 Snr:26
Rettighet hefter i: Knr:3201 Gnr:14 Bnr:101 Snr:27
Rettighet hefter i: Knr:3201 Gnr:14 Bnr:101 Snr:28
Rettighet hefter i: Knr:3201 Gnr:14 Bnr:101 Snr:29
Rettighet hefter i: Knr:3201 Gnr:14 Bnr:101 Snr:30
Rettighet hefter i: Knr:3201 Gnr:14 Bnr:101 Snr:31
Rettighet hefter i: Knr:3201 Gnr:14 Bnr:101 Snr:32
Gjelder denne registerenheten med flere
22.12.2020 – Dokumentnr: 3526116 – Seksjonering
Opprettet seksjoner:
Snr: 1
Formål: Bolig
Sameiebrøk: 60/2158
Snr: 2
Formål: Bolig
Sameiebrøk: 72/2158
Snr: 3
Formål: Bolig
Sameiebrøk: 68/2158
Snr: 4
Formål: Bolig
Sameiebrøk: 50/2158
Snr: 5
Formål: Bolig
Sameiebrøk: 117/2158
Snr: 6
Formål: Bolig
Sameiebrøk: 98/2158
Snr: 7
Formål: Bolig
Sameiebrøk: 112/2158
Snr: 8
Formål: Bolig
Sameiebrøk: 99/2158
Snr: 9
Formål: Bolig
Sameiebrøk: 97/2158
Snr: 10
Formål: Bolig
Sameiebrøk: 119/2158
Snr: 11
Formål: Bolig
Sameiebrøk: 113/2158
Snr: 12
Formål: Bolig
Sameiebrøk: 98/2158
Snr: 13
Formål: Bolig
Sameiebrøk: 112/2158
Snr: 14
Formål: Bolig
Sameiebrøk: 99/2158
Snr: 15
Formål: Bolig
Sameiebrøk: 97/2158
Snr: 16
Formål: Bolig
Sameiebrøk: 114/2158
Snr: 17
Formål: Bolig
Sameiebrøk: 113/2158
Snr: 18
Formål: Bolig
Sameiebrøk: 98/2158
Snr: 19
Formål: Bolig
Sameiebrøk: 112/2158
Snr: 20
Formål: Bolig
Sameiebrøk: 99/2158
Snr: 21
Formål: Bolig
Sameiebrøk: 97/2158
Snr: 22
Formål: Bolig
Sameiebrøk: 114/2158
Gjelder denne registerenheten med flere
01.01.2024 – Dokumentnr: 26018 – Omnummerering ved kommuneendring
Tidligere: Knr:3024 Gnr:14 Bnr:100
Gjelder denne registerenheten med flere
30.09.1960 – Dokumentnr: 303948 – Erklæring/avtale
Midlertidig dispensasjon fra Bygningsloven vedr. fjernelse
av servicestasjonsbygning.
05.11.1960 – Dokumentnr: 304563 – Best. om vann/kloakkledn.
Kan ikke slettes uten samtykke fra kommunen
28.01.1966 – Dokumentnr: 300558 – Erklæring/avtale
Rett for kommunen til å anlegge og vedlikeholde ledninger m.m.
05.10.1968 – Dokumentnr: 306129 – Skjønn
Gjelder denne registerenheten med flere
14.12.1973 – Dokumentnr: 19340 – Erklæring/avtale
Bestemmelse om kloakkrenseanlegg
Kan ikke slettes uten samtykke fra kommunen
06.12.2004 – Dokumentnr: 34536 – Bestemmelse om bebyggelse
Gjelder denne registerenheten med flere
26.10.2017 – Dokumentnr: 1190064 – Forkjøpsrett på vilkår
Rettighetshaver: Esso Norge AS
Org.nr: 914 803 802
Gjelder denne registerenheten med flere
26.10.2017 – Dokumentnr: 1190087 – Erklæring/avtale
Rettighetshaver: Esso Norge AS
Org.nr: 914 803 802
Bestemmelse om benyttelse
Bestemmelse om adkomst
Med flere bestemmelser
Gjelder denne registerenheten med flere
20.02.1925 – Dokumentnr: 900129 – Registrering av grunn
Denne matrikkelenhet opprettet fra:
Knr:3201 Gnr:14 Bnr:105
01.01.2020 – Dokumentnr: 393214 – Omnummerering ved kommuneendring
Tidligere: Knr:0219 Gnr:14 Bnr:336
01.01.2024 – Dokumentnr: 35103 – Omnummerering ved kommuneendring
Tidligere: Knr:3024 Gnr:14 Bnr:336
et foreligger ikke ferdigattest eller midlertidig brukstillatelse på eiendommen, da bygget ikke er ferdigstilt på salgstidspunktet.
Det er utbyggers plikt å fremskaffe ferdigattest på eiendommen. Det gjøres oppmerksom på at midlertidig brukstillatelse eller ferdigattest på foreligge før kjøper kan ta i bruk eiendommen. Kjøper er gjort kjent med at det kan ta lang tid i etterkant av ferdigstillelse av et bygg, før ferdigattest foreligger. Kjøper kan ikke nekte overtagelse ved manglende ferdigattest, dersom midlertidig brukstillatelse foreligger.
Leiligheten kan leies ut i sin helhet. Korttidsutleie er imidlertid begrenset til inntil 90 dager pr. år, se nærmere foreløpige sameievedtekter vedlagt salgsoppgaven.
Formuesverdien er ikke fastsatt, men fastsettes av Skatteetaten etter en beregningsmodell som hensyntar om boligen er «primærbolig»; (der eier er bosatt iht. Folkeregisteret) eller «sekundærbolig»; (andre boliger man eier). For primærbolig er formuesverdien 25 % av markedsverdien opp til kr. 10 000 000 og deretter 70 % av den overskytende markedsverdien, og 100 % for sekundærboliger. Det gjøres oppmerksom på at kjøper selv må sende inn opplysninger om adresse, areal, boligtype og byggeår til skattemyndighetene.
Det tas forbehold om endring av satser, og henvises til Skatteetatens websider dersom ytterligere informasjon er ønskelig.
I tillegg til kjøpesummen må kjøper betale:
1: Dokumentavgift til staten, 2,5% av andel tomteverdi: Kr. 74 100,-
2: Tinglysningsgebyr skjøte: Kr. 545,-
3: Tinglysningsgebyr pantedokument: Kr. 545,-
4: Etableringsgebyr forretningsfører: Kr. 8 000,-
Totale omkostninger: Kr. kr 83 190,-
Leilighetene vil bli solgt som eierleiligheter og organisert som sameie og følger eierseksjonsloven av 16. juni 2017, nr. 65. Deler av fellesarealet vil være forbeholdt til eksklusiv bruk, drift og vedlikehold for boligseksjonene, hvilket beskrives nærmere i eierseksjonssameiets vedtekter og/eller ved tinglysing. Eierseksjonsloven kan i sin helhet fås ved henvendelse til megler. Loven finnes også på www.lovdata.no.
Kjøper plikter å rette seg etter de til enhver tid gjeldende vedtekter for sameiet. Vedlagt salgsoppgaven følger foreløpige vedtekter. Selger har rett til å tilpasse vedtektene frem til avholdelse av ekstraordinær generalforsamling. Kjøper plikter å betale sin forholdsmessige andel av driftsutgiftene for eiendommene fra overtakelsestidspunktet. Budsjett over driftsutgiftene samt vedtektene stadfestes av sameiet i ekstraordinært sameiermøte. Selger vil innkalle til ekstraordinær generalforsamling ca. 1 måned før overtakelse for å velge styre. Regler for styring og drift av boligsameiet følger av Eierseksjonsloven.
Selger tar følgende forbehold for gjennomføring av kjøpekontrakten:
Selger er ikke bundet av kjøpekontrakten dersom ikke
a) 50% av Eiendommens salgsverdi iht. prisliste er solgt.
b) Nødvendige offentlige tillatelser for igangsetting av byggingsarbeidene er gitt.
c) Styret i utbyggerselskapet vedtar byggestart.
Dersom disse forbeholdene ikke er avklart innen 30.09.2026 har partene rett til å kansellere kjøpekontrakten. Kjøper har i en slik situasjon rett til å få innbetalt beløp samt opptjente renter over ½ rettsgebyr på klientkonto tilbakebetalt. Ut over dette har Selger intet ansvar overfor Kjøper.
Sist oppdatert: 10.04.2026
37C-0204
2. Etasje
2-roms
40 m²
kr 5 100 000,-
37D-0403
4. Etasje
2-roms
46 m²
kr 6 100 000,-
39B-0205
2. Etasje
3-roms
52 m²
kr 6 300 000,-
37D-0201
2. Etasje
2-roms
51 m²
kr 6 300 000,-
37D-0503
5. Etasje
2-roms
43 m²
kr 6 600 000,-
37A-0506
5. Etasje
2-roms
46 m²
kr 6 700 000,-
39B-0201
2. Etasje
3-roms
55 m²
kr 6 750 000,-
37B-0201
2. Etasje
3-roms
69 m²
kr 6 900 000,-
39B-0203
2. Etasje
3-roms
56 m²
kr 6 950 000,-