Matrikkel
Knr. 301 Gnr. 47 Bnr. 12
Ullevålsveien 114, 0451 OSLO
Meld din interesse så vil vi ta kontakt med deg og holde deg løpende orientert om prosjektet!
Ta kontakt med megler for å avtale en digitalvisning av prosjektet.
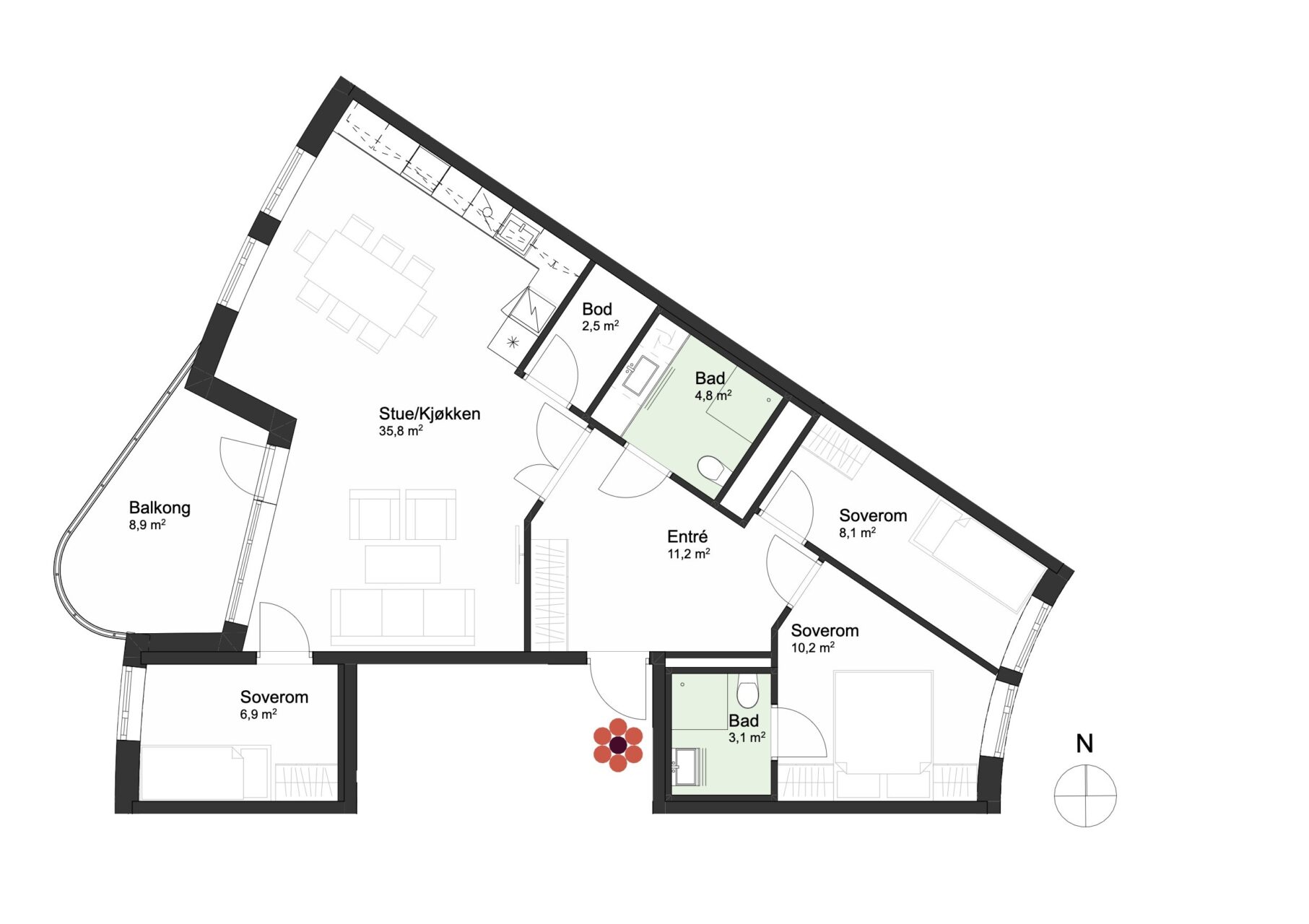
B0201 er en flott 4-roms leilighet beliggende i 2. etasje. Leiligheten inneholder en romslig entré med plass for garderobeløsning, og herfra har man adkomst til to soverom og ett av leilighetens to bad. Hovedsoverommet er direkte tilknyttet leilighetens andre bad. Videre har leiligheten en åpen stue- kjøkkenløsning med plass for både spisebord og sofagruppe. Herfra er det utgang til vestvendt balkong på ca. 9 kvm.
Dette er bare en av flere leiligheter vi har for salg i prosjektet. Ta en titt på prosjektets hjemmeside og i boligvelger for å se på andre alternativer.


Knr. 301 Gnr. 47 Bnr. 12
Fagerblom består av 82 unike selveierleiligheter med hyggelig bakgård og felles takhage med ulike soner og vidstrakt utsikt. Fagerblom ligger midt i hjertet av Oslo midt mellom Ullevål og Majorstuen. Her har du kort vei til de mange grønne lungene, og umiddelbar nærhet til kollektivtransport som tar deg akkurat dit du vil. Her har du nærhet til alt. Du har gangavstand til Bogstadveien med alt av butikker, restauranter og kafeer. Dersom du vil tusle i de koselige gatene rundt Fagerborg eller tilbringe en dag i en av byens parker som Marienlystparken, Stensparken eller Idioten på Adamsstuen har du kort vei.
Uteområdene er utformet med tanke på bred soneinndeling. Bakgården er utformet med en liten aktivitetsplass og en sansehage, mens takterrassen har soner med utekjøkken, treningsapparater, dyrking og godt med sitteplasser. Fra den frodige takhagen har du utsikt nedover Fagerborg og mot Oslofjorden. Dette er et sted hvor du kan samle gode venner, eller trekke deg tilbake helt alene og nyte utsikten.
Bygget har hentet inspirasjon fra klassiske bygg i Oslo, og har en karakteristisk utforming med den buede fasaden som svinger rundt hjørnet mot Ullevålsveien. Materialbruken er variert og naturlig og består av puss og treverk.
Her finner du gjennomtenkte selveierleiligheter fra 2-roms på 38 kvm til toppleilighet på 151 kvm, og selvsagt mange alternativer i mellom. Den enkelte leilighet er nøye planlagt med mål om å skape gode hjem. Planløsningene er gode og effektive med fokus på boligens hjerte, allrommet. Alle leiligheter leveres med et helhetlig interiørkonsept i nordisk stil. Blant annet leveres enstavs eikeparkett, gulvfliser i entré, massivdører, og kjøkken fra HTH med integrerte hvitevarer fra Miele. Ytterligere tilpasninger er mulig i tilvalgsprosessen.
Allerede i første etasje møter du byens puls i form av bygulvet, tre passelig store lokaler som planlegges med en ambisjon om å tilby handel og service både til beboere og nærområdet. Kanskje en kaffe på vei til jobb, eller en croissant til søndagsfrokosten?
Besøk gjerne prosjektets hjemmeside for mer informasjon.
Ullevålsveien 114, 0451 OSLO
Knr. 301 Gnr. 47 Bnr. 12
Uv114 Utvikling AS
Selger forventes å ferdigstille boligene i perioden september-desember 2027 uten at dette er å anse som bindende frist for overlevering. Selger skal deretter informere Kjøper hvis det blir grunn til å anta betydelige endringer i den antatte perioden for overtagelse. Kjøper aksepterer overtakelse inntil 4 måneder tidligere enn varslet av Selger ved frafall av forbehold. Selger skal senest 8 uker uker før ferdigstillelse skriftlig varsle Kjøper om bindende overtagelsestidspunkt (Overtagelse) og overtakelsesforretning iht. buofl. § 15.
Leilighetene selges uten rett til bruk av parkeringsplass. Pga. begrenset antall parkeringsplasser vil plassene være forbeholdt leiligheter med listepris 12 000 000,- eller mer. Garasjeplass kan kjøpes til gjeldene priser: P-plass for bil kr. 850 000,-. Alle parkeringsplasser leveres komplett med ladepunkt for el-bil.
Det er utarbeidet utomhusplan for bakkeplan og takhage. Landskapsplanen er en illustrasjon av hvordan utomhusområdene er planlagt opparbeidet, med forbehold om tilpasning og endringer.
Det vil etableres flere næringslokaler i første etasje. Leietaker er ikke signert på nåværende tidspunkt.
Det leveres en sportsbod i kjeller på 5 kvm for leiligheter over 50 kvm og 2,5 kvm for leiligheter inntil 50 kvm. Merk at BRA-e på tegning er avrundet iht. NS3940:2023. Sportsbod leveres med gittervegger mot evt. sideboder, og tett felt opp til 2,2 meters høyde mot korridor. Sportsbodene er i et eget rom i kjellerplan underetasje 2. Adkomst til bodarealer skjer via oppgang B og C.
Enkelte leiligheter leveres med bod i leiligheten, dette fremkommer på salgstegning for de aktuelle leilighetene.
Det leveres vannbåren gulvvarme i alle leilighetens rom med unntak av soverom, gang og bod.
Det er 3 leiligheter som leveres med hybel. Disse leilighetene kan aldri deles i to seksjoner eller selges hver for seg senere. Det er én boenhet og én seksjon, og vil også regnes som én boenhet/seksjon i sameiet i forhold til blant annet fellesutgifter. Det leveres et samlet elektrisk anlegg uten undermåler, ett felles aggregat, og felles sikringsskap.
Paletten i interiøret er inspirert av den nordiske naturen, med lyse og duse jordfarger som skaper en tidløs og behagelig atmosfære – typisk for skandinavisk interiørdesign. Veggene i entre, gang, stue og kjøkken leveres i fargen Kalk, en lys gråbeige tone med et hint av rødt som gir en lun og innbydende følelse. Kjøkkenet leveres av HTH i fargen Leire som harmonerer godt med de øvrige fargene. Videre leveres det integrerte hvitevarer fra Miele.
Badene leveres med storformats fliser. Innredning og fliser har lune og harmoniserte farger.
De fleste badene leveres som prefabrikerte baderomskabiner. Det leveres derimot plassbygde bad i toppleilighetene. Skap med skuffer med bredde iht. plantegning, samt helstøpt vask, alternativt heltrukket vask med sidefelt i hele badets bredde.
For mer informasjon se leveransebeskrivelse og romskjema.
Garderobeskap/skyvedørsgarderobe inngår ikke i leveransen.
Bygningen utføres med bærekonstruksjon hovedsakelig i betong, med enkelte vegger med stålsøyler og dragere.
Fasadeveggene utføres i hovedsak med isolert bindingsverk, men med enkelte vegger i betong. Fasadene utformes med en kombinasjon av puss, trekledning og beslag i henhold til arkitektens endelige anvisninger.
Balkonger og terrasser utføres med gulv av impregnert treverk. Himlinger over balkong leveres i ubehandlet betong. For balkonger i 6. etasje blir det montert et lite skjermtak over balkongdør. Skjermtaket leveres i forskjellige materiale avhengig av balkongens plassering. Det må påregnes høydeforskjell mellom innvendig og utvendig gulv. Det etableres skille mellom ulike balkonger/terrasser.
Heisfronter leveres i rustfritt stål i alle etasjer. Heiskupe leveres med speil og håndløper på en side. Himling med downlights og gulvbelegg av vinyl. Alle heiser går til takhage, boligetasjer, førsteetasje og ned til første underetasje. To av heisene (oppgang B og C) går i tillegg ned til andre underetasje.
Det leveres balansert ventilasjon i hver leilighet med desentralisert ventilasjonsaggregat plassert i leiligheten. Aggregat plasseres i himling i entre/bod/gang.
Det vil bli et eget vannfordelerskap for rør-i-rør system og vannbåren varme plassert innfelt i vegg med luke for inspeksjon og avlesning av målere.
Det leveres røykvarslingsanlegg og slukkeløsning i form av brannslange eller brannslukningsapparat. Alle boligetasjer blir sprinklet, det medfører et eller flere sprinkelpunkter per rom plassert i himling eller innkassinger.
Alle postkasser blir plassert på hensiktsmessig sted ved hovedinngangen.
Det legges fiber frem til eget svakstrømskap i hver leilighet. Dette skapet plasseres et hensiktsmessig sted i boligen hvor det er tilgjengelig.
Leilighetene varmes opp ved bruk av fjernvarme, og det leveres vannbåren gulvvarme i entre, bad, kjøkken og stue. Vannbåren varme i øvrige rom leveres ikke, men varme på soverom er tilgjengelig som tilvalg. Fjernvarmeanlegget produserer også oppvarmingen av varmt tappevann. Det monteres måler i hver leilighet som måler forbruket av oppvarming og varmtvann.
På eiendommen er det tinglyst følgende heftelser og rettigheter som følger eiendommens matrikkel ved overskjøting til ny hjemmelshaver:
301/47/12:
15.09.1922 – Dokumentnr: 900990 – Bestemmelse om bebyggelse
25.01.1924 – Dokumentnr: 901234 – Bestemmelse om bebyggelse
29.10.1926 – Dokumentnr: 900709 – Skjønn
22.06.1936 – Dokumentnr: 7303 – Erklæring/avtale
VEDR. KANAL, BETONGPLATER, KABLER M.M.
Overført fra gnr 47 bnr 163
27.04.1939 – Dokumentnr: 5860 – Bestemmelse om gjerde
Med flere bestemmelser
Bestemmelse om veg
08.11.1939 – Dokumentnr: 15581 – Best. om vann/kloakkledn.
Med flere bestemmelser
Kan ikke slettes uten samtykke fra kommunen
05.06.1959 – Dokumentnr: 6600 – Erklæring/avtale
VEDR. 12.000.LTR. TANK.
Kan ikke slettes uten samtykke fra bygningsrådet
16.12.1960 – Dokumentnr: 15916 – Skjønn
Gjelder denne registerenheten med flere
02.09.1986 – Dokumentnr: 53847 – Bestemmelse om bebyggelse
VEDR. BENSINPUMPER
Kan ikke slettes uten samtykke fra vegsjefen
05.12.2013 – Dokumentnr: 1060479 – Erklæring/avtale
Rettighetshaver: Esso Norge AS
Org.nr: 914 803 802
Bestemmelse om bruk av grunn
Bestemmelse om bebyggelse
Bestemmelse om adkomst
Med flere bestemmelser
05.12.2013 – Dokumentnr: 1060537 – Erklæring/avtale
Rettighetshaver: Esso Norge AS
Org.nr: 914 803 802
Bestemmelse om salg og reklame m.m. for bensin- og oljeprodukter
16.05.2022 – Dokumentnr: 525095 – Bestemmelse om nettstasjon
Rettighetshaver: Elvia AS
Org.nr: 980 489 698
Bestemmelse om bebyggelse i nærheten av anlegg/ledninger/kabler
Adkomstrett for drift og vedlikehold av anlegg/ledninger/kabler
13.09.2024 – Dokumentnr: 1951220 – Registerenheten kan ikke disponeres over uten samtykke fra rettighetshaver
Rettighetshaver: Røisland & Co Eiendomsmegling AS
Org.nr: 994 194 410
Elektronisk innsendt
03.04.1957 – Dokumentnr: 905131 – Registrering av grunn
Denne matrikkelenhet opprettet fra:
Knr:0301 Gnr:47 Bnr:11
25.11.1963 – Dokumentnr: 919840 – Sammenslått med denne matrikkelenhet:
GNR.47 BNR,250.
20.09.1976 – Dokumentnr: 924967 – Sammenslått med denne matrikkelenhet:
GNR.47 BNR.163.
15.12.2014 – Dokumentnr: 1102390 – Arealoverføring
Areal overført fra: Knr:0301 Gnr:47 Bnr:65
Vederlag: NOK 14 550 000
Omsetningstype: Fritt salg
Ved overtakelse av den enkelte boligseksjon vil det ikke foreligge ferdigattest. Ferdigattest vil først foreligge lang tid etter overtakelse. Bakgrunnen er at deler av de arbeider som er påkrevet for å få ferdigattest, ikke vil være ferdig per dato for overtakelse av den enkelte boligseksjon. Det presiseres at fremstillingen over ikke har noen innvirkning på selgers forpliktelse til å fremskaffe ferdigattest eller konsekvensene av at ferdigattest ikke foreligger pr. overtakelse. Kjøper oppfordres til å kontakte megler dersom det skulle foreligge spørsmål til ovennevnte.
Boligen kan leies ut i sin helhet.
Se sameiets utkast til vedtekter.
Det gjøres oppmerksom på at utleie av boligen før seksjoneringsbegjæringen er tinglyst, kan utløse kjøpsrett for leietager til redusert pris, jf. Eierseksjonsloven kap. III. Dette er kjøpers risiko.
Felles bakgård og takhage.
Reguleringsbestemmelser og reguleringskart ligger som vedlegg til denne salgsoppgaven. Eiendommen er regulert til bolig, forretninger, forsamlingslokale, administrasjon, annen offentlig eller privat tjenesteyting, bevertning. Reguleringsbestemmelser er S-4939, vedtatt 01.02.2018. Eiendommen nord for eiendommen er regulert til friområde samt spesialområde (gravlund).
Bebyggelse mot sør og vest er ferdig utbygget med en kotehøyde på +76.8 til +77.6. Nordøst for eiendommen ligget tomt regulert til Tomt for off. bygning.
Reguleringskart med bestemmelser finnes som vedlegg til salgsoppgaven eller hos megler. For nærmere informasjon om byggets beliggenhet og høyde, se situasjonskart.
Det er eiendomsskatt på boliger og annen fast eiendom i Oslo kommune. Oslo kommune fastsetter endelige kommunale avgifter (inkl. eiendomsskatt) og det tas derfor forbehold om dette
Formuesverdien er ikke fastsatt, men fastsettes av Skatteetaten etter en beregningsmodell som hensyntar om boligen er «primærbolig»; (der eier er bosatt iht. Folkeregisteret) eller «sekundærbolig»; (andre boliger man eier).
For primærbolig er formuesverdien 25 % av markedsverdien opp til kr. 10 000 000 og deretter 70 % av den overskytende markedsverdien, og 100 % for sekundærboliger. Det gjøres oppmerksom på at kjøper selv må sende inn opplysninger om adresse, areal, boligtype og byggeår til skattemyndighetene.
Det tas forbehold om endring av satser, og henvises til Skatteetatens websider dersom ytterligere informasjon er ønskelig.
I tillegg til kjøpesummen må kjøper betale:
1: Dokumentavgift til staten, 2,5% av andel tomteverdi: Kr. 83 400,-
2: Tinglysningsgebyr skjøte: Kr. 545,-
3: Tinglysningsgebyr pantedokument: Kr. 545,-
Totale omkostninger: Kr. 84 490,-
Leilighetene vil bli solgt som eierleiligheter og organisert som sameie og følger eierseksjonsloven av 16.juni 2017, nr. 65. Bygget er et kombinasjonsbygg med næring og bolig hvor man bl.a. har stemmerett etter eierbrøk. Næringsarealene vil hovedsakelig ligge i 1. etasje og kjeller. Eierseksjonsloven kan i sin helhet, fås ved henvendelse til megler. Loven finnes også på www.lovdata.no.
Sameiet vil bli ledet av et styre som velges blant eierne. Styret skal ivareta alle saker av felles interesse for sameierne. Selger har engasjert USBL som forretningsfører for sameiet med bindingstid på 3 år. Selger vil også inngå vaktmesteravtale og andre avtaler som selger anser nødvendig for sameiet. Kostnaden for dette er tatt inn i budsjettet.
Selger kan kansellere inngått Kjøpekontrakt frem til 1. april 2026 dersom ikke nødvendig forhåndssalg eller tilfredsstillende finansiering er oppnådd. Videre kan Selger kansellere dersom styrets godkjenning, igangsettelsestillatelse eller annen nødvendig tillatelse fra kommunen eller annen offentlig myndighet ikke gis innen samme frist. Selger skal sende skriftlig varsel til Kjøper når grunnlaget for forbeholdene er bortfalt og kontrakten derved er endelig, sammen med angivelse av endelig tidspunkt for overlevering (Overtakelse).
Kansellering anses skjedd på det tidspunkt Selger har sendt meddelelse om dette. Dersom kanselleringsretten benyttes, får Kjøper tilbakebetalt eventuelt innbetalt kjøpesum inkludert eventuelle renter. Kjøper kan ikke fremme krav mot Selger som følge av kanselleringen.
Selger forbeholder seg retten til å selge deler av prosjektet/enkelte oppganger i prosjektet separat. Blir et slikt salg gjennomført vil det bli eget/egne sameier med mulige sambruksarealer mellom sameiene. Dersom et slikt salg gjennomføres vil deler av det som er rammesøkt kunne endre karakter.
Det tas også forbehold om at hele eller deler av kjellereiendommen, gårdsrom, adkomstveier, ledninger mv. vil kunne bli etablert som en egen matrikkelenhet, og at sameiets/den enkelte seksjonseiers rettigheter og plikter mht. bruk og vedlikehold av slike arealer vil fremkomme gjennom tinglyste erklæringer, etablering av realsameier, velforeninger eller annen hensiktsmessig organisering.
Selger forbeholder seg retten til å legge deler av utomhusarealet på bakkeplan i tilknytning til næringsarealer som tilleggsdel for uteservering.
Kjøper aksepterer ved signering av kjøpekontrakt at Selger fritt kan transportere kjøpekontrakten og eventuelle senere avtaler til annet selskap i selgers konsern.
Det tas forbehold om at seksjoneringen kan bli forsinket på grunn av offentlige myndigheters saksbehandlingstid. Såfremt tomtearronderingen og seksjoneringen av eiendommen ikke er gjennomført ved overtakelse, vil overskjøting til Kjøper skje så snart det praktisk lar seg gjennomføre.
Selger forbeholder seg retten til å forestå fordelingen/plasseringen av sportsboder og eventuelle parkeringsplasser.
Det tas forbehold om eventuelle feil i salgsoppgaven.
Tegninger og bilder i markedsføringsmateriell er kun illustrasjoner og kan avvike noe i forhold til plan – og fasadetegninger som vedlegges. Selger leverer ikke; innredninger, lamper, øvrig belysningsutstyr, markiser/solavskjerming, tepper, møbler og annet tilbehør, med mindre det fremgår av leveransebeskrivelse samt kontraktstegninger. 3D og VR-modellen er basert på skisser og regulert volum og kun ment som en illustrasjon.
Selger vil benytte egen standard kjøpekontrakt for alle salg i prosjektet. Det forutsettes at bud er lagt inn på
grunnlag av denne kjøpekontrakten og en eventuell aksept av bud fra selger gis under samme forutsetning.
Standard kjøpekontrakt følger som vedlegg til denne salgsoppgave.
Kjøpet følger bustadoppføringslova av 13. juni 1997 nr. 43. Loven regulerer forhold hvor selger er profesjonell, og kjøper er forbruker. Iht. loven plikter selger å stille garanti som sikkerhet for oppfyllelse av sine forpliktelser etter kjøpekontrakt senest ved forbehold frafalt. Garantien utgjør 3 % av kjøpesum frem til overtakelse. Beløpet økes til 5 % av kjøpesum og står 5 -fem-år etter overtakelsen jf. buofl. § 12, 3 ledd. Loven kan i sin helhet fås ved henvendelse til megler. Loven finner du også på www.lovdata.no.
I tilfeller hvor kjøper er profesjonell iht. bustadoppføringslova, dvs. gjør kjøpet som ledd i næringsvirksomhet, vil selger kreve at avtalen reguleres av Lov om avhending av fast eiendom av 3. juli 1992 nr. 93 (avhendingslova).
Eiendomsmeglere er underlagt Lov om hvitvasking. I henhold til Lov av 01.06.18 nr. 23 om tiltak mot hvitvasking og terrorfinansiering (Hvitvaskingsloven), er megler pliktig til å gjennomføre identitetskontroll av alle involverte parter. Hvitvaskingsloven pålegger blant annet eiendomsmegler å innhente redegjørelse av midlenes opprinnelse. Dette besvares av samtlige kjøpere herunder parter som opptrer på vegne av kjøper, ved en såkalt kundekontroll. Ved eventuelt tilbakehold av informasjon eller mistenkelige transaksjoner, plikter eiendomsmegleren å melde fra til Økokrim. Med «mistenkelig transaksjon» menes transaksjon som mistenkes å involvere utbytte fra straffbar handling, eller som skjer som ledd i terrorfinansiering. Manglende mulighet for kundekontroll kan også være et forhold som gjør transaksjonen mistenkelig. Selger forbeholder seg retten til å foreta kredittvurdering av kjøpere. Selger forbeholder seg også retten til å kreve dokumentasjon av kjøpers finansiering. Det kan ikke gjøres ansvar gjeldende mot meglerforetaket som følge av at meglerforetaket overholder sine plikter etter Hvitvaskingsloven.
Selger vil benytte egen standard kjøpekontrakt for alle salg i prosjektet. Det forutsettes at bud er lagt inn på grunnlag av denne kjøpekontrakten og en eventuell aksept av bud fra selger gis under samme forutsetning. Standard kjøpekontrakt følger som vedlegg til denne salgsoppgave.
I tilfeller hvor kjøper er profesjonell iht. bustadoppføringslova, dvs. gjør kjøpet som ledd i næringsvirksomhet, vil selger kreve at avtalen reguleres av Lov om avhending av fast eiendom av 3. juli 1992 nr. 93 (avhendingslova).
Kjøper kan avbestille boligen inntil overtakelse har funnet sted. Ved avbestilling kommer reglene i Bustadoppføringslova kapittel VI til anvendelse. Ved avbestilling gjelder bestemmelsene i buofl. § 53. I et slikt tilfelle skal kjøper dekke hele selgers økonomiske tap.
Kjøper er selv ansvarlig for nødvendig finansiering og bekreftelse på denne. Dersom kjøper skal ha lånefinansiering, bes det oppgitt kontaktinformasjon til långiver slik at megler kan foreta en kontroll av kjøpers finansiering. Til informasjon, kan disse opplysningene bli videreformidlet til selger. Kjøper oppfordres til å innhente verdivurdering av egen bolig dersom egenkapital i nåværende bolig inngår i finansieringsplanen for dette kjøpet. Handelen er juridisk bindende for begge parter når kjøpers bud er akseptert av selger. Dersom kjøper likevel ikke skulle være i stand til å betale kjøpesummen, er kjøper likevel bundet av kjøpet. Selger vil i en slik situasjon kunne påberope seg vesentlig mislighold av avtalen og heve kontrakten. Kjøper er innforstått med at selger vil kunne selge boligen på nytt (dekningssalg) og at ethvert økonomisk tap som selger måtte bli påført som følge av kjøpers mislighold, vil bli krevd dekket av kjøper. Herunder omkostninger i forbindelse med et nytt salg, dekning av en mulig lavere salgspris, rentetap m.m.
Fra 1. januar 2024 trådte en ny arealstandard i kraft “Areal og Volumberegninger for bygninger” som ble
publisert av Norsk Standard 26.10.23. De nye arealbegrepene oppgis som ulike former for BRA, som forklart
under:
BRA-i
Bruksarealet av boenheten innenfor omsluttede vegger.
BRA-e
Bruksarealet av alle rom som ligger utenfor boenheten, men som tilhører denne.
TBA
Arealet av terrasser og åpne balkonger tilknyttet boenheten.
BRA
Boligens fulle areal eksklusive ytterveggene, altså summen av BRA-i og BRA-e.
Salgstegning for den enkelte leilighet er tilgjengelig i boligvelger og i prospekt. Kontraktstegning vil bli oversendt kjøper etter at prosjektet er ferdig detaljprosjektert. De oppgitte arealer er å betrakte som cirka-arealer. Arealer er beregnet og avrundet etter NS3940:2023, og alle arealer følger normal avrundingsregel og avrundes til nærmeste hele kvm. Partene har ingen krav mot hverandre dersom arealet skulle vise seg å være 5 % mindre/større enn det oppgitte areal. TBA er beregnet og avrundet etter NS3940:2023, og arealet følger normal avrundingsregel og avrundes til nærmeste hele kvm.
Sist oppdatert: 30.03.2026
C0603
6. Etasje
2-roms
38 m²
kr 6 900 000,-
D0603
6. Etasje
2-roms
38 m²
kr 7 100 000,-
D0604
6. Etasje
2-roms
42 m²
kr 7 300 000,-
A0402
4. Etasje
3-roms
54 m²
kr 8 500 000,-
A0502
5. Etasje
3-roms
54 m²
kr 8 900 000,-
D0405
4. Etasje
3-roms
67 m²
kr 9 100 000,-
A0602
6. Etasje
3-roms
54 m²
kr 9 300 000,-
B0201
2. Etasje
4-roms
88 m²
kr 10 700 000,-
C0601
6. Etasje
4-roms
81 m²
kr 11 300 000,-