Matrikkel
Knr. 301 Gnr. 234 Bnr. 60
Knr. 301 Gnr. 234 Bnr. 34
Sørengkaia 1, 0194 OSLO
Meld din interesse så vil vi ta kontakt med deg og holde deg løpende orientert om prosjektet!
Lørdag 25.04 kl. 12:00 - 14:00
Visningssenteret ligger i Rostockgata 79, med inngang fra byggets sydside. Kontakt megler for å avtale privatvisning utenfor annonserte tidspunkter.
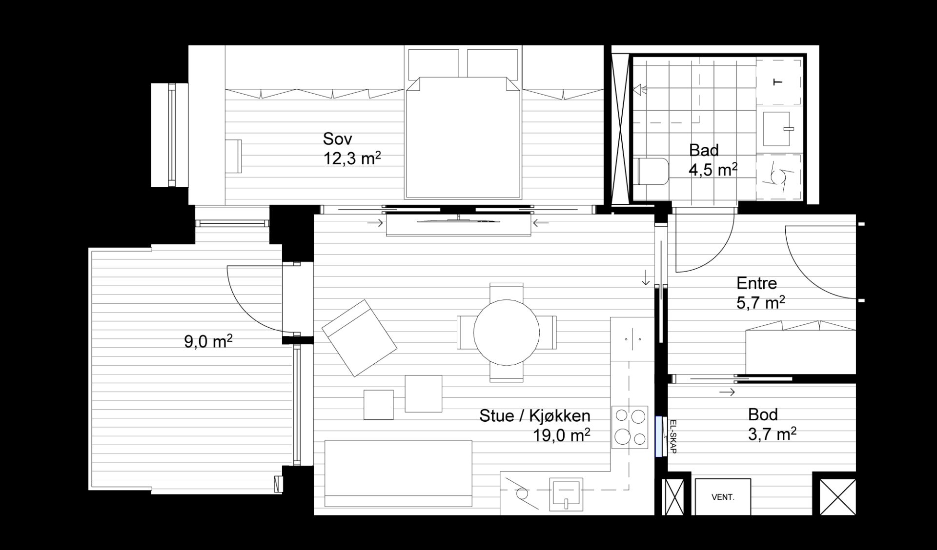
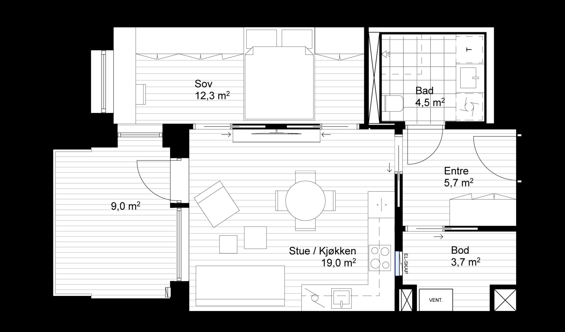
Leilighet J302 er en smart og gjennomgående 2-roms leilighet beliggende i 3. etasje. Leiligheten inneholder entré med god plass til en garderobeløsning, og innvendig bod på ca 3 kvm. Åpen stue- kjøkkenløsning med vinkelkjøkken. Kjøkkenet leveres fra HTH(eller tilsvarende). Videre er det et flislagt bad med gulvvarme, og soverom med god plass til en garderobeløsning. Fra stuen har man tilgang til en vestvendt balkong.
Dette er bare én av flere leiligheter vi har for salg. Sjekk ut prosjektets hjemmeside med boligvelger for å se på andre alternativer.


Knr. 301 Gnr. 234 Bnr. 60
Knr. 301 Gnr. 234 Bnr. 34
I Bispevika syd, mellom Middelalderparken, Sørenga, fargerike Clemenskvartalet og fjorden, kommer nå Mariakvartalet! Urbant og levende med umiddelbar nærhet til vannkanten.
Mariakvartalet vil romme hele 246 boliger og ligger ved den grønne allmenningen Kongsbakken og handlegaten Rostockgata. Prosjektet byr på en bred leilighetsmiks med alt fra store toppleiligheter med egne takhager til effektive 2-roms. Bygget får felles takterrasser med fantastiske solforhold og utsikt. På gateplan kommer restauranter, butikker og kulturtilbud.
Mariakvartalet vil ha totalt 11 oppganger med fasader i ulike høyder. Fasadene skal kles i nordisk tegl i varme nyanser som gult, beige, rødt, grått og brunt. Det vil også være variasjon mellom fasadene i form av felter med ulikt leggemønster. Dør- og vinduskarmer blir kledd i aluminium. Høye portaler leder deg fra omkringliggende gater og inn til den frodige byhagen. I byhagen er det gode solforhold, en egen sosial grillplass og rik beplantning.
Prosjektet tegnes av Lund + Slaatto Arkitekter, som blant annet står bak Munch Brygge i Bjørvika. Munch Brygge vant Oslo Arkitekturforenings Arkitekturpris 2019 og Oslo bys arkitekturpris i 2020.
Eier og utvikler av Mariakvartalet er Oslo S Utvikling AS (OSU), som har drevet med by- og eiendomsutvikling i Bjørvika siden 2001. Av Bjørvikas totale eiendomsareal på 900 000 kvm, utvikler OSU 420 000 kvm. Selskapet står blant annet bak Barcode-rekken, Clemenskvartalet og ferdigstilte Vannkunsten. OSU bidrar også i utviklingen av offentlige byrom som Operastranda og Sørenga sjøbad via datterselskapet Bjørvika Utvikling. Selskapet eies 50/50 av Entra og Linstow. Totalentreprenør for Mariakvartalet er Veidekke.
Sørengkaia 1, 0194 OSLO
Knr. 301 Gnr. 234 Bnr. 60
Knr. 301 Gnr. 234 Bnr. 34
Leilighetene forventes å kunne ferdigstilles fra 4. kvartal 2026 og til 1. kvartalet 2027 uten at dette er å anse som bindende frist for overlevering.
Mulighet for kjøp av garasjeplass med elbillader. Konferer megler.
Byhagen:
Mariakvartalet har en aktiv ytre fasade mot byrom og gater i Bispevika, med en skjermet grønn indre byhage. Alle leilighetene får inngangsparti fra byhagen eller fra passasjen inn til byhagen. Gjennom byhagen går organisk formede ganglinjer gjennom et frodig grønt landskap. Det grønne landskapet får vegetasjon med stor variasjon i ulike arter med stauder, busker og trær.
Vegetasjonen planlegges som et levende bilde som endres gjennom årstidene med blomstring gjennom sesongen, høstfarger og vårflor. Gjennom små regnbed bidrar vi til å forsinke og fordrøye regnvannet før det renner ut i fjorden. Materialkvaliteten på bakken er svært høy, med natursteinsdekker i ulike formater og varme farger. Gjennom byhagen ønskes du som beboer «velkommen hjem» og får tilgang til kajakkstativ med kajakker til utlån, sykkelparkering, grillplass, bordtennisbord og sittebenker.
Takterrasser:
På alle takflatene blir det takterrasser. Enten som private uteplasser tilhørende spesifikke leiligheter, eller som fellesareal for sameiets beboere. Takterrassene får flere oppholdsplasser med pergola, utekjøkken og plass til langbord. Her vil det være rom for sammenkomster for mange, og rolige soner hvor man kan være mer alene.
Takterrassene leveres med plantekasser med frodig vegetasjon og utemøbler i en kombinasjon av treverk og lakkert stål, samt rekkverk i glass som gir fri utsikt ut over byen og fjorden. Utbygger vil søke om mulighet for innbygget drivhus på utvalgte takterrasser.
Sportsboder (ca. 5 kvm) vil ligge i kjeller (K1), hvorav noen boder er kompensert med noe større areal grunnet søyleplassering i boden. Det leveres dobbel stikkontakt (utenpåliggende, med synlig kabling) tilknyttet hver bod. Stikkontakter er koblet mot fellesanlegg i kjeller. Det etableres et antall felles sykkelplasser i kjeller og utendørs.
Det leveres kjøkken fra HTH eller Sigdal med integrerte hvitevarer, og omfanget av leveransen er iht. det som fremgår av leilighetsplanen. Detaljert kjøkkentegning vil bli oversendt kjøper i forbindelse med tilvalgprosessen. Kjøper kan uten ekstra kostnad velge mellom tre ulike kjøkkenfronter iht. prosjektets interiørkonsepter.
KONSEPT MOKKA:
Stilretningen er tøff og sofistikert med en varm undertone. Fargepaletten er delikat, mild og naturlig med solide jordfarger som går fra en dyp mokka til varm beige. Kombinasjonen av de jordnære tonene gir assosiasjoner til den rolige naturen og dens milde fargeharmonier. Sammen gir de rommene en vakker estetisk opplevelse og kontinental atmosfære.
KONSEPT DEMRING:
En stilretning som er luftig og kjølig med inspirasjon hentet fra luft og hav. Fargepaletten i kjølige toner gjør uttrykket diskret og behagelig samtidig som det er friskt og klart. Kombinasjonen av lys gråblått til mørkere blåtoner gir en opplevelse av tidløshet og ro. Kombinert med varme nyanser av dype jordfarger skapes en helt egen stemning i interiøret.
KONSEPT HVETE:
En stilretning som er lys og delikat som den nordiske naturen. Fargepaletten i vakre nøytrale nyanser løfter frem det myke og tidløse og lar det enkle og ekte få stå i fokus. Kombinasjonen av de lyse nøytrale tonene og varm eik danner en rolig og avslappende atmosfære som gir rommene en opplevelse av balanse og ro.
Kjøkkenfrontene leveres med overflate i fenixlaminat og laminat benkeplate. Leiligheter over 80 kvm leveres med benkeplate i komposittsten. Kjøkkenventilator Slide Sense fra Røroshetta. Der komfyr er vist på kjøkkenøy leveres Røroshetta Easy med integrert benkeventilator. Det leveres helintegrerte hvitevarer fra Siemens eller likeverdig, i energiklasse D/E.
Badene leveres med gulvflis i format 60×60 kombinert med veggflis 30×60 med farger iht. interiørkonsept MOKKA. Det blir satt inn baderomsinnredning med skuffer og heldekkende servant tilpasset de ulike baderomstypene, samt vegghengt toalett med soft close og dusjvegger i klart glass. Det vil være vannbåren gulvvarme med egen termostat.
Badene vil i hovedsak bli levert som prefabrikkerte baderomskabiner. Badene er allerede er i produksjon hos leverandør og det understrekes at tilvalg ikke lenger er mulig.
På WC vil det være 30×30 fliser på gulv og malte gipsvegger iht. interiørkonsept MOKKA.
Det er satt av plass til garderobeskap. Avsatt plass er anvist på kontraktstegning. Garderobeskap leveres ikke.
Bygget fundamenteres til fjell med peler. Bygningen utføres med bærekonstruksjon i betong og stål.
Dekker i betong. Gulvoppbygging over betongdekket i noen leiligheter.
Fra utsiden vil Mariakvartalet se ut som flere ulike bygårdshus der fargene varierer.
Fasadene i kvartalet utføres i tegl med ulike fargevalører. Det benyttes ulike dybder for å skape relieff og skyggevirkning på fasaden. Kvartalet vil oppfattes med et variert, men samtidig helhetlig og solid uttrykk.
Oppgang A – Bygårdshus 1: Fasadens hovedmateriale mot gaten og byhage er kledd i en rødtonet tegl. Felt i forbindelse med vinduer er trukket noe tilbake, for å skape skyggerelieff i fasaden. Aluminiumskledde dør-og vindusrammer og metallrekkverk mot gate og byhage, i en mørkere RAL farge som harmoniserer med fasadetegl.
Oppgang B – Bygårdshus 2: Fasadens hovedmateriale mot gate og byhage er kledd i en lys sandfarget tegl. Felt i forbindelse med vinduer og svalganger mot gaten er trukket noe tilbake, for å skape skyggerelieff i fasaden. Bakvegg på svalganger har pusset overflate i en farge som harmoniserer med fasadetegl. Aluminiumskledde dør-og vindusrammer og metallrekkverk i en mørkere RAL farge som harmoniserer med fasadetegl. Glassrekkverk i fasade mot byhage.
Oppgang K – Delt mellom Bygårdshus 12 og 13:
For Bygårdshus 12 er fasadens hovedmateriale mot gate og byhage kledd i en lys gultonet tegl. Felt i forbindelse med vinduer er trukket noe tilbake, for å skape skyggerelieff i fasaden. Aluminiumskledde dør-og vindusrammer og metallrekkverk i en mørkere RAL farge som harmoniserer med fasadetegl.
For Bygårdshus 13 er fasadens hovedmateriale mot gate og byhage kledd i en sandfarget tegl. Felt i forbindelse med vinduer er trukket noe tilbake, for å skape skyggerelieff i fasaden. Aluminiumskledde dør-og vindusrammer og metallrekkverk mot gate i en mørkere RAL farge som harmoniserer med fasadetegl. Glassrekkverk i fasade mot byhage.
Private balkonger og terrasser utføres som betongkonstruksjon med ubehandlet betongoverflate. Det leveres tremmegulv. Der balkonger er sammenhengende leveres skillevegg i tre. Tak over balkonger og terrasser har himling i varierende materialer og uttrykk, avhengig av hvilket bygårdshus de tilhører. Det kan bli synlige rustsikringer. Det blir ikke skråstag på balkonger.
Balkonger og terrasser er utvendige konstruksjoner, og mindre ansamlinger av vann kan oppstå på overflaten etter regnvær og snøsmelting. Det må også påregnes noe drypp av regnvann fra overliggende balkong og rekkverk. Øverste balkong har stedvis delvis takoverdekking.
Nedløpsrør i stål monteres i innvendige hjørner på balkonger, og skal ha samme fargetone som byggets fasade.
Rekkverkene tilpasses uttrykket for det enkelte hus. Hovedsakelig har man to hovedtyper, spilerekkverk eller glassrekkverk. Spilerekkverkets farge og uttrykk tilpasses vindusrammer og fasademateriale, det samme gjelder topp og bæring av rekkverk i balkongene med glassfronter. Nærmer beskrivelse for hvert bygårdshus finnes under punkt for «yttervegg/fasademateriale».
Enkelte leiligheter har helt eller delvis innglassede balkonger. Dette gjelder i hovedsak leiligheter mot syd, øst og delvis mot nord. Leiligheter det gjelder er angitt på kontraktstegning. Innglassing skal være rammeløs og paneler skal kunne samles på en side.
Trapper i betong. Rekkverk med rammer og spiler i stål. Overflate trappetrinn og repos kles med keramisk flis. Malte opptrinn.
Det er heis fra kjeller og opp til øverste etasje/takterrasse
Det er 24 timers tilknytning til ekstern tal/hør vakttjeneste.
Leilighetene planlegges med balansert ventilasjon fra eget luftbehandlingsanlegg i hver enkelt leilighet. Luftbehandlingsanlegg er plassert i bod, over himling eller i egen nisje. Plassering fremkommer på kontraktstegning. Behandlet friskluft tilføres i stue og soverom. Avtrekk fra bad, boder og kjøkken.
Hele bygget skal tilfredsstille dagens krav til brannsikring. Det innebærer blant annet heldekkende sprinkleranlegg i alle fellesarealer, i alle leilighetene, og utvendig på balkonger og terrasser hvor teknisk forskrift krever dette. Sprinkelhoder vil være synlige i alle rom, noen synlige rørføringer for fremføring av sprinkleranlegg må også påregnes. Det leveres i tillegg slukkeredskap iht krav til hver leilighet. Røykdetektor og alarmgiver i hver leilighet er direkte tilknyttet sentralt brannalarmanlegg – avstillingsmulighet ved feilutløsning i hver etasje.
Massiv leilighetsdør i finert eik med krom dørvrider og lås i stål, farge matt svart (NCS S8500-N).
Kompakte innerdører i tråd med interiørkonsepter. Vridere av krom stål. Skyvedører der det er inntegnet på kontraktstegning, og i samme farge som innvendige dører for øvrig. Spalte under dører. Terskler leveres fargetilpasset til parkett.
Vinduer og balkongdører leveres farge hvit NCS S0500-N innvendig. Farge utvendig skal harmonisere med fasadetegl og avklares i detaljprosjekteringen. Det leveres slagdør, foldedør eller skyvedør som inntegnet på kontraktstegning.
I alle rom bortsett fra våtrom leveres det enstavs eikeparkett type Pergo Accent Nordlys eller likeverdig.
På bad leveres det fliser i 60X60 format i henhold til valgt konsept.
På separat wc leveres det fliser i 30X30 format i henhold til valgt konsept.
Det installeres komplett anlegg med felles tablå ved hovedinngang og videocalling. Utenfor hver leilighet vil det i tillegg være en ringeknapp til leiligheten.
Det legges opp til uttak for bredbånd samt uttak for kabel-tv i stue. Selger vil på vegne av sameiet tegne avtale med varighet inntil 3 år. .
Leilighetene varmes opp via sentralt plassert viftekonvektor som fortrinnsvis monteres skjult i himling. Enheten trekker inn uteluft og varmer denne opp slik at oppvarmet luft igjen blåses inn i oppholdsrom. (Kostnader for forbruk faktureres basert på leilighetsareal BRA, eller på måling. I hver bolig leveres det målere med mulighet for fjernavlesning for varmt tappevann og for Oppvarming med konvektorer. På bad blir det termostatstyrt vannbåren varme i gulv som komfortvarme.)
På eiendommen er det tinglyst følgende heftelser og rettigheter som følger eiendommens matrikkel ved overskjøting til ny hjemmelshaver:
301/234/60:
08.08.1975 – Dokumentnr: 516216 – Rettighet
Rettighetshaver: Tollpost-Globe AS
Org.nr: 916 798 032
LEIE AV NÆRINGSLOKALE
UTLEIER: NORGES STATSBANER
LEIE-TID: 10 ÅR
ÅRLIG AVGIFT NOK 20,253
MED FLERE BESTEMMELSER
Overført fra: Knr:0301 Gnr:234 Bnr:97
Gjelder denne registerenheten med flere
24.09.1984 – Dokumentnr: 547801 – Rettighet
Rettighetshaver: Tollpost-Globe AS
Org.nr: 916 798 032
LEIE AV NÆRINGSLOKALE
LEIE-TID: 30 ÅR
BESTEMMELSER OM FORLENGELSE
MED FLERE BESTEMMELSER
Overført fra: Knr:0301 Gnr:234 Bnr:97
Gjelder denne registerenheten med flere
07.10.2015 – Dokumentnr: 924739 – Best. om adkomstrett
Allmenheten har rett til ferdsel gjennom felt G4
Kan ikke slettes eller endres uten samtykke fra kommunen
Med flere bestemmelser
08.06.2010 – Dokumentnr: 414798 – Registrering av grunn
Denne matrikkelenhet opprettet fra:
Knr:0301 Gnr:234 Bnr:34
23.03.2015 – Dokumentnr: 258185 – Sammenslåing
Sammenslått med denne matrikkelenhet:
Knr:0301 Gnr:234 Bnr:95
Sammenslått med denne matrikkelenhet:
Knr:0301 Gnr:234 Bnr:96
Sammenslått med denne matrikkelenhet:
Knr:0301 Gnr:234 Bnr:97
Sammenslått med denne matrikkelenhet:
Knr:0301 Gnr:234 Bnr:99
Sammenslått med denne matrikkelenhet:
Knr:0301 Gnr:250 Bnr:54
Selger har ansvaret for at det foreligger brukstillatelse på leiligheten senest ved kjøpers overtagelse av leiligheten.
Beliggenheten kombinerer nærhet til fjorden og ulike grøntområder, med nærhet til et urbant nabolag med et rikt utvalg restauranter, kaféer og nisjebutikker. Langs byggets vestfasade går Rostockgata som tilrettelegges for syklister og gående. På siden mot øst blir det utsikt mot Middelalderparken og Ekebergåsen. I retning syd ligger den grønne allmenningen Kongsbakken og Sørenga sjøbad. Det kommer serveringssteder, butikker og servicetilbud på gateplan i kvartalet.
Reguleringsbestemmelser og reguleringskart ligger som vedlegg til denne salgsoppgaven. Mariakvartalet ligger på felt B8B som er regulert til bolig, forretninger, offentlig eller privat tjenesteyting, barnehage, kontor, bevertning og energianlegg. Reguleringsbestemmelser for felt B8B i Bjørvika er S-4826, vedtatt 12.11.2014. Detaljreguleringen er en del av reguleringsplan S-4099. Felt B8B (Mariakvartalet) består av et kvartalsbygg, med reguleringshøyde på kote + 30.
Bebyggelse mot nord på Clemenskvartalet (felt B8A) er ferdig utbygget. Bebyggelse mot nordvest på Vannkunsten syd (felt B6B) er under bygging med reguleringshøyde på kote + 24. Fremtidig bebyggelse mot vest på felt B9 har reguleringshøyde på kote + 22. Felt B9 er under utvikling og endringer i bygningsvolumer og plassering av fremtidig bebyggelse vil skje i forhold til dagens regulering. Det vil bli søkt dispensasjon for økt reguleringshøyde på B9, antall etasjer blir maks 6. På takplan vil trappe- og heishus, fellesrom stikke opp over takplan mot Mariakvartalet. Feltene mot syd og mot sydvest (felt D23a-b og D24a-b-c-d) er regulert til offentlig park.
Rammetillatelse datert 29.08.2022.
Det er gitt totalt 12 dispensasjoner fra reguleringsplanen og kommuneplanen i rammetillatelsen for Mariakvartalet. Dispensasjon 10 gjelder etablering av ensidige leiligheter mot støyutsatt gate. I nordøst er det gitt dispensasjon for leilighetene C303, C403, C503, C603 og C703. Rammetillatelsen er vedlagt kjøpekontrakten. Det prosjekteres og bygges i henhold til Byggeteknisk forskrift TEK17. Selger har ansvaret for at det foreligger brukstillatelse på leiligheten senest ved kjøpers overtagelse av leiligheten. Reguleringsbestemmelser og reguleringskart ligger som vedlegg til denne salgsoppgaven.
Det er innført eiendomsskatt på boliger og annen fast eiendom. Det settes et bunnfradrag på 4 millioner kroner for boliger og fritidsboliger. Skattesatsen i 2021 er på 3 promille.
Formuesverdien er ikke fastsatt, men fastsettes av Skatteetaten etter en beregningsmodell som hensyntar om boligen er «primærbolig»; (der eier er bosatt iht. Folkeregisteret) eller «sekundærbolig»; (andre boliger man eier). For primærbolig er formuesverdien 25 % av markedsverdien opp til kr. 10 000 000 og deretter 70 % av den overskytende markedsverdien, og 100 % for sekundærboliger. Det gjøres oppmerksom på at kjøper selv må sende inn opplysninger om adresse, areal, boligtype og byggeår til skattemyndighetene.
Det tas forbehold om endring av satser, og henvises til Skatteetatens websider dersom ytterligere informasjon er ønskelig.
I tillegg til kjøpesummen må kjøper betale:
1: Dokumentavgift til staten, 2,5% av andel tomteverdi: Kr. 35 020,-
2: Tinglysningsgebyr skjøte: Kr. 545,-
3: Tinglysningsgebyr pantedokument: Kr. 545,-
Totale omkostninger: Kr. 36 125,-
Tilbud om lånefinansiering
Megler formidler gjerne kontakt med rådgiver hos vår samarbeidspartner Sparebank 1 Hallingdal og Valdres. De har konkurransedyktige betingelser samt rask og løsningsorientert behandling av din lånesøknad. Røisland & Co mottar et honorar for denne formidlingen.
1) Det forutsettes at 10 % av kjøpesummen innbetales til meglers klientkonto ved signatur av kjøpekontrakt samt Buofl. § 12 garantien er stilt. Kontantinnbetaling må være fri egenkapital.
Påløpte renter tilfaller kjøper frem til skjøte er tinglyst på kjøper, med mindre selger får disposisjonsretten over beløpet som en følge av at det stilles garanti i medhold av buofl. § 47.
2) Eventuelle endringsbestillinger betales etter nærmere avtale med selger.
3) Resterende del av kjøpesummen betales 3 dager før overtagelse.
4) Alle betalinger skal betales inn fra kjøpers konto i norsk finansinstitusjon.
I tilfeller hvor kjøper er profesjonell iht. bustadoppføringslova, dvs. gjør kjøpet som ledd i næringsvirksomhet, vil selger kreve 20% innbetaling ved kontraktsignatur.
Leilighetene vil bli solgt som eierleiligheter og organisert som sameie og følger eierseksjonsloven av 16. juni 2017, nr. 65. Bygget er et kombinasjonsbygg med næring og bolig hvor man bl.a. har stemmerett etter eierbrøk. Næringsarealene vil hovedsakelig ligge i 1. og 2. etasje. Eierseksjonsloven kan i sin helhet, fås ved henvendelse til megler. Loven finnes også på www.lovdata.no.
Selger kan kansellere inngått Kjøpekontrakt frem til 31.12.2024 dersom ikke nødvendig forhåndssalg eller tilfredsstillende finansiering for Mariakvartalet er oppnådd. Videre kan Selger kansellere dersom styrets godkjenning, igangsettelsestillatelse eller annen nødvendig tillatelse fra kommunen eller annen offentlig myndighet ikke gis innen samme frist. Selger skal sende skriftlig varsel til Kjøper når grunnlaget for forbeholdene er bortfalt og kontrakten derved er endelig, sammen med angivelse av endelig tidspunkt for overlevering (Overtakelse) ref. kjøpekontrakten pkt. 13.1 andre avsnitt.
Bestemmelser tiltak mot hvitvasking / kjøpers innbetaling I henhold til lov om hvitvasking og terrorfinansiering har megler plikt til å gjennomføre kontrolltiltak ovenfor kunder. Dette innebærer å bekrefte kunders identitet på bakgrunn av fremvist gyldig legitimasjon. Videre innebærer det å få bekreftet identiteten til eventuelle reelle rettighetshavere, og å innhente opplysninger om kundeforholdets formål og tilsiktede art. Dersom slike kundetiltak ikke kan gjennomføres kan megler ikke etablere kundeforholdet eller utføre transaksjonen. Det anbefales at kjøper innbetaler kjøpesummen som ikke kommer fra låneinstitusjon, i en samlet innbetaling fra egen konto i norsk bank. Dersom megler får mistanke om brudd på hvitvaskingsreglementet i forbindelse med en eiendomshandel, og han ikke klarer å få avkreftet denne mistanke, har han plikt til å rapportere dette til Økokrim. Melding sendes Økokrim uten at partene varsles. Megler kan i enkelte tilfeller også ha plikt til å stanse gjennomføring av handelen.
Kjøper kan avbestille boligen inntil overtakelse har funnet sted. Ved avbestilling kommer reglene i Bustadoppføringslova kapittel VI til anvendelse. Ved avbestilling gjelder bestemmelsene i buofl. § 53. I et slikt tilfelle skal kjøper dekke hele selgers økonomiske tap.
Sist oppdatert: 22.04.2026
J606
6. Etasje
2-roms
40 m²
kr 7 300 000,-
J302
3. Etasje
2-roms
49 m²
kr 7 950 000,-
J402
4. Etasje
2-roms
49 m²
kr 8 200 000,-
J305
3. Etasje
3-roms
51 m²
kr 8 300 000,-
J204
2. Etasje
3-roms
49 m²
kr 8 400 000,-
J303
3. Etasje
3-roms
48 m²
kr 8 750 000,-
E302
3. Etasje
4-roms
87 m²
kr 13 200 000,-
G304
3. Etasje
4-roms
85 m²
kr 15 800 000,-
G404
4. Etasje
4-roms
85 m²
kr 16 200 000,-